·Î±×ÀÎ
86
´Ù¼¼´ë(ºô¶ó)
¼ö¿øÁö¹æ¹ý¿ø
 °¨Á¤°¡175,000,000 ¿ø
 ÃÖÀú°¡(100%) 175,000,000 ¿ø
 º¸Áõ±Ý(10%) 17,500,000 ¿ø
 Ã»±¸¾×94,948,603 ¿ø
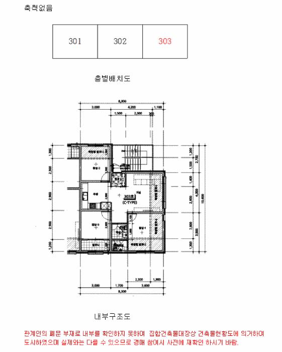
°æ±âµµ ¿ëÀνà óÀα¸ ³²µ¿ 423-1 ¼Ò³ëÆç¸®Ã¼ 101µ¿ 3Ãþ303È£
»ç°Ç¹øÈ£ 2025Ÿ°æ953
°æ¸ÅÁ¾·ùºÎµ¿»êÀÓÀǰæ¸Å
¸Å°¢´ë»óÅäÁö ¹× °Ç¹°Àϰý ¸Å°¢
¸Å°¢±âÀÏ    2026.02.24(È­) 10:00 ÀÔÂû 2ÀÏÀü    
ÅäÁö¸éÀû62.05§³(18.77 Æò)
°Ç¹°¸éÀû52.92§³(16.01 Æò)
乫/¼ÒÀ¯ÀÚÀÌOO / ÀÌOO
ä±ÇÀÚ¼öOOO
ÆäÀ̽ººÏ Æ®À§ÅÍ ±¸±Û+
īī¿À½ºÅ丮
īī¿ÀÅå sms¹®ÀÚº¸³»±â
 

±âÀϳ»¿ª

°æ°ú ³¯Â¥ Àú°¨ ÃÖÀú°¡ °á°ú
Á¢¼öÀÏ 2025-03-05 °æ¸ÅÁ¢¼ö
~1ÀÏ 
2025-03-06 °æ¸Å°³½Ã°áÁ¤
~75ÀÏ 
2025-05-19 ¹è´ç¿ä±¸Á¾±âÀÏ
~356ÀÏ 
2026-02-24 100%
175,000,000
ÁøÇà
¹°°Ç¸í¼¼¼­ ÇöȲÁ¶»ç¼­ ¹®°ÇÁ¢¼ö ¼Û´Þ³»¿ª

°¨Á¤Æò°¡ÇöȲ

¸ñ·Ï ÁÖ¼Ò ±¸Á¶/¿ëµµ/´ëÁö±Ç ¸éÀû ºñ°í
´ëÁö±Ç
³²µ¿ 423-1 2087ºÐÀÇ 62.0486 62.0486 §³
(18.77Æò)
°Ç¹°
³²µ¿ 423-1 101µ¿ 3Ãþ303È£ ö±ÙÄÜÅ©¸®Æ®±¸Á¶ 52.9243 §³
(16.01Æò)
1) À§Ä¡/µµ½ÃÁö¿ª/ÀÚ¿¬³ìÁöÁö¿ª/Â÷·®ÃâÀÔ °¡´É/¹ö½ºÁ¤·ùÀå/ö±ÙÄÜÅ©¸®Æ®±¸Á¶/µµ½Ã°¡½º ´õº¸±â
°¨Á¤Æò°¡ ¿äÇ×Ç¥
1)À§Ä¡ ¹× ÁÖÀ§È¯°æ
º»°ÇÀº °æ±âµµ ¿ëÀνà óÀα¸ ¼ÒÀç ¿ëÀÎ ÀÚµ¿Â÷ ¸Å¸Å´ÜÁö ³²¼­Ãø ±Ù°Å¸®¿¡ À§Ä¡Çϸç
ÁÖº¯Àº ´Üµ¶ÁÖÅà ¹× ´Ù¼¼´ëÁÖÅÃ, ³óÁö ¹× ÀÓ¾ß µîÀÌ È¥ÀçÇÏ´Â Áö¿ªÀ¸·Î ÁÖ°ÅÁö·Î¼­ÀÇ
Á¦¹Ý ȯ°æ º¸Åë½ÃµÊ.
2)±³Åë»óȲ
º»°Ç±îÁö Â÷·®ÃâÀÔ °¡´ÉÇϸç, µ¿Ãø Àαٿ¡ À§Ä¡ÇÑ ¹ö½ºÁ¤·ùÀå±îÁö´Â µµº¸ 10¿©ºÐ
¼Ò¿äµÇ°í ¹ö½º·Î ºÏÃø ¿ëÀνà Áß½ÉÁö±îÁö ¾à 15¿©ºÐ ¼Ò¿äµÇ´Â µî ´ëÁß±³Åë»çÁ¤Àº
º¸ÅëÀÓ.
3)°Ç¹°ÀÇ ±¸Á¶
ö±ÙÄÜÅ©¸®Æ®±¸Á¶ (ö±Ù)ÄÜÅ©¸®Æ®ÁöºØ 4Ãþ °Ç¹° ³» 3Ãþ 303È£·Î¼­
¿Üº® : Ä¡Àå º®µ¹¸¶°¨.
³»º® : º®Áöµµ¹è ¹× ŸÀÏ ¸¶°¨ µî.
âȣ : ¼¦½Ã âȣÀÓ.

4)ÀÌ¿ë»óÅÂ
´ÜÁöÇü ´Ù¼¼´ëÁÖÅÃÀ¸·Î ÀÌ¿ëÁßÀÓ.(ÈÄ÷ ³»ºÎ±¸Á¶µµ ÂüÁ¶)
5)¼³ºñ³»¿ª
À§»ý ¹× ±Þ¹è¼ö¼³ºñ, °³º° ³­¹æ¼³ºñ, µµ½Ã°¡½º¼³ºñ µîÀ» °®Ãß¾úÀ¸¸ç º»°Ç 3È£¶óÀο¡´Â
½Â°­±â¼³ºñ°¡ ¾øÀ½.
6)ÅäÁöÀÇ Çü»ó ¹× ÀÌ¿ë»óÅÂ
ÀÎÁ¢µµ·Î¿Í µî°íÆòźÇÑ ºÎÁ¤ÇüÅäÁö·Î¼­ ´Ù¼¼´ëÁÖÅúÎÁö·Î ÀÌ¿ëÁßÀÓ.
7)ÀÎÁ¢ µµ·Î»óŵî
º»°Ç ³²ÃøÀ¸·Î ³ëÆø ¾à 6¹ÌÅÍ Æ÷Àåµµ·Î¿Í Á¢ÇÔ.
8)ÅäÁöÀÌ¿ë°èȹ ¹× Á¦ÇÑ»óÅÂ
µµ½ÃÁö¿ª, ÀÚ¿¬³ìÁöÁö¿ª, ÀÚ¿¬Ãë¶ôÁö±¸, ¼ºÀå°ü¸®°èȹ±¸¿ª(ÁÖ°ÅÇü),°¡Ãà»çÀ°Á¦Çѱ¸¿ª
<°¡ÃàºÐ´¢ÀÇ °ü¸® ¹× À̿뿡 °üÇÑ ¹ý·ü>, ¹èÃâ½Ã¼³¼³Ä¡Á¦ÇÑÁö¿ª<¹°È¯°æº¸Àü¹ý>, ÀÚ¿¬
º¸Àü±Ç¿ª<¼öµµ±ÇÁ¤ºñ°èȹ¹ý>, ¼öÁúº¸ÀüƯº°´ëÃ¥Áö¿ª<ȯ°æÁ¤Ã¥±âº»¹ý>
9)°øºÎ¿ÍÀÇ Â÷ÀÌ
¾øÀ½.
10)±âŸÂü°í»çÇ×(ÀÓ´ë°ü·Ê ¹× ±âŸ)
ÀÓ´ë°ü°è´Â ¹Ì»óÀÓ.
Âü°í
»çÇ×

ÇØ´ç ºÎµ¿»êÀÇ ÇöȲÀº ¿Ü°ü»ó °øºÎÀÇ ³»¿ë°ú ÀÏÄ¡ÇÏ´Â °ÍÀ¸·Î º¸ÀÓ.

°ÇÃ๰ÇöȲ

¼ÒÀçÁö °æ±âµµ ¿ëÀνà óÀα¸ ³²µ¿ 423-1¹øÁö
´ëÁö¸éÀû   ¿¬¸éÀû 481.96§³
(146.05Æò)
°ÇÃà¸éÀû 165.36§³
(50.11Æò)
¿ëÀû·ü»êÁ¤
¿¬¸éÀû
481.96§³
(146.05Æò)
°ÇÆóÀ²   ¿ëÀû·ü  
Áö»óÃþ¼ö 4Ãþ ÁöÇÏÃþ¼ö  
ÁÖ¿ëµµ °øµ¿ÁÖÅà ±¸Á¶ ö±ÙÄÜÅ©¸®Æ®±¸Á¶
Âø°øÀÏÀÚ 2015.11.02 »ç¿ë½ÂÀÎÀÏÀÚ 2016.09.07
°ÇÃ๰Ãþº°ÇöȲ [º¸±â]


µî±âºÎµîº» ¿ä¾à(°Ç¹°)

  Á¢¼öÀÏÀÚ µî±â¸ñÀû/±Ç¸®ÀÚ ±Ç¸®±Ý¾× ±âÁØ
1 2021³â5¿ù18ÀÏ
¼ÒÀ¯±Ç
ÀÌOO
¼Ò¸ê
2 2021³â5¿ù18ÀÏ
±ÙÀú´ç±Ç
¼öOOO
115,000,000 ¼Ò¸ê±âÁØ
3 2025³â3¿ù6ÀÏ
ÀÓÀǰæ¸Å
¼öOOO
¼Ò¸ê
4 2025³â5¿ù9ÀÏ
°¡¾Ð·ù
¼öOOO
3,661,944 ¼Ò¸ê
5 2026³â1¿ù26ÀÏ
°¡¾Ð·ù
¿ìOOOO
10,491,608 ¼Ò¸ê

ÀÓÂ÷ÀÎÇöȲ (¹è´ç¿ä±¸Á¾±âÀÏ: 2025-05-19)


Á¶»çµÈ ÀÓÂ÷³»¿ªÀÌ ¾ø½À´Ï´Ù.


¿©ÀÇÁÖ°æ¸Å Á¶¾ð ÇÑ ¸¶µð


ÁÖÀÇ»çÇ× (ÃÖ¼±¼øÀ§ ¼³Á¤ÀÏ: 2021. 5. 18. ±ÙÀú´ç±Ç ¼³Á¤)

¸Å°¢À¸·Î ¼Ò¸êµÇÁö ¾Ê´Â µî±âºÎ±Ç¸®:
¸Å°¢À¸·Î ¼³Á¤µÈ °ÍÀ¸·Î º¸´Â Áö»ó±Ç:
¡Ø¹Ì³³°ü¸®ºñ(°ø¿ë) Àμö¿©ºÎ¸¦ ÀÔÂû Àü¿¡ È®ÀÎÇϽñ⠹ٶø´Ï´Ù

 

Áö¿ªºÐ¼®

ÁöÇÏö¸í Á÷¼±°Å¸®

Çб³¸í ÀüÈ­¹øÈ£ ÁÖ¼Ò Á÷¼±°Å¸®

¹ý¿ø

¼ö¿øÁö¹æ¹ý¿ø (165-12)°æ±âµµ ¼ö¿ø½Ã ¿µÅ뱸 ¹ýÁ¶·Î 105, Çϵ¿, ¼ö¿ø¹ý¿øÁ¾ÇÕû»ç
´ëÇ¥ : 031)210-1114, ¾ß°£ : 031)210-1111
°üÇÒÁö¿ª : ¼ö¿ø½Ã, ¿À»ê½Ã, È­¼º½Ã, ¿ëÀνÃ

µî±â¼Ò ¼ö¿øÁö¹æ¹ý¿ø º»¿ø ¿ëÀεî±â¼Ò (´ëÇ¥:1544-0773, ÆÑ½º:(031)321-3919, °æ±âµµ ¿ëÀνà óÀα¸ ¼º»ê·Î 7 (¿ªºÏµ¿ 391-28))
¼¼¹«¼­ ¿ëÀμ¼¹«¼­ (´ëÇ¥:031-329-22, ÆÑ½º:031-329-2328, °æ±âµµ ¿ëÀνà óÀα¸ Áߺδë·Î1161¹ø±æ 71 (»ï°¡µ¿))

Àαٳ«ÂûÅë°è

±â°£ ¸Å°¢°Ç¼ö Æò±Õ°¨Á¤°¡
Æò±Õ¸Å°¢°¡
¸Å°¢°¡À²
Æò±ÕÀ¯Âû¼ö


º» °æ¸ÅÁ¤º¸´Â ¹ý¿øÀÚ·á¿Í ÀÏÄ¡Çϵµ·Ï ÇÏ¿´À¸³ª ±Ç¸®»çÇ׺¯µ¿, ÀÔ·ÂÂø¿À µîÀÇ ¿øÀÎÀ¸·Î »ç½Ç°ú ´Ù¸¦ ¼ö ÀÖ½À´Ï´Ù. ÀÌ¿ë¾à°ü¿¡ ÀǰЏéÃ¥Á¶°ÇÀ¸·Î Á¦°øµÊÀ» ¾Ë¸®¸ç, °æ¸ÅÀÔÂû½Ã ¹Ýµå½Ã °ü·Ã °øºÎ¸¦ ÀçÈ®ÀÎÇϽñ⠹ٶø´Ï´Ù. º¸´Ù Æí¸®ÇÑ °æ¸ÅÁ¤º¸ Á¦°øÀ» À§ÇØ Áö¼ÓÀûÀ¸·Î °³¼±ÇϰڽÀ´Ï´Ù. ÀÌ¿ëÇØ Áּż­ °¨»çÇÕ´Ï´Ù.