·Î±×ÀÎ
227
´Ù¼¼´ë(ºô¶ó)
¼­¿ïºÏºÎÁö¹æ¹ý¿ø
 °¨Á¤°¡403,000,000 ¿ø
 ÃÖÀú°¡(80%) 322,400,000 ¿ø
 º¸Áõ±Ý(10%) 32,240,000 ¿ø
 Ã»±¸¾×390,000,000 ¿ø
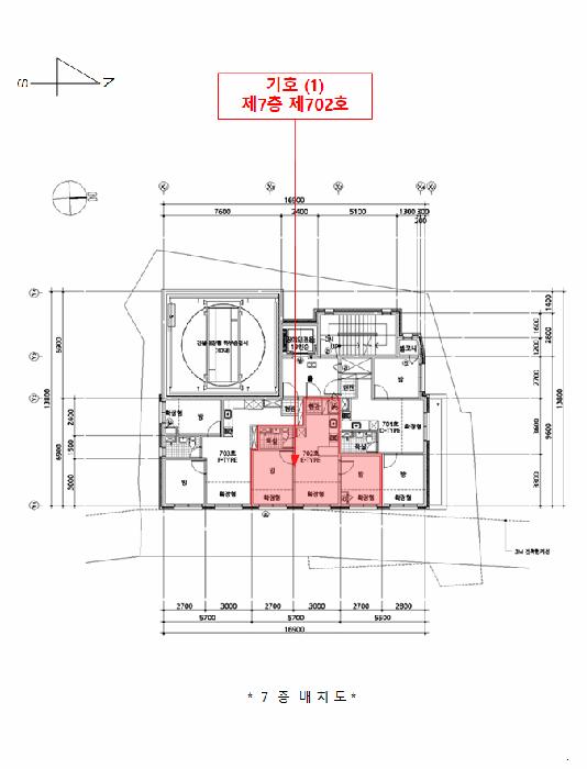
¼­¿ïƯº°½Ã µ¿´ë¹®±¸ ´ä½Ê¸®µ¿ 243-6 ½á¹ÔÄ«¿îƼ 7Ãþ702È£
»ç°Ç¹øÈ£ 2025Ÿ°æ11992
°æ¸ÅÁ¾·ùºÎµ¿»ê°­Á¦°æ¸Å
¸Å°¢´ë»óÅäÁö ¹× °Ç¹°Àϰý ¸Å°¢
¸Å°¢±âÀÏ    2026.04.28(È­) 10:00 ÀÔÂû 19ÀÏÀü    
ÅäÁö¸éÀû10.44§³(3.16 Æò)
°Ç¹°¸éÀû28.45§³(8.61 Æò)
乫/¼ÒÀ¯ÀÚ¹ÚOO / ¹ÚOO
ä±ÇÀÚÁÖOOOOOOO
ÆäÀ̽ººÏ Æ®À§ÅÍ ±¸±Û+
īī¿À½ºÅ丮
īī¿ÀÅå sms¹®ÀÚº¸³»±â
 

±âÀϳ»¿ª

°æ°ú ³¯Â¥ Àú°¨ ÃÖÀú°¡ °á°ú
Á¢¼öÀÏ 2025-02-24 °æ¸ÅÁ¢¼ö
~1ÀÏ 
2025-02-25 °æ¸Å°³½Ã°áÁ¤
~73ÀÏ 
2025-05-08 ¹è´ç¿ä±¸Á¾±âÀÏ
~393ÀÏ 
2026-03-24 100%
403,000,000
À¯Âû
~428ÀÏ 
2026-04-28 80%
322,400,000
ÁøÇà
¹°°Ç¸í¼¼¼­ ÇöȲÁ¶»ç¼­ ¹®°ÇÁ¢¼ö ¼Û´Þ³»¿ª

°¨Á¤Æò°¡ÇöȲ

¸ñ·Ï ÁÖ¼Ò ±¸Á¶/¿ëµµ/´ëÁö±Ç ¸éÀû ºñ°í
´ëÁö±Ç
´ä½Ê¸®µ¿ 243-6 409ºÐÀÇ 10.439 10.439 §³
(3.16Æò)
°Ç¹°
´ä½Ê¸®µ¿ 243-6 7Ãþ702È£ ö±ÙÄÜÅ©¸®Æ®±¸Á¶ 28.451 §³
(8.61Æò)
1) À§Ä¡/µµ½ÃÁö¿ª/Á¦2Á¾ÀϹÝÁÖ°ÅÁö¿ª/Á¦3Á¾ÀϹÝÁÖ°ÅÁö¿ª/ÁØÁÖ°ÅÁö¿ª/ÀçÁ¤ºñÃËÁøÁö±¸/Â÷·®ÀÇ Á¢±ÙÀÌ °¡´É/³ë¼±¹ö½ºÁ¤·ùÀå/ö±ÙÄÜÅ©¸®Æ®±¸Á¶/Æò½º¶óºêÁöºØ ´õº¸±â
°¨Á¤Æò°¡ ¿äÇ×Ç¥
1)À§Ä¡ ¹× ÁÖÀ§È¯°æ
º»°ÇÀº ¼­¿ïƯº°½Ã µ¿´ë¹®±¸ Àü³óµ¿ ¼ÒÀç ""Àü³óÃʵîÇб³"" ³²µ¿Ãø Àαٿ¡ À§Ä¡Çϰí ÀÖ´Â ±¸ºÐ°Ç¹°(´Ù¼¼´ëÁÖÅÃ)·Î¼­, º»°Ç ÁÖÀ§´Â ±Ù¸°»ýȰ½Ã¼³, ¾ÆÆÄÆ®, ´Ù¼¼´ëÁÖÅÃ, Çб³, °ø¿ø µîÀÌ ¼ÒÀçÇÏ´Â Áö¿ªÀ¸·Î Á¦¹Ý ÁÖÀ§È¯°æ º¸Åë½ÃµÊ.
2)±³Åë»óȲ
º»°Ç±îÁö Á¦¹Ý Â÷·®ÀÇ Á¢±ÙÀÌ °¡´ÉÇϸç, Àαٿ¡ ³ë¼±¹ö½ºÁ¤·ùÀåÀÌ ¼ÒÀçÇÏ´Â µî ±³Åë»óȲÀº º¸Åë½Ã µÊ.
3)°Ç¹°ÀÇ ±¸Á¶
ö±ÙÄÜÅ©¸®Æ®±¸Á¶ Æò½º¶óºêÁöºØ 11Ãþ ³» Á¦7Ãþ Á¦702È£ ·Î¼­
¿Üº®: ŸÀϺÙÀÓ¸¶°¨ µî
âȣ: »õ½Ãâȣ µî ÀÓ.
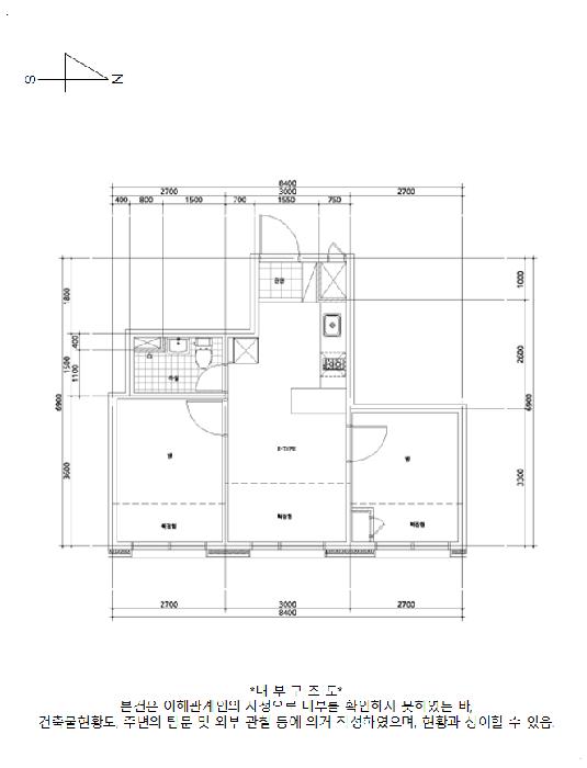
4)ÀÌ¿ë»óÅÂ
´Ù¼¼´ëÁÖÅÃ(ÁÖ°Å¿ë) ÀÌ¿ë ÁßÀÓ.(Èĸé '°Ç¹°°³È²µµ' ÂüÁ¶)
5)¼³ºñ³»¿ª
½Â°­±â¼³ºñ, À§»ý¼³ºñ ¹× ±Þ¹è¼ö¼³ºñ, ¿Á³»¼ÒÈ­Àü¼³ºñ, È­ÀçŽÁö¼³ºñ µîÀÌ µÇ¾îÀÖÀ½.
6)ÅäÁöÀÇ Çü»ó ¹× ÀÌ¿ë»óÅÂ
³×ÇÊÁö ÀÏ´ÜÀÇ ÀÎÁ¢ ÇÊÁö ´ëºñ µî°íÆòźÇÑ ºÎÁ¤ÇüÀÇ ÅäÁö·Î¼­, ÁÖ»ó¿ë °ÇºÎÁö·Î ÀÌ¿ëÁßÀÓ.
7)ÀÎÁ¢ µµ·Î»óŵî
º»°Ç µ¿ÃøÀ¸·Î ¾à20¹ÌÅÍ ³»¿ÜÀÇ µµ·Î¿¡ Á¢ÇÔ.
8)ÅäÁöÀÌ¿ë°èȹ ¹× Á¦ÇÑ»óÅÂ
1. ´ä½Ê¸®µ¿ 243-6 : µµ½ÃÁö¿ª, Á¦3Á¾ÀϹÝÁÖ°ÅÁö¿ª, ÁØÁÖ°ÅÁö¿ª, ´ë·Î3·ù(Æø 25m~30m)(ÀúÃË) °¡Ãà»çÀ°Á¦Çѱ¸¿ª<°¡ÃàºÐ´¢ÀÇ °ü¸® ¹× À̿뿡 °üÇÑ ¹ý·ü>, °¡·Î±¸¿ªº° ÃÖ°í³ôÀÌ Á¦ÇÑÁö¿ª(2015-08-27)<°ÇÃà¹ý>, ±³À°È¯°æº¸È£±¸¿ª(2019-12-27)(»ó´ëÁ¤È­±¸¿ª)<±³À°È¯°æ º¸È£¿¡ °üÇÑ ¹ý·ü>, ´ë°ø¹æ¾îÇùÁ¶±¸¿ª(ÇØ¹ß134m(Áö¹Ý+°ÇÃà+¿Áž µî))<±º»ç±âÁö ¹× ±º»ç½Ã¼³ º¸È£¹ý>, ÀçÁ¤ºñÃËÁøÁö±¸<µµ½ÃÀçÁ¤ºñ ÃËÁøÀ» À§ÇÑ Æ¯º°¹ý>, °ú¹Ð¾ïÁ¦±Ç¿ª<¼öµµ±ÇÁ¤ºñ°èȹ¹ý> °ÇÃ༱(¼¼ºÎ»çÇ× °ÇÃà°ú ¹®ÀÇ),

2. ´ä½Ê¸®µ¿ 243-31 : µµ½ÃÁö¿ª, Á¦2Á¾ÀϹÝÁÖ°ÅÁö¿ª, ÁØÁÖ°ÅÁö¿ª °¡Ãà»çÀ°Á¦Çѱ¸¿ª<°¡ÃàºÐ´¢ÀÇ °ü¸® ¹× À̿뿡 °üÇÑ ¹ý·ü>, °¡·Î±¸¿ªº° ÃÖ°í³ôÀÌ Á¦ÇÑÁö¿ª(2015-08-27)<°ÇÃà¹ý>, ±³À°È¯°æº¸È£±¸¿ª(2019-12-27)(»ó´ëÁ¤È­±¸¿ª)<±³À°È¯°æ º¸È£¿¡ °üÇÑ ¹ý·ü>, ´ë°ø¹æ¾îÇùÁ¶±¸¿ª(ÇØ¹ß134m(Áö¹Ý+°ÇÃà+¿Áž µî))<±º»ç±âÁö ¹× ±º»ç½Ã¼³ º¸È£¹ý>, ÀçÁ¤ºñÃËÁøÁö±¸<µµ½ÃÀçÁ¤ºñ ÃËÁøÀ» À§ÇÑ Æ¯º°¹ý>, °ú¹Ð¾ïÁ¦±Ç¿ª<¼öµµ±ÇÁ¤ºñ°èȹ¹ý>,

3. ´ä½Ê¸®µ¿ 243-32 : µµ½ÃÁö¿ª, Á¦2Á¾ÀϹÝÁÖ°ÅÁö¿ª, ÁØÁÖ°ÅÁö¿ª °¡Ãà»çÀ°Á¦Çѱ¸¿ª<°¡ÃàºÐ´¢ÀÇ °ü¸® ¹× À̿뿡 °üÇÑ ¹ý·ü>, °¡·Î±¸¿ªº° ÃÖ°í³ôÀÌ Á¦ÇÑÁö¿ª(2015-08-27)<°ÇÃà¹ý>, ±³À°È¯°æº¸È£±¸¿ª(2019-12-27)(»ó´ëÁ¤È­±¸¿ª)<±³À°È¯°æ º¸È£¿¡ °üÇÑ ¹ý·ü>, ´ë°ø¹æ¾îÇùÁ¶±¸¿ª(ÇØ¹ß134m(Áö¹Ý+°ÇÃà+¿Áž µî))<±º»ç±âÁö ¹× ±º»ç½Ã¼³ º¸È£¹ý>, ÀçÁ¤ºñÃËÁøÁö±¸<µµ½ÃÀçÁ¤ºñ ÃËÁøÀ» À§ÇÑ Æ¯º°¹ý>, °ú¹Ð¾ïÁ¦±Ç¿ª<¼öµµ±ÇÁ¤ºñ°èȹ¹ý>,

4. ´ä½Ê¸®µ¿ 69-3 : µµ½ÃÁö¿ª, ÁØÁÖ°ÅÁö¿ª, ´ë·Î3·ù(Æø 25m~30m)(Á¢ÇÕ) °¡Ãà»çÀ°Á¦Çѱ¸¿ª<°¡ÃàºÐ´¢ÀÇ °ü¸® ¹× À̿뿡 °üÇÑ ¹ý·ü>, °¡·Î±¸¿ªº° ÃÖ°í³ôÀÌ Á¦ÇÑÁö¿ª(2015-08-27)<°ÇÃà¹ý>, ±³À°È¯°æº¸È£±¸¿ª(2019-12-27)(»ó´ëÁ¤È­±¸¿ª)<±³À°È¯°æ º¸È£¿¡ °üÇÑ ¹ý·ü>, ´ë°ø¹æ¾îÇùÁ¶±¸¿ª(ÇØ¹ß134m(Áö¹Ý+°ÇÃà+¿Áž µî))<±º»ç±âÁö ¹× ±º»ç½Ã¼³ º¸È£¹ý>, ÀçÁ¤ºñÃËÁøÁö±¸<µµ½ÃÀçÁ¤ºñ ÃËÁøÀ» À§ÇÑ Æ¯º°¹ý>, °ú¹Ð¾ïÁ¦±Ç¿ª<¼öµµ±ÇÁ¤ºñ°èȹ¹ý> °ÇÃ༱(¼¼ºÎ»çÇ× °ÇÃà°ú ¹®ÀÇ)ÀÓ.
9)°øºÎ¿ÍÀÇ Â÷ÀÌ
¾ø À½.
10)±âŸÂü°í»çÇ×(ÀÓ´ë°ü·Ê ¹× ±âŸ)
ÀÓ´ë°ü°è ¹Ì»óÀÓ.
Âü°í
»çÇ×

1) ÇöÁö ¹æ¹®ÇÏ¿´À¸³ª Æó¹®ºÎÀç·Î ¾Æ¹«µµ ¸¸³ª

°ÇÃ๰ÇöȲ

¼ÒÀçÁö ¼­¿ïƯº°½Ã µ¿´ë¹®±¸ ´ä½Ê¸®µ¿ 243-6¹øÁö
´ëÁö¸éÀû 401.5§³
(121.67Æò)
¿¬¸éÀû 1769.34§³
(536.16Æò)
°ÇÃà¸éÀû 216.9§³
(65.73Æò)
¿ëÀû·ü»êÁ¤
¿¬¸éÀû
1508.36§³
(457.08Æò)
°ÇÆóÀ² 54.02% ¿ëÀû·ü 375.68%
Áö»óÃþ¼ö 11Ãþ ÁöÇÏÃþ¼ö 1Ãþ
ÁÖ¿ëµµ ¾÷¹«½Ã¼³ ±¸Á¶ ö±ÙÄÜÅ©¸®Æ®±¸Á¶
Âø°øÀÏÀÚ 2020.07.06 »ç¿ë½ÂÀÎÀÏÀÚ 2021.07.30
°ÇÃ๰Ãþº°ÇöȲ [º¸±â]


±¹ÅäºÎ½Ç°Å·¡°¡ ¼­¿ïƯº°½Ã µ¿´ë¹®±¸ ´ä½Ê¸®µ¿

¡Ü ¸Å¸Å

¸éÀû(§³), ±Ý¾×(¸¸¿ø)

¡Ü Àü¼¼

¸éÀû(§³), ±Ý¾×(¸¸¿ø)

°è¾àÀϰǹ°¸íĪÃþ¿¬¸éÀûº¸Áõ±Ý¿ù¼¼°ÇÃà
26.03.30°ñµåºô¸®Áö329.1428,00002021
26.03.30·Î¾âÆÓ¸®½ºBµ¿229.0227,20002019
26.03.30·Î¾âÆÓ¸®½ºBµ¿229.0227,20002019
26.03.26ÈúÇϿ콺1µ¿2µ¿451.52430,00002025
26.03.26ÈúÇϿ콺1µ¿2µ¿351.3630,0002025
¢Ñ ´õº¸±â

µî±âºÎµîº» ¿ä¾à(°Ç¹°)

  Á¢¼öÀÏÀÚ µî±â¸ñÀû/±Ç¸®ÀÚ ±Ç¸®±Ý¾× ±âÁØ
1 2022³â6¿ù2ÀÏ
¼ÒÀ¯±Ç
¹ÚOO
¼Ò¸ê
2 2022³â6¿ù2ÀÏ
¾àÁ¤/±ÝÁö»çÇ×/ȯ¸ÅƯ¾à
Àμö
3 2023³â6¿ù20ÀÏ
ÀÓÂ÷±Ç¼³Á¤
ÀÌOO
390,000,000 Àμö
4 2025³â2¿ù25ÀÏ
°­Á¦°æ¸Å
ÁÖOOOO
¼Ò¸ê±âÁØ

ÀÓÂ÷ÀÎÇöȲ (¹è´ç¿ä±¸Á¾±âÀÏ: 2025-05-08)

ÀÓÂ÷ÀÎ ¿ëµµ/Á¡À¯ º¸Áõ±Ý/¿ù¼¼ ´ëÇ×·Â
ÀüÀÔÀÏ/È®Á¤ÀÏ ¹è´ç¿ä±¸ ºñ°í
ÀÌOO Á¦7ÃþÁ¦702È£ÀüºÎ 390,000,000¿ø
O
2022. 5. 31.
2022. 5. 17.
¹Ì»ó
ºñ°í
(¸Å°¢¹°°Ç
¸í¼¼¼­)
- À̼ºÁØ : ÀÓÂ÷±ÇÀڷμ­ ÀÓÂ÷±Çµî±âÀÏÀº 2023. 6. 20.ÀÓ

¿©ÀÇÁÖ°æ¸Å Á¶¾ð ÇÑ ¸¶µð

¼±¼øÀ§ ÀÓÂ÷±Çµî±â°¡ µÇ¾î ÀÖ½À´Ï´Ù
´ëÇ×·ÂÀÌ ÀÖ´Â ¼±¼øÀ§ ÀÓÂ÷±Çµî±â ±Ç¸®ÀÚ°¡ ¹è´çÀ» Àü¾× ¹ÞÁö ¸øÇÒ °æ¿ì ³«ÂûÀÚ°¡ ÀÜ¿© º¸Áõ±ÝÀ» ÀμöÇØ¾ßÇÏ´Â °æ¿ìµµ ÀÖ½À´Ï´Ù.

ÁÖÀÇ»çÇ× (ÃÖ¼±¼øÀ§ ¼³Á¤ÀÏ: 2025. 2. 25. ¼³Á¤ °æ¸Å°³½Ã°áÁ¤)

¸Å°¢À¸·Î ¼Ò¸êµÇÁö ¾Ê´Â µî±âºÎ±Ç¸®: À»±¸ 3¹ø 2023. 6. 20. Á¢¼ö Á¦87755È£ ÁÖÅÃÀÓÂ÷±Çµî±â(´ëÇ×·Â ÀÖ´Â ÀÓÂ÷ÀÎÀ¸·Î ¹è´ç¿¡¼­ º¸Áõ±ÝÀÌ Àü¾× º¯Á¦µÇÁö ¾Æ´ÏÇϸé ÀÜ ¾×À» ¸Å¼öÀÎÀÌ ÀμöÇÔ)
¸Å°¢À¸·Î ¼³Á¤µÈ °ÍÀ¸·Î º¸´Â Áö»ó±Ç:
¡Ø¹Ì³³°ü¸®ºñ(°ø¿ë) Àμö¿©ºÎ¸¦ ÀÔÂû Àü¿¡ È®ÀÎÇϽñ⠹ٶø´Ï´Ù

 

Áö¿ªºÐ¼®

ÁöÇÏö¸í Á÷¼±°Å¸®

Çб³¸í ÀüÈ­¹øÈ£ ÁÖ¼Ò Á÷¼±°Å¸®

¹ý¿ø

¼­¿ïºÏºÎÁö¹æ¹ý¿ø (013-22)¼­¿ïƯº°½Ã µµºÀ±¸ ¸¶µé·Î749 (µµºÀ2µ¿ 626)
´ëÇ¥ : 02)910-3114
°üÇÒÁö¿ª : °­ºÏ±¸, ³ë¿ø±¸, µµºÀ±¸, µ¿´ë¹®±¸, ¼ººÏ±¸, Áß¶û±¸

µî±â¼Ò ¼­¿ïºÏºÎÁö¹æ¹ý¿ø º»¿ø µî±â±¹ (´ëÇ¥:1544-0773, ÆÑ½º:(02)2030-2330, ¼­¿ïƯº°½Ã µµºÀ±¸ ³ëÇØ·Î 325 (⵿ 337¹øÁö))
¼¼¹«¼­ µ¿´ë¹®¼¼¹«¼­ (´ëÇ¥:02-958-020, ÆÑ½º:02-967-7593, ¼­¿ïƯº°½Ã µ¿´ë¹®±¸ ¾à·É½Ã·Î 159 (û·®¸®1µ¿))

Àαٳ«ÂûÅë°è

±â°£ ¸Å°¢°Ç¼ö Æò±Õ°¨Á¤°¡
Æò±Õ¸Å°¢°¡
¸Å°¢°¡À²
Æò±ÕÀ¯Âû¼ö


º» °æ¸ÅÁ¤º¸´Â ¹ý¿øÀÚ·á¿Í ÀÏÄ¡Çϵµ·Ï ÇÏ¿´À¸³ª ±Ç¸®»çÇ׺¯µ¿, ÀÔ·ÂÂø¿À µîÀÇ ¿øÀÎÀ¸·Î »ç½Ç°ú ´Ù¸¦ ¼ö ÀÖ½À´Ï´Ù. ÀÌ¿ë¾à°ü¿¡ ÀǰЏéÃ¥Á¶°ÇÀ¸·Î Á¦°øµÊÀ» ¾Ë¸®¸ç, °æ¸ÅÀÔÂû½Ã ¹Ýµå½Ã °ü·Ã °øºÎ¸¦ ÀçÈ®ÀÎÇϽñ⠹ٶø´Ï´Ù. º¸´Ù Æí¸®ÇÑ °æ¸ÅÁ¤º¸ Á¦°øÀ» À§ÇØ Áö¼ÓÀûÀ¸·Î °³¼±ÇϰڽÀ´Ï´Ù. ÀÌ¿ëÇØ Áּż­ °¨»çÇÕ´Ï´Ù.