·Î±×ÀÎ
160
¾ÆÆÄÆ®
¼ö¿øÁö¹æ¹ý¿ø ¼º³²Áö¿ø
 °¨Á¤°¡680,000,000 ¿ø
 ÃÖÀú°¡(70%) 476,000,000 ¿ø
 º¸Áõ±Ý(10%) 47,600,000 ¿ø
 Ã»±¸¾×234,858,886 ¿ø
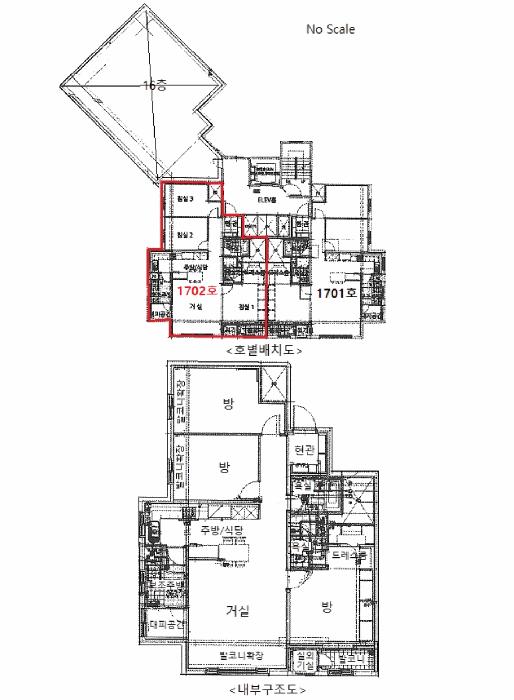
°æ±âµµ ±¤Áֽà ¿ªµ¿ 245 ÀÌÆíÇѼ¼»ó±¤ÁÖ¿ª3´ÜÁö 307µ¿ 17Ãþ1702È£
»ç°Ç¹øÈ£ 2025Ÿ°æ2042
°æ¸ÅÁ¾·ùºÎµ¿»êÀÓÀǰæ¸Å
¸Å°¢´ë»óÅäÁö ¹× °Ç¹°Àϰý ¸Å°¢
¸Å°¢±âÀÏ    2026.03.30(¿ù) 10:00 ÀÔÂû 27ÀÏÀü    
ÅäÁö¸éÀû61.71§³(18.67 Æò)
°Ç¹°¸éÀû84.98§³(25.71 Æò)
乫/¼ÒÀ¯ÀÚÀÌOO / ÀÌOO
ä±ÇÀÚÇÑOOOOOOOOOO
ÆäÀ̽ººÏ Æ®À§ÅÍ ±¸±Û+
īī¿À½ºÅ丮
īī¿ÀÅå sms¹®ÀÚº¸³»±â
 

±âÀϳ»¿ª

°æ°ú ³¯Â¥ Àú°¨ ÃÖÀú°¡ °á°ú
Á¢¼öÀÏ 2025-05-21 °æ¸ÅÁ¢¼ö
~1ÀÏ 
2025-05-22 °æ¸Å°³½Ã°áÁ¤
~90ÀÏ 
2025-08-19 ¹è´ç¿ä±¸Á¾±âÀÏ
~278ÀÏ 
2026-02-23 100%
680,000,000
À¯Âû
~313ÀÏ 
2026-03-30 70%
476,000,000
ÁøÇà
¹°°Ç¸í¼¼¼­ ÇöȲÁ¶»ç¼­ ¹®°ÇÁ¢¼ö ¼Û´Þ³»¿ª

°¨Á¤Æò°¡ÇöȲ

¸ñ·Ï ÁÖ¼Ò ±¸Á¶/¿ëµµ/´ëÁö±Ç ¸éÀû ºñ°í
´ëÁö±Ç
¿ªµ¿ 245 24000.5ºÐÀÇ 61.714 61.714 §³
(18.67Æò)
°Ç¹°
¿ªµ¿ 245 307µ¿ 17Ãþ1702È£ ö±ÙÄÜÅ©¸®Æ®±¸Á¶ 84.9788 §³
(25.71Æò)
1) À§Ä¡/µµ½ÃÁö¿ª/Á¦2Á¾ÀϹÝÁÖ°ÅÁö¿ª/Á¦1Á¾Áö±¸´ÜÀ§°èȹ±¸¿ª/º¸Àü»êÁö/³ë¼±¹ö½º Á¤·ùÀå/ö±ÙÄÜÅ©¸®Æ®±¸Á¶/µµ½Ã°¡½º ´õº¸±â
°¨Á¤Æò°¡ ¿äÇ×Ç¥
1)À§Ä¡ ¹× ÁÖÀ§È¯°æ
º»°ÇÀº °æ±âµµ ±¤Áֽà ¿ªµ¿ ¼ÒÀç ""¿ªµ¿ÃʵîÇб³"" ºÏ¼­Ãø Àαٿ¡ À§Ä¡Çϸç ÁÖÀ§´Â ¾ÆÆÄÆ®, ´Ü
µ¶ÁÖÅÃ, ´Ù¼¼´ëÁÖÅÃ, ±Ù¸°»ýȰ½Ã¼³, °ø¿ø, ³ó°æÁö µîÀÌ È¥ÀçÇÏ´Â Áö¿ªÀÓ.

2)±³Åë»óȲ
º»°ÇÀº Â÷·® Á¢±ÙÀÌ ¿ëÀÌÇϰí, Àαٿ¡ ³ë¼±¹ö½º Á¤·ùÀå ¹× Àüö¿ªÀÌ ¼ÒÀçÇÏ¿© ´ëÁß±³Åë »çÁ¤
Àº ¹«³­ÇÔ.
3)°Ç¹°ÀÇ ±¸Á¶
ö±ÙÄÜÅ©¸®Æ®±¸Á¶ (ö±Ù)ÄÜÅ©¸®Æ®ÁöºØ 17Ãþ Áß 17Ãþ 1702È£·Î¼­
¿Üº® : ½Ã¸à¸ôÅ»À§ ÆäÀÎÆÃ ¸¶°¨.
³»º® : ½Ã¸à¸ôÅ»À§ º®Áö ¹× ÀϺΠŸÀÏ µî ¸¶°¨.
âȣ : ¼¦½Ã ÀÌÁß Ã¢È£ÀÓ.
4)ÀÌ¿ë»óÅÂ
¾ÆÆÄÆ®(ÈÄ÷ '³»ºÎ±¸Á¶µµ' ÂüÁ¶)·Î ÀÌ¿ë ÁßÀÓ.
5)¼³ºñ³»¿ª
À§»ý¼³ºñ, ±Þ¤ý¹è¼ö¼³ºñ, ³­¹æ¼³ºñ, ½Â°­±â¼³ºñ, µµ½Ã°¡½º¼³ºñ, ¼ÒÈ­¼³ºñ µîÀÌ µÇ¾î ÀÖÀ½.


6)ÅäÁöÀÇ Çü»ó ¹× ÀÌ¿ë»óÅÂ
ºÎÁ¤Çü ¿Ï°æ»çÀÇ ÅäÁö·Î¼­, ¾ÆÆÄÆ® ºÎÁö·Î ÀÌ¿ë ÁßÀÓ.
7)ÀÎÁ¢ µµ·Î»óŵî
´ÜÁö³» Æ÷Àå µµ·Î°¡ ¿ÜºÎ °øµµ¿Í ¿¬°èµÇ¾î ÀÖÀ½.
8)ÅäÁöÀÌ¿ë°èȹ ¹× Á¦ÇÑ»óÅÂ
µµ½ÃÁö¿ª, Á¦2Á¾ÀϹÝÁÖ°ÅÁö¿ª, Á¦1Á¾Áö±¸´ÜÀ§°èȹ±¸¿ª(Áö±¸´ÜÀ§°èȹ±¸¿ª ¼¼ºÎ³»¿ëÀº µµ½Ã°è
ȹ°ú¿¡ º°µµ È®Àοä[¿ªµ¿Áö±¸]), ¼Ò·Î3·ù(Æø 8m ¹Ì¸¸)(Á¢ÇÕ), Áß·Î2·ù(Æø 15m~20m)(ÀúÃË)
°¡Ãà»çÀ°Á¦Çѱ¸¿ª<°¡ÃàºÐ´¢ÀÇ °ü¸® ¹× À̿뿡 °üÇÑ ¹ý·ü>, »ó´ëº¸È£±¸¿ª(Çб³È¯°æÀ§»ýÁ¤È­±¸
¿ª ¼¼ºÎ³»¿ëÀº ±³À°Áö¿øÃ»¿¡ º°µµÈ®Àοä(¿ªµ¿Ãʱ³))<±³À°È¯°æ º¸È£¿¡ °üÇÑ ¹ý·ü>, »ó´ëº¸È£
±¸¿ª(Çб³È¯°æÀ§»ýÁ¤È­±¸¿ª ¼¼ºÎ³»¿ëÀº ±³À°Ã»¿¡ º°µµ È®ÀÎ[ICTÆú¸®ÅØ´ëÇÐ])<±³À°È¯°æ º¸È£
¿¡ °üÇÑ ¹ý·ü>, ¹èÃâ½Ã¼³¼³Ä¡Á¦ÇÑÁö¿ª<¹°È¯°æº¸Àü¹ý>, Áغ¸Àü»êÁö<»êÁö°ü¸®¹ý>, ÀÚ¿¬º¸Àü±Ç
¿ª<¼öµµ±ÇÁ¤ºñ°èȹ¹ý>, °øÀå¼³¸³½ÂÀÎÁö¿ª<¼öµµ¹ý>, Ưº°´ëÃ¥Áö¿ª<ȯ°æÁ¤Ã¥±âº»¹ý>.
9)°øºÎ¿ÍÀÇ Â÷ÀÌ
ÇØ´ç»çÇ× ¾øÀ½.
10)±âŸÂü°í»çÇ×(ÀÓ´ë°ü·Ê ¹× ±âŸ)
º»°Ç ÀÓ´ë°ü°è´Â ¹Ì»óÀÓ.

°ÇÃ๰ÇöȲ

¼ÒÀçÁö °æ±âµµ ±¤Áֽà ¿ªµ¿ 245¹øÁö
´ëÁö¸éÀû   ¿¬¸éÀû 7267.3595§³
(2202.23Æò)
°ÇÃà¸éÀû 631.543§³
(191.38Æò)
¿ëÀû·ü»êÁ¤
¿¬¸éÀû
7267.3595§³
(2202.23Æò)
°ÇÆóÀ²   ¿ëÀû·ü  
Áö»óÃþ¼ö 17Ãþ ÁöÇÏÃþ¼ö  
ÁÖ¿ëµµ °øµ¿ÁÖÅà ±¸Á¶ ö±ÙÄÜÅ©¸®Æ®±¸Á¶
Âø°øÀÏÀÚ 2014.07.10 »ç¿ë½ÂÀÎÀÏÀÚ 2016.10.31
°ÇÃ๰Ãþº°ÇöȲ [º¸±â]


µî±âºÎµîº» ¿ä¾à(°Ç¹°)

  Á¢¼öÀÏÀÚ µî±â¸ñÀû/±Ç¸®ÀÚ ±Ç¸®±Ý¾× ±âÁØ
1 2017³â1¿ù23ÀÏ
¼ÒÀ¯±Ç
ÀÌOO
¼Ò¸ê
2 2017³â1¿ù23ÀÏ
±ÙÀú´ç±Ç
(OOOO
300,300,000 ¼Ò¸ê±âÁØ
3 2022³â1¿ù20ÀÏ
±ÙÀú´ç±Ç
ÇÑOOOO
274,800,000 ¼Ò¸ê
4 2022³â3¿ù31ÀÏ
¾Ð·ù
±¹
¼Ò¸ê
5 2023³â9¿ù7ÀÏ
¾Ð·ù
±¤OO
¼Ò¸ê
6 2025³â3¿ù19ÀÏ
°¡¾Ð·ù
·ÔOOOO
8,392,611 ¼Ò¸ê
7 2025³â3¿ù21ÀÏ
°¡¾Ð·ù
ȕOOOO
10,343,404 ¼Ò¸ê
8 2025³â4¿ù10ÀÏ
°¡¾Ð·ù
½ÅOOOO
9,644,632 ¼Ò¸ê
9 2025³â4¿ù14ÀÏ
°¡¾Ð·ù
(OOOO
13,123,281 ¼Ò¸ê
10 2025³â5¿ù22ÀÏ
ÀÓÀǰæ¸Å
ÇÑOOOO
¼Ò¸ê

ÀÓÂ÷ÀÎÇöȲ (¹è´ç¿ä±¸Á¾±âÀÏ: 2025-08-19)


Á¶»çµÈ ÀÓÂ÷³»¿ªÀÌ ¾ø½À´Ï´Ù


¿©ÀÇÁÖ°æ¸Å Á¶¾ð ÇÑ ¸¶µð


ÁÖÀÇ»çÇ× (ÃÖ¼±¼øÀ§ ¼³Á¤ÀÏ: 2017.01.23.±ÙÀú´ç±Ç ¼³Á¤)

¸Å°¢À¸·Î ¼Ò¸êµÇÁö ¾Ê´Â µî±âºÎ±Ç¸®:
¸Å°¢À¸·Î ¼³Á¤µÈ °ÍÀ¸·Î º¸´Â Áö»ó±Ç:
¡Ø¹Ì³³°ü¸®ºñ(°ø¿ë) Àμö¿©ºÎ¸¦ ÀÔÂû Àü¿¡ È®ÀÎÇϽñ⠹ٶø´Ï´Ù

 

Áö¿ªºÐ¼®

ÁöÇÏö¸í Á÷¼±°Å¸®

Çб³¸í ÀüÈ­¹øÈ£ ÁÖ¼Ò Á÷¼±°Å¸®

¹ý¿ø

¼ö¿øÁö¹æ¹ý¿ø ¼º³²Áö¿ø (131-43)°æ±âµµ ¼º³²½Ã ¼öÁ¤±¸ »ê¼º´ë·Î 451 (´Ü´ëµ¿)
´ëÇ¥ : 031)737-1558, ¾ß°£ : 031)737-1120
°üÇÒÁö¿ª : ¼º³²½Ã, ±¤ÁÖ½Ã, Çϳ²½Ã

µî±â¼Ò ¼ö¿øÁö¹æ¹ý¿ø ¼º³²Áö¿ø ±¤ÁÖµî±â¼Ò (´ëÇ¥:1544-0773, ÆÑ½º:(031)765-2388, °æ±âµµ ±¤Áֽà ÇàÁ¤Å¸¿î·Î 49-15 (¼ÛÁ¤µ¿ 346-4))
¼¼¹«¼­ °æ±â±¤ÁÖ¼¼¹«¼­ (´ëÇ¥:031-880-92, ÆÑ½º:031-769-0417, °æ±âµµ ±¤Áֽà ¹®È­·Î 127)

Àαٳ«ÂûÅë°è

±â°£ ¸Å°¢°Ç¼ö Æò±Õ°¨Á¤°¡
Æò±Õ¸Å°¢°¡
¸Å°¢°¡À²
Æò±ÕÀ¯Âû¼ö


º» °æ¸ÅÁ¤º¸´Â ¹ý¿øÀÚ·á¿Í ÀÏÄ¡Çϵµ·Ï ÇÏ¿´À¸³ª ±Ç¸®»çÇ׺¯µ¿, ÀÔ·ÂÂø¿À µîÀÇ ¿øÀÎÀ¸·Î »ç½Ç°ú ´Ù¸¦ ¼ö ÀÖ½À´Ï´Ù. ÀÌ¿ë¾à°ü¿¡ ÀǰЏéÃ¥Á¶°ÇÀ¸·Î Á¦°øµÊÀ» ¾Ë¸®¸ç, °æ¸ÅÀÔÂû½Ã ¹Ýµå½Ã °ü·Ã °øºÎ¸¦ ÀçÈ®ÀÎÇϽñ⠹ٶø´Ï´Ù. º¸´Ù Æí¸®ÇÑ °æ¸ÅÁ¤º¸ Á¦°øÀ» À§ÇØ Áö¼ÓÀûÀ¸·Î °³¼±ÇϰڽÀ´Ï´Ù. ÀÌ¿ëÇØ Áּż­ °¨»çÇÕ´Ï´Ù.