·Î±×ÀÎ
159
¾ÆÆÄÆ®
¼ö¿øÁö¹æ¹ý¿ø
 °¨Á¤°¡829,000,000 ¿ø
 ÃÖÀú°¡(70%) 580,300,000 ¿ø
 º¸Áõ±Ý(10%) 58,030,000 ¿ø
 Ã»±¸¾×251,748,034 ¿ø
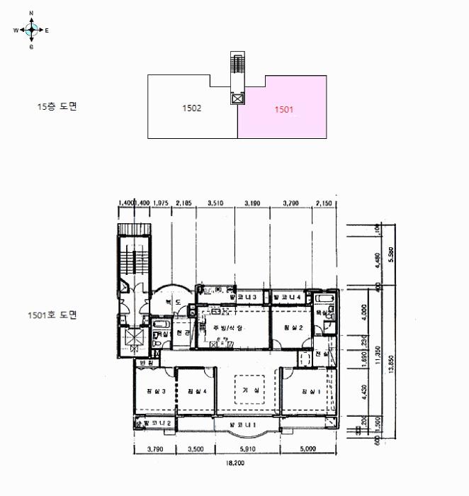
°æ±âµµ ¿ëÀνà ¼öÁö±¸ ½ÅºÀµ¿ 871 ½ÅºÀ¸¶À»¿¤Áöºô¸®Áö5Â÷ 505µ¿ 15Ãþ1501È£
»ç°Ç¹øÈ£ 2025Ÿ°æ57442
°æ¸ÅÁ¾·ùºÎµ¿»ê°­Á¦°æ¸Å
¸Å°¢´ë»óÅäÁö ¹× °Ç¹°Àϰý ¸Å°¢
¸Å°¢±âÀÏ    2026.03.25(¼ö) 10:00 ÀÔÂû 19ÀÏÀü    
ÅäÁö¸éÀû100.41§³(30.38 Æò)
°Ç¹°¸éÀû164.52§³(49.77 Æò)
乫/¼ÒÀ¯ÀÚÀÌOO / ÀÌOO
ä±ÇÀÚÁÖOOO OO(OOOOOOOO OOOOOOOO)
ÆäÀ̽ººÏ Æ®À§ÅÍ ±¸±Û+
īī¿À½ºÅ丮
īī¿ÀÅå sms¹®ÀÚº¸³»±â
 

±âÀϳ»¿ª

°æ°ú ³¯Â¥ Àú°¨ ÃÖÀú°¡ °á°ú
Á¢¼öÀÏ 2025-08-18 °æ¸ÅÁ¢¼ö
~1ÀÏ 
2025-08-19 °æ¸Å°³½Ã°áÁ¤
~74ÀÏ 
2025-10-31 ¹è´ç¿ä±¸Á¾±âÀÏ
~186ÀÏ 
2026-02-20 100%
829,000,000
À¯Âû
~219ÀÏ 
2026-03-25 70%
580,300,000
ÁøÇà
¹°°Ç¸í¼¼¼­ ÇöȲÁ¶»ç¼­ ¹®°ÇÁ¢¼ö ¼Û´Þ³»¿ª

°¨Á¤Æò°¡ÇöȲ

¸ñ·Ï ÁÖ¼Ò ±¸Á¶/¿ëµµ/´ëÁö±Ç ¸éÀû ºñ°í
´ëÁö±Ç
½ÅºÀµ¿ 871 52133.3ºÐÀÇ 100.4133 100.4133 §³
(30.38Æò)
°Ç¹°
½ÅºÀµ¿ 871 505µ¿ 15Ãþ1501È£ ö±ÙÄÜÅ©¸®Æ®Á¶ 164.517 §³
(49.77Æò)
1) À§Ä¡/Á¦3Á¾ÀϹÝÁÖ°ÅÁö¿ª/³ë¼±¹ö½ºÁ¤·ùÀå/ÁöÇÏÁÖÂ÷Àå/°£¼±µµ·Î/ö±ÙÄÜÅ©¸®Æ®Á¶/°æ»ç½½·¡ºêÁöºØ/Áö¿ª³­¹æ/¿­º´ÇÕ ´õº¸±â
°¨Á¤Æò°¡ ¿äÇ×Ç¥
1)À§Ä¡ ¹× ÁÖÀ§È¯°æ
º»°ÇÀº °æ±âµµ ¿ëÀνà ¼öÁö±¸ ½ÅºÀµ¿ ¼ÒÀç ""ȫõÃʵîÇб³"" ¼­Ãø Àαٿ¡ À§Ä¡Çϸç, ºÎ±ÙÀº ¾ÆÆÄÆ®´ÜÁö,
Çб³, ±Ù¸°»ýȰ½Ã¼³ µîÀÌ È¥ÀçµÈ Áö¿ªÀ¸·Î¼­ °øµ¿ÁÖ°ÅÁö·Î¼­ÀÇ ÁÖÀ§È¯°æ º¸ÅëÀÓ.
2)±³Åë»óȲ
º»°Ç±îÁö Â÷·® Á¢±Ù °¡´ÉÇϸç ÀαÙÀÇ °£¼±µµ·Îº¯¿¡ ´ëÁß±³ÅëÆíÀÎ ³ë¼±¹ö½ºÁ¤·ùÀåÀÌ ¼ÒÀçÇÏ¿© ´ëÁß±³
Åë»çÁ¤ º¸ÅëÀÓ.
3)°Ç¹°ÀÇ ±¸Á¶
2002. 12. 30. »ç¿ë½ÂÀÎµÈ Ã¶±ÙÄÜÅ©¸®Æ®Á¶ °æ»ç½½·¡ºêÁöºØ 15Ãþ ¾ÆÆÄÆ®°Ç¹° Áß 15Ãþ1501È£·Î¼­,

¿Üº®: ½Ã¸àÆ®¹°Å» À§ ÆäÀÎÆÃ ¸¶°¨
³»º®: ½Ã¸àÆ®¸ôÅ» À§ º®ÁöÄ¡Àå ¹× ÀϺΠŸÀϺÙÀÓ ¸¶°¨ µî
âȣ: »õ½ÃâȣÀÓ.
4)ÀÌ¿ë»óÅÂ
¾ÆÆÄÆ®·Î ÀÌ¿ë ÁßÀ̸ç ÀÚ¼¼ÇÑ ³»ºÎ±¸Á¶´Â º°ÁöÀÇ ""³»ºÎ±¸Á¶µµ"" Âü°í¹Ù¶÷.
5)¼³ºñ³»¿ª
À§»ý ¹× ±Þ¡¤¹è¼ö½Ã¼³, ¿­º´ÇÕÁö¿ª³­¹æ¼³ºñ, ¿¤¸®º£ÀÌÅͼ³ºñ, ÁöÇÏÁÖÂ÷Àå½Ã¼³ µî °®Ãß¾úÀ½.
6)ÅäÁöÀÇ Çü»ó ¹× ÀÌ¿ë»óÅÂ
ÀÎÁ¢ÇÑ ÅäÁö¿Í °°Àº ³ôÀÌÀÇ ºÎÁ¤ÇüÀÇ ÅäÁö·Î¼­ ¾ÆÆÄÆ® °ÇºÎÁö·Î ÀÌ¿ë ÁßÀÓ.
7)ÀÎÁ¢ µµ·Î»óŵî
´ÜÁö ³» µµ·Î¸¦ ÀÌ¿ëÇÏ¿© ³²¼­ÃøÀÇ ´ë·Î¿¡ Á¢Çϸç, ¼­Ãø ¿ø°Å¸®¿¡ ¿ëÀμ­¿ï°í¼Óµµ·Î ±¸°£ ""¼öÁöIC""
°¡ ¼ÒÀçÇϰí, µ¿Ãø ¿ø°Å¸®¿¡ ½ÅºÐ´ç¼±±¸°£ ""¼öÁö±¸Ã»¿ª""ÀÌ ¼ÒÀçÇÏ¿© ±¤¿ªÀûÀÎ ±³Åë¸Á º¸ÅëÀÓ.
8)ÅäÁöÀÌ¿ë°èȹ ¹× Á¦ÇÑ»óÅÂ
Á¦3Á¾ÀϹÝÁÖ°ÅÁö¿ª, ´ë·Î3·ù(Æø 25m~30m)(ÁÖ°£¼±µµ·Î)(Á¢ÇÔ), Áß·Î2·ù(Æø 15m~20m)(º¸Á¶°£¼±µµ
·Î)(Á¢ÇÔ), °¡Ãà»çÀ°Á¦Çѱ¸¿ª<°¡ÃàºÐ´¢ÀÇ °ü¸® ¹× À̿뿡 °üÇÑ ¹ý·ü>, ºñÇà¾ÈÀüÁ¦3±¸¿ª(Àü¼ú)<±º»ç
±âÁö ¹× ±º»ç½Ã¼³ º¸È£¹ý>, ¼ºÀå°ü¸®±Ç¿ª<¼öµµ±ÇÁ¤ºñ°èȹ¹ý>, ÇÏõ±¸¿ª<ÇÏõ¹ý>.
9)°øºÎ¿ÍÀÇ Â÷ÀÌ
ÇØ´ç»çÇ× ¾øÀ½.
10)±âŸÂü°í»çÇ×(ÀÓ´ë°ü·Ê ¹× ±âŸ)
- ÀÓ´ë°ü°è: ¹Ì»óÀÓ.

- ±âŸ: ÇØ´ç»çÇ× ¾øÀ½.
Âü°í
»çÇ×
´ëÇ×·Â ÀÖ´Â ÀÓÂ÷ÀÎÀÇ º¸Áõ±Ý 530,000,000¿øÀÌ ¹è´ç¿¡¼­ Àü¾× º¯Á¦µÇÁö ¾ÊÀ» °æ¿ì Àܾ×À» ¸Å¼öÀÎÀÌ ÀμöÇϹǷΠÀÔÂû½Ã ÁÖÀÇ¿ä¸Á
º»°Ç ºÎµ¿»êÀÇ ÇöȲÀº ¿Ü

°ÇÃ๰ÇöȲ

¼ÒÀçÁö °æ±âµµ ¿ëÀνà ¼öÁö±¸ ½ÅºÀµ¿ 871¹øÁö
´ëÁö¸éÀû   ¿¬¸éÀû 14358.272§³
(4350.99Æò)
°ÇÃà¸éÀû 989.016§³
(299.7Æò)
¿ëÀû·ü»êÁ¤
¿¬¸éÀû
14358.272§³
(4350.99Æò)
°ÇÆóÀ²   ¿ëÀû·ü  
Áö»óÃþ¼ö 18Ãþ ÁöÇÏÃþ¼ö  
ÁÖ¿ëµµ °øµ¿ÁÖÅà ±¸Á¶ ö±ÙÄÜÅ©¸®Æ®±¸Á¶
Âø°øÀÏÀÚ 1999.12.10 »ç¿ë½ÂÀÎÀÏÀÚ 2002.08.31
°ÇÃ๰Ãþº°ÇöȲ [º¸±â]


µî±âºÎµîº» ¿ä¾à(°Ç¹°)

  Á¢¼öÀÏÀÚ µî±â¸ñÀû/±Ç¸®ÀÚ ±Ç¸®±Ý¾× ±âÁØ
1 2020³â2¿ù25ÀÏ
¼ÒÀ¯±Ç
ÀÌOO
¼Ò¸ê
2 2024³â1¿ù9ÀÏ
±ÙÀú´ç±Ç
Á¤OOOO
130,000,000 ¼Ò¸ê±âÁØ
3 2024³â4¿ù15ÀÏ
±ÙÀú´ç±Ç
Á¤OOOO
75,000,000 ¼Ò¸ê
4 2025³â6¿ù12ÀÏ
¾Ð·ù
±¹OOOO
¼Ò¸ê
5 2025³â8¿ù19ÀÏ
°­Á¦°æ¸Å
(OOOO
¼Ò¸ê

ÀÓÂ÷ÀÎÇöȲ (¹è´ç¿ä±¸Á¾±âÀÏ: 2025-10-31)

ÀÓÂ÷ÀÎ ¿ëµµ/Á¡À¯ º¸Áõ±Ý/¿ù¼¼ ´ëÇ×·Â
ÀüÀÔÀÏ/È®Á¤ÀÏ ¹è´ç¿ä±¸ ºñ°í
±ÇOO 1501È£ 530,000,000
O
2024. 1. 5.
2023. 10.17.
2025.9.16. 2024. 1.5.~2026. 1.4.

¾ÆÆÄÆ® Á¤º¸ LGºô¸®Áö5Â÷B´ÜÁö

ÁÖ¼Ò °æ±â ¿ëÀνà ¼öÁö±¸ ½ÅºÀµ¿ 871
½Ã°ø»ç LG°Ç¼³ ´ÜÁö±Ô¸ð 6°³µ¿ 556°¡±¸(8°³µ¿)¼¼´ë
³­¹æ Áö¿ª/¿­º´ÇÕ »ç¿ë½ÂÀÎ 2002-08
°ü¸®¼Ò null
Àü¿ë¸éÀû 134~164 ¼¼´ë¼ö 556°¡±¸(8°³µ¿)
´ëÁö±Ç
Çö°ü/±¸Á¶ °è´Ü½Ä / ¹æ, ¿å½Ç
  • Çб³ ½Å¸®,ȫõ,ȫõ,ȫõ,
  • ÁÖº¯½Ã¼³ ¼öÁö±¸Ã», ½Å¼¼°è, À̸¶Æ®, ±Ù¸°°ø¿ø, µð¾î½º¹°·ù¼¾Å¸
  • ´ëÁß±³Åë null

¿©ÀÇÁÖ°æ¸Å Á¶¾ð ÇÑ ¸¶µð

ÃëÇÏ ¶Ç´Â Ãë¼ÒµÉ °¡´É¼º ÀÖ½À´Ï´Ù
ÀÌ ¹°°ÇÀÇ °¨Á¤°¡°ÝÀº 829,000,000¿øÀÔ´Ï´Ù. °æ¸Å¸¦ ½ÅûÇÑ Ã¤±ÇÀÚ°¡ ¹è´ç ¹Þ¾Æ¾ß ÇÒ ±Ý¾×Àº 251,748,034¿øÀ¸·Î °¨Á¤°¡°Ý ´ëºñ »ó´çÈ÷ ÀûÀº ±Ý¾×ÀÔ´Ï´Ù. ÀÌ·± °æ¿ì, 乫°¡°¡ º¯Á¦ÇÏ¿© °æ¸Å¸¦ ÃëÇϽÃŰ°Å³ª °æ¸Å½Åûä±ÇÀÚ°¡ ¹è´ç¹ÞÀº ±Ý¿øÀÌ ¾ø°ÔµÇ¾î À̸¥ ¹Ù "¹«À׿©¿¡ ÀÇÇÑ Ãë¼Ò"°¡ µÉ °¡´É¼ºÀÌ ÀÖ½À´Ï´Ù.

ÁÖÀÇ»çÇ× (ÃÖ¼±¼øÀ§ ¼³Á¤ÀÏ: 2024.1.9.±ÙÀú´ç±Ç ¼³Á¤)

¸Å°¢À¸·Î ¼Ò¸êµÇÁö ¾Ê´Â µî±âºÎ±Ç¸®:
¸Å°¢À¸·Î ¼³Á¤µÈ °ÍÀ¸·Î º¸´Â Áö»ó±Ç:
´ëÇ×·Â ÀÖ´Â ÀÓÂ÷ÀÎÀÇ º¸Áõ±Ý 530,000,000¿øÀÌ ¹è´ç¿¡¼­ Àü¾× º¯Á¦µÇÁö ¾ÊÀ» °æ¿ì Àܾ×À» ¸Å¼öÀÎÀÌ ÀμöÇϹǷΠÀÔÂû½Ã ÁÖÀÇ¿ä ¸Á
¡Ø¹Ì³³°ü¸®ºñ(°ø¿ë) Àμö¿©ºÎ¸¦ ÀÔÂû Àü¿¡ È®ÀÎÇϽñ⠹ٶø´Ï´Ù

 

Áö¿ªºÐ¼®

ÁöÇÏö¸í Á÷¼±°Å¸®

Çб³¸í ÀüÈ­¹øÈ£ ÁÖ¼Ò Á÷¼±°Å¸®

¹ý¿ø

¼ö¿øÁö¹æ¹ý¿ø (165-12)°æ±âµµ ¼ö¿ø½Ã ¿µÅ뱸 ¹ýÁ¶·Î 105, Çϵ¿, ¼ö¿ø¹ý¿øÁ¾ÇÕû»ç
´ëÇ¥ : 031)210-1114, ¾ß°£ : 031)210-1111
°üÇÒÁö¿ª : ¼ö¿ø½Ã, ¿À»ê½Ã, È­¼º½Ã, ¿ëÀνÃ

µî±â¼Ò ¼ö¿øÁö¹æ¹ý¿ø º»¿ø ¿ëÀεî±â¼Ò (´ëÇ¥:1544-0773, ÆÑ½º:(031)321-3919, °æ±âµµ ¿ëÀνà óÀα¸ ¼º»ê·Î 7 (¿ªºÏµ¿ 391-28))
¼¼¹«¼­ ¿ëÀμ¼¹«¼­ (´ëÇ¥:031-329-22, ÆÑ½º:031-329-2328, °æ±âµµ ¿ëÀνà óÀα¸ Áߺδë·Î1161¹ø±æ 71 (»ï°¡µ¿))

Àαٳ«ÂûÅë°è

±â°£ ¸Å°¢°Ç¼ö Æò±Õ°¨Á¤°¡
Æò±Õ¸Å°¢°¡
¸Å°¢°¡À²
Æò±ÕÀ¯Âû¼ö


º» °æ¸ÅÁ¤º¸´Â ¹ý¿øÀÚ·á¿Í ÀÏÄ¡Çϵµ·Ï ÇÏ¿´À¸³ª ±Ç¸®»çÇ׺¯µ¿, ÀÔ·ÂÂø¿À µîÀÇ ¿øÀÎÀ¸·Î »ç½Ç°ú ´Ù¸¦ ¼ö ÀÖ½À´Ï´Ù. ÀÌ¿ë¾à°ü¿¡ ÀǰЏéÃ¥Á¶°ÇÀ¸·Î Á¦°øµÊÀ» ¾Ë¸®¸ç, °æ¸ÅÀÔÂû½Ã ¹Ýµå½Ã °ü·Ã °øºÎ¸¦ ÀçÈ®ÀÎÇϽñ⠹ٶø´Ï´Ù. º¸´Ù Æí¸®ÇÑ °æ¸ÅÁ¤º¸ Á¦°øÀ» À§ÇØ Áö¼ÓÀûÀ¸·Î °³¼±ÇϰڽÀ´Ï´Ù. ÀÌ¿ëÇØ Áּż­ °¨»çÇÕ´Ï´Ù.