·Î±×ÀÎ
246
´Ù¼¼´ë(ºô¶ó)
¼ö¿øÁö¹æ¹ý¿ø
 °¨Á¤°¡268,000,000 ¿ø
 ÃÖÀú°¡(49%) 131,320,000 ¿ø
 º¸Áõ±Ý(10%) 13,132,000 ¿ø
 Ã»±¸¾×287,078,492 ¿ø
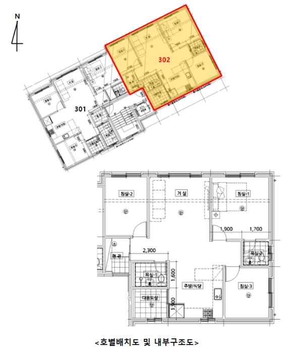
°æ±âµµ ¿ëÀνà óÀα¸ ¸ðÇöÀ¾ ¿Õ¸²·Î 74, ¾¾µ¿ 3Ãþ302È£ (´Ù¿ÂÇϿ콺)
°æ±âµµ ¿ëÀνà óÀα¸ ¸ðÇöÀ¾ µ¿¸²¸® 112-2
»ç°Ç¹øÈ£ 2024Ÿ°æ82345
°æ¸ÅÁ¾·ùºÎµ¿»ê°­Á¦°æ¸Å
¸Å°¢´ë»óÅäÁö ¹× °Ç¹°Àϰý ¸Å°¢
¸Å°¢±âÀÏ    2026.04.27(¿ù) 10:00 ÀÔÂû 13ÀÏÀü    
ÅäÁö¸éÀû41.85§³(12.66 Æò)
°Ç¹°¸éÀû65.76§³(19.89 Æò)
乫/¼ÒÀ¯ÀÚÂ÷OO / Â÷OO
ä±ÇÀÚÁÖOOOOOOO
ÆäÀ̽ººÏ Æ®À§ÅÍ ±¸±Û+
īī¿À½ºÅ丮
īī¿ÀÅå sms¹®ÀÚº¸³»±â
 

±âÀϳ»¿ª

°æ°ú ³¯Â¥ Àú°¨ ÃÖÀú°¡ °á°ú
Á¢¼öÀÏ 2024-08-01 °æ¸ÅÁ¢¼ö
~1ÀÏ 
2024-08-02 °æ¸Å°³½Ã°áÁ¤
~75ÀÏ 
2024-10-15 ¹è´ç¿ä±¸Á¾±âÀÏ
~568ÀÏ 
2026-02-20 100%
268,000,000
À¯Âû
~601ÀÏ 
2026-03-25 70%
187,600,000
À¯Âû
~634ÀÏ 
2026-04-27 49%
131,320,000
ÁøÇà
¹°°Ç¸í¼¼¼­ ÇöȲÁ¶»ç¼­ ¹®°ÇÁ¢¼ö ¼Û´Þ³»¿ª

°¨Á¤Æò°¡ÇöȲ

¸ñ·Ï ÁÖ¼Ò ±¸Á¶/¿ëµµ/´ëÁö±Ç ¸éÀû ºñ°í
´ëÁö±Ç
µ¿¸²¸® 112-2 333ºÐÀÇ 41.85 41.85 §³
(12.66Æò)
°Ç¹°
µ¿¸²¸® 112-2 ¾¾µ¿ 3Ãþ302È£ ö±ÙÄÜÅ©¸®Æ®±¸Á¶ 65.76 §³
(19.89Æò)
1) À§Ä¡/µµ½ÃÁö¿ª/Á¦1Á¾ÀϹÝÁÖ°ÅÁö¿ª/¹ö½ºÁ¤·ùÀå/ö±ÙÄÜÅ©¸®Æ®±¸Á¶ ´õº¸±â
°¨Á¤Æò°¡ ¿äÇ×Ç¥
1)À§Ä¡ ¹× ÁÖÀ§È¯°æ
º»°ÇÀº °æ±âµµ ±¤Áֽà ´ÉÆòµ¿ ¼ÒÀç "´ÉÆò±³Â÷·Î" ³²µ¿Ãø Àαٿ¡ À§Ä¡Çϰí ÀÖÀ¸¸ç, ÁÖÀ§´Â ´Üµ¶ÁÖÅÃ, °øµ¿ÁÖÅÃ, ±Ù¸°»ýȰ½Ã¼³, ³ó°æÁö, ÀÚ¿¬¸²µîÀÌ È¥ÀçÇÔ.
2)±³Åë»óȲ
º»°Ç±îÁö Â÷·®Á¢±Ù °¡´ÉÇϰí, Àαٿ¡ ¹ö½ºÁ¤·ùÀåÀÌ ¼ÒÀçÇÏ´Â µî ´ëÁß±³Åë»çÁ¤Àº º¸ÅëÀÓ.
3)°Ç¹°ÀÇ ±¸Á¶
ö±ÙÄÜÅ©¸®Æ®±¸Á¶ (ö±Ù)ÄÜÅ©¸®Æ®ÁöºØ 5Ãþ °ÇÁß Á¦3Ãþ Á¦302È£·Î¼­,
(»ç¿ë½ÂÀÎÀÏ: 2019.01.15)
¿Üº® : Ä¡À庮µ¹Á¶ ¸¶°¨ÀÓ.
³»º® : º®Áöµµ¹è ¹× ÀϺΠŸÀϸ¶°¨ÀÓ.
âȣ : ¼¦½Ã âȣµîÀÓ.
4)ÀÌ¿ë»óÅÂ
µµ½ÃÇü»ýȰÁÖÅÃ(ÈÄ÷ "³»ºÎ±¸Á¶µµ" ÂüÁ¶)·Î ÀÌ¿ëÁßÀÓ.
5)¼³ºñ³»¿ª
±Þ¹è¼ö¼³ºñ, À§»ý¼³ºñ, ³­¹æ¼³ºñ, ½Â°­±â¼³ºñ, °øµ¿Çö°ü º¸¾È¼³ºñµîÀÌ ±¸ºñµÇ¾î ÀÖÀ½.
6)ÅäÁöÀÇ Çü»ó ¹× ÀÌ¿ë»óÅÂ
´ëü·Î À广Çü, ÆòÁöÀÇ ÅäÁö·Î¼­, µµ½ÃÇü»ýȰÁÖÅÃÀÇ °ÇºÎÁö·Î ÀÌ¿ëÁßÀÓ.
7)ÀÎÁ¢ µµ·Î»óŵî
º»°Ç ºÏ¼­ÃøÀ¸·Î ¾à 8¹ÌÅÍÁ¤µµÀÇ Æ÷Àåµµ·Î¿¡ Á¢ÇÔ.
8)ÅäÁöÀÌ¿ë°èȹ ¹× Á¦ÇÑ»óÅÂ
µµ½ÃÁö¿ª , Á¦1Á¾ÀϹÝÁÖ°ÅÁö¿ª,°¡Ãà»çÀ°Á¦Çѱ¸¿ª(2021-05-28)(ÀüºÎÁ¦ÇÑÁö¿ª(µµ½ÃÁö¿ª))<°¡ÃàºÐ´¢ÀÇ °ü¸® ¹× À̿뿡 °üÇÑ ¹ý·ü>, ¹èÃâ½Ã¼³¼³Ä¡Á¦ÇÑÁö¿ª<¹°È¯°æº¸Àü¹ý>, ÀÚ¿¬º¸Àü±Ç¿ª<¼öµµ±ÇÁ¤ºñ°èȹ¹ý>, ¼öÁúº¸ÀüƯº°´ëÃ¥Áö¿ª<ȯ°æÁ¤Ã¥±âº»¹ý>ÀÓ.
9)°øºÎ¿ÍÀÇ Â÷ÀÌ
¾øÀ½.
10)±âŸÂü°í»çÇ×(ÀÓ´ë°ü·Ê ¹× ±âŸ)
ÀÓ´ë¹Ì»óÀÓ.

º»°Ç ³»ºÎ±¸Á¶´Â ÇöÀåÁ¶»ç½Ã ¹× ÀÌÇØ°ü°èÀÎÀÇ ºÎÀçµîÀ¸·Î ÀÎÇÏ¿© °ÇÃ๰ ÇöȲµµ¸é ¹× ޹®Á¶»çµîÀ» ÅëÇÏ¿© Ç¥ÁØÀû ÀÌ¿ë»óȲÀ» ±âÁØÇÏ¿´°í, ½ÇÁ¦¿Í ´Ù¼Ò »óÀÌÇÒ ¼ö ÀÖ´Â ¹Ù °æ¸ÅÁøÇà½Ã ÂüÁ¶ÇϽñ⠹ٶ÷.
Âü°í
»çÇ×
½Åûä±Ç°ú ÀÓÂ÷±Çµî±â ä±ÇÀº µ¿ÀÏÇÔ. ½Åûä±ÇÀÚ°¡ ¿ì¼±º¯Á¦±Ç¸¸ ÁÖÀåÇÏ°í ´ëÇ×·Â Æ÷±â¿Í ÀÓÂ÷±Ç¸»¼Ò¿¡ µ¿ÀÇÇÑ´Ù´Â ÀμöÁ¶°Çº¯°æ È®¾à¼­°¡ 2026. 1. 23.ÀÚ Á¦ÃâµÊ¿¡ µû¶ó ½Åûä±ÇÀÚ°¡ ¹è´ç¹ÞÁö ¸øÇÏ´Â ÀÜÁ¸ ÀÓ´ëÂ÷º¸Áõ±Ý¿¡ ´ëÇØ ¸Å¼öÀÎÀº ÀμöÇÏÁö ¾ÊÀ½
ÇØ´ç ºÎµ¿»êÀÇ ÇöȲÀº ¿Ü°ü»ó °øºÎÀÇ ³»¿ë°ú ÀÏÄ¡ÇÏ´Â °ÍÀ¸·Î º¸ÀÓ.

°ÇÃ๰ÇöȲ

¼ÒÀçÁö °æ±âµµ ¿ëÀνà óÀα¸ ¸ðÇöÀ¾ µ¿¸²¸® 112-2¹øÁö
´ëÁö¸éÀû 333§³
(100.91Æò)
¿¬¸éÀû 640.68§³
(194.15Æò)
°ÇÃà¸éÀû 187.81§³
(56.91Æò)
¿ëÀû·ü»êÁ¤
¿¬¸éÀû
640.68§³
(194.15Æò)
°ÇÆóÀ² 56.4% ¿ëÀû·ü 192.4%
Áö»óÃþ¼ö 5Ãþ ÁöÇÏÃþ¼ö  
ÁÖ¿ëµµ °øµ¿ÁÖÅà ±¸Á¶ ö±ÙÄÜÅ©¸®Æ®±¸Á¶
Âø°øÀÏÀÚ 2018.06.12 »ç¿ë½ÂÀÎÀÏÀÚ 2019.01.15


µî±âºÎµîº» ¿ä¾à(°Ç¹°)

  Á¢¼öÀÏÀÚ µî±â¸ñÀû/±Ç¸®ÀÚ ±Ç¸®±Ý¾× ±âÁØ
1 2021³â2¿ù1ÀÏ
¼ÒÀ¯±Ç
Â÷OO
¼Ò¸ê
2 2021³â6¿ù7ÀÏ
¾Ð·ù
µ¿OOO
¼Ò¸ê±âÁØ
3 2021³â6¿ù21ÀÏ
¾Ð·ù
ÁßOO
¼Ò¸ê
4 2021³â7¿ù7ÀÏ
¾Ð·ù
µ¿OOO
¼Ò¸ê
5 2021³â9¿ù2ÀÏ
¾Ð·ù
µ¿OOO
¼Ò¸ê
6 2021³â9¿ù16ÀÏ
¾Ð·ù
¾ÈOO
¼Ò¸ê
7 2021³â9¿ù29ÀÏ
¾Ð·ù
±¹OOOO
¼Ò¸ê
8 2021³â10¿ù14ÀÏ
¾Ð·ù
¼­OOOO
¼Ò¸ê
9 2022³â6¿ù30ÀÏ
°¡¾Ð·ù
¿¥OOOO
7,024,624 ¼Ò¸ê
10 2022³â12¿ù21ÀÏ
¾Ð·ù
¼ÛOO
¼Ò¸ê
11 2023³â3¿ù3ÀÏ
ÀÓÂ÷±Ç¼³Á¤
ÀÌOO
265,000,000 ¼Ò¸ê
12 2023³â12¿ù1ÀÏ
¾Ð·ù
¼­OOOO
¼Ò¸ê
13 2024³â8¿ù2ÀÏ
°­Á¦°æ¸Å
ÁÖOOOO
¼Ò¸ê
14 2024³â9¿ù10ÀÏ
¾Ð·ù
±èOO
¼Ò¸ê
15 2025³â8¿ù28ÀÏ
¾Ð·ù
¿ëOO
¼Ò¸ê

ÀÓÂ÷ÀÎÇöȲ (¹è´ç¿ä±¸Á¾±âÀÏ: 2024-10-15)

ÀÓÂ÷ÀÎ ¿ëµµ/Á¡À¯ º¸Áõ±Ý/¿ù¼¼ ´ëÇ×·Â
ÀüÀÔÀÏ/È®Á¤ÀÏ ¹è´ç¿ä±¸ ºñ°í
ÀÌOO 302È£ 265,000,000
O
2021.02.01
2020.12.28
2021.02.01

¿©ÀÇÁÖ°æ¸Å Á¶¾ð ÇÑ ¸¶µð

¼±¼øÀ§ ÀÓÂ÷±Çµî±â°¡ µÇ¾î ÀÖ½À´Ï´Ù
´ëÇ×·ÂÀÌ ÀÖ´Â ¼±¼øÀ§ ÀÓÂ÷±Çµî±â ±Ç¸®ÀÚ°¡ ¹è´çÀ» Àü¾× ¹ÞÁö ¸øÇÒ °æ¿ì ³«ÂûÀÚ°¡ ÀÜ¿© º¸Áõ±ÝÀ» ÀμöÇØ¾ßÇÏ´Â °æ¿ìµµ ÀÖ½À´Ï´Ù.

ÁÖÀÇ»çÇ× (ÃÖ¼±¼øÀ§ ¼³Á¤ÀÏ: 2021.6.7.¾Ð·ù ¼³Á¤)

¸Å°¢À¸·Î ¼Ò¸êµÇÁö ¾Ê´Â µî±âºÎ±Ç¸®:
¸Å°¢À¸·Î ¼³Á¤µÈ °ÍÀ¸·Î º¸´Â Áö»ó±Ç:
½Åûä±Ç°ú ÀÓÂ÷±Çµî±â ä±ÇÀº µ¿ÀÏÇÔ. ½Åûä±ÇÀÚ°¡ ¿ì¼±º¯Á¦±Ç¸¸ ÁÖÀåÇÏ°í ´ëÇ×·Â Æ÷±â¿Í ÀÓÂ÷±Ç¸»¼Ò¿¡ µ¿ÀÇÇÑ´Ù´Â ÀμöÁ¶ °Çº¯°æ È®¾à¼­°¡ 2026. 1. 23.ÀÚ Á¦ÃâµÊ¿¡ µû¶ó ½Åûä±ÇÀÚ°¡ ¹è´ç¹ÞÁö ¸øÇÏ´Â ÀÜÁ¸ ÀÓ´ëÂ÷º¸Áõ±Ý¿¡ ´ëÇØ ¸Å¼öÀÎÀº ÀμöÇÏÁö ¾ÊÀ½
¡Ø¹Ì³³°ü¸®ºñ(°ø¿ë) Àμö¿©ºÎ¸¦ ÀÔÂû Àü¿¡ È®ÀÎÇϽñ⠹ٶø´Ï´Ù

 

Áö¿ªºÐ¼®

ÁöÇÏö¸í Á÷¼±°Å¸®

Çб³¸í ÀüÈ­¹øÈ£ ÁÖ¼Ò Á÷¼±°Å¸®

¹ý¿ø

¼ö¿øÁö¹æ¹ý¿ø (165-12)°æ±âµµ ¼ö¿ø½Ã ¿µÅ뱸 ¹ýÁ¶·Î 105, Çϵ¿, ¼ö¿ø¹ý¿øÁ¾ÇÕû»ç
´ëÇ¥ : 031)210-1114, ¾ß°£ : 031)210-1111
°üÇÒÁö¿ª : ¼ö¿ø½Ã, ¿À»ê½Ã, È­¼º½Ã, ¿ëÀνÃ

µî±â¼Ò ¼ö¿øÁö¹æ¹ý¿ø º»¿ø ¿ëÀεî±â¼Ò (´ëÇ¥:1544-0773, ÆÑ½º:(031)321-3919, °æ±âµµ ¿ëÀνà óÀα¸ ¼º»ê·Î 7 (¿ªºÏµ¿ 391-28))
¼¼¹«¼­ ¿ëÀμ¼¹«¼­ (´ëÇ¥:031-329-22, ÆÑ½º:031-329-2328, °æ±âµµ ¿ëÀνà óÀα¸ Áߺδë·Î1161¹ø±æ 71 (»ï°¡µ¿))

Àαٳ«ÂûÅë°è

±â°£ ¸Å°¢°Ç¼ö Æò±Õ°¨Á¤°¡
Æò±Õ¸Å°¢°¡
¸Å°¢°¡À²
Æò±ÕÀ¯Âû¼ö
3°³¿ù 7°Ç 176,285,714¿ø
117,905,953¿ø
70%
2.1ȸ
6°³¿ù 16°Ç 169,562,500¿ø
125,545,761¿ø
74%
1.9ȸ
12°³¿ù 32°Ç 208,125,000¿ø
154,644,408¿ø
75%
1.6ȸ


º» °æ¸ÅÁ¤º¸´Â ¹ý¿øÀÚ·á¿Í ÀÏÄ¡Çϵµ·Ï ÇÏ¿´À¸³ª ±Ç¸®»çÇ׺¯µ¿, ÀÔ·ÂÂø¿À µîÀÇ ¿øÀÎÀ¸·Î »ç½Ç°ú ´Ù¸¦ ¼ö ÀÖ½À´Ï´Ù. ÀÌ¿ë¾à°ü¿¡ ÀǰЏéÃ¥Á¶°ÇÀ¸·Î Á¦°øµÊÀ» ¾Ë¸®¸ç, °æ¸ÅÀÔÂû½Ã ¹Ýµå½Ã °ü·Ã °øºÎ¸¦ ÀçÈ®ÀÎÇϽñ⠹ٶø´Ï´Ù. º¸´Ù Æí¸®ÇÑ °æ¸ÅÁ¤º¸ Á¦°øÀ» À§ÇØ Áö¼ÓÀûÀ¸·Î °³¼±ÇϰڽÀ´Ï´Ù. ÀÌ¿ëÇØ Áּż­ °¨»çÇÕ´Ï´Ù.