·Î±×ÀÎ
86
¿ÀÇǽºÅÚ
¼ö¿øÁö¹æ¹ý¿ø ¼º³²Áö¿ø
 °¨Á¤°¡212,000,000 ¿ø
 ÃÖÀú°¡(70%) 148,400,000 ¿ø
 º¸Áõ±Ý(10%) 14,840,000 ¿ø
 Ã»±¸¾×231,170,327 ¿ø
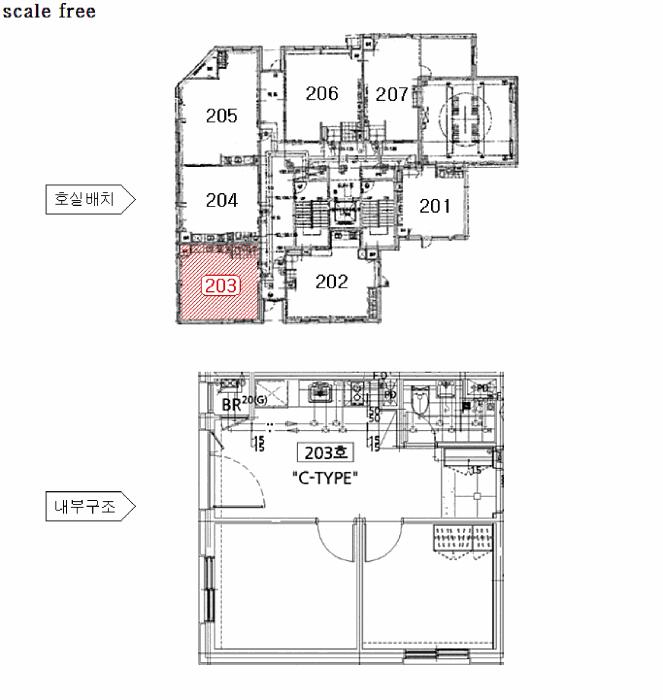
°æ±âµµ ¼º³²½Ã Áß¿ø±¸ µµÃ̵¿ 562 À¸¶äÀÌ·¹°¡ 2Ãþ 203È£
»ç°Ç¹øÈ£ 2025Ÿ°æ52123
°æ¸ÅÁ¾·ùºÎµ¿»ê°­Á¦°æ¸Å
¸Å°¢´ë»óÅäÁö ¹× °Ç¹°Àϰý ¸Å°¢
¸Å°¢±âÀÏ    2026.03.23(¿ù) 10:00 ÀÔÂû 28ÀÏÀü    
ÅäÁö¸éÀû13.84§³(4.19 Æò)
°Ç¹°¸éÀû37.53§³(11.35 Æò)
乫/¼ÒÀ¯ÀÚÁÖOOO OOOO / ÁÖOOO OOOO
ä±ÇÀÚÇÑOOOOOOO
ÆäÀ̽ººÏ Æ®À§ÅÍ ±¸±Û+
īī¿À½ºÅ丮
īī¿ÀÅå sms¹®ÀÚº¸³»±â
 

±âÀϳ»¿ª

°æ°ú ³¯Â¥ Àú°¨ ÃÖÀú°¡ °á°ú
Á¢¼öÀÏ 2025-04-30 °æ¸ÅÁ¢¼ö
~1ÀÏ 
2025-05-01 °æ¸Å°³½Ã°áÁ¤
~68ÀÏ 
2025-07-07 ¹è´ç¿ä±¸Á¾±âÀÏ
~289ÀÏ 
2026-02-13 100%
212,000,000
À¯Âû
~327ÀÏ 
2026-03-23 70%
148,400,000
ÁøÇà
¹°°Ç¸í¼¼¼­ ÇöȲÁ¶»ç¼­ ¹®°ÇÁ¢¼ö ¼Û´Þ³»¿ª

°¨Á¤Æò°¡ÇöȲ

¸ñ·Ï ÁÖ¼Ò ±¸Á¶/¿ëµµ/´ëÁö±Ç ¸éÀû ºñ°í
´ëÁö±Ç
µµÃ̵¿ 562 742.2ºÐÀÇ 13.842 13.842 §³
(4.19Æò)
°Ç¹°
µµÃ̵¿ 562 2Ãþ 203È£ ö±ÙÄÜÅ©¸®Æ®±¸Á¶ 37.527 §³
(11.35Æò)
1) À§Ä¡/ÁØÁÖ°ÅÁö¿ª/Áö±¸´ÜÀ§°èȹ±¸¿ª/°£¼±µµ·Î/ö±ÙÄÜÅ©¸®Æ®±¸Á¶ ´õº¸±â
°¨Á¤Æò°¡ ¿äÇ×Ç¥
1)À§Ä¡ ¹× ÁÖÀ§È¯°æ
°æ±âµµ ¼º³²½Ã Áß¿ø±¸ µµÃ̵¿, µµÃÌÁßÇб³ ³²¼­Ãø Àαٿ¡ À§Ä¡Çϸç, ÀαÙÁö¿ªÀº
¾÷¹«½Ã¼³, ±Ù¸°»ýȰ½Ã¼³ µîÀÌ È¥¼ºµÇ¾î ÀÖ´Â ÁÖ»óº¹ÇÕÁö´ëÀÓ.
2)±³Åë»óȲ
°£¼±µµ·ÎÀÎ Èñ¸Á·Î ÁÖº¯À¸·Î, °£¼±µµ·Î ¹× ´ëÁß±³Åë½Ã¼³ Á¢±Ù¼º ¹«³­ÇÔ.
3)°Ç¹°ÀÇ ±¸Á¶
ö±ÙÄÜÅ©¸®Æ®±¸Á¶ ÆòÁöºØ 7Ãþ °Ç¹°ÀÇ Á¦2ÃþÀ¸·Î¼­, ¿Üº®Àº µ¹ºÙÀÓ, ÆäÀÎÆ®Ä¥ µîÀ̰í,
âȣ´Â »û½ÃâȣÀÓ.

4)ÀÌ¿ë»óÅÂ
¿ÀÇǽºÅÚÀÓ.
5)¼³ºñ³»¿ª
À§»ý¼³ºñ, ±Þ¡¤¹è¼ö¼³ºñ, ½Â°­±â¼³ºñ, ÁÖÂ÷¼³ºñ, ¹æÈ­¼³ºñ µî.
6)ÅäÁöÀÇ Çü»ó ¹× ÀÌ¿ë»óÅÂ
»ç´Ù¸®Çü ÆòÁö·Î¼­, 1µ¿ÀÇ ±Ù¸°»ýȰ½Ã¼³ ¹× ¿ÀÇǽºÅÚ °Ç¹°ÀÇ ºÎÁö·Î ÀÌ¿ëµÇ°í ÀÖÀ½.
7)ÀÎÁ¢ µµ·Î»óŵî
Æø 20¹ÌÅÍ, 12¹ÌÅÍ ¹× 10¹ÌÅÍ µµ·Î¿Í 3¸éÀÌ Á¢ÇÏ¿© ÅëÇà ¹× ½Â¿ëÂ÷ Á¢±Ù¼º ¾çÈ£ÇÔ.
8)ÅäÁöÀÌ¿ë°èȹ ¹× Á¦ÇÑ»óÅÂ
ÁØÁÖ°ÅÁö¿ª, Áö±¸´ÜÀ§°èȹ±¸¿ª(µµÃÌ), ¼Ò·Î1·ù(Æø 10m~12m)(Á¢ÇÕ), Áß·Î1·ù(Æø 20m~25m)
(Á¢ÇÕ), Áß·Î3·ù(Æø 12m~15m)(Á¢ÇÕ), °¡Ãà»çÀ°Á¦Çѱ¸¿ª, »ó´ëº¸È£±¸¿ª(2014-12-30),
»ó´ëº¸È£±¸¿ª(°æ±âµµ¼º³²±³À°Áö¿øÃ» È®Àοä¸Á), ºñÇà¾ÈÀüÁ¦6±¸¿ª(Àü¼ú), ´ë±âȯ°æ±ÔÁ¦Áö¿ª
µµ½Ã±³ÅëÁ¤ºñÁö¿ª, °ú¹Ð¾ïÁ¦±Ç¿ª.
9)°øºÎ¿ÍÀÇ Â÷ÀÌ
¾øÀ½.
10)±âŸÂü°í»çÇ×(ÀÓ´ë°ü·Ê ¹× ±âŸ)
ÀÓ´ë°ü°è ¹Ì»óÀÓ.

°ÇÃ๰ÇöȲ

¼ÒÀçÁö °æ±âµµ ¼º³²½Ã Áß¿ø±¸ µµÃ̵¿ 562¹øÁö
´ëÁö¸éÀû 742.2§³
(224.91Æò)
¿¬¸éÀû 4188.647§³
(1269.29Æò)
°ÇÃà¸éÀû 504.769§³
(152.96Æò)
¿ëÀû·ü»êÁ¤
¿¬¸éÀû
2913.587§³
(882.91Æò)
°ÇÆóÀ² 68.01% ¿ëÀû·ü 392.561%
Áö»óÃþ¼ö 7Ãþ ÁöÇÏÃþ¼ö 2Ãþ
ÁÖ¿ëµµ ¾÷¹«½Ã¼³ ±¸Á¶ ö±ÙÄÜÅ©¸®Æ®±¸Á¶
Âø°øÀÏÀÚ 2017.03.20 »ç¿ë½ÂÀÎÀÏÀÚ 2019.02.21
°ÇÃ๰Ãþº°ÇöȲ [º¸±â]


µî±âºÎµîº» ¿ä¾à(°Ç¹°)

  Á¢¼öÀÏÀÚ µî±â¸ñÀû/±Ç¸®ÀÚ ±Ç¸®±Ý¾× ±âÁØ
1 2021³â3¿ù22ÀÏ
¼ÒÀ¯±Ç
(OOOO
¼Ò¸ê
2 2024³â1¿ù3ÀÏ
¾Ð·ù
±¹OOOO
¼Ò¸ê±âÁØ
3 2024³â1¿ù19ÀÏ
°¡¾Ð·ù
(OOOO
1,000,000,000 ¼Ò¸ê
4 2024³â4¿ù1ÀÏ
ÀÓÂ÷±Ç¼³Á¤
º¯OO
210,000,000 ¼Ò¸ê
5 2024³â11¿ù25ÀÏ
¾Ð·ù
±¹
¼Ò¸ê
6 2025³â5¿ù1ÀÏ
°­Á¦°æ¸Å
ÇÑOOOO
¼Ò¸ê

ÀÓÂ÷ÀÎÇöȲ (¹è´ç¿ä±¸Á¾±âÀÏ: 2025-07-07)

ÀÓÂ÷ÀÎ ¿ëµµ/Á¡À¯ º¸Áõ±Ý/¿ù¼¼ ´ëÇ×·Â
ÀüÀÔÀÏ/È®Á¤ÀÏ ¹è´ç¿ä±¸ ºñ°í
º¯OO 203È£ 210,000,000
O
2021.03.30.
(1Â÷)2021.03.05.(2Â÷)2023.03.14.
ÇÑOOOOOOO 203È£ 210,000,000
O
2021.03.30.
2021.03.05.
2025.4.30. 2021.03.22.~2024.03.23.
ºñ°í
(¸Å°¢¹°°Ç
¸í¼¼¼­)
º¯À̺¸:ÁÖÅÃÀÓÂ÷±Çµî±â±ÇÀڷμ­ ÁÖÅÃÀÓÂ÷±Çµî±âÀÏÀº 2024.4.1.ÀÓ Çѱ¹ÁÖÅñÝÀ¶°ø»ç:°æ¸Å½Åûä±ÇÀÚ·Î ÀÓÂ÷ÀÎ º¯À̺¸ÀÇ ÀÓÂ÷º¸Áõ±Ý¹Ýȯä±Ç ¾ç¼öÀÎÀÓ(´ëÇ׷¹׿켱º¯Á¦±Ç ½Â°è)

¿©ÀÇÁÖ°æ¸Å Á¶¾ð ÇÑ ¸¶µð


ÁÖÀÇ»çÇ× (ÃÖ¼±¼øÀ§ ¼³Á¤ÀÏ: 2024.01.03. ¾Ð·ù ¼³Á¤)

¸Å°¢À¸·Î ¼Ò¸êµÇÁö ¾Ê´Â µî±âºÎ±Ç¸®: ¸Å¼öÀο¡°Ô 2021.03.05.(±Ý240,000,000¿ø), È®Á¤ÀÏÀÚ 2Â÷´Â 2023.03.14.(°¨¾×µÈ ±Ý¾× 30,000,000¿ø)°¡ ÀÖÀ¸¹Ç·Î ¹è´ç¿¡¼­ Àü¾× º¯Á¦µÇÁö ¾Æ´Ï Çϸé Àܾ×Àº ¸Å¼öÀο¡°Ô ÀμöµÉ ¼ö ÀÖÀ½) ´ëÇ×ÇÒ
¸Å°¢À¸·Î ¼³Á¤µÈ °ÍÀ¸·Î º¸´Â Áö»ó±Ç:
¡Ø¹Ì³³°ü¸®ºñ(°ø¿ë) Àμö¿©ºÎ¸¦ ÀÔÂû Àü¿¡ È®ÀÎÇϽñ⠹ٶø´Ï´Ù

 

Áö¿ªºÐ¼®

ÁöÇÏö¸í Á÷¼±°Å¸®

Çб³¸í ÀüÈ­¹øÈ£ ÁÖ¼Ò Á÷¼±°Å¸®

¹ý¿ø

¼ö¿øÁö¹æ¹ý¿ø ¼º³²Áö¿ø (131-43)°æ±âµµ ¼º³²½Ã ¼öÁ¤±¸ »ê¼º´ë·Î 451 (´Ü´ëµ¿)
´ëÇ¥ : 031)737-1558, ¾ß°£ : 031)737-1120
°üÇÒÁö¿ª : ¼º³²½Ã, ±¤ÁÖ½Ã, Çϳ²½Ã

µî±â¼Ò ¼ö¿øÁö¹æ¹ý¿ø ¼º³²Áö¿ø µî±â°ú (´ëÇ¥:1544-0773, ÆÑ½º:(031)741-2913, °æ±âµµ ¼º³²½Ã ¼öÁ¤±¸ »ê¼º´ë·Î 451 (´Ü´ëµ¿ 75))
¼¼¹«¼­ ¼º³²¼¼¹«¼­ (´ëÇ¥:031-730-62, ÆÑ½º:031-736-1904, °æ±âµµ ¼º³²½Ã ¼öÁ¤±¸ Èñ¸Á·Î 480 (´Ü´ëµ¿))

Àαٳ«ÂûÅë°è

±â°£ ¸Å°¢°Ç¼ö Æò±Õ°¨Á¤°¡
Æò±Õ¸Å°¢°¡
¸Å°¢°¡À²
Æò±ÕÀ¯Âû¼ö


º» °æ¸ÅÁ¤º¸´Â ¹ý¿øÀÚ·á¿Í ÀÏÄ¡Çϵµ·Ï ÇÏ¿´À¸³ª ±Ç¸®»çÇ׺¯µ¿, ÀÔ·ÂÂø¿À µîÀÇ ¿øÀÎÀ¸·Î »ç½Ç°ú ´Ù¸¦ ¼ö ÀÖ½À´Ï´Ù. ÀÌ¿ë¾à°ü¿¡ ÀǰЏéÃ¥Á¶°ÇÀ¸·Î Á¦°øµÊÀ» ¾Ë¸®¸ç, °æ¸ÅÀÔÂû½Ã ¹Ýµå½Ã °ü·Ã °øºÎ¸¦ ÀçÈ®ÀÎÇϽñ⠹ٶø´Ï´Ù. º¸´Ù Æí¸®ÇÑ °æ¸ÅÁ¤º¸ Á¦°øÀ» À§ÇØ Áö¼ÓÀûÀ¸·Î °³¼±ÇϰڽÀ´Ï´Ù. ÀÌ¿ëÇØ Áּż­ °¨»çÇÕ´Ï´Ù.