·Î±×ÀÎ
204
¿ÀÇǽºÅÚ
¼ö¿øÁö¹æ¹ý¿ø ¼º³²Áö¿ø
 °¨Á¤°¡1,037,500,000 ¿ø
 ÃÖÀú°¡(49%) 508,375,000 ¿ø
 º¸Áõ±Ý(10%) 50,837,500 ¿ø
 Ã»±¸¾×815,637,847 ¿ø
°æ±âµµ ¼º³²½Ã ºÐ´ç±¸ ¼­Çöµ¿ 275 ¶óÆ÷¸£Å׺í¶û¼­Çö 609È£
»ç°Ç¹øÈ£ 2025Ÿ°æ886
°æ¸ÅÁ¾·ùºÎµ¿»êÀÓÀǰæ¸Å
¸Å°¢´ë»óÅäÁö ¹× °Ç¹°ÁöºÐ¸Å°¢
¸Å°¢±âÀÏ    2026.04.27(¿ù) 10:00 ÀÔÂû 15ÀÏÀü    
ÅäÁö¸éÀû17.23§³(5.21 Æò)
°Ç¹°¸éÀû99.19§³(30.00 Æò)
乫/¼ÒÀ¯ÀÚÁ¤OO / Á¤OO
ä±ÇÀÚÁÖOOO OOOO
ÆäÀ̽ººÏ Æ®À§ÅÍ ±¸±Û+
īī¿À½ºÅ丮
īī¿ÀÅå sms¹®ÀÚº¸³»±â
 

±âÀϳ»¿ª

°æ°ú ³¯Â¥ Àú°¨ ÃÖÀú°¡ °á°ú
Á¢¼öÀÏ 2025-03-10 °æ¸ÅÁ¢¼ö
~1ÀÏ 
2025-03-11 °æ¸Å°³½Ã°áÁ¤
~64ÀÏ 
2025-05-13 ¹è´ç¿ä±¸Á¾±âÀÏ
~340ÀÏ 
2026-02-13 100%
1,037,500,000
À¯Âû
~378ÀÏ 
2026-03-23 70%
726,250,000
À¯Âû
~413ÀÏ 
2026-04-27 49%
508,375,000
ÁøÇà
¹°°Ç¸í¼¼¼­ ÇöȲÁ¶»ç¼­ ¹®°ÇÁ¢¼ö ¼Û´Þ³»¿ª

°¨Á¤Æò°¡ÇöȲ

¸ñ·Ï ÁÖ¼Ò ±¸Á¶/¿ëµµ/´ëÁö±Ç ¸éÀû ºñ°í
´ëÁö±Ç
¼­Çöµ¿ 275 4746.9ºÐÀÇ 9.7568 9.7568 §³
(2.95Æò)
¼­Çöµ¿ 275 4746.9ºÐÀÇ 7.4745 7.4745 §³
(2.26Æò)
ÁöºÐ 128ºÐÀÇ1 ÀüºÎ
°Ç¹°
¼­Çöµ¿ 275 609È£ ö±ÙÄÜÅ©¸®Æ®±¸Á¶ 47.8776 §³
(14.48Æò)
¼­Çöµ¿ 275 Á¦1ÁÖÂ÷ÀåÈ£ ö±ÙÄÜÅ©¸®Æ®±¸Á¶ 51.311 §³
(15.52Æò)
ÁöºÐ 128ºÐÀÇ1 ÀüºÎ
1) À§Ä¡/µµ½ÃÁö¿ª/Á߽ɻó¾÷Áö¿ª/Áö±¸´ÜÀ§°èȹ±¸¿ª/¹ö½ºÁ¤·ùÀå/ÁÖÂ÷Àå/Â÷·®ÁøÃâÀÔ °¡´É/Â÷·®ÁøÃâÀÔ °¡´É/ö±ÙÄÜÅ©¸®Æ®±¸Á¶ ´õº¸±â
°¨Á¤Æò°¡ ¿äÇ×Ç¥
1)À§Ä¡ ¹× ÁÖÀ§È¯°æ
º»°ÇÀº °æ±âµµ ¼º³²½Ã ºÐ´ç±¸ ¼­Çöµ¿ ¼ÒÀç ""¼­Çö¿ª"" ºÏ¼­Ãø ¿¡ À§Ä¡ÇÑ ºÎµ¿»êÀ¸·Î¼­ ÁÖÀ§´Â ¾ÆÆÄÆ®´ÜÁö, ¾÷¹«½Ã¼³, ±Ù¸°»ýȰ½Ã¼³ µîÀÌ È¥ÀçÇÏ´Â Áö´ë·Î¼­ Á¦¹Ý ÁÖÀ§È¯°æÀº º¸Åë½ÃµÊ.
2)±³Åë»óȲ
º»°Ç±îÁö Â÷·®ÁøÃâÀÔ °¡´ÉÇϰí, Àαٿ¡ ¹ö½ºÁ¤·ùÀåÀÌ ¼ÒÀçÇÏ´Â µî Á¦¹Ý ±³Åë¿©°ÇÀº ´ëü·Î º¸Åë½ÃµÊ.
3)°Ç¹°ÀÇ ±¸Á¶
º»°ÇÀº ö±ÙÄÜÅ©¸®Æ®±¸Á¶(ö±ÙÄÜÅ©¸®Æ®±¸Á¶, ö°ñ±¸Á¶)(ö±Ù)ÄÜÅ©¸®Æ® ÁöºØ °Ç¹°³»
¿Üº® : ÆÇ³Ú¸¶°¨ µî
³»º® : º®Áöµµ¹è, ÀϺΠŸÀϸ¶°¨ µî,
âȣ : ¼¦½Ã µîÀÓ.
4)ÀÌ¿ë»óÅÂ
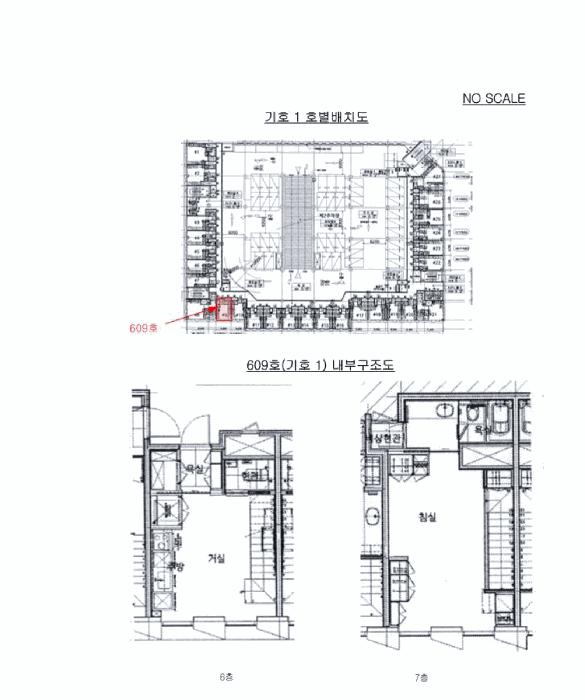
º»°ÇÀº ±âÈ£1:¿ÀÇǽºÅÚ, ±âÈ£2: ÁÖÂ÷ÀåÀ¸·Î ÀÌ¿ëÁßÀÓ.(Èĸ顮³»ºÎ±¸Á¶µµ¡¯ ÂüÁ¶)
5)¼³ºñ³»¿ª
À§»ý, ±Þ¹è¼ö,½Â°­±â¼³ºñ, ¿Á³»¼ÒÈ­Àü¼³ºñ µî ±¸ºñµÇ¾î ÀÖÀ½.
6)ÅäÁöÀÇ Çü»ó ¹× ÀÌ¿ë»óÅÂ
°¡ÀåÇüÀÇ ÆòÁö·Î¼­ ÀÚµ¿Â÷°ü·Ã½Ã¼³(ÁÖÂ÷Àå), ¿ÀÇǽºÅÚ, ±Ù¸°»ýȰ½Ã¼³ µîÀÇ °ÇºÎÁö·Î ÀÌ¿ëÁßÀÓ.
7)ÀÎÁ¢ µµ·Î»óŵî
º»°Ç ºÏ¼­ÃøÀ¸·Î ³ëÆø ¾à20¹ÌÅÍ, ºÏµ¿ ¹× ³²µ¿ÃøÀ¸·Î ¾à12¹ÌÅÍ, ³²¼­ÃøÀ¸·Î ¾à10¹ÌÅÍÀÇ Æ÷Àåµµ·Î¿¡ Á¢ÇÔ.
8)ÅäÁöÀÌ¿ë°èȹ ¹× Á¦ÇÑ»óÅÂ
µµ½ÃÁö¿ª, Á߽ɻó¾÷Áö¿ª, Áö±¸´ÜÀ§°èȹ±¸¿ª(ºÐ´ç), ¼Ò·Î1·ù(Æø 10m~12m)(±¹Áöµµ·Î)(Á¢ÇÕ),¼Ò·Î2·ù(Æø 8m~10m)(±¹Áöµµ·Î)(Á¢ÇÕ), ÁÖÂ÷Àå, Áß·Î1·ù(Æø 20m~25m)(Áý»êµµ·Î)(Á¢ÇÕ),Áß·Î2·ù(Æø 15m~20m)(Áý»êµµ·Î)(Á¢ÇÕ)°¡Ãà»çÀ°Á¦Çѱ¸¿ª<°¡ÃàºÐ´¢ÀÇ °ü¸® ¹× À̿뿡 °üÇѹý·ü>, ºñÇà¾ÈÀüÁ¦2±¸¿ª(Àü¼ú)<±º»ç±âÁö ¹× ±º»ç½Ã¼³ º¸È£¹ý>,
´ë±âȯ°æ±ÔÁ¦Áö¿ª<´ë±âȯ°æº¸Àü¹ý>, µµ½Ã±³ÅëÁ¤ºñÁö¿ª<µµ½Ã±³ÅëÁ¤ºñÃËÁø¹ý>,
º¥Ã³±â¾÷À°¼ºÃËÁøÁö±¸<º¥Ã³±â¾÷À°¼º¿¡ °üÇÑ Æ¯º°Á¶Ä¡¹ý>, °ú¹Ð¾ïÁ¦±Ç¿ª<¼öµµ±ÇÁ¤ºñ°èȹ¹ý>,(ÇѰ­)Æó±â¹°¸Å¸³½Ã¼³ ¼³Ä¡Á¦ÇÑÁö¿ª<ÇѰ­¼ö°è »ó¼ö¿ø¼öÁú°³¼± ¹× ÁÖ¹ÎÁö¿ø µî¿¡ °üÇÑ ¹ý·ü> µîÀÓ.
9)°øºÎ¿ÍÀÇ Â÷ÀÌ
--
10)±âŸÂü°í»çÇ×(ÀÓ´ë°ü·Ê ¹× ±âŸ)
ÀÓ´ë°ü°è ¹Ì»óÀÓ
Âü°í
»çÇ×
Àϰý¸Å°¢
- ¸ñ·Ï2. Á¦1ÁÖÂ÷Àå(Áö

°ÇÃ๰ÇöȲ

¼ÒÀçÁö °æ±âµµ ¼º³²½Ã ºÐ´ç±¸ ¼­Çöµ¿ 275¹øÁö
´ëÁö¸éÀû 4746.9§³
(1438.45Æò)
¿¬¸éÀû 34640.1488§³
(10497.01Æò)
°ÇÃà¸éÀû 3573.2044§³
(1082.79Æò)
¿ëÀû·ü»êÁ¤
¿¬¸éÀû
27185.2236§³
(8237.95Æò)
°ÇÆóÀ² 75.27% ¿ëÀû·ü 572.69425%
Áö»óÃþ¼ö 8Ãþ ÁöÇÏÃþ¼ö 2Ãþ
ÁÖ¿ëµµ ÀÚµ¿Â÷°ü·Ã½Ã¼³ ±¸Á¶ ö±ÙÄÜÅ©¸®Æ®±¸Á¶
Âø°øÀÏÀÚ 1996.05.21 »ç¿ë½ÂÀÎÀÏÀÚ 1997.01.24
°ÇÃ๰Ãþº°ÇöȲ [º¸±â]


µî±âºÎµîº» ¿ä¾à(°Ç¹°)

  Á¢¼öÀÏÀÚ µî±â¸ñÀû/±Ç¸®ÀÚ ±Ç¸®±Ý¾× ±âÁØ
1 2023³â11¿ù10ÀÏ
¼ÒÀ¯±Ç
Á¤OO
¼Ò¸ê
2 2023³â11¿ù10ÀÏ
±ÙÀú´ç±Ç
(OOOO
948,000,000 ¼Ò¸ê±âÁØ
3 2025³â3¿ù11ÀÏ
ÀÓÀǰæ¸Å
(OOOO
¼Ò¸ê

ÀÓÂ÷ÀÎÇöȲ (¹è´ç¿ä±¸Á¾±âÀÏ: 2025-05-13)


Á¶»çµÈ ÀÓÂ÷³»¿ªÀÌ ¾ø½À´Ï´Ù


¿©ÀÇÁÖ°æ¸Å Á¶¾ð ÇÑ ¸¶µð

ÁöºÐ°æ¸Å ¹°°ÇÀÌ Æ÷ÇԵǾî ÀÖ½À´Ï´Ù
¿©·¯ ¸íÀÌ °øµ¿À¸·Î ¼ÒÀ¯ÇÏ´Â ºÎµ¿»êÀÇ ÀϺθ¸ °æ¸Å·Î ³ª¿Â °ÍÀ» ÁöºÐ°æ¸Å¶ó°í ÇÕ´Ï´Ù. ¼ÒÀ¯ºÎºÐÀÌ Æ¯Á¤µÇÁö ¾Ê¾Æ »ç¿ë¿¡ Á¦¾àÀÌ µû¸¦ ¼ö ÀÖÀ¸¸ç °øÀ¯ÀÚ°£¿¡ ºÐÀïµµ ¹ß»ýÇÒ ¼ö ÀÖ½À´Ï´Ù. °øÀ¯ÀÚ´Â °øÀ¯ÀÚ¿ì¼±¸Å¼öû±¸±Ç¸®°¡ ÀÖ½À´Ï´Ù.

ÁÖÀÇ»çÇ× (ÃÖ¼±¼øÀ§ ¼³Á¤ÀÏ: 2023.11.10. ±ÙÀú´ç±Ç ¼³Á¤)

¸Å°¢À¸·Î ¼Ò¸êµÇÁö ¾Ê´Â µî±âºÎ±Ç¸®:
¸Å°¢À¸·Î ¼³Á¤µÈ °ÍÀ¸·Î º¸´Â Áö»ó±Ç:
Àϰý¸Å°¢
¡Ø¹Ì³³°ü¸®ºñ(°ø¿ë) Àμö¿©ºÎ¸¦ ÀÔÂû Àü¿¡ È®ÀÎÇϽñ⠹ٶø´Ï´Ù

 

Áö¿ªºÐ¼®

ÁöÇÏö¸í Á÷¼±°Å¸®

Çб³¸í ÀüÈ­¹øÈ£ ÁÖ¼Ò Á÷¼±°Å¸®

¹ý¿ø

¼ö¿øÁö¹æ¹ý¿ø ¼º³²Áö¿ø (131-43)°æ±âµµ ¼º³²½Ã ¼öÁ¤±¸ »ê¼º´ë·Î 451 (´Ü´ëµ¿)
´ëÇ¥ : 031)737-1558, ¾ß°£ : 031)737-1120
°üÇÒÁö¿ª : ¼º³²½Ã, ±¤ÁÖ½Ã, Çϳ²½Ã

µî±â¼Ò ¼ö¿øÁö¹æ¹ý¿ø ¼º³²Áö¿ø ºÐ´çµî±â¼Ò (´ëÇ¥:1544-0773, ÆÑ½º:(031)709-1164, °æ±âµµ ¼º³²½Ã ºÐ´ç±¸ ºÒÁ¤·Î406¹ø±æ 21 (¼­Çöµ¿ 318))
¼¼¹«¼­ ºÐ´ç¼¼¹«¼­ (´ëÇ¥:031-219-92, ÆÑ½º:031-781-6851, °æ±âµµ ¼º³²½Ã ºÐ´ç±¸ Ȳ»õ¿ï·Î 311¹ø±æ 11)

Àαٳ«ÂûÅë°è

±â°£ ¸Å°¢°Ç¼ö Æò±Õ°¨Á¤°¡
Æò±Õ¸Å°¢°¡
¸Å°¢°¡À²
Æò±ÕÀ¯Âû¼ö


º» °æ¸ÅÁ¤º¸´Â ¹ý¿øÀÚ·á¿Í ÀÏÄ¡Çϵµ·Ï ÇÏ¿´À¸³ª ±Ç¸®»çÇ׺¯µ¿, ÀÔ·ÂÂø¿À µîÀÇ ¿øÀÎÀ¸·Î »ç½Ç°ú ´Ù¸¦ ¼ö ÀÖ½À´Ï´Ù. ÀÌ¿ë¾à°ü¿¡ ÀǰЏéÃ¥Á¶°ÇÀ¸·Î Á¦°øµÊÀ» ¾Ë¸®¸ç, °æ¸ÅÀÔÂû½Ã ¹Ýµå½Ã °ü·Ã °øºÎ¸¦ ÀçÈ®ÀÎÇϽñ⠹ٶø´Ï´Ù. º¸´Ù Æí¸®ÇÑ °æ¸ÅÁ¤º¸ Á¦°øÀ» À§ÇØ Áö¼ÓÀûÀ¸·Î °³¼±ÇϰڽÀ´Ï´Ù. ÀÌ¿ëÇØ Áּż­ °¨»çÇÕ´Ï´Ù.