·Î±×ÀÎ
1089
±Ù¸°»ó°¡
¼ö¿øÁö¹æ¹ý¿ø ¼º³²Áö¿ø
 °¨Á¤°¡702,000,000 ¿ø
 ÃÖÀú°¡(70%) 491,400,000 ¿ø
 º¸Áõ±Ý(10%) 49,140,000 ¿ø
 Ã»±¸¾×794,402,923 ¿ø
°æ±âµµ Çϳ²½Ã ¹Ì»ç°­º¯´ë·Î34¹ø±æ 106, 1Ãþ101È£ (dz»êµ¿,ÇѰ­ÇÁ¶óÀÚ)
°æ±âµµ Çϳ²½Ã dz»êµ¿ 506
»ç°Ç¹øÈ£ 2024Ÿ°æ71133 ¹°°Ç¹øÈ£
Áߺ¹»ç°Çº´ÇÕ 2025Ÿ°æ52902,
°æ¸ÅÁ¾·ùºÎµ¿»ê°­Á¦°æ¸Å
¸Å°¢´ë»óÅäÁö ¹× °Ç¹°Àϰý ¸Å°¢
¸Å°¢±âÀÏ    2026.03.23(¿ù) 10:00 ÀÔÂû 22ÀÏÀü    
ÅäÁö¸éÀû19.93§³(6.03 Æò)
°Ç¹°¸éÀû45.45§³(13.75 Æò)
乫/¼ÒÀ¯ÀÚÂ÷OO¿Ü 1¸í / Â÷OO¿Ü 2¸í
ä±ÇÀÚ±èOO¿Ü 1¸í
ÆäÀ̽ººÏ Æ®À§ÅÍ ±¸±Û+
īī¿À½ºÅ丮
īī¿ÀÅå sms¹®ÀÚº¸³»±â
 

±âÀϳ»¿ª

°æ°ú ³¯Â¥ Àú°¨ ÃÖÀú°¡ °á°ú
Á¢¼öÀÏ 2024-12-07 °æ¸ÅÁ¢¼ö
~6ÀÏ 
2024-12-13 °æ¸Å°³½Ã°áÁ¤
~95ÀÏ 
2025-03-12 ¹è´ç¿ä±¸Á¾±âÀÏ
~433ÀÏ 
2026-02-13 100%
702,000,000
À¯Âû
~471ÀÏ 
2026-03-23 70%
491,400,000
ÁøÇà
¹°°Ç¸í¼¼¼­ ÇöȲÁ¶»ç¼­ ¹®°ÇÁ¢¼ö ¼Û´Þ³»¿ª

°¨Á¤Æò°¡ÇöȲ

¸ñ·Ï ÁÖ¼Ò ±¸Á¶/¿ëµµ/´ëÁö±Ç ¸éÀû ºñ°í
´ëÁö±Ç
dz»êµ¿ 506 995.4ºÐÀÇ 19.93 19.93 §³
(6.03Æò)
°Ç¹°
dz»êµ¿ Çϳ²¹Ì»çÁö±¸±Ù»ó18¾¾4-2-1 1Ãþ101È£ ö±ÙÄÜÅ©¸®Æ®±¸Á¶ 45.45 §³
(13.75Æò)
1) À§Ä¡/µµ½ÃÁö¿ª/±Ù¸°»ó¾÷Áö¿ª/Áö±¸´ÜÀ§°èȹ±¸¿ª/³ë¼±¹ö½ºÁ¤·ùÀå/ö±ÙÄÜÅ©¸®Æ®±¸Á¶ ´õº¸±â
°¨Á¤Æò°¡ ¿äÇ×Ç¥
1)À§Ä¡ ¹× ÁÖÀ§È¯°æ
º»°ÇÀº °æ±âµµ Çϳ²½Ã dz»êµ¿ ¼ÒÀç "ÇÑȦÃʵîÇб³" ºÏµ¿Ãø Àαٿ¡ À§Ä¡Çϸç, ÁÖÀ§´Â ÀϹÝÀ½½ÄÁ¡ ¹× Çпø, ÀÇ¿ø µî Á¦¹Ý ±Ù¸°»ýȰ½Ã¼³ÀÌ ¼ÒÀçÇÔ.
2)±³Åë»óȲ
º»°Ç±îÁö Â÷·® Á¢±Ù °¡´ÉÇϸç, Àαٿ¡ ³ë¼±¹ö½ºÁ¤·ùÀåÀÌ ¼ÒÀçÇÏ´Â µî Àü¹ÝÀûÀÎ ±³Åë¿©°ÇÀº º¸ÅëÀÓ.
3)°Ç¹°ÀÇ ±¸Á¶
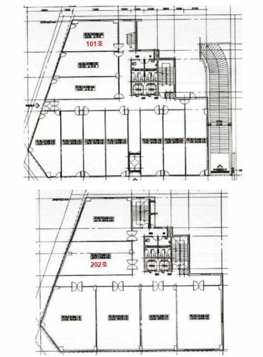
ö±ÙÄÜÅ©¸®Æ®±¸Á¶ (ö±Ù)ÄÜÅ©¸®Æ®ÁöºØ 5Ãþ °Ç¹° ³» 101È£, 202È£·Î¼­,
¿Üº® : ¿ÜÀå¼®Àç ¹× ÆÇ³Ú, µå¶óÀ̺ñÆ® ¸¶°¨ µî
³»º® : ¸ôÅ»À§ ÆäÀÎÆÃ ¸¶°¨ µî
âȣ : ¼¦½Ã ¹× °­È­À¯¸® µîÀÓ.
4)ÀÌ¿ë»óÅÂ
±Ù¸°»ýȰ½Ã¼³ÀÓ.
5)¼³ºñ³»¿ª
À§»ý ¹× ±Þ¹è¼ö¼³ºñ, ¼ÒÈ­Àü¼³ºñ, ½Â°­±â¼³ºñ µîÀÌ µÇ¾î ÀÖÀ½.
6)ÅäÁöÀÇ Çü»ó ¹× ÀÌ¿ë»óÅÂ
»ç´Ù¸®ÇüÀÇ ÅäÁö·Î¼­, »ó¾÷¿ë °ÇºÎÁöÀÓ.
7)ÀÎÁ¢ µµ·Î»óŵî
³²Ãø ¹× ºÏ¼­ÃøÀ¸·Î Æø ¾à 12¹ÌÅÍÀÇ Æ÷Àåµµ·Î¿Í °¢°¢ Á¢ÇÔ.
8)ÅäÁöÀÌ¿ë°èȹ ¹× Á¦ÇÑ»óÅÂ
±Ù¸°»ó¾÷Áö¿ª, µµ½ÃÁö¿ª, µµ½ÃÁö¿ª±âŸ(°ÇÃàÇѰ輱), Áö±¸´ÜÀ§°èȹ±¸¿ª(¹Ì»çÁö±¸), Áß·Î3·ù(Æø 12m-15m)(Á¢ÇÕ), °¡Ãà»çÀ°Á¦Çѱ¸¿ª(ÀüºÎÁ¦ÇÑÁö¿ª)<°¡ÃàºÐ´¢ÀÇ °ü¸® ¹× À̿뿡 °üÇÑ ¹ý·ü>, °ø°øÁÖÅÃÁö±¸<°ø°øÁÖÅà Ưº°¹ý>, »ó´ëº¸È£±¸¿ª(Çб³È¯°æÀ§»ýÁ¤È­±¸¿ª, ¼¼ºÎ³»¿ëÀº ±³À°Áö¿øÃ»¿¡ º°µµ È®Àοä[¹Ì»ç¶ûÀ¯Ä¡¿ø])<±³À°È¯°æ º¸È£¿¡ °üÇÑ ¹ý·ü>, ¹èÃâ½Ã¼³¼³Ä¡Á¦ÇÑÁö¿ª<¹°È¯°æº¸Àü¹ý>, °ú¹Ð¾ïÁ¦±Ç¿ª<¼öµµ±ÇÁ¤ºñ°èȹ¹ý>, °øÀå¼³¸³Á¦ÇÑÁö¿ª<¼öµµ¹ý>ÀÓ.
9)°øºÎ¿ÍÀÇ Â÷ÀÌ
¾øÀ½.
10)±âŸÂü°í»çÇ×(ÀÓ´ë°ü·Ê ¹× ±âŸ)
- ÀÓ´ë°ü°è µîÀº ¹Ì»óÀÓ.
- º»°Ç 101È£ÀÇ °æ¿ì º®Ã¼±¸ºÐ ¾øÀÌ ¿·È£ÀÎ 102È£¿Í Àϰý·Î ÀÌ¿ë ÁßÀÎ ¹Ù, °æ¸ÅÀÔÂû½Ã Âü°íÇϽñ⠹ٶ÷.
Âü°í
»çÇ×
ÀÎÁ¢ÇÑ 102È£¿Í °æ°è±¸ºÐ¾øÀÌ À½½ÄÁ¡À¸·Î ÀÌ¿ëÁßÀÓ

°ÇÃ๰ÇöȲ

¼ÒÀçÁö °æ±âµµ Çϳ²½Ã dz»êµ¿ 506¹øÁö
´ëÁö¸éÀû 995§³
(301.52Æò)
¿¬¸éÀû 3900.77§³
(1182.05Æò)
°ÇÃà¸éÀû 595.75§³
(180.53Æò)
¿ëÀû·ü»êÁ¤
¿¬¸éÀû
2978.75§³
(902.65Æò)
°ÇÆóÀ² 59.87% ¿ëÀû·ü 299.37%
Áö»óÃþ¼ö 5Ãþ ÁöÇÏÃþ¼ö 1Ãþ
ÁÖ¿ëµµ Á¦2Á¾±Ù¸°»ýȰ½Ã¼³ ±¸Á¶ ö±ÙÄÜÅ©¸®Æ®±¸Á¶
Âø°øÀÏÀÚ 2017.10.16 »ç¿ë½ÂÀÎÀÏÀÚ 2018.08.02
°ÇÃ๰Ãþº°ÇöȲ [º¸±â]


µî±âºÎµîº» ¿ä¾à(°Ç¹°)

  Á¢¼öÀÏÀÚ µî±â¸ñÀû/±Ç¸®ÀÚ ±Ç¸®±Ý¾× ±âÁØ
1 2018³â11¿ù26ÀÏ
¼ÒÀ¯±Ç
ȫOO
¼Ò¸ê
2 2018³â11¿ù26ÀÏ
¼ÒÀ¯±Ç
Â÷OO
¼Ò¸ê
3 2018³â11¿ù26ÀÏ
±ÙÀú´ç±Ç
(OOOO
576,000,000 ¼Ò¸ê±âÁØ
4 2024³â10¿ù21ÀÏ
°¡¾Ð·ù
(OOOO
500,000,000 ¼Ò¸ê
5 2024³â12¿ù17ÀÏ
°¡¾Ð·ù
ÇÑOOOO
610,594,767 ¼Ò¸ê
6 2024³â12¿ù18ÀÏ
°­Á¦°æ¸Å
±èOO
¼Ò¸ê
7 2025³â3¿ù13ÀÏ
¾Ð·ù
ÇÏOO
¼Ò¸ê
8 2025³â9¿ù2ÀÏ
ÀÓÀǰæ¸Å
¿¡OOOO
¼Ò¸ê

ÀÓÂ÷ÀÎÇöȲ (¹è´ç¿ä±¸Á¾±âÀÏ: 2025-03-12)


Á¶»çµÈ ÀÓÂ÷³»¿ªÀÌ ¾ø½À´Ï´Ù


¿©ÀÇÁÖ°æ¸Å Á¶¾ð ÇÑ ¸¶µð


ÁÖÀÇ»çÇ× (ÃÖ¼±¼øÀ§ ¼³Á¤ÀÏ: 2018.11.26.±ÙÀú´ç±Ç ¼³Á¤)

¸Å°¢À¸·Î ¼Ò¸êµÇÁö ¾Ê´Â µî±âºÎ±Ç¸®:
¸Å°¢À¸·Î ¼³Á¤µÈ °ÍÀ¸·Î º¸´Â Áö»ó±Ç:
ÀÎÁ¢ÇÑ 102È£¿Í °æ°è±¸ºÐ¾øÀÌ À½½ÄÁ¡À¸·Î ÀÌ¿ëÁßÀÓ
¡Ø¹Ì³³°ü¸®ºñ(°ø¿ë) Àμö¿©ºÎ¸¦ ÀÔÂû Àü¿¡ È®ÀÎÇϽñ⠹ٶø´Ï´Ù

 

Áö¿ªºÐ¼®

ÁöÇÏö¸í Á÷¼±°Å¸®

Çб³¸í ÀüÈ­¹øÈ£ ÁÖ¼Ò Á÷¼±°Å¸®

¹ý¿ø

¼ö¿øÁö¹æ¹ý¿ø ¼º³²Áö¿ø (131-43)°æ±âµµ ¼º³²½Ã ¼öÁ¤±¸ »ê¼º´ë·Î 451 (´Ü´ëµ¿)
´ëÇ¥ : 031)737-1558, ¾ß°£ : 031)737-1120
°üÇÒÁö¿ª : ¼º³²½Ã, ±¤ÁÖ½Ã, Çϳ²½Ã

µî±â¼Ò ¼ö¿øÁö¹æ¹ý¿ø ¼º³²Áö¿ø Çϳ²µî±â¼Ò (´ëÇ¥:1544-0773, ÆÑ½º:(031)791-3199, °æ±âµµ Çϳ²½Ã °Ë´Ü·Î 15 (õÇöµ¿ 576-6))
¼¼¹«¼­ °æ±â±¤ÁÖ¼¼¹«¼­ (´ëÇ¥:031-880-92, ÆÑ½º:031-769-0417, °æ±âµµ ±¤Áֽà ¹®È­·Î 127)

Àαٳ«ÂûÅë°è

±â°£ ¸Å°¢°Ç¼ö Æò±Õ°¨Á¤°¡
Æò±Õ¸Å°¢°¡
¸Å°¢°¡À²
Æò±ÕÀ¯Âû¼ö


º» °æ¸ÅÁ¤º¸´Â ¹ý¿øÀÚ·á¿Í ÀÏÄ¡Çϵµ·Ï ÇÏ¿´À¸³ª ±Ç¸®»çÇ׺¯µ¿, ÀÔ·ÂÂø¿À µîÀÇ ¿øÀÎÀ¸·Î »ç½Ç°ú ´Ù¸¦ ¼ö ÀÖ½À´Ï´Ù. ÀÌ¿ë¾à°ü¿¡ ÀǰЏéÃ¥Á¶°ÇÀ¸·Î Á¦°øµÊÀ» ¾Ë¸®¸ç, °æ¸ÅÀÔÂû½Ã ¹Ýµå½Ã °ü·Ã °øºÎ¸¦ ÀçÈ®ÀÎÇϽñ⠹ٶø´Ï´Ù. º¸´Ù Æí¸®ÇÑ °æ¸ÅÁ¤º¸ Á¦°øÀ» À§ÇØ Áö¼ÓÀûÀ¸·Î °³¼±ÇϰڽÀ´Ï´Ù. ÀÌ¿ëÇØ Áּż­ °¨»çÇÕ´Ï´Ù.