·Î±×ÀÎ
1118
´Ù¼¼´ë(ºô¶ó)
ÀÎõÁö¹æ¹ý¿ø ºÎõÁö¿ø
 °¨Á¤°¡172,000,000 ¿ø
 ÃÖÀú°¡(70%) 120,400,000 ¿ø
 º¸Áõ±Ý(10%) 12,040,000 ¿ø
 Ã»±¸¾×110,910,541 ¿ø
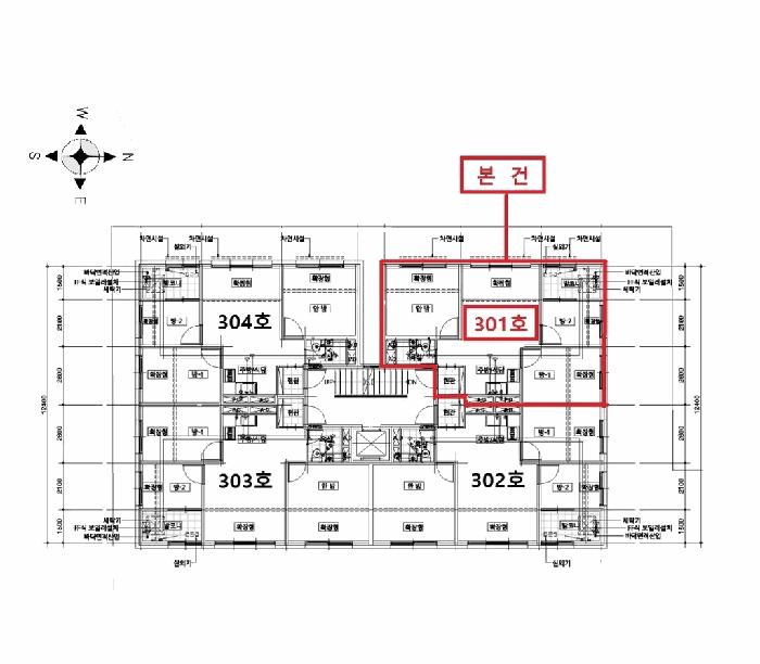
°æ±âµµ ºÎõ½Ã ¿ÀÁ¤±¸ »ïÁ¤µ¿ 305-42 ´ëÇöºô 3Ãþ301È£
»ç°Ç¹øÈ£ 2025Ÿ°æ4010
°æ¸ÅÁ¾·ùºÎµ¿»êÀÓÀǰæ¸Å
¸Å°¢´ë»óÅäÁö ¹× °Ç¹°Àϰý ¸Å°¢
¸Å°¢±âÀÏ    2026.04.02(¸ñ) 10:00 ÀÔÂû 40ÀÏÀü    
ÅäÁö¸éÀû29.24§³(8.85 Æò)
°Ç¹°¸éÀû36.68§³(11.09 Æò)
乫/¼ÒÀ¯ÀÚ±èOO / ¹èOO
ä±ÇÀÚÁÖOOO OOOOO OOO OOOOOOOOOOOOO OOOO
ÆäÀ̽ººÏ Æ®À§ÅÍ ±¸±Û+
īī¿À½ºÅ丮
īī¿ÀÅå sms¹®ÀÚº¸³»±â
 

±âÀϳ»¿ª

°æ°ú ³¯Â¥ Àú°¨ ÃÖÀú°¡ °á°ú
Á¢¼öÀÏ 2025-09-23 °æ¸ÅÁ¢¼ö
~1ÀÏ 
2025-09-24 °æ¸Å°³½Ã°áÁ¤
~78ÀÏ 
2025-12-10 ¹è´ç¿ä±¸Á¾±âÀÏ
~142ÀÏ 
2026-02-12 100%
172,000,000
À¯Âû
~191ÀÏ 
2026-04-02 70%
120,400,000
ÁøÇà
¹°°Ç¸í¼¼¼­ ÇöȲÁ¶»ç¼­ ¹®°ÇÁ¢¼ö ¼Û´Þ³»¿ª

°¨Á¤Æò°¡ÇöȲ

¸ñ·Ï ÁÖ¼Ò ±¸Á¶/¿ëµµ/´ëÁö±Ç ¸éÀû ºñ°í
´ëÁö±Ç
»ïÁ¤µ¿ 305-42 452ºÐÀÇ 29.24 29.24 §³
(8.85Æò)
°Ç¹°
»ïÁ¤µ¿ 305-42 3Ãþ301È£ ö±ÙÄÜÅ©¸®Æ®±¸Á¶ 36.675 §³
(11.09Æò)
1) À§Ä¡/Á¦2Á¾ÀϹÝÁÖ°ÅÁö¿ª/ÅäÁö°Å·¡°è¾à¿¡°üÇÑÇã°¡±¸¿ª/ÅäÁö°Å·¡Çã°¡±¸¿ª/³ë¼±¹ö½ºÁ¤·ùÀå/ö±ÙÄÜÅ©¸®Æ®±¸Á¶/µµ½Ã°¡½º ´õº¸±â
°¨Á¤Æò°¡ ¿äÇ×Ç¥
1)À§Ä¡ ¹× ÁÖÀ§È¯°æ
º»°ÇÀº °æ±âµµ ºÎõ½Ã ¿ÀÁ¤±¸ »ïÁ¤µ¿ ¼ÒÀç '»ïÁ¤ÃʵîÇб³' ³²µ¿Ãø Àαٿ¡ À§Ä¡Çϸç, ÁÖÀ§´Â ´Ù¼¼´ëÁÖÅà ¹× ´Üµ¶ÁÖÅÃ, ±Ù¸°»ýȰ½Ã¼³ µîÀÌ ¼ÒÀçÇÏ´ÂÁö¿ªÀ¸·Î¼­ ÁÖÀ§È¯°æÀº º¸ÅëÀÓ.
2)±³Åë»óȲ
º»°Ç±îÁö Â÷·® ÃâÀÔÀÌ °¡´ÉÇϸç, Àαٿ¡ ³ë¼±¹ö½ºÁ¤·ùÀåÀÌ ¼ÒÀçÇÏ´Â µî ±³Åë»óȲÀº º¸ÅëÀÓ.
3)°Ç¹°ÀÇ ±¸Á¶
ö±ÙÄÜÅ©¸®Æ®±¸Á¶ (ö±Ù)ÄÜÅ©¸®Æ®ÁöºØ 5Ãþ °Ç³» Á¦3Ãþ Á¦301È£·Î¼­, ¿Üº® : º®µ¹ºÙÀÓ ¸¶°¨. ³»º® : º®Áöµµ¹è ¹× ÀϺΠŸÀϺÙÀÓ ¸¶°¨. âȣ : ¼¦½Ãâȣ ¸¶°¨ µîÀÓ.
4)ÀÌ¿ë»óÅÂ
´Ù¼¼´ëÁÖÅÃÀ¸·Î ÀÌ¿ëÁßÀÓ.
5)¼³ºñ³»¿ª
±âº»ÀûÀÎ À§»ý¼³ºñ ¹× ±Þ, ¹è¼ö¼³ºñ, µµ½Ã°¡½º¼³ºñ, ³­¹æ¼³ºñ, ½Â°­±â¼³ºñ µîÀÌ µÇ¾îÀÖÀ½.
6)ÅäÁöÀÇ Çü»ó ¹× ÀÌ¿ë»óÅÂ
ÀÎÁ¢Áö ´ëºñ µî°íÆòźÇÑ À广ÇüÀÇ ÅäÁö·Î¼­, °øµ¿ÁÖÅà °ÇºÎÁö·Î ÀÌ¿ëÁßÀÓ.
7)ÀÎÁ¢ µµ·Î»óŵî
º»°Ç ³²ÃøÀ¸·Î ³ëÆø ¾à 8m ³»¿ÜÀÇ Æ÷Àåµµ·Î¿¡ Á¢ÇÔ.
8)ÅäÁöÀÌ¿ë°èȹ ¹× Á¦ÇÑ»óÅÂ
Á¦2Á¾ÀϹÝÁÖ°ÅÁö¿ª, ¼Ò·Î2·ù(Æø 8m~10m)(¼Ò·Î2-115È£¼±)(Á¢ÇÕ) °¡Ãà»çÀ°Á¦Çѱ¸¿ª(ÀüºÎÁ¦Çѱ¸ ¿ª)<°¡ÃàºÐ´¢ÀÇ °ü¸® ¹× À̿뿡 °üÇÑ ¹ý·ü>, Ç×°øÇ¥¸é<°øÇ׽ü³¹ý>, »ó´ëº¸È£±¸¿ª(³»µ¿Áß-±³ À°Ã»¹®ÀÇ)<±³À°È¯°æ º¸È£¿¡ °üÇÑ ¹ý·ü>, »ó´ëº¸È£±¸¿ª(»ó´ëº¸È£±¸¿ª(»ïÁ¤ÃÊ)[±âŸ»çÇ×ÀººÎõ ±³À°Áö¿øÃ»¿¡¹®ÀÇ]<±³À°È¯°æº¸È£¿¡°üÇѹý·ü>)<±³À°È¯°æ º¸È£¿¡ °üÇÑ ¹ý·ü>, °ú¹Ð¾ïÁ¦±Ç¿ª<¼ö µµ±ÇÁ¤ºñ°èȹ¹ý> ÅäÁö°Å·¡°è¾à¿¡°üÇÑÇã°¡±¸¿ª(¿Ü±¹ÀÎ µî ÅäÁö°Å·¡Çã°¡±¸¿ª, ´ë»ó:´Üµ¶,´Ù°¡ ±¸,¾ÆÆÄÆ®,¿¬¸³,´Ù¼¼´ë(2025.8.26.~2026.8.25.))
9)°øºÎ¿ÍÀÇ Â÷ÀÌ
¾øÀ½.
10)±âŸÂü°í»çÇ×(ÀÓ´ë°ü·Ê ¹× ±âŸ)
ÀÓ´ë°ü°è´Â ¹Ì»óÀÓ.

°ÇÃ๰ÇöȲ

¼ÒÀçÁö °æ±âµµ ºÎõ½Ã ¿ÀÁ¤±¸ »ïÁ¤µ¿ 305-42¹øÁö
´ëÁö¸éÀû 452§³
(136.97Æò)
¿¬¸éÀû 658.88§³
(199.66Æò)
°ÇÃà¸éÀû 250.04§³
(75.77Æò)
¿ëÀû·ü»êÁ¤
¿¬¸éÀû
658.88§³
(199.66Æò)
°ÇÆóÀ² 55.32% ¿ëÀû·ü 145.77%
Áö»óÃþ¼ö 5Ãþ ÁöÇÏÃþ¼ö  
ÁÖ¿ëµµ °øµ¿ÁÖÅà ±¸Á¶ ö±ÙÄÜÅ©¸®Æ®±¸Á¶
Âø°øÀÏÀÚ 2018.02.07 »ç¿ë½ÂÀÎÀÏÀÚ 2018.08.16
°ÇÃ๰Ãþº°ÇöȲ [º¸±â]


µî±âºÎµîº» ¿ä¾à(°Ç¹°)

  Á¢¼öÀÏÀÚ µî±â¸ñÀû/±Ç¸®ÀÚ ±Ç¸®±Ý¾× ±âÁØ
1 2019³â2¿ù15ÀÏ
¼ÒÀ¯±Ç
¹èOO
¼Ò¸ê
2 2019³â2¿ù15ÀÏ
±ÙÀú´ç±Ç
(OOOO
142,800,000 ¼Ò¸ê±âÁØ
3 2025³â1¿ù22ÀÏ
°¡¾Ð·ù
½ÅOOOO
190,000,000 ¼Ò¸ê
4 2025³â4¿ù29ÀÏ
°¡¾Ð·ù
(OOOO
71,500,000 ¼Ò¸ê
5 2025³â5¿ù28ÀÏ
¾Ð·ù
±¹
¼Ò¸ê
6 2025³â6¿ù20ÀÏ
°¡¾Ð·ù
ÁßOOOO
79,669,116 ¼Ò¸ê
7 2025³â7¿ù22ÀÏ
¾Ð·ù
±¹OOOO
¼Ò¸ê
8 2025³â9¿ù24ÀÏ
ÀÓÀǰæ¸Å
(OOOO
¼Ò¸ê

ÀÓÂ÷ÀÎÇöȲ (¹è´ç¿ä±¸Á¾±âÀÏ: 2025-12-10)


Á¶»çµÈ ÀÓÂ÷³»¿ªÀÌ ¾ø½À´Ï´Ù


¿©ÀÇÁÖ°æ¸Å Á¶¾ð ÇÑ ¸¶µð


ÁÖÀÇ»çÇ× (ÃÖ¼±¼øÀ§ ¼³Á¤ÀÏ: 2019.2.15. ±ÙÀú´ç±Ç ¼³Á¤)

¸Å°¢À¸·Î ¼Ò¸êµÇÁö ¾Ê´Â µî±âºÎ±Ç¸®:
¸Å°¢À¸·Î ¼³Á¤µÈ °ÍÀ¸·Î º¸´Â Áö»ó±Ç:
¡Ø¹Ì³³°ü¸®ºñ(°ø¿ë) Àμö¿©ºÎ¸¦ ÀÔÂû Àü¿¡ È®ÀÎÇϽñ⠹ٶø´Ï´Ù

 

Áö¿ªºÐ¼®

ÁöÇÏö¸í Á÷¼±°Å¸®

Çб³¸í ÀüÈ­¹øÈ£ ÁÖ¼Ò Á÷¼±°Å¸®

¹ý¿ø

ÀÎõÁö¹æ¹ý¿ø ºÎõÁö¿ø (146-02)°æ±âµµ ºÎõ½Ã ¿ø¹Ì±¸ »óÀÏ·Î 129(»óµ¿)
´ëÇ¥ : 032)320-1114, ¹Î¿ø : 032)320-1234
°üÇÒÁö¿ª : ºÎõ½Ã, ±èÆ÷½Ã

µî±â¼Ò ÀÎõÁö¹æ¹ý¿ø ºÎõÁö¿ø µî±â°ú (´ëÇ¥:1544-0773, ÆÑ½º:(032)320-1484, 320-1485, °æ±âµµ ºÎõ½Ã »óÀÏ·Î 129 (»óµ¿ 445-1))
¼¼¹«¼­ ¼¼¹«¼­ (´ëÇ¥:, ÆÑ½º:, )

Àαٳ«ÂûÅë°è

±â°£ ¸Å°¢°Ç¼ö Æò±Õ°¨Á¤°¡
Æò±Õ¸Å°¢°¡
¸Å°¢°¡À²
Æò±ÕÀ¯Âû¼ö


º» °æ¸ÅÁ¤º¸´Â ¹ý¿øÀÚ·á¿Í ÀÏÄ¡Çϵµ·Ï ÇÏ¿´À¸³ª ±Ç¸®»çÇ׺¯µ¿, ÀÔ·ÂÂø¿À µîÀÇ ¿øÀÎÀ¸·Î »ç½Ç°ú ´Ù¸¦ ¼ö ÀÖ½À´Ï´Ù. ÀÌ¿ë¾à°ü¿¡ ÀǰЏéÃ¥Á¶°ÇÀ¸·Î Á¦°øµÊÀ» ¾Ë¸®¸ç, °æ¸ÅÀÔÂû½Ã ¹Ýµå½Ã °ü·Ã °øºÎ¸¦ ÀçÈ®ÀÎÇϽñ⠹ٶø´Ï´Ù. º¸´Ù Æí¸®ÇÑ °æ¸ÅÁ¤º¸ Á¦°øÀ» À§ÇØ Áö¼ÓÀûÀ¸·Î °³¼±ÇϰڽÀ´Ï´Ù. ÀÌ¿ëÇØ Áּż­ °¨»çÇÕ´Ï´Ù.