·Î±×ÀÎ
1264
´Ù¼¼´ë(ºô¶ó)
ÀÎõÁö¹æ¹ý¿ø
 °¨Á¤°¡50,000,000 ¿ø
 ÃÖÀú°¡(70%) 35,000,000 ¿ø
 º¸Áõ±Ý(10%) 3,500,000 ¿ø
 Ã»±¸¾×50,000,000 ¿ø
ÀÎõ±¤¿ª½Ã ¹ÌÃßȦ±¸ ÇÐÀ͵¿ 306-54 º°Àå±×¸°ºô¶ó ÁöÇÏÃþ02È£
»ç°Ç¹øÈ£ 2025Ÿ°æ513501
°æ¸ÅÁ¾·ùºÎµ¿»ê°­Á¦°æ¸Å
¸Å°¢´ë»óÅäÁö ¹× °Ç¹°Àϰý ¸Å°¢
¸Å°¢±âÀÏ    2026.03.25(¼ö) 10:00 (¿À´Ã ÀÔÂû)    
ÅäÁö¸éÀû12.20§³(3.69 Æò)
°Ç¹°¸éÀû37.18§³(11.25 Æò)
乫/¼ÒÀ¯ÀÚÁ¤OO / Á¤OO
ä±ÇÀÚÁÖOOOOOOO
ÆäÀ̽ººÏ Æ®À§ÅÍ ±¸±Û+
īī¿À½ºÅ丮
īī¿ÀÅå sms¹®ÀÚº¸³»±â
 

±âÀϳ»¿ª

°æ°ú ³¯Â¥ Àú°¨ ÃÖÀú°¡ °á°ú
Á¢¼öÀÏ 2025-10-29 °æ¸ÅÁ¢¼ö
~2ÀÏ 
2025-10-31 °æ¸Å°³½Ã°áÁ¤
~68ÀÏ 
2026-01-05 ¹è´ç¿ä±¸Á¾±âÀÏ
~104ÀÏ 
2026-02-10 100%
50,000,000
À¯Âû
~147ÀÏ 
2026-03-25 70%
35,000,000
ÁøÇà
¹°°Ç¸í¼¼¼­ ÇöȲÁ¶»ç¼­ ¹®°ÇÁ¢¼ö ¼Û´Þ³»¿ª

°¨Á¤Æò°¡ÇöȲ

¸ñ·Ï ÁÖ¼Ò ±¸Á¶/¿ëµµ/´ëÁö±Ç ¸éÀû ºñ°í
´ëÁö±Ç
ÇÐÀ͵¿ 306-54 122ºÐÀÇ 12.2 12.2 §³
(3.69Æò)
°Ç¹°
ÇÐÀ͵¿ 306-54 ÁöÇÏÃþ02È£ ö±ÙÄÜÅ©¸®Æ®Á¶ 37.18 §³
(11.25Æò)
1) À§Ä¡/Á¦3Á¾ÀϹÝÁÖ°ÅÁö¿ª/ÅäÁö°Å·¡°è¾à¿¡°üÇÑÇã°¡±¸¿ª/¹ö½ºÁ¤·ùÀå/Â÷·®ÀÇ Á¢±ÙÀÌ °¡´É/ö±ÙÄÜÅ©¸®Æ®Á¶/½½·¡ºêÁöºØ ´õº¸±â
°¨Á¤Æò°¡ ¿äÇ×Ç¥
1)À§Ä¡ ¹× ÁÖÀ§È¯°æ
º»°ÇÀº ÀÎõ±¤¿ª½Ã ¹ÌÃßȦ±¸ ÇÐÀ͵¿ ¼ÒÀç "ÀÎÇÏ»ç´ëºÎ°í" ºÏµ¿Ãø Àαٿ¡ À§Ä¡ÇÏ°í ºÎ±ÙÀº ´Ù¼¼´ëÁÖÅÃ,¿¬¸³ÁÖÅà µîÀÌ ¹ÐÁýµÇ¾îÀÖ´Â Áö¿ªÀÓ.
2)±³Åë»óȲ
º»°Ç ÀαٱîÁö Â÷·®ÀÇ Á¢±ÙÀÌ °¡´ÉÇϰí Àαٿ¡ ¹ö½ºÁ¤·ùÀåÀÌ ¼ÒÀçÇϰí ÀÖ¾î Á¦¹Ý±³Åë»çÁ¤Àº º¸Åë½Ã µÊ.
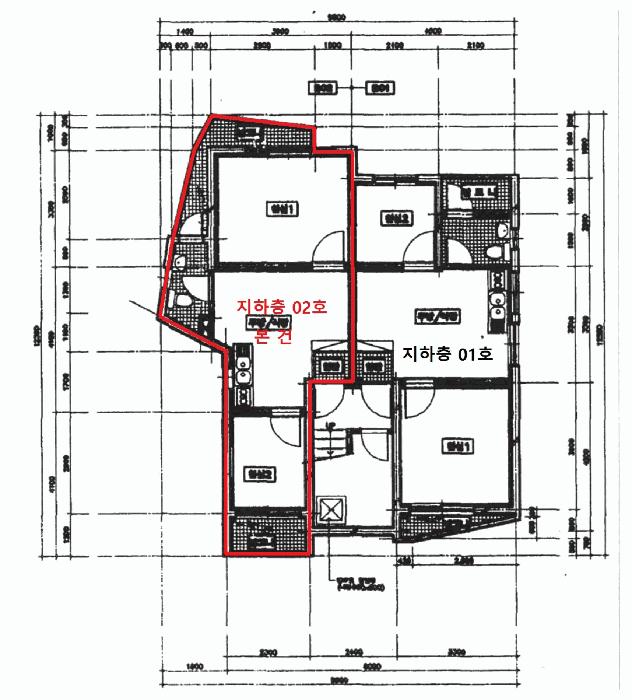
3)°Ç¹°ÀÇ ±¸Á¶
1995³â 11¿ù 25ÀÏ »ç¿ë½ÂÀÎÀ» ¹ÞÀº ö±ÙÄÜÅ©¸®Æ®Á¶ ½½·¡ºêÁöºØ 4Ãþ°ÇÁß Á¦ÁöÇÏÃþ Á¦02È£·Î ¿Üº®:ÆäÀÎÆÃ¸¶°¨µî ³»º®:º®Áö ¹× ÀϺΟÀϸ¶°¨µî âȣ:»þ½Ãâȣµî
4)ÀÌ¿ë»óÅÂ
´Ù¼¼´ëÁÖÅÃÀ¸·Î ÀÌ¿ëµÇ°í ÀÖÀ½.
5)¼³ºñ³»¿ª
À§»ý¼³ºñ,»óÇϼöµµ¼³ºñ,³­¹æ¼³ºñµî µÇ¾îÀÖÀ½.
6)ÅäÁöÀÇ Çü»ó ¹× ÀÌ¿ë»óÅÂ
1ÇÊÁö ´ëü·Î »ç´Ù¸®²Ã ¸ð¾çÀÇ ÅäÁö·Î ´Ù¼¼´ëÁÖÅÃÀÇ °ÇºÎÁö·Î ÀÌ¿ëµÇ°í ÀÖÀ½.
7)ÀÎÁ¢ µµ·Î»óŵî
³²ÃøÀ¸·Î º¸ÇàÀÚÅëÇàÀÌ °¡´ÉÇÑ µµ·Î¿Í Á¢Çϰí ÀÖÀ½.
8)ÅäÁöÀÌ¿ë°èȹ ¹× Á¦ÇÑ»óÅÂ
Á¦3Á¾ÀϹÝÁÖ°ÅÁö¿ª(2016-12-26),°¡Ãà»çÀ°Á¦Çѱ¸¿ª(ÀÎõ±¤¿ª½Ã ¹ÌÃßȦ±¸ °¡Ãà»çÀ°Á¦ÇÑ¿¡ °üÇÑ Á¶·Ê[2018. 7. 1.])<°¡ÃàºÐ´¢ÀÇ °ü¸® ¹× À̿뿡 °üÇÑ ¹ý·ü>, »ó´ëº¸È£±¸¿ª(³²ºÎ ±³À°Ã»2009-175)<±³À°È¯°æ º¸È£¿¡ °üÇÑ ¹ý·ü>, ÁÖ°Åȯ°æ°³¼±Áö±¸(»ç¾÷¿Ï·á-2006.12.31) <µµ½ÃÀú¼ÒµæÁÖ¹ÎÀÇÁÖ°Åȯ°æ°³¼±À»À§ÇÑÀÓ½ÃÁ¶Ä¡¹ý>,°ú¹Ð¾ïÁ¦±Ç¿ª<¼öµµ±ÇÁ¤ºñ°èȹ¹ý>, ÅäÁö°Å·¡°è¾à¿¡°üÇÑÇã°¡±¸¿ª(2025-08-21)(¿Ü±¹ÀÎ µî¿¡ ÇÑÇÔ(ÁöÁ¤±â°£: 2025. 8. 26. ~2026. 8. 25.))).
9)°øºÎ¿ÍÀÇ Â÷ÀÌ
ÇØ´ç»çÇ×¾øÀ½.
10)±âŸÂü°í»çÇ×(ÀÓ´ë°ü·Ê ¹× ±âŸ)
°¡.º»°Ç ÇöÀ广¹®ÇÏ¿´À¸³ª °ÅÁÖÀÎ µî ÀÌÇØ°ü°èÀÎÀÇ ºÎÀç°ü°è·Î ³»ºÎ±¸Á¶ µîÀº °øºÎ ¹× Àα٠À¯»ç¹°°ÇÀÇ Æò°¡Àü·Ê µîÀ» Âü°íÇÏ¿© ÀϹÝÀûÀÎ »ç¾çÀ» ±âÁØÀ¸·Î Æò°¡ÇÏ¿´À¸¸ç ÀÓ´ë¿©ºÎ´Â ÆÄ¾ÇÇÏÁö ¸øÇÏ¿´´Â ¹Ù °æ¸ÅÁøÇà½Ã Âü°í¹Ù¶ø´Ï´Ù. ³ª.º»°Ç µî±â»çÇ×ÀüºÎÁõ¸í¼­»ó ¾Æ·¡¿Í °°ÀÌ ÀÓÂ÷±Çµî±â¸í·ÉÀÌ µîÀçµÇ¾îÀÖÀ½. 2024Ä«ÀÓ968(2024.04.19) ÀÓÂ÷º¸Áõ±Ý: 50,000,000¿ø ¹ü À§: ÁöÇÏÃþ 02È£ 37.18Á¦°ö¹ÌÅÍ ÀüºÎ ÀÓ´ëÂ÷°è¾àÀÏÀÚ: 2022.05.28 Áֹεî·ÏÀÏÀÚ: 2022.06.16 Á¡À¯°³½ÃÀÏÀÚ: 2022.06.16 È®Á¤ÀÏÀÚ: 2022.06.16 ÀÓÂ÷±ÇÀÚ: ÃÖ**(400608-*******),ÀÎõ ¹ÌÃßȦ±¸ Àç³ÑÀ̱æ51¹ø±æ 7-5,ºñ02È£
Âü°í
»çÇ×

- º»°ÇÀº ÀÎõ±¤¿ª½Ã ¹ÌÃßȦ±¸ ÇÐÀ͵¿ ¼ÒÀç `ÀÎÇÏ»ç´ëºÎ¼ÓÁß.°íµîÇб³` Àαٿ¡ À§Ä¡ÇÑ ´Ù¼¼´ëÁÖÅÃÀ¸·Î ÁÖÀ§´Â ´Ù¼¼´ë, ´Ù°¡±¸ÁÖÅà ¹ÐÁýÁö¿ªÀÓ - ¼¼´ë¿ìÆíÇÔ¿¡´Â °è¾àÀÚ ºÒ¸íÀÇ Àü±â¿ä±Ýû±¸¼­°¡ ÀÖÀ½

°ÇÃ๰ÇöȲ

¼ÒÀçÁö ÀÎõ±¤¿ª½Ã ¹ÌÃßȦ±¸ ÇÐÀ͵¿ 306-54¹øÁö
´ëÁö¸éÀû 120.93§³
(36.65Æò)
¿¬¸éÀû 419.62§³
(127.16Æò)
°ÇÃà¸éÀû 84.23§³
(25.52Æò)
¿ëÀû·ü»êÁ¤
¿¬¸éÀû
336.48§³
(101.96Æò)
°ÇÆóÀ² 69.65% ¿ëÀû·ü 278.24%
Áö»óÃþ¼ö 4Ãþ ÁöÇÏÃþ¼ö 1Ãþ
ÁÖ¿ëµµ °øµ¿ÁÖÅà ±¸Á¶ ö±ÙÄÜÅ©¸®Æ®±¸Á¶
Âø°øÀÏÀÚ 1995.06.12 »ç¿ë½ÂÀÎÀÏÀÚ 1995.11.25
°ÇÃ๰Ãþº°ÇöȲ [º¸±â]


±¹ÅäºÎ½Ç°Å·¡°¡ ÀÎõ±¤¿ª½Ã ¹ÌÃßȦ±¸ ÇÐÀ͵¿

¡Ü ¸Å¸Å

¸éÀû(§³), ±Ý¾×(¸¸¿ø)

¡Ü Àü¼¼

¸éÀû(§³), ±Ý¾×(¸¸¿ø)

°è¾àÀϰǹ°¸íĪÃþ¿¬¸éÀûº¸Áõ±Ý¿ù¼¼°ÇÃà
26.03.12±¤¸íºô¶ó(306-24)135.283,8401994
26.03.07ÇÑÀϺô¶ó(675-13)338.52500401993
26.03.05ÇÑÀϺô¶ó134.984,20001995
26.03.04¹Ì¸¢¾ÆÆ®ºô¶ó103µ¿148.459,9001995
26.03.03±¤¸íºô¶ó336.146,0001996
¢Ñ ´õº¸±â

µî±âºÎµîº» ¿ä¾à(°Ç¹°)

  Á¢¼öÀÏÀÚ µî±â¸ñÀû/±Ç¸®ÀÚ ±Ç¸®±Ý¾× ±âÁØ
1 2022³â7¿ù7ÀÏ
¼ÒÀ¯±Ç
Á¤OO
¼Ò¸ê
2 2023³â2¿ù3ÀÏ
¾Ð·ù
±¹
¼Ò¸ê±âÁØ
3 2024³â4¿ù23ÀÏ
ÀÓÂ÷±Ç¼³Á¤
ÃÖOO
50,000,000 ¼Ò¸ê
4 2025³â10¿ù31ÀÏ
°­Á¦°æ¸Å
ÁÖOOOO
¼Ò¸ê

ÀÓÂ÷ÀÎÇöȲ (¹è´ç¿ä±¸Á¾±âÀÏ: 2026-01-05)

ÀÓÂ÷ÀÎ ¿ëµµ/Á¡À¯ º¸Áõ±Ý/¿ù¼¼ ´ëÇ×·Â
ÀüÀÔÀÏ/È®Á¤ÀÏ ¹è´ç¿ä±¸ ºñ°í
ÁÖOOOOOOOOOOOOOOO ÀüºÎ 50,000,000
O
2022. 6. 16.
2022. 6. 16.
2025. 12. 31. 2022. 6. 16.~2024. 6. 15.
ÃÖOO 50,000,000
O
2022. 6. 16.
2022. 6. 16.
2022. 6. 16.~
ºñ°í
(¸Å°¢¹°°Ç
¸í¼¼¼­)
- ÃÖ¼ö¿Á: ÁÖÅÃÀÓÂ÷±Çµî±â±ÇÀڷμ­ ÁÖÅÃÀÓÂ÷±Çµî±âÀÏÀº 2024. 4. 23. ÀÓ - ÁÖÅõµ½Ãº¸Áõ°ø»ç(ÀÓÂ÷ÀÎ ÃÖ¼ö¿Á): °æ¸Å½Åû±ÇÀÚÀ̸ç ÁÖÅÃÀÓ´ëÂ÷º¸È£¹ý Á¦3Á¶ÀÇ2 Á¦7Ç× Á¦9È£ÀÇ ±â°üÀ¸·Î ÀÓÂ÷ÀÎ ÃÖ¼ö¿ÁÀ¸·Î

¿©ÀÇÁÖ°æ¸Å Á¶¾ð ÇÑ ¸¶µð

¼±¼øÀ§ ÀÓÂ÷±Çµî±â°¡ µÇ¾î ÀÖ½À´Ï´Ù
´ëÇ×·ÂÀÌ ÀÖ´Â ¼±¼øÀ§ ÀÓÂ÷±Çµî±â ±Ç¸®ÀÚ°¡ ¹è´çÀ» Àü¾× ¹ÞÁö ¸øÇÒ °æ¿ì ³«ÂûÀÚ°¡ ÀÜ¿© º¸Áõ±ÝÀ» ÀμöÇØ¾ßÇÏ´Â °æ¿ìµµ ÀÖ½À´Ï´Ù.

ÁÖÀÇ»çÇ× (ÃÖ¼±¼øÀ§ ¼³Á¤ÀÏ: 2023. 2. 3. ¾Ð·ù ¼³Á¤)

¸Å°¢À¸·Î ¼Ò¸êµÇÁö ¾Ê´Â µî±âºÎ±Ç¸®: À»±¸ ¼øÀ§ 8¹ø ÁÖÅÃÀÓÂ÷±Çµî±â(´Ù¸¸ ÁÖÅõµ½Ãº¸Áõ°ø»çÀÇ ¸»¼Òµ¿ÀÇ È®¾à¼­°¡ Á¦ÃâµÊ)
¸Å°¢À¸·Î ¼³Á¤µÈ °ÍÀ¸·Î º¸´Â Áö»ó±Ç:
2025.12.30 ä±ÇÀÚ ¼Ò¼Û´ë¸®ÀÎ ¹ýOOO OOOOOO ¼Û´ÞÀå¼Ò º¯°æ½Åû¼­(乫ÀÚ) Á¦Ãâ
2026.01.06 ä±ÇÀÚ ÁÖOOOOOOO ´ëÇ×·ÂÆ÷±â È®¾à ¹× ¸Å°¢±Ý¾×º¯°æ½Åû Á¦Ãâ
¡Ø¹Ì³³°ü¸®ºñ(°ø¿ë) Àμö¿©ºÎ¸¦ ÀÔÂû Àü¿¡ È®ÀÎÇϽñ⠹ٶø´Ï´Ù

 

Áö¿ªºÐ¼®

ÁöÇÏö¸í Á÷¼±°Å¸®

Çб³¸í ÀüÈ­¹øÈ£ ÁÖ¼Ò Á÷¼±°Å¸®

¹ý¿ø

ÀÎõÁö¹æ¹ý¿ø (222-20)ÀÎõ±¤¿ª½Ã ¹ÌÃßȦ±¸ ¼Ò¼º·Î 163¹ø±æ 17(ÇÐÀ͵¿)
´ëÇ¥ : 032)860-1113~4
°üÇÒÁö¿ª : Áß±¸, µ¿±¸, ³²±¸, ¿¬¼ö±¸, ³²µ¿±¸, ºÎÆò±¸, °è¾ç±¸, ¼­±¸, ¿ËÁø±º, °­È­±º

µî±â¼Ò ÀÎõÁö¹æ¹ý¿ø º»¿ø µî±â±¹ (´ëÇ¥:1544-0773, ÆÑ½º:(032)620-9099, ÀÎõ±¤¿ª½Ã ¹ÌÃßȦ±¸ °æ¿ø´ë·Î 881(Á־ȵ¿ 983))
¼¼¹«¼­ ÀÎõ¼¼¹«¼­ (´ëÇ¥:032-770-02, ÆÑ½º:032-777-8104, ÀÎõ±¤¿ª½Ã µ¿±¸ ¿ì°¢·Î 75 (⿵µ¿))

Àαٳ«ÂûÅë°è

±â°£ ¸Å°¢°Ç¼ö Æò±Õ°¨Á¤°¡
Æò±Õ¸Å°¢°¡
¸Å°¢°¡À²
Æò±ÕÀ¯Âû¼ö


º» °æ¸ÅÁ¤º¸´Â ¹ý¿øÀÚ·á¿Í ÀÏÄ¡Çϵµ·Ï ÇÏ¿´À¸³ª ±Ç¸®»çÇ׺¯µ¿, ÀÔ·ÂÂø¿À µîÀÇ ¿øÀÎÀ¸·Î »ç½Ç°ú ´Ù¸¦ ¼ö ÀÖ½À´Ï´Ù. ÀÌ¿ë¾à°ü¿¡ ÀǰЏéÃ¥Á¶°ÇÀ¸·Î Á¦°øµÊÀ» ¾Ë¸®¸ç, °æ¸ÅÀÔÂû½Ã ¹Ýµå½Ã °ü·Ã °øºÎ¸¦ ÀçÈ®ÀÎÇϽñ⠹ٶø´Ï´Ù. º¸´Ù Æí¸®ÇÑ °æ¸ÅÁ¤º¸ Á¦°øÀ» À§ÇØ Áö¼ÓÀûÀ¸·Î °³¼±ÇϰڽÀ´Ï´Ù. ÀÌ¿ëÇØ Áּż­ °¨»çÇÕ´Ï´Ù.