·Î±×ÀÎ
1173
¾ÆÆÄÆ®
ÀÎõÁö¹æ¹ý¿ø
 °¨Á¤°¡79,000,000 ¿ø
 ÃÖÀú°¡(70%) 55,300,000 ¿ø
 º¸Áõ±Ý(10%) 5,530,000 ¿ø
 Ã»±¸¾×86,000,000 ¿ø
ÀÎõ±¤¿ª½Ã ºÎÆò±¸ ºÎÆò´ë·Î104¹ø±æ 36, 5Ãþ503È£ (ºÎÆòµ¿,½Å´ë¸²¾ÆÆÄÆ®)
ÀÎõ±¤¿ª½Ã ºÎÆò±¸ ºÎÆòµ¿ 438-26
»ç°Ç¹øÈ£ 2024Ÿ°æ568019
°æ¸ÅÁ¾·ùºÎµ¿»ê°­Á¦°æ¸Å
¸Å°¢´ë»óÅäÁö ¹× °Ç¹°Àϰý ¸Å°¢
¸Å°¢±âÀÏ    2026.03.24(È­) 10:00 ÀÔÂû 21ÀÏÀü    
ÅäÁö¸éÀû10.02§³(3.03 Æò)
°Ç¹°¸éÀû27.19§³(8.22 Æò)
乫/¼ÒÀ¯ÀÚ±èOO / ±èOO
ä±ÇÀÚÃÖOO
ÆäÀ̽ººÏ Æ®À§ÅÍ ±¸±Û+
īī¿À½ºÅ丮
īī¿ÀÅå sms¹®ÀÚº¸³»±â
 

±âÀϳ»¿ª

°æ°ú ³¯Â¥ Àú°¨ ÃÖÀú°¡ °á°ú
Á¢¼öÀÏ 2024-10-17 °æ¸ÅÁ¢¼ö
~1ÀÏ 
2024-10-18 °æ¸Å°³½Ã°áÁ¤
~84ÀÏ 
2025-01-09 ¹è´ç¿ä±¸Á¾±âÀÏ
~480ÀÏ 
2026-02-09 100%
79,000,000
À¯Âû
~523ÀÏ 
2026-03-24 70%
55,300,000
ÁøÇà
¹°°Ç¸í¼¼¼­ ÇöȲÁ¶»ç¼­ ¹®°ÇÁ¢¼ö ¼Û´Þ³»¿ª

°¨Á¤Æò°¡ÇöȲ

¸ñ·Ï ÁÖ¼Ò ±¸Á¶/¿ëµµ/´ëÁö±Ç ¸éÀû ºñ°í
´ëÁö±Ç
ºÎÆòµ¿ 438-26 267.2ºÐÀÇ 10.02 10.02 §³
(3.03Æò)
°Ç¹°
ºÎÆòµ¿ 438-26 5Ãþ503È£ ö±ÙÄÜÅ©¸®Æ®Á¶ 27.19 §³
(8.22Æò)
1) À§Ä¡/ÀϹݻó¾÷Áö¿ª/½Ã³»¹ö½ºÁ¤·ùÀå/ÁöÇÏö/ö±ÙÄÜÅ©¸®Æ®±¸Á¶ ´õº¸±â
°¨Á¤Æò°¡ ¿äÇ×Ç¥
1)À§Ä¡ ¹× ÁÖÀ§È¯°æ
ºÎÆò±¸ ºÎÆòµ¿ ¼ÒÀç "ºÎÆòµ¿ÃʵîÇб³" ºÏÃøÀαٿ¡ À§Ä¡ÇÏ´Â ¾ÆÆÄÆ® "½Å´ë¸²¾ÆÆÄÆ®" Á¦5Ãþ Á¦503È£·Î¼­ ÀαÙÀº ´Ù¼¼´ëÁÖÅà À§ÁÖÀÇ ÁÖÅÃÁö´ëÀÓ.
2)±³Åë»óȲ
ºÎÆò±¸ Áß½ÉÁö¿ª¿¡ À§Ä¡ÇÏ°í ¼­ÃøÀαٿ¡ ÀÎõÁöÇÏö1È£¼± "ºÎÆò½ÃÀ忪", ºÏÃø ±Ù°Å¸®¿¡ ÁöÇÏö7È£¼± "ºÎÆò±¸Ã»¿ª"ÀÌ À§Ä¡ÇÏ¸ç ½Ã³»¹ö½ºÁ¤·ùÀåÀÌ ÀÎÁ¢ÇÏ´Â µî ´ëÁß±³Åë»óȲ Æí¸®ÇÑ Áö¿ªÀÓ.
3)°Ç¹°ÀÇ ±¸Á¶
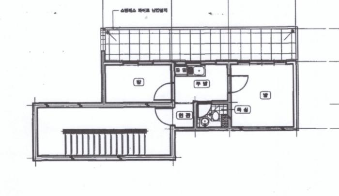
ö±ÙÄÜÅ©¸®Æ®±¸Á¶ 5Ãþ±Ô¸ðÀÇ ¿ÀÇǽºÅÚ ¹× ¾ÆÆÄÆ® º¹ÇÕ¿ëµµ °Ç¹° ³» Á¦5Ãþ Á¦503È£·Î¼­

¿Üº® : »çÀ̵ù ¹× ´Ü¿­Àç ¸¶°¨
âȣ : ¾Ë¹Ì´½ ¹× ÇÁ¶ó½ºÆ½ âȣÀÓ.
4)ÀÌ¿ë»óÅÂ
¾ÆÆÄÆ®·Î ÀÌ¿ëÁßÀÓ.
5)¼³ºñ³»¿ª
ÀϹÝÀûÀÎ »óÇϼöµµ¼³ºñ ¹× À§»ý¼³ºñ °®Ãß°í ÀÖÀ½.
6)ÅäÁöÀÇ Çü»ó ¹× ÀÌ¿ë»óÅÂ
¼¼ÀåÇü ÅäÁö·Î¼­ ÀÎÁ¢ÅäÁö¿Í µî°íÆòźÇÏ¸ç º¹ÇÕ¿ëµµÀÇ °Ç¹°ºÎÁö·Î ÀÌ¿ëÁßÀÓ.
7)ÀÎÁ¢ µµ·Î»óŵî
ºÏÃøÀ¸·Î ¾Æ½ºÄÜÆ÷Àå ¼¼·Î¿¡ Á¢ÇÔ.
8)ÅäÁöÀÌ¿ë°èȹ ¹× Á¦ÇÑ»óÅÂ
ÀϹݻó¾÷Áö¿ª, ¹æÈ­Áö±¸, °¡·Î±¸¿ªº° ÃÖ°í³ôÀÌ Á¦ÇÑÁö¿ª(°ÇÃà¹ý), »ó´ëº¸È£±¸¿ª(±³À°È¯°æ º¸È£¿¡ °üÇÑ ¹ý·ü), °ú¹Ð¾ïÁ¦±Ç¿ª(¼öµµ±ÇÁ¤ºñ°èȹ¹ý) ³» ÅäÁöÀÓ.
9)°øºÎ¿ÍÀÇ Â÷ÀÌ
¾øÀ½.
10)±âŸÂü°í»çÇ×(ÀÓ´ë°ü·Ê ¹× ±âŸ)
ÀÓ´ëÂ÷°ü°è ¹Ì»óÀÓ.
Âü°í
»çÇ×

º» °ÇÀº 5Ãþ °øµ¿ÁÖÅÃ(¾ÆÆÄÆ®)ÀÓ.

°ÇÃ๰ÇöȲ

¼ÒÀçÁö ÀÎõ±¤¿ª½Ã ºÎÆò±¸ ºÎÆòµ¿ 438-26¹øÁö
´ëÁö¸éÀû 267.2§³
(80.97Æò)
¿¬¸éÀû 810.2§³
(245.52Æò)
°ÇÃà¸éÀû 201.86§³
(61.17Æò)
¿ëÀû·ü»êÁ¤
¿¬¸éÀû
810.2§³
(245.52Æò)
°ÇÆóÀ² 75.55% ¿ëÀû·ü 303.22%
Áö»óÃþ¼ö 5Ãþ ÁöÇÏÃþ¼ö  
ÁÖ¿ëµµ °øµ¿ÁÖÅà ±¸Á¶ ö±ÙÄÜÅ©¸®Æ®±¸Á¶
Âø°øÀÏÀÚ 2002.04.17 »ç¿ë½ÂÀÎÀÏÀÚ 2002.08.01
°ÇÃ๰Ãþº°ÇöȲ [º¸±â]


µî±âºÎµîº» ¿ä¾à(°Ç¹°)

  Á¢¼öÀÏÀÚ µî±â¸ñÀû/±Ç¸®ÀÚ ±Ç¸®±Ý¾× ±âÁØ
1 2019³â10¿ù31ÀÏ
¼ÒÀ¯±Ç
±èOO
¼Ò¸ê
2 2023³â10¿ù30ÀÏ
ÀÓÂ÷±Ç¼³Á¤
ÃÖOO
86,000,000 Àμö
3 2024³â10¿ù18ÀÏ
°­Á¦°æ¸Å
ÃÖOO
¼Ò¸ê±âÁØ

ÀÓÂ÷ÀÎÇöȲ (¹è´ç¿ä±¸Á¾±âÀÏ: 2025-01-09)

ÀÓÂ÷ÀÎ ¿ëµµ/Á¡À¯ º¸Áõ±Ý/¿ù¼¼ ´ëÇ×·Â
ÀüÀÔÀÏ/È®Á¤ÀÏ ¹è´ç¿ä±¸ ºñ°í
ÃÖOO ÀüºÎ 86,000,000
O
2019.09.04.
2019.08.19.
2024.10.22. 2019.09.30.~2024.04.16.
ºñ°í
(¸Å°¢¹°°Ç
¸í¼¼¼­)
ÃÖ¼Ò¿µ:°æ¸Å½Åûä±ÇÀÚ ¹× ÁÖÅÃÀÓÂ÷±Çµî±â±ÇÀڷμ­ ÁÖÅÃÀÓÂ÷±Çµî±âÀÏÀº 2023.10.30.ÀÓ

¿©ÀÇÁÖ°æ¸Å Á¶¾ð ÇÑ ¸¶µð

¼±¼øÀ§ ÀÓÂ÷±Çµî±â°¡ µÇ¾î ÀÖ½À´Ï´Ù
´ëÇ×·ÂÀÌ ÀÖ´Â ¼±¼øÀ§ ÀÓÂ÷±Çµî±â ±Ç¸®ÀÚ°¡ ¹è´çÀ» Àü¾× ¹ÞÁö ¸øÇÒ °æ¿ì ³«ÂûÀÚ°¡ ÀÜ¿© º¸Áõ±ÝÀ» ÀμöÇØ¾ßÇÏ´Â °æ¿ìµµ ÀÖ½À´Ï´Ù.

ÁÖÀÇ»çÇ× (ÃÖ¼±¼øÀ§ ¼³Á¤ÀÏ: 2024. 10. 18. °­Á¦°æ¸Å ¼³Á¤ °³½Ã°áÁ¤)

¸Å°¢À¸·Î ¼Ò¸êµÇÁö ¾Ê´Â µî±âºÎ±Ç¸®: ¸Å¼öÀο¡°Ô ´ëÇ×ÇÒ ¼ö ÀÖ´Â À»±¸ 11¹ø ÀÓÂ÷±Çµî±â(ÀÓ´ëÂ÷º¸Áõ±Ý 86,000,000¿ø, ÀüÀÔÀÏÀÚ 2019. 9. 4. È®Á¤ÀÏÀÚ 2019. 8. 19.)°¡ ÀÖÀ¸¹Ç·Î ¹è´ç¿¡¼­ Àü¾× º¯Á¦µÇÁö ¾Æ´ÏÇϸé Àܾ×À» ¸Å¼öÀÎÀÌ ÀμöÇÔ.
¸Å°¢À¸·Î ¼³Á¤µÈ °ÍÀ¸·Î º¸´Â Áö»ó±Ç:
¡Ø¹Ì³³°ü¸®ºñ(°ø¿ë) Àμö¿©ºÎ¸¦ ÀÔÂû Àü¿¡ È®ÀÎÇϽñ⠹ٶø´Ï´Ù

 

Áö¿ªºÐ¼®

ÁöÇÏö¸í Á÷¼±°Å¸®

Çб³¸í ÀüÈ­¹øÈ£ ÁÖ¼Ò Á÷¼±°Å¸®

¹ý¿ø

ÀÎõÁö¹æ¹ý¿ø (222-20)ÀÎõ±¤¿ª½Ã ¹ÌÃßȦ±¸ ¼Ò¼º·Î 163¹ø±æ 17(ÇÐÀ͵¿)
´ëÇ¥ : 032)860-1113~4
°üÇÒÁö¿ª : Áß±¸, µ¿±¸, ³²±¸, ¿¬¼ö±¸, ³²µ¿±¸, ºÎÆò±¸, °è¾ç±¸, ¼­±¸, ¿ËÁø±º, °­È­±º

µî±â¼Ò ÀÎõÁö¹æ¹ý¿ø º»¿ø µî±â±¹ (´ëÇ¥:1544-0773, ÆÑ½º:(032)620-9099, ÀÎõ±¤¿ª½Ã ¹ÌÃßȦ±¸ °æ¿ø´ë·Î 881(Á־ȵ¿ 983))
¼¼¹«¼­ ºÏÀÎõ¼¼¹«¼­ (´ëÇ¥:032-540-62, ÆÑ½º:032-545-0411, ÀÎõ±¤¿ª½Ã °è¾ç±¸ È¿¼­·Î244(ÀÛÀüµ¿ 422-1) )

Àαٳ«ÂûÅë°è

±â°£ ¸Å°¢°Ç¼ö Æò±Õ°¨Á¤°¡
Æò±Õ¸Å°¢°¡
¸Å°¢°¡À²
Æò±ÕÀ¯Âû¼ö
3°³¿ù 67°Ç 246,582,090¿ø
195,631,565¿ø
76%
1.9ȸ
6°³¿ù 96°Ç 265,593,750¿ø
216,192,750¿ø
78%
2ȸ
12°³¿ù 173°Ç 278,127,168¿ø
230,820,214¿ø
79%
2ȸ


º» °æ¸ÅÁ¤º¸´Â ¹ý¿øÀÚ·á¿Í ÀÏÄ¡Çϵµ·Ï ÇÏ¿´À¸³ª ±Ç¸®»çÇ׺¯µ¿, ÀÔ·ÂÂø¿À µîÀÇ ¿øÀÎÀ¸·Î »ç½Ç°ú ´Ù¸¦ ¼ö ÀÖ½À´Ï´Ù. ÀÌ¿ë¾à°ü¿¡ ÀǰЏéÃ¥Á¶°ÇÀ¸·Î Á¦°øµÊÀ» ¾Ë¸®¸ç, °æ¸ÅÀÔÂû½Ã ¹Ýµå½Ã °ü·Ã °øºÎ¸¦ ÀçÈ®ÀÎÇϽñ⠹ٶø´Ï´Ù. º¸´Ù Æí¸®ÇÑ °æ¸ÅÁ¤º¸ Á¦°øÀ» À§ÇØ Áö¼ÓÀûÀ¸·Î °³¼±ÇϰڽÀ´Ï´Ù. ÀÌ¿ëÇØ Áּż­ °¨»çÇÕ´Ï´Ù.