·Î±×ÀÎ
1156
´Ù¼¼´ë(ºô¶ó)
ÀÎõÁö¹æ¹ý¿ø
 °¨Á¤°¡124,000,000 ¿ø
 ÃÖÀú°¡(70%) 86,800,000 ¿ø
 º¸Áõ±Ý(10%) 8,680,000 ¿ø
 Ã»±¸¾×133,345,643 ¿ø
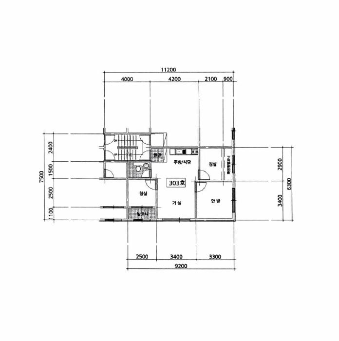
ÀÎõ±¤¿ª½Ã ¼­±¸ °æ¼­µ¿ 747-3 ´ë¿¬º£½ºÆ®ºô 3Ãþ303È£
»ç°Ç¹øÈ£ 2025Ÿ°æ512724
°æ¸ÅÁ¾·ùºÎµ¿»ê°­Á¦°æ¸Å
¸Å°¢´ë»óÅäÁö ¹× °Ç¹°Àϰý ¸Å°¢
¸Å°¢±âÀÏ    2026.04.22(¼ö) 10:00 ÀÔÂû 11ÀÏÀü    
ÅäÁö¸éÀû31.47§³(9.52 Æò)
°Ç¹°¸éÀû50.20§³(15.19 Æò)
乫/¼ÒÀ¯ÀÚÁÖOOO OOOO / ÁÖOOO OOOO
ä±ÇÀÚ¼­OOOOO OOOO
ÆäÀ̽ººÏ Æ®À§ÅÍ ±¸±Û+
īī¿À½ºÅ丮
īī¿ÀÅå sms¹®ÀÚº¸³»±â
 

±âÀϳ»¿ª

°æ°ú ³¯Â¥ Àú°¨ ÃÖÀú°¡ °á°ú
Á¢¼öÀÏ 2025-09-24 °æ¸ÅÁ¢¼ö
~1ÀÏ 
2025-09-25 °æ¸Å°³½Ã°áÁ¤
~68ÀÏ 
2025-12-01 ¹è´ç¿ä±¸Á¾±âÀÏ
~135ÀÏ 
2026-02-06 100%
124,000,000
º¯°æ
~180ÀÏ 
2026-03-23 100%
124,000,000
À¯Âû
~210ÀÏ 
2026-04-22 70%
86,800,000
ÁøÇà
¹°°Ç¸í¼¼¼­ ÇöȲÁ¶»ç¼­ ¹®°ÇÁ¢¼ö ¼Û´Þ³»¿ª

°¨Á¤Æò°¡ÇöȲ

¸ñ·Ï ÁÖ¼Ò ±¸Á¶/¿ëµµ/´ëÁö±Ç ¸éÀû ºñ°í
´ëÁö±Ç
°æ¼­µ¿ 747-3 387.5ºÐÀÇ 31.473 31.473 §³
(9.52Æò)
°Ç¹°
°æ¼­µ¿ 747-3 3Ãþ303È£ ö±ÙÄÜÅ©¸®Æ®±¸Á¶ 50.2 §³
(15.19Æò)
1) À§Ä¡/Á¦2Á¾ÀϹÝÁÖ°ÅÁö¿ª/Áö±¸´ÜÀ§°èȹ±¸¿ª/ÅäÁö°Å·¡°è¾à¿¡°üÇÑÇã°¡±¸¿ª/ÅäÁö°Å·¡Çã°¡±¸¿ª/³ë¼±¹ö½ºÁ¤·ùÀå/ö±ÙÄÜÅ©¸®Æ®±¸Á¶/°æ»çÁöºØ ´õº¸±â
°¨Á¤Æò°¡ ¿äÇ×Ç¥
1)À§Ä¡ ¹× ÁÖÀ§È¯°æ
º»°ÇÀº ÀÎõ±¤¿ª½Ã ¼­±¸ °æ¼­µ¿ ¼ÒÀç "ÀÎõ°æ¼­ÃʵîÇб³" µ¿Ãø Àαٿ¡ À§Ä¡ÇÏ´Â ±¸ºÐ°Ç¹°·Î¼­, ÀαÙÀº ÁÖ°ÅÁö´ëÀÔ´Ï´Ù.
2)±³Åë»óȲ
º»°Ç±îÁö Â÷·®ÀÇ ÃâÀÔÀÌ °¡´ÉÇϸç, Àαٿ¡ ³ë¼±¹ö½ºÁ¤·ùÀåÀÌ ¼ÒÀçÇÏ´Â µî ±³Åë»óȲÀº º¸ÅëÀÔ´Ï´Ù.
3)°Ç¹°ÀÇ ±¸Á¶
ö±ÙÄÜÅ©¸®Æ®±¸Á¶ °æ»çÁöºØ 4Ãþ °Ç¹° ³» Á¦3 Á¦303È£·Î¼­ ¿Üº® : ¸ôÅ» À§ ÆäÀÎÆ® µî ¸¶°¨ âȣ : »õ½ÃâȣÀÔ´Ï´Ù.
4)ÀÌ¿ë»óÅÂ
°øºÎ»ó '´Ù¼¼´ëÁÖÅÃ'À¸·Î µîÀçµÇ¾î ÀÖ½À´Ï´Ù.
5)¼³ºñ³»¿ª
±âº»ÀûÀÎ Àü±â¼³ºñ, À§»ý¼³ºñ, ±Þ¹è¼ö¼³ºñ µîÀÌ ±¸ºñµÇ¾î ÀÖ½À´Ï´Ù.
6)ÅäÁöÀÇ Çü»ó ¹× ÀÌ¿ë»óÅÂ
°¡ÀåÇüÀÇ ÅäÁö·Î¼­, ÁÖ°Å¿ë °ÇºÎÁö·Î ÀÌ¿ëÁßÀÔ´Ï´Ù.
7)ÀÎÁ¢ µµ·Î»óŵî
º»°Ç ³²¼­ÃøÀ¸·Î Â÷·®ÀÇ ÅëÇàÀÌ °¡´ÉÇÑ Æ÷ÀåµÈ °øµµ¿Í Á¢Çϰí ÀÖ½À´Ï´Ù.
8)ÅäÁöÀÌ¿ë°èȹ ¹× Á¦ÇÑ»óÅÂ
Á¦2Á¾ÀϹÝÁÖ°ÅÁö¿ª , Áö±¸´ÜÀ§°èȹ±¸¿ª , ¼Ò·Î2·ù(Æø 8m~10m)(Á¢ÇÕ) , °¡Ãà»çÀ°Á¦Çѱ¸¿ª(2025-05-20)<°¡ÃàºÐ´¢ÀÇ °ü¸® ¹× À̿뿡 °üÇÑ ¹ý·ü>, »ó´ëº¸È£±¸¿ª(2014-04-16)<±³À°È¯°æ º¸È£¿¡ °üÇÑ ¹ý·ü>, »ó´ëº¸È£±¸¿ª(¿¹ºûÀ¯Ä¡¿ø(¼­ºÎ±³À°Áö¿øÃ»¹®ÀÇ))<±³À°È¯°æ º¸È£¿¡ °üÇÑ ¹ý·ü>, Àý´ëº¸È£±¸¿ª(2014-04-16)<±³À°È¯°æ º¸È£¿¡ °üÇÑ ¹ý·ü>, °ú¹Ð¾ïÁ¦±Ç¿ª<¼öµµ±ÇÁ¤ºñ°èȹ¹ý> , ÅäÁö°Å·¡°è¾à¿¡°üÇÑÇã°¡±¸¿ª(ÅäÁö°Å·¡Çã°¡±¸¿ª(¿Ü±¹ÀÎ µîÀÇ ÁÖÅÿ뵵 Ãëµæ¿¡ ÇÑÇÔ)(2025. 8. 26.~2026. 8. 25.)) ÀÔ´Ï´Ù.
9)°øºÎ¿ÍÀÇ Â÷ÀÌ
ÇØ´ç»çÇ× ¾ø½À´Ï´Ù.
10)±âŸÂü°í»çÇ×(ÀÓ´ë°ü·Ê ¹× ±âŸ)
1. ÀÓ´ë°ü°è´Â ¹Ì»óÀ̸ç, ÈÄ÷ &apos;°Ç¹°°³È²µµ ¹× ³»ºÎ±¸Á¶µµ&apos;´Â Æó¹®ºÎÀç µîÀ¸·Î ÀÎÇÏ¿© ³»ºÎ È®ÀÎÀÌ ºÒ°¡´ÉÇÏ¿© ÁöÀÚü ¹ß±Þ µµ¸éÀ¸·Î µµ½ÃÇÏ¿´½À´Ï´Ù. 2. º»°Ç Æó¹®ºÎÀç µîÀ¸·Î ÀÎÇÏ¿© ºÎµæÀÌÇÏ°Ô ³»ºÎ¸¦ Á÷Á¢ È®ÀÎÇÏÁö´Â ¸øÇÑ »çÀ¯·Î ÀÎÇÏ¿© °ÅÁֹΠ¹× Àα٠°øÀÎÁß°³»ç¹«¼Ò µî¿¡ ޹®Á¶»ç °á°ú µîÀ» Á¾ÇÕÀûÀ¸·Î °í·ÁÇÏ¿© °¨Á¤Æò°¡ ÇÏ¿´À¸¸ç, ³»ºÎ ÀÎÅ׸®¾î ¹× ³»ºÎ °ü¸® »óÅ´ Åë»óÀûÀÎ ÀÎÅ׸®¾î ¼öÁØ ¹× °ü¸® »óÅ·Πº¸¾Æ °¨Á¤Æò°¡ ÇÏ¿´½À´Ï´Ù.
Âü°í
»çÇ×

- º»°Ç ºÎµ¿»êÀº

°ÇÃ๰ÇöȲ

¼ÒÀçÁö ÀÎõ±¤¿ª½Ã ¼­±¸ °æ¼­µ¿ 747-3¹øÁö
´ëÁö¸éÀû 387.5§³
(117.42Æò)
¿¬¸éÀû 657.18§³
(199.15Æò)
°ÇÃà¸éÀû 231.84§³
(70.25Æò)
¿ëÀû·ü»êÁ¤
¿¬¸éÀû
657.18§³
(199.15Æò)
°ÇÆóÀ² 59.83% ¿ëÀû·ü 169.59%
Áö»óÃþ¼ö 4Ãþ ÁöÇÏÃþ¼ö  
ÁÖ¿ëµµ °øµ¿ÁÖÅà ±¸Á¶ ö±ÙÄÜÅ©¸®Æ®±¸Á¶
Âø°øÀÏÀÚ 2010.04.29 »ç¿ë½ÂÀÎÀÏÀÚ 2010.08.16
°ÇÃ๰Ãþº°ÇöȲ [º¸±â]


±¹ÅäºÎ½Ç°Å·¡°¡ ÀÎõ±¤¿ª½Ã ¼­±¸ °æ¼­µ¿

¡Ü ¸Å¸Å

¸éÀû(§³), ±Ý¾×(¸¸¿ø)

¡Ü Àü¼¼

¸éÀû(§³), ±Ý¾×(¸¸¿ø)

°è¾àÀϰǹ°¸íĪÃþ¿¬¸éÀûº¸Áõ±Ý¿ù¼¼°ÇÃà
26.03.28°æ¼­ÈúŸ¿î238.162,000452010
26.03.23±×¸°ºñ(733-6)357.422,000552008
26.03.21Çϴù̼Ò4Â÷Aµ¿257.141,000702011
26.03.16°æ¼­ÈúŸ¿î5µ¿452.461,000602011
26.03.16ÈÞ¸Õ¾ÆÆ®ºô359.1811,00002013
¢Ñ ´õº¸±â

µî±âºÎµîº» ¿ä¾à(°Ç¹°)

  Á¢¼öÀÏÀÚ µî±â¸ñÀû/±Ç¸®ÀÚ ±Ç¸®±Ý¾× ±âÁØ
1 2020³â9¿ù3ÀÏ
¼ÒÀ¯±Ç
(OOOO
¼Ò¸ê
2 2022³â9¿ù21ÀÏ
ÀÓÂ÷±Ç¼³Á¤
ÇÑOOOO
114,000,000 Àμö
3 2022³â9¿ù22ÀÏ
°¡¾Ð·ù
ÁÖOOOO
1,716,000,000 ¼Ò¸ê±âÁØ
4 2023³â3¿ù17ÀÏ
¾Ð·ù
±¹
¼Ò¸ê
5 2025³â9¿ù25ÀÏ
°­Á¦°æ¸Å
¼­OOOO
¼Ò¸ê

ÀÓÂ÷ÀÎÇöȲ (¹è´ç¿ä±¸Á¾±âÀÏ: 2025-12-01)

ÀÓÂ÷ÀÎ ¿ëµµ/Á¡À¯ º¸Áõ±Ý/¿ù¼¼ ´ëÇ×·Â
ÀüÀÔÀÏ/È®Á¤ÀÏ ¹è´ç¿ä±¸ ºñ°í
¼­OOOOOOOOOOOOOOOOOOOOOOO 303È£ÀüºÎ 114,000,000
O
2020.8.27.
2020.7.15.
2025.9.24. 2020.8.27.~2022.8.26.
Á¤OO
X
2023.07.11.
ÇÑOOOOOOO 303È£ÀüºÎ 114,000,000
O
2020.8.27.
2020.7.15.
2020.8.27.~
ºñ°í
(¸Å°¢¹°°Ç
¸í¼¼¼­)
¼­¿ïº¸Áõº¸Çè ÁÖ½Äȸ»ç(ÀÓÂ÷ÀÎ:Çѱ¹ÅäÁöÁÖÅðø»ç):°æ¸Å½Åûä±ÇÀÚÀ̸ç ÀÓÂ÷ÀÎ Çѱ¹ÅäÁöÁÖÅðø»çÀÇ ÀÓÂ÷º¸Áõ±Ý¹Ýȯä±ÇÀÇ ¾ç¼ö ÀÎÀ¸·Î¼­ ¹è´ç¿ä±¸ÀÏÀÚ´Â °æ¸Å½ÅûÀÏÀÓ 2026.1.27. 'ÀÓÂ÷º¸Áõ±Ý¿¡ ´ëÇÏ¿© ¿ì¼±º¯Á¦±Ç¸¸ ÁÖÀåÇÏ°í ´ëÇ×·ÂÀº Æ÷±âÇϸç, Àü¾×À» º¯Á¦¹ÞÁö ¸øÇÏ´õ¶óµµ ÀÓÂ÷±Çµî±â¸¦ ¸»¼ÒÇÏ °Ú´Ù'´Â ÃëÁöÀÇ È®¾à¼­¸¦ Á¦ÃâÇÔ Çѱ¹ÅäÁöÁÖÅðø»ç:ÁÖÅÃÀÓÂ÷±Çµî±â±ÇÀڷμ­ ÁÖÅÃÀÓÂ÷±Çµî±âÀÏÀº 2022.9.21.ÀÓ

¿©ÀÇÁÖ°æ¸Å Á¶¾ð ÇÑ ¸¶µð

¼±¼øÀ§ ÀÓÂ÷±Çµî±â°¡ µÇ¾î ÀÖ½À´Ï´Ù
´ëÇ×·ÂÀÌ ÀÖ´Â ¼±¼øÀ§ ÀÓÂ÷±Çµî±â ±Ç¸®ÀÚ°¡ ¹è´çÀ» Àü¾× ¹ÞÁö ¸øÇÒ °æ¿ì ³«ÂûÀÚ°¡ ÀÜ¿© º¸Áõ±ÝÀ» ÀμöÇØ¾ßÇÏ´Â °æ¿ìµµ ÀÖ½À´Ï´Ù.

ÁÖÀÇ»çÇ× (ÃÖ¼±¼øÀ§ ¼³Á¤ÀÏ: 2022.9.22. °¡¾Ð·ù ¼³Á¤)

¸Å°¢À¸·Î ¼Ò¸êµÇÁö ¾Ê´Â µî±âºÎ±Ç¸®: À»±¸ ¼øÀ§ 5¹ø ÁÖÅÃÀÓÂ÷±Çµî±â(´Ù¸¸ ¼­¿ïº¸Áõº¸Çè ÁÖ½Äȸ»çÀÇ ¸»¼Òµ¿ÀÇ È®¾à¼­°¡ Á¦ÃâµÊ)
¸Å°¢À¸·Î ¼³Á¤µÈ °ÍÀ¸·Î º¸´Â Áö»ó±Ç:
¡Ø¹Ì³³°ü¸®ºñ(°ø¿ë) Àμö¿©ºÎ¸¦ ÀÔÂû Àü¿¡ È®ÀÎÇϽñ⠹ٶø´Ï´Ù

 

Áö¿ªºÐ¼®

ÁöÇÏö¸í Á÷¼±°Å¸®

Çб³¸í ÀüÈ­¹øÈ£ ÁÖ¼Ò Á÷¼±°Å¸®

¹ý¿ø

ÀÎõÁö¹æ¹ý¿ø (222-20)ÀÎõ±¤¿ª½Ã ¹ÌÃßȦ±¸ ¼Ò¼º·Î 163¹ø±æ 17(ÇÐÀ͵¿)
´ëÇ¥ : 032)860-1113~4
°üÇÒÁö¿ª : Áß±¸, µ¿±¸, ³²±¸, ¿¬¼ö±¸, ³²µ¿±¸, ºÎÆò±¸, °è¾ç±¸, ¼­±¸, ¿ËÁø±º, °­È­±º

µî±â¼Ò ÀÎõÁö¹æ¹ý¿ø º»¿ø µî±â±¹ (´ëÇ¥:1544-0773, ÆÑ½º:(032)620-9099, ÀÎõ±¤¿ª½Ã ¹ÌÃßȦ±¸ °æ¿ø´ë·Î 881(Á־ȵ¿ 983))
¼¼¹«¼­ ¼­ÀÎõ¼¼¹«¼­ (´ëÇ¥:032-560-52, ÆÑ½º:032-561-5777, ÀÎõ±¤¿ª½Ã ¼­±¸ ¼­°ù·Î369¹ø±æ 17 (¿¬Èñµ¿))

Àαٳ«ÂûÅë°è

±â°£ ¸Å°¢°Ç¼ö Æò±Õ°¨Á¤°¡
Æò±Õ¸Å°¢°¡
¸Å°¢°¡À²
Æò±ÕÀ¯Âû¼ö
3°³¿ù 131°Ç 138,979,560¿ø
85,401,779¿ø
61%
2.3ȸ
6°³¿ù 228°Ç 144,775,519¿ø
90,061,480¿ø
62%
2.2ȸ
12°³¿ù 432°Ç 149,585,783¿ø
96,294,281¿ø
64%
2.1ȸ


º» °æ¸ÅÁ¤º¸´Â ¹ý¿øÀÚ·á¿Í ÀÏÄ¡Çϵµ·Ï ÇÏ¿´À¸³ª ±Ç¸®»çÇ׺¯µ¿, ÀÔ·ÂÂø¿À µîÀÇ ¿øÀÎÀ¸·Î »ç½Ç°ú ´Ù¸¦ ¼ö ÀÖ½À´Ï´Ù. ÀÌ¿ë¾à°ü¿¡ ÀǰЏéÃ¥Á¶°ÇÀ¸·Î Á¦°øµÊÀ» ¾Ë¸®¸ç, °æ¸ÅÀÔÂû½Ã ¹Ýµå½Ã °ü·Ã °øºÎ¸¦ ÀçÈ®ÀÎÇϽñ⠹ٶø´Ï´Ù. º¸´Ù Æí¸®ÇÑ °æ¸ÅÁ¤º¸ Á¦°øÀ» À§ÇØ Áö¼ÓÀûÀ¸·Î °³¼±ÇϰڽÀ´Ï´Ù. ÀÌ¿ëÇØ Áּż­ °¨»çÇÕ´Ï´Ù.