·Î±×ÀÎ
1137
¿ÀÇǽºÅÚ
ÀÎõÁö¹æ¹ý¿ø
 °¨Á¤°¡180,000,000 ¿ø
 ÃÖÀú°¡(70%) 126,000,000 ¿ø
 º¸Áõ±Ý(10%) 12,600,000 ¿ø
 Ã»±¸¾×127,255,813 ¿ø
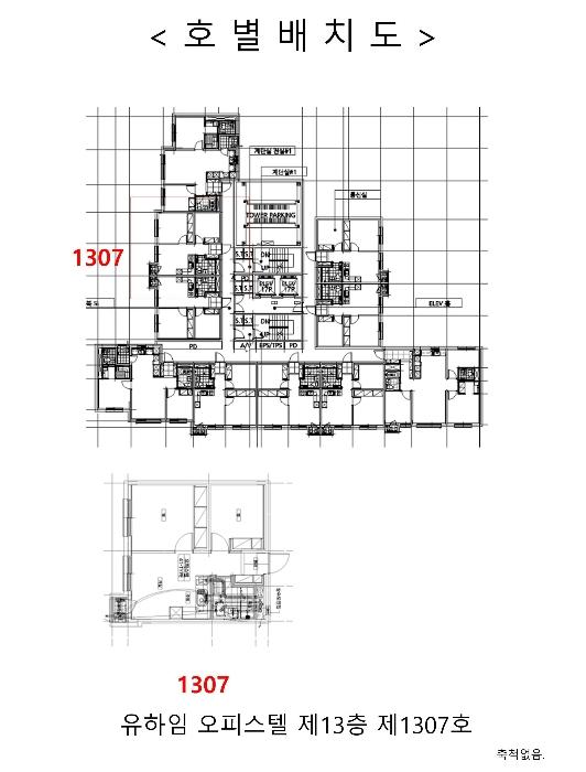
ÀÎõ±¤¿ª½Ã ºÎÆò±¸ ¾È³²·Î 25, 13Ãþ1307È£ (ºÎÆòµ¿,À¯ÇÏÀÓ ¿ÀÇǽºÅÚ)
ÀÎõ±¤¿ª½Ã ºÎÆò±¸ ºÎÆòµ¿ 758-38
»ç°Ç¹øÈ£ 2024Ÿ°æ578580
°æ¸ÅÁ¾·ùºÎµ¿»êÀÓÀǰæ¸Å
¸Å°¢´ë»óÅäÁö ¹× °Ç¹°Àϰý ¸Å°¢
¸Å°¢±âÀÏ    2026.03.20(±Ý) 10:00 ÀÔÂû 15ÀÏÀü    
ÅäÁö¸éÀû10.49§³(3.17 Æò)
°Ç¹°¸éÀû41.65§³(12.60 Æò)
乫/¼ÒÀ¯ÀÚ±èOO / ±èOO
ä±ÇÀÚ¿¡OOOOOOOOOOOOO OOOO
ÆäÀ̽ººÏ Æ®À§ÅÍ ±¸±Û+
īī¿À½ºÅ丮
īī¿ÀÅå sms¹®ÀÚº¸³»±â
 

±âÀϳ»¿ª

°æ°ú ³¯Â¥ Àú°¨ ÃÖÀú°¡ °á°ú
Á¢¼öÀÏ 2024-12-03 °æ¸ÅÁ¢¼ö
~7ÀÏ 
2024-12-10 °æ¸Å°³½Ã°áÁ¤
~93ÀÏ 
2025-03-06 ¹è´ç¿ä±¸Á¾±âÀÏ
~429ÀÏ 
2026-02-05 100%
180,000,000
À¯Âû
~472ÀÏ 
2026-03-20 70%
126,000,000
ÁøÇà
¹°°Ç¸í¼¼¼­ ÇöȲÁ¶»ç¼­ ¹®°ÇÁ¢¼ö ¼Û´Þ³»¿ª

°¨Á¤Æò°¡ÇöȲ

¸ñ·Ï ÁÖ¼Ò ±¸Á¶/¿ëµµ/´ëÁö±Ç ¸éÀû ºñ°í
´ëÁö±Ç
ºÎÆòµ¿ 758-38 2230ºÐÀÇ 10.4872 10.4872 §³
(3.17Æò)
°Ç¹°
ºÎÆòµ¿ 758-38 13Ãþ1307È£ ö±ÙÄÜÅ©¸®Æ®±¸Á¶ 41.653 §³
(12.60Æò)
1) À§Ä¡/¹ö½ºÁ¤·ùÀå/ÁöÇÏö/ö±ÙÄÜÅ©¸®Æ®±¸Á¶ ´õº¸±â
°¨Á¤Æò°¡ ¿äÇ×Ç¥
1)À§Ä¡ ¹× ÁÖÀ§È¯°æ
º»°ÇÀº ÀÎõ±¤¿ª½Ã ºÎÆò±¸ ºÎÆòµ¿ ¼ÒÀç µ¿¼ö¿ª(ÀÎõ1È£¼±)" ºÏ¼­Ãø Àαٿ¡ À§Ä¡Çϸç
ÁÖÀ§´Â ¿ÀÇǽºÅÚ, ¾ÆÆÄÆ®, »ó¾÷½Ã¼³, ±Ù¸°»ýȰ½Ã¼³ µîÀÌ È¥ÀçÇÏ´Â Áö¿ªÀ¸·Î ÁÖÀ§È¯°æÀº º¸Åë½ÃµÊ.
2)±³Åë»óȲ
º»°Ç±îÁö Â÷·®ÃâÀÔÀÌ °¡´ÉÇϸç Àαٿ¡ ¹ö½ºÁ¤·ùÀå ¹× ÁöÇÏö¿ªÀÌ ¼ÒÀçÇÏ¿© ´ëÁß±³ÅëÀÌ¿ë ÆíÀǵµ´Â º¸ÅëÀÓ.
3)°Ç¹°ÀÇ ±¸Á¶
ö±ÙÄÜÅ©¸®Æ®±¸Á¶ (ö±Ù)ÄÜÅ©¸®Æ®ÁöºØ 20Ãþ ³» 13Ãþ 1307È£
¿Üº®: È­°­¼® ºÙÀÓ ¹× ¼¼¸à¸ôÅ»À§ ÆäÀÎÆ® µî ¸¶°¨
³»º®: º®Áö ¹× ÀϺΟÀÏ µî ¸¶°¨
âȣ: ¼¦½Ãâȣ ÀÓ.
4)ÀÌ¿ë»óÅÂ
º»°ÇÀº ÁÖ°Å¿ë ¿ÀÇǽºÅÚ·Î ÀÌ¿ëÁßÀÓ.
5)¼³ºñ³»¿ª
À§»ý ¹× ±Þ¹è¼ö ½Ã¼³, ³­¹æ¼³ºñ, ¼ÒÈ­Àü¼³ºñ, ½Â°­±â¼³ºñ µîÀÌ µÇ¾î ÀÖÀ½.
6)ÅäÁöÀÇ Çü»ó ¹× ÀÌ¿ë»óÅÂ
ÀÎÁ¢ÇÊÁö ´ëºñ µî°íÆòźÇÑ ºÎÁ¤ÇüÀÇ ÅäÁö·Î ¿ÀÇǽºÅÚ µîÀ¸·Î ÀÌ¿ëÁßÀÓ.
7)ÀÎÁ¢ µµ·Î»óŵî
º»°Ç ºÏµ¿ÃøÀ¸·Î °øµµ¿Í Á¢ÇÔ.
8)ÅäÁöÀÌ¿ë°èȹ ¹× Á¦ÇÑ»óÅÂ
º°Ã· ÅäÁöÀÌ¿ë°èȹȮÀμ­ ÂüÁ¶.
9)°øºÎ¿ÍÀÇ Â÷ÀÌ
-
10)±âŸÂü°í»çÇ×(ÀÓ´ë°ü·Ê ¹× ±âŸ)
ÀÓ´ë°ü°è ¹Ì»óÀÓ.
Âü°í
»çÇ×

º» °ÇÀº 20Ãþ ÁÖ°Å¿ë ¿ÀÇǽºÅÚÀÓ.

°ÇÃ๰ÇöȲ

¼ÒÀçÁö ÀÎõ±¤¿ª½Ã ºÎÆò±¸ ºÎÆòµ¿ 758-38¹øÁö
´ëÁö¸éÀû 2230§³
(675.76Æò)
¿¬¸éÀû 16552.6729§³
(5015.96Æò)
°ÇÃà¸éÀû 773.4416§³
(234.38Æò)
¿ëÀû·ü»êÁ¤
¿¬¸éÀû
12213.9308§³
(3701.19Æò)
°ÇÆóÀ² 34.68% ¿ëÀû·ü 547.71%
Áö»óÃþ¼ö 20Ãþ ÁöÇÏÃþ¼ö 3Ãþ
ÁÖ¿ëµµ ¾÷¹«½Ã¼³ ±¸Á¶ ö±ÙÄÜÅ©¸®Æ®±¸Á¶
Âø°øÀÏÀÚ 2018.04.09 »ç¿ë½ÂÀÎÀÏÀÚ 2020.10.20
°ÇÃ๰Ãþº°ÇöȲ [º¸±â]


±¹ÅäºÎ½Ç°Å·¡°¡ ÀÎõ±¤¿ª½Ã ºÎÆò±¸ ºÎÆòµ¿

¡Ü ¸Å¸Å

¸éÀû(§³), ±Ý¾×(¸¸¿ø)

¡Ü Àü¼¼

¸éÀû(§³), ±Ý¾×(¸¸¿ø)

°è¾àÀϰǹ°¸íĪÃþÀü¿ëº¸Áõ±Ý¿ù¼¼°ÇÃà
26.01.31À¯ÇÏÀÓ ¿ÀÇǽºÅÚ1041.65315,5002020
26.01.20À¯ÇÏÀÓ ¿ÀÇǽºÅÚ361.1812,079152020
26.01.09À¯ÇÏÀÓ ¿ÀÇǽºÅÚ1141.6515,30002020
26.01.08À¯ÇÏÀÓ ¿ÀÇǽºÅÚ441.651,000722020
26.01.06À¯ÇÏÀÓ ¿ÀÇǽºÅÚ1261.1822,00002020
¢Ñ ´õº¸±â

µî±âºÎµîº» ¿ä¾à(°Ç¹°)

  Á¢¼öÀÏÀÚ µî±â¸ñÀû/±Ç¸®ÀÚ ±Ç¸®±Ý¾× ±âÁØ
1 2020³â11¿ù30ÀÏ
¼ÒÀ¯±Ç
±èOO
¼Ò¸ê
2 2020³â11¿ù30ÀÏ
±ÙÀú´ç±Ç
(OOOO
156,000,000 ¼Ò¸ê±âÁØ
3 2023³â7¿ù31ÀÏ
Àü¼¼±Ç
¹ÚOO
30,000,000 ¼Ò¸ê
4 2024³â12¿ù10ÀÏ
ÀÓÀǰæ¸Å
¿¡OOOO
¼Ò¸ê

ÀÓÂ÷ÀÎÇöȲ (¹è´ç¿ä±¸Á¾±âÀÏ: 2025-03-06)

ÀÓÂ÷ÀÎ ¿ëµµ/Á¡À¯ º¸Áõ±Ý/¿ù¼¼ ´ëÇ×·Â
ÀüÀÔÀÏ/È®Á¤ÀÏ ¹è´ç¿ä±¸ ºñ°í
¹ÚOO 1307È£ÀüºÎ(¹æ2Ä­) 30,000,000
[¿ù]500,000

2025. 3. 4. 2023. 7. 26.~ ÇöÀç±îÁö
ºñ°í
(¸Å°¢¹°°Ç
¸í¼¼¼­)
¹Ú¼Ö°ÇÀº ÀÓÂ÷ÀÎ °â Àü¼¼±ÇÀڷμ­ Àü¼¼±Ç¼³Á¤µî±âÀÏÀº 2023. 7. 31.ÀÓ

¿©ÀÇÁÖ°æ¸Å Á¶¾ð ÇÑ ¸¶µð


ÁÖÀÇ»çÇ× (ÃÖ¼±¼øÀ§ ¼³Á¤ÀÏ: 2020. 11. 30. ±ÙÀú´ç±Ç ¼³Á¤)

¸Å°¢À¸·Î ¼Ò¸êµÇÁö ¾Ê´Â µî±âºÎ±Ç¸®:
¸Å°¢À¸·Î ¼³Á¤µÈ °ÍÀ¸·Î º¸´Â Áö»ó±Ç:
¡Ø¹Ì³³°ü¸®ºñ(°ø¿ë) Àμö¿©ºÎ¸¦ ÀÔÂû Àü¿¡ È®ÀÎÇϽñ⠹ٶø´Ï´Ù

 

Áö¿ªºÐ¼®

ÁöÇÏö¸í Á÷¼±°Å¸®

Çб³¸í ÀüÈ­¹øÈ£ ÁÖ¼Ò Á÷¼±°Å¸®

¹ý¿ø

ÀÎõÁö¹æ¹ý¿ø (222-20)ÀÎõ±¤¿ª½Ã ¹ÌÃßȦ±¸ ¼Ò¼º·Î 163¹ø±æ 17(ÇÐÀ͵¿)
´ëÇ¥ : 032)860-1113~4
°üÇÒÁö¿ª : Áß±¸, µ¿±¸, ³²±¸, ¿¬¼ö±¸, ³²µ¿±¸, ºÎÆò±¸, °è¾ç±¸, ¼­±¸, ¿ËÁø±º, °­È­±º

µî±â¼Ò ÀÎõÁö¹æ¹ý¿ø º»¿ø µî±â±¹ (´ëÇ¥:1544-0773, ÆÑ½º:(032)620-9099, ÀÎõ±¤¿ª½Ã ¹ÌÃßȦ±¸ °æ¿ø´ë·Î 881(Á־ȵ¿ 983))
¼¼¹«¼­ ºÏÀÎõ¼¼¹«¼­ (´ëÇ¥:032-540-62, ÆÑ½º:032-545-0411, ÀÎõ±¤¿ª½Ã °è¾ç±¸ È¿¼­·Î244(ÀÛÀüµ¿ 422-1) )

Àαٳ«ÂûÅë°è

±â°£ ¸Å°¢°Ç¼ö Æò±Õ°¨Á¤°¡
Æò±Õ¸Å°¢°¡
¸Å°¢°¡À²
Æò±ÕÀ¯Âû¼ö
3°³¿ù 184°Ç 215,875,000¿ø
158,378,034¿ø
74%
1.5ȸ
6°³¿ù 281°Ç 217,148,043¿ø
158,418,644¿ø
73%
1.5ȸ
12°³¿ù 511°Ç 221,077,495¿ø
165,519,442¿ø
75%
1.5ȸ


º» °æ¸ÅÁ¤º¸´Â ¹ý¿øÀÚ·á¿Í ÀÏÄ¡Çϵµ·Ï ÇÏ¿´À¸³ª ±Ç¸®»çÇ׺¯µ¿, ÀÔ·ÂÂø¿À µîÀÇ ¿øÀÎÀ¸·Î »ç½Ç°ú ´Ù¸¦ ¼ö ÀÖ½À´Ï´Ù. ÀÌ¿ë¾à°ü¿¡ ÀǰЏéÃ¥Á¶°ÇÀ¸·Î Á¦°øµÊÀ» ¾Ë¸®¸ç, °æ¸ÅÀÔÂû½Ã ¹Ýµå½Ã °ü·Ã °øºÎ¸¦ ÀçÈ®ÀÎÇϽñ⠹ٶø´Ï´Ù. º¸´Ù Æí¸®ÇÑ °æ¸ÅÁ¤º¸ Á¦°øÀ» À§ÇØ Áö¼ÓÀûÀ¸·Î °³¼±ÇϰڽÀ´Ï´Ù. ÀÌ¿ëÇØ Áּż­ °¨»çÇÕ´Ï´Ù.