·Î±×ÀÎ
1076
´Ù¼¼´ë(ºô¶ó)
¼­¿ï³²ºÎÁö¹æ¹ý¿ø
 °¨Á¤°¡266,000,000 ¿ø
 ÃÖÀú°¡(64%) 170,240,000 ¿ø
 º¸Áõ±Ý(10%) 17,024,000 ¿ø
 Ã»±¸¾×265,000,000 ¿ø
¼­¿ïƯº°½Ã °­¼­±¸ È­°îµ¿ 408-56 µ¿È­ÆÓ¸®½º Á¦5Ãþ Á¦602È£
»ç°Ç¹øÈ£ 2025Ÿ°æ10556
°æ¸ÅÁ¾·ùºÎµ¿»ê°­Á¦°æ¸Å
¸Å°¢´ë»óÅäÁö ¹× °Ç¹°Àϰý ¸Å°¢
¸Å°¢±âÀÏ    2026.05.07(¸ñ) 10:00 ÀÔÂû 22ÀÏÀü    
ÅäÁö¸éÀû19.65§³(5.94 Æò)
°Ç¹°¸éÀû29.13§³(8.81 Æò)
乫/¼ÒÀ¯ÀÚ±ÇOO / ±ÇOO
ä±ÇÀÚÁÖOOOOOOO
ÆäÀ̽ººÏ Æ®À§ÅÍ ±¸±Û+
īī¿À½ºÅ丮
īī¿ÀÅå sms¹®ÀÚº¸³»±â
 

±âÀϳ»¿ª

°æ°ú ³¯Â¥ Àú°¨ ÃÖÀú°¡ °á°ú
Á¢¼öÀÏ 2025-06-23 °æ¸ÅÁ¢¼ö
~0ÀÏ 
2025-06-23 °æ¸Å°³½Ã°áÁ¤
~92ÀÏ 
2025-09-23 ¹è´ç¿ä±¸Á¾±âÀÏ
~227ÀÏ 
2026-02-05 100%
266,000,000
À¯Âû
~276ÀÏ 
2026-03-26 80%
212,800,000
À¯Âû
~318ÀÏ 
2026-05-07 64%
170,240,000
ÁøÇà
¹°°Ç¸í¼¼¼­ ÇöȲÁ¶»ç¼­ ¹®°ÇÁ¢¼ö ¼Û´Þ³»¿ª

°¨Á¤Æò°¡ÇöȲ

¸ñ·Ï ÁÖ¼Ò ±¸Á¶/¿ëµµ/´ëÁö±Ç ¸éÀû ºñ°í
´ëÁö±Ç
È­°îµ¿ 408-56 304ºÐÀÇ 19.65 19.65 §³
(5.94Æò)
°Ç¹°
È­°îµ¿ 408-56 Á¦5Ãþ Á¦602È£ ö±ÙÄÜÅ©¸®Æ®±¸Á¶ 29.13 §³
(8.81Æò)
1) À§Ä¡/µµ½ÃÁö¿ª/Á¦2Á¾ÀϹÝÁÖ°ÅÁö¿ª/¹ö½ºÁ¤·ùÀå/ÁöÇÏö/ö±ÙÄÜÅ©¸®Æ®±¸Á¶/Æò½º¶óºêÁöºØ ´õº¸±â
°¨Á¤Æò°¡ ¿äÇ×Ç¥
1)À§Ä¡ ¹× ÁÖÀ§È¯°æ
º»°ÇÀº ¼­¿ïƯº°½Ã °­¼­±¸ È­°îµ¿ ¼ÒÀç""È­¿øÁßÇб³""µ¿Ãø Àαٿ¡ À§Ä¡Çϸç, ÁÖÀ§´Â ´Ù¼¼´ëÁÖÅÃ, ¾ÆÆÄÆ®, ±Ù¸°»ýȰ½Ã¼³ µîÀÌ ¼ÒÀçÇÏ´Â Áö¿ªÀ¸·Î¼­, ÁÖ°Å¿ëÀ¸·ÎÀÇ Á¦¹Ý ÁÖÀ§ ȯ°æÀº º¸Åë½Ã µÊ.
2)±³Åë»óȲ
º»°Ç °Ç¹°±îÁö Â÷·®ÀÇ Áø¡¤ÃâÀÔÀÌ °¡´ÉÇϸç, Àαٿ¡ ¹ö½ºÁ¤·ùÀå, ±Ù°Å¸®¿¡ ÁöÇÏö¿ª(±îÄ¡»ê¿ª-ÁöÇÏö2¡¤5È£¼±) µîÀÌ ¼ÒÀçÇÏ¿© Á¦¹Ý ´ëÁß±³Åë »óȲÀº º¸Åë½Ã µÊ.
3)°Ç¹°ÀÇ ±¸Á¶
ö±ÙÄÜÅ©¸®Æ®±¸Á¶ Æò½º¶óºêÁöºØ ÁöÇÏ1Ãþ Áö»ó5Ãþ °Ç¹° ³» Á¦5Ãþ Á¦602È£·Î¼­,
(»ç¿ë½ÂÀÎÀÏ: 2020.08.14.)

¿Üº® : Ä¡À庮µ¹½×±â ¸¶°¨ µî
âȣ : »þ½Ã âȣ µî ¸¶°¨ ÀÓ.
4)ÀÌ¿ë»óÅÂ
±âÁؽÃÁ¡ ´Ù¼¼´ëÁÖÅÃÀ¸·Î ÀÌ¿ë ÁßÀÓ.
5)¼³ºñ³»¿ª
±âº»ÀûÀÎ À§»ý ¹× ±Þ¹è¼ö¼³ºñ, ¼Ò¹æ¼³ºñ, ³­¹æ¼³ºñ, ½Â°­±â¼³ºñ µîÀ» °®Ãß°í ÀÖÀ½.
6)ÅäÁöÀÇ Çü»ó ¹× ÀÌ¿ë»óÅÂ
º»°Ç ÅäÁö´Â ¿Ï°æ»çÁö´ë ³» ¼¼ÀåÇü ÅäÁö·Î¼­, µµ½ÃÇü»ýȰÁÖÅÃ(´ÜÁöÇü´Ù¼¼´ë)ÀÇ °ÇºÎÁö·Î ÀÌ¿ë ÁßÀÓ.
7)ÀÎÁ¢ µµ·Î»óŵî
º»°Ç ¼­ÃøÀ¸·Î ³ëÆø ¾à 5M ³»¿Ü, ³²ÃøÀ¸·Î ³ëÆø ¾à 4M µµ·Î¿¡ °¢°¢ Á¢ÇÔ.
8)ÅäÁöÀÌ¿ë°èȹ ¹× Á¦ÇÑ»óÅÂ
µµ½ÃÁö¿ª, Á¦2Á¾ÀϹÝÁÖ°ÅÁö¿ª(7ÃþÀÌÇÏ), Áß¿ä½Ã¼³¹°º¸È£Áö±¸(°øÇ×), °¡Ãà»çÀ°Á¦Çѱ¸¿ª(Áö¿ª°æÁ¦°ú È®ÀÎ ¿ä¸Á)<°¡ÃàºÐ´¢ÀÇ °ü¸® ¹× À̿뿡 °üÇÑ ¹ý·ü>, ¼öÆòÇ¥¸é±¸¿ª(¼öÆòÇ¥¸é)<°øÇ׽ü³¹ý>, »ó´ëº¸È£±¸¿ª(2015-03-24)<±³À°È¯°æ º¸È£¿¡ °üÇÑ ¹ý·ü>, ´ë°ø¹æ¾îÇùÁ¶±¸¿ª(À§Å¹°íµµ:77-257m)<±º»ç±âÁö ¹× ±º»ç½Ã¼³ º¸È£¹ý>, °ú¹Ð¾ïÁ¦±Ç¿ª<¼öµµ±ÇÁ¤ºñ°èȹ¹ý> ÀÓ.
9)°øºÎ¿ÍÀÇ Â÷ÀÌ
¾øÀ½.
10)±âŸÂü°í»çÇ×(ÀÓ´ë°ü·Ê ¹× ±âŸ)
ÀÓ´ë°ü°è´Â ¹Ì»óÀÓ.
Âü°í
»çÇ×
ÀÓÂ÷ÀÎ ¹× ÀÓÂ÷±Ç½Â°èÀÎ ÁÖÅõµ½Ãº¸Áõ°ø»çÀÇ ¸Å¼öÀο¡ ´ëÇÑ ´ëÇ×·Â Æ÷±âÁ¶°Ç ¸Å°¢

°ÇÃ๰ÇöȲ

¼ÒÀçÁö ¼­¿ïƯº°½Ã °­¼­±¸ È­°îµ¿ 408-56¹øÁö
´ëÁö¸éÀû 302.05§³
(91.53Æò)
¿¬¸éÀû 681.84§³
(206.62Æò)
°ÇÃà¸éÀû 177.84§³
(53.89Æò)
¿ëÀû·ü»êÁ¤
¿¬¸éÀû
532.49§³
(161.36Æò)
°ÇÆóÀ² 58.88% ¿ëÀû·ü 176.29%
Áö»óÃþ¼ö 5Ãþ ÁöÇÏÃþ¼ö 1Ãþ
ÁÖ¿ëµµ °øµ¿ÁÖÅà ±¸Á¶ ö±ÙÄÜÅ©¸®Æ®±¸Á¶
Âø°øÀÏÀÚ 2020.02.07 »ç¿ë½ÂÀÎÀÏÀÚ 2020.08.14
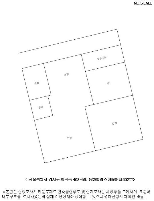
°ÇÃ๰Ãþº°ÇöȲ [º¸±â]


±¹ÅäºÎ½Ç°Å·¡°¡ ¼­¿ïƯº°½Ã °­¼­±¸ È­°îµ¿

¡Ü ¸Å¸Å

¸éÀû(§³), ±Ý¾×(¸¸¿ø)

¡Ü Àü¼¼

¸éÀû(§³), ±Ý¾×(¸¸¿ø)

°è¾àÀϰǹ°¸íĪÃþ¿¬¸éÀûº¸Áõ±Ý¿ù¼¼°ÇÃà
26.03.31(772-22)439.1623,52002021
26.03.31û¼ÛÆòÈ­ÇコÇϿ콺339.8422,68062016
26.03.31û¼ÛÆòÈ­ÇコÇϿ콺339.8422,68002016
26.03.30¹Ì·¡ÇϿ콺224.2420,00022018
26.03.30³ª»ê¸Ç¼Ç2Â÷428.89,100252002
¢Ñ ´õº¸±â

µî±âºÎµîº» ¿ä¾à(°Ç¹°)

  Á¢¼öÀÏÀÚ µî±â¸ñÀû/±Ç¸®ÀÚ ±Ç¸®±Ý¾× ±âÁØ
1 2020³â11¿ù9ÀÏ
¼ÒÀ¯±Ç
±ÇOO
¼Ò¸ê
2 2022³â4¿ù4ÀÏ
¾Ð·ù
±¹
¼Ò¸ê±âÁØ
3 2022³â6¿ù13ÀÏ
°¡¾Ð·ù
ÁÖOOOO
540,000,000 ¼Ò¸ê
4 2022³â12¿ù12ÀÏ
ÀÓÂ÷±Ç¼³Á¤
¹®OO
265,000,000 ¼Ò¸ê
5 2023³â3¿ù21ÀÏ
¾Ð·ù
¼­OOOO
¼Ò¸ê
6 2025³â3¿ù13ÀÏ
¾Ð·ù
±¹
¼Ò¸ê
7 2025³â6¿ù24ÀÏ
°­Á¦°æ¸Å
ÁÖOOOO
¼Ò¸ê

ÀÓÂ÷ÀÎÇöȲ (¹è´ç¿ä±¸Á¾±âÀÏ: 2025-09-23)

ÀÓÂ÷ÀÎ ¿ëµµ/Á¡À¯ º¸Áõ±Ý/¿ù¼¼ ´ëÇ×·Â
ÀüÀÔÀÏ/È®Á¤ÀÏ ¹è´ç¿ä±¸ ºñ°í
¹®OO ÀüºÎ 265,000,000
O
2020.10.30.
2020.10.20.
2020.10.30.~
ÁÖOOOOOOO ÀüºÎ 265,000,000
O
2020.10.30.
2020.10.20.
2025.9.23. 2020.10.30.~
ºñ°í
(¸Å°¢¹°°Ç
¸í¼¼¼­)
ÁÖÅõµ½Ãº¸Áõ°ø»ç:ÀÌ »ç°Ç ½Åûä±ÇÀÚ·Î ÁÖÅÃÀÓÂ÷±ÇÀÚ ¹®°Ç¿ìÀÇ ÁöÀ§¸¦ ½Â°èÇÏ¿© ±Ç¸®½Å°í ¹× ¹è´ç¿ä±¸ÇÔ

¿©ÀÇÁÖ°æ¸Å Á¶¾ð ÇÑ ¸¶µð


ÁÖÀÇ»çÇ× (ÃÖ¼±¼øÀ§ ¼³Á¤ÀÏ: 2022.4.4. ¾Ð·ù ¼³Á¤)

¸Å°¢À¸·Î ¼Ò¸êµÇÁö ¾Ê´Â µî±âºÎ±Ç¸®:
¸Å°¢À¸·Î ¼³Á¤µÈ °ÍÀ¸·Î º¸´Â Áö»ó±Ç:
Ưº°¸Å°¢Á¶°Ç : ÁÖÅõµ½Ãº¸Áõ°ø»ç´Â ¸Å¼öÀο¡ ´ëÇØ ¹è´ç¹ÞÁö ¸øÇÏ´Â Àܾ׿¡ ´ëÇÑ ÀÓ´ëÂ÷º¸Áõ±Ý ¹Ýȯû±¸±ÇÀ» Æ÷±âÇϰí, ÀÓÂ÷±Ç µî±â¸¦ ¸»¼ÒÇÏ´Â °ÍÀ» Á¶°ÇÀ¸·Î ¸Å°¢
¡Ø¹Ì³³°ü¸®ºñ(°ø¿ë) Àμö¿©ºÎ¸¦ ÀÔÂû Àü¿¡ È®ÀÎÇϽñ⠹ٶø´Ï´Ù

 

Áö¿ªºÐ¼®

ÁöÇÏö¸í Á÷¼±°Å¸®

Çб³¸í ÀüÈ­¹øÈ£ ÁÖ¼Ò Á÷¼±°Å¸®

¹ý¿ø

¼­¿ï³²ºÎÁö¹æ¹ý¿ø (080-88)¼­¿ïƯº°½Ã ¾çõ±¸ ½Å¿ù·Î 386(½ÅÁ¤µ¿)
´ëÇ¥ : 02)2192-1114
°üÇÒÁö¿ª : ¿µµîÆ÷±¸, °­¼­±¸, ¾çõ±¸, ±¸·Î±¸, ±Ýõ±¸

µî±â¼Ò ¼­¿ï³²ºÎÁö¹æ¹ý¿ø º»¿ø µî±â±¹ (´ëÇ¥:1544-0773, ÆÑ½º:(02)2629-7307, ¼­¿ïƯº°½Ã ¿µµîÆ÷±¸ °æÀηΠ772 (¹®·¡µ¿ 1°¡))
¼¼¹«¼­ °­¼­¼¼¹«¼­ (´ëÇ¥:02-2630-42, ÆÑ½º:02-2679-8777, ¼­¿ïƯº°½Ã °­¼­±¸ ¸¶°î¼­1·Î 60 (¸¶°îµ¿))

Àαٳ«ÂûÅë°è

±â°£ ¸Å°¢°Ç¼ö Æò±Õ°¨Á¤°¡
Æò±Õ¸Å°¢°¡
¸Å°¢°¡À²
Æò±ÕÀ¯Âû¼ö
3°³¿ù 214°Ç 262,715,692¿ø
184,828,602¿ø
70%
2.7ȸ
6°³¿ù 546°Ç 261,354,031¿ø
190,240,188¿ø
73%
2.5ȸ
12°³¿ù 996°Ç 260,595,386¿ø
196,347,383¿ø
76%
2.4ȸ


º» °æ¸ÅÁ¤º¸´Â ¹ý¿øÀÚ·á¿Í ÀÏÄ¡Çϵµ·Ï ÇÏ¿´À¸³ª ±Ç¸®»çÇ׺¯µ¿, ÀÔ·ÂÂø¿À µîÀÇ ¿øÀÎÀ¸·Î »ç½Ç°ú ´Ù¸¦ ¼ö ÀÖ½À´Ï´Ù. ÀÌ¿ë¾à°ü¿¡ ÀǰЏéÃ¥Á¶°ÇÀ¸·Î Á¦°øµÊÀ» ¾Ë¸®¸ç, °æ¸ÅÀÔÂû½Ã ¹Ýµå½Ã °ü·Ã °øºÎ¸¦ ÀçÈ®ÀÎÇϽñ⠹ٶø´Ï´Ù. º¸´Ù Æí¸®ÇÑ °æ¸ÅÁ¤º¸ Á¦°øÀ» À§ÇØ Áö¼ÓÀûÀ¸·Î °³¼±ÇϰڽÀ´Ï´Ù. ÀÌ¿ëÇØ Áּż­ °¨»çÇÕ´Ï´Ù.