·Î±×ÀÎ
1158
¿ÀÇǽºÅÚ
ÀÎõÁö¹æ¹ý¿ø
 °¨Á¤°¡151,000,000 ¿ø
 ÃÖÀú°¡(70%) 105,700,000 ¿ø
 º¸Áõ±Ý(10%) 10,570,000 ¿ø
 Ã»±¸¾×168,000,000 ¿ø
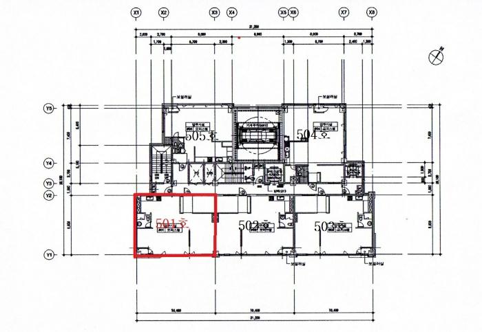
ÀÎõ±¤¿ª½Ã ³²µ¿±¸ °æÀηΠ617, 5Ãþ501È£ (°£¼®µ¿,°£¼® ¿ÀÇÇ¾Ó ºñ)
ÀÎõ±¤¿ª½Ã ³²µ¿±¸ °£¼®µ¿ 249-5
»ç°Ç¹øÈ£ 2024Ÿ°æ581234
°æ¸ÅÁ¾·ùºÎµ¿»ê°­Á¦°æ¸Å
¸Å°¢´ë»óÅäÁö ¹× °Ç¹°Àϰý ¸Å°¢
¸Å°¢±âÀÏ    2026.03.20(±Ý) 10:00 ÀÔÂû 15ÀÏÀü    
ÅäÁö¸éÀû11.71§³(3.54 Æò)
°Ç¹°¸éÀû81.54§³(24.67 Æò)
乫/¼ÒÀ¯ÀÚ¸Á OOOO OOOOOOO OOO / ¸Á OOOO OOOOOOO OOO
ä±ÇÀÚÁÖOOOOOOO
ÆäÀ̽ººÏ Æ®À§ÅÍ ±¸±Û+
īī¿À½ºÅ丮
īī¿ÀÅå sms¹®ÀÚº¸³»±â
 

±âÀϳ»¿ª

°æ°ú ³¯Â¥ Àú°¨ ÃÖÀú°¡ °á°ú
Á¢¼öÀÏ 2024-12-11 °æ¸ÅÁ¢¼ö
~2ÀÏ 
2024-12-13 °æ¸Å°³½Ã°áÁ¤
~99ÀÏ 
2025-03-20 ¹è´ç¿ä±¸Á¾±âÀÏ
~421ÀÏ 
2026-02-05 100%
151,000,000
À¯Âû
~464ÀÏ 
2026-03-20 70%
105,700,000
ÁøÇà
¹°°Ç¸í¼¼¼­ ÇöȲÁ¶»ç¼­ ¹®°ÇÁ¢¼ö ¼Û´Þ³»¿ª

°¨Á¤Æò°¡ÇöȲ

¸ñ·Ï ÁÖ¼Ò ±¸Á¶/¿ëµµ/´ëÁö±Ç ¸éÀû ºñ°í
´ëÁö±Ç
°£¼®µ¿ 249-5 826.7ºÐÀÇ 11.71 11.71 §³
(3.54Æò)
°Ç¹°
°£¼®µ¿ 249-5 5Ãþ501È£ ö°ñö±ÙÄÜÅ©¸®Æ®Á¶ 81.54 §³
(24.67Æò)
1) À§Ä¡/ÀϹݻó¾÷Áö¿ª/Â÷·® Á¢±ÙÀÌ °¡´É/°£¼±µµ·Î/ö±ÙÄÜÅ©¸®Æ®Á¶/Æò½º¶óºêÁöºØ/µµ½Ã°¡½º ´õº¸±â
°¨Á¤Æò°¡ ¿äÇ×Ç¥
1)À§Ä¡ ¹× ÁÖÀ§È¯°æ
´ë»ó¹°°ÇÀº ÀÎõ±¤¿ª½Ã ³²µ¿±¸ °£¼®µ¿ ¼ÒÀç "°£¼®¿À°Å¸®¿ª(ÀÎõ1È£¼±)" ³²¼­Ãø Àαٿ¡
À§Ä¡Çϸç, ÁÖÀ§´Â ´ë»ó°ú ³²µ¿ÃøÀ¸·Î Á¢ÇÏ´Â ±¤´ë·ÎÀÇ °æÀηΠº¯¿¡ Á¶¼ºµÈ ´ëÇü ¿ÀÇǽº
ÅÚ µîÀÌ ÁÖ¸¦ ÀÌ·ç´Â ³ë¼±»ó°¡Áö´ëÀÓ.
2)±³Åë»óȲ
º»°Ç±îÁö Â÷·® Á¢±ÙÀÌ °¡´ÉÇϰí, Àα٠±³Åë½Ã¼³ ¹× °£¼±µµ·Î¿ÍÀÇ °Å¸®, ÆíÀǼº µî °í·Á
½Ã Á¦¹Ý ±³Åë»óȲÀº ¾çÈ£ÇÔ.
3)°Ç¹°ÀÇ ±¸Á¶
ö±ÙÄÜÅ©¸®Æ®Á¶ (ö±Ù)ÄÜÅ©¸®Æ®, Æò½º¶óºêÁöºØ 15Ãþ °Ç¹° ³» 5Ãþ 501È£·Î¼­,
(»ç¿ë½ÂÀÎÀÏ: 2007.03.08)

¿Ü º® : ¹ý·®ÆÇ³Ú ¸¶°¨ µî.
â È£ : ¼¦½Ãâȣ µî.
4)ÀÌ¿ë»óÅÂ
ÁÖ°Å¿ë(¿ÀÇǽºÅÚ)À¸·Î ÀÌ¿ëÁßÀÓ.

5)¼³ºñ³»¿ª
À§»ý ¹× ±Þ¹è¼ö¼³ºñ, ³­¹æ¼³ºñ, µµ½Ã°¡½º¼³ºñ, ½Â°­±â¼³ºñ µîÀÌ °®Ãß¾îÁ® ÀÖÀ½.
6)ÅäÁöÀÇ Çü»ó ¹× ÀÌ¿ë»óÅÂ
ÀÎÁ¢Áö¿Í µî°íÆòźÇÑ ´ëü·Î »ç´Ù¸®Çü ÅäÁö·Î¼­, "°£¼® ¿ÀÇÇ¾Ó ºñ" °ÇºÎÁö·Î ÀÌ¿ëÁßÀÓ.
7)ÀÎÁ¢ µµ·Î»óŵî
º»°Ç ³²µ¿ÃøÀ¸·Î ±¤´ë·ÎÀÇ °æÀηΠ¹× ¼­ÃøÀ¸·Î ·ÎÆø ¾à6¹ÌÅÍÀÇ À̸é ÁøÀÔµµ·Î¿¡ °¢°¢ Á¢
Çϰí ÀÖÀ½.
8)ÅäÁöÀÌ¿ë°èȹ ¹× Á¦ÇÑ»óÅÂ
ÀϹݻó¾÷Áö¿ª, ¹æÈ­Áö±¸, ½Ã°¡Áö°æ°üÁö±¸(2023-12-18), ¼Ò·Î3·ù(Æø 8m ¹Ì¸¸)(2016-11-14)
(Á¢ÇÕ), °¡Ãà»çÀ°Á¦Çѱ¸¿ª(2013-03-08)((¹®ÀÇ:³²µ¿±¸È¯°æº¸Àü°ú 032-453-2343))<°¡ÃàºÐ´¢
ÀÇ °ü¸® ¹× À̿뿡 °üÇÑ ¹ý·ü>, °ÇÃà¿ëµµÁö¿ª±âŸ(2019-01-18)(°ÇÃà¹ý Á¦46Á¶(°ÇÃ༱ÀÇ
ÁöÁ¤)[°ÇÃà°ú ¹®ÀÇ:032-453-2770])<°ÇÃà¹ý>, °ú¹Ð¾ïÁ¦±Ç¿ª<¼öµµ±ÇÁ¤ºñ°èȹ¹ý>, öµµº¸È£
Áö±¸(2014-07-14)(¹®ÀÇ:ã¼´ëÁß±³Åë°ú 440-3832)<öµµ¾ÈÀü¹ý>
9)°øºÎ¿ÍÀÇ Â÷ÀÌ
ÇØ´ç»çÇ× ¾øÀ½.
10)±âŸÂü°í»çÇ×(ÀÓ´ë°ü·Ê ¹× ±âŸ)
- ÀÓ´ë°ü°è´Â ¹Ì»óÀÓ.


¡Ø ´ë»ó¹°°ÇÀÇ ³»ºÎ±¸Á¶ ¹× ÀÌ¿ë»óÅ µîÀº, ÀÌÇØ°ü°èÀÎÀÇ Æó¹®ºÎÀç·Î, ÁýÇÕ°ÇÃ๰´ëÀåÀ»
±âÃÊÇÑ Ç¥ÁØÀûÀÎ ÀÌ¿ë»óȲ ¹× °ÇÃ๰ÇöȲµµ¸é µîÀ» ±âÁØÇÏ¿´À½.

°ÇÃ๰ÇöȲ

¼ÒÀçÁö ÀÎõ±¤¿ª½Ã ³²µ¿±¸ °£¼®µ¿ 249-5¹øÁö
´ëÁö¸éÀû 826.7§³
(250.52Æò)
¿¬¸éÀû 8656.95§³
(2623.32Æò)
°ÇÃà¸éÀû 562.81§³
(170.55Æò)
¿ëÀû·ü»êÁ¤
¿¬¸éÀû
7410.39§³
(2245.57Æò)
°ÇÆóÀ² 68.08% ¿ëÀû·ü 896.38%
Áö»óÃþ¼ö 15Ãþ ÁöÇÏÃþ¼ö 2Ãþ
ÁÖ¿ëµµ ¾÷¹«½Ã¼³ ±¸Á¶ ö°ñö±ÙÄÜÅ©¸®Æ®±¸Á¶
Âø°øÀÏÀÚ »ç¿ë½ÂÀÎÀÏÀÚ 2007.03.08
°ÇÃ๰Ãþº°ÇöȲ [º¸±â]


±¹ÅäºÎ½Ç°Å·¡°¡ ÀÎõ±¤¿ª½Ã ³²µ¿±¸ °£¼®µ¿

¡Ü ¸Å¸Å

¸éÀû(§³), ±Ý¾×(¸¸¿ø)

¡Ü Àü¼¼

¸éÀû(§³), ±Ý¾×(¸¸¿ø)

°è¾àÀϰǹ°¸íĪÃþÀü¿ëº¸Áõ±Ý¿ù¼¼°ÇÃà
26.01.17°£¼® ¿ÀÇÇ¾Ó B882.2913,98002007
26.01.05°£¼® ¿ÀÇÇ¾Ó B1581.5413,5002007
25.08.14°£¼® ¿ÀÇÇ¾Ó B566.4811,4002007
25.06.20°£¼® ¿ÀÇÇ¾Ó B1281.54500802007
25.06.14°£¼® ¿ÀÇÇ¾Ó B981.541,000852007
¢Ñ ´õº¸±â

µî±âºÎµîº» ¿ä¾à(°Ç¹°)

  Á¢¼öÀÏÀÚ µî±â¸ñÀû/±Ç¸®ÀÚ ±Ç¸®±Ý¾× ±âÁØ
1 2021³â4¿ù2ÀÏ
¼ÒÀ¯±Ç
±èOO
¼Ò¸ê
2 2021³â4¿ù2ÀÏ
¼ÒÀ¯±Ç
±èOO
¼Ò¸ê
3 2022³â8¿ù4ÀÏ
¾Ð·ù
±¹
¼Ò¸ê±âÁØ
4 2022³â8¿ù4ÀÏ
¾Ð·ù
±¹
¼Ò¸ê±âÁØ
5 2022³â9¿ù16ÀÏ
°¡¾Ð·ù
ÁÖOOOO
1,450,500,000 ¼Ò¸ê
6 2022³â9¿ù16ÀÏ
°¡¾Ð·ù
ÁÖOOOO
1,450,500,000 ¼Ò¸ê
7 2022³â11¿ù3ÀÏ
¾Ð·ù
³²OO
¼Ò¸ê
8 2022³â11¿ù3ÀÏ
¾Ð·ù
³²OO
¼Ò¸ê
9 2023³â5¿ù9ÀÏ
ÀÓÂ÷±Ç¼³Á¤
±ÇOO
168,000,000 ¼Ò¸ê
10 2023³â5¿ù9ÀÏ
ÀÓÂ÷±Ç¼³Á¤
±ÇOO
168,000,000 ¼Ò¸ê
11 2024³â12¿ù13ÀÏ
°­Á¦°æ¸Å
ÁÖOOOO
¼Ò¸ê
12 2024³â12¿ù13ÀÏ
°­Á¦°æ¸Å
ÁÖOOOO
¼Ò¸ê

ÀÓÂ÷ÀÎÇöȲ (¹è´ç¿ä±¸Á¾±âÀÏ: 2025-03-20)

ÀÓÂ÷ÀÎ ¿ëµµ/Á¡À¯ º¸Áõ±Ý/¿ù¼¼ ´ëÇ×·Â
ÀüÀÔÀÏ/È®Á¤ÀÏ ¹è´ç¿ä±¸ ºñ°í
±ÇOO ÀüºÎ 168,000,000
O
2021.03.12.
2021.02.08.
ÀÎOO °£¼®¿ÀÇǾӺñµ¿501È£ 10,000,000
[¿ù]700,000
O
2020.02.13.
2020.02.10.~2021.01.31.
ÁÖOOOOOOOOOOOOOOOO ÀüºÎ 168,000,000
O
2021.03.12.
2021.02.08.
2025.03.12. 2021.03.12.~2023.06.05.
ºñ°í
(¸Å°¢¹°°Ç
¸í¼¼¼­)
- ±Çº¸¼®: ÁÖÅÃÀÓÂ÷±Çµî±â±ÇÀڷμ­ ÁÖÅÃÀÓÂ÷±Çµî±âÀÏÀº 2023.05.09.ÀÓ - ÁÖÅõµ½Ãº¸Áõ°ø»ç(ÀÓÂ÷ÀÎ: ±Çº¸¼®): ÁÖÅÃÀÓÂ÷±ÇÀÇ ½Â°èÀÎÀÎ ÁÖÅõµ½Ãº¸Áõ°ø»ç·ÎºÎÅÍ ¿ì¼±º¯Á¦±Ç¸¸ ÁÖÀåÇÏ°í ´ëÇ×·ÂÀº Æ÷±âÇϸç ÀÓ´ëÂ÷º¸Áõ±Ý Àü¾×À» º¯Á¦¹ÞÁö ¸øÇÏ´õ¶óµµ ¸Å¼öÀο¡ ´ëÇÑ ÀÜÁ¸ ÀÓ´ëÂ÷º¸Áõ±Ý ¹Ýȯû±¸±ÇÀ» Æ÷±âÇϰí ÀÓ´ëÂ÷µî±â¸¦ ¸»¼ÒÇÏ´Â °Í¿¡ µ¿ÀÇÇÑ´Ù´Â È®¾à¼­°¡ Á¦ÃâµÊ

¿©ÀÇÁÖ°æ¸Å Á¶¾ð ÇÑ ¸¶µð

¼±¼øÀ§ ÀÓÂ÷±Çµî±â°¡ µÇ¾î ÀÖ½À´Ï´Ù
´ëÇ×·ÂÀÌ ÀÖ´Â ¼±¼øÀ§ ÀÓÂ÷±Çµî±â ±Ç¸®ÀÚ°¡ ¹è´çÀ» Àü¾× ¹ÞÁö ¸øÇÒ °æ¿ì ³«ÂûÀÚ°¡ ÀÜ¿© º¸Áõ±ÝÀ» ÀμöÇØ¾ßÇÏ´Â °æ¿ìµµ ÀÖ½À´Ï´Ù.

ÁÖÀÇ»çÇ× (ÃÖ¼±¼øÀ§ ¼³Á¤ÀÏ: 2022.08.04. ¾Ð·ù ¼³Á¤)

¸Å°¢À¸·Î ¼Ò¸êµÇÁö ¾Ê´Â µî±âºÎ±Ç¸®: À»±¸ ¼øÀ§11¹ø ÁÖÅÃÀÓÂ÷±Çµî±â(´Ù¸¸ ÁÖÅõµ½Ãº¸Áõ°ø»çÀÇ ¸»¼Òµ¿ÀÇ È®¾à¼­°¡ Á¦ÃâµÊ)
¸Å°¢À¸·Î ¼³Á¤µÈ °ÍÀ¸·Î º¸´Â Áö»ó±Ç:
¡Ø¹Ì³³°ü¸®ºñ(°ø¿ë) Àμö¿©ºÎ¸¦ ÀÔÂû Àü¿¡ È®ÀÎÇϽñ⠹ٶø´Ï´Ù

 

Áö¿ªºÐ¼®

ÁöÇÏö¸í Á÷¼±°Å¸®

Çб³¸í ÀüÈ­¹øÈ£ ÁÖ¼Ò Á÷¼±°Å¸®

¹ý¿ø

ÀÎõÁö¹æ¹ý¿ø (222-20)ÀÎõ±¤¿ª½Ã ¹ÌÃßȦ±¸ ¼Ò¼º·Î 163¹ø±æ 17(ÇÐÀ͵¿)
´ëÇ¥ : 032)860-1113~4
°üÇÒÁö¿ª : Áß±¸, µ¿±¸, ³²±¸, ¿¬¼ö±¸, ³²µ¿±¸, ºÎÆò±¸, °è¾ç±¸, ¼­±¸, ¿ËÁø±º, °­È­±º

µî±â¼Ò ÀÎõÁö¹æ¹ý¿ø º»¿ø µî±â±¹ (´ëÇ¥:1544-0773, ÆÑ½º:(032)620-9099, ÀÎõ±¤¿ª½Ã ¹ÌÃßȦ±¸ °æ¿ø´ë·Î 881(Á־ȵ¿ 983))
¼¼¹«¼­ ³²ÀÎõ¼¼¹«¼­ (´ëÇ¥:032-460-52, ÆÑ½º:032-463-5778, ÀÎõ±¤¿ª½Ã ³²µ¿±¸ ÀÎÇÏ·Î 548 (±¸¿ùµ¿))

Àαٳ«ÂûÅë°è

±â°£ ¸Å°¢°Ç¼ö Æò±Õ°¨Á¤°¡
Æò±Õ¸Å°¢°¡
¸Å°¢°¡À²
Æò±ÕÀ¯Âû¼ö
3°³¿ù 131°Ç 187,698,473¿ø
136,507,423¿ø
74%
1.5ȸ
6°³¿ù 221°Ç 192,852,941¿ø
139,464,105¿ø
73%
1.5ȸ
12°³¿ù 345°Ç 199,450,725¿ø
145,081,218¿ø
73%
1.5ȸ


º» °æ¸ÅÁ¤º¸´Â ¹ý¿øÀÚ·á¿Í ÀÏÄ¡Çϵµ·Ï ÇÏ¿´À¸³ª ±Ç¸®»çÇ׺¯µ¿, ÀÔ·ÂÂø¿À µîÀÇ ¿øÀÎÀ¸·Î »ç½Ç°ú ´Ù¸¦ ¼ö ÀÖ½À´Ï´Ù. ÀÌ¿ë¾à°ü¿¡ ÀǰЏéÃ¥Á¶°ÇÀ¸·Î Á¦°øµÊÀ» ¾Ë¸®¸ç, °æ¸ÅÀÔÂû½Ã ¹Ýµå½Ã °ü·Ã °øºÎ¸¦ ÀçÈ®ÀÎÇϽñ⠹ٶø´Ï´Ù. º¸´Ù Æí¸®ÇÑ °æ¸ÅÁ¤º¸ Á¦°øÀ» À§ÇØ Áö¼ÓÀûÀ¸·Î °³¼±ÇϰڽÀ´Ï´Ù. ÀÌ¿ëÇØ Áּż­ °¨»çÇÕ´Ï´Ù.