·Î±×ÀÎ
1166
´Ù¼¼´ë(ºô¶ó)
ÀÎõÁö¹æ¹ý¿ø ºÎõÁö¿ø
 °¨Á¤°¡237,000,000 ¿ø
 ÃÖÀú°¡(70%) 165,900,000 ¿ø
 º¸Áõ±Ý(10%) 16,590,000 ¿ø
 Ã»±¸¾×191,098,027 ¿ø
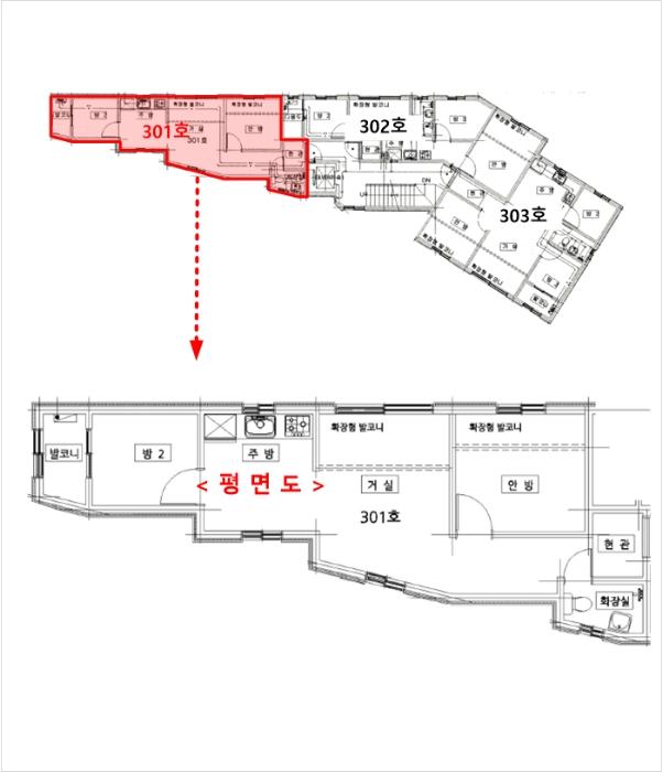
°æ±âµµ ºÎõ½Ã ¿ø¹Ì±¸ ¾à´ë·Î 40, 3Ãþ301È£ (¾à´ëµ¿,´ÃǪ¸¥ºô)
°æ±âµµ ºÎõ½Ã ¿ø¹Ì±¸ ¾à´ëµ¿ 75-3
»ç°Ç¹øÈ£ 2024Ÿ°æ5733
°æ¸ÅÁ¾·ùºÎµ¿»ê°­Á¦°æ¸Å
¸Å°¢´ë»óÅäÁö ¹× °Ç¹°Àϰý ¸Å°¢
¸Å°¢±âÀÏ    2026.03.24(È­) 10:00 ÀÔÂû 30ÀÏÀü    
ÅäÁö¸éÀû33.56§³(10.15 Æò)
°Ç¹°¸éÀû40.34§³(12.20 Æò)
乫/¼ÒÀ¯ÀÚÁÖOOO OOO / ÁÖOOO OOO
ä±ÇÀÚ¼ÛOO
ÆäÀ̽ººÏ Æ®À§ÅÍ ±¸±Û+
īī¿À½ºÅ丮
īī¿ÀÅå sms¹®ÀÚº¸³»±â
 

±âÀϳ»¿ª

°æ°ú ³¯Â¥ Àú°¨ ÃÖÀú°¡ °á°ú
Á¢¼öÀÏ 2024-10-16 °æ¸ÅÁ¢¼ö
~1ÀÏ 
2024-10-17 °æ¸Å°³½Ã°áÁ¤
~72ÀÏ 
2024-12-27 ¹è´ç¿ä±¸Á¾±âÀÏ
~477ÀÏ 
2026-02-05 100%
237,000,000
À¯Âû
~524ÀÏ 
2026-03-24 70%
165,900,000
ÁøÇà
¹°°Ç¸í¼¼¼­ ÇöȲÁ¶»ç¼­ ¹®°ÇÁ¢¼ö ¼Û´Þ³»¿ª

°¨Á¤Æò°¡ÇöȲ

¸ñ·Ï ÁÖ¼Ò ±¸Á¶/¿ëµµ/´ëÁö±Ç ¸éÀû ºñ°í
´ëÁö±Ç
¾à´ëµ¿ 71-4 328ºÐÀÇ 33.56 33.56 §³
(10.15Æò)
°Ç¹°
¾à´ëµ¿ 71-4 3Ãþ301È£ ö±ÙÄÜÅ©¸®Æ®±¸Á¶ 40.34 §³
(12.20Æò)
1) À§Ä¡/Á¦2Á¾ÀϹÝÁÖ°ÅÁö¿ª/³ë¼±¹ö½ºÁ¤·ùÀå/ö±ÙÄÜÅ©¸®Æ®±¸Á¶/µµ½Ã°¡½º/°³º°³­¹æ/¹æ2 ´õº¸±â
°¨Á¤Æò°¡ ¿äÇ×Ç¥
1)À§Ä¡ ¹× ÁÖÀ§È¯°æ
º»°ÇÀº °æ±âµµ ºÎõ½Ã ¿ø¹Ì±¸ ¾à´ëµ¿ ¼ÒÀç "ºÎõÃʵîÇб³" ³²µ¿Ãø Àαٿ¡ À§Ä¡Çϸç, ÁÖÀ§´Â ´Üµ¶ÁÖÅÃ, °øµ¿ÁÖÅÃ, ±Ù¸°»ýȰ½Ã¼³ ¹× °¢±ÞÇб³ µîÀ¸·Î Çü¼ºµÈ ±âÁ¸ ÁÖ°ÅÁö´ëÀÓ.
2)±³Åë»óȲ
º»°Ç±îÁö Â÷·®ÀÇ Á¢±ÙÀÌ ¿ëÀÌÇϰí Àαٿ¡ ³ë¼±¹ö½ºÁ¤·ùÀåÀÌ ¼ÒÀçÇÏ´Â µî ´ëÁß±³Åë»çÁ¤Àº º¸ÅëÀÓ.
3)°Ç¹°ÀÇ ±¸Á¶
ö±ÙÄÜÅ©¸®Æ®±¸Á¶ ö±ÙÄÜÅ©¸®Æ®ÁöºØ 5Ãþ Áß 3Ãþ 301È£·Î¼­,
¿Üº®: ½Ã¸àÆ®¸ôÅ» À§ ÆäÀÎÆ®¸¶°¨ ¹× ¼®À縶°¨ µî,
³»º®: º®Áöµµ¹è ¹× ŸÀϸ¶°¨,
âȣ: ÇÏÀÌ»õ½ÃâÀÓ.
4)ÀÌ¿ë»óÅÂ
´Ù¼¼´ëÁÖÅÃ(¹æ2, °Å½Ç, ÁÖ¹æ, ¿å½Ç, ¹ßÄÚ´Ï µî)À¸·Î ÀÌ¿ëÁßÀÓ.
5)¼³ºñ³»¿ª
À§»ý¼³ºñ, ±Þ¹è¼ö¼³ºñ, °³º°³­¹æ¼³ºñ, µµ½Ã°¡½º¼³ºñ, ¿¤¸®º£ÀÌÅͼ³ºñ µîÀÌ µÇ¾îÀÖÀ½.
6)ÅäÁöÀÇ Çü»ó ¹× ÀÌ¿ë»óÅÂ
3ÇÊÁö ÀÏ´ÜÁöÀÇ ºÎÁ¤Çü ÆòÁö·Î¼­ °øÈ÷ °øµ¿ÁÖÅà °ÇºÎÁö·Î ÀÌ¿ëÁßÀÓ.
7)ÀÎÁ¢ µµ·Î»óŵî
ºÏÃøÀ¸·Î Æø8¹ÌÅÍ, ³²ÃøÀ¸·Î Æø3¹ÌÅÍ ³»¿ÜÀÇ Æ÷Àåµµ·Î¿¡ Á¢ÇÔ.
8)ÅäÁöÀÌ¿ë°èȹ ¹× Á¦ÇÑ»óÅÂ
°øÈ÷ Á¦2Á¾ÀϹÝÁÖ°ÅÁö¿ª , ¼Ò·Î2·ù(Æø 8m-10m)(¼Ò·Î2-180È£¼±)(Á¢ÇÕ),Ç×°øÇ¥¸é<°øÇ׽ü³¹ý>, °ú¹Ð¾ïÁ¦±Ç¿ª<¼öµµ±ÇÁ¤ºñ°èȹ¹ý>,<Ãß°¡±âÀç>°ÇÃà¹ý Á¦2Á¶Á¦1Ç×Á¦11È£³ª¸ñ¿¡ µû¸¥ µµ·Î(µµ·ÎÀÏºÎÆ÷ÇÔ).

9)°øºÎ¿ÍÀÇ Â÷ÀÌ
¾ø À½.
10)±âŸÂü°í»çÇ×(ÀÓ´ë°ü·Ê ¹× ±âŸ)
ÀÓ´ë°ü°è´Â ¹Ì»óÀÓ.

°ÇÃ๰ÇöȲ

¼ÒÀçÁö °æ±âµµ ºÎõ½Ã ¿ø¹Ì±¸ ¾à´ëµ¿ 71-4¹øÁö
´ëÁö¸éÀû 328§³
(99.39Æò)
¿¬¸éÀû 499.8§³
(151.45Æò)
°ÇÃà¸éÀû 181.9§³
(55.12Æò)
¿ëÀû·ü»êÁ¤
¿¬¸éÀû
499.8§³
(151.45Æò)
°ÇÆóÀ² 55.46% ¿ëÀû·ü 152.38%
Áö»óÃþ¼ö 5Ãþ ÁöÇÏÃþ¼ö  
ÁÖ¿ëµµ °øµ¿ÁÖÅà ±¸Á¶ ö±ÙÄÜÅ©¸®Æ®±¸Á¶
Âø°øÀÏÀÚ 2017.11.16 »ç¿ë½ÂÀÎÀÏÀÚ 2018.07.26
°ÇÃ๰Ãþº°ÇöȲ [º¸±â]


µî±âºÎµîº» ¿ä¾à(°Ç¹°)

  Á¢¼öÀÏÀÚ µî±â¸ñÀû/±Ç¸®ÀÚ ±Ç¸®±Ý¾× ±âÁØ
1 2024³â5¿ù7ÀÏ
¼ÒÀ¯±Ç
(OOOO
¼Ò¸ê
2 2024³â10¿ù17ÀÏ
°­Á¦°æ¸Å
¼ÛOO
¼Ò¸ê±âÁØ
3 2025³â2¿ù18ÀÏ
ÀÓÂ÷±Ç¼³Á¤
¼ÛOO
191,098,027 ¼Ò¸ê
4 2025³â2¿ù24ÀÏ
¾Ð·ù
ºÎOO
¼Ò¸ê
5 2025³â10¿ù28ÀÏ
¾Ð·ù
±¹
¼Ò¸ê

ÀÓÂ÷ÀÎÇöȲ (¹è´ç¿ä±¸Á¾±âÀÏ: 2024-12-27)

ÀÓÂ÷ÀÎ ¿ëµµ/Á¡À¯ º¸Áõ±Ý/¿ù¼¼ ´ëÇ×·Â
ÀüÀÔÀÏ/È®Á¤ÀÏ ¹è´ç¿ä±¸ ºñ°í
¼ÛOO ÀüºÎ 191,098,027
O
2019.07.24.
2019.07.18.
2024.12.17. 2019.07.25.~
ÁÖOOOOOOO ÀüºÎ 193,000,000
O
2019.07.24.
2019.07.18.
2024.11.26. 2019.07.25.~2021.07.24.
ºñ°í
(¸Å°¢¹°°Ç
¸í¼¼¼­)
¼ÛÀ¯¹Î :°æ¸Å½Åûä±ÇÀÚ °â ÁÖÅÃÀÓÂ÷±Çµî±â±ÇÀÚÀ̸ç ÁÖÅÃÀÓÂ÷±Çµî±âÀÏÀº 2025.2.18ÀÓ ¸Å¼öÀο¡°Ô ´ëÇ×ÇÒ ¼ö ÀÖ´Â ÀÓÂ÷ÀÎÀ̹ǷΠ¹è´ç¿¡¼­ º¸Áõ±ÝÀÌ Àü¾× º¯Á¦µÇÁö ¾Æ´ÏÇϸé Àܾ×À» ¸Å¼öÀÎÀÌ ÀμöÇÔ ÁÖ½Äȸ»ç ½ÅÇÑÀºÇà:ÀÓÂ÷ÀÎ ¼ÛÀ¯¹ÎÀÇ ÀÓÂ÷º¸Áõ±Ý¹Ýȯä±Ç Áú±ÇÀÚÀÓ(Áú±Ç¼³Á¤±Ý¾×Àº 184,800,000¿øÀÓ)

¿©ÀÇÁÖ°æ¸Å Á¶¾ð ÇÑ ¸¶µð

¼±¼øÀ§ ÀÓÂ÷±Çµî±â°¡ µÇ¾î ÀÖ½À´Ï´Ù
´ëÇ×·ÂÀÌ ÀÖ´Â ¼±¼øÀ§ ÀÓÂ÷±Çµî±â ±Ç¸®ÀÚ°¡ ¹è´çÀ» Àü¾× ¹ÞÁö ¸øÇÒ °æ¿ì ³«ÂûÀÚ°¡ ÀÜ¿© º¸Áõ±ÝÀ» ÀμöÇØ¾ßÇÏ´Â °æ¿ìµµ ÀÖ½À´Ï´Ù.

ÁÖÀÇ»çÇ× (ÃÖ¼±¼øÀ§ ¼³Á¤ÀÏ: 2024.10.17.°­Á¦°æ¸Å°³½Ã°áÁ¤ ¼³Á¤)

¸Å°¢À¸·Î ¼Ò¸êµÇÁö ¾Ê´Â µî±âºÎ±Ç¸®: ¸Å¼öÀο¡°Ô ´ëÇ×ÇÒ ¼ö ÀÖ´Â À»±¸ 3¹ø ÁÖÅÃÀÓÂ÷±Çµî±â ÀÖÀ½, ¹è´ç¿¡¼­ º¸Áõ±ÝÀÌ Àü¾× º¯Á¦µÇÁö ¾Æ´ÏÇϸé Àܾ×À» ¸Å¼öÀÎÀÌ ÀμöÇÔ
¸Å°¢À¸·Î ¼³Á¤µÈ °ÍÀ¸·Î º¸´Â Áö»ó±Ç:
¡Ø¹Ì³³°ü¸®ºñ(°ø¿ë) Àμö¿©ºÎ¸¦ ÀÔÂû Àü¿¡ È®ÀÎÇϽñ⠹ٶø´Ï´Ù

 

Áö¿ªºÐ¼®

ÁöÇÏö¸í Á÷¼±°Å¸®

Çб³¸í ÀüÈ­¹øÈ£ ÁÖ¼Ò Á÷¼±°Å¸®

¹ý¿ø

ÀÎõÁö¹æ¹ý¿ø ºÎõÁö¿ø (146-02)°æ±âµµ ºÎõ½Ã ¿ø¹Ì±¸ »óÀÏ·Î 129(»óµ¿)
´ëÇ¥ : 032)320-1114, ¹Î¿ø : 032)320-1234
°üÇÒÁö¿ª : ºÎõ½Ã, ±èÆ÷½Ã

µî±â¼Ò ÀÎõÁö¹æ¹ý¿ø ºÎõÁö¿ø µî±â°ú (´ëÇ¥:1544-0773, ÆÑ½º:(032)320-1484, 320-1485, °æ±âµµ ºÎõ½Ã »óÀÏ·Î 129 (»óµ¿ 445-1))
¼¼¹«¼­ ¼¼¹«¼­ (´ëÇ¥:, ÆÑ½º:, )

Àαٳ«ÂûÅë°è

±â°£ ¸Å°¢°Ç¼ö Æò±Õ°¨Á¤°¡
Æò±Õ¸Å°¢°¡
¸Å°¢°¡À²
Æò±ÕÀ¯Âû¼ö
3°³¿ù 31°Ç 241,193,548¿ø
179,087,064¿ø
74%
1.5ȸ
6°³¿ù 43°Ç 229,465,116¿ø
171,842,095¿ø
74%
1.4ȸ
12°³¿ù 48°Ç 228,875,000¿ø
176,266,648¿ø
76%
1.3ȸ


º» °æ¸ÅÁ¤º¸´Â ¹ý¿øÀÚ·á¿Í ÀÏÄ¡Çϵµ·Ï ÇÏ¿´À¸³ª ±Ç¸®»çÇ׺¯µ¿, ÀÔ·ÂÂø¿À µîÀÇ ¿øÀÎÀ¸·Î »ç½Ç°ú ´Ù¸¦ ¼ö ÀÖ½À´Ï´Ù. ÀÌ¿ë¾à°ü¿¡ ÀǰЏéÃ¥Á¶°ÇÀ¸·Î Á¦°øµÊÀ» ¾Ë¸®¸ç, °æ¸ÅÀÔÂû½Ã ¹Ýµå½Ã °ü·Ã °øºÎ¸¦ ÀçÈ®ÀÎÇϽñ⠹ٶø´Ï´Ù. º¸´Ù Æí¸®ÇÑ °æ¸ÅÁ¤º¸ Á¦°øÀ» À§ÇØ Áö¼ÓÀûÀ¸·Î °³¼±ÇϰڽÀ´Ï´Ù. ÀÌ¿ëÇØ Áּż­ °¨»çÇÕ´Ï´Ù.