·Î±×ÀÎ
1381
¾ÆÆÄÆ®
ÀÎõÁö¹æ¹ý¿ø
 °¨Á¤°¡260,000,000 ¿ø
 ÃÖÀú°¡(49%) 127,400,000 ¿ø
 º¸Áõ±Ý(10%) 12,740,000 ¿ø
 Ã»±¸¾×245,000,000 ¿ø
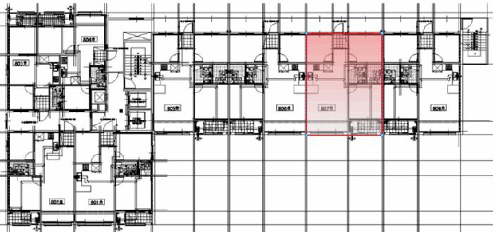
ÀÎõ±¤¿ª½Ã ¼­±¸ °øÃ̵¿ 309-2 ¹Ì¿ìÇØµå¸®¿ò 101µ¿ 8Ãþ807È£
»ç°Ç¹øÈ£ 2025Ÿ°æ511443
°æ¸ÅÁ¾·ùºÎµ¿»ê°­Á¦°æ¸Å
¸Å°¢´ë»óÅäÁö ¹× °Ç¹°Àϰý ¸Å°¢
¸Å°¢±âÀÏ    2026.06.29(¿ù) 10:00 ÀÔÂû 35ÀÏÀü    
ÅäÁö¸éÀû22.14§³(6.70 Æò)
°Ç¹°¸éÀû64.45§³(19.50 Æò)
乫/¼ÒÀ¯ÀÚ½ÅOO / ½ÅOO
ä±ÇÀÚÁÖOOOOOOO
ÆäÀ̽ººÏ Æ®À§ÅÍ ±¸±Û+
īī¿À½ºÅ丮
īī¿ÀÅå sms¹®ÀÚº¸³»±â
 

±âÀϳ»¿ª

°æ°ú ³¯Â¥ Àú°¨ ÃÖÀú°¡ °á°ú
Á¢¼öÀÏ 2025-08-07 °æ¸ÅÁ¢¼ö
~1ÀÏ 
2025-08-08 °æ¸Å°³½Ã°áÁ¤
~92ÀÏ 
2025-11-07 ¹è´ç¿ä±¸Á¾±âÀÏ
~181ÀÏ 
2026-02-04 100%
260,000,000
º¯°æ
~224ÀÏ 
2026-03-19 100%
260,000,000
À¯Âû
~256ÀÏ 
2026-04-20 70%
182,000,000
º¯°æ
~256ÀÏ 
2026-04-20 100%
260,000,000
À¯Âû
~288ÀÏ 
2026-05-22 70%
182,000,000
À¯Âû
~326ÀÏ 
2026-06-29 49%
127,400,000
ÁøÇà
¹°°Ç¸í¼¼¼­ ÇöȲÁ¶»ç¼­ ¹®°ÇÁ¢¼ö ¼Û´Þ³»¿ª

°¨Á¤Æò°¡ÇöȲ

¸ñ·Ï ÁÖ¼Ò ±¸Á¶/¿ëµµ/´ëÁö±Ç ¸éÀû ºñ°í
´ëÁö±Ç
°øÃ̵¿ 309-2 2495ºÐÀÇ 22.139 22.139 §³
(6.70Æò)
°Ç¹°
°øÃ̵¿ 309-2 101µ¿ 8Ãþ807È£ ö±ÙÄÜÅ©¸®Æ®±¸Á¶ 64.452 §³
(19.50Æò)
1) À§Ä¡/Á¦2Á¾ÀϹÝÁÖ°ÅÁö¿ª/Áö±¸´ÜÀ§°èȹ±¸¿ª/¹ö½ºÁ¤·ùÀå/ÁöÇÏö/ö±ÙÄÜÅ©¸®Æ®±¸Á¶/µµ½Ã°¡½º ´õº¸±â
°¨Á¤Æò°¡ ¿äÇ×Ç¥
1)À§Ä¡ ¹× ÁÖÀ§È¯°æ
º»°ÇÀº ÀÎõ±¤¿ª½Ã ¼­±¸ °øÃ̵¿ ¼ÒÀç 'ÀÎõ°øÃÌÃʵîÇб³' ºÏ¼­Ãø Àαٿ¡ À§Ä¡Çϸç,
ÁÖÀ§´Â ´Ù¼¼´ëÁÖÅÃ, ¾ÆÆÄÆ®, ±Ù¸°»ýȰ½Ã¼³ µîÀ¸·Î Çü¼ºµÈ Áö´ë·Î¼­ Á¦¹Ý ÁÖÀ§È¯°æÀº
¹«³­ÇÔ.
2)±³Åë»óȲ
º»°Ç±îÁö Â÷·® ÁøÃâÀÔ °¡´ÉÇϰí,Àαٿ¡ ¹ö½ºÁ¤·ùÀå ¹× ÁöÇÏö¿ª(¾Æ½Ã¾Æµå°æ±âÀ忪
-ÀÎõ2È£¼±)ÀÌ ¼ÒÀçÇÏ´Â µî ´ëÁß±³Åë»óȲÀº ¹«³­ÇÔ.
3)°Ç¹°ÀÇ ±¸Á¶
ö±ÙÄÜÅ©¸®Æ®±¸Á¶(º®½Ä±¸Á¶) (ö±Ù)ÄÜÅ©¸®Æ®ÁöºØ 20Ãþ °Ç¹° ³» Á¦8Ãþ Á¦807È£·Î»ç,
(»ç¿ë½ÂÀÎÀÏ : 2018.01.31)
¿Üº® : ¸ôÅ» À§ ÆäÀÎÆÃ ¸¶°¨ µî.
³»º® : º®Áöµµ¹è ¹× ÀϺΠŸÀϸ¶°¨ ÃßÁ¤.
âȣ : ÇÏÀ̼¦½Ã âȣÀÓ.
4)ÀÌ¿ë»óÅÂ
¾ÆÆÄÆ®·Î ÀÌ¿ëÁßÀÓ.
5)¼³ºñ³»¿ª
±âº»ÀûÀÎ À§»ý ±Þ¹è¼ö ¼³ºñ, µµ½Ã°¡½º¼³ºñ¿¡ ÀÇÇÑ ³­¹æ¼³ºñ, ½Â°­±â ¼³ºñ µîÀÌ ±¸ºñµÇ¾î
ÀÖÀ½.
6)ÅäÁöÀÇ Çü»ó ¹× ÀÌ¿ë»óÅÂ
ºÎÁ¤ÇüÀÇ ÅäÁö·Î¼­ ÇöȲ °øµ¿ÁÖÅÃ(¾ÆÆÄÆ®) ¹× ±Ù¸°»ýȰ½Ã¼³ÀÇ °ÇºÎÁö·Î ÀÌ¿ëÁßÀÓ.
7)ÀÎÁ¢ µµ·Î»óŵî
ºÏÃø ¹× ³²ÃøÀ¸·Î °¢°¢ ±¤´ë·Î ¹× ³ëÆø ¾à 8¹ÌÅÍÀÇ Æ÷Àåµµ·Î¿¡ Á¢ÇÔ.
8)ÅäÁöÀÌ¿ë°èȹ ¹× Á¦ÇÑ»óÅÂ
Á¦2Á¾ÀϹÝÁÖ°ÅÁö¿ª, Áö±¸´ÜÀ§°èȹ±¸¿ª(µµ½Ã°ü¸®°èȹ ÀÔ¾ÈÁßÀÎ Áö¿ª(¿¬Èñ3 Áö±¸´ÜÀ§°èȹ±¸¿ª)
), ±¤·Î3·ù(Æø 40m~50m)(±¤3-9)(Á¢ÇÕ), µµ·Î(Á¢ÇÕ), °¡Ãà»çÀ°Á¦Çѱ¸¿ª(2025-05-20)
<°¡ÃàºÐ´¢ÀÇ °ü¸® ¹× À̿뿡 °üÇÑ ¹ý·ü>, °ú¹Ð¾ïÁ¦±Ç¿ª<¼öµµ±ÇÁ¤ºñ°èȹ¹ý>
9)°øºÎ¿ÍÀÇ Â÷ÀÌ
¾øÀ½.
10)±âŸÂü°í»çÇ×(ÀÓ´ë°ü·Ê ¹× ±âŸ)
ÀÓ´ë°ü°è´Â ¹Ì»óÀÓ.
Âü°í
»çÇ×

º»°Ç ºÎµ¿»êÀº

°ÇÃ๰ÇöȲ

¼ÒÀçÁö ÀÎõ±¤¿ª½Ã ¼­±¸ °øÃ̵¿ 309-2¹øÁö
´ëÁö¸éÀû 2495§³
(756.06Æò)
¿¬¸éÀû 14406.589§³
(4365.63Æò)
°ÇÃà¸éÀû 1035.896§³
(313.91Æò)
¿ëÀû·ü»êÁ¤
¿¬¸éÀû
9978.979§³
(3023.93Æò)
°ÇÆóÀ² 41.52% ¿ëÀû·ü 399.96%
Áö»óÃþ¼ö 20Ãþ ÁöÇÏÃþ¼ö 3Ãþ
ÁÖ¿ëµµ °øµ¿ÁÖÅà ±¸Á¶ ö±ÙÄÜÅ©¸®Æ®±¸Á¶
Âø°øÀÏÀÚ 1996.09.02 »ç¿ë½ÂÀÎÀÏÀÚ 2018.01.31
°ÇÃ๰Ãþº°ÇöȲ [º¸±â]


±¹ÅäºÎ½Ç°Å·¡°¡ ÀÎõ±¤¿ª½Ã ¼­±¸ °øÃ̵¿

¡Ü ¸Å¸Å

¸éÀû(§³), ±Ý¾×(¸¸¿ø)

¡Ü Àü¼¼

¸éÀû(§³), ±Ý¾×(¸¸¿ø)

°è¾àÀÏARTÃþÀü¿ëº¸Áõ±Ý¿ù¼¼°ÇÃà
26.04.11¹Ì¿ìÇØµå¸®¿ò363.1673,000802018
26.04.02¹Ì¿ìÇØµå¸®¿ò864.452100252018
26.03.14¹Ì¿ìÇØµå¸®¿ò1972.3373,000672018
26.02.25¹Ì¿ìÇØµå¸®¿ò1959.219500502018
26.02.24¹Ì¿ìÇØµå¸®¿ò1050.76417,8002018
¢Ñ ´õº¸±â

µî±âºÎµîº» ¿ä¾à(°Ç¹°)

  Á¢¼öÀÏÀÚ µî±â¸ñÀû/±Ç¸®ÀÚ ±Ç¸®±Ý¾× ±âÁØ
1 2019³â5¿ù17ÀÏ
¼ÒÀ¯±Ç
½ÅOO
¼Ò¸ê
2 2022³â11¿ù25ÀÏ
¾àÁ¤/±ÝÁö»çÇ×/ȯ¸ÅƯ¾à
Àμö
3 2023³â5¿ù22ÀÏ
ÀÓÂ÷±Ç¼³Á¤
ÀÓOO
245,000,000 Àμö
4 2025³â8¿ù8ÀÏ
°­Á¦°æ¸Å
ÁÖOOOO
¼Ò¸ê±âÁØ

ÀÓÂ÷ÀÎÇöȲ (¹è´ç¿ä±¸Á¾±âÀÏ: 2025-11-07)

ÀÓÂ÷ÀÎ ¿ëµµ/Á¡À¯ º¸Áõ±Ý/¿ù¼¼ ´ëÇ×·Â
ÀüÀÔÀÏ/È®Á¤ÀÏ ¹è´ç¿ä±¸ ºñ°í
±èOO
O
2023.10.05.
Á¤OO
O
2023.10.05.
ÀÓOO ÀüºÎ 245,000,000
O
2021.04.23.
2021.04.23.
2021.04.23.
ÁÖOOOOOOOOOOOOOOOO ÀüºÎ 245,000,000
O
2021.04.23.
2021.04.23.
2025.11.7. 2021.04.23.~2023.04.22.
ºñ°í
(¸Å°¢¹°°Ç
¸í¼¼¼­)
Á¤Çý¿µ : ÀÓÂ÷ÀÎ ±è¹Î¿ìÀÇ µ¿°ÅÀÎÀÓ ÀÓ¼øÁ¤ : ÁÖÅÃÀÓÂ÷±Çµî±â±Ç¸®Àڷμ­ ÁÖÅÃÀÓÂ÷±Çµî±âÀÏÀº 2023.5.22.ÀÓ ÁÖÅõµ½Ãº¸Áõ°ø»ç(ÀÓÂ÷ÀÎ:ÀÓ¼øÁ¤) : ÀÓÂ÷ÀÎ ÀÓ¼øÁ¤ÀÇ ÀÓÂ÷º¸Áõ±Ý¹Ýȯä±Ç ¾ç¼öÀÎÀ¸·Î¼­, º¸Áõ±Ý Àü¾×À» ¹è´ç¹ÞÁö ¸øÇÏ´õ¶óµµ

¿©ÀÇÁÖ°æ¸Å Á¶¾ð ÇÑ ¸¶µð

¼±¼øÀ§ ÀÓÂ÷±Çµî±â°¡ µÇ¾î ÀÖ½À´Ï´Ù
´ëÇ×·ÂÀÌ ÀÖ´Â ¼±¼øÀ§ ÀÓÂ÷±Çµî±â ±Ç¸®ÀÚ°¡ ¹è´çÀ» Àü¾× ¹ÞÁö ¸øÇÒ °æ¿ì ³«ÂûÀÚ°¡ ÀÜ¿© º¸Áõ±ÝÀ» ÀμöÇØ¾ßÇÏ´Â °æ¿ìµµ ÀÖ½À´Ï´Ù.

ÁÖÀÇ»çÇ× (ÃÖ¼±¼øÀ§ ¼³Á¤ÀÏ: 2025.08.08. °­Á¦°æ¸Å°³½Ã°áÁ¤ ¼³Á¤)

¸Å°¢À¸·Î ¼Ò¸êµÇÁö ¾Ê´Â µî±âºÎ±Ç¸®: À»±¸ ¼øÀ§ 1¹ø ÁÖÅÃÀÓÂ÷±Çµî±â(´Ù¸¸, ÁÖÅõµ½Ãº¸Áõ°ø»çÀÇ ¸»¼Òµ¿ÀÇ È®¾à¼­°¡ Á¦Ãâ µÊ)
¸Å°¢À¸·Î ¼³Á¤µÈ °ÍÀ¸·Î º¸´Â Áö»ó±Ç:
¡Ø¹Ì³³°ü¸®ºñ(°ø¿ë) Àμö¿©ºÎ¸¦ ÀÔÂû Àü¿¡ È®ÀÎÇϽñ⠹ٶø´Ï´Ù

 

Áö¿ªºÐ¼®

ÁöÇÏö¸í Á÷¼±°Å¸®

Çб³¸í ÀüÈ­¹øÈ£ ÁÖ¼Ò Á÷¼±°Å¸®

¹ý¿ø

ÀÎõÁö¹æ¹ý¿ø (222-20)ÀÎõ±¤¿ª½Ã ¹ÌÃßȦ±¸ ¼Ò¼º·Î 163¹ø±æ 17(ÇÐÀ͵¿)
´ëÇ¥ : 032)860-1113~4
°üÇÒÁö¿ª : Áß±¸, µ¿±¸, ³²±¸, ¿¬¼ö±¸, ³²µ¿±¸, ºÎÆò±¸, °è¾ç±¸, ¼­±¸, ¿ËÁø±º, °­È­±º

µî±â¼Ò ÀÎõÁö¹æ¹ý¿ø º»¿ø µî±â±¹ (´ëÇ¥:1544-0773, ÆÑ½º:(032)620-9099, ÀÎõ±¤¿ª½Ã ¹ÌÃßȦ±¸ °æ¿ø´ë·Î 881(Á־ȵ¿ 983))
¼¼¹«¼­ ¼­ÀÎõ¼¼¹«¼­ (´ëÇ¥:032-560-52, ÆÑ½º:032-561-5777, ÀÎõ±¤¿ª½Ã ¼­±¸ ¼­°ù·Î369¹ø±æ 17 (¿¬Èñµ¿))

Àαٳ«ÂûÅë°è

±â°£ ¸Å°¢°Ç¼ö Æò±Õ°¨Á¤°¡
Æò±Õ¸Å°¢°¡
¸Å°¢°¡À²
Æò±ÕÀ¯Âû¼ö
3°³¿ù 26°Ç 477,646,154¿ø
397,453,849¿ø
79%
1.7ȸ
6°³¿ù 84°Ç 447,200,000¿ø
375,941,529¿ø
81%
1.3ȸ
12°³¿ù 184°Ç 438,825,000¿ø
377,757,235¿ø
83%
1.2ȸ


º» °æ¸ÅÁ¤º¸´Â ¹ý¿øÀÚ·á¿Í ÀÏÄ¡Çϵµ·Ï ÇÏ¿´À¸³ª ±Ç¸®»çÇ׺¯µ¿, ÀÔ·ÂÂø¿À µîÀÇ ¿øÀÎÀ¸·Î »ç½Ç°ú ´Ù¸¦ ¼ö ÀÖ½À´Ï´Ù. ÀÌ¿ë¾à°ü¿¡ ÀǰЏéÃ¥Á¶°ÇÀ¸·Î Á¦°øµÊÀ» ¾Ë¸®¸ç, °æ¸ÅÀÔÂû½Ã ¹Ýµå½Ã °ü·Ã °øºÎ¸¦ ÀçÈ®ÀÎÇϽñ⠹ٶø´Ï´Ù. º¸´Ù Æí¸®ÇÑ °æ¸ÅÁ¤º¸ Á¦°øÀ» À§ÇØ Áö¼ÓÀûÀ¸·Î °³¼±ÇϰڽÀ´Ï´Ù. ÀÌ¿ëÇØ Áּż­ °¨»çÇÕ´Ï´Ù.