·Î±×ÀÎ
1385
ÁÖÅÃ
ÀÇÁ¤ºÎÁö¹æ¹ý¿ø °í¾çÁö¿ø
 °¨Á¤°¡247,416,500 ¿ø
 ÃÖÀú°¡(49%) 121,230,000 ¿ø
 º¸Áõ±Ý(10%) 12,123,000 ¿ø
 Ã»±¸¾×152,436,766 ¿ø
°æ±âµµ ÆÄÁֽà ±¤Åº¸é ±â»ê¸® 522-9
»ç°Ç¹øÈ£ 2025Ÿ°æ63957
°æ¸ÅÁ¾·ùºÎµ¿»êÀÓÀǰæ¸Å
¸Å°¢´ë»óÅäÁöÁöºÐ ¹× °Ç¹°Àüü¸Å°¢
¸Å°¢±âÀÏ    2026.04.22(¼ö) 10:00 ÀÔÂû 11ÀÏÀü    
ÅäÁö¸éÀû347.00§³(104.97 Æò)
°Ç¹°¸éÀû70.50§³(21.33 Æò)
乫/¼ÒÀ¯ÀÚÀåOO / ÀåOO
ä±ÇÀÚ¾çOOOOOOOO
ÆäÀ̽ººÏ Æ®À§ÅÍ ±¸±Û+
īī¿À½ºÅ丮
īī¿ÀÅå sms¹®ÀÚº¸³»±â
 

±âÀϳ»¿ª

°æ°ú ³¯Â¥ Àú°¨ ÃÖÀú°¡ °á°ú
Á¢¼öÀÏ 2025-08-15 °æ¸ÅÁ¢¼ö
~3ÀÏ 
2025-08-18 °æ¸Å°³½Ã°áÁ¤
~84ÀÏ 
2025-11-07 ¹è´ç¿ä±¸Á¾±âÀÏ
~173ÀÏ 
2026-02-04 100%
247,416,500
À¯Âû
~215ÀÏ 
2026-03-18 70%
173,190,000
À¯Âû
~250ÀÏ 
2026-04-22 49%
121,230,000
ÁøÇà
¹°°Ç¸í¼¼¼­ ÇöȲÁ¶»ç¼­ ¹®°ÇÁ¢¼ö ¼Û´Þ³»¿ª

°¨Á¤Æò°¡ÇöȲ

¸ñ·Ï ÁÖ¼Ò ±¸Á¶/¿ëµµ/´ëÁö±Ç ¸éÀû ºñ°í
ÅäÁö
±â»ê¸® 522-9 ´ë 281 §³
(85.00Æò)
±â»ê¸® 522-12 µµ·Î 66 §³
(19.97Æò)
204ºÐÀÇ 66 ÁöºÐÀüºÎ
°Ç¹°
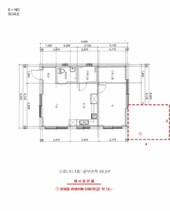
±â»ê¸® 522-9 1Ãþ ÁÖÅà ÀϹÝö°ñ±¸Á¶ 58.5 §³
(17.70Æò)
Á¦½Ã¿Ü
°Ç¹°
±â»ê¸® 522-9 â°í 12 §³
(3.63Æò)
Æ÷ÇÔ
1) À§Ä¡/°èȹ°ü¸®Áö¿ª/¹ö½ºÁ¤·ùÀå/Â÷·® Á¢±ÙÀÌ °¡´É/°³º°³­¹æ ´õº¸±â
°¨Á¤Æò°¡ ¿äÇ×Ç¥
1)À§Ä¡ ¹× ÁÖÀ§È¯°æ
º»°ÇÀº °æ±âµµ ÆÄÁֽà ±¤Åº¸é ±â»ê¸® ¼ÒÀç ""±â»ê1¸®¸¶À»È¸°ü"" ³²¼­Ãø Àαٿ¡ À§Ä¡Çϸç ÁÖÀ§´Â ´Üµ¶ÁÖÅÃ, ±Ù¸°»ýȰ½Ã¼³, ¼Ò±Ô¸ð°øÀå, ÀÓ¾ß µîÀÌ ¼ÒÀçÇÔ.
2)±³Åë»óȲ
º»°Ç±îÁö Â÷·® Á¢±ÙÀÌ °¡´ÉÇϸç Àαٿ¡ ¹ö½ºÁ¤·ùÀåÀÌ ¼ÒÀçÇϴ¹٠´ëÁß±³Åë»óȲÀº ¹«³­½Ã µÊ.
3)ÇüÅ ¹× ÀÌ¿ë»óÅÂ
º»°ÇÀº »ç´Ù¸®Çü ÅäÁö·Î¼­ ´Üµ¶ÁÖÅà °ÇºÎÁö·Î ÀÌ¿ëÁßÀÓ.
4)ÀÎÁ¢ µµ·Î»óÅÂ
±âÈ£1Àº ³²µ¿ÃøÀ¸·Î Æø ¾à 4mÀÇ Æ÷Àåµµ·Î¿Í Á¢ÇÔ.
±âÈ£2´Â µµ·ÎÀÓ.
5)ÅäÁöÀÌ¿ë°èȹ ¹× Á¦ÇÑ»óÅÂ
±âÈ£1: °èȹ°ü¸®Áö¿ª, ¼ºÀå°ü¸®°èȹ±¸¿ª(2024-01-26)(Áְź¹ÇÕ Zone) °¡Ãà»çÀ°Á¦Çѱ¸¿ª(¸ðµçÃàÁ¾ »çÀ°Á¦ÇÑ)<°¡ÃàºÐ´¢ÀÇ °ü¸® ¹× À̿뿡 °üÇÑ ¹ý·ü>, ±º»ç±âÁö ¹× ±º»ç½Ã¼³±âŸ(11¹ÌÅÍÀ§ÀÓ)<±º»ç±âÁö ¹× ±º»ç½Ã¼³ º¸È£¹ý>, Á¦ÇѺ¸È£±¸¿ª(Àü¹æÁö¿ª:25km)((08.12.30))<±º»ç±âÁö ¹× ±º»ç½Ã¼³ º¸È£¹ý>.
±âÈ£2: °èȹ°ü¸®Áö¿ª, ¼ºÀå°ü¸®°èȹ±¸¿ª(2024-01-26)(Áְź¹ÇÕ Zone) °¡Ãà»çÀ°Á¦Çѱ¸¿ª(¸ðµçÃàÁ¾ »çÀ°Á¦ÇÑ)<°¡ÃàºÐ´¢ÀÇ °ü¸® ¹× À̿뿡 °üÇÑ ¹ý·ü>, ±º»ç±âÁö ¹× ±º»ç½Ã¼³±âŸ(11¹ÌÅÍÀ§ÀÓ)<±º»ç±âÁö ¹× ±º»ç½Ã¼³ º¸È£¹ý>, Á¦ÇѺ¸È£±¸¿ª(Àü¹æÁö¿ª:25km)((08.12.30))<±º»ç±âÁö ¹× ±º»ç½Ã¼³ º¸È£¹ý>.
6)Á¦½Ã¸ñ·Ï ¿ÜÀÇ ¹°°Ç
ÈÄ÷ ""°Ç¹°ÀÌ¿ë ¹× ³»ºÎ±¸Á¶µµ"" ÂüÁ¶
7)°øºÎ¿ÍÀÇ Â÷ÀÌ
¾øÀ½.
8)±âŸÂü°í»çÇ×(ÀÓ´ë°ü·Ê ¹× ±âŸ)
ÀÓ´ë°ü°è´Â ¹Ì»óÀÓ.
1)°Ç¹°ÀÇ ±¸Á¶
ÀϹÝö°ñ±¸Á¶ ±âŸÁöºØ 1Ãþ ´Üµ¶ÁÖÅÃÀ¸·Î¼­,
(»ç¿ë½ÂÀÎ: 2024.04.16)
¿ÜºÎ: ¡ũ ¹× º®µ¹¸ð¾çŸÀÏ ºÙÀÓ ¸¶°¨ µî.
âȣ: ¼¦½Ã âȣÀÓ.
2)ÀÌ¿ë»óÅÂ
´Üµ¶ÁÖÅÃÀ¸·Î ÀÌ¿ëÁßÀÓ.
(ÈÄ÷ ""°Ç¹°ÀÌ¿ë ¹× ³»ºÎ±¸Á¶µµ"" ÂüÁ¶)
3)¼³ºñ³»¿ª
º»°ÇÀº ±âº»ÀûÀÎ À§»ý ¹× ±Þ¹è¼ö¼³ºñ, °³º°³­¹æ¼³ºñ µîÀÌ µÇ¾î ÀÖÀ½.
4)ºÎÇÕ¹° ¹× Á¾¹°
ÈÄ÷ ""°Ç¹°ÀÌ¿ë ¹× ³»ºÎ±¸Á¶µµ"" ÂüÁ¶.
5)°øºÎ¿ÍÀÇ Â÷ÀÌ
¾øÀ½.
6)±âŸÂü°í»çÇ×(ÀÓ´ë°ü·Ê ¹× ±âŸ)
ÀÓ´ë°ü°è´Â ¹Ì»óÀÓ.
Âü°í
»çÇ×
1. Àϰý¸Å°¢. Á¦½Ã¿Ü °Ç¹° Æ÷ÇÔ 2. ¸ñ·Ï1ÀÇ Áö¸ñÀº ´ëÁöÀ̰í ÇöȲÀº ¸ñ·Ï2 °Ç¹°ÀÇ ºÎÁö·Î »ç¿ëÁß 3. ¸ñ·Ï3 ÁöºÐ°æ¸Å
1.¸ñ·Ï1ÀÇ Áö¸ñÀº ´ëÁöÀ̰í ÇöȲÀº ¸ñ·Ï2 °Ç¹°ÀÇ ºÎÁö·Î »ç¿ëÁßÀÓ 2.¸ñ·Ï2´Â ÀϹÝö°ñ±¸Á¶ ±âŸÁöºØ 1Ãþ ´Üµ¶ÁÖÅÃÀÓ 3.¸ñ·Ï3Àº µµ·Î·Î ÇöȲµµ µµ·Î·Î ÀÌ¿ëÁßÀÓ.

°ÇÃ๰ÇöȲ

¼ÒÀçÁö °æ±âµµ ÆÄÁֽà ±¤Åº¸é ±â»ê¸® 522-9¹øÁö
´ëÁö¸éÀû 281§³
(85.15Æò)
¿¬¸éÀû 58.5§³
(17.73Æò)
°ÇÃà¸éÀû 58.5§³
(17.73Æò)
¿ëÀû·ü»êÁ¤
¿¬¸éÀû
58.5§³
(17.73Æò)
°ÇÆóÀ² 20.82% ¿ëÀû·ü 20.82%
Áö»óÃþ¼ö 1Ãþ ÁöÇÏÃþ¼ö  
ÁÖ¿ëµµ ´Üµ¶ÁÖÅà ±¸Á¶ ÀϹÝö°ñ±¸Á¶
Âø°øÀÏÀÚ 2023.10.25 »ç¿ë½ÂÀÎÀÏÀÚ 2024.04.16
°ÇÃ๰Ãþº°ÇöȲ [º¸±â]


±¹ÅäºÎ½Ç°Å·¡°¡ °æ±âµµ ÆÄÁֽà ±¤Åº¸é

¡Ü ¸Å¸Å

¸éÀû(§³), ±Ý¾×(¸¸¿ø)

¡Ü Àü¼¼

¸éÀû(§³), ±Ý¾×(¸¸¿ø)

°è¾àÀÏ¿¬¸éÀûº¸Áõ±Ý¿ù¼¼°ÇÃà
26.03.1766.210,0002000
26.03.1286.1123,0001991
26.03.095250502018
26.03.0673.26500352021
26.02.2799.582,000702012
¢Ñ ´õº¸±â

µî±âºÎµîº» ¿ä¾à(ÅäÁö)

  Á¢¼öÀÏÀÚ µî±â¸ñÀû/±Ç¸®ÀÚ ±Ç¸®±Ý¾× ±âÁØ
1 2023³â8¿ù25ÀÏ
¼ÒÀ¯±Ç
ÀåOO
¼Ò¸ê
2 2024³â6¿ù14ÀÏ
±ÙÀú´ç±Ç
¾çOOOO
180,000,000 ¼Ò¸ê±âÁØ
3 2025³â6¿ù17ÀÏ
±ÙÀú´ç±Ç
Á¶OO
120,000,000 ¼Ò¸ê
4 2025³â8¿ù18ÀÏ
ÀÓÀǰæ¸Å
¾çOOOO
¼Ò¸ê

µî±âºÎµîº» ¿ä¾à(°Ç¹°)

  Á¢¼öÀÏÀÚ µî±â¸ñÀû/±Ç¸®ÀÚ ±Ç¸®±Ý¾× ±âÁØ
1 2024³â5¿ù30ÀÏ
¼ÒÀ¯±Ç
ÀåOO
¼Ò¸ê
2 2024³â6¿ù14ÀÏ
±ÙÀú´ç±Ç
¾çOOOO
180,000,000 ¼Ò¸ê±âÁØ
3 2025³â6¿ù17ÀÏ
±ÙÀú´ç±Ç
Á¶OO
120,000,000 ¼Ò¸ê
4 2025³â8¿ù8ÀÏ
°¡¾Ð·ù
ijOOOO
32,928,000 ¼Ò¸ê
5 2025³â8¿ù18ÀÏ
ÀÓÀǰæ¸Å
¾çOOOO
¼Ò¸ê

ÀÓÂ÷ÀÎÇöȲ (¹è´ç¿ä±¸Á¾±âÀÏ: 2025-11-07)


Á¶»çµÈ ÀÓÂ÷³»¿ªÀÌ ¾ø½À´Ï´Ù


¿©ÀÇÁÖ°æ¸Å Á¶¾ð ÇÑ ¸¶µð

ÁöºÐ°æ¸Å ¹°°ÇÀÌ Æ÷ÇԵǾî ÀÖ½À´Ï´Ù
¿©·¯ ¸íÀÌ °øµ¿À¸·Î ¼ÒÀ¯ÇÏ´Â ºÎµ¿»êÀÇ ÀϺθ¸ °æ¸Å·Î ³ª¿Â °ÍÀ» ÁöºÐ°æ¸Å¶ó°í ÇÕ´Ï´Ù. ¼ÒÀ¯ºÎºÐÀÌ Æ¯Á¤µÇÁö ¾Ê¾Æ »ç¿ë¿¡ Á¦¾àÀÌ µû¸¦ ¼ö ÀÖÀ¸¸ç °øÀ¯ÀÚ°£¿¡ ºÐÀïµµ ¹ß»ýÇÒ ¼ö ÀÖ½À´Ï´Ù. °øÀ¯ÀÚ´Â °øÀ¯ÀÚ¿ì¼±¸Å¼öû±¸±Ç¸®°¡ ÀÖ½À´Ï´Ù.
Á¦½Ã¿Ü ¹°°ÇÀÌ Æ÷ÇԵǾî ÀÖ½À´Ï´Ù
¡®Á¦½Ã¿Ü ¹°°Ç¡¯Àº ÇØ´ç °øºÎ»ó¿¡´Â Á¸ÀçÇÏÁö ¾ÊÁö¸¸, ÇöÀå¿¡ Á¸Àç°¡ È®ÀεǴ ¿©·¯ ÇüÅÂÀÇ °Ç¹°, ±â°è±â±¸ µîÀ» ¸»ÇÕ´Ï´Ù. ÀÌµé ´ëºÎºÐÀº ¹«Çã°¡, ¹«½Å°íÀ̰ųª »ç¿ë½ÂÀÎÀ» ¹ÞÁö ¾ÊÀº °ÍÀÔ´Ï´Ù. ¡®Á¦½Ã¿Ü ¹°°Ç¡¯ÀÌ °æ¸Å´ë»ó¿¡ Æ÷ÇԵǾî ÀÖ´Ù¸é ³«ÂûÀÚÀÇ ¼ÒÀ¯±Ç Ãëµæ¿¡´Â ¾Æ¹«·± ¹®Á¦°¡ ¾ø½À´Ï´Ù.

ÁÖÀÇ»çÇ× (ÃÖ¼±¼øÀ§ ¼³Á¤ÀÏ: 2024.6.14. ±ÙÀú´ç±Ç ¼³Á¤ (°øµ¿´ãº¸))

¸Å°¢À¸·Î ¼Ò¸êµÇÁö ¾Ê´Â µî±âºÎ±Ç¸®: ÇØ´ç»çÇ×¾øÀ½
¸Å°¢À¸·Î ¼³Á¤µÈ °ÍÀ¸·Î º¸´Â Áö»ó±Ç: ÇØ´ç»çÇ×¾øÀ½
1. Àϰý¸Å°¢. Á¦½Ã¿Ü °Ç¹° Æ÷ÇÔ 2. ¸ñ·Ï1ÀÇ Áö¸ñÀº ´ëÁöÀ̰í ÇöȲÀº ¸ñ·Ï2 °Ç¹°ÀÇ ºÎÁö·Î »ç¿ëÁß 3. ¸ñ·Ï3 ÁöºÐ°æ¸Å
¡Ø¹Ì³³°ü¸®ºñ(°ø¿ë) Àμö¿©ºÎ¸¦ ÀÔÂû Àü¿¡ È®ÀÎÇϽñ⠹ٶø´Ï´Ù

 

Áö¿ªºÐ¼®

ÁöÇÏö¸í Á÷¼±°Å¸®

Çб³¸í ÀüÈ­¹øÈ£ ÁÖ¼Ò Á÷¼±°Å¸®

¹ý¿ø

ÀÇÁ¤ºÎÁö¹æ¹ý¿ø °í¾çÁö¿ø (104-13)°æ±âµµ °í¾ç½Ã Àϻ굿±¸ Àå¹é·Î 209
´ëÇ¥ : 031)920-6114, ¾ß°£ : 031)920-6550, ÆÑ½º : 031)920-6119
°üÇÒÁö¿ª : °í¾ç½Ã, ÆÄÁÖ½Ã

µî±â¼Ò ÀÇÁ¤ºÎÁö¹æ¹ý¿ø °í¾çÁö¿ø ÆÄÁÖµî±â¼Ò (´ëÇ¥:1544-0773, ÆÑ½º:(031)945-4764, 3628, °æ±âµµ ÆÄÁֽà ±ÝÁ¤·Î 45 (±ÝÃ̵¿ 947-28))
¼¼¹«¼­ ÆÄÁÖ¼¼¹«¼­ (´ëÇ¥:031-956-02, ÆÑ½º:031-957-0315, °æ±âµµ ÆÄÁֽà ±Ý¸ª¿ª·Î 62 (±ÝÃ̵¿))

Àαٳ«ÂûÅë°è

±â°£ ¸Å°¢°Ç¼ö Æò±Õ°¨Á¤°¡
Æò±Õ¸Å°¢°¡
¸Å°¢°¡À²
Æò±ÕÀ¯Âû¼ö
3°³¿ù 2°Ç 304,944,440¿ø
131,650,000¿ø
41%
3.5ȸ
6°³¿ù 6°Ç 225,557,440¿ø
85,393,333¿ø
39%
3.3ȸ
12°³¿ù 11°Ç 311,128,098¿ø
133,685,455¿ø
46%
2.7ȸ


º» °æ¸ÅÁ¤º¸´Â ¹ý¿øÀÚ·á¿Í ÀÏÄ¡Çϵµ·Ï ÇÏ¿´À¸³ª ±Ç¸®»çÇ׺¯µ¿, ÀÔ·ÂÂø¿À µîÀÇ ¿øÀÎÀ¸·Î »ç½Ç°ú ´Ù¸¦ ¼ö ÀÖ½À´Ï´Ù. ÀÌ¿ë¾à°ü¿¡ ÀǰЏéÃ¥Á¶°ÇÀ¸·Î Á¦°øµÊÀ» ¾Ë¸®¸ç, °æ¸ÅÀÔÂû½Ã ¹Ýµå½Ã °ü·Ã °øºÎ¸¦ ÀçÈ®ÀÎÇϽñ⠹ٶø´Ï´Ù. º¸´Ù Æí¸®ÇÑ °æ¸ÅÁ¤º¸ Á¦°øÀ» À§ÇØ Áö¼ÓÀûÀ¸·Î °³¼±ÇϰڽÀ´Ï´Ù. ÀÌ¿ëÇØ Áּż­ °¨»çÇÕ´Ï´Ù.