·Î±×ÀÎ
1148
´Ù¼¼´ë(ºô¶ó)
ÀÇÁ¤ºÎÁö¹æ¹ý¿ø °í¾çÁö¿ø
 °¨Á¤°¡382,000,000 ¿ø
 ÃÖÀú°¡(70%) 267,400,000 ¿ø
 º¸Áõ±Ý(10%) 26,740,000 ¿ø
 Ã»±¸¾×344,708,776 ¿ø
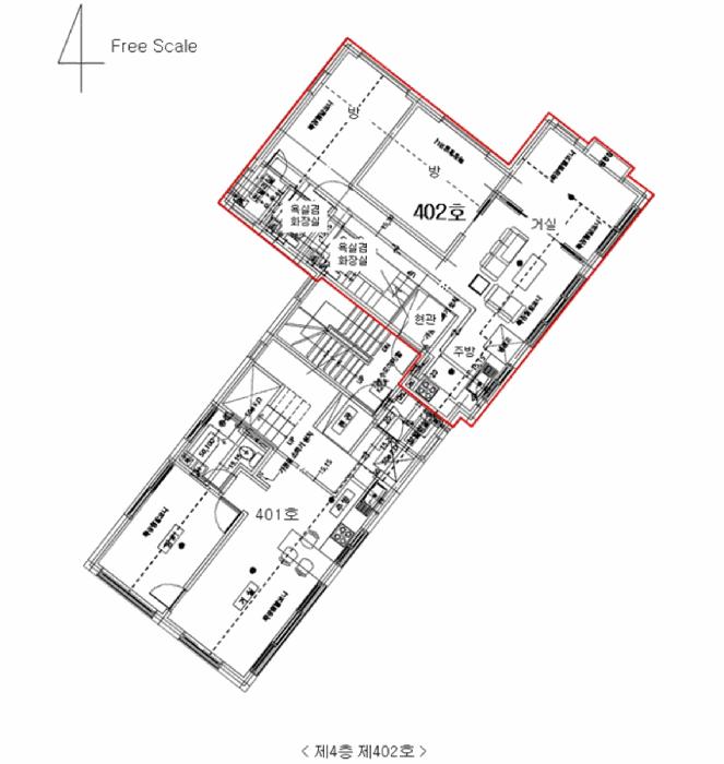
°æ±âµµ ÆÄÁֽà ¾ß´çµ¿ 79-8 4Ãþ402È£
»ç°Ç¹øÈ£ 2025Ÿ°æ4684
°æ¸ÅÁ¾·ùºÎµ¿»ê°­Á¦°æ¸Å
¸Å°¢´ë»óÅäÁö ¹× °Ç¹°Àϰý ¸Å°¢
¸Å°¢±âÀÏ    2026.03.18(¼ö) 10:00 ÀÔÂû 17ÀÏÀü    
ÅäÁö¸éÀû57.97§³(17.54 Æò)
°Ç¹°¸éÀû50.22§³(15.19 Æò)
乫/¼ÒÀ¯ÀÚ¹®OO / ¹®OO
ä±ÇÀÚ±èOO
ÆäÀ̽ººÏ Æ®À§ÅÍ ±¸±Û+
īī¿À½ºÅ丮
īī¿ÀÅå sms¹®ÀÚº¸³»±â
 

±âÀϳ»¿ª

°æ°ú ³¯Â¥ Àú°¨ ÃÖÀú°¡ °á°ú
Á¢¼öÀÏ 2025-08-14 °æ¸ÅÁ¢¼ö
~0ÀÏ 
2025-08-14 °æ¸Å°³½Ã°áÁ¤
~88ÀÏ 
2025-11-10 ¹è´ç¿ä±¸Á¾±âÀÏ
~174ÀÏ 
2026-02-04 100%
382,000,000
À¯Âû
~216ÀÏ 
2026-03-18 70%
267,400,000
ÁøÇà
¹°°Ç¸í¼¼¼­ ÇöȲÁ¶»ç¼­ ¹®°ÇÁ¢¼ö ¼Û´Þ³»¿ª

°¨Á¤Æò°¡ÇöȲ

¸ñ·Ï ÁÖ¼Ò ±¸Á¶/¿ëµµ/´ëÁö±Ç ¸éÀû ºñ°í
´ëÁö±Ç
¾ß´çµ¿ 79-8 411ºÐÀÇ 57.97 57.97 §³
(17.54Æò)
°Ç¹°
¾ß´çµ¿ 79-8 4Ãþ402È£ ö±ÙÄÜÅ©¸®Æ®±¸Á¶ 50.22 §³
(15.19Æò)
1) À§Ä¡/°èȹ°ü¸®Áö¿ª/¹ö½ºÁ¤·ùÀå/Â÷·®Á¢±ÙÀÌ °¡´É/ÁÖÂ÷Àå/ÁöÇÏö/ö±ÙÄÜÅ©¸®Æ®±¸Á¶ ´õº¸±â
°¨Á¤Æò°¡ ¿äÇ×Ç¥
1)À§Ä¡ ¹× ÁÖÀ§È¯°æ
º»°ÇÀº °æ±âµµ ÆÄÁֽà ¾ß´çµ¿ ¼ÒÀç '¾ß´ç4¸®¸¶À»È¸°ü' ºÏ¼­Ãø Àαٿ¡ À§Ä¡Çϸç ÁÖº¯Àº ´Ù¼¼´ëÁÖÅÃ, °øÀå ¹× Ã¢°í µîÀÌ ¼ÒÀçÇÏ´Â Áö¿ªÀ¸·Î¼­, Á¦¹Ý ÀÔÁö¿©°ÇÀº ´ëü·Î º¸Åë½ÃµË´Ï´Ù.
2)±³Åë»óȲ
º»°Ç±îÁö Â÷·®Á¢±ÙÀÌ °¡´ÉÇϸç, Àαٿ¡ ¹ö½ºÁ¤·ùÀå ¹× ±Ù°Å¸®¿¡ ÁöÇÏö¿ª(¾ß´ç¿ª)ÀÌ ¼ÒÀçÇÏ´Â µî ´ëÁß±³Åë¼ö´ÜÀÌ¿ëÀº º¸ÅëÀÔ´Ï´Ù.
3)°Ç¹°ÀÇ ±¸Á¶
ö±ÙÄÜÅ©¸®Æ®±¸Á¶ (ö±Ù)ÄÜÅ©¸®Æ®ÁöºØ 4Ãþ °Ç¹° ³» Á¦4Ãþ Á¦402È£·Î¼­,
¿Üº® : ¼®ÀçºÙÀÓ ¹× º®µ¹ Ä¡Àå½×±â ¸¶°¨ µî
³»º® : º®Áöµµ¹è ¹× ŸÀϺÙÀÓ ¸¶°¨ µî
âȣ : ¼¦½Ãâȣ ¸¶°¨ µîÀ¸·Î °ü¸®»óÅ´ ´ëü·Î ¹«³­½ÃµË´Ï´Ù.
4)ÀÌ¿ë»óÅÂ
º»°ÇÀº ´Ù¼¼´ëÁÖÅÃÀ¸·Î ÀÌ¿ëÁßÀ¸·Î »ó¼¼³»¿ëÀº ÈÄ÷ '³»ºÎ±¸Á¶µµ' ÂüÁ¶¹Ù¶ø´Ï´Ù.
- ÀÌÇØ°ü°èÀÎÀÇ ºÎÀç·Î ÀÎÇÏ¿© °ÇÃ๰´ëÀå ÇöȲµµ¸é, ¿ÜºÎ°üÂû, ޹® µîÀ» ÂüÁ¶ÇÑ °ÍÀ¸·Î ÇöȲ°ú ´Ù¼Ò ´Ù¸¦ ¼ö ÀÖ»ç¿À´Ï °æ¸ÅÁøÇà½Ã ÂüÁ¶¹Ù¶ø´Ï´Ù.
5)¼³ºñ³»¿ª
À§»ý ¹× ±Þ¹è¼ö¼³ºñ, ³­¹æ¼³ºñ, ÇÊ·ÎÆ¼±¸Á¶ ÁÖÂ÷Àå µîÀÌ ±¸ºñµÇ¾î ÀÖ½À´Ï´Ù.
6)ÅäÁöÀÇ Çü»ó ¹× ÀÌ¿ë»óÅÂ
ÀÎÁ¢Áö ¹× ÀÎÁ¢µµ·Î¿Í µî°í ÆòźÇÑ 2ÇÊ ÀÏ´ÜÀÇ ºÎÁ¤Çü ÅäÁö·Î¼­ ´Ù¼¼´ëÁÖÅà °ÇºÎÁö·Î ÀÌ¿ëÁßÀÔ´Ï´Ù.
7)ÀÎÁ¢ µµ·Î»óŵî
º»°Ç ³²µ¿ÃøÀ¸·Î ³ëÆø ¾à 4¹ÌÅÍ ³»¿ÜÀÇ ¾Æ½ºÆÈÆ® Æ÷Àåµµ·Î¿Í Á¢ÇÕ´Ï´Ù.
8)ÅäÁöÀÌ¿ë°èȹ ¹× Á¦ÇÑ»óÅÂ
±âÈ£(1) : °èȹ°ü¸®Áö¿ª , ¼ºÀå°ü¸®°èȹ±¸¿ª(2024-01-26)(ÁØÁÖ°Å Zone), °¡Ãà»çÀ°Á¦Çѱ¸¿ª(ÀüºÎÁ¦Çѱ¸¿ª)<°¡ÃàºÐ´¢ÀÇ °ü¸® ¹× À̿뿡 °üÇÑ ¹ý·ü>, <Ãß°¡±âÀç>°ÇÃà¹ý Á¦2Á¶Á¦1Ç×Á¦11È£³ª¸ñ¿¡ µû¸¥ µµ·Î(µµ·ÎÀÏºÎÆ÷ÇÔ)

±âÈ£(2) : °èȹ°ü¸®Áö¿ª , ¼ºÀå°ü¸®°èȹ±¸¿ª(2024-01-26)(ÁØÁÖ°Å Zone), °¡Ãà»çÀ°Á¦Çѱ¸¿ª(ÀüºÎÁ¦Çѱ¸¿ª)<°¡ÃàºÐ´¢ÀÇ °ü¸® ¹× À̿뿡 °üÇÑ ¹ý·ü>
9)°øºÎ¿ÍÀÇ Â÷ÀÌ
-
10)±âŸÂü°í»çÇ×(ÀÓ´ë°ü·Ê ¹× ±âŸ)
1) ÀÓ´ë°ü°è : ¹Ì»óÀÔ´Ï´Ù.

2) ±â Ÿ : -
Âü°í
»çÇ×
¸Å¼öÀο¡°Ô ´ëÇ×ÇÒ ¼ö ÀÖ´Â À»±¸ 1¹ø ÀÓÂ÷±Çµî±â(ÀÓ´ëÂ÷º¸Áõ±Ý 450,000,000¿ø, ÀüÀÔÀÏÀÚ 2022.5.16. È®Á¤ÀÏÀÚ 2022.5.2.)°¡ ÀÖÀ¸¹Ç·Î ¹è´ç¿¡¼­ Àü¾× º¯Á¦µÇÁö ¾Æ´ÏÇϸé Àܾ×Àº ¸Å¼öÀο¡°Ô ÀμöµÉ ¼ö ÀÖÀ½
-ö±ÙÄÜÅ©¸®Æ®±¸Á¶ ö±ÙÄÜÅ©¸®Æ®ÁöºØ 4Ãþ °øµ¿ÁÖÅÃ

°ÇÃ๰ÇöȲ

¼ÒÀçÁö °æ±âµµ ÆÄÁֽà ¾ß´çµ¿ 79-8¹øÁö
´ëÁö¸éÀû 411§³
(124.55Æò)
¿¬¸éÀû 406.09§³
(123.06Æò)
°ÇÃà¸éÀû 163.35§³
(49.5Æò)
¿ëÀû·ü»êÁ¤
¿¬¸éÀû
406.09§³
(123.06Æò)
°ÇÆóÀ² 39.74% ¿ëÀû·ü 98.81%
Áö»óÃþ¼ö 4Ãþ ÁöÇÏÃþ¼ö  
ÁÖ¿ëµµ °øµ¿ÁÖÅà ±¸Á¶ ö±ÙÄÜÅ©¸®Æ®±¸Á¶
Âø°øÀÏÀÚ 2016.12.01 »ç¿ë½ÂÀÎÀÏÀÚ 2022.03.14
°ÇÃ๰Ãþº°ÇöȲ [º¸±â]


±¹ÅäºÎ½Ç°Å·¡°¡ °æ±âµµ ÆÄÁֽà ¾ß´çµ¿

¡Ü ¸Å¸Å

¸éÀû(§³), ±Ý¾×(¸¸¿ø)

¡Ü Àü¼¼

¸éÀû(§³), ±Ý¾×(¸¸¿ø)

°è¾àÀϰǹ°¸íĪÃþ¿¬¸éÀûº¸Áõ±Ý¿ù¼¼°ÇÃà
26.02.11ÀÚ¿¬¿¡°¡1Â÷6µ¿372.2126,0002014
26.02.10¾ß´çÀ§´õ½º103µ¿465.961,0001002020
26.02.09¿¹ÀÏ¾ÆÆ®ºô6µ¿258.8216,0002017
26.02.08°¡¿ÂÇϿ콺Cµ¿148.612,58002018
26.02.05¸ð¸®¾È101µ¿153.9712,00002015
¢Ñ ´õº¸±â

µî±âºÎµîº» ¿ä¾à(°Ç¹°)

  Á¢¼öÀÏÀÚ µî±â¸ñÀû/±Ç¸®ÀÚ ±Ç¸®±Ý¾× ±âÁØ
1 2022³â5¿ù13ÀÏ
¼ÒÀ¯±Ç
¹®OO
¼Ò¸ê
2 2022³â5¿ù13ÀÏ
¾àÁ¤/±ÝÁö»çÇ×/ȯ¸ÅƯ¾à
Àμö
3 2023³â3¿ù9ÀÏ
¾Ð·ù
±¹
¼Ò¸ê±âÁØ
4 2024³â5¿ù22ÀÏ
ÀÓÂ÷±Ç¼³Á¤
±èOO
450,000,000 ¼Ò¸ê
5 2025³â8¿ù19ÀÏ
°­Á¦°æ¸Å
±èOO
¼Ò¸ê
6 2025³â9¿ù29ÀÏ
¾Ð·ù
ºÎOO
¼Ò¸ê

ÀÓÂ÷ÀÎÇöȲ (¹è´ç¿ä±¸Á¾±âÀÏ: 2025-11-10)

ÀÓÂ÷ÀÎ ¿ëµµ/Á¡À¯ º¸Áõ±Ý/¿ù¼¼ ´ëÇ×·Â
ÀüÀÔÀÏ/È®Á¤ÀÏ ¹è´ç¿ä±¸ ºñ°í
±èOO 402È£ 353,034,520
O
2022.5.16.
2022.5.2.
2025.11.3. 2022.5.13.~
ºñ°í
(¸Å°¢¹°°Ç
¸í¼¼¼­)
±èÁ¤¾Æ : ½Åûä±ÇÀÚÀÓ

¿©ÀÇÁÖ°æ¸Å Á¶¾ð ÇÑ ¸¶µð

¼±¼øÀ§ ÀÓÂ÷±Çµî±â°¡ µÇ¾î ÀÖ½À´Ï´Ù
´ëÇ×·ÂÀÌ ÀÖ´Â ¼±¼øÀ§ ÀÓÂ÷±Çµî±â ±Ç¸®ÀÚ°¡ ¹è´çÀ» Àü¾× ¹ÞÁö ¸øÇÒ °æ¿ì ³«ÂûÀÚ°¡ ÀÜ¿© º¸Áõ±ÝÀ» ÀμöÇØ¾ßÇÏ´Â °æ¿ìµµ ÀÖ½À´Ï´Ù.

ÁÖÀÇ»çÇ× (ÃÖ¼±¼øÀ§ ¼³Á¤ÀÏ: 2023.3.9. ¾Ð·ù ¼³Á¤)

¸Å°¢À¸·Î ¼Ò¸êµÇÁö ¾Ê´Â µî±âºÎ±Ç¸®: ¸Å¼öÀο¡°Ô ´ëÇ×ÇÒ ¼ö ÀÖ´Â À»±¸ 1¹ø ÀÓÂ÷±Çµî±â(ÀÓ´ëÂ÷º¸Áõ±Ý 450,000,000¿ø, ÀüÀÔÀÏÀÚ 2022.5.16. È®Á¤ÀÏÀÚ 2022.5.2.)°¡ ÀÖÀ¸ ¹Ç·Î ¹è´ç¿¡¼­ Àü¾× º¯Á¦µÇÁö ¾Æ´ÏÇϸé Àܾ×Àº ¸Å¼öÀο¡°Ô ÀμöµÉ ¼ö ÀÖÀ½
¸Å°¢À¸·Î ¼³Á¤µÈ °ÍÀ¸·Î º¸´Â Áö»ó±Ç: ÇØ´ç»çÇ×¾øÀ½
¡Ø¹Ì³³°ü¸®ºñ(°ø¿ë) Àμö¿©ºÎ¸¦ ÀÔÂû Àü¿¡ È®ÀÎÇϽñ⠹ٶø´Ï´Ù

 

Áö¿ªºÐ¼®

ÁöÇÏö¸í Á÷¼±°Å¸®

Çб³¸í ÀüÈ­¹øÈ£ ÁÖ¼Ò Á÷¼±°Å¸®

¹ý¿ø

ÀÇÁ¤ºÎÁö¹æ¹ý¿ø °í¾çÁö¿ø (104-13)°æ±âµµ °í¾ç½Ã Àϻ굿±¸ Àå¹é·Î 209
´ëÇ¥ : 031)920-6114, ¾ß°£ : 031)920-6550, ÆÑ½º : 031)920-6119
°üÇÒÁö¿ª : °í¾ç½Ã, ÆÄÁÖ½Ã

µî±â¼Ò ÀÇÁ¤ºÎÁö¹æ¹ý¿ø °í¾çÁö¿ø ÆÄÁÖµî±â¼Ò (´ëÇ¥:1544-0773, ÆÑ½º:(031)945-4764, 3628, °æ±âµµ ÆÄÁֽà ±ÝÁ¤·Î 45 (±ÝÃ̵¿ 947-28))
¼¼¹«¼­ ÆÄÁÖ¼¼¹«¼­ (´ëÇ¥:031-956-02, ÆÑ½º:031-957-0315, °æ±âµµ ÆÄÁֽà ±Ý¸ª¿ª·Î 62 (±ÝÃ̵¿))

Àαٳ«ÂûÅë°è

±â°£ ¸Å°¢°Ç¼ö Æò±Õ°¨Á¤°¡
Æò±Õ¸Å°¢°¡
¸Å°¢°¡À²
Æò±ÕÀ¯Âû¼ö
3°³¿ù 16°Ç 233,562,500¿ø
158,911,062¿ø
70%
1.6ȸ
6°³¿ù 23°Ç 236,148,652¿ø
163,039,609¿ø
71%
1.6ȸ
12°³¿ù 36°Ç 251,622,750¿ø
172,244,861¿ø
70%
1.6ȸ


º» °æ¸ÅÁ¤º¸´Â ¹ý¿øÀÚ·á¿Í ÀÏÄ¡Çϵµ·Ï ÇÏ¿´À¸³ª ±Ç¸®»çÇ׺¯µ¿, ÀÔ·ÂÂø¿À µîÀÇ ¿øÀÎÀ¸·Î »ç½Ç°ú ´Ù¸¦ ¼ö ÀÖ½À´Ï´Ù. ÀÌ¿ë¾à°ü¿¡ ÀǰЏéÃ¥Á¶°ÇÀ¸·Î Á¦°øµÊÀ» ¾Ë¸®¸ç, °æ¸ÅÀÔÂû½Ã ¹Ýµå½Ã °ü·Ã °øºÎ¸¦ ÀçÈ®ÀÎÇϽñ⠹ٶø´Ï´Ù. º¸´Ù Æí¸®ÇÑ °æ¸ÅÁ¤º¸ Á¦°øÀ» À§ÇØ Áö¼ÓÀûÀ¸·Î °³¼±ÇϰڽÀ´Ï´Ù. ÀÌ¿ëÇØ Áּż­ °¨»çÇÕ´Ï´Ù.