·Î±×ÀÎ
1177
ÁÖÅÃ
ÃáõÁö¹æ¹ý¿ø ¼ÓÃÊÁö¿ø
 °¨Á¤°¡539,705,800 ¿ø
 ÃÖÀú°¡(49%) 264,456,000 ¿ø
 º¸Áõ±Ý(10%) 26,445,600 ¿ø
 Ã»±¸¾×301,950,539 ¿ø
°­¿øÆ¯º°ÀÚÄ¡µµ ¼ÓÃʽà Àå»çµ¿ 316-4
»ç°Ç¹øÈ£ 2025Ÿ°æ10308
°æ¸ÅÁ¾·ùºÎµ¿»êÀÓÀǰæ¸Å
¸Å°¢´ë»óÅäÁö ¹× °Ç¹°Àϰý¸Å°¢
¸Å°¢±âÀÏ    2026.04.08(¼ö) 10:00 ÀÔÂû 7ÀÏÀü    
ÅäÁö¸éÀû585.00§³(176.96 Æò)
°Ç¹°¸éÀû241.08§³(72.93 Æò)
乫/¼ÒÀ¯ÀÚ¹ÚOO / ÁÖOOO OO
ä±ÇÀÚ°íOOOOOO
ÆäÀ̽ººÏ Æ®À§ÅÍ ±¸±Û+
īī¿À½ºÅ丮
īī¿ÀÅå sms¹®ÀÚº¸³»±â
 

±âÀϳ»¿ª

°æ°ú ³¯Â¥ Àú°¨ ÃÖÀú°¡ °á°ú
Á¢¼öÀÏ 2025-07-07 °æ¸ÅÁ¢¼ö
~1ÀÏ 
2025-07-08 °æ¸Å°³½Ã°áÁ¤
~80ÀÏ 
2025-09-25 ¹è´ç¿ä±¸Á¾±âÀÏ
~212ÀÏ 
2026-02-04 100%
539,705,800
À¯Âû
~240ÀÏ 
2026-03-04 70%
377,794,000
À¯Âû
~275ÀÏ 
2026-04-08 49%
264,456,000
ÁøÇà
¹°°Ç¸í¼¼¼­ ÇöȲÁ¶»ç¼­ ¹®°ÇÁ¢¼ö ¼Û´Þ³»¿ª

°¨Á¤Æò°¡ÇöȲ

¸ñ·Ï ÁÖ¼Ò ±¸Á¶/¿ëµµ/´ëÁö±Ç ¸éÀû ºñ°í
ÅäÁö
Àå»çµ¿ 316-4 ´ë 585 §³
(176.96Æò)
°Ç¹°
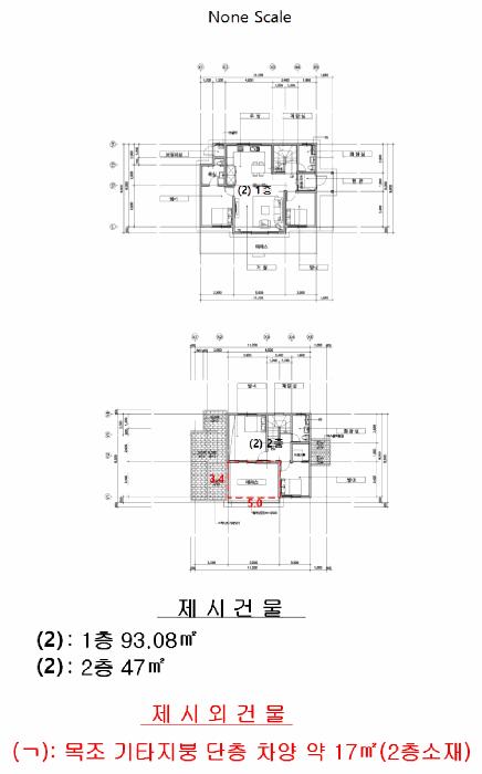
Àå»çµ¿ 316-4 1Ãþ ÁÖÅà ÀϹݸñ±¸Á¶ 93.08 §³
(28.16Æò)
Àå»çµ¿ 316-4 2Ãþ ÁÖÅà ÀϹݸñ±¸Á¶ 47 §³
(14.22Æò)
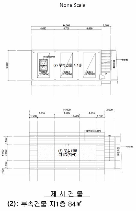
Àå»çµ¿ 316-4 ÁöÃþ Â÷°í ÀϹݸñ±¸Á¶ 84 §³
(25.41Æò)
Á¦½Ã¿Ü
°Ç¹°
Àå»çµ¿ 316-4 Â÷¾ç 17 §³
(5.14Æò)
Æ÷ÇÔ
1) À§Ä¡/µµ½ÃÁö¿ª/ÀÚ¿¬³ìÁöÁö¿ª/½Ã³»¹ö½ºÁ¤·ùÀå/ö±ÙÄÜÅ©¸®Æ®±¸Á¶/°³º°³­¹æ ´õº¸±â
°¨Á¤Æò°¡ ¿äÇ×Ç¥
1)À§Ä¡ ¹× ÁÖÀ§È¯°æ
º»°ÇÀº °­¿øÆ¯º°ÀÚÄ¡µµ ¼ÓÃʽà Àå»çµ¿ ¼ÒÀç ""¾¾¾Ø½ºÅ¸ Ÿ¿îÇϿ콺"" ³»¿¡ À§Ä¡Çϸç, ÀαÙÀº
Ÿ¿îÇϿ콺 ³» ´Üµ¶ÁÖÅÃ, ÅÃÁö Á¶¼ºÁßÀÎ ÀÓ¾ß, ³ó°æÁö, ÀÓ¾ß µîÀ¸·Î Çü¼ºµÈ ±Ù±³³óÃÌÁö´ëÀÓ.
2)±³Åë»óȲ
º»°Ç±îÁö Â÷·®Á¢±Ù °¡´ÉÇÏ°í ½Ã³»¹ö½ºÁ¤·ùÀå°úÀÇ °Å¸® ¹× ¿îÇàºóµµ µîÀ¸·Î º¼ ¶§ ´ëÁß±³Åë»ç
Á¤Àº º¸Åë Á¤µµÀÓ.
3)ÇüÅ ¹× ÀÌ¿ë»óÅÂ
¼¼ÀåÇü»óÀÇ ÅäÁö·Î¼­ ÇöȲ ´Üµ¶ÁÖÅà ºÎÁö·Î ÀÌ¿ëÁßÀÓ.
4)ÀÎÁ¢ µµ·Î»óÅÂ
º»°Ç µ¿ÃøÀ¸·Î ·ÎÆø ¾à 6¹ÌÅÍ ³»¿ÜÀÇ Æ÷Àåµµ·Î¸¦ ÀÌ¿ëÇÏ¿© Á¢±Ù°¡´ÉÇÔ.
5)ÅäÁöÀÌ¿ë°èȹ ¹× Á¦ÇÑ»óÅÂ
µµ½ÃÁö¿ª , ÀÚ¿¬³ìÁöÁö¿ª, °¡Ãà»çÀ°Á¦Çѱ¸¿ª<°¡ÃàºÐ´¢ÀÇ °ü¸® ¹× À̿뿡 °üÇÑ ¹ý·ü>
6)Á¦½Ã¸ñ·Ï ¿ÜÀÇ ¹°°Ç
°Ç¹°°¨Á¤Æò°¡¿äÇâÇ¥ (4) ÂüÁ¶.


7)°øºÎ¿ÍÀÇ Â÷ÀÌ
¾øÀ½.
8)±âŸÂü°í»çÇ×(ÀÓ´ë°ü·Ê ¹× ±âŸ)
¹Ì»óÀÓ.
1)°Ç¹°ÀÇ ±¸Á¶
ÀϹݸñ±¸Á¶ ¸ñ±¸Á¶ÁöºØ 2Ãþ °Ç¹°·Î °ÇÃ๰´ëÀå»ó 2018.12.31.ÀÚ·Î »ç¿ë½ÂÀÎµÈ °Ç¹°ÀÓ.
¿Üº® : ¿ÜÀåŸÀÏ ¹× º¹ÇÕÆÇ³Ú¸¶°¨ µî
³»º® : ³»ºÎ º®Áö ¹× ÀϺΠŸÀϸ¶°¨ µî
¹Ù´Ú : ÀåÆÇ ¹× ÀϺΠŸÀϸ¶°¨ µî
õÀå : º®Áö¸¶°¨ µî
âȣ : ¼¦½Ã ÀÌÁßâ ±¸Á¶

ºÎ¼Ó°Ç¹° ö±ÙÄÜÅ©¸®Æ®±¸Á¶ ÄÜÅ©¸®Æ®ÁöºØ Áö1Ãþ °Ç¹°·Î °ÇÃ๰´ëÀå»ó 2019.7.31.ÀÚ·Î ÁõÃàµÈ
°Ç¹°ÀÓ.
¿Üº® : ¿ÜÀåŸÀϺÙÀÓ ¸¶°¨
³»º® : ¸ôÅ» À§ ÆäÀÎÆÃ¸¶°¨
¹Ù´Ú : ÄÜÅ©¸®Æ®¸¶°¨
õÀå : ¸ôÅ» À§ ÆäÀÎÆÃ¸¶°¨
âȣ : -
2)ÀÌ¿ë»óÅÂ
Áְǹ°Àº 1,2Ãþ ´Üµ¶ÁÖÅÃÀ¸·Î ºÎ¼Ó°Ç¹°Àº Â÷°í, µ¥Å©, ¿Á¿Ü¼ö¿µÀåÀ¸·Î ÀÌ¿ëÁßÀÓ.
3)¼³ºñ³»¿ª
´Üµ¶ÁÖÅÃÀº À§»ý ¹× ±Þ¹è¼ö¼³ºñ, °³º°³­¹æ¼³ºñ µîÀ» °®Ãß¾úÀ¸¸ç, ºÎ¼Ó°Ç¹°Àº ¿Á¿Ü¼ö¿µÀå ¼³
ºñµÇ¾î ÀÖÀ½.
4)ºÎÇÕ¹° ¹× Á¾¹°
º°Ã· ""°Ç¹°°³È²µµ ¹× »çÁø¿ëÁö""¿Í °°ÀÌ µ¿ÀÏÀÎ ¼ÒÀ¯·Î ÃßÁ¤µÇ´Â Á¦½Ã¿Ü°Ç¹°(¤¡)ÀÌ ¼ÒÀçÇϰí
ÀÖÀ¸¸ç °æ¸ÅÁøÇà½Ã Âü°íÇϽñ⠹ٶ÷.
5)°øºÎ¿ÍÀÇ Â÷ÀÌ
¾øÀ½.
6)±âŸÂü°í»çÇ×(ÀÓ´ë°ü·Ê ¹× ±âŸ)
¹Ì»óÀÓ.
Âü°í
»çÇ×
Àϰý¸Å°¢, Á¦½Ã¿Ü°Ç¹° Æ÷ÇÔÇϸç ÅäÁö Áö»ó¿¡ ¾ß¿Ü ¼ö¿µÀå ¹× ¼Ò³ª¹« 3±×·ç ÀÖÀ½(ÇöȲÁ¶»ç»çÂüÁ¶).
* º»°Ç ºÎµ¿»ê 1¹ø ¸ñ·Ï - ÅäÁö Áö»ó¿¡ ¾ß¿Ü ¼ö¿µÀå ÀÖÀ½. - ÅäÁö Áö»ó¿¡ Á¶°æ¼ö ¼Ò³ª¹« 3±×·ç ÀÖÀ½. *

°ÇÃ๰ÇöȲ

¼ÒÀçÁö °­¿øÆ¯º°ÀÚÄ¡µµ ¼ÓÃʽà Àå»çµ¿ 316-4¹øÁö
´ëÁö¸éÀû 585§³
(177.27Æò)
¿¬¸éÀû 224.08§³
(67.9Æò)
°ÇÃà¸éÀû 93.08§³
(28.21Æò)
¿ëÀû·ü»êÁ¤
¿¬¸éÀû
140.08§³
(42.45Æò)
°ÇÆóÀ² 15.91% ¿ëÀû·ü 23.95%
Áö»óÃþ¼ö 2Ãþ ÁöÇÏÃþ¼ö  
ÁÖ¿ëµµ ´Üµ¶ÁÖÅà ±¸Á¶ ÀϹݸñ±¸Á¶
Âø°øÀÏÀÚ 2017.04.04 »ç¿ë½ÂÀÎÀÏÀÚ 2018.12.31
°ÇÃ๰Ãþº°ÇöȲ [º¸±â]


±¹ÅäºÎ½Ç°Å·¡°¡ °­¿øÆ¯º°ÀÚÄ¡µµ ¼ÓÃʽà Àå»çµ¿

¡Ü ¸Å¸Å

¸éÀû(§³), ±Ý¾×(¸¸¿ø)

¡Ü Àü¼¼

¸éÀû(§³), ±Ý¾×(¸¸¿ø)

°è¾àÀÏ¿¬¸éÀûº¸Áõ±Ý¿ù¼¼°ÇÃà
26.01.2130300452017
25.12.2833.05300451993
25.12.1886.911,000452000
25.12.1654.18500501997
25.11.02141.6835,7002020
¢Ñ ´õº¸±â

µî±âºÎµîº» ¿ä¾à(ÅäÁö)

  Á¢¼öÀÏÀÚ µî±â¸ñÀû/±Ç¸®ÀÚ ±Ç¸®±Ý¾× ±âÁØ
1 2020³â1¿ù20ÀÏ
¼ÒÀ¯±Ç
(OOOO
¼Ò¸ê
2 2019³â1¿ù29ÀÏ
±ÙÀú´ç±Ç
°íOOOO
300,000,000 ¼Ò¸ê±âÁØ
3 2019³â10¿ù30ÀÏ
±ÙÀú´ç±Ç
ÀåOO
100,000,000 ¼Ò¸ê
4 2019³â11¿ù18ÀÏ
Àü¼¼±Ç
µµOO
120,000,000 ¼Ò¸ê
5 2023³â4¿ù21ÀÏ
¾Ð·ù
¼ÓOO
¼Ò¸ê
6 2025³â7¿ù8ÀÏ
ÀÓÀǰæ¸Å
°íOOOO
¼Ò¸ê

µî±âºÎµîº» ¿ä¾à(°Ç¹°)

  Á¢¼öÀÏÀÚ µî±â¸ñÀû/±Ç¸®ÀÚ ±Ç¸®±Ý¾× ±âÁØ
1 2020³â1¿ù20ÀÏ
¼ÒÀ¯±Ç
(OOOO
¼Ò¸ê
2 2019³â1¿ù29ÀÏ
±ÙÀú´ç±Ç
°íOOOO
300,000,000 ¼Ò¸ê±âÁØ
3 2019³â10¿ù30ÀÏ
±ÙÀú´ç±Ç
ÀåOO
100,000,000 ¼Ò¸ê
4 2019³â11¿ù18ÀÏ
Àü¼¼±Ç
µµOO
120,000,000 ¼Ò¸ê
5 2025³â7¿ù8ÀÏ
ÀÓÀǰæ¸Å
°íOOOO
¼Ò¸ê

ÀÓÂ÷ÀÎÇöȲ (¹è´ç¿ä±¸Á¾±âÀÏ: 2025-09-25)

ÀÓÂ÷ÀÎ ¿ëµµ/Á¡À¯ º¸Áõ±Ý/¿ù¼¼ ´ëÇ×·Â
ÀüÀÔÀÏ/È®Á¤ÀÏ ¹è´ç¿ä±¸ ºñ°í
µµOO ÅäÁöÀÇÀüºÎ 120,000,000

2019.11.15.~2021.11.15.
ºñ°í
(¸Å°¢¹°°Ç
¸í¼¼¼­)
µµÇѾï:Àü¼¼±Ý 120,000,000¿øÀº ÅäÁö¿Í °Ç¹°ÀÇ Àü¼¼±Ý ÇÕ°èÀÓ.

¿©ÀÇÁÖ°æ¸Å Á¶¾ð ÇÑ ¸¶µð

Á¦½Ã¿Ü ¹°°ÇÀÌ Æ÷ÇԵǾî ÀÖ½À´Ï´Ù
¡®Á¦½Ã¿Ü ¹°°Ç¡¯Àº ÇØ´ç °øºÎ»ó¿¡´Â Á¸ÀçÇÏÁö ¾ÊÁö¸¸, ÇöÀå¿¡ Á¸Àç°¡ È®ÀεǴ ¿©·¯ ÇüÅÂÀÇ °Ç¹°, ±â°è±â±¸ µîÀ» ¸»ÇÕ´Ï´Ù. ÀÌµé ´ëºÎºÐÀº ¹«Çã°¡, ¹«½Å°íÀ̰ųª »ç¿ë½ÂÀÎÀ» ¹ÞÁö ¾ÊÀº °ÍÀÔ´Ï´Ù. ¡®Á¦½Ã¿Ü ¹°°Ç¡¯ÀÌ °æ¸Å´ë»ó¿¡ Æ÷ÇԵǾî ÀÖ´Ù¸é ³«ÂûÀÚÀÇ ¼ÒÀ¯±Ç Ãëµæ¿¡´Â ¾Æ¹«·± ¹®Á¦°¡ ¾ø½À´Ï´Ù.

ÁÖÀÇ»çÇ× (ÃÖ¼±¼øÀ§ ¼³Á¤ÀÏ: 2019.01.29.±ÙÀú´ç ¼³Á¤)

¸Å°¢À¸·Î ¼Ò¸êµÇÁö ¾Ê´Â µî±âºÎ±Ç¸®:
¸Å°¢À¸·Î ¼³Á¤µÈ °ÍÀ¸·Î º¸´Â Áö»ó±Ç:
Àϰý¸Å°¢, Á¦½Ã¿Ü°Ç¹° Æ÷ÇÔÇϸç ÅäÁö Áö»ó¿¡ ¾ß¿Ü ¼ö¿µÀå ¹× ¼Ò³ª¹« 3±×·ç ÀÖÀ½(ÇöȲÁ¶»ç»çÂüÁ¶).
¡Ø¹Ì³³°ü¸®ºñ(°ø¿ë) Àμö¿©ºÎ¸¦ ÀÔÂû Àü¿¡ È®ÀÎÇϽñ⠹ٶø´Ï´Ù

 

Áö¿ªºÐ¼®

ÁöÇÏö¸í Á÷¼±°Å¸®

Çб³¸í ÀüÈ­¹øÈ£ ÁÖ¼Ò Á÷¼±°Å¸®

¹ý¿ø

ÃáõÁö¹æ¹ý¿ø ¼ÓÃÊÁö¿ø (248-22)°­¿øµµ ¼ÓÃʽà ¹ý´ë·Î 15 (µ¿¸íµ¿)
´ëÇ¥ : 033)639-7600, ¾ß°£ : 033)639-7600
°üÇÒÁö¿ª : ¼ÓÃʽÃ, °í¼º±º, ¾ç¾ç±º

µî±â¼Ò ÃáõÁö¹æ¹ý¿ø ¼ÓÃÊÁö¿ø µî±â°è (´ëÇ¥:1544-0773, ÆÑ½º:(033) 632-2936, 635-4121, °­¿øµµ ¼ÓÃʽà ¹ý´ë·Î 15 (µ¿¸íµ¿ 300))
¼¼¹«¼­ ¼ÓÃʼ¼¹«¼­ (´ëÇ¥:033-639-92, ÆÑ½º:033-633-9510, °­¿øµµ ¼ÓÃʽà ¼öº¹·Î 28 (±³µ¿))

Àαٳ«ÂûÅë°è

±â°£ ¸Å°¢°Ç¼ö Æò±Õ°¨Á¤°¡
Æò±Õ¸Å°¢°¡
¸Å°¢°¡À²
Æò±ÕÀ¯Âû¼ö
3°³¿ù 1°Ç 323,047,480¿ø
173,600,000¿ø
54%
2ȸ
6°³¿ù 1°Ç 323,047,480¿ø
173,600,000¿ø
54%
2ȸ
12°³¿ù 2°Ç 207,459,660¿ø
134,355,000¿ø
79%
1.5ȸ


º» °æ¸ÅÁ¤º¸´Â ¹ý¿øÀÚ·á¿Í ÀÏÄ¡Çϵµ·Ï ÇÏ¿´À¸³ª ±Ç¸®»çÇ׺¯µ¿, ÀÔ·ÂÂø¿À µîÀÇ ¿øÀÎÀ¸·Î »ç½Ç°ú ´Ù¸¦ ¼ö ÀÖ½À´Ï´Ù. ÀÌ¿ë¾à°ü¿¡ ÀǰЏéÃ¥Á¶°ÇÀ¸·Î Á¦°øµÊÀ» ¾Ë¸®¸ç, °æ¸ÅÀÔÂû½Ã ¹Ýµå½Ã °ü·Ã °øºÎ¸¦ ÀçÈ®ÀÎÇϽñ⠹ٶø´Ï´Ù. º¸´Ù Æí¸®ÇÑ °æ¸ÅÁ¤º¸ Á¦°øÀ» À§ÇØ Áö¼ÓÀûÀ¸·Î °³¼±ÇϰڽÀ´Ï´Ù. ÀÌ¿ëÇØ Áּż­ °¨»çÇÕ´Ï´Ù.