·Î±×ÀÎ
1163
¾ÆÆÄÆ®
´ëÀüÁö¹æ¹ý¿ø õ¾ÈÁö¿ø
 °¨Á¤°¡165,000,000 ¿ø
 ÃÖÀú°¡(100%) 165,000,000 ¿ø
 º¸Áõ±Ý(10%) 16,500,000 ¿ø
 Ã»±¸¾×580,551,002 ¿ø
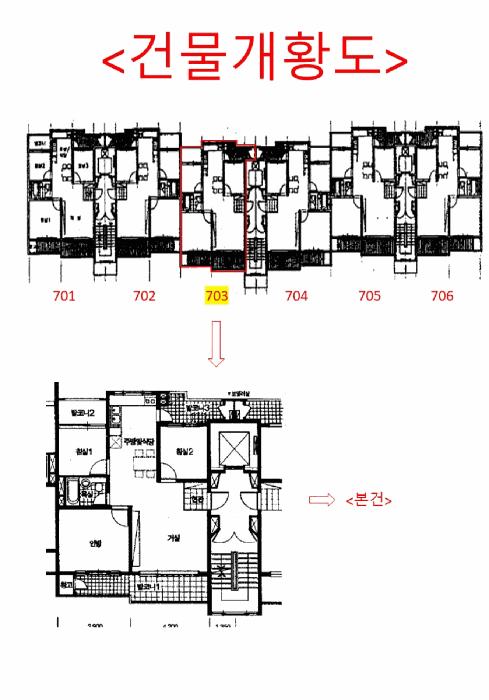
ÃæÃ»³²µµ õ¾È½Ã µ¿³²±¸ ½Å¹æµ¿ 895 µÎ·¹Çö´ë¾ÆÆÄÆ®1´ÜÁö 105µ¿ 7Ãþ703È£
»ç°Ç¹øÈ£ 2025Ÿ°æ429
°æ¸ÅÁ¾·ùºÎµ¿»ê°­Á¦°æ¸Å
¸Å°¢´ë»óÅäÁö ¹× °Ç¹°Àϰý ¸Å°¢
¸Å°¢±âÀÏ    2026.02.03(È­) 10:00    
ÅäÁö¸éÀû33.34§³(10.09 Æò)
°Ç¹°¸éÀû71.68§³(21.68 Æò)
乫/¼ÒÀ¯ÀÚ±ÇOO / ±ÇOO
ä±ÇÀÚ³óOOOOOOOO
ÆäÀ̽ººÏ Æ®À§ÅÍ ±¸±Û+
īī¿À½ºÅ丮
īī¿ÀÅå sms¹®ÀÚº¸³»±â
 

±âÀϳ»¿ª

°æ°ú ³¯Â¥ Àú°¨ ÃÖÀú°¡ °á°ú
Á¢¼öÀÏ 2025-03-18 °æ¸ÅÁ¢¼ö
~1ÀÏ 
2025-03-19 °æ¸Å°³½Ã°áÁ¤
~97ÀÏ 
2025-06-23 ¹è´ç¿ä±¸Á¾±âÀÏ
~322ÀÏ 
2026-02-03 100%
165,000,000
À¯Âû
¹°°Ç¸í¼¼¼­ ÇöȲÁ¶»ç¼­ ¹®°ÇÁ¢¼ö ¼Û´Þ³»¿ª

°¨Á¤Æò°¡ÇöȲ

¸ñ·Ï ÁÖ¼Ò ±¸Á¶/¿ëµµ/´ëÁö±Ç ¸éÀû ºñ°í
´ëÁö±Ç
½Å¹æµ¿ 895 22069.1ºÐÀÇ 33.341 33.341 §³
(10.09Æò)
°Ç¹°
½Å¹æµ¿ 895 105µ¿ 7Ãþ703È£ ö±ÙÄÜÅ©¸®Æ®º®½ÄÁ¶ 71.682 §³
(21.68Æò)
 
1) À§Ä¡/µµ½ÃÁö¿ª/Á¦2Á¾ÀϹÝÁÖ°ÅÁö¿ª/½½·¡ºêÁöºØ ´õº¸±â
°¨Á¤Æò°¡ ¿äÇ×Ç¥
1)À§Ä¡ ¹× ÁÖÀ§È¯°æ
º»°ÇÀº ÃæÃ»³²µµ õ¾È½Ã µ¿³²±¸ ½Å¹æµ¿ ¼ÒÀç ""½Å¿ëÃʵîÇб³"" ºÏÃø Àαٿ¡ À§Ä¡Çϸç ÁÖÀ§´Â ¾ÆÆÄÆ®´ÜÁö,»ó°¡µîÀÌ ¼ÒÀçÇÏ´Â Áö¿ªÀÓ.
2)±³Åë»óȲ
Àαٿ¡ ½Ã³»¹ö½º ½Â°­ÀåÀÌ ¼ÒÀçÇÏ´Â µî Á¦¹Ý±³Åë»óȲÀº º¸ÅëÀÓ.
3)°Ç¹°ÀÇ ±¸Á¶
ö±ÙÄÜÅ©¸®Æ®º®½ÄÁ¶ ½½·¡ºêÁöºØ 23Ãþ °Ç¹°ÀÇ Á¦ 7Ãþ Á¦703È£·Î

¿Üº®: ½Ã¸àÆ®¸ôÅ»À§ ÆäÀÎÆ® ¸¶°¨µî
³»º®: º®Áö ¹× ÀϺΟÀϸ¶°¨µî
âȣ: ¼¦½Ãâȣµî
4)ÀÌ¿ë»óÅÂ
¾ÆÆÄÆ® 1°³È£·Î ÀÌ¿ëÁßÀÓ.
5)¼³ºñ³»¿ª
±âº»ÀûÀÎ Àü±â¼³ºñ,³Ã³­¹æ¼³ºñ,¼Ò¹æ¼³ºñ,À§»ý¼³ºñ, ±Þ¼ö ¹× ¹è¼ö½Ã¼³, °¡½º¼³ºñ,½Â°­±â¼³ºñµîÀÌ ¼³Ä¡µÇ¾î ÀÖÀ½.
6)ÅäÁöÀÇ Çü»ó ¹× ÀÌ¿ë»óÅÂ
´ëü·Î ¼¼ÀåÇüÅäÁö·Î ¾ÆÆÄÆ®´ÜÁöÀÇ °ÇºÎÁö·Î ÀÌ¿ëÁßÀÓ.
7)ÀÎÁ¢ µµ·Î»óŵî
ºÏÃøÀ¸·Î ¾à 20¹ÌÅÍ, ¼­Ãø°ú ³²ÃøÀ¸·Î ¾à10¹ÌÅÍ, µ¿ÃøÀ¸·Î ¾à8¹ÌÅÍÀÇ µµ·Î¿¡ Á¢ÇØÀÖÀ½.
8)ÅäÁöÀÌ¿ë°èȹ ¹× Á¦ÇÑ»óÅÂ
µµ½ÃÁö¿ª(õ¾Èµµ½ÃÁö¿ª) , Á¦2Á¾ÀϹÝÁÖ°ÅÁö¿ª , ¼Ò·Î1·ù(Æø 10m~12m)(Á¢ÇÕ) , Áß·Î1·ù(Æø 20m~25m)(Á¢ÇÕ)
°¡Ãà»çÀ°Á¦Çѱ¸¿ª(Ÿ¹ý¿¡ÀÇÇÑÀüºÎÁ¦Çѱ¸¿ª)<°¡ÃàºÐ´¢ÀÇ °ü¸® ¹× À̿뿡 °üÇÑ ¹ý·ü>, »ó´ëº¸È£±¸¿ª(õ¾È½Å¿ëÃʵîÇб³ »ó´ëº¸È£±¸¿ª)<±³À°È¯°æ º¸È£¿¡ °üÇÑ ¹ý·ü>, »ó´ëº¸È£±¸¿ª(õ¾È¿ë°îÁßÇб³ »ó´ëº¸È£±¸¿ª)<±³À°È¯°æ º¸È£¿¡ °üÇÑ ¹ý·ü>, Àý´ëº¸È£±¸¿ª(õ¾È½Å¿ëÃʵîÇб³ Àý´ëº¸È£±¸¿ª)<±³À°È¯°æ º¸È£¿¡ °üÇÑ ¹ý·ü>
9)°øºÎ¿ÍÀÇ Â÷ÀÌ
-.
10)±âŸÂü°í»çÇ×(ÀÓ´ë°ü·Ê ¹× ±âŸ)
±¸Ã¼ÀûÀÎ ÀÓ´ëÂ÷ °ü°è´Â ¹Ì»óÀÓ.

°ÇÃ๰ÇöȲ

¼ÒÀçÁö ÃæÃ»³²µµ õ¾È½Ã µ¿³²±¸ ½Å¹æµ¿ 895¹øÁö
´ëÁö¸éÀû 22069.1§³
(6687.61Æò)
¿¬¸éÀû 15343.22§³
(4649.46Æò)
°ÇÃà¸éÀû 843.78§³
(255.69Æò)
¿ëÀû·ü»êÁ¤
¿¬¸éÀû
7681.36§³
(2327.68Æò)
°ÇÆóÀ² 18.79% ¿ëÀû·ü 262.74%
Áö»óÃþ¼ö 24Ãþ ÁöÇÏÃþ¼ö 1Ãþ
ÁÖ¿ëµµ °øµ¿ÁÖÅà ±¸Á¶ ö±ÙÄÜÅ©¸®Æ®±¸Á¶
Âø°øÀÏÀÚ 1994.11.10 »ç¿ë½ÂÀÎÀÏÀÚ 1997.06.05
°ÇÃ๰Ãþº°ÇöȲ [º¸±â]


µî±âºÎµîº» ¿ä¾à(°Ç¹°)

  Á¢¼öÀÏÀÚ µî±â¸ñÀû/±Ç¸®ÀÚ ±Ç¸®±Ý¾× ±âÁØ
1 1997³â7¿ù26ÀÏ
¼ÒÀ¯±Ç
±ÇOO
¼Ò¸ê
2 2014³â8¿ù27ÀÏ
±ÙÀú´ç±Ç
(OOOO
139,200,000 ¼Ò¸ê±âÁØ
3 2024³â9¿ù6ÀÏ
°¡¾Ð·ù
ȕOOOO
22,282,411 ¼Ò¸ê
4 2024³â10¿ù10ÀÏ
°¡¾Ð·ù
³óOOOO
8,444,798 ¼Ò¸ê
5 2024³â11¿ù6ÀÏ
°¡¾Ð·ù
³óOOOO
163,317,320 ¼Ò¸ê
6 2024³â11¿ù11ÀÏ
°¡¾Ð·ù
³óOOOO
558,015,524 ¼Ò¸ê
7 2025³â3¿ù19ÀÏ
°­Á¦°æ¸Å
³óOOOO
¼Ò¸ê

ÀÓÂ÷ÀÎÇöȲ (¹è´ç¿ä±¸Á¾±âÀÏ: 2025-06-23)


Á¶»çµÈ ÀÓÂ÷³»¿ªÀÌ ¾ø½À´Ï´Ù


¾ÆÆÄÆ® Á¤º¸

ÁÖ¼Ò
½Ã°ø»ç ´ÜÁö±Ô¸ð 6°³µ¿ ¼¼´ë
³­¹æ »ç¿ë½ÂÀÎ
°ü¸®¼Ò
Àü¿ë¸éÀû ¼¼´ë¼ö
´ëÁö±Ç
Çö°ü/±¸Á¶ ½Ä / ¹æ, ¿å½Ç
  • Çб³
  • ÁÖº¯½Ã¼³
  • ´ëÁß±³Åë

¿©ÀÇÁÖ°æ¸Å Á¶¾ð ÇÑ ¸¶µð


ÁÖÀÇ»çÇ× (ÃÖ¼±¼øÀ§ ¼³Á¤ÀÏ: 2014. 8. 27. ±ÙÀú´ç ¼³Á¤)

¸Å°¢À¸·Î ¼Ò¸êµÇÁö ¾Ê´Â µî±âºÎ±Ç¸®:
¸Å°¢À¸·Î ¼³Á¤µÈ °ÍÀ¸·Î º¸´Â Áö»ó±Ç:
¡Ø¹Ì³³°ü¸®ºñ(°ø¿ë) Àμö¿©ºÎ¸¦ ÀÔÂû Àü¿¡ È®ÀÎÇϽñ⠹ٶø´Ï´Ù

 

Áö¿ªºÐ¼®

ÁöÇÏö¸í Á÷¼±°Å¸®

Çб³¸í ÀüÈ­¹øÈ£ ÁÖ¼Ò Á÷¼±°Å¸®

¹ý¿ø

´ëÀüÁö¹æ¹ý¿ø Ãµ¾ÈÁö¿ø (311-98)ÃæÃ»³²µµ õ¾È½Ã µ¿³²±¸ û¼ö14·Î 77 (û´çµ¿ 476)
´ëÇ¥ : 041)620-3000, ¹Î¿ø : 041)620-3058
°üÇÒÁö¿ª : õ¾È½Ã, ¾Æ»ê½Ã

µî±â¼Ò ´ëÀüÁö¹æ¹ý¿ø Ãµ¾ÈÁö¿ø µî±â°ú (´ëÇ¥:1544-0773, ÆÑ½º:(041)530-0420, Ãæ³² õ¾È½Ã µ¿³²±¸ û¼ö14·Î 77 (û´çµ¿ 476))
¼¼¹«¼­ õ¾È¼¼¹«¼­ (´ëÇ¥:041-559-82, ÆÑ½º:041-555-9556, ÃæÃ»³²µµ õ¾È½Ã µ¿³²±¸ û¼ö14·Î 80 (û´çµ¿))

Àαٳ«ÂûÅë°è

±â°£ ¸Å°¢°Ç¼ö Æò±Õ°¨Á¤°¡
Æò±Õ¸Å°¢°¡
¸Å°¢°¡À²
Æò±ÕÀ¯Âû¼ö
3°³¿ù 14°Ç 169,285,714¿ø
137,641,800¿ø
80%
1.1ȸ
6°³¿ù 31°Ç 169,693,548¿ø
136,315,627¿ø
79%
1.2ȸ
12°³¿ù 97°Ç 181,722,680¿ø
145,922,669¿ø
79%
1.1ȸ


º» °æ¸ÅÁ¤º¸´Â ¹ý¿øÀÚ·á¿Í ÀÏÄ¡Çϵµ·Ï ÇÏ¿´À¸³ª ±Ç¸®»çÇ׺¯µ¿, ÀÔ·ÂÂø¿À µîÀÇ ¿øÀÎÀ¸·Î »ç½Ç°ú ´Ù¸¦ ¼ö ÀÖ½À´Ï´Ù. ÀÌ¿ë¾à°ü¿¡ ÀǰЏéÃ¥Á¶°ÇÀ¸·Î Á¦°øµÊÀ» ¾Ë¸®¸ç, °æ¸ÅÀÔÂû½Ã ¹Ýµå½Ã °ü·Ã °øºÎ¸¦ ÀçÈ®ÀÎÇϽñ⠹ٶø´Ï´Ù. º¸´Ù Æí¸®ÇÑ °æ¸ÅÁ¤º¸ Á¦°øÀ» À§ÇØ Áö¼ÓÀûÀ¸·Î °³¼±ÇϰڽÀ´Ï´Ù. ÀÌ¿ëÇØ Áּż­ °¨»çÇÕ´Ï´Ù.