·Î±×ÀÎ
1142
´Ù¼¼´ë(ºô¶ó)
ÀÇÁ¤ºÎÁö¹æ¹ý¿ø °í¾çÁö¿ø
 °¨Á¤°¡170,000,000 ¿ø
 ÃÖÀú°¡(70%) 119,000,000 ¿ø
 º¸Áõ±Ý(10%) 11,900,000 ¿ø
 Ã»±¸¾×207,049,299 ¿ø
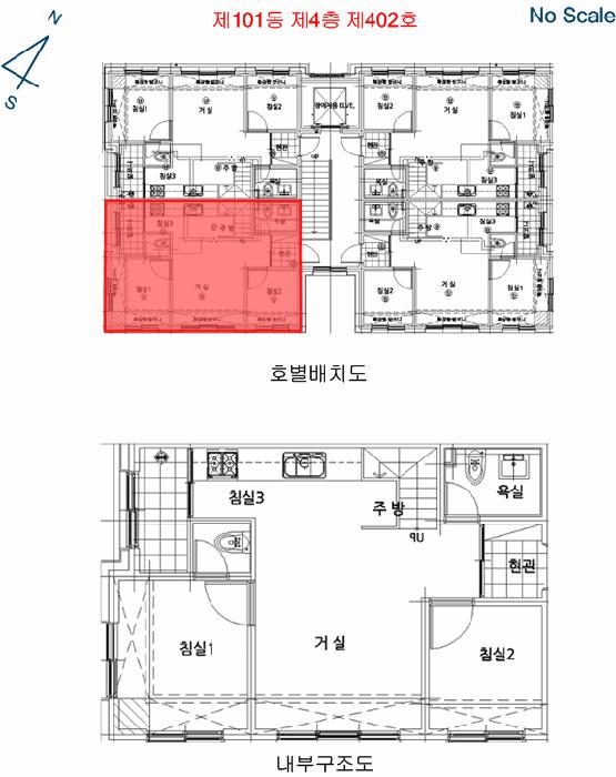
°æ±âµµ °í¾ç½Ã Àϻ굿±¸ ¹®ºÀµ¿ 58-27 101µ¿ 4Ãþ402È£
»ç°Ç¹øÈ£ 2025Ÿ°æ62831
°æ¸ÅÁ¾·ùºÎµ¿»ê°­Á¦°æ¸Å
¸Å°¢´ë»óÅäÁö ¹× °Ç¹°Àϰý ¸Å°¢
¸Å°¢±âÀÏ    2026.03.17(È­) 10:00 ÀÔÂû 12ÀÏÀü    
ÅäÁö¸éÀû43.42§³(13.13 Æò)
°Ç¹°¸éÀû37.41§³(11.32 Æò)
乫/¼ÒÀ¯ÀÚ±èOO / ±èOO
ä±ÇÀÚÁÖOOOOOOO
ÆäÀ̽ººÏ Æ®À§ÅÍ ±¸±Û+
īī¿À½ºÅ丮
īī¿ÀÅå sms¹®ÀÚº¸³»±â
 

±âÀϳ»¿ª

°æ°ú ³¯Â¥ Àú°¨ ÃÖÀú°¡ °á°ú
Á¢¼öÀÏ 2025-04-08 °æ¸ÅÁ¢¼ö
~1ÀÏ 
2025-04-09 °æ¸Å°³½Ã°áÁ¤
~90ÀÏ 
2025-07-07 ¹è´ç¿ä±¸Á¾±âÀÏ
~301ÀÏ 
2026-02-03 100%
170,000,000
À¯Âû
~343ÀÏ 
2026-03-17 70%
119,000,000
ÁøÇà
¹°°Ç¸í¼¼¼­ ÇöȲÁ¶»ç¼­ ¹®°ÇÁ¢¼ö ¼Û´Þ³»¿ª

°¨Á¤Æò°¡ÇöȲ

¸ñ·Ï ÁÖ¼Ò ±¸Á¶/¿ëµµ/´ëÁö±Ç ¸éÀû ºñ°í
´ëÁö±Ç
¹®ºÀµ¿ 58-27 1042ºÐÀÇ 43.42 43.42 §³
(13.13Æò)
°Ç¹°
¹®ºÀµ¿ 58-27 101µ¿ 4Ãþ402È£ ö±ÙÄÜÅ©¸®Æ®±¸Á¶ 37.41 §³
(11.32Æò)
1) À§Ä¡/°èȹ°ü¸®Áö¿ª/³ë¼±¹ö½ºÁ¤·ùÀå/ö±ÙÄÜÅ©¸®Æ®±¸Á¶ ´õº¸±â
°¨Á¤Æò°¡ ¿äÇ×Ç¥
1)À§Ä¡ ¹× ÁÖÀ§È¯°æ
º»°ÇÀº °æ±âµµ °í¾ç½Ã Àϻ굿±¸ ¹®ºÀµ¿ ¼ÒÀç '°íºÀµ¿ÇàÁ¤º¹Áö¼¾ÅÍ' ºÏ¼­Ãø Àαٿ¡ À§Ä¡Çϸç, ÁÖÀ§´Â ´Ù¼¼´ëÁÖÅÃ, ÀϺΰøÀå ¹× ÀӾߵîÀÌ È¥ÀçÇÏ´Â Áö¿ªÀÓ.
2)±³Åë»óȲ
º»°Ç±îÁö Â÷·®ÀÇ ÁøÃâÀÔÀÌ °¡´ÉÇϸç, Àαٿ¡ ³ë¼±¹ö½ºÁ¤·ùÀåÀÌ ¼ÒÀçÇÏ´Â µî ´ëÁß±³ÅëÀ̿뿩°ÇÀº º¸ÅëÀÓ.
3)°Ç¹°ÀÇ ±¸Á¶
ö±ÙÄÜÅ©¸®Æ®±¸Á¶ ÆòÁöºØ 4Ãþ °Ç¹° ³» Á¦4Ãþ Á¦402È£·Î¼­,
(»ç¿ë½ÂÀÎÀÏ:2017.12.22)
¿Üº® : Ä¡À庮µ¹ ¹× µå¶óÀ̺ñÆ® ¸¶°¨ µî,
âȣ : ÇÏÀ̼¦½Ã âȣ µîÀÓ.
4)ÀÌ¿ë»óÅÂ
´Ù¼¼´ëÁÖÅÃÀ¸·Î ÀÌ¿ëÁßÀÎ °ÍÀ¸·Î ޹®Á¶»çµÊ.
5)¼³ºñ³»¿ª
À§»ý ¹× ±Þ¹è¼ö¼³ºñ, ³­¹æ¼³ºñ, ½Â°­±â¼³ºñ µîÀÌ ±¸ºñ µÇ¾î ÀÖÀ½.
6)ÅäÁöÀÇ Çü»ó ¹× ÀÌ¿ë»óÅÂ
ÀÎÁ¢µµ·Î ´ëºñ ÀÚü ÆòźȭÇÑ »ç´Ù¸®Çü ÅäÁö·Î¼­, '°øµ¿ÁÖÅà °ÇºÎÁö'·Î ÀÌ¿ë ÁßÀÓ.
7)ÀÎÁ¢ µµ·Î»óŵî
º»°Ç ºÏµ¿ÃøÀ¸·Î 8m, ³²µ¿ÃøÀ¸·Î 4m ³»¿ÜÀÇ Æ÷Àåµµ·Î¿¡ Á¢ÇÔ.
8)ÅäÁöÀÌ¿ë°èȹ ¹× Á¦ÇÑ»óÅÂ
°èȹ°ü¸®Áö¿ª, ¼ºÀå°ü¸®¸®°èȹ±¸¿ª, ¼Ò·Î1·ù(Á¢ÇÕ), °¡Ãà»çÀ°Á¦Çѱ¸¿ª, °¡Ãà»çÀ°Á¦Çѱ¸¿ª, °ú¹Ð¾ïÁ¦±Ç¿ªÀÓ.
9)°øºÎ¿ÍÀÇ Â÷ÀÌ
-.
10)±âŸÂü°í»çÇ×(ÀÓ´ë°ü·Ê ¹× ±âŸ)
ÀÓ´ë°ü°è µîÀº ¹Ì»óÀÓ.
Âü°í
»çÇ×
1.º¹Ãþ±¸Á¶ÀÇ ´Ù¶ô ÀÖÀ½. 2.ÁÖÅõµ½Ãº¸Áõ°ø»ç·ÎºÎÅÍ 2025.8.1.ÀÚ¿¡ ¡®ÀÓÂ÷º¸Áõ±Ý¿¡ ´ëÇÏ¿© ¿ì¼±º¯Á¦±Ç¸¸ ÁÖÀåÇÏ°í ´ëÇ×·ÂÀº Æ÷±âÇϸç, Àü¾×À» º¯Á¦¹ÞÁö ¸øÇÏ´õ¶óµµ ÀÓÂ÷±Çµî±â¸¦ ¸»¼ÒÇϴ°Ϳ¡ µ¿ÀÇÇÑ´Ù.¡¯´Â ³»¿ëÀÇ È®¾à¼­°¡ Á¦ÃâµÊ
1. º»°ÇÀº ö±ÙÄÜÅ©¸®Æ®±¸Á¶ Æò

°ÇÃ๰ÇöȲ

¼ÒÀçÁö °æ±âµµ °í¾ç½Ã Àϻ굿±¸ ¹®ºÀµ¿ 58-27¹øÁö
´ëÁö¸éÀû   ¿¬¸éÀû 518.36§³
(157.08Æò)
°ÇÃà¸éÀû 207§³
(62.73Æò)
¿ëÀû·ü»êÁ¤
¿¬¸éÀû
518.36§³
(157.08Æò)
°ÇÆóÀ²   ¿ëÀû·ü  
Áö»óÃþ¼ö 4Ãþ ÁöÇÏÃþ¼ö  
ÁÖ¿ëµµ °øµ¿ÁÖÅà ±¸Á¶ ö±ÙÄÜÅ©¸®Æ®±¸Á¶
Âø°øÀÏÀÚ 2016.11.14 »ç¿ë½ÂÀÎÀÏÀÚ 2017.12.22
°ÇÃ๰Ãþº°ÇöȲ [º¸±â]


µî±âºÎµîº» ¿ä¾à(°Ç¹°)

  Á¢¼öÀÏÀÚ µî±â¸ñÀû/±Ç¸®ÀÚ ±Ç¸®±Ý¾× ±âÁØ
1 2021³â2¿ù23ÀÏ
¼ÒÀ¯±Ç
±èOO
¼Ò¸ê
2 2023³â8¿ù4ÀÏ
°¡¾Ð·ù
±èOO
36,000,000 ¼Ò¸ê±âÁØ
3 2024³â4¿ù8ÀÏ
ÀÓÂ÷±Ç¼³Á¤
Á¶OO
200,000,000 ¼Ò¸ê
4 2024³â5¿ù3ÀÏ
¾Ð·ù
°íOO
¼Ò¸ê
5 2025³â4¿ù10ÀÏ
°­Á¦°æ¸Å
ÁÖOOOO
¼Ò¸ê

ÀÓÂ÷ÀÎÇöȲ (¹è´ç¿ä±¸Á¾±âÀÏ: 2025-07-07)

ÀÓÂ÷ÀÎ ¿ëµµ/Á¡À¯ º¸Áõ±Ý/¿ù¼¼ ´ëÇ×·Â
ÀüÀÔÀÏ/È®Á¤ÀÏ ¹è´ç¿ä±¸ ºñ°í
Á¶OO ÀüºÎ 200,000,000
O
2022.3.31.
2022.2.17.
ºñ°í
(¸Å°¢¹°°Ç
¸í¼¼¼­)
Á¶Áؼö:ÁÖÅõµ½Ãº¸Áõ°ø»ç´Â ÀÓÂ÷º¸Áõ±Ý Àü¾×¿¡ ´ëÇÏ¿© ÀÓÂ÷±ÇÀÚ Á¶ÁؼöÀÇ ±Ç¸®¸¦ ½Â°èÇÑ °æ¸Å½Åûä±ÇÀÚÀÓ.

¿©ÀÇÁÖ°æ¸Å Á¶¾ð ÇÑ ¸¶µð

¼±¼øÀ§ ÀÓÂ÷±Çµî±â°¡ µÇ¾î ÀÖ½À´Ï´Ù
´ëÇ×·ÂÀÌ ÀÖ´Â ¼±¼øÀ§ ÀÓÂ÷±Çµî±â ±Ç¸®ÀÚ°¡ ¹è´çÀ» Àü¾× ¹ÞÁö ¸øÇÒ °æ¿ì ³«ÂûÀÚ°¡ ÀÜ¿© º¸Áõ±ÝÀ» ÀμöÇØ¾ßÇÏ´Â °æ¿ìµµ ÀÖ½À´Ï´Ù.

ÁÖÀÇ»çÇ× (ÃÖ¼±¼øÀ§ ¼³Á¤ÀÏ: 2023.8.4.°¡¾Ð·ù ¼³Á¤)

¸Å°¢À¸·Î ¼Ò¸êµÇÁö ¾Ê´Â µî±âºÎ±Ç¸®:
¸Å°¢À¸·Î ¼³Á¤µÈ °ÍÀ¸·Î º¸´Â Áö»ó±Ç:
1.º¹Ãþ±¸Á¶ÀÇ ´Ù¶ô ÀÖÀ½. 2.ÁÖÅõµ½Ãº¸Áõ°ø»ç·ÎºÎÅÍ 2025.8.1.ÀÚ¿¡ ¡®ÀÓÂ÷º¸Áõ±Ý¿¡ ´ëÇÏ¿© ¿ì¼±º¯Á¦±Ç¸¸ ÁÖÀåÇÏ°í ´ëÇ×·ÂÀº Æ÷±âÇϸç, Àü¾×À» º¯Á¦¹ÞÁö ¸ø ÇÏ´õ¶óµµ ÀÓÂ÷±Çµî±â¸¦ ¸»¼ÒÇϴ°Ϳ¡ µ¿ÀÇÇÑ´Ù.¡¯´Â ³»¿ëÀÇ È®¾à¼­°¡ Á¦ÃâµÊ
¡Ø¹Ì³³°ü¸®ºñ(°ø¿ë) Àμö¿©ºÎ¸¦ ÀÔÂû Àü¿¡ È®ÀÎÇϽñ⠹ٶø´Ï´Ù

 

Áö¿ªºÐ¼®

ÁöÇÏö¸í Á÷¼±°Å¸®

Çб³¸í ÀüÈ­¹øÈ£ ÁÖ¼Ò Á÷¼±°Å¸®

¹ý¿ø

ÀÇÁ¤ºÎÁö¹æ¹ý¿ø °í¾çÁö¿ø (104-13)°æ±âµµ °í¾ç½Ã Àϻ굿±¸ Àå¹é·Î 209
´ëÇ¥ : 031)920-6114, ¾ß°£ : 031)920-6550, ÆÑ½º : 031)920-6119
°üÇÒÁö¿ª : °í¾ç½Ã, ÆÄÁÖ½Ã

µî±â¼Ò ÀÇÁ¤ºÎÁö¹æ¹ý¿ø °í¾çÁö¿ø °í¾çµî±â¼Ò (´ëÇ¥:1544-0773, ÆÑ½º:(031)920-5959, °æ±âµµ °í¾ç½Ã Àϻ굿±¸ Áß¾Ó·Î1275¹ø±æ 38-30 (ÀåÇ×µ¿ 773))
¼¼¹«¼­ °í¾ç¼¼¹«¼­ (´ëÇ¥:031-900-92, ÆÑ½º:031-907-9177, °æ±âµµ °í¾ç½Ã Àϻ굿±¸ Áß¾Ó·Î1275¹ø±æ 14-43 (ÀåÇ×µ¿) )

Àαٳ«ÂûÅë°è

±â°£ ¸Å°¢°Ç¼ö Æò±Õ°¨Á¤°¡
Æò±Õ¸Å°¢°¡
¸Å°¢°¡À²
Æò±ÕÀ¯Âû¼ö


º» °æ¸ÅÁ¤º¸´Â ¹ý¿øÀÚ·á¿Í ÀÏÄ¡Çϵµ·Ï ÇÏ¿´À¸³ª ±Ç¸®»çÇ׺¯µ¿, ÀÔ·ÂÂø¿À µîÀÇ ¿øÀÎÀ¸·Î »ç½Ç°ú ´Ù¸¦ ¼ö ÀÖ½À´Ï´Ù. ÀÌ¿ë¾à°ü¿¡ ÀǰЏéÃ¥Á¶°ÇÀ¸·Î Á¦°øµÊÀ» ¾Ë¸®¸ç, °æ¸ÅÀÔÂû½Ã ¹Ýµå½Ã °ü·Ã °øºÎ¸¦ ÀçÈ®ÀÎÇϽñ⠹ٶø´Ï´Ù. º¸´Ù Æí¸®ÇÑ °æ¸ÅÁ¤º¸ Á¦°øÀ» À§ÇØ Áö¼ÓÀûÀ¸·Î °³¼±ÇϰڽÀ´Ï´Ù. ÀÌ¿ëÇØ Áּż­ °¨»çÇÕ´Ï´Ù.