·Î±×ÀÎ
1204
¾ÆÆÄÆ®
´ëÀüÁö¹æ¹ý¿ø õ¾ÈÁö¿ø
 °¨Á¤°¡298,000,000 ¿ø
 ÃÖÀú°¡(70%) 208,600,000 ¿ø
 º¸Áõ±Ý(10%) 20,860,000 ¿ø
 Ã»±¸¾×165,911,500 ¿ø
ÃæÃ»³²µµ ¾Æ»ê½Ã ¸ðÁ¾µ¿ 632 ¸ðÁ¾2Â÷ÇѼºÇÊÇϿ콺 203µ¿ 10Ãþ1004È£
»ç°Ç¹øÈ£ 2025Ÿ°æ530
°æ¸ÅÁ¾·ùºÎµ¿»ê°­Á¦°æ¸Å
¸Å°¢´ë»óÅäÁö ¹× °Ç¹°Àϰý ¸Å°¢
¸Å°¢±âÀÏ    2026.03.16(¿ù) 10:00 ÀÔÂû 14ÀÏÀü    
ÅäÁö¸éÀû51.34§³(15.53 Æò)
°Ç¹°¸éÀû84.91§³(25.69 Æò)
乫/¼ÒÀ¯ÀÚÁ¶OO / Á¶OO
ä±ÇÀÚÀ¯OO
ÆäÀ̽ººÏ Æ®À§ÅÍ ±¸±Û+
īī¿À½ºÅ丮
īī¿ÀÅå sms¹®ÀÚº¸³»±â
 

±âÀϳ»¿ª

°æ°ú ³¯Â¥ Àú°¨ ÃÖÀú°¡ °á°ú
Á¢¼öÀÏ 2025-05-28 °æ¸ÅÁ¢¼ö
~1ÀÏ 
2025-05-29 °æ¸Å°³½Ã°áÁ¤
~97ÀÏ 
2025-09-02 ¹è´ç¿ä±¸Á¾±âÀÏ
~250ÀÏ 
2026-02-02 100%
298,000,000
À¯Âû
~292ÀÏ 
2026-03-16 70%
208,600,000
ÁøÇà
¹°°Ç¸í¼¼¼­ ÇöȲÁ¶»ç¼­ ¹®°ÇÁ¢¼ö ¼Û´Þ³»¿ª

°¨Á¤Æò°¡ÇöȲ

¸ñ·Ï ÁÖ¼Ò ±¸Á¶/¿ëµµ/´ëÁö±Ç ¸éÀû ºñ°í
´ëÁö±Ç
¸ðÁ¾µ¿ 632 18825.9ºÐÀÇ 51.3449 51.3449 §³
(15.53Æò)
°Ç¹°
¸ðÁ¾µ¿ 632 203µ¿ 10Ãþ1004È£ ö±ÙÄÜÅ©¸®Æ®±¸Á¶ 84.9119 §³
(25.69Æò)
1) À§Ä¡/µµ½ÃÁö¿ª/Á¦2Á¾ÀϹÝÁÖ°ÅÁö¿ª/Áö±¸´ÜÀ§°èȹ±¸¿ª/Â÷·®ÃâÀÔ °¡´É/¹ö½ºÁ¤·ùÀå/ö±ÙÄÜÅ©¸®Æ®±¸Á¶ ´õº¸±â
°¨Á¤Æò°¡ ¿äÇ×Ç¥
1)À§Ä¡ ¹× ÁÖÀ§È¯°æ
º»°ÇÀº ÃæÃ»³²µµ ¾Æ»ê½Ã ¸ðÁ¤µ¿ ¼ÒÀç ""µ¿½ÅÃʵîÇб³"" ºÏµ¿Ãø Àαٿ¡ À§Ä¡ÇÏ´Â
""¸ðÁ¾2Â÷ÇѼºÇÊÇϿ콺"" Á¦203 Á¦10Ãþ Á¦1004È£·Î¼­, ÁÖÀ§´Â ¾ÆÆÄÆ®´ÜÁö, ±Ù¸°»ýȰ½Ã¼³,
´Ù¼¼´ëÁÖÅà ¹× °í¼Ó,½Ã¿Ü¹ö½ºÅ͹̳ΠµîÀÌ ¼ÒÀçÇÏ´Â Áö¿ªÀÓ.

2)±³Åë»óȲ
º»°Ç±îÁö Â÷·®ÃâÀÔ °¡´ÉÇϰí, Àαٿ¡ °í¼Ó,½Ã¿Ü¹ö½ºÅ͹̳Π¹× ¹ö½ºÁ¤·ùÀåÀÌ ¼ÒÀçÇÏ´Â µî
Á¦¹Ý ±³Åë»óȲÀº º¸ÅëÀÓ.
3)°Ç¹°ÀÇ ±¸Á¶
ö±ÙÄÜÅ©¸®Æ®±¸Á¶ ö±ÙÄÜÅ©¸®Æ®ÁöºØ 17Ãþ ³» Á¦10Ãþ Á¦1004È£·Î¼­,
(»ç¿ë½ÂÀÎÀÏ : 2010.04.29)
¿Üº® : ¸ôÅ»À§ ÆäÀÎÆ® ¹× ÀϺΠ¼®ÀçºÙÀÓ µî ¸¶°¨
³»º® : º®Áö ¹× ÀϺΠŸÀÏ µî ¸¶°¨
âȣ : ¼¦½Ãâȣ µî
4)ÀÌ¿ë»óÅÂ
¾ÆÆÄÆ®·Î ÀÌ¿ëÁßÀÓ.
5)¼³ºñ³»¿ª
À§»ý ¹× ±Þ¹è¼ö¼³ºñ, ³­¹æ¼³ºñ, ½Â°­±â¼³ºñ, ¼ÒÈ­Àü ¹× È­ÀçŽÁö¼³ºñ µî µÇ¾îÀÖÀ½.
6)ÅäÁöÀÇ Çü»ó ¹× ÀÌ¿ë»óÅÂ
ºÎÁ¤ÇüÀÇ ÅäÁö·Î¼­, ¾ÆÆÄÆ® ºÎÁö·Î ÀÌ¿ëÁßÀÓ.
7)ÀÎÁ¢ µµ·Î»óŵî
º»°Ç ´ÜÁö µ¿Ãø ¿Õº¹4Â÷¼± Æ÷Àåµµ·Î¸¦ ÅëÇÏ¿© ÁøÃâÀÔ °¡´ÉÇÔ.
8)ÅäÁöÀÌ¿ë°èȹ ¹× Á¦ÇÑ»óÅÂ
µµ½ÃÁö¿ª , Á¦2Á¾ÀϹÝÁÖ°ÅÁö¿ª(2016-11-09) , Áö±¸´ÜÀ§°èȹ±¸¿ª(¾Æ»ê¸ðÁ¾ÇѼº2Â÷¾ÆÆÄÆ®) ,
Áß·Î2·ù(Æø 15m~20m)(Áß·Î2-22)(Á¢ÇÕ)
°¡Ãà»çÀ°Á¦Çѱ¸¿ª(2021-07-22)(ÀüºÎÁ¦Çѱ¸¿ª)<°¡ÃàºÐ´¢ÀÇ °ü¸® ¹× À̿뿡 °üÇÑ ¹ý·ü>
9)°øºÎ¿ÍÀÇ Â÷ÀÌ
¾ø À½.
10)±âŸÂü°í»çÇ×(ÀÓ´ë°ü·Ê ¹× ±âŸ)
¹Ì»óÀÓ.

°ÇÃ๰ÇöȲ

¼ÒÀçÁö ÃæÃ»³²µµ ¾Æ»ê½Ã ¸ðÁ¾µ¿ 632¹øÁö
´ëÁö¸éÀû   ¿¬¸éÀû 24.24§³
(7.35Æò)
°ÇÃà¸éÀû 30.33§³
(9.19Æò)
¿ëÀû·ü»êÁ¤
¿¬¸éÀû
24.24§³
(7.35Æò)
°ÇÆóÀ²   ¿ëÀû·ü  
Áö»óÃþ¼ö 1Ãþ ÁöÇÏÃþ¼ö  
ÁÖ¿ëµµ °øµ¿ÁÖÅà ±¸Á¶ ö±ÙÄÜÅ©¸®Æ®±¸Á¶
Âø°øÀÏÀÚ 2007.10.23 »ç¿ë½ÂÀÎÀÏÀÚ 2010.04.29
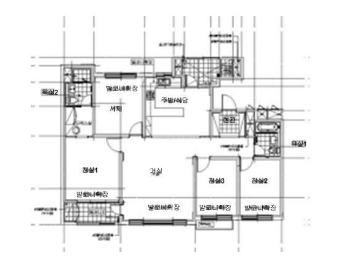
°ÇÃ๰Ãþº°ÇöȲ [º¸±â]


µî±âºÎµîº» ¿ä¾à(°Ç¹°)

  Á¢¼öÀÏÀÚ µî±â¸ñÀû/±Ç¸®ÀÚ ±Ç¸®±Ý¾× ±âÁØ
1 2014³â5¿ù30ÀÏ
¼ÒÀ¯±Ç
Á¶OO
¼Ò¸ê
2 2014³â5¿ù30ÀÏ
±ÙÀú´ç±Ç
ȕOOOO
180,000,000 ¼Ò¸ê±âÁØ
3 2015³â10¿ù20ÀÏ
±ÙÀú´ç±Ç
ȕOOOO
28,800,000 ¼Ò¸ê
4 2023³â6¿ù13ÀÏ
°¡¾Ð·ù
À¯OO
150,000,000 ¼Ò¸ê
5 2025³â5¿ù12ÀÏ
¾Ð·ù
±¹OOOO
¼Ò¸ê
6 2025³â5¿ù29ÀÏ
°­Á¦°æ¸Å
À¯OO
¼Ò¸ê
7 2025³â11¿ù19ÀÏ
°¡¾Ð·ù
ÃæOOOO
48,558,000 ¼Ò¸ê

ÀÓÂ÷ÀÎÇöȲ (¹è´ç¿ä±¸Á¾±âÀÏ: 2025-09-02)


Á¶»çµÈ ÀÓÂ÷³»¿ªÀÌ ¾ø½À´Ï´Ù


¿©ÀÇÁÖ°æ¸Å Á¶¾ð ÇÑ ¸¶µð


ÁÖÀÇ»çÇ× (ÃÖ¼±¼øÀ§ ¼³Á¤ÀÏ: )

¸Å°¢À¸·Î ¼Ò¸êµÇÁö ¾Ê´Â µî±âºÎ±Ç¸®: ÇØ´ç»çÇ×¾øÀ½
¸Å°¢À¸·Î ¼³Á¤µÈ °ÍÀ¸·Î º¸´Â Áö»ó±Ç: ÇØ´ç»çÇ×¾øÀ½
¡Ø¹Ì³³°ü¸®ºñ(°ø¿ë) Àμö¿©ºÎ¸¦ ÀÔÂû Àü¿¡ È®ÀÎÇϽñ⠹ٶø´Ï´Ù

 

Áö¿ªºÐ¼®

ÁöÇÏö¸í Á÷¼±°Å¸®

Çб³¸í ÀüÈ­¹øÈ£ ÁÖ¼Ò Á÷¼±°Å¸®

¹ý¿ø

´ëÀüÁö¹æ¹ý¿ø Ãµ¾ÈÁö¿ø (311-98)ÃæÃ»³²µµ õ¾È½Ã µ¿³²±¸ û¼ö14·Î 77 (û´çµ¿ 476)
´ëÇ¥ : 041)620-3000, ¹Î¿ø : 041)620-3058
°üÇÒÁö¿ª : õ¾È½Ã, ¾Æ»ê½Ã

µî±â¼Ò ´ëÀüÁö¹æ¹ý¿ø Ãµ¾ÈÁö¿ø ¾Æ»êµî±â¼Ò (´ëÇ¥:1544-0773, ÆÑ½º:(041)546-2695, Ãæ³² ¾Æ»ê½Ã ¿ëÈ­·Î76¹ø±æ 7 (¿ëÈ­µ¿ 970))
¼¼¹«¼­ ¾Æ»ê¼¼¹«¼­ (´ëÇ¥:041-536-72, ÆÑ½º:041-533-1351, ÃæÃ»³²µµ ¾Æ»ê½Ã ¹è¹æÀ¾ ¹è¹æ·Î 57-29(°ø¼ö¸® 280-5))

Àαٳ«ÂûÅë°è

±â°£ ¸Å°¢°Ç¼ö Æò±Õ°¨Á¤°¡
Æò±Õ¸Å°¢°¡
¸Å°¢°¡À²
Æò±ÕÀ¯Âû¼ö


º» °æ¸ÅÁ¤º¸´Â ¹ý¿øÀÚ·á¿Í ÀÏÄ¡Çϵµ·Ï ÇÏ¿´À¸³ª ±Ç¸®»çÇ׺¯µ¿, ÀÔ·ÂÂø¿À µîÀÇ ¿øÀÎÀ¸·Î »ç½Ç°ú ´Ù¸¦ ¼ö ÀÖ½À´Ï´Ù. ÀÌ¿ë¾à°ü¿¡ ÀǰЏéÃ¥Á¶°ÇÀ¸·Î Á¦°øµÊÀ» ¾Ë¸®¸ç, °æ¸ÅÀÔÂû½Ã ¹Ýµå½Ã °ü·Ã °øºÎ¸¦ ÀçÈ®ÀÎÇϽñ⠹ٶø´Ï´Ù. º¸´Ù Æí¸®ÇÑ °æ¸ÅÁ¤º¸ Á¦°øÀ» À§ÇØ Áö¼ÓÀûÀ¸·Î °³¼±ÇϰڽÀ´Ï´Ù. ÀÌ¿ëÇØ Áּż­ °¨»çÇÕ´Ï´Ù.