·Î±×ÀÎ
1268
´Ù¼¼´ë(ºô¶ó)
¼­¿ïµ¿ºÎÁö¹æ¹ý¿ø
 °¨Á¤°¡179,000,000 ¿ø
 ÃÖÀú°¡(64%) 114,560,000 ¿ø
 º¸Áõ±Ý(10%) 11,456,000 ¿ø
 Ã»±¸¾×195,724,413 ¿ø
¼­¿ïƯº°½Ã °­µ¿±¸ õȣµ¿ 169-9 ´Ù¼ºÀÌÁîºô 9Ãþ901È£
»ç°Ç¹øÈ£ 2025Ÿ°æ51323
°æ¸ÅÁ¾·ùºÎµ¿»ê°­Á¦°æ¸Å
¸Å°¢´ë»óÅäÁö ¹× °Ç¹°Àϰý ¸Å°¢
¸Å°¢±âÀÏ    2026.04.27(¿ù) 10:00 ÀÔÂû 22ÀÏÀü    
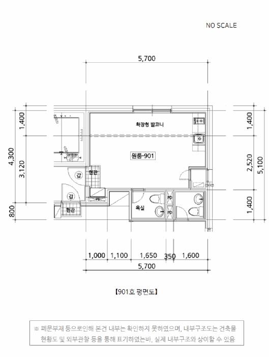
ÅäÁö¸éÀû5.60§³(1.69 Æò)
°Ç¹°¸éÀû17.02§³(5.15 Æò)
乫/¼ÒÀ¯ÀÚÃÖOO / ÃÖOO
ä±ÇÀÚÁÖOOOOOOO
ÆäÀ̽ººÏ Æ®À§ÅÍ ±¸±Û+
īī¿À½ºÅ丮
īī¿ÀÅå sms¹®ÀÚº¸³»±â
 

±âÀϳ»¿ª

°æ°ú ³¯Â¥ Àú°¨ ÃÖÀú°¡ °á°ú
Á¢¼öÀÏ 2025-04-15 °æ¸ÅÁ¢¼ö
~3ÀÏ 
2025-04-18 °æ¸Å°³½Ã°áÁ¤
~83ÀÏ 
2025-07-07 ¹è´ç¿ä±¸Á¾±âÀÏ
~293ÀÏ 
2026-02-02 100%
179,000,000
À¯Âû
~342ÀÏ 
2026-03-23 80%
143,200,000
À¯Âû
~377ÀÏ 
2026-04-27 64%
114,560,000
ÁøÇà
¹°°Ç¸í¼¼¼­ ÇöȲÁ¶»ç¼­ ¹®°ÇÁ¢¼ö ¼Û´Þ³»¿ª

°¨Á¤Æò°¡ÇöȲ

¸ñ·Ï ÁÖ¼Ò ±¸Á¶/¿ëµµ/´ëÁö±Ç ¸éÀû ºñ°í
´ëÁö±Ç
õȣµ¿ 169-9 267ºÐÀÇ 5.599 5.599 §³
(1.69Æò)
°Ç¹°
õȣµ¿ 169-9 9Ãþ901È£ ö±ÙÄÜÅ©¸®Æ®±¸Á¶ 17.02 §³
(5.15Æò)
1) À§Ä¡/µµ½ÃÁö¿ª/ÁØÁÖ°ÅÁö¿ª/Áö±¸´ÜÀ§°èȹ±¸¿ª/¹ö½ºÁ¤·ùÀå/ÁöÇÏö/ö±ÙÄÜÅ©¸®Æ®±¸Á¶/Æò½º¶óºêÁöºØ ´õº¸±â
°¨Á¤Æò°¡ ¿äÇ×Ç¥
1)À§Ä¡ ¹× ÁÖÀ§È¯°æ
º»°ÇÀº ¼­¿ïƯº°½Ã °­µ¿±¸ õȣµ¿ ¼ÒÀç ""°­µ¿¿ª"" ºÏÃø Àαٿ¡ À§Ä¡ÇÏ´Â ºÎµ¿»êÀ¸·Î¼­, º»°Ç ÁÖÀ§´Â ¿ÀÇǽºÅÚ, ´Üµ¶¡¤´Ù¼¼´ëÁÖÅÃ, ³ë¼± »ó°¡ µîÀÌ È¥ÀçÇÏ´Â Áö¿ªÀ¸·Î, Á¦¹Ý ÁÖÀ§È¯°æÀº º¸Åë ¼öÁØÀÓ
2)±³Åë»óȲ
º»°Ç±îÁö Á¦¹Ý Â÷·®ÀÇ ÃâÀÔÀÌ °¡´ÉÇϸç, Àαٿ¡ ¹ö½ºÁ¤·ùÀå ¹× ÁöÇÏö¿ªÀÌ ¼ÒÀçÇÏ´Â µî Á¦¹Ý ±³Åë¿©°ÇÀº ¾çÈ£ÇÑ ¼öÁØÀÓ
3)°Ç¹°ÀÇ ±¸Á¶
2016. 9. 1. »ç¿ë½ÂÀÎµÈ Ã¶±ÙÄÜÅ©¸®Æ®±¸Á¶ Æò½º¶óºêÁöºØ 10Ãþ °Ç¹° ³» Á¦9Ãþ Á¦901È£·Î¼­,
- ¿Üº®: ¼®ÀçºÙÀÓ ¸¶°¨ µî
- âȣ: PVC âȣ µîÀÓ
4)ÀÌ¿ë»óÅÂ
µµ½ÃÇü»ýȰÁÖÅÃÀ¸·Î ÀÌ¿ë ÁßÀÓ
5)¼³ºñ³»¿ª
±Þ¹è¼ö ¹× À§»ý¼³ºñ, ³­¹æ¼³ºñ, Àü±â¼³ºñ, ½Â°­±â¼³ºñ, ±â°è½ÄÁÖÂ÷¼³ºñ µîÀÌ ±¸ºñµÇ¾î ÀÖÀ½
6)ÅäÁöÀÇ Çü»ó ¹× ÀÌ¿ë»óÅÂ
2ÇÊÁö ÀÏ´ÜÀÇ ¼¼ÀåÇü ÅäÁö·Î¼­, ÇöÀç ÁÖ°Å¿ë °ÇºÎÁö·Î ÀÌ¿ë ÁßÀÓ

7)ÀÎÁ¢ µµ·Î»óŵî
º»°Ç ºÏÃøÀ¸·Î ³ëÆø ¾à 7m ³»¿ÜÀÇ Æ÷Àåµµ·Î µî°ú Á¢Çϰí ÀÖÀ½
8)ÅäÁöÀÌ¿ë°èȹ ¹× Á¦ÇÑ»óÅÂ
±âÈ£(1,2) ÅäÁö °øÈ÷ µµ½ÃÁö¿ª, ÁØÁÖ°ÅÁö¿ª(2004-11-05), Áö±¸´ÜÀ§°èȹ±¸¿ª(õȣÁö±¸), °¡Ãà»çÀ°Á¦Çѱ¸¿ª(2014-06-25)<°¡ÃàºÐ´¢ÀÇ °ü¸® ¹× À̿뿡 °üÇÑ ¹ý·ü>, »ó´ëº¸È£±¸¿ª<±³À°È¯°æ º¸È£¿¡ °üÇÑ ¹ý·ü>, ´ë°ø¹æ¾îÇùÁ¶±¸¿ª(À§Å¹°íµµ:ÇØ¹ß163m(Áö¹Ý+°ÇÃà+¿Áž µî))<±º»ç±âÁö ¹× ±º»ç½Ã¼³ º¸È£¹ý>, ºñÇà¾ÈÀüÁ¦3±¸¿ª(Àü¼ú)<±º»ç±âÁö ¹× ±º»ç½Ã¼³ º¸È£¹ý>, °ú¹Ð¾ïÁ¦±Ç¿ª<¼öµµ±ÇÁ¤ºñ°èȹ¹ý>, °øÀå¼³¸³½ÂÀÎÁö¿ª(2016-11-28)(2È£)<¼öµµ¹ý>ÀÓ
9)°øºÎ¿ÍÀÇ Â÷ÀÌ
ÇØ´ç»çÇ× ¾øÀ½
10)±âŸÂü°í»çÇ×(ÀÓ´ë°ü·Ê ¹× ±âŸ)
ÀÓ´ë°ü°è´Â ¹Ì»óÀÓ

°ÇÃ๰ÇöȲ

¼ÒÀçÁö ¼­¿ïƯº°½Ã °­µ¿±¸ õȣµ¿ 169-9¹øÁö
´ëÁö¸éÀû 263.3§³
(79.79Æò)
¿¬¸éÀû 1170.91§³
(354.82Æò)
°ÇÃà¸éÀû 152.66§³
(46.26Æò)
¿ëÀû·ü»êÁ¤
¿¬¸éÀû
1053.16§³
(319.14Æò)
°ÇÆóÀ² 57.98% ¿ëÀû·ü 399.98%
Áö»óÃþ¼ö 10Ãþ ÁöÇÏÃþ¼ö 1Ãþ
ÁÖ¿ëµµ ¾÷¹«½Ã¼³ ±¸Á¶ ö±ÙÄÜÅ©¸®Æ®±¸Á¶
Âø°øÀÏÀÚ 2015.06.23 »ç¿ë½ÂÀÎÀÏÀÚ 2016.09.01
°ÇÃ๰Ãþº°ÇöȲ [º¸±â]


±¹ÅäºÎ½Ç°Å·¡°¡ ¼­¿ïƯº°½Ã °­µ¿±¸ õȣµ¿

¡Ü ¸Å¸Å

¸éÀû(§³), ±Ý¾×(¸¸¿ø)

¡Ü Àü¼¼

¸éÀû(§³), ±Ý¾×(¸¸¿ø)

°è¾àÀϰǹ°¸íĪÃþ¿¬¸éÀûº¸Áõ±Ý¿ù¼¼°ÇÃà
26.03.31´ëÁ¤Æç¸®½º433.178,000572013
26.03.30´ë¼ººô¶ó354.822,00001992
26.03.30291¿¡ºñ´º227.8620,500102017
26.03.30¾ÆÆ®ÆÓ¸®½º237.2829,60062020
26.03.30ºäŬ·¡½ÄÇϿ콺420.8427,00002019
¢Ñ ´õº¸±â

µî±âºÎµîº» ¿ä¾à(°Ç¹°)

  Á¢¼öÀÏÀÚ µî±â¸ñÀû/±Ç¸®ÀÚ ±Ç¸®±Ý¾× ±âÁØ
1 2020³â11¿ù23ÀÏ
¼ÒÀ¯±Ç
ÃÖOO
¼Ò¸ê
2 2021³â8¿ù5ÀÏ
¾Ð·ù
±¹OOOO
¼Ò¸ê±âÁØ
3 2021³â9¿ù29ÀÏ
°¡¾Ð·ù
ÇÑOOOO
9,743,711 ¼Ò¸ê
4 2021³â11¿ù17ÀÏ
¾Ð·ù
¿µOOO
¼Ò¸ê
5 2022³â2¿ù15ÀÏ
¾Ð·ù
±¹OOOO
¼Ò¸ê
6 2022³â12¿ù15ÀÏ
¾Ð·ù
±¸OO
¼Ò¸ê
7 2022³â12¿ù16ÀÏ
ÀÓÂ÷±Ç¼³Á¤
ÇãOO
178,000,000 ¼Ò¸ê
8 2024³â5¿ù30ÀÏ
¾Ð·ù
°­OO
¼Ò¸ê
9 2025³â4¿ù18ÀÏ
°­Á¦°æ¸Å
ÁÖOOOO
¼Ò¸ê

ÀÓÂ÷ÀÎÇöȲ (¹è´ç¿ä±¸Á¾±âÀÏ: 2025-07-07)

ÀÓÂ÷ÀÎ ¿ëµµ/Á¡À¯ º¸Áõ±Ý/¿ù¼¼ ´ëÇ×·Â
ÀüÀÔÀÏ/È®Á¤ÀÏ ¹è´ç¿ä±¸ ºñ°í
ÁÖOOOOOOOOOOOO 901È£ 178,000,000
O
2020.11.09
2020.10.23
2025.4.16. 2020.11.06~2022.11.05
ÇãOO 901È£ 178,000,000
O
2020.11.09
2020.10.23
2020.11.06~
ºñ°í
(¸Å°¢¹°°Ç
¸í¼¼¼­)
ÁÖÅõµ½Ãº¸Áõ°ø»ç(ÇãÀ±Áö):°æ¸Å½Åûä±ÇÀڷμ­ ¹è´ç¿ä±¸ÀÏÀÚ´Â °æ¸Å½ÅûÀÏÀ̸ç, ÁÖÅÃÀÓÂ÷±ÇÀÚ ÇãÀ±ÁöÀÇ ½Â°èÀÎÀÓ ÇãÀ±Áö:ÁÖÅÃÀÓÂ÷±ÇÀڷμ­ ÀÓÂ÷±Çµî±âÀÏÀº 2022.12.16.ÀÓ

¿©ÀÇÁÖ°æ¸Å Á¶¾ð ÇÑ ¸¶µð

¼±¼øÀ§ ÀÓÂ÷±Çµî±â°¡ µÇ¾î ÀÖ½À´Ï´Ù
´ëÇ×·ÂÀÌ ÀÖ´Â ¼±¼øÀ§ ÀÓÂ÷±Çµî±â ±Ç¸®ÀÚ°¡ ¹è´çÀ» Àü¾× ¹ÞÁö ¸øÇÒ °æ¿ì ³«ÂûÀÚ°¡ ÀÜ¿© º¸Áõ±ÝÀ» ÀμöÇØ¾ßÇÏ´Â °æ¿ìµµ ÀÖ½À´Ï´Ù.

ÁÖÀÇ»çÇ× (ÃÖ¼±¼øÀ§ ¼³Á¤ÀÏ: 2021.08.05. ¾Ð·ù ¼³Á¤)

¸Å°¢À¸·Î ¼Ò¸êµÇÁö ¾Ê´Â µî±âºÎ±Ç¸®: 2022.12.16.Á¢¼ö Á¦162980È£·Î °æ·áµÈ À»±¸ 1¹ø ÁÖÅÃÀÓÂ÷±Çµî±â´Â ¹è´ç¿¡¼­ º¸Áõ±Ý Àü¾× ¹è´ç¹ÞÁö ¾ÊÀ¸¸é Àܾ×À» ¸Å¼öÀÎÀÌ ÀÎ ¼öÇÔ
¸Å°¢À¸·Î ¼³Á¤µÈ °ÍÀ¸·Î º¸´Â Áö»ó±Ç: ÇØ´ç»çÇ×¾øÀ½
¡Ø¹Ì³³°ü¸®ºñ(°ø¿ë) Àμö¿©ºÎ¸¦ ÀÔÂû Àü¿¡ È®ÀÎÇϽñ⠹ٶø´Ï´Ù

 

Áö¿ªºÐ¼®

ÁöÇÏö¸í Á÷¼±°Å¸®

Çб³¸í ÀüÈ­¹øÈ£ ÁÖ¼Ò Á÷¼±°Å¸®

¹ý¿ø

¼­¿ïµ¿ºÎÁö¹æ¹ý¿ø (058-56)¼­¿ïƯº°½Ã ¼ÛÆÄ±¸ ¹ý¿ø·Î 101 (¹®Á¤µ¿)
´ëÇ¥ : 02)2204-2114, ¾ß°£ : 02)2204-2701
°üÇÒÁö¿ª : ¼ºµ¿±¸, ±¤Áø±¸, °­µ¿±¸, ¼ÛÆÄ±¸

µî±â¼Ò ¼­¿ïµ¿ºÎÁö¹æ¹ý¿ø º»¿ø µî±â±¹ (´ëÇ¥:1544-0773, ÆÑ½º:(02)2204-2181, ¼­¿ïƯº°½Ã ¼ÛÆÄ±¸ ¹ý¿ø·Î 101 (¹®Á¤µ¿ 650))
¼¼¹«¼­ °­µ¿¼¼¹«¼­ (´ëÇ¥:02-2224-02, ÆÑ½º:02-489-3251, ¼­¿ïƯº°½Ã °­µ¿±¸ õȣ´ë·Î 1139 (±æµ¿))

Àαٳ«ÂûÅë°è

±â°£ ¸Å°¢°Ç¼ö Æò±Õ°¨Á¤°¡
Æò±Õ¸Å°¢°¡
¸Å°¢°¡À²
Æò±ÕÀ¯Âû¼ö


º» °æ¸ÅÁ¤º¸´Â ¹ý¿øÀÚ·á¿Í ÀÏÄ¡Çϵµ·Ï ÇÏ¿´À¸³ª ±Ç¸®»çÇ׺¯µ¿, ÀÔ·ÂÂø¿À µîÀÇ ¿øÀÎÀ¸·Î »ç½Ç°ú ´Ù¸¦ ¼ö ÀÖ½À´Ï´Ù. ÀÌ¿ë¾à°ü¿¡ ÀǰЏéÃ¥Á¶°ÇÀ¸·Î Á¦°øµÊÀ» ¾Ë¸®¸ç, °æ¸ÅÀÔÂû½Ã ¹Ýµå½Ã °ü·Ã °øºÎ¸¦ ÀçÈ®ÀÎÇϽñ⠹ٶø´Ï´Ù. º¸´Ù Æí¸®ÇÑ °æ¸ÅÁ¤º¸ Á¦°øÀ» À§ÇØ Áö¼ÓÀûÀ¸·Î °³¼±ÇϰڽÀ´Ï´Ù. ÀÌ¿ëÇØ Áּż­ °¨»çÇÕ´Ï´Ù.