·Î±×ÀÎ
13
¾ÆÆÄÆ®
¼ö¿øÁö¹æ¹ý¿ø
 °¨Á¤°¡463,000,000 ¿ø
 ÃÖÀú°¡(100%) 463,000,000 ¿ø
 º¸Áõ±Ý(10%) 46,300,000 ¿ø
 Ã»±¸¾×357,602,351 ¿ø
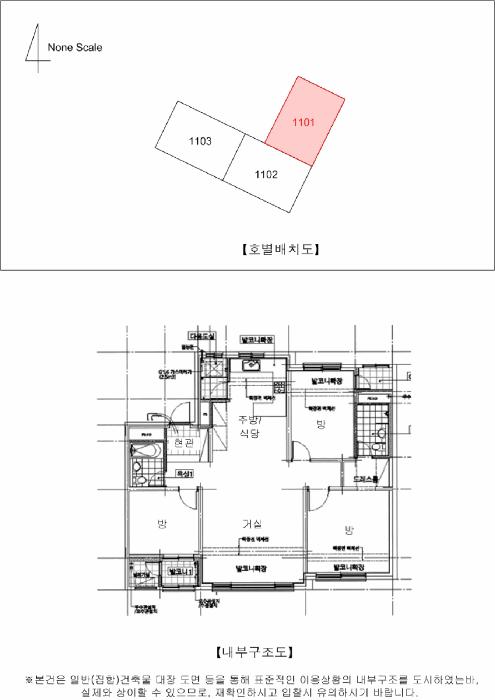
°æ±âµµ È­¼º½Ã ¹Ý¿ùµ¿ 959 ¹Ý¿ùÀÚÀÌ ´õ ÆÄÅ© 107µ¿ 11Ãþ1101È£
»ç°Ç¹øÈ£ 2025Ÿ°æ1064
°æ¸ÅÁ¾·ùºÎµ¿»êÀÓÀǰæ¸Å
¸Å°¢´ë»óÅäÁö ¹× °Ç¹°Àϰý ¸Å°¢
¸Å°¢±âÀÏ    2026.02.02(¿ù) 10:00 ÀÔÂû 13ÀÏÀü    
ÅäÁö¸éÀû56.75§³(17.17 Æò)
°Ç¹°¸éÀû84.91§³(25.68 Æò)
乫/¼ÒÀ¯ÀÚ±èOO / ±èOO
ä±ÇÀÚÁÖOOOOOOO
ÆäÀ̽ººÏ Æ®À§ÅÍ ±¸±Û+
īī¿À½ºÅ丮
īī¿ÀÅå sms¹®ÀÚº¸³»±â
 

±âÀϳ»¿ª

°æ°ú ³¯Â¥ Àú°¨ ÃÖÀú°¡ °á°ú
Á¢¼öÀÏ 2025-03-24 °æ¸ÅÁ¢¼ö
~1ÀÏ 
2025-03-25 °æ¸Å°³½Ã°áÁ¤
~73ÀÏ 
2025-06-05 ¹è´ç¿ä±¸Á¾±âÀÏ
~315ÀÏ 
2026-02-02 100%
463,000,000
ÁøÇà
¹°°Ç¸í¼¼¼­ ÇöȲÁ¶»ç¼­ ¹®°ÇÁ¢¼ö ¼Û´Þ³»¿ª

°¨Á¤Æò°¡ÇöȲ

¸ñ·Ï ÁÖ¼Ò ±¸Á¶/¿ëµµ/´ëÁö±Ç ¸éÀû ºñ°í
´ëÁö±Ç
¹Ý¿ùµ¿ 959 23683.6ºÐÀÇ 56.7502 56.7502 §³
(17.17Æò)
°Ç¹°
¹Ý¿ùµ¿ 959 107µ¿ 11Ãþ1101È£ ö±ÙÄÜÅ©¸®Æ®±¸Á¶ 84.9085 §³
(25.68Æò)
1) À§Ä¡/Á¦2Á¾ÀϹÝÁÖ°ÅÁö¿ª/Áö±¸´ÜÀ§°èȹ±¸¿ª/Â÷·®ÃâÀÔ °¡´É/³ë¼±¹ö½ºÁ¤·ùÀå/ÁöÇÏÁÖÂ÷Àå/ö±ÙÄÜÅ©¸®Æ®±¸Á¶ ´õº¸±â
°¨Á¤Æò°¡ ¿äÇ×Ç¥
1)À§Ä¡ ¹× ÁÖÀ§È¯°æ
º»°ÇÀº °æ±âµµ È­¼º½Ã ¹Ý¿ùµ¿ ¼ÒÀç ""±â»êÃʵîÇб³"" ºÏ¼­Ãø Àαٿ¡ À§Ä¡Çϰí, ÁÖÀ§´Â ¾ÆÆÄÆ®, ÁÖÅÃ, ±Ù¸°»ýȰ½Ã¼³, °øÀå ¹× Ã¢°í, Çб³, ³ó°æÁö µîÀÌ È¥ÀçÇÏ´Â Áö¿ªÀ¸·Î Á¦¹ÝÁÖÀ§È¯°æÀº º¸ÅëÀÓ.
2)±³Åë»óȲ
º»°Ç ´ÜÁö±îÁö Â÷·®ÃâÀÔ °¡´ÉÇϰí, Àαٿ¡ ³ë¼±¹ö½ºÁ¤·ùÀåÀÌ ¼ÒÀçÇÏ¿© ´ëÁß±³Åë¿©°ÇÀº º¸ÅëÀÓ.
3)°Ç¹°ÀÇ ±¸Á¶
(±âÈ£1)
ö±ÙÄÜÅ©¸®Æ®±¸Á¶ (ö±Ù)ÄÜÅ©¸®Æ®ÁöºØ 19Ãþ °Ç¹°³»¿¡ 11Ãþ 1101È£·Î¼­,

¿Üº®: ¸ôÅ»À§ ÆäÀÎÆ® ¸¶°¨, ÀϺΠ¼®ÀçºÙÀÓ ¸¶°¨ µîÀÓ.
âȣ: ¼¦½Ã âȣÀÓ.

(»ç¿ë½ÂÀÎÀÏÀÚ: 2016.4.29ÀÏÀÓ)
4)ÀÌ¿ë»óÅÂ
¾ÆÆÄÆ®·Î ÀÌ¿ëÁßÀÓ(ÈÄ÷ ³»ºÎ±¸Á¶µµ ÂüÁ¶)
5)¼³ºñ³»¿ª
±Þ¹è¼öÀ§»ý¼³ºñ, ³­¹æ¼³ºñ, ¼ÒÈ­Àü¼³ºñ, ½Â°­±â¼³ºñ,ÁöÇÏÁÖÂ÷Àå µîÀÌ µÇ¾î ÀÖÀ½.
6)ÅäÁöÀÇ Çü»ó ¹× ÀÌ¿ë»óÅÂ
ÀÎÁ¢ÇÊÁö´ëºñ ÆòźÇÑ ´ëü·Î »ç´Ù¸®Çü ÅäÁö·Î ¾ÆÆÄÆ®°ÇºÎÁö·Î ÀÌ¿ëÁßÀÓ.
7)ÀÎÁ¢ µµ·Î»óŵî
´ÜÁö³» µµ·Î °³¼³µÇ¾î ÀÖÀ¸¸ç, ¿Ü°û°øµµ¿Í ¿¬°áµÊ.
8)ÅäÁöÀÌ¿ë°èȹ ¹× Á¦ÇÑ»óÅÂ
Á¦2Á¾ÀϹÝÁÖ°ÅÁö¿ª, Áö±¸´ÜÀ§°èȹ±¸¿ª(2015-04-14)(¹Ý¿ù1Áö±¸), Áß·Î1·ù(Æø 20m~25m)(Á¢ÇÕ) °¡Ãà»çÀ°Á¦Çѱ¸¿ª(ÀüºÎÁ¦ÇÑ)<°¡ÃàºÐ´¢ÀÇ °ü¸® ¹× À̿뿡 °üÇÑ ¹ý·ü>, ºñÇà¾ÈÀüÁ¦6±¸¿ª(Àü¼ú)<±º»ç±âÁö ¹× ±º»ç½Ã¼³ º¸È£¹ý>, ¼ºÀå°ü¸®±Ç¿ª<¼öµµ±ÇÁ¤ºñ°èȹ¹ý>
9)°øºÎ¿ÍÀÇ Â÷ÀÌ
¾øÀ½
10)±âŸÂü°í»çÇ×(ÀÓ´ë°ü·Ê ¹× ±âŸ)
ÀÓ´ë°ü°è ¹Ì»óÀÓ.
Âü°í
»çÇ×

ÇØ´ç ºÎµ¿»êÀÇ ÇöȲÀº ¿Ü°ü»ó °øºÎÀÇ ³»¿ë°ú ÀÏÄ¡ÇÏ´Â °ÍÀ¸·Î º¸ÀÓ.

°ÇÃ๰ÇöȲ

¼ÒÀçÁö °æ±âµµ È­¼º½Ã ¹Ý¿ùµ¿ 959¹øÁö
´ëÁö¸éÀû   ¿¬¸éÀû 6135.5404§³
(1859.25Æò)
°ÇÃà¸éÀû 440.4605§³
(133.47Æò)
¿ëÀû·ü»êÁ¤
¿¬¸éÀû
6135.5404§³
(1859.25Æò)
°ÇÆóÀ²   ¿ëÀû·ü  
Áö»óÃþ¼ö 19Ãþ ÁöÇÏÃþ¼ö  
ÁÖ¿ëµµ °øµ¿ÁÖÅà ±¸Á¶ ö±ÙÄÜÅ©¸®Æ®±¸Á¶
Âø°øÀÏÀÚ 2014.06.20 »ç¿ë½ÂÀÎÀÏÀÚ 2016.04.29
°ÇÃ๰Ãþº°ÇöȲ [º¸±â]


µî±âºÎµîº» ¿ä¾à(°Ç¹°)

  Á¢¼öÀÏÀÚ µî±â¸ñÀû/±Ç¸®ÀÚ ±Ç¸®±Ý¾× ±âÁØ
1 2022³â1¿ù27ÀÏ
¼ÒÀ¯±Ç
±èOO
¼Ò¸ê
2 2022³â1¿ù27ÀÏ
±ÙÀú´ç±Ç
(OOOO
381,700,000 ¼Ò¸ê±âÁØ
3 2022³â6¿ù14ÀÏ
±ÙÀú´ç±Ç
¼ÒOOOO
144,000,000 ¼Ò¸ê
4 2024³â4¿ù12ÀÏ
¾Ð·ù
È­OO
¼Ò¸ê
5 2024³â9¿ù24ÀÏ
¾Ð·ù
±¹OOOO
¼Ò¸ê
6 2025³â3¿ù25ÀÏ
ÀÓÀǰæ¸Å
(OOOO
¼Ò¸ê

ÀÓÂ÷ÀÎÇöȲ (¹è´ç¿ä±¸Á¾±âÀÏ: 2025-06-05)



¸Å°¢±âÀÏ 7ÀÏÀü¿¡ ¸Å°¢¹°°Ç¸í¼¼¼­°¡ °ø°íµÇ¿À´Ï È®ÀÎÇϽñ⠹ٶø´Ï´Ù.

ÀÓÂ÷ÀÎ ¿ëµµ/Á¡À¯ º¸Áõ±Ý/¿ù¼¼ ´ëÇ×·Â
ÀüÀÔÀÏ/È®Á¤ÀÏ ¹è´ç¿ä±¸ ºñ°í
ÀÌOO 1101È£ÀüºÎ 52,500,000
[¿ù]1,000,000
X
2022.11.10.
2025.4.30.
2025.5.15. 2022.10.29.~2026.10.29.
ÀÌOO
X
2022.11.09
ºñ°í
(¸Å°¢¹°°Ç
¸í¼¼¼­)
ÀÌÁ¾¼±:ÀÓÂ÷ÀÎ À̼ÒÇöÀÇ ºÎ

¿©ÀÇÁÖ°æ¸Å Á¶¾ð ÇÑ ¸¶µð


ÁÖÀÇ»çÇ× (ÃÖ¼±¼øÀ§ ¼³Á¤ÀÏ: 2022.1.27.±ÙÀú´ç±Ç ¼³Á¤)

¸Å°¢À¸·Î ¼Ò¸êµÇÁö ¾Ê´Â µî±âºÎ±Ç¸®:
¸Å°¢À¸·Î ¼³Á¤µÈ °ÍÀ¸·Î º¸´Â Áö»ó±Ç:
¡Ø¹Ì³³°ü¸®ºñ(°ø¿ë) Àμö¿©ºÎ¸¦ ÀÔÂû Àü¿¡ È®ÀÎÇϽñ⠹ٶø´Ï´Ù

 

Áö¿ªºÐ¼®

ÁöÇÏö¸í Á÷¼±°Å¸®

Çб³¸í ÀüÈ­¹øÈ£ ÁÖ¼Ò Á÷¼±°Å¸®

¹ý¿ø

¼ö¿øÁö¹æ¹ý¿ø (165-12)°æ±âµµ ¼ö¿ø½Ã ¿µÅ뱸 ¹ýÁ¶·Î 105, Çϵ¿, ¼ö¿ø¹ý¿øÁ¾ÇÕû»ç
´ëÇ¥ : 031)210-1114, ¾ß°£ : 031)210-1111
°üÇÒÁö¿ª : ¼ö¿ø½Ã, ¿À»ê½Ã, È­¼º½Ã, ¿ëÀνÃ

µî±â¼Ò ¼ö¿øÁö¹æ¹ý¿ø º»¿ø È­¼ºµî±â¼Ò (´ëÇ¥:1544-0773, ÆÑ½º:(031)375-3964, °æ±âµµ ¿À»ê½Ã ¹ý¿ø·Î 65 (±Èµ¿ 662))
¼¼¹«¼­ µ¿¼ö¿ø¼¼¹«¼­ (´ëÇ¥:031-695-42, ÆÑ½º:031-273-2416, °æ±âµµ ¼ö¿ø½Ã ¿µÅ뱸 û¸í³²·Î 13 (¿µÅ뵿))

Àαٳ«ÂûÅë°è

±â°£ ¸Å°¢°Ç¼ö Æò±Õ°¨Á¤°¡
Æò±Õ¸Å°¢°¡
¸Å°¢°¡À²
Æò±ÕÀ¯Âû¼ö
3°³¿ù 50°Ç 507,340,000¿ø
454,756,311¿ø
89%
1ȸ
6°³¿ù 100°Ç 471,930,000¿ø
423,491,544¿ø
89%
1ȸ
12°³¿ù 230°Ç 465,052,174¿ø
419,362,162¿ø
89%
1ȸ


º» °æ¸ÅÁ¤º¸´Â ¹ý¿øÀÚ·á¿Í ÀÏÄ¡Çϵµ·Ï ÇÏ¿´À¸³ª ±Ç¸®»çÇ׺¯µ¿, ÀÔ·ÂÂø¿À µîÀÇ ¿øÀÎÀ¸·Î »ç½Ç°ú ´Ù¸¦ ¼ö ÀÖ½À´Ï´Ù. ÀÌ¿ë¾à°ü¿¡ ÀǰЏéÃ¥Á¶°ÇÀ¸·Î Á¦°øµÊÀ» ¾Ë¸®¸ç, °æ¸ÅÀÔÂû½Ã ¹Ýµå½Ã °ü·Ã °øºÎ¸¦ ÀçÈ®ÀÎÇϽñ⠹ٶø´Ï´Ù. º¸´Ù Æí¸®ÇÑ °æ¸ÅÁ¤º¸ Á¦°øÀ» À§ÇØ Áö¼ÓÀûÀ¸·Î °³¼±ÇϰڽÀ´Ï´Ù. ÀÌ¿ëÇØ Áּż­ °¨»çÇÕ´Ï´Ù.