·Î±×ÀÎ
1070
¿ÀÇǽºÅÚ
ÀÎõÁö¹æ¹ý¿ø
 °¨Á¤°¡65,000,000 ¿ø
 ÃÖÀú°¡(70%) 45,500,000 ¿ø
 º¸Áõ±Ý(10%) 4,550,000 ¿ø
 Ã»±¸¾×101,619,101 ¿ø
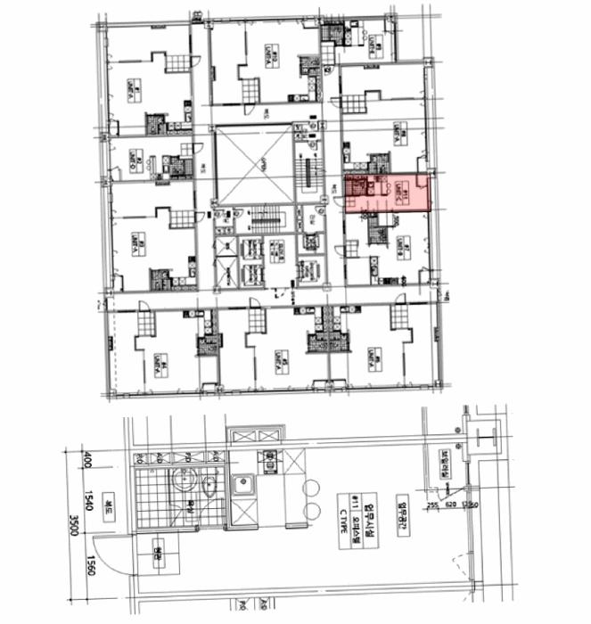
ÀÎõ±¤¿ª½Ã ³²µ¿±¸ °£¼®µ¿ 250-1 °£¼®¿ÀÇǾӿ¡ÀÌ 14Ãþ1411È£
»ç°Ç¹øÈ£ 2025Ÿ°æ507970
°æ¸ÅÁ¾·ùºÎµ¿»ê°­Á¦°æ¸Å
¸Å°¢´ë»óÅäÁö ¹× °Ç¹°Àϰý ¸Å°¢
¸Å°¢±âÀÏ    2026.03.12(¸ñ) 10:00 ÀÔÂû 15ÀÏÀü    
ÅäÁö¸éÀû4.10§³(1.24 Æò)
°Ç¹°¸éÀû27.07§³(8.19 Æò)
乫/¼ÒÀ¯ÀÚ¹ÎOO / ¹ÎOO
ä±ÇÀÚÁÖOOOOOOO
ÆäÀ̽ººÏ Æ®À§ÅÍ ±¸±Û+
īī¿À½ºÅ丮
īī¿ÀÅå sms¹®ÀÚº¸³»±â
 

±âÀϳ»¿ª

°æ°ú ³¯Â¥ Àú°¨ ÃÖÀú°¡ °á°ú
Á¢¼öÀÏ 2025-02-27 °æ¸ÅÁ¢¼ö
~5ÀÏ 
2025-03-04 °æ¸Å°³½Ã°áÁ¤
~88ÀÏ 
2025-05-26 ¹è´ç¿ä±¸Á¾±âÀÏ
~336ÀÏ 
2026-01-29 100%
65,000,000
À¯Âû
~378ÀÏ 
2026-03-12 70%
45,500,000
ÁøÇà
¹°°Ç¸í¼¼¼­ ÇöȲÁ¶»ç¼­ ¹®°ÇÁ¢¼ö ¼Û´Þ³»¿ª

°¨Á¤Æò°¡ÇöȲ

¸ñ·Ï ÁÖ¼Ò ±¸Á¶/¿ëµµ/´ëÁö±Ç ¸éÀû ºñ°í
´ëÁö±Ç
°£¼®µ¿ 250-1 1663.1ºÐÀÇ 4.1 4.1 §³
(1.24Æò)
°Ç¹°
°£¼®µ¿ 250-1 14Ãþ1411È£ ö°ñö±ÙÄÜÅ©¸®Æ®Á¶ 27.07 §³
(8.19Æò)
1) À§Ä¡/ÀϹݻó¾÷Áö¿ª/¹ö½ºÁ¤·ùÀå/ö°ñö±ÙÄÜÅ©¸®Æ®Á¶/Æò½º¶óºêÁöºØ ´õº¸±â
°¨Á¤Æò°¡ ¿äÇ×Ç¥
1)À§Ä¡ ¹× ÁÖÀ§È¯°æ
ÀÎõ±¤¿ª½Ã ³²µ¿±¸ °£¼®µ¿ ¼ÒÀç ""°£¼®¿À°Å¸®¿ª"" ³²¼­Ãø Àαٿ¡ À§Ä¡ÇÏ´Â ºÎµ¿»êÀ¸·Î¼­, ÁÖÀ§´Â ¾÷¹«½Ã¼³, ´Ù¼¼´ëÁÖÅÃ, ±Ù¸°»ýȰ½Ã¼³ µîÀÌ È¥ÀçÇÏ´Â Áö¿ªÀ¸·Î¼­ Àαٿ¡ »ýȰÆíÀͽü³, »ó¾÷¿ëºÎµ¿»ê ¹× °ø¿ø µîÀÌ ¼ÒÀçÇϸç Á¦¹Ý ÀÔÁö¿©°ÇÀº º¸ÅëÀÓ.
2)±³Åë»óȲ
º» °Ç±îÁö Â÷·®ÃâÀÔÀÌ °¡´ÉÇϸç, Àαٿ¡ ¹ö½ºÁ¤·ùÀå ¹× Àüö¿ª °£¼®¿À°Å¸®¿ªÀÌ À§Ä¡ÇÏ´Â µî ´ëÁß±³Åë ÆíÀÍÀº ¾çÈ£ÇÑ ÆíÀÓ.
3)°Ç¹°ÀÇ ±¸Á¶
ö°ñö±ÙÄÜÅ©¸®Æ®Á¶ (ö±Ù)ÄÜÅ©¸®Æ®Æò½º¶óºêÁöºØ Áö»ó 15Ãþ °Ç¹° ³» 14Ãþ Á¦1411È£·Î¼­,

¿Üº® : ¼®ÀçºÙÀÓ ¹× º¹ÇÕ ÆÇ³Ú ¸¶°¨ µî,
âȣ : ÇÏÀ̼¨½Ã âȣ µî.
4)ÀÌ¿ë»óÅÂ
¿ÀÇǽºÅÚ·Î ÀÌ¿ëÁßÀÓ.
5)¼³ºñ³»¿ª
Àü±â, ³­¹æ, À§»ý¼³ºñ, ¼ÒÈ­¼³ºñ, ½Â°­±â µî ¼³ºñ µÇ¾î ÀÖÀ½.
6)ÅäÁöÀÇ Çü»ó ¹× ÀÌ¿ë»óÅÂ
¿Ï°æ»çÁö³» Á¶¼ºµÈ À广Çü ÆòÁö·Î¼­, 1°³ µ¿(»ó°¡ 20È£, ¿ÀÇǽºÅÚ µî 188È£, ÁÖÂ÷ 150´ë, ¿ëÀû·ü 918.30%) °ÇºÎÁöÀÓ.
7)ÀÎÁ¢ µµ·Î»óŵî
³²ÃøÀ¸·Î ±¤´ë·ÎÀÎ °æÀÎ·Î¿Í Á¢Çϸç, ºÏÃø ¹× µ¿ÃøÀ¸·Î ¼¼·Î¿Í Á¢ÇÔ.
8)ÅäÁöÀÌ¿ë°èȹ ¹× Á¦ÇÑ»óÅÂ
±âÈ£ 1) ~ 4) ¸ðµÎ :
ÀϹݻó¾÷Áö¿ª, ¹æÈ­Áö±¸, °¡Ãà»çÀ°Á¦Çѱ¸¿ª, °ú¹Ð¾ïÁ¦±Ç¿ªÀÓ.

±âÈ£ 1) : ¼Ò·Î3·ù(Æø 8m ¹Ì¸¸)(Á¢ÇÕ),
±âÈ£ 2) : ¼Ò·Î3·ù(Æø 8m ¹Ì¸¸)(Á¢ÇÕ), ¼Ò·Î3·ù(Æø 8m ¹Ì¸¸)(ÀúÃË),
±âÈ£ 3) : ¼Ò·Î3·ù(Æø 8m ¹Ì¸¸)(Á¢ÇÕ), ½Ã°¡Áö°æ°üÁö±¸, °ÇÃà¿ëµµÁö¿ª±âŸ, öµµº¸È£Áö±¸,
±âÈ£ 4) : ½Ã°¡Áö°æ°üÁö±¸, °ÇÃà¿ëµµÁö¿ª±âŸ, öµµº¸È£Áö±¸.
9)°øºÎ¿ÍÀÇ Â÷ÀÌ
ÇØ´ç »çÇ× ¾øÀ½.
10)±âŸÂü°í»çÇ×(ÀÓ´ë°ü·Ê ¹× ±âŸ)
ÀÓÂ÷º¸Áõ±Ý ±Ý95,000,000¿ø ÁÖÅÃÀÓÂ÷±Ç µî±âµÇ¾î ÀÖÀ¸¸ç, ÇöÀç ÀÓ´ë°ü°è´Â ¹Ì»óÀÓ.

°ÇÃ๰ÇöȲ

¼ÒÀçÁö ÀÎõ±¤¿ª½Ã ³²µ¿±¸ °£¼®µ¿ 250-1¹øÁö
´ëÁö¸éÀû 1663.1§³
(503.97Æò)
¿¬¸éÀû 19437.01§³
(5890Æò)
°ÇÃà¸éÀû 1305.99§³
(395.75Æò)
¿ëÀû·ü»êÁ¤
¿¬¸éÀû
15272.19§³
(4627.94Æò)
°ÇÆóÀ² 78.53% ¿ëÀû·ü 918.3%
Áö»óÃþ¼ö 15Ãþ ÁöÇÏÃþ¼ö 3Ãþ
ÁÖ¿ëµµ ¾÷¹«½Ã¼³ ±¸Á¶ ö°ñö±ÙÄÜÅ©¸®Æ®±¸Á¶
Âø°øÀÏÀÚ 2004.05.28 »ç¿ë½ÂÀÎÀÏÀÚ 2007.03.23
°ÇÃ๰Ãþº°ÇöȲ [º¸±â]


±¹ÅäºÎ½Ç°Å·¡°¡ ÀÎõ±¤¿ª½Ã ³²µ¿±¸ °£¼®µ¿

¡Ü ¸Å¸Å

¸éÀû(§³), ±Ý¾×(¸¸¿ø)

¡Ü Àü¼¼

¸éÀû(§³), ±Ý¾×(¸¸¿ø)

°è¾àÀϰǹ°¸íĪÃþÀü¿ëº¸Áõ±Ý¿ù¼¼°ÇÃà
26.01.13°£¼® ¿ÀÇÇ¾Ó A1555.1910,70002007
26.01.02°£¼® ¿ÀÇÇ¾Ó A1182.441,000702007
25.11.28°£¼® ¿ÀÇÇ¾Ó A1282.4412,00002007
25.11.10°£¼® ¿ÀÇÇ¾Ó A482.4413,4002007
25.10.27°£¼® ¿ÀÇÇ¾Ó A1033.486,50002007
¢Ñ ´õº¸±â

µî±âºÎµîº» ¿ä¾à(°Ç¹°)

  Á¢¼öÀÏÀÚ µî±â¸ñÀû/±Ç¸®ÀÚ ±Ç¸®±Ý¾× ±âÁØ
1 2022³â3¿ù17ÀÏ
¼ÒÀ¯±Ç
¹ÎOO
¼Ò¸ê
2 2023³â8¿ù3ÀÏ
°¡¾Ð·ù
ÁÖOOOO
530,000,000 ¼Ò¸ê±âÁØ
3 2023³â11¿ù15ÀÏ
ÀÓÂ÷±Ç¼³Á¤
À¯OO
95,000,000 ¼Ò¸ê
4 2025³â3¿ù4ÀÏ
°­Á¦°æ¸Å
ÁÖOOOO
¼Ò¸ê
5 2025³â3¿ù13ÀÏ
¾Ð·ù
±¹OOOO
¼Ò¸ê

ÀÓÂ÷ÀÎÇöȲ (¹è´ç¿ä±¸Á¾±âÀÏ: 2025-05-26)

ÀÓÂ÷ÀÎ ¿ëµµ/Á¡À¯ º¸Áõ±Ý/¿ù¼¼ ´ëÇ×·Â
ÀüÀÔÀÏ/È®Á¤ÀÏ ¹è´ç¿ä±¸ ºñ°í
À¯OO ÀüºÎ 95,000,000
O
2022. 3. 15.
2022. 2. 21.
2022. 3. 15.~
ÁÖOOOOOOOOOOOOOOO ÀüºÎ 95,000,000
O
2022. 3. 15.
2022. 2. 21.
2025. 2. 27. 2022. 3. 15.~2024. 3. 14.
ºñ°í
(¸Å°¢¹°°Ç
¸í¼¼¼­)
- À¯Á¾ÇÐ : ÁÖÅÃÀÓÂ÷±Çµî±â±ÇÀڷμ­ ÁÖÅÃÀÓÂ÷±Çµî±âÀÏÀº 2023. 11. 15.ÀÓ - ÁÖÅõµ½Ãº¸Áõ°ø»ç(ÀÓÂ÷ÀÎ À¯Á¾ÇÐ) : °æ¸Å½Åûä±ÇÀÚ·Î ¹è´ç¿ä±¸ÀÏÀÚ´Â °æ¸Å½ÅûÀÏÀ̸ç, ÁÖÅÃÀÓ´ëÂ÷º¸È£¹ý Á¦3Á¶ÀÇ 2 Á¦7Ç×

¿©ÀÇÁÖ°æ¸Å Á¶¾ð ÇÑ ¸¶µð

¼±¼øÀ§ ÀÓÂ÷±Çµî±â°¡ µÇ¾î ÀÖ½À´Ï´Ù
´ëÇ×·ÂÀÌ ÀÖ´Â ¼±¼øÀ§ ÀÓÂ÷±Çµî±â ±Ç¸®ÀÚ°¡ ¹è´çÀ» Àü¾× ¹ÞÁö ¸øÇÒ °æ¿ì ³«ÂûÀÚ°¡ ÀÜ¿© º¸Áõ±ÝÀ» ÀμöÇØ¾ßÇÏ´Â °æ¿ìµµ ÀÖ½À´Ï´Ù.

ÁÖÀÇ»çÇ× (ÃÖ¼±¼øÀ§ ¼³Á¤ÀÏ: 2023. 8. 3. °¡¾Ð·ù ¼³Á¤)

¸Å°¢À¸·Î ¼Ò¸êµÇÁö ¾Ê´Â µî±âºÎ±Ç¸®: À»±¸ ¼øÀ§ 9¹ø ÁÖÅÃÀÓÂ÷±Çµî±â(´Ù¸¸ ÁÖÅõµ½Ãº¸Áõ°ø»çÀÇ ¸»¼Òµ¿ÀÇ È®¾à¼­°¡ Á¦ÃâµÊ)
¸Å°¢À¸·Î ¼³Á¤µÈ °ÍÀ¸·Î º¸´Â Áö»ó±Ç:
¡Ø¹Ì³³°ü¸®ºñ(°ø¿ë) Àμö¿©ºÎ¸¦ ÀÔÂû Àü¿¡ È®ÀÎÇϽñ⠹ٶø´Ï´Ù

 

Áö¿ªºÐ¼®

ÁöÇÏö¸í Á÷¼±°Å¸®

Çб³¸í ÀüÈ­¹øÈ£ ÁÖ¼Ò Á÷¼±°Å¸®

¹ý¿ø

ÀÎõÁö¹æ¹ý¿ø (222-20)ÀÎõ±¤¿ª½Ã ¹ÌÃßȦ±¸ ¼Ò¼º·Î 163¹ø±æ 17(ÇÐÀ͵¿)
´ëÇ¥ : 032)860-1113~4
°üÇÒÁö¿ª : Áß±¸, µ¿±¸, ³²±¸, ¿¬¼ö±¸, ³²µ¿±¸, ºÎÆò±¸, °è¾ç±¸, ¼­±¸, ¿ËÁø±º, °­È­±º

µî±â¼Ò ÀÎõÁö¹æ¹ý¿ø º»¿ø µî±â±¹ (´ëÇ¥:1544-0773, ÆÑ½º:(032)620-9099, ÀÎõ±¤¿ª½Ã ¹ÌÃßȦ±¸ °æ¿ø´ë·Î 881(Á־ȵ¿ 983))
¼¼¹«¼­ ³²ÀÎõ¼¼¹«¼­ (´ëÇ¥:032-460-52, ÆÑ½º:032-463-5778, ÀÎõ±¤¿ª½Ã ³²µ¿±¸ ÀÎÇÏ·Î 548 (±¸¿ùµ¿))

Àαٳ«ÂûÅë°è

±â°£ ¸Å°¢°Ç¼ö Æò±Õ°¨Á¤°¡
Æò±Õ¸Å°¢°¡
¸Å°¢°¡À²
Æò±ÕÀ¯Âû¼ö
3°³¿ù 129°Ç 188,205,426¿ø
136,760,595¿ø
74%
1.5ȸ
6°³¿ù 222°Ç 193,096,847¿ø
139,563,934¿ø
73%
1.5ȸ
12°³¿ù 348°Ç 199,952,586¿ø
144,861,048¿ø
73%
1.6ȸ


º» °æ¸ÅÁ¤º¸´Â ¹ý¿øÀÚ·á¿Í ÀÏÄ¡Çϵµ·Ï ÇÏ¿´À¸³ª ±Ç¸®»çÇ׺¯µ¿, ÀÔ·ÂÂø¿À µîÀÇ ¿øÀÎÀ¸·Î »ç½Ç°ú ´Ù¸¦ ¼ö ÀÖ½À´Ï´Ù. ÀÌ¿ë¾à°ü¿¡ ÀǰЏéÃ¥Á¶°ÇÀ¸·Î Á¦°øµÊÀ» ¾Ë¸®¸ç, °æ¸ÅÀÔÂû½Ã ¹Ýµå½Ã °ü·Ã °øºÎ¸¦ ÀçÈ®ÀÎÇϽñ⠹ٶø´Ï´Ù. º¸´Ù Æí¸®ÇÑ °æ¸ÅÁ¤º¸ Á¦°øÀ» À§ÇØ Áö¼ÓÀûÀ¸·Î °³¼±ÇϰڽÀ´Ï´Ù. ÀÌ¿ëÇØ Áּż­ °¨»çÇÕ´Ï´Ù.