·Î±×ÀÎ
1151
¾ÆÆÄÆ®
ÀÎõÁö¹æ¹ý¿ø
 °¨Á¤°¡650,000,000 ¿ø
 ÃÖÀú°¡(70%) 455,000,000 ¿ø
 º¸Áõ±Ý(10%) 45,500,000 ¿ø
 Ã»±¸¾×538,511,639 ¿ø
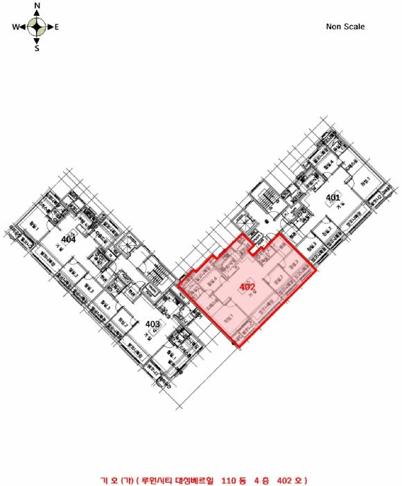
ÀÎõ±¤¿ª½Ã ¼­±¸ ½ÅÇöµ¿ 304-1 ·ç¿ø½ÃƼ ´ë¼ºº£¸£Èú 110µ¿ 4Ãþ402È£
»ç°Ç¹øÈ£ 2025Ÿ°æ507436
°æ¸ÅÁ¾·ùºÎµ¿»êÀÓÀǰæ¸Å
¸Å°¢´ë»óÅäÁö ¹× °Ç¹°Àϰý ¸Å°¢
¸Å°¢±âÀÏ    2026.03.12(¸ñ) 10:00 ÀÔÂû 10ÀÏÀü    
ÅäÁö¸éÀû58.22§³(17.61 Æò)
°Ç¹°¸éÀû99.47§³(30.09 Æò)
乫/¼ÒÀ¯ÀÚ±èOO / ±èOO
ä±ÇÀÚÁÖOOO OOOOOOO
ÆäÀ̽ººÏ Æ®À§ÅÍ ±¸±Û+
īī¿À½ºÅ丮
īī¿ÀÅå sms¹®ÀÚº¸³»±â
 

±âÀϳ»¿ª

°æ°ú ³¯Â¥ Àú°¨ ÃÖÀú°¡ °á°ú
Á¢¼öÀÏ 2025-02-13 °æ¸ÅÁ¢¼ö
~4ÀÏ 
2025-02-17 °æ¸Å°³½Ã°áÁ¤
~106ÀÏ 
2025-05-30 ¹è´ç¿ä±¸Á¾±âÀÏ
~350ÀÏ 
2026-01-29 100%
650,000,000
À¯Âû
~392ÀÏ 
2026-03-12 70%
455,000,000
ÁøÇà
¹°°Ç¸í¼¼¼­ ÇöȲÁ¶»ç¼­ ¹®°ÇÁ¢¼ö ¼Û´Þ³»¿ª

°¨Á¤Æò°¡ÇöȲ

¸ñ·Ï ÁÖ¼Ò ±¸Á¶/¿ëµµ/´ëÁö±Ç ¸éÀû ºñ°í
´ëÁö±Ç
½ÅÇöµ¿ 304-1 59899.2ºÐÀÇ 58.2168 58.2168 §³
(17.61Æò)
°Ç¹°
½ÅÇöµ¿ 304-1 110µ¿ 4Ãþ402È£ ö±ÙÄÜÅ©¸®Æ®±¸Á¶ 99.4743 §³
(30.09Æò)
1) À§Ä¡/Á¦3Á¾ÀϹÝÁÖ°ÅÁö¿ª/Áö±¸´ÜÀ§°èȹ±¸¿ª/¹ö½ºÁ¤·ùÀå/ö±ÙÄÜÅ©¸®Æ®±¸Á¶ ´õº¸±â
°¨Á¤Æò°¡ ¿äÇ×Ç¥
1)À§Ä¡ ¹× ÁÖÀ§È¯°æ
º»°ÇÀº ÀÎõ±¤¿ª½Ã ¼­±¸ ½ÅÇöµ¿ ¼ÒÀç '°¡ÇöÃʵîÇб³' ºÏ¼­Ãø Àαٿ¡ À§Ä¡ÇÑ ·ç¿ø½ÃƼ ´ë¼ºº£

¸£Èú Á¦110µ¿ Á¦4Ãþ Á¦402È£·Î¼­ ºÎ±ÙÀº °øµ¿ÁÖÅà ¹× ±Ù¸°»ýȰ½Ã¼³ µîÀ¸·Î Çü¼ºµÇ¾î ÀÖÀ½.
2)±³Åë»óȲ
º»°Ç±îÁö Â÷·® ÃâÀÔÀÌ °¡´ÉÇϸç, Àαٿ¡ ¹ö½ºÁ¤·ùÀåÀÌ ¼ÒÀçÇÏ¿© ´ëÁß±³Åë»óȲÀº º¸Åë½ÃµÊ.
3)°Ç¹°ÀÇ ±¸Á¶
ö±ÙÄÜÅ©¸®Æ®±¸Á¶ (ö±Ù)ÄÜÅ©¸®Æ®ÁöºØ 25Ãþ°Ç ³» 4Ãþ 402È£·Î,

(ÁýÇÕ°ÇÃ๰´ëÀå»ó »ç¿ë½ÂÀÎÀÏ : 2017.09.27)

¿Ü º® : ¸ð¸£Å¸¸£À§ÆäÀÎÆÃ µî

â È£ : »õ½ÃâÀÓ.
4)ÀÌ¿ë»óÅÂ
¾ÆÆÄÆ®ÀÓ.
5)¼³ºñ³»¿ª
À§»ý¼³ºñ, ±Þ¹è¼ö¼³ºñ, ³­¹æ¼³ºñ, ¿¤·¹º£ÀÌÅÍ µîÀÌ µÇ¾î ÀÖÀ½.
6)ÅäÁöÀÇ Çü»ó ¹× ÀÌ¿ë»óÅÂ
»ç´Ù¸®Çü ÅäÁö·Î¼­ ÁÖ°Å¿ë °ÇºÎÁö·Î ÀÌ¿ëÁßÀÓ.
7)ÀÎÁ¢ µµ·Î»óŵî
º»°Ç ´ÜÁö ³»¡¤¿Ü µµ·Î¸¦ ÀÌ¿ëÁßÀÓ.
8)ÅäÁöÀÌ¿ë°èȹ ¹× Á¦ÇÑ»óÅÂ
Á¦3Á¾ÀϹÝÁÖ°ÅÁö¿ª, Áö±¸´ÜÀ§°èȹ±¸¿ª(°¡Á¤°ø°øÁÖÅÃ), Áß·Î1·ù(Æø 20m~25m)(Á¢ÇÕ), Ư¼öµµ·Î

(º¸ÇàÀÚÀü¿ëµµ·Î)(Á¢ÇÕ), °¡Ãà»çÀ°Á¦Çѱ¸¿ª(ÀÎõ±¤¿ª½Ã ¼­±¸ Á¶·Ê Á¦ 1749È£)<°¡ÃàºÐ´¢ÀÇ °ü

¸® ¹× À̿뿡 °üÇÑ ¹ý·ü>, °¡Ãà»çÀ°Á¦Çѱ¸¿ª(ÀÎõ±¤¿ª½Ã ¼­±¸Á¶·Ê Á¦1749È£ )<°¡ÃàºÐ´¢ÀÇ °ü

¸® ¹× À̿뿡 °üÇÑ ¹ý·ü>, °ø°øÁÖÅÃÁö±¸(ÀÎõ°¡Á¤ °ø°øÁÖÅÃÁö±¸)<°ø°øÁÖÅà Ưº°¹ý>, »ó´ëº¸

È£±¸¿ª(2015-03-31)(¼­ºÎ±³À°Áö¿øÃ»)<±³À°È¯°æ º¸È£¿¡ °üÇÑ ¹ý·ü>, »ó´ëº¸È£±¸¿ª(ÀÎõ¼­ºÎ±³

À°Áö¿øÃ»Æò»ý±³À°°Ç°­°ú¹®ÀÇ)<±³À°È¯°æ º¸È£¿¡ °üÇÑ ¹ý·ü>, »ó´ëº¸È£±¸¿ª(ÀÎõ¼­ºÎ±³À°Áö¿ø

ûÆò»ý±³À°°Ç°­°ú¹®ÀÇ560-6659)<±³À°È¯°æ º¸È£¿¡ °üÇÑ ¹ý·ü>, »ó´ëº¸È£±¸¿ª(ÀÎõ¼­ºÎ±³À°Ã»

Æò»ý±³À°°ú¹®ÀÇ560-6659)<±³À°È¯°æ º¸È£¿¡ °üÇÑ ¹ý·ü>, °øÀÍ¿ë»êÁö<»êÁö°ü¸®¹ý>, °ú¹Ð¾ïÁ¦±Ç

¿ª<¼öµµ±ÇÁ¤ºñ°èȹ¹ý>ÀÓ.
9)°øºÎ¿ÍÀÇ Â÷ÀÌ
-
10)±âŸÂü°í»çÇ×(ÀÓ´ë°ü·Ê ¹× ±âŸ)
º»°Ç ÀÌÇØ°ü°èÀÎÀÇ ºÎÀç ¹× Æó¹® µîÀ¸·Î ÇöÀåÁ¶»ç ¹× °øºÎ¸¦ ±Ù°Å·Î ÀÛ¼ºÇÏ¿´À¸¸ç, ÀÚ¼¼ÇÑ

ÀÓ´ë°ü°è´Â ¹Ì»óÀÓ.
Âü°í
»çÇ×

º» °ÇÀº 25Ãþ °øµ¿

°ÇÃ๰ÇöȲ

¼ÒÀçÁö ÀÎõ±¤¿ª½Ã ¼­±¸ ½ÅÇöµ¿ 304-1¹øÁö
´ëÁö¸éÀû   ¿¬¸éÀû 11042.0973§³
(3346.09Æò)
°ÇÃà¸éÀû 685.9675§³
(207.87Æò)
¿ëÀû·ü»êÁ¤
¿¬¸éÀû
11042.0973§³
(3346.09Æò)
°ÇÆóÀ²   ¿ëÀû·ü  
Áö»óÃþ¼ö 25Ãþ ÁöÇÏÃþ¼ö  
ÁÖ¿ëµµ °øµ¿ÁÖÅà ±¸Á¶ ö±ÙÄÜÅ©¸®Æ®±¸Á¶
Âø°øÀÏÀÚ 2015.05.29 »ç¿ë½ÂÀÎÀÏÀÚ 2017.09.27
°ÇÃ๰Ãþº°ÇöȲ [º¸±â]


±¹ÅäºÎ½Ç°Å·¡°¡ ÀÎõ±¤¿ª½Ã ¼­±¸ ½ÅÇöµ¿

¡Ü ¸Å¸Å

¸éÀû(§³), ±Ý¾×(¸¸¿ø)

¡Ü Àü¼¼

¸éÀû(§³), ±Ý¾×(¸¸¿ø)

°è¾àÀÏARTÃþÀü¿ëº¸Áõ±Ý¿ù¼¼°ÇÃà
26.02.20·ç¿ø½ÃƼ ´ë¼ºº£¸£Èú1484.975756,2502017
26.02.11·ç¿ø½ÃƼ ´ë¼ºº£¸£Èú799.474338,00002017
26.02.11·ç¿ø½ÃƼ ´ë¼ºº£¸£Èú799.474338,00002017
26.02.11·ç¿ø½ÃƼ ´ë¼ºº£¸£Èú1784.977859,7002017
26.02.02·ç¿ø½ÃƼ ´ë¼ºº£¸£Èú284.977835,00002017
¢Ñ ´õº¸±â

µî±âºÎµîº» ¿ä¾à(°Ç¹°)

  Á¢¼öÀÏÀÚ µî±â¸ñÀû/±Ç¸®ÀÚ ±Ç¸®±Ý¾× ±âÁØ
1 2017³â12¿ù15ÀÏ
¼ÒÀ¯±Ç
±èOO
¼Ò¸ê
2 2017³â12¿ù15ÀÏ
±ÙÀú´ç±Ç
(OOOO
305,800,000 ¼Ò¸ê±âÁØ
3 2021³â12¿ù29ÀÏ
±ÙÀú´ç±Ç
(OOOO
572,400,000 ¼Ò¸ê
4 2025³â1¿ù14ÀÏ
¾Ð·ù
¼­O
¼Ò¸ê
5 2025³â2¿ù17ÀÏ
ÀÓÀǰæ¸Å
(OOOO
¼Ò¸ê

ÀÓÂ÷ÀÎÇöȲ (¹è´ç¿ä±¸Á¾±âÀÏ: 2025-05-30)


Á¶»çµÈ ÀÓÂ÷³»¿ªÀÌ ¾ø½À´Ï´Ù


¿©ÀÇÁÖ°æ¸Å Á¶¾ð ÇÑ ¸¶µð


ÁÖÀÇ»çÇ× (ÃÖ¼±¼øÀ§ ¼³Á¤ÀÏ: 2017.12.15. ±ÙÀú´ç±Ç ¼³Á¤)

¸Å°¢À¸·Î ¼Ò¸êµÇÁö ¾Ê´Â µî±âºÎ±Ç¸®:
¸Å°¢À¸·Î ¼³Á¤µÈ °ÍÀ¸·Î º¸´Â Áö»ó±Ç:
¡Ø¹Ì³³°ü¸®ºñ(°ø¿ë) Àμö¿©ºÎ¸¦ ÀÔÂû Àü¿¡ È®ÀÎÇϽñ⠹ٶø´Ï´Ù

 

Áö¿ªºÐ¼®

ÁöÇÏö¸í Á÷¼±°Å¸®

Çб³¸í ÀüÈ­¹øÈ£ ÁÖ¼Ò Á÷¼±°Å¸®

¹ý¿ø

ÀÎõÁö¹æ¹ý¿ø (222-20)ÀÎõ±¤¿ª½Ã ¹ÌÃßȦ±¸ ¼Ò¼º·Î 163¹ø±æ 17(ÇÐÀ͵¿)
´ëÇ¥ : 032)860-1113~4
°üÇÒÁö¿ª : Áß±¸, µ¿±¸, ³²±¸, ¿¬¼ö±¸, ³²µ¿±¸, ºÎÆò±¸, °è¾ç±¸, ¼­±¸, ¿ËÁø±º, °­È­±º

µî±â¼Ò ÀÎõÁö¹æ¹ý¿ø º»¿ø µî±â±¹ (´ëÇ¥:1544-0773, ÆÑ½º:(032)620-9099, ÀÎõ±¤¿ª½Ã ¹ÌÃßȦ±¸ °æ¿ø´ë·Î 881(Á־ȵ¿ 983))
¼¼¹«¼­ ¼­ÀÎõ¼¼¹«¼­ (´ëÇ¥:032-560-52, ÆÑ½º:032-561-5777, ÀÎõ±¤¿ª½Ã ¼­±¸ ¼­°ù·Î369¹ø±æ 17 (¿¬Èñµ¿))

Àαٳ«ÂûÅë°è

±â°£ ¸Å°¢°Ç¼ö Æò±Õ°¨Á¤°¡
Æò±Õ¸Å°¢°¡
¸Å°¢°¡À²
Æò±ÕÀ¯Âû¼ö


º» °æ¸ÅÁ¤º¸´Â ¹ý¿øÀÚ·á¿Í ÀÏÄ¡Çϵµ·Ï ÇÏ¿´À¸³ª ±Ç¸®»çÇ׺¯µ¿, ÀÔ·ÂÂø¿À µîÀÇ ¿øÀÎÀ¸·Î »ç½Ç°ú ´Ù¸¦ ¼ö ÀÖ½À´Ï´Ù. ÀÌ¿ë¾à°ü¿¡ ÀǰЏéÃ¥Á¶°ÇÀ¸·Î Á¦°øµÊÀ» ¾Ë¸®¸ç, °æ¸ÅÀÔÂû½Ã ¹Ýµå½Ã °ü·Ã °øºÎ¸¦ ÀçÈ®ÀÎÇϽñ⠹ٶø´Ï´Ù. º¸´Ù Æí¸®ÇÑ °æ¸ÅÁ¤º¸ Á¦°øÀ» À§ÇØ Áö¼ÓÀûÀ¸·Î °³¼±ÇϰڽÀ´Ï´Ù. ÀÌ¿ëÇØ Áּż­ °¨»çÇÕ´Ï´Ù.