·Î±×ÀÎ
1081
µµ½ÃÇü»ýȰÁÖÅÃ
ºÎ»êÁö¹æ¹ý¿ø ºÎ»ê¼­ºÎÁö¿ø
 °¨Á¤°¡150,000,000 ¿ø
 ÃÖÀú°¡(70%) 105,000,000 ¿ø
 º¸Áõ±Ý(10%) 10,500,000 ¿ø
 Ã»±¸¾×150,000,000 ¿ø
ºÎ»ê±¤¿ª½Ã »ç»ó±¸ »ç»ó·Î202¹ø±æ 60, 8Ãþ801È£ (±¥¹ýµ¿,¿ÃÀ¯·¹½ºÆ¾ºä)
ºÎ»ê±¤¿ª½Ã »ç»ó±¸ ±¥¹ýµ¿ 541-3
»ç°Ç¹øÈ£ 2024Ÿ°æ110112
°æ¸ÅÁ¾·ùºÎµ¿»ê°­Á¦°æ¸Å
¸Å°¢´ë»óÅäÁö ¹× °Ç¹°Àϰý ¸Å°¢
¸Å°¢±âÀÏ    2026.03.04(¼ö) 10:00 (¿À´Ã ÀÔÂû)    
ÅäÁö¸éÀû7.20§³(2.18 Æò)
°Ç¹°¸éÀû37.82§³(11.44 Æò)
乫/¼ÒÀ¯ÀÚÀÌOO / ÀÌOO
ä±ÇÀÚÁÖOOOOOOO
ÆäÀ̽ººÏ Æ®À§ÅÍ ±¸±Û+
īī¿À½ºÅ丮
īī¿ÀÅå sms¹®ÀÚº¸³»±â
 

±âÀϳ»¿ª

°æ°ú ³¯Â¥ Àú°¨ ÃÖÀú°¡ °á°ú
Á¢¼öÀÏ 2024-09-23 °æ¸ÅÁ¢¼ö
~1ÀÏ 
2024-09-24 °æ¸Å°³½Ã°áÁ¤
~91ÀÏ 
2024-12-23 ¹è´ç¿ä±¸Á¾±âÀÏ
~492ÀÏ 
2026-01-28 100%
150,000,000
À¯Âû
~527ÀÏ 
2026-03-04 70%
105,000,000
ÁøÇà
¹°°Ç¸í¼¼¼­ ÇöȲÁ¶»ç¼­ ¹®°ÇÁ¢¼ö ¼Û´Þ³»¿ª

°¨Á¤Æò°¡ÇöȲ

¸ñ·Ï ÁÖ¼Ò ±¸Á¶/¿ëµµ/´ëÁö±Ç ¸éÀû ºñ°í
´ëÁö±Ç
±¥¹ýµ¿ 541-3 477ºÐÀÇ 7.2028 7.2028 §³
(2.18Æò)
°Ç¹°
±¥¹ýµ¿ 541-3 8Ãþ801È£ ö±ÙÄÜÅ©¸®Æ®±¸Á¶ 37.8214 §³
(11.44Æò)
1) À§Ä¡/ÀϹݻó¾÷Áö¿ª/¹ö½ºÁ¤·ùÀå/ÁöÇÏö/ö±ÙÄÜÅ©¸®Æ®±¸Á¶/½½·¡ºêÁöºØ/µµ½Ã°¡½º/°³º°³­¹æ ´õº¸±â
°¨Á¤Æò°¡ ¿äÇ×Ç¥
1)À§Ä¡ ¹× ÁÖÀ§È¯°æ
º»°ÇÀº ºÎ»ê±¤¿ª½Ã »ç»ó±¸ ±¥¹ýµ¿ ¼ÒÀç "ºÎ»ê¼­ºÎ»ç»ó ¹ö½ºÅ͹̳Î" µ¿Ãø Àαٿ¡ À§Ä¡Çϰí,
ÁÖÀ§´Â Áß¼Ò±Ô¸ð °øµ¿ÁÖÅÃ, ´Üµ¶ÁÖÅÃ, ¾÷¹«½Ã¼³, °¢Á¾ ±Ù¸°»ýȰ½Ã¼³ µîÀ¸·Î Çü¼ºµÇ¾î ÀÖÀ½.
2)±³Åë»óȲ
º»°Ç±îÁö Â÷·®Á¢±Ù °¡´ÉÇϰí, Àαٿ¡ ¹ö½ºÁ¤·ùÀå ¹× ºÎ»êÁöÇÏö 2È£¼± »ç»ó¿ª ¹× ºÎ»ê±èÇØ
°æÀüö »ç»ó¿ªÀÌ ¼ÒÀçÇÔ.
3)°Ç¹°ÀÇ ±¸Á¶
ö±ÙÄÜÅ©¸®Æ®±¸Á¶ ½½·¡ºêÁöºØ ÁöÇÏ1Ãþ Áö»ó15Ãþ °Ç³» Á¦8Ãþ Á¦801È£·Î¼­,
¿Üº® : È­°­¼®ºÙÀÓ ¹× ¸ôÅ»À§ÆäÀÎÆÃ µî ¸¶°¨,
âȣ : ¼¦½ÃÀÌÁßâ ±¸Á¶ÀÓ.
4)ÀÌ¿ë»óÅÂ
°øµ¿ÁÖÅÃ(µµ½ÃÇü»ýȰÁÖÅÃ(¿ø·ëÇü))À¸·Î ÀÌ¿ëÁßÀÓ.
5)¼³ºñ³»¿ª
À§»ý¼³ºñ, ±Þ¹è¼ö¼³ºñ, ½Â°­±â¼³ºñ, ÁÖÂ÷Ÿ¿ö¼³ºñ, ¼ÒÈ­Àü¼³ºñ, È­Àç°æº¸ ¹× ŽÁö¼³ºñ,
µµ½Ã°¡½º¿¡ ÀÇÇÑ °³º°³­¹æ¼³ºñ µîÀÌ µÇ¾î ÀÖÀ½.
6)ÅäÁöÀÇ Çü»ó ¹× ÀÌ¿ë»óÅÂ
¿Ï°æ»çÁö³» ´ëü·Î ÆòźÇÏ°Ô Á¶¼ºÇÑ ¼¼ÀåÇü ÅäÁö·Î¼­, °øµ¿ÁÖÅà °ÇºÎÁö·Î ÀÌ¿ëÁßÀÓ.
7)ÀÎÁ¢ µµ·Î»óŵî
º»°Ç ºÏ¼­ÃøÀ¸·Î ³ëÆø ¾à 6¹ÌÅÍ ³»¿ÜÀÇ µµ·Î¿Í Á¢ÇÔ.
8)ÅäÁöÀÌ¿ë°èȹ ¹× Á¦ÇÑ»óÅÂ
ÀϹݻó¾÷Áö¿ª, ¹æÈ­Áö±¸, °¡Ãà»çÀ°Á¦Çѱ¸¿ª<°¡ÃàºÐ´¢ÀÇ °ü¸® ¹× À̿뿡 °üÇÑ ¹ý·ü>, °¡·Î±¸
¿ªº° ÃÖ°í³ôÀÌ Á¦ÇÑÁö¿ª(2024-06-12)(±âÁسôÀÌ 115m, ÃÖ°í³ôÀÌ 150m)<°ÇÃà¹ý>, ºñÇà¾ÈÀüÁ¦6
±¸¿ª(Àü¼ú)(6±¸¿ª)<±º»ç±âÁö ¹× ±º»ç½Ã¼³ º¸È£¹ý>ÀÓ.
9)°øºÎ¿ÍÀÇ Â÷ÀÌ
¾øÀ½.
10)±âŸÂü°í»çÇ×(ÀÓ´ë°ü·Ê ¹× ±âŸ)
1)ÀÓ´ë°ü°è : ¹Ì»óÀÓ.
2)±â Ÿ : ¾ø À½.
Âü°í
»çÇ×
ÇöĪ ¹× °Ç¹°¿Üº® '·¹½ºÆ¾ ºä 2Â÷' ·Î µÇ¾î ÀÖÀ½
°Ç¹° ¿Üº® ` ·¹½ºÆ¾ ºä 2Â÷`·Î µÇ¾î ÀÖÀ½

°ÇÃ๰ÇöȲ

¼ÒÀçÁö ºÎ»ê±¤¿ª½Ã »ç»ó±¸ ±¥¹ýµ¿ 541-3¹øÁö
´ëÁö¸éÀû 477§³
(144.55Æò)
¿¬¸éÀû 3710.113§³
(1124.28Æò)
°ÇÃà¸éÀû 375.16§³
(113.68Æò)
¿ëÀû·ü»êÁ¤
¿¬¸éÀû
3395.679§³
(1028.99Æò)
°ÇÆóÀ² 78.65% ¿ëÀû·ü 711.88%
Áö»óÃþ¼ö 15Ãþ ÁöÇÏÃþ¼ö 1Ãþ
ÁÖ¿ëµµ °øµ¿ÁÖÅà ±¸Á¶ ö±ÙÄÜÅ©¸®Æ®±¸Á¶
Âø°øÀÏÀÚ 2017.03.25 »ç¿ë½ÂÀÎÀÏÀÚ 2018.05.18
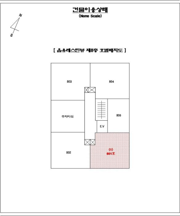
°ÇÃ๰Ãþº°ÇöȲ [º¸±â]


µî±âºÎµîº» ¿ä¾à(°Ç¹°)

  Á¢¼öÀÏÀÚ µî±â¸ñÀû/±Ç¸®ÀÚ ±Ç¸®±Ý¾× ±âÁØ
1 2022³â5¿ù24ÀÏ
¼ÒÀ¯±Ç
ÀÌOO
¼Ò¸ê
2 2023³â7¿ù10ÀÏ
ÀÓÂ÷±Ç¼³Á¤
¹ÚOO
150,000,000 Àμö
3 2024³â9¿ù24ÀÏ
°­Á¦°æ¸Å
ÁÖOOOO
¼Ò¸ê±âÁØ

ÀÓÂ÷ÀÎÇöȲ (¹è´ç¿ä±¸Á¾±âÀÏ: 2024-12-23)

ÀÓÂ÷ÀÎ ¿ëµµ/Á¡À¯ º¸Áõ±Ý/¿ù¼¼ ´ëÇ×·Â
ÀüÀÔÀÏ/È®Á¤ÀÏ ¹è´ç¿ä±¸ ºñ°í
¹ÚOO ÀüºÎ 150,000,000
O
2020.11.06.
2020.10.22.
2020.11.07.~
ºñ°í
(¸Å°¢¹°°Ç
¸í¼¼¼­)
ÁÖÅõµ½Ãº¸Áõ°ø»ç(ÀÓÂ÷ÀÎ ¹Ú¹Î±Ù):°æ¸Å½Åûä±ÇÀÚ·Î ÀÓÂ÷ÀÎ ¹Ú¹Î±ÙÀÇ ÀÓÂ÷º¸Áõ±Ý¹Ýȯä±Ç ¾ç¼öÀÎÀÓ(´ëÇ×·Â ¹× ¿ì¼±º¯Á¦±Ç ½Â °è)

¿©ÀÇÁÖ°æ¸Å Á¶¾ð ÇÑ ¸¶µð

¼±¼øÀ§ ÀÓÂ÷±Çµî±â°¡ µÇ¾î ÀÖ½À´Ï´Ù
´ëÇ×·ÂÀÌ ÀÖ´Â ¼±¼øÀ§ ÀÓÂ÷±Çµî±â ±Ç¸®ÀÚ°¡ ¹è´çÀ» Àü¾× ¹ÞÁö ¸øÇÒ °æ¿ì ³«ÂûÀÚ°¡ ÀÜ¿© º¸Áõ±ÝÀ» ÀμöÇØ¾ßÇÏ´Â °æ¿ìµµ ÀÖ½À´Ï´Ù.

ÁÖÀÇ»çÇ× (ÃÖ¼±¼øÀ§ ¼³Á¤ÀÏ: 2024. 9. 24. °æ¸Å°³½Ã°á ¼³Á¤ Á¤)

¸Å°¢À¸·Î ¼Ò¸êµÇÁö ¾Ê´Â µî±âºÎ±Ç¸®: ¸Å¼öÀο¡°Ô ´ëÇ×ÇÒ ¼ö ÀÖ´Â À»±¸ 5¹ø ÀÓÂ÷±Çµî±â(ÀÓ´ëÂ÷º¸Áõ±Ý 150,000,000¿ø, ÀüÀÔÀÏÀÚ 2020.11.6. È®Á¤ÀÏÀÚ 2020.10.22.)°¡ ÀÖ À¸¹Ç·Î ¹è´ç¿¡¼­ Àü¾× º¯Á¦µÇÁö ¾Æ´ÏÇϸé Àܾ×À» ¸Å¼öÀÎÀÌ ÀμöÇÔ(¶Ç´Â Àܾ×Àº ¸Å¼öÀο¡°Ô ÀμöµÉ ¼ö ÀÖÀ½)
¸Å°¢À¸·Î ¼³Á¤µÈ °ÍÀ¸·Î º¸´Â Áö»ó±Ç:
ÇöĪ ¹× °Ç¹°¿Üº® '·¹½ºÆ¾ ºä 2Â÷' ·Î µÇ¾î ÀÖÀ½
¡Ø¹Ì³³°ü¸®ºñ(°ø¿ë) Àμö¿©ºÎ¸¦ ÀÔÂû Àü¿¡ È®ÀÎÇϽñ⠹ٶø´Ï´Ù

 

Áö¿ªºÐ¼®

ÁöÇÏö¸í Á÷¼±°Å¸®

Çб³¸í ÀüÈ­¹øÈ£ ÁÖ¼Ò Á÷¼±°Å¸®

¹ý¿ø

ºÎ»êÁö¹æ¹ý¿ø ¼­ºÎÁö¿ø (467-26)ºÎ»ê±¤¿ª½Ã °­¼­±¸ ¸íÁö±¹Á¦7·Î 77 (¸íÁöµ¿)
´ëÇ¥ : 051)812-1114~5
°üÇÒÁö¿ª : ¼­±¸, ºÏ±¸, »ç»ó±¸, »çÇϱ¸, °­¼­±¸

µî±â¼Ò ºÎ»êÁö¹æ¹ý¿ø ¼­ºÎÁö¿ø ºÏºÎ»êµî±â¼Ò (´ëÇ¥:1544-0773, ÆÑ½º:(051)304-6230, ºÎ»ê±¤¿ª½Ã ºÏ±¸ »ç»ó·Î583¹ø±æ 14 (±¸Æ÷µ¿ 1186-26))
¼¼¹«¼­ ºÏºÎ»ê¼¼¹«¼­ (´ëÇ¥:051-310-62, ÆÑ½º:051-310-6549, ºÎ»ê±¤¿ª½Ã »ç»ó±¸ Çа¨´ë·Î 263(°¨Àüµ¿))

Àαٳ«ÂûÅë°è

±â°£ ¸Å°¢°Ç¼ö Æò±Õ°¨Á¤°¡
Æò±Õ¸Å°¢°¡
¸Å°¢°¡À²
Æò±ÕÀ¯Âû¼ö


º» °æ¸ÅÁ¤º¸´Â ¹ý¿øÀÚ·á¿Í ÀÏÄ¡Çϵµ·Ï ÇÏ¿´À¸³ª ±Ç¸®»çÇ׺¯µ¿, ÀÔ·ÂÂø¿À µîÀÇ ¿øÀÎÀ¸·Î »ç½Ç°ú ´Ù¸¦ ¼ö ÀÖ½À´Ï´Ù. ÀÌ¿ë¾à°ü¿¡ ÀǰЏéÃ¥Á¶°ÇÀ¸·Î Á¦°øµÊÀ» ¾Ë¸®¸ç, °æ¸ÅÀÔÂû½Ã ¹Ýµå½Ã °ü·Ã °øºÎ¸¦ ÀçÈ®ÀÎÇϽñ⠹ٶø´Ï´Ù. º¸´Ù Æí¸®ÇÑ °æ¸ÅÁ¤º¸ Á¦°øÀ» À§ÇØ Áö¼ÓÀûÀ¸·Î °³¼±ÇϰڽÀ´Ï´Ù. ÀÌ¿ëÇØ Áּż­ °¨»çÇÕ´Ï´Ù.