·Î±×ÀÎ
1180
¾ÆÆÄÆ®
ÀÎõÁö¹æ¹ý¿ø
 °¨Á¤°¡192,000,000 ¿ø
 ÃÖÀú°¡(49%) 94,080,000 ¿ø
 º¸Áõ±Ý(10%) 9,408,000 ¿ø
 Ã»±¸¾×98,000,000 ¿ø
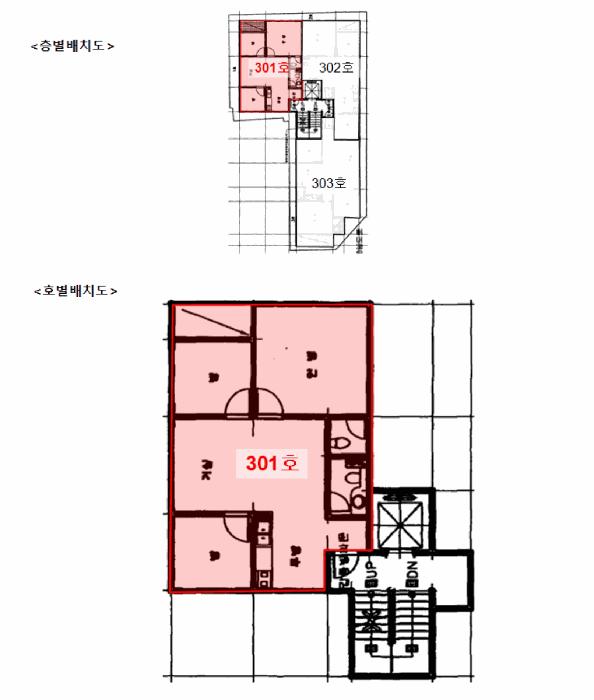
ÀÎõ±¤¿ª½Ã ºÎÆò±¸ ºÎÆòµ¿ 371-16 ¸®Ä¡¾ÆÆÄÆ® 3Ãþ301È£
»ç°Ç¹øÈ£ 2025Ÿ°æ507591
°æ¸ÅÁ¾·ùºÎµ¿»ê°­Á¦°æ¸Å
¸Å°¢´ë»óÅäÁö ¹× °Ç¹°Àϰý ¸Å°¢
¸Å°¢±âÀÏ    2026.04.10(±Ý) 10:00 ÀÔÂû 1ÀÏÀü    
ÅäÁö¸éÀû18.84§³(5.70 Æò)
°Ç¹°¸éÀû59.60§³(18.03 Æò)
乫/¼ÒÀ¯ÀÚ±èOO / ±èOO
ä±ÇÀÚ¾çOO
ÆäÀ̽ººÏ Æ®À§ÅÍ ±¸±Û+
īī¿À½ºÅ丮
īī¿ÀÅå sms¹®ÀÚº¸³»±â
 

±âÀϳ»¿ª

°æ°ú ³¯Â¥ Àú°¨ ÃÖÀú°¡ °á°ú
Á¢¼öÀÏ 2025-02-17 °æ¸ÅÁ¢¼ö
~1ÀÏ 
2025-02-18 °æ¸Å°³½Ã°áÁ¤
~84ÀÏ 
2025-05-12 ¹è´ç¿ä±¸Á¾±âÀÏ
~344ÀÏ 
2026-01-27 100%
192,000,000
À¯Âû
~386ÀÏ 
2026-03-10 70%
134,400,000
À¯Âû
~417ÀÏ 
2026-04-10 49%
94,080,000
ÁøÇà
¹°°Ç¸í¼¼¼­ ÇöȲÁ¶»ç¼­ ¹®°ÇÁ¢¼ö ¼Û´Þ³»¿ª

°¨Á¤Æò°¡ÇöȲ

¸ñ·Ï ÁÖ¼Ò ±¸Á¶/¿ëµµ/´ëÁö±Ç ¸éÀû ºñ°í
´ëÁö±Ç
ºÎÆòµ¿ 371-16 277.5ºÐÀÇ 18.84 18.84 §³
(5.70Æò)
°Ç¹°
ºÎÆòµ¿ 371-16 3Ãþ301È£ ö±ÙÄÜÅ©¸®Æ®Á¶ 59.6 §³
(18.03Æò)
1) À§Ä¡/ÀϹݻó¾÷Áö¿ª/³ë¼±¹ö½ºÁ¤·ùÀå/ö±ÙÄÜÅ©¸®Æ®Á¶/½º¶óºêÁöºØ ´õº¸±â
°¨Á¤Æò°¡ ¿äÇ×Ç¥
1)À§Ä¡ ¹× ÁÖÀ§È¯°æ
º»°ÇÀº ÀÎõ±¤¿ª½Ã ºÎÆò±¸ ºÎÆòµ¿ ¼ÒÀç 'ºÎÈïÃʵîÇб³' ³²Ãø Àαٿ¡ À§Â÷Çϸç, ÁÖÀ§´Â ¾ÆÆÄÆ® ¹× ´Ù¼¼´ëÁÖÅÃ, ±Ù¸°»ýȰ½Ã¼³ µîÀÌ È¥ÀçÇÏ´Â Áö¿ªÀ¸·Î Á¦¹Ý ȯ°æ¿©°ÇÀº º¸ÅëÀÎ ÆíÀÓ.
2)±³Åë»óȲ
º»°Ç±îÁö Â÷·®ÁøÃâÀÔÀÌ °¡´ÉÇϸç, Àαٿ¡ ³ë¼±¹ö½ºÁ¤·ùÀåÀÌ ¼ÒÀçÇÏ´Â µî ´ëÁß±³Åë»çÁ¤Àº º¸ÅëÀÎ ÆíÀÓ.
3)°Ç¹°ÀÇ ±¸Á¶
2022³â8¿ù16ÀÏÀÚ¿¡ »ç¿ë½ÂÀÎµÈ Ã¶±ÙÄÜÅ©¸®Æ®Á¶ ½º¶óºêÁöºØ 6Ãþ °Ç¹°³» 3Ãþ 301È£·Î¼­,

¿Üº® : µå¶óÀ̺ñÆ® ¹× ÀϺΠ¼®ÀçºÙÀÓ ¸¶°¨ µî,
³»º® : º®Áöµµ¹è ¹× ÀϺΠŸÀϸ¶°¨(Ç¥Áظ¶°¨±âÁØ) µî,
âȣ : PVC ¹× ¾Ë·ç¹Ì´½ »þ½Ã ¸¶°¨ µî ÀÓ.
4)ÀÌ¿ë»óÅÂ
¾ÆÆÄÆ®·Î ÀÌ¿ë ÁßÀÓ.

5)¼³ºñ³»¿ª
±âº»ÀûÀÎ À§»ý ¹× ±Þ¹è¼ö¼³ºñ, ½Â°­±â¼³ºñ, ³­¹æ¼³ºñ, °¡½º¼³ºñ µîÀ» ±¸ºñµÇ¾î ÀÖÀ½.
6)ÅäÁöÀÇ Çü»ó ¹× ÀÌ¿ë»óÅÂ
ÀαÙÁö ´ëºñ µî°íÆòźÇÑ ºÎÁ¤ÇüÀÇ ÅäÁö·Î¼­, ¾ÆÆÄÆ® °ÇºÎÁö·Î ÀÌ¿ëÁßÀÓ.

7)ÀÎÁ¢ µµ·Î»óŵî
º»°Ç µ¿Ãø ¹× ³²ÃøÀ¸·Î ¾à6¹ÌÅÍ ³»¿ÜÀÇ ¾Æ½ºÆÈÆ®Æ÷Àåµµ·Î¿Í Á¢ÇÔ.
8)ÅäÁöÀÌ¿ë°èȹ ¹× Á¦ÇÑ»óÅÂ
ÀϹݻó¾÷Áö¿ª, ¹æÈ­Áö±¸ °¡·Î±¸¿ªº° ÃÖ°í³ôÀÌ Á¦ÇÑÁö¿ª<°ÇÃà¹ý>, »ó´ëº¸È£±¸¿ª<±³À°È¯°æ º¸È£¿¡ °üÇÑ ¹ý·ü>, °ú¹Ð¾ïÁ¦±Ç¿ª<¼öµµ±ÇÁ¤ºñ°èȹ¹ý> ÀÓ.
9)°øºÎ¿ÍÀÇ Â÷ÀÌ
ÇØ´ç»çÇ× ¾øÀ½.
10)±âŸÂü°í»çÇ×(ÀÓ´ë°ü·Ê ¹× ±âŸ)
ÀÓ´ë°ü°è´Â ¹Ì»óÀÓ.
Âü°í
»çÇ×

º» °ÇÀº 6

°ÇÃ๰ÇöȲ

¼ÒÀçÁö ÀÎõ±¤¿ª½Ã ºÎÆò±¸ ºÎÆòµ¿ 371-16¹øÁö
´ëÁö¸éÀû 277.5§³
(84.09Æò)
¿¬¸éÀû 992.54§³
(300.77Æò)
°ÇÃà¸éÀû 213.73§³
(64.77Æò)
¿ëÀû·ü»êÁ¤
¿¬¸éÀû
992.54§³
(300.77Æò)
°ÇÆóÀ² 77.02% ¿ëÀû·ü 357.67%
Áö»óÃþ¼ö 6Ãþ ÁöÇÏÃþ¼ö  
ÁÖ¿ëµµ °øµ¿ÁÖÅà ±¸Á¶ ö±ÙÄÜÅ©¸®Æ®±¸Á¶
Âø°øÀÏÀÚ 2002.04.04 »ç¿ë½ÂÀÎÀÏÀÚ 2002.08.16
°ÇÃ๰Ãþº°ÇöȲ [º¸±â]


µî±âºÎµîº» ¿ä¾à(°Ç¹°)

  Á¢¼öÀÏÀÚ µî±â¸ñÀû/±Ç¸®ÀÚ ±Ç¸®±Ý¾× ±âÁØ
1 2014³â6¿ù9ÀÏ
¼ÒÀ¯±Ç
±èOO
¼Ò¸ê
2 2014³â5¿ù29ÀÏ
±ÙÀú´ç±Ç
(OOOO
30,000,000 ¼Ò¸ê±âÁØ
3 2014³â7¿ù7ÀÏ
±ÙÀú´ç±Ç
ÀÌOO
45,500,000 ¼Ò¸ê
4 2015³â6¿ù3ÀÏ
¾Ð·ù
¼­OOOO
¼Ò¸ê
5 2016³â1¿ù21ÀÏ
¾Ð·ù
±¹
¼Ò¸ê
6 2016³â12¿ù1ÀÏ
¾Ð·ù
ÀÎOOOO
¼Ò¸ê
7 2017³â2¿ù3ÀÏ
¾Ð·ù
±¹
¼Ò¸ê
8 2018³â5¿ù18ÀÏ
¾Ð·ù
±¹OOOO
¼Ò¸ê
9 2021³â6¿ù3ÀÏ
¾Ð·ù
ºÏO
¼Ò¸ê
10 2023³â11¿ù3ÀÏ
¾Ð·ù
ºÎOO
¼Ò¸ê
11 2025³â2¿ù18ÀÏ
°­Á¦°æ¸Å
¾çOO
¼Ò¸ê

ÀÓÂ÷ÀÎÇöȲ (¹è´ç¿ä±¸Á¾±âÀÏ: 2025-05-12)

ÀÓÂ÷ÀÎ ¿ëµµ/Á¡À¯ º¸Áõ±Ý/¿ù¼¼ ´ëÇ×·Â
ÀüÀÔÀÏ/È®Á¤ÀÏ ¹è´ç¿ä±¸ ºñ°í
¾çOO ÀüºÎ 98,000,000
O
2010. 11. 5.
2010. 11. 5.
2025. 3. 4. 2010. 11. 5. ~2025. 3. 4.
ºñ°í
(¸Å°¢¹°°Ç
¸í¼¼¼­)
¾çÀÀ¸ð:ÀÌ »ç°Ç °æ¸Å½Åûä±ÇÀÚÀÓ.

¿©ÀÇÁÖ°æ¸Å Á¶¾ð ÇÑ ¸¶µð


ÁÖÀÇ»çÇ× (ÃÖ¼±¼øÀ§ ¼³Á¤ÀÏ: 2014. 5. 29. ±ÙÀú´ç±Ç ¼³Á¤)

¸Å°¢À¸·Î ¼Ò¸êµÇÁö ¾Ê´Â µî±âºÎ±Ç¸®:
¸Å°¢À¸·Î ¼³Á¤µÈ °ÍÀ¸·Î º¸´Â Áö»ó±Ç:
¡Ø¹Ì³³°ü¸®ºñ(°ø¿ë) Àμö¿©ºÎ¸¦ ÀÔÂû Àü¿¡ È®ÀÎÇϽñ⠹ٶø´Ï´Ù

 

Áö¿ªºÐ¼®

ÁöÇÏö¸í Á÷¼±°Å¸®

Çб³¸í ÀüÈ­¹øÈ£ ÁÖ¼Ò Á÷¼±°Å¸®

¹ý¿ø

ÀÎõÁö¹æ¹ý¿ø (222-20)ÀÎõ±¤¿ª½Ã ¹ÌÃßȦ±¸ ¼Ò¼º·Î 163¹ø±æ 17(ÇÐÀ͵¿)
´ëÇ¥ : 032)860-1113~4
°üÇÒÁö¿ª : Áß±¸, µ¿±¸, ³²±¸, ¿¬¼ö±¸, ³²µ¿±¸, ºÎÆò±¸, °è¾ç±¸, ¼­±¸, ¿ËÁø±º, °­È­±º

µî±â¼Ò ÀÎõÁö¹æ¹ý¿ø º»¿ø µî±â±¹ (´ëÇ¥:1544-0773, ÆÑ½º:(032)620-9099, ÀÎõ±¤¿ª½Ã ¹ÌÃßȦ±¸ °æ¿ø´ë·Î 881(Á־ȵ¿ 983))
¼¼¹«¼­ ºÏÀÎõ¼¼¹«¼­ (´ëÇ¥:032-540-62, ÆÑ½º:032-545-0411, ÀÎõ±¤¿ª½Ã °è¾ç±¸ È¿¼­·Î244(ÀÛÀüµ¿ 422-1) )

Àαٳ«ÂûÅë°è

±â°£ ¸Å°¢°Ç¼ö Æò±Õ°¨Á¤°¡
Æò±Õ¸Å°¢°¡
¸Å°¢°¡À²
Æò±ÕÀ¯Âû¼ö
3°³¿ù 63°Ç 228,285,714¿ø
169,220,535¿ø
68%
2.6ȸ
6°³¿ù 115°Ç 236,365,217¿ø
182,258,840¿ø
72%
2.4ȸ
12°³¿ù 197°Ç 262,741,117¿ø
212,003,373¿ø
76%
2.2ȸ


º» °æ¸ÅÁ¤º¸´Â ¹ý¿øÀÚ·á¿Í ÀÏÄ¡Çϵµ·Ï ÇÏ¿´À¸³ª ±Ç¸®»çÇ׺¯µ¿, ÀÔ·ÂÂø¿À µîÀÇ ¿øÀÎÀ¸·Î »ç½Ç°ú ´Ù¸¦ ¼ö ÀÖ½À´Ï´Ù. ÀÌ¿ë¾à°ü¿¡ ÀǰЏéÃ¥Á¶°ÇÀ¸·Î Á¦°øµÊÀ» ¾Ë¸®¸ç, °æ¸ÅÀÔÂû½Ã ¹Ýµå½Ã °ü·Ã °øºÎ¸¦ ÀçÈ®ÀÎÇϽñ⠹ٶø´Ï´Ù. º¸´Ù Æí¸®ÇÑ °æ¸ÅÁ¤º¸ Á¦°øÀ» À§ÇØ Áö¼ÓÀûÀ¸·Î °³¼±ÇϰڽÀ´Ï´Ù. ÀÌ¿ëÇØ Áּż­ °¨»çÇÕ´Ï´Ù.