·Î±×ÀÎ
1380
¿ÀÇǽºÅÚ
¼ö¿øÁö¹æ¹ý¿ø ¾È¾çÁö¿ø
 °¨Á¤°¡322,000,000 ¿ø
 ÃÖÀú°¡(51%) 164,864,000 ¿ø
 º¸Áõ±Ý(10%) 16,486,400 ¿ø
 Ã»±¸¾×299,397,504 ¿ø
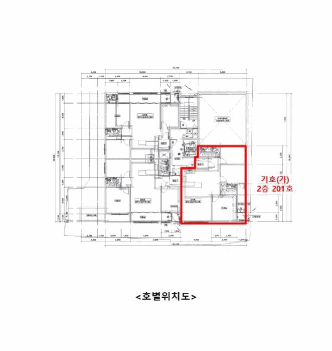
°æ±âµµ ±ºÆ÷½Ã »êº»·Î 184, 2Ãþ201È£ (´çµ¿,¾¾Æ¼Ä³½½)
°æ±âµµ ±ºÆ÷½Ã ´çµ¿ 748-25
»ç°Ç¹øÈ£ 2025Ÿ°æ100440
°æ¸ÅÁ¾·ùºÎµ¿»ê°­Á¦°æ¸Å
¸Å°¢´ë»óÅäÁö ¹× °Ç¹°Àϰý ¸Å°¢
¸Å°¢±âÀÏ    2026.06.16(È­) 10:00 ÀÔÂû 30ÀÏÀü    
ÅäÁö¸éÀû12.69§³(3.84 Æò)
°Ç¹°¸éÀû84.90§³(25.68 Æò)
乫/¼ÒÀ¯ÀÚÀÌOO / ÀÌOO
ä±ÇÀÚÁÖOOOOOOO
ÆäÀ̽ººÏ Æ®À§ÅÍ ±¸±Û+
īī¿À½ºÅ丮
īī¿ÀÅå sms¹®ÀÚº¸³»±â
 

±âÀϳ»¿ª

°æ°ú ³¯Â¥ Àú°¨ ÃÖÀú°¡ °á°ú
Á¢¼öÀÏ 2025-01-13 °æ¸ÅÁ¢¼ö
~1ÀÏ 
2025-01-14 °æ¸Å°³½Ã°áÁ¤
~114ÀÏ 
2025-05-07 ¹è´ç¿ä±¸Á¾±âÀÏ
~379ÀÏ 
2026-01-27 100%
322,000,000
º¯°æ
~414ÀÏ 
2026-03-03 100%
322,000,000
À¯Âû
~449ÀÏ 
2026-04-07 80%
257,600,000
À¯Âû
~484ÀÏ 
2026-05-12 64%
206,080,000
À¯Âû
~519ÀÏ 
2026-06-16 51%
164,864,000
ÁøÇà
¹°°Ç¸í¼¼¼­ ÇöȲÁ¶»ç¼­ ¹®°ÇÁ¢¼ö ¼Û´Þ³»¿ª

°¨Á¤Æò°¡ÇöȲ

¸ñ·Ï ÁÖ¼Ò ±¸Á¶/¿ëµµ/´ëÁö±Ç ¸éÀû ºñ°í
´ëÁö±Ç
´çµ¿ 748-25 550.5ºÐÀÇ 12.69 12.69 §³
(3.84Æò)
°Ç¹°
´çµ¿ 748-25 2Ãþ201È£ ö±ÙÄÜÅ©¸®Æ®±¸Á¶ 84.9 §³
(25.68Æò)
1) À§Ä¡/µµ½ÃÁö¿ª/ÀϹݻó¾÷Áö¿ª/ÁöÇÏö/³ë¼±¹ö½ºÁ¤·ùÀå/ö±ÙÄÜÅ©¸®Æ®±¸Á¶ ´õº¸±â
°¨Á¤Æò°¡ ¿äÇ×Ç¥
1)À§Ä¡ ¹× ÁÖÀ§È¯°æ
º»°ÇÀº °æ±âµµ ±ºÆ÷½Ã ´çµ¿ ¼ÒÀç '±ºÆ÷¿ª - ÁöÇÏö 1È£¼±' ºÏ¼­Ãø Àαٿ¡ À§Ä¡Çϰí ÀÖÀ¸¸ç, ÁÖÀ§´Â ¾ÆÆÄÆ®, ´Üµ¶ÁÖÅÃ, ´Ù¼¼´ëÁÖÅÃ, ¿ÀÇǽºÅÚ, ±Ù¸°»ýȰ½Ã¼³ µîÀÌ È¥ÀçÇÏ´Â Áö¿ªÀ¸·Î Á¦¹Ý ÁÖÀ§È¯°æÀº ´ëü·Î ¹«³­ÇÕ´Ï´Ù.
2)±³Åë»óȲ
º»°Ç±îÁö Â÷·® ÁøÀÔÀÌ °¡´ÉÇϰí Àαٿ¡ ³ë¼±¹ö½ºÁ¤·ùÀå ¹× ÁöÇÏö¿ª(±ºÆ÷¿ª, 1È£¼±)ÀÌ ¼ÒÀçÇÏ¿© ´ëÁß±³Åë ¿©°ÇÀº ´ëü·Î ¹«³­ÇÕ´Ï´Ù.
3)°Ç¹°ÀÇ ±¸Á¶
ö±ÙÄÜÅ©¸®Æ®±¸Á¶ (ö±Ù)ÄÜÅ©¸®Æ®(Æò½º¶óºê)ÁöºØ ÁöÇÏ1Ãþ/Áö»ó16Ãþ °Ç¹° ³» 2Ãþ 201È£·Î¼­,
(»ç¿ë½ÂÀÎÀÏ : 2018.03.13)
¿Üº® : ¼®ÀçºÙÀÓ, ¸ôÅ» À§ ÆäÀÎÆÃ ¸¶°¨ µî,
âȣ : »õ½Ã ¸¶°¨ µîÀÔ´Ï´Ù.
4)ÀÌ¿ë»óÅÂ
¾÷¹«½Ã¼³(¿ÀÇǽºÅÚ)·Î ÀÌ¿ë ÁßÀÔ´Ï´Ù.
5)¼³ºñ³»¿ª
À§»ý¼³ºñ, ±Þ¹è¼ö¼³ºñ, ³­¹æ¼³ºñ, ½Â°­±â¼³ºñ, ¼Ò¹æ¼³ºñ, ±â°è½Ä ÁÖÂ÷¼³ºñ µîÀÌ µÇ¾îÀÖ½À´Ï´Ù.
6)ÅäÁöÀÇ Çü»ó ¹× ÀÌ¿ë»óÅÂ
ÀÎÁ¢ ÅäÁö¿Í µî°íÆòźÇÑ Á¤¹æÇüÀÇ ÅäÁö·Î¼­, ¾÷¹«½Ã¼³, °øµ¿ÁÖÅÃ, Á¦1Á¾±Ù¸°»ýȰ½Ã¼³ µî °ÇºÎÁö·Î ÀÌ¿ë ÁßÀÔ´Ï´Ù.
7)ÀÎÁ¢ µµ·Î»óŵî
º»°Ç ³²Ãø ¹× ºÏÃøÀ¸·Î ³ëÆø ¾à 4m ³»¿ÜÀÇ ¾Æ½ºÆÈÆ® Æ÷Àåµµ·Î¿Í Á¢Çϰí ÀÖ½À´Ï´Ù.
8)ÅäÁöÀÌ¿ë°èȹ ¹× Á¦ÇÑ»óÅÂ
µµ½ÃÁö¿ª, ÀϹݻó¾÷Áö¿ª, ½Ã°¡Áö°æ°üÁö±¸(Áß½É)(2017-09-28), °¡Ãà»çÀ°Á¦Çѱ¸¿ª(2013-10-15)(ÀüºÎÁ¦Çѱ¸¿ª)<°¡ÃàºÐ´¢ÀÇ °ü¸® ¹× À̿뿡 °üÇÑ ¹ý·ü>, °ú¹Ð¾ïÁ¦Áö¿ª<»ê¾÷ÁýÀûȰ¼ºÈ­ ¹× °øÀå¼³¸³¿¡ °üÇÑ ¹ý·ü>, °ú¹Ð¾ïÁ¦Áö¿ª(2022-09-06)<»ê¾÷ÁýÀûȰ¼ºÈ­ ¹× °øÀå¼³¸³¿¡ °üÇÑ ¹ý·ü>, °ú¹Ð¾ïÁ¦±Ç¿ª(2022-09-06)<¼öµµ±ÇÁ¤ºñ°èȹ¹ý>ÀÔ´Ï´Ù.
9)°øºÎ¿ÍÀÇ Â÷ÀÌ
ƯÀÌ»çÇ× ¾ø½À´Ï´Ù.
10)±âŸÂü°í»çÇ×(ÀÓ´ë°ü·Ê ¹× ±âŸ)
ÀÓ´ë°ü°è ¹Ì»óÀÔ´Ï´Ù.
Âü°í
»çÇ×
-½Åûä±ÇÀÚ´Â ÀÓÂ÷±ÇÀÚ ¼±¹Î±ÔÀÇ ¿ì¼±º¯Á¦±Ç ½Â°èÀÎÀÓ -ÀÓÂ÷±Ç ½Â°èÀÎÀÎ ÁÖÅõµ½Ãº¸Áõ°ø»ç·ÎºÎÅÍ ¿ì¼±º¯Á¦±Ç¸¸ ÁÖÀåÇÏ°í ´ëÇ×·Â Æ÷±âÇϸç, ÀÓ´ëÂ÷º¸Áõ±Ý Àü¾× º¯Á¦¹ÞÁö ¸ø ÇØµµ ¸Å¼öÀο¡ ´ëÇÑ ÀÜÁ¸ ÀÓ´ëÂ÷º¸Áõ±Ý ¹Ýȯû±¸±ÇÀ» Æ÷±âÇϰí ÀÓÂ÷±Çµî±â ¸»¼Ò¿¡ µ¿ÀÇÇÑ´Ù´Â È®¾à¼­(2026.01.16.ÀÚ)°¡ Á¦ÃâµÊ

°ÇÃ๰ÇöȲ

¼ÒÀçÁö °æ±âµµ ±ºÆ÷½Ã ´çµ¿ 748-25¹øÁö
´ëÁö¸éÀû 550.5§³
(166.82Æò)
¿¬¸éÀû 4485.26§³
(1359.17Æò)
°ÇÃà¸éÀû 369.46§³
(111.96Æò)
¿ëÀû·ü»êÁ¤
¿¬¸éÀû
4397.52§³
(1332.58Æò)
°ÇÆóÀ² 67.11% ¿ëÀû·ü 798.82%
Áö»óÃþ¼ö 16Ãþ ÁöÇÏÃþ¼ö 1Ãþ
ÁÖ¿ëµµ ¾÷¹«½Ã¼³ ±¸Á¶ ö±ÙÄÜÅ©¸®Æ®±¸Á¶
Âø°øÀÏÀÚ 2017.04.13 »ç¿ë½ÂÀÎÀÏÀÚ 2018.03.13
°ÇÃ๰Ãþº°ÇöȲ [º¸±â]


±¹ÅäºÎ½Ç°Å·¡°¡ °æ±âµµ ±ºÆ÷½Ã ´çµ¿

¡Ü ¸Å¸Å

¸éÀû(§³), ±Ý¾×(¸¸¿ø)

¡Ü Àü¼¼

¸éÀû(§³), ±Ý¾×(¸¸¿ø)

°è¾àÀϰǹ°¸íĪÃþÀü¿ëº¸Áõ±Ý¿ù¼¼°ÇÃà
26.01.04¾¾Æ¼Ä³½½284.3525,00002018
25.10.02¾¾Æ¼Ä³½½984.3528,00002018
25.09.11¾¾Æ¼Ä³½½784.927,20002018

µî±âºÎµîº» ¿ä¾à(°Ç¹°)

  Á¢¼öÀÏÀÚ µî±â¸ñÀû/±Ç¸®ÀÚ ±Ç¸®±Ý¾× ±âÁØ
1 2020³â3¿ù16ÀÏ
¼ÒÀ¯±Ç
ÀÌOO
¼Ò¸ê
2 2022³â12¿ù7ÀÏ
¾àÁ¤/±ÝÁö»çÇ×/ȯ¸ÅƯ¾à
Àμö
3 2023³â5¿ù25ÀÏ
¾Ð·ù
±¹
¼Ò¸ê±âÁØ
4 2023³â5¿ù26ÀÏ
°¡¾Ð·ù
ÁÖOOOO
1,011,000,000 ¼Ò¸ê
5 2024³â2¿ù2ÀÏ
¾Ð·ù
¼­OOOO
¼Ò¸ê
6 2024³â2¿ù20ÀÏ
ÀÓÂ÷±Ç¼³Á¤
¼±OO
287,000,000 ¼Ò¸ê
7 2025³â1¿ù14ÀÏ
°­Á¦°æ¸Å
ÁÖOOOO
¼Ò¸ê
8 2025³â3¿ù5ÀÏ
¾Ð·ù
±¹OOOO
¼Ò¸ê

ÀÓÂ÷ÀÎÇöȲ (¹è´ç¿ä±¸Á¾±âÀÏ: 2025-05-07)

ÀÓÂ÷ÀÎ ¿ëµµ/Á¡À¯ º¸Áõ±Ý/¿ù¼¼ ´ëÇ×·Â
ÀüÀÔÀÏ/È®Á¤ÀÏ ¹è´ç¿ä±¸ ºñ°í
¼±OO 201 287,000,000
O
2020.02.14
2020.01.07(2. 13,000¸¸¿ø Áõ¾×ºÐ¿¡´ëÇÏ¿©2022.02.24)
2020.02.14~

¿©ÀÇÁÖ°æ¸Å Á¶¾ð ÇÑ ¸¶µð

¼±¼øÀ§ ÀÓÂ÷±Çµî±â°¡ µÇ¾î ÀÖ½À´Ï´Ù
´ëÇ×·ÂÀÌ ÀÖ´Â ¼±¼øÀ§ ÀÓÂ÷±Çµî±â ±Ç¸®ÀÚ°¡ ¹è´çÀ» Àü¾× ¹ÞÁö ¸øÇÒ °æ¿ì ³«ÂûÀÚ°¡ ÀÜ¿© º¸Áõ±ÝÀ» ÀμöÇØ¾ßÇÏ´Â °æ¿ìµµ ÀÖ½À´Ï´Ù.

ÁÖÀÇ»çÇ× (ÃÖ¼±¼øÀ§ ¼³Á¤ÀÏ: 2023.05.25. ¾Ð·ù ¼³Á¤)

¸Å°¢À¸·Î ¼Ò¸êµÇÁö ¾Ê´Â µî±âºÎ±Ç¸®:
¸Å°¢À¸·Î ¼³Á¤µÈ °ÍÀ¸·Î º¸´Â Áö»ó±Ç:
-½Åûä±ÇÀÚ´Â ÀÓÂ÷±ÇÀÚ ¼±¹Î±ÔÀÇ ¿ì¼±º¯Á¦±Ç ½Â°èÀÎÀÓ -ÀÓÂ÷±Ç ½Â°èÀÎÀÎ ÁÖÅõµ½Ãº¸Áõ°ø»ç·ÎºÎÅÍ ¿ì¼±º¯Á¦±Ç¸¸ ÁÖÀåÇÏ°í ´ëÇ×·Â Æ÷±âÇϸç, ÀÓ´ëÂ÷º¸Áõ±Ý Àü¾× º¯Á¦¹ÞÁö ¸ø ÇØµµ ¸Å ¼öÀο¡ ´ëÇÑ ÀÜÁ¸ ÀÓ´ëÂ÷º¸Áõ±Ý ¹Ýȯû±¸±ÇÀ» Æ÷±âÇϰí ÀÓÂ÷±Çµî±â ¸»¼Ò¿¡ µ¿ÀÇÇÑ´Ù´Â È®¾à¼­(2026.01.16.ÀÚ)°¡ Á¦ÃâµÊ
¡Ø¹Ì³³°ü¸®ºñ(°ø¿ë) Àμö¿©ºÎ¸¦ ÀÔÂû Àü¿¡ È®ÀÎÇϽñ⠹ٶø´Ï´Ù

 

Áö¿ªºÐ¼®

ÁöÇÏö¸í Á÷¼±°Å¸®

Çб³¸í ÀüÈ­¹øÈ£ ÁÖ¼Ò Á÷¼±°Å¸®

¹ý¿ø

¼ö¿øÁö¹æ¹ý¿ø ¾È¾çÁö¿ø (140-54)°æ±âµµ ¾È¾ç½Ã µ¿¾È±¸ °üÆò·Î 212¹ø±æ 70 (°ü¾çµ¿)
´ëÇ¥ : 031)8086-1114, ¾ß°£ : 031)8086-1380
°üÇÒÁö¿ª : ¾È¾ç½Ã, ±ºÆ÷½Ã, ÀǿսÃ, °úõ½Ã

µî±â¼Ò    (´ëÇ¥:, ÆÑ½º:, )
¼¼¹«¼­ ¾È¾ç¼¼¹«¼­ (´ëÇ¥:031-467-12, ÆÑ½º:031-467-1300, °æ±âµµ ¾È¾ç½Ã ¸¸¾È±¸ ³Ãõ·Î 83 (¾È¾çµ¿))

Àαٳ«ÂûÅë°è

±â°£ ¸Å°¢°Ç¼ö Æò±Õ°¨Á¤°¡
Æò±Õ¸Å°¢°¡
¸Å°¢°¡À²
Æò±ÕÀ¯Âû¼ö
3°³¿ù 4°Ç 272,250,000¿ø
204,738,000¿ø
64%
5.3ȸ
6°³¿ù 5°Ç 261,800,000¿ø
186,318,400¿ø
62%
4.8ȸ
12°³¿ù 13°Ç 261,769,231¿ø
187,009,108¿ø
67%
5.7ȸ


º» °æ¸ÅÁ¤º¸´Â ¹ý¿øÀÚ·á¿Í ÀÏÄ¡Çϵµ·Ï ÇÏ¿´À¸³ª ±Ç¸®»çÇ׺¯µ¿, ÀÔ·ÂÂø¿À µîÀÇ ¿øÀÎÀ¸·Î »ç½Ç°ú ´Ù¸¦ ¼ö ÀÖ½À´Ï´Ù. ÀÌ¿ë¾à°ü¿¡ ÀǰЏéÃ¥Á¶°ÇÀ¸·Î Á¦°øµÊÀ» ¾Ë¸®¸ç, °æ¸ÅÀÔÂû½Ã ¹Ýµå½Ã °ü·Ã °øºÎ¸¦ ÀçÈ®ÀÎÇϽñ⠹ٶø´Ï´Ù. º¸´Ù Æí¸®ÇÑ °æ¸ÅÁ¤º¸ Á¦°øÀ» À§ÇØ Áö¼ÓÀûÀ¸·Î °³¼±ÇϰڽÀ´Ï´Ù. ÀÌ¿ëÇØ Áּż­ °¨»çÇÕ´Ï´Ù.