·Î±×ÀÎ
1109
´Ù¼¼´ë(ºô¶ó)
¼ö¿øÁö¹æ¹ý¿ø ¼º³²Áö¿ø
 °¨Á¤°¡304,000,000 ¿ø
 ÃÖÀú°¡(70%) 212,800,000 ¿ø
 º¸Áõ±Ý(10%) 21,280,000 ¿ø
 Ã»±¸¾×249,317,732 ¿ø
°æ±âµµ ±¤Áֽà ÃÊ¿ùÀ¾ Áö¿ù¸® 757-132 ±×¶ó½Ã¾Æ 407µ¿ 3Ãþ302È£
»ç°Ç¹øÈ£ 2025Ÿ°æ52062
°æ¸ÅÁ¾·ùºÎµ¿»êÀÓÀǰæ¸Å
¸Å°¢´ë»óÅäÁö ¹× °Ç¹°Àϰý ¸Å°¢
¸Å°¢±âÀÏ    2026.02.27(±Ý) 10:00 ÀÔÂû 2ÀÏÀü    
ÅäÁö¸éÀû68.50§³(20.72 Æò)
°Ç¹°¸éÀû61.09§³(18.48 Æò)
乫/¼ÒÀ¯ÀÚÀÌOO / ÀÌOO
ä±ÇÀÚ³óOOOOOOOOOOO
ÆäÀ̽ººÏ Æ®À§ÅÍ ±¸±Û+
īī¿À½ºÅ丮
īī¿ÀÅå sms¹®ÀÚº¸³»±â
 

±âÀϳ»¿ª

°æ°ú ³¯Â¥ Àú°¨ ÃÖÀú°¡ °á°ú
Á¢¼öÀÏ 2025-04-22 °æ¸ÅÁ¢¼ö
~1ÀÏ 
2025-04-23 °æ¸Å°³½Ã°áÁ¤
~69ÀÏ 
2025-06-30 ¹è´ç¿ä±¸Á¾±âÀÏ
~279ÀÏ 
2026-01-26 100%
304,000,000
À¯Âû
~311ÀÏ 
2026-02-27 70%
212,800,000
ÁøÇà
¹°°Ç¸í¼¼¼­ ÇöȲÁ¶»ç¼­ ¹®°ÇÁ¢¼ö ¼Û´Þ³»¿ª

°¨Á¤Æò°¡ÇöȲ

¸ñ·Ï ÁÖ¼Ò ±¸Á¶/¿ëµµ/´ëÁö±Ç ¸éÀû ºñ°í
´ëÁö±Ç
Áö¿ù¸® 757-132 548ºÐÀÇ 68.5 68.5 §³
(20.72Æò)
°Ç¹°
Áö¿ù¸® 757-132 407µ¿ 3Ãþ302È£ ö±ÙÄÜÅ©¸®Æ®±¸Á¶ 61.085 §³
(18.48Æò)
1) À§Ä¡/°èȹ°ü¸®Áö¿ª/º¸Àü»êÁö/¹ö½ºÁ¤·ùÀå/ö±ÙÄÜÅ©¸®Æ®±¸Á¶/°æ»çÁöºØ ´õº¸±â
°¨Á¤Æò°¡ ¿äÇ×Ç¥
1)À§Ä¡ ¹× ÁÖÀ§È¯°æ
º»°ÇÀº °æ±âµµ ±¤Áֽà ÃÊ¿ùÀ¾ Áö¿ù¸® ¼ÒÀç""Áö¿ù3¸® ¸¶À»È¸°ü"" Àαٿ¡ À§Ä¡Çϸç, ÀαÙÀº ´Ù¼¼´ëÁÖÅÃ, ´Üµ¶ÁÖÅÃ, ±Ù¸°»ýȰ½Ã¼³ µîÀÌ ¼ÒÀçÇÏ´Â Áö¿ªÀÓ.

2)±³Åë»óȲ
º»°Ç±îÁö Â÷·® ÃâÀÔ °¡´ÉÇϸç, ºñ±³Àû Àαٿ¡ ¹ö½ºÁ¤·ùÀå µîÀÌ ¼ÒÀçÇÏ´Â µî Àü¹ÝÀûÀÎ ´ëÁß±³Åë »çÁ¤Àº º¸ÅëÀÓ.
3)°Ç¹°ÀÇ ±¸Á¶
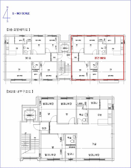
±âÈ£ °¡´Â ö±ÙÄÜÅ©¸®Æ®±¸Á¶ ±âŸÁöºØ(°æ»çÁöºØ) Áö»ó1Ãþ/Áö»ó4Ãþ °ÇÁß Á¦3Ãþ Á¦302È£·Î¼­,

¿Üº® : º®µ¹Å¸ÀϺÙÀÓ µî ¸¶°¨,
âȣ : ¼¦½Ãâȣ µî ¸¶°¨.
4)ÀÌ¿ë»óÅÂ
±âÈ£°¡´Â °øºÎ»ó ´Ù¼¼´ëÁÖÅÃÀ¸·Î µÇ¾îÀÖÀ½.
5)¼³ºñ³»¿ª
À§»ý¼³ºñ, ±Þ¹è¼ö¼³ºñ, ³­¹æ¼³ºñ, ½Â°­±â µîÀÌ ±¸ºñµÇ¾î ÀÖÀ½.
6)ÅäÁöÀÇ Çü»ó ¹× ÀÌ¿ë»óÅÂ
´ëü·Î µ¿ÃøÇÏÇâÀ¸·Î ¿Ï¸¸ÇÑ °æ»çÁø »ç´Ù¸®ÇüÀ¸·Î, ´Ù¼¼´ëÁÖÅà °ÇºÎÁö·Î ÀÌ¿ëÁßÀÓ.
7)ÀÎÁ¢ µµ·Î»óŵî
º»°Ç ³²ÃøÀ¸·Î ³ëÆø ¾à 6M ³»¿ÜÀÇ Æ÷Àåµµ·Î¿¡ Á¢ÇÔ.
8)ÅäÁöÀÌ¿ë°èȹ ¹× Á¦ÇÑ»óÅÂ
°èȹ°ü¸®Áö¿ª(°èȹ°ü¸®), ¼ºÀå°ü¸®°èȹ±¸¿ª(¼ºÀå°ü¸®Áö¿ª(ÁÖ°ÅÇü)), °¡Ãà»çÀ°Á¦Çѱ¸¿ª(ÀϺÎ
Á¦Çѱ¸¿ª)<°¡ÃàºÐ´¢ÀÇ °ü¸® ¹× À̿뿡 °üÇÑ ¹ý·ü>, ¹èÃâ½Ã¼³¼³Ä¡Á¦ÇÑÁö¿ª<¹°È¯°æº¸Àü¹ý>, ÁØ
º¸Àü»êÁö<»êÁö°ü¸®¹ý>, ÀÚ¿¬º¸Àü±Ç¿ª<¼öµµ±ÇÁ¤ºñ°èȹ¹ý>, °øÀå¼³¸³½ÂÀÎÁö¿ª<¼öµµ¹ý>, Ưº°´ë
Ã¥Áö¿ª<ȯ°æÁ¤Ã¥±âº»¹ý>ÀÓ.
9)°øºÎ¿ÍÀÇ Â÷ÀÌ
-.
10)±âŸÂü°í»çÇ×(ÀÓ´ë°ü·Ê ¹× ±âŸ)
ÀÓ´ë°ü°è´Â ¹Ì»óÀÓ.
Âü°í
»çÇ×
´Ù¼¼´ëÁÖÅÃÀ¸·Î ÀÌ¿ëÁßÀÓ.

°ÇÃ๰ÇöȲ

¼ÒÀçÁö °æ±âµµ ±¤Áֽà ÃÊ¿ùÀ¾ Áö¿ù¸® 757-132¹øÁö
´ëÁö¸éÀû 548§³
(166.06Æò)
¿¬¸éÀû 547.48§³
(165.9Æò)
°ÇÃà¸éÀû 199.91§³
(60.58Æò)
¿ëÀû·ü»êÁ¤
¿¬¸éÀû
547.48§³
(165.9Æò)
°ÇÆóÀ² 36.48% ¿ëÀû·ü 99.91%
Áö»óÃþ¼ö 4Ãþ ÁöÇÏÃþ¼ö  
ÁÖ¿ëµµ °øµ¿ÁÖÅà ±¸Á¶ ö±ÙÄÜÅ©¸®Æ®±¸Á¶
Âø°øÀÏÀÚ 2021.05.06 »ç¿ë½ÂÀÎÀÏÀÚ 2021.11.18
°ÇÃ๰Ãþº°ÇöȲ [º¸±â]


±¹ÅäºÎ½Ç°Å·¡°¡ °æ±âµµ ±¤Áֽà ÃÊ¿ùÀ¾

¡Ü ¸Å¸Å

¸éÀû(§³), ±Ý¾×(¸¸¿ø)

¡Ü Àü¼¼

¸éÀû(§³), ±Ý¾×(¸¸¿ø)

°è¾àÀϰǹ°¸íĪÃþ¿¬¸éÀûº¸Áõ±Ý¿ù¼¼°ÇÃà
26.02.11¸®¹öºô(Aµ¿)355.4114,400252014
26.02.10Ƽ¾Æ¸ðºô459.4313,0002014
26.02.07ÇѲɺô¶ó´Ùµ¿161.542,500502007
26.02.04¶ó¿ÂÆÓ¸®½º(106µ¿)-184.7718,0002017
26.02.04´õÇÁ¶óÀÓ204µ¿273.6725,5002018
¢Ñ ´õº¸±â

µî±âºÎµîº» ¿ä¾à(°Ç¹°)

  Á¢¼öÀÏÀÚ µî±â¸ñÀû/±Ç¸®ÀÚ ±Ç¸®±Ý¾× ±âÁØ
1 2022³â1¿ù12ÀÏ
¼ÒÀ¯±Ç
ÀÌOO
¼Ò¸ê
2 2022³â1¿ù12ÀÏ
±ÙÀú´ç±Ç
³óOOOO
288,000,000 ¼Ò¸ê±âÁØ
3 2025³â4¿ù23ÀÏ
ÀÓÀǰæ¸Å
³óOOOO
¼Ò¸ê

ÀÓÂ÷ÀÎÇöȲ (¹è´ç¿ä±¸Á¾±âÀÏ: 2025-06-30)


Á¶»çµÈ ÀÓÂ÷³»¿ªÀÌ ¾ø½À´Ï´Ù


¿©ÀÇÁÖ°æ¸Å Á¶¾ð ÇÑ ¸¶µð


ÁÖÀÇ»çÇ× (ÃÖ¼±¼øÀ§ ¼³Á¤ÀÏ: 2022. 1. 12. ±ÙÀú´ç±Ç ¼³Á¤)

¸Å°¢À¸·Î ¼Ò¸êµÇÁö ¾Ê´Â µî±âºÎ±Ç¸®:
¸Å°¢À¸·Î ¼³Á¤µÈ °ÍÀ¸·Î º¸´Â Áö»ó±Ç:
´Ù¼¼´ëÁÖÅÃÀ¸·Î ÀÌ¿ëÁßÀÓ.
¡Ø¹Ì³³°ü¸®ºñ(°ø¿ë) Àμö¿©ºÎ¸¦ ÀÔÂû Àü¿¡ È®ÀÎÇϽñ⠹ٶø´Ï´Ù

 

Áö¿ªºÐ¼®

ÁöÇÏö¸í Á÷¼±°Å¸®

Çб³¸í ÀüÈ­¹øÈ£ ÁÖ¼Ò Á÷¼±°Å¸®

¹ý¿ø

¼ö¿øÁö¹æ¹ý¿ø ¼º³²Áö¿ø (131-43)°æ±âµµ ¼º³²½Ã ¼öÁ¤±¸ »ê¼º´ë·Î 451 (´Ü´ëµ¿)
´ëÇ¥ : 031)737-1558, ¾ß°£ : 031)737-1120
°üÇÒÁö¿ª : ¼º³²½Ã, ±¤ÁÖ½Ã, Çϳ²½Ã

µî±â¼Ò ¼ö¿øÁö¹æ¹ý¿ø ¼º³²Áö¿ø ±¤ÁÖµî±â¼Ò (´ëÇ¥:1544-0773, ÆÑ½º:(031)765-2388, °æ±âµµ ±¤Áֽà ÇàÁ¤Å¸¿î·Î 49-15 (¼ÛÁ¤µ¿ 346-4))
¼¼¹«¼­ °æ±â±¤ÁÖ¼¼¹«¼­ (´ëÇ¥:031-880-92, ÆÑ½º:031-769-0417, °æ±âµµ ±¤Áֽà ¹®È­·Î 127)

Àαٳ«ÂûÅë°è

±â°£ ¸Å°¢°Ç¼ö Æò±Õ°¨Á¤°¡
Æò±Õ¸Å°¢°¡
¸Å°¢°¡À²
Æò±ÕÀ¯Âû¼ö


º» °æ¸ÅÁ¤º¸´Â ¹ý¿øÀÚ·á¿Í ÀÏÄ¡Çϵµ·Ï ÇÏ¿´À¸³ª ±Ç¸®»çÇ׺¯µ¿, ÀÔ·ÂÂø¿À µîÀÇ ¿øÀÎÀ¸·Î »ç½Ç°ú ´Ù¸¦ ¼ö ÀÖ½À´Ï´Ù. ÀÌ¿ë¾à°ü¿¡ ÀǰЏéÃ¥Á¶°ÇÀ¸·Î Á¦°øµÊÀ» ¾Ë¸®¸ç, °æ¸ÅÀÔÂû½Ã ¹Ýµå½Ã °ü·Ã °øºÎ¸¦ ÀçÈ®ÀÎÇϽñ⠹ٶø´Ï´Ù. º¸´Ù Æí¸®ÇÑ °æ¸ÅÁ¤º¸ Á¦°øÀ» À§ÇØ Áö¼ÓÀûÀ¸·Î °³¼±ÇϰڽÀ´Ï´Ù. ÀÌ¿ëÇØ Áּż­ °¨»çÇÕ´Ï´Ù.