·Î±×ÀÎ
1273
´Ù¼¼´ë(ºô¶ó)
ÀÎõÁö¹æ¹ý¿ø
 °¨Á¤°¡176,000,000 ¿ø
 ÃÖÀú°¡(34%) 60,368,000 ¿ø
 º¸Áõ±Ý(10%) 6,036,800 ¿ø
 Ã»±¸¾×155,000,000 ¿ø
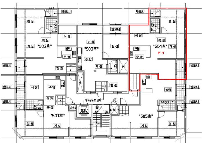
ÀÎõ±¤¿ª½Ã ¼­±¸ ¸¶Àüµ¿ 988-8 Ÿ¿öÆÓ¸®½º 1µ¿ 5Ãþ504È£
»ç°Ç¹øÈ£ 2025Ÿ°æ508369
°æ¸ÅÁ¾·ùºÎµ¿»ê°­Á¦°æ¸Å
¸Å°¢´ë»óÅäÁö ¹× °Ç¹°Àϰý ¸Å°¢
¸Å°¢±âÀÏ    2026.05.11(¿ù) 10:00 ÀÔÂû 22ÀÏÀü    
ÅäÁö¸éÀû20.25§³(6.13 Æò)
°Ç¹°¸éÀû49.70§³(15.03 Æò)
乫/¼ÒÀ¯ÀÚÁ¶OO / Á¶OO
ä±ÇÀÚ³²OO (OOO OOOOOO)
ÆäÀ̽ººÏ Æ®À§ÅÍ ±¸±Û+
īī¿À½ºÅ丮
īī¿ÀÅå sms¹®ÀÚº¸³»±â
 

±âÀϳ»¿ª

°æ°ú ³¯Â¥ Àú°¨ ÃÖÀú°¡ °á°ú
Á¢¼öÀÏ 2025-03-19 °æ¸ÅÁ¢¼ö
~2ÀÏ 
2025-03-21 °æ¸Å°³½Ã°áÁ¤
~85ÀÏ 
2025-06-12 ¹è´ç¿ä±¸Á¾±âÀÏ
~310ÀÏ 
2026-01-23 100%
176,000,000
À¯Âû
~352ÀÏ 
2026-03-06 70%
123,200,000
À¯Âû
~385ÀÏ 
2026-04-08 49%
86,240,000
À¯Âû
~418ÀÏ 
2026-05-11 34%
60,368,000
ÁøÇà
¹°°Ç¸í¼¼¼­ ÇöȲÁ¶»ç¼­ ¹®°ÇÁ¢¼ö ¼Û´Þ³»¿ª

°¨Á¤Æò°¡ÇöȲ

¸ñ·Ï ÁÖ¼Ò ±¸Á¶/¿ëµµ/´ëÁö±Ç ¸éÀû ºñ°í
´ëÁö±Ç
¸¶Àüµ¿ 988-8 675.3ºÐÀÇ 20.2495 20.2495 §³
(6.13Æò)
°Ç¹°
¸¶Àüµ¿ 988-8 1µ¿ 5Ãþ504È£ ö±ÙÄÜÅ©¸®Æ®±¸Á¶ 49.7006 §³
(15.03Æò)
1) À§Ä¡/ÁØÁÖ°ÅÁö¿ª/Áö±¸´ÜÀ§°èȹ±¸¿ª/¹ö½ºÁ¤·ùÀå/ö±ÙÄÜÅ©¸®Æ®Á¶ ´õº¸±â
°¨Á¤Æò°¡ ¿äÇ×Ç¥
1)À§Ä¡ ¹× ÁÖÀ§È¯°æ
º»°ÇÀº ÀÎõ±¤¿ª½Ã ¼­±¸ ¸¶Àüµ¿ ¼ÒÀç '°Ë´Ü°íµîÇб³' ¼­Ãø Àαٿ¡ À§Ä¡Çϸç, ÁÖÀ§´Â
º»°Ç À¯»ç °øµ¿ÁÖÅÃ(µµ½ÃÇü »ýȰÁÖÅà µî), ´Üµ¶ÁÖÅà ¹× ±Ù¸°»ýȰ½Ã¼³ µîÀÌ ¼ÒÀçÇÔ.
2)±³Åë»óȲ
º»°Ç±îÁö Â÷·® ÁøÃâÀÔ °¡´ÉÇϸç, Àαٿ¡ ¹ö½ºÁ¤·ùÀåÀÌ ¼ÒÀçÇÏ´Â µî Á¦¹Ý ´ëÁß±³Åë»óȲÀº
¹«³­½ÃµÊ.
3)°Ç¹°ÀÇ ±¸Á¶
ö±ÙÄÜÅ©¸®Æ®Á¶, ö±ÙÄÜÅ©¸®Æ®(ÆòÁöºØ)ÁöºØ 7Ãþ °Ç¹°³» Á¦5Ãþ Á¦504È£·Î¼­

¿Üº® : µå¶óÀ̺ñÆ® ¸¶°¨ µî
âȣ : »õ½Ã âȣÀÓ.
4)ÀÌ¿ë»óÅÂ
°øºÎ»ó 'µµ½ÃÇü »ýȰÁÖÅÃ'ÀÓ.
5)¼³ºñ³»¿ª
±âº»ÀûÀÎ À§»ý¼³ºñ, ±Þ¹è¼ö¼³ºñ, ³­¹æ¼³ºñ, ½Â°­±â ¼³ºñ µîÀÌ ÀÖÀ½.
6)ÅäÁöÀÇ Çü»ó ¹× ÀÌ¿ë»óÅÂ
¼¼ÀåÇüÀÇ ÅäÁö·Î¼­ '°øµ¿ÁÖÅÃ, ±Ù¸°»ýȰ½Ã¼³' °ÇºÎÁö·Î ÀÌ¿ëÁßÀÓ.
7)ÀÎÁ¢ µµ·Î»óŵî
ºÏ¼­ÃøÀ¸·Î Æø ¾à 20¹ÌÅÍ ³»¿Ü ¹× ³²¼­ÃøÀ¸·Î Æø ¾à 6¹ÌÅÍ ³»¿ÜÀÇ ¾Æ½ºÆÈÆ® Æ÷Àåµµ·Î¿¡
°¢°¢ Á¢Çϰí ÀÖÀ½.
8)ÅäÁöÀÌ¿ë°èȹ ¹× Á¦ÇÑ»óÅÂ
¸¶Àüµ¿ 988-8 :ÁØÁÖ°ÅÁö¿ª(2013-05-27), Áö±¸´ÜÀ§°èȹ±¸¿ª(°Ë´Ü2±¸È¹Á¤¸®),
¼Ò·Î1·ù(Æø 10m~12m)(2013-05-27)(Á¢ÇÕ), Ư¼öµµ·Î(º¸ÇàÀÚÀü¿ëµµ·Î)(2013-05-27)(Á¢ÇÕ),
°¡Ãà»çÀ°Á¦Çѱ¸¿ª(ÀÎõ±¤¿ª½Ã ¼­±¸Á¶·Ê Á¦1749È£)<°¡ÃàºÐ´¢ÀÇ °ü¸® ¹× À̿뿡 °üÇÑ ¹ý·ü>,
»ó´ëº¸È£±¸¿ª([´É³»ÃʵîÇб³ ¹× º´¼³À¯Ä¡¿ø(¹®ÀÇ: ¼­ºÎ±³À°Áö¿øÃ» Æò»ý±³À°°Ç°­°ú
(032-560-6659))])<±³À°È¯°æ º¸È£¿¡ °üÇÑ ¹ý·ü>,
»ó´ëº¸È£±¸¿ª(ÀÎõ¼­ºÎ±³À°Ã»Æò»ý±³À°°ú¹®ÀÇ560-6659)<±³À°È¯°æ º¸È£¿¡ °üÇÑ ¹ý·ü>,
¼ºÀå°ü¸®±Ç¿ª<¼öµµ±ÇÁ¤ºñ°èȹ¹ý>
9)°øºÎ¿ÍÀÇ Â÷ÀÌ
¾øÀ½.
10)±âŸÂü°í»çÇ×(ÀÓ´ë°ü·Ê ¹× ±âŸ)
¹Ì»óÀÓ.
Âü°í
»çÇ×
°øºÎ»ó 'µµ½ÃÇü »ýȰÁÖÅÃ'ÀÓ
º»°Ç ºÎµ¿»êÀº ÁÖ¼ÒÁöÀÇ 7Ãþ °ø

°ÇÃ๰ÇöȲ

¼ÒÀçÁö ÀÎõ±¤¿ª½Ã ¼­±¸ ¸¶Àüµ¿ 988-8¹øÁö
´ëÁö¸éÀû 675.3§³
(204.64Æò)
¿¬¸éÀû 2026.1625§³
(613.99Æò)
°ÇÃà¸éÀû 398.29§³
(120.69Æò)
¿ëÀû·ü»êÁ¤
¿¬¸éÀû
2009.6505§³
(608.99Æò)
°ÇÆóÀ² 58.98% ¿ëÀû·ü 297.59%
Áö»óÃþ¼ö 7Ãþ ÁöÇÏÃþ¼ö 1Ãþ
ÁÖ¿ëµµ °øµ¿ÁÖÅà ±¸Á¶ ö°ñÄÜÅ©¸®Æ®±¸Á¶
Âø°øÀÏÀÚ 2014.07.09 »ç¿ë½ÂÀÎÀÏÀÚ 2014.11.26
°ÇÃ๰Ãþº°ÇöȲ [º¸±â]


±¹ÅäºÎ½Ç°Å·¡°¡ ÀÎõ±¤¿ª½Ã ¼­±¸ ¸¶Àüµ¿

¡Ü ¸Å¸Å

¸éÀû(§³), ±Ý¾×(¸¸¿ø)

¡Ü Àü¼¼

¸éÀû(§³), ±Ý¾×(¸¸¿ø)

°è¾àÀϰǹ°¸íĪÃþ¿¬¸éÀûº¸Áõ±Ý¿ù¼¼°ÇÃà
26.04.16¿¤¸®½Ã¾È264.4612,7262012
26.04.11½Âº¸ÁÖÅÃ(3,5µ¿)-141.55500331994
26.04.09Èú½ºÅ¸¿î559.8615,5002014
26.04.09â¿ì¾ÆÀ̺ô(405µ¿)670.553,000702014
26.04.07ÇØÇÇÇϿ콺101µ¿549.628,80002011
¢Ñ ´õº¸±â

µî±âºÎµîº» ¿ä¾à(°Ç¹°)

  Á¢¼öÀÏÀÚ µî±â¸ñÀû/±Ç¸®ÀÚ ±Ç¸®±Ý¾× ±âÁØ
1 2020³â11¿ù12ÀÏ
¼ÒÀ¯±Ç
Á¶OO
¼Ò¸ê
2 2020³â12¿ù16ÀÏ
±ÙÀú´ç±Ç
¹èOO
20,000,000 ¼Ò¸ê±âÁØ
3 2023³â1¿ù12ÀÏ
¾Ð·ù
±¹
¼Ò¸ê
4 2023³â5¿ù24ÀÏ
°¡¾Ð·ù
ÁÖOOOO
399,000,000 ¼Ò¸ê
5 2023³â6¿ù7ÀÏ
¾Ð·ù
±¹
¼Ò¸ê
6 2024³â2¿ù20ÀÏ
°¡¾Ð·ù
¼­OOOO
90,000,000 ¼Ò¸ê
7 2024³â8¿ù5ÀÏ
¾Ð·ù
ºÎOO
¼Ò¸ê
8 2024³â11¿ù7ÀÏ
ÀÓÂ÷±Ç¼³Á¤
³²OO
155,000,000 ¼Ò¸ê
9 2025³â3¿ù21ÀÏ
°­Á¦°æ¸Å
³²OO
¼Ò¸ê

ÀÓÂ÷ÀÎÇöȲ (¹è´ç¿ä±¸Á¾±âÀÏ: 2025-06-12)

ÀÓÂ÷ÀÎ ¿ëµµ/Á¡À¯ º¸Áõ±Ý/¿ù¼¼ ´ëÇ×·Â
ÀüÀÔÀÏ/È®Á¤ÀÏ ¹è´ç¿ä±¸ ºñ°í
LOOOOOOOO
O
2020.11.11
NOOOOOOOOOOO
X
2021.06.18
³²OOOOOOOOOOOOO 504È£ÀüºÎ 155,000,000
O
2020.10.29.
2020.09.29.
2025.4.9. 2020.10.27 ~2022.10.26.
ºñ°í
(¸Å°¢¹°°Ç
¸í¼¼¼­)
³²¿ëº¹(NAN YONGFU):°æ¸Å½Åûä±ÇÀÚÀ̸ç, ÁÖÅÃÀÓÂ÷±Çµî±â±ÇÀڷμ­ ÁÖÅÃÀÓÂ÷±Çµî±âÀÏÀº 2024.11.07.ÀÓ

¿©ÀÇÁÖ°æ¸Å Á¶¾ð ÇÑ ¸¶µð

¼±¼øÀ§ ÀÓÂ÷±Çµî±â°¡ µÇ¾î ÀÖ½À´Ï´Ù
´ëÇ×·ÂÀÌ ÀÖ´Â ¼±¼øÀ§ ÀÓÂ÷±Çµî±â ±Ç¸®ÀÚ°¡ ¹è´çÀ» Àü¾× ¹ÞÁö ¸øÇÒ °æ¿ì ³«ÂûÀÚ°¡ ÀÜ¿© º¸Áõ±ÝÀ» ÀμöÇØ¾ßÇÏ´Â °æ¿ìµµ ÀÖ½À´Ï´Ù.

ÁÖÀÇ»çÇ× (ÃÖ¼±¼øÀ§ ¼³Á¤ÀÏ: 2020.12.16. ±ÙÀú´ç±Ç ¼³Á¤)

¸Å°¢À¸·Î ¼Ò¸êµÇÁö ¾Ê´Â µî±âºÎ±Ç¸®: ¸Å¼öÀο¡°Ô ´ëÇ×ÇÒ ¼ö ÀÖ´Â À»±¸ ¼øÀ§ 2¹ø ÀÓÂ÷±Çµî±â(ÀÓÂ÷º¸Áõ±Ý: 155,000,000¿ø, ÀüÀÔÀÏ: 2020.10.29., È®Á¤ÀÏÀÚ: 2020.09.29.) ÀÖÀ¸¹Ç·Î ¹è´ç¿¡¼­ º¸Áõ±ÝÀÌ Àü¾× º¯Á¦µÇÁö ¾Æ´ÏÇϸé Àܾ×À» ¸Å¼öÀÎÀÌ ÀμöÇÔ
¸Å°¢À¸·Î ¼³Á¤µÈ °ÍÀ¸·Î º¸´Â Áö»ó±Ç:
°øºÎ»ó 'µµ½ÃÇü »ýȰÁÖÅÃ'ÀÓ
¡Ø¹Ì³³°ü¸®ºñ(°ø¿ë) Àμö¿©ºÎ¸¦ ÀÔÂû Àü¿¡ È®ÀÎÇϽñ⠹ٶø´Ï´Ù

 

Áö¿ªºÐ¼®

ÁöÇÏö¸í Á÷¼±°Å¸®

Çб³¸í ÀüÈ­¹øÈ£ ÁÖ¼Ò Á÷¼±°Å¸®

¹ý¿ø

ÀÎõÁö¹æ¹ý¿ø (222-20)ÀÎõ±¤¿ª½Ã ¹ÌÃßȦ±¸ ¼Ò¼º·Î 163¹ø±æ 17(ÇÐÀ͵¿)
´ëÇ¥ : 032)860-1113~4
°üÇÒÁö¿ª : Áß±¸, µ¿±¸, ³²±¸, ¿¬¼ö±¸, ³²µ¿±¸, ºÎÆò±¸, °è¾ç±¸, ¼­±¸, ¿ËÁø±º, °­È­±º

µî±â¼Ò ÀÎõÁö¹æ¹ý¿ø º»¿ø µî±â±¹ (´ëÇ¥:1544-0773, ÆÑ½º:(032)620-9099, ÀÎõ±¤¿ª½Ã ¹ÌÃßȦ±¸ °æ¿ø´ë·Î 881(Á־ȵ¿ 983))
¼¼¹«¼­ ¼­ÀÎõ¼¼¹«¼­ (´ëÇ¥:032-560-52, ÆÑ½º:032-561-5777, ÀÎõ±¤¿ª½Ã ¼­±¸ ¼­°ù·Î369¹ø±æ 17 (¿¬Èñµ¿))

Àαٳ«ÂûÅë°è

±â°£ ¸Å°¢°Ç¼ö Æò±Õ°¨Á¤°¡
Æò±Õ¸Å°¢°¡
¸Å°¢°¡À²
Æò±ÕÀ¯Âû¼ö
3°³¿ù 28°Ç 823,827,134¿ø
564,183,115¿ø
58%
2.4ȸ
6°³¿ù 52°Ç 702,135,872¿ø
414,440,099¿ø
60%
2.2ȸ
12°³¿ù 75°Ç 626,561,132¿ø
357,950,408¿ø
60%
2.3ȸ


º» °æ¸ÅÁ¤º¸´Â ¹ý¿øÀÚ·á¿Í ÀÏÄ¡Çϵµ·Ï ÇÏ¿´À¸³ª ±Ç¸®»çÇ׺¯µ¿, ÀÔ·ÂÂø¿À µîÀÇ ¿øÀÎÀ¸·Î »ç½Ç°ú ´Ù¸¦ ¼ö ÀÖ½À´Ï´Ù. ÀÌ¿ë¾à°ü¿¡ ÀǰЏéÃ¥Á¶°ÇÀ¸·Î Á¦°øµÊÀ» ¾Ë¸®¸ç, °æ¸ÅÀÔÂû½Ã ¹Ýµå½Ã °ü·Ã °øºÎ¸¦ ÀçÈ®ÀÎÇϽñ⠹ٶø´Ï´Ù. º¸´Ù Æí¸®ÇÑ °æ¸ÅÁ¤º¸ Á¦°øÀ» À§ÇØ Áö¼ÓÀûÀ¸·Î °³¼±ÇϰڽÀ´Ï´Ù. ÀÌ¿ëÇØ Áּż­ °¨»çÇÕ´Ï´Ù.