·Î±×ÀÎ
7
ÁÖÅÃ
ºÎ»êÁö¹æ¹ý¿ø
 °¨Á¤°¡110,989,200 ¿ø
 ÃÖÀú°¡(100%) 110,989,200 ¿ø
 º¸Áõ±Ý(10%) 11,098,920 ¿ø
 Ã»±¸¾×26,739,726 ¿ø
ºÎ»ê±¤¿ª½Ã ºÎ»êÁø±¸ ¹üõµ¿ 1530-38
»ç°Ç¹øÈ£ 2025Ÿ°æ21685
°æ¸ÅÁ¾·ùºÎµ¿»ê°­Á¦°æ¸Å
¸Å°¢´ë»óÅäÁö ¹× °Ç¹°Àϰý¸Å°¢
¸Å°¢±âÀÏ    2026.01.23(±Ý) 10:00 ÀÔÂû 12ÀÏÀü    
ÅäÁö¸éÀû77.00§³(23.29 Æò)
°Ç¹°¸éÀû123.06§³(37.23 Æò)
乫/¼ÒÀ¯ÀÚÀÌOO / ÀÌOO
ä±ÇÀÚ¹ÚOO
ÆäÀ̽ººÏ Æ®À§ÅÍ ±¸±Û+
īī¿À½ºÅ丮
īī¿ÀÅå sms¹®ÀÚº¸³»±â
 

±âÀϳ»¿ª

°æ°ú ³¯Â¥ Àú°¨ ÃÖÀú°¡ °á°ú
Á¢¼öÀÏ 2025-03-24 °æ¸ÅÁ¢¼ö
~1ÀÏ 
2025-03-25 °æ¸Å°³½Ã°áÁ¤
~84ÀÏ 
2025-06-16 ¹è´ç¿ä±¸Á¾±âÀÏ
~305ÀÏ 
2026-01-23 100%
110,989,200
ÁøÇà
¹°°Ç¸í¼¼¼­ ÇöȲÁ¶»ç¼­ ¹®°ÇÁ¢¼ö ¼Û´Þ³»¿ª

°¨Á¤Æò°¡ÇöȲ

¸ñ·Ï ÁÖ¼Ò ±¸Á¶/¿ëµµ/´ëÁö±Ç ¸éÀû ºñ°í
ÅäÁö
¹üõµ¿ 1530-38 ´ë 77 §³
(23.29Æò)
°Ç¹°
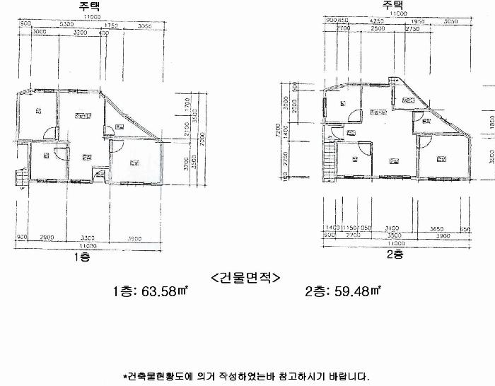
¹üõµ¿ 1530-38 1Ãþ ÁÖÅà º®µ¹Á¶ 63.58 §³
(19.23Æò)
¹üõµ¿ 1530-38 2Ãþ ÁÖÅà º®µ¹Á¶ 59.48 §³
(17.99Æò)
1) À§Ä¡/Á¦3Á¾ÀϹÝÁÖ°ÅÁö¿ª/½Ã³»¹ö½ºÁ¤·ùÀå/Â÷·®ÃâÀÔÀÌ ºÒ°¡´É/½½·¡ºêÁöºØ ´õº¸±â
°¨Á¤Æò°¡ ¿äÇ×Ç¥
1)À§Ä¡ ¹× ÁÖÀ§È¯°æ
º»°ÇÀº ºÎ»ê±¤¿ª½Ã ºÎ»êÁø±¸ ¹üõµ¿ ¼ÒÀç ¾È⸶À» µ¿Ãø ÀαÙÀÇ ºÎ»êÁø±¸ ¹üõµ¿°ú
µ¿±¸ ¹üÀϵ¿ÀÇ °æ°èÁö¿ªÁÖº¯ ´Ù¼Ò °íÁö´ëÀÇ ±âÁ¸ÁÖÅÃÁö´ë¿¡ ¼ÒÀçÇϸç ÁÖÀ§´Â
´Üµ¶ÁÖÅÃ, ºñ±³Àû Áß¼Ò±Ô¸ðÀÇ °øµ¿ÁÖÅÃ, ÅÔ¹ç, ÀÓ¾ßÁö´ëµîÀ¸·Î Çü¼ºµÇ¾î ÀÖÀ¸¸ç
ÁÖ°Åȯ°æÀº ´Ù¼Ò ¿­¾Ç½ÃµÊ.

2)±³Åë»óȲ
º»°Ç ÅäÁö¿¡ÀÇ Â÷·®ÃâÀÔÀÌ ºÒ°¡´ÉÇϰí, Àαٿ¡ ½Ã³»¹ö½ºÁ¤·ùÀåÀÌ ¼ÒÀçÇϴµî
´ëÁß±³Åë»çÁ¤Àº º¸Åë½ÃµÊ.

3)ÇüÅ ¹× ÀÌ¿ë»óÅÂ
Àü¹ÝÀûÀ¸·Î ³²µ¿ÇÏÇâ °æ»çÁö´ë¿¡ À§Ä¡ÇÑ »ç´Ù¸®Çü¿¡ À¯»çÇÑ ºÎÁ¤ÇüÀÇ ÅäÁö¸¦ ÁÖ°Å¿ë
°ÇºÎÁö·Î ÀÌ¿ëÁßÀÓ.

4)ÀÎÁ¢ µµ·Î»óÅÂ
º»°Ç ÅäÁöÀÇ µ¿Ãø ¹× ³²¼­ÃøÀ¸·Î Æø ¾à1~2¹ÌÅÍ ³»¿ÜÀÇ ÇöȲ °ñ¸ñ±æÀÌ ¼ÒÀçÇϰí ÀÖÀ½.

5)ÅäÁöÀÌ¿ë°èȹ ¹× Á¦ÇÑ»óÅÂ
Á¦3Á¾ÀϹÝÁÖ°ÅÁö¿ª, ÁÖ°Åȯ°æ°³¼±Áö±¸(µµ½Ã¹×ÁÖ°Åȯ°æÁ¤ºñ¹ý)<µµ½ÃÀú¼ÒµæÁÖ¹ÎÀÇÁÖ°Å
ȯ°æ°³¼±À»À§ÇÑÀÓ½ÃÁ¶Ä¡¹ý>ÀÓ.
6)Á¦½Ã¸ñ·Ï ¿ÜÀÇ ¹°°Ç
¾øÀ½.

7)°øºÎ¿ÍÀÇ Â÷ÀÌ
º»°ÇÅäÁö´Â °øºÎ»ó ¸ÍÁöÀ̳ª ÇöȲÀº µ¿Ãø ¹× ³²¼­ÃøÀ¸·Î Æø ¾à1~2¹ÌÅÍ ³»¿ÜÀÇ ÇöȲ
°ñ¸ñ±æÀÌ ¼ÒÀçÇϰí ÀÖÀ½.

8)±âŸÂü°í»çÇ×(ÀÓ´ë°ü·Ê ¹× ±âŸ)
¡¤ÀÓ´ë°ü°è: ¹Ì»ó

¡¤º»°Ç ºÎµ¿»ê(ÅäÁö,°Ç¹°)ÀÇ ¸éÀû, À§Ä¡, °æ°è, ¿ëµµ, ÇöȲµîÀº ÅäÁö´ëÀå, °ÇÃ๰´ëÀå,
°ÇÃ๰ÇöȲµµµî °øºÎ¼­·ù¿Í ´ç»ç¹«¼ÒÀÇ °³·«ÀûÀÎ ÃøÁ¤ ¹× ÀαÙÁֹο¡ ´ëÇÑ
޹®Á¶»çµî¿¡ ÀǰŠ»çÁ¤ÇÏ¿´´Â¹Ù Âü°íÇϽñ⠹ٶó¸ç Á¤È®À» ¿äÇÒ½Ã´Â Ãø·®ÇϽñâ
¹Ù¶ø´Ï´Ù.


1)°Ç¹°ÀÇ ±¸Á¶
º®µ¹Á¶ ½½·¡ºêÁöºØ 2Ãþ °Ç¹°·Î¼­
¿Ü º®: ŸÀϺÙÀÓ ¹× ¸ôÅ»À§ÆäÀÎÆ®µî
³» º®: º®Áö¸¶°¨µî
â È£: ¼¦½ÃâµîÀÇ ±¸Á¶ÀÓ.
2)ÀÌ¿ë»óÅÂ
ÁÖÅÃÀÓ.
3)¼³ºñ³»¿ª
±Þ¹è¼ö ¹× À§»ý¼³ºñ, ³­¹æ¼³ºñµî µÇ¾îÀÖ´Â °ÍÀ¸·Î ޹®Á¶»çµÊ.
4)ºÎÇÕ¹° ¹× Á¾¹°
¾øÀ½.
5)°øºÎ¿ÍÀÇ Â÷ÀÌ
-
6)±âŸÂü°í»çÇ×(ÀÓ´ë°ü·Ê ¹× ±âŸ)
¡¤ÀÓ´ë°ü°è: ¹Ì»ó
Âü°í
»çÇ×
Àϰý¸Å°¢

°ÇÃ๰ÇöȲ

¼ÒÀçÁö ºÎ»ê±¤¿ª½Ã ºÎ»êÁø±¸ ¹üõµ¿ 1530-38¹øÁö
´ëÁö¸éÀû 77§³
(23.33Æò)
¿¬¸éÀû 123.06§³
(37.29Æò)
°ÇÃà¸éÀû 67.78§³
(20.54Æò)
¿ëÀû·ü»êÁ¤
¿¬¸éÀû
123.06§³
(37.29Æò)
°ÇÆóÀ² 88.03% ¿ëÀû·ü 159.82%
Áö»óÃþ¼ö 2Ãþ ÁöÇÏÃþ¼ö  
ÁÖ¿ëµµ ´Üµ¶ÁÖÅà ±¸Á¶ º®µ¹±¸Á¶
Âø°øÀÏÀÚ 1995.11.04 »ç¿ë½ÂÀÎÀÏÀÚ 1996.03.21
°ÇÃ๰Ãþº°ÇöȲ [º¸±â]


±¹ÅäºÎ½Ç°Å·¡°¡ ºÎ»ê±¤¿ª½Ã ºÎ»êÁø±¸ ¹üõµ¿

¡Ü ¸Å¸Å

¸éÀû(§³), ±Ý¾×(¸¸¿ø)

¡Ü Àü¼¼

¸éÀû(§³), ±Ý¾×(¸¸¿ø)

°è¾àÀÏ¿¬¸éÀûº¸Áõ±Ý¿ù¼¼°ÇÃà
25.11.267618,5001992
25.11.13153.3421,0001993
25.11.08175.06500201997
25.11.062027,0001900
25.11.0318.511,000401967
¢Ñ ´õº¸±â

µî±âºÎµîº» ¿ä¾à(ÅäÁö)

  Á¢¼öÀÏÀÚ µî±â¸ñÀû/±Ç¸®ÀÚ ±Ç¸®±Ý¾× ±âÁØ
1 2014³â1¿ù13ÀÏ
¼ÒÀ¯±Ç
ÀÌOO
¼Ò¸ê
2 2025³â3¿ù25ÀÏ
°­Á¦°æ¸Å
¹ÚOO
¼Ò¸ê±âÁØ

µî±âºÎµîº» ¿ä¾à(°Ç¹°)

  Á¢¼öÀÏÀÚ µî±â¸ñÀû/±Ç¸®ÀÚ ±Ç¸®±Ý¾× ±âÁØ
1 2014³â1¿ù13ÀÏ
¼ÒÀ¯±Ç
ÀÌOO
¼Ò¸ê
2 2025³â3¿ù25ÀÏ
°­Á¦°æ¸Å
¹ÚOO
¼Ò¸ê±âÁØ

ÀÓÂ÷ÀÎÇöȲ (¹è´ç¿ä±¸Á¾±âÀÏ: 2025-06-16)



¸Å°¢±âÀÏ 7ÀÏÀü¿¡ ¸Å°¢¹°°Ç¸í¼¼¼­°¡ °ø°íµÇ¿À´Ï È®ÀÎÇϽñ⠹ٶø´Ï´Ù.

ÀÓÂ÷ÀÎ ¿ëµµ/Á¡À¯ º¸Áõ±Ý/¿ù¼¼ ´ëÇ×·Â
ÀüÀÔÀÏ/È®Á¤ÀÏ ¹è´ç¿ä±¸ ºñ°í
±èOO ¹Ì»ó ¹Ì»ó
[¿ù]¹Ì»ó
O
2022.05.19
¹Ì»ó
¹Ì»ó
±èOO 1Ãþ(¹æ3Ä­)Àüü 25,000,000
[¿ù]100,000
O
2022.09.26.
2025.04.03.
2025.4.3. 2022.08.22.-

¿©ÀÇÁÖ°æ¸Å Á¶¾ð ÇÑ ¸¶µð

ÃëÇÏ ¶Ç´Â Ãë¼ÒµÉ °¡´É¼º ÀÖ½À´Ï´Ù
ÀÌ ¹°°ÇÀÇ °¨Á¤°¡°ÝÀº 110,989,200¿øÀÔ´Ï´Ù. °æ¸Å¸¦ ½ÅûÇÑ Ã¤±ÇÀÚ°¡ ¹è´ç ¹Þ¾Æ¾ß ÇÒ ±Ý¾×Àº 26,739,726¿øÀ¸·Î °¨Á¤°¡°Ý ´ëºñ »ó´çÈ÷ ÀûÀº ±Ý¾×ÀÔ´Ï´Ù. ÀÌ·± °æ¿ì, 乫°¡°¡ º¯Á¦ÇÏ¿© °æ¸Å¸¦ ÃëÇϽÃŰ°Å³ª °æ¸Å½Åûä±ÇÀÚ°¡ ¹è´ç¹ÞÀº ±Ý¿øÀÌ ¾ø°ÔµÇ¾î À̸¥ ¹Ù "¹«À׿©¿¡ ÀÇÇÑ Ãë¼Ò"°¡ µÉ °¡´É¼ºÀÌ ÀÖ½À´Ï´Ù.

ÁÖÀÇ»çÇ× (ÃÖ¼±¼øÀ§ ¼³Á¤ÀÏ: 2025. 3. 25. °æ¸Å°³½Ã°á ¼³Á¤ Á¤)

¸Å°¢À¸·Î ¼Ò¸êµÇÁö ¾Ê´Â µî±âºÎ±Ç¸®:
¸Å°¢À¸·Î ¼³Á¤µÈ °ÍÀ¸·Î º¸´Â Áö»ó±Ç:
Àϰý¸Å°¢
¡Ø¹Ì³³°ü¸®ºñ(°ø¿ë) Àμö¿©ºÎ¸¦ ÀÔÂû Àü¿¡ È®ÀÎÇϽñ⠹ٶø´Ï´Ù

 

Áö¿ªºÐ¼®

ÁöÇÏö¸í Á÷¼±°Å¸®

Çб³¸í ÀüÈ­¹øÈ£ ÁÖ¼Ò Á÷¼±°Å¸®

¹ý¿ø

ºÎ»êÁö¹æ¹ý¿ø (475-10)ºÎ»ê±¤¿ª½Ã ¿¬Á¦±¸ ¹ý¿ø·Î 31(°ÅÁ¦µ¿ 1500)
´ëÇ¥ : 051)590-1114, ¾ß°£ : 051)590-1112
°üÇÒÁö¿ª : Áß±¸, ¼­±¸(µî±â¸¸), µ¿±¸, ¿µµµ±¸, ºÎ»êÁø±¸, µ¿·¡±¸, ¿¬Á¦±¸, ±ÝÁ¤±¸

µî±â¼Ò ºÎ»êÁö¹æ¹ý¿ø º»¿ø ºÎ»êÁøµî±â¼Ò (´ëÇ¥:1544-0773, ÆÑ½º:(051)804-6292, ºÎ»ê±¤¿ª½Ã ºÎ»êÁø±¸ Áß¾Ó´ë·Î783¹ø±æ 9 (ºÎÀüµ¿ 573-5))
¼¼¹«¼­ ºÎ»êÁø¼¼¹«¼­ (´ëÇ¥:051-461-92, ÆÑ½º:051-467-1969, ºÎ»ê±¤¿ª½Ã µ¿±¸ Áø¼º·Î 23 (¼öÁ¤µ¿ 247-7))

Àαٳ«ÂûÅë°è

±â°£ ¸Å°¢°Ç¼ö Æò±Õ°¨Á¤°¡
Æò±Õ¸Å°¢°¡
¸Å°¢°¡À²
Æò±ÕÀ¯Âû¼ö
3°³¿ù 1°Ç 147,404,310¿ø
74,110,000¿ø
50%
2ȸ
6°³¿ù 3°Ç 311,125,770¿ø
133,407,333¿ø
42%
2.7ȸ
12°³¿ù 7°Ç 260,701,530¿ø
88,597,429¿ø
32%
4ȸ


º» °æ¸ÅÁ¤º¸´Â ¹ý¿øÀÚ·á¿Í ÀÏÄ¡Çϵµ·Ï ÇÏ¿´À¸³ª ±Ç¸®»çÇ׺¯µ¿, ÀÔ·ÂÂø¿À µîÀÇ ¿øÀÎÀ¸·Î »ç½Ç°ú ´Ù¸¦ ¼ö ÀÖ½À´Ï´Ù. ÀÌ¿ë¾à°ü¿¡ ÀǰЏéÃ¥Á¶°ÇÀ¸·Î Á¦°øµÊÀ» ¾Ë¸®¸ç, °æ¸ÅÀÔÂû½Ã ¹Ýµå½Ã °ü·Ã °øºÎ¸¦ ÀçÈ®ÀÎÇϽñ⠹ٶø´Ï´Ù. º¸´Ù Æí¸®ÇÑ °æ¸ÅÁ¤º¸ Á¦°øÀ» À§ÇØ Áö¼ÓÀûÀ¸·Î °³¼±ÇϰڽÀ´Ï´Ù. ÀÌ¿ëÇØ Áּż­ °¨»çÇÕ´Ï´Ù.