·Î±×ÀÎ
10
±Ù¸°»ó°¡
¼­¿ï³²ºÎÁö¹æ¹ý¿ø
 °¨Á¤°¡201,000,000 ¿ø
 ÃÖÀú°¡(100%) 201,000,000 ¿ø
 º¸Áõ±Ý(10%) 20,100,000 ¿ø
 Ã»±¸¾×200,000,000 ¿ø
¼­¿ïƯº°½Ã ¾çõ±¸ ½Å¿ùµ¿ 513-9 ÇÏÀººô¸®Áö Á¦2Ãþ Á¦201È£
»ç°Ç¹øÈ£ 2025Ÿ°æ9406
°æ¸ÅÁ¾·ùºÎµ¿»ê°­Á¦°æ¸Å
¸Å°¢´ë»óÅäÁö ¹× °Ç¹°Àϰý ¸Å°¢
¸Å°¢±âÀÏ    2026.01.22(¸ñ) 10:00 ÀÔÂû 13ÀÏÀü    
ÅäÁö¸éÀû27.17§³(8.22 Æò)
°Ç¹°¸éÀû45.39§³(13.73 Æò)
乫/¼ÒÀ¯ÀÚÁøOO / ÁøOO
ä±ÇÀÚÃÖOO
ÆäÀ̽ººÏ Æ®À§ÅÍ ±¸±Û+
īī¿À½ºÅ丮
īī¿ÀÅå sms¹®ÀÚº¸³»±â
 

±âÀϳ»¿ª

°æ°ú ³¯Â¥ Àú°¨ ÃÖÀú°¡ °á°ú
Á¢¼öÀÏ 2025-04-01 °æ¸ÅÁ¢¼ö
~2ÀÏ 
2025-04-03 °æ¸Å°³½Ã°áÁ¤
~97ÀÏ 
2025-07-07 ¹è´ç¿ä±¸Á¾±âÀÏ
~210ÀÏ 
2025-10-28 100%
201,000,000
º¯°æ
~296ÀÏ 
2026-01-22 100%
201,000,000
ÁøÇà
¹°°Ç¸í¼¼¼­ ÇöȲÁ¶»ç¼­ ¹®°ÇÁ¢¼ö ¼Û´Þ³»¿ª

°¨Á¤Æò°¡ÇöȲ

¸ñ·Ï ÁÖ¼Ò ±¸Á¶/¿ëµµ/´ëÁö±Ç ¸éÀû ºñ°í
´ëÁö±Ç
½Å¿ùµ¿ 513-9 443.3ºÐÀÇ 27.17 27.17 §³
(8.22Æò)
°Ç¹°
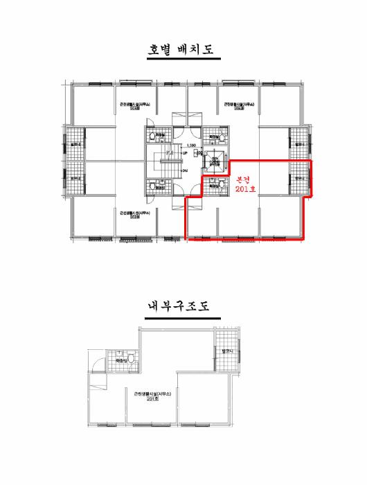
½Å¿ùµ¿ 513-9 Á¦2Ãþ Á¦201È£ ö±ÙÄÜÅ©¸®Æ®±¸Á¶ 45.39 §³
(13.73Æò)
1) À§Ä¡/Á¦3Á¾ÀϹÝÁÖ°ÅÁö¿ª/³ë¼±¹ö½ºÁ¤·ùÀå/ö±ÙÄÜÅ©¸®Æ®±¸Á¶/Æò½º¶óºêÁöºØ ´õº¸±â
°¨Á¤Æò°¡ ¿äÇ×Ç¥
1)À§Ä¡ ¹× ÁÖÀ§È¯°æ
¼­¿ïƯº°½Ã ¾çõ±¸ ½Å¿ùµ¿ ¼ÒÀç ""°­¼­ÃʵîÇб³"" ³²µ¿Ãø Àαٿ¡ À§Ä¡Çϸç, ÁÖÀ§´Â ´Ù
¼¼´ëÁÖÅÃ, ´Üµ¶ÁÖÅÃ, ¾ÆÆÄÆ®´ÜÁö, ±Ù¸°»ýȰ½Ã¼³, °¢±Þ Çб³ µîÀÌ È¥ÀçÇÏ´Â Áö¿ªÀ¸·Î
¼­ Àü¹ÝÀûÀÎ ÁÖÀ§ ȯ°æÀº º¸Åë½Ã µË´Ï´Ù.
2)±³Åë»óȲ
º»°Ç±îÁö Â÷·®ÃâÀÔÀÌ °¡´ÉÇϰí, Àα٠µµ·Îº¯¿¡ ³ë¼±¹ö½ºÁ¤·ùÀåÀÌ ¼ÒÀçÇÏ´Â µî ´ëÁß
±³Åë»çÁ¤Àº º¸Åë½Ã µË´Ï´Ù.
3)°Ç¹°ÀÇ ±¸Á¶
ö±ÙÄÜÅ©¸®Æ®±¸Á¶ Æò½º¶óºêÁöºØ 6Ãþ °Ç¹° ³» 2Ãþ 201È£·Î¼­,
¿Üº® : ¼®ÀçºÙÀÓ µî ¸¶°¨.
³»º® : º®Áö µµ¹è ¹× ÀϺΠŸÀϺÙÀÓ µî ¸¶°¨.
âȣ : ¼¦½Ã âȣ µî.
4)ÀÌ¿ë»óÅÂ
º»°ÇÀº °øºÎ»ó ""±Ù¸°»ýȰ½Ã¼³""·Î µîÀçµÇ¾î ÀÖÀ¸³ª, ÇöȲ ""ÁÖÅÃ""À¸·Î ÀÌ¿ëÁßÀÔ´Ï´Ù.
5)¼³ºñ³»¿ª
º»°ÇÀº ±Þ¡¤¹è¼ö½Ã¼³ µî ±âº»ÀûÀÎ À§»ý¼³ºñ, ³­¹æ¼³ºñ, ½Â°­±â¼³ºñ µîÀÌ µÇ¾îÀÖ½À
´Ï´Ù.

6)ÅäÁöÀÇ Çü»ó ¹× ÀÌ¿ë»óÅÂ
º»°ÇÀº ÀÎÁ¢Áö ´ëºñ µî°íÆòźÇÑ Á¤¹æÇü ÅäÁö·Î¼­, ´Ù¼¼´ëÁÖÅà ¹× ±Ù¸°»ýȰ½Ã¼³ °Ç
ºÎÁö·Î ÀÌ¿ëÁßÀÔ´Ï´Ù.
7)ÀÎÁ¢ µµ·Î»óŵî
º»°ÇÀº ºÏµ¿ÃøÀ¸·Î ³ëÆø ¾à 6¹ÌÅÍÀÇ Æ÷Àåµµ·Î¿Í Á¢ÇÕ´Ï´Ù.
8)ÅäÁöÀÌ¿ë°èȹ ¹× Á¦ÇÑ»óÅÂ
½Å¿ùµ¿ 513-9
Á¦3Á¾ÀϹÝÁÖ°ÅÁö¿ª, µµ·Î(Á¢ÇÕ), °¡Ãà»çÀ°Á¦Çѱ¸¿ª, Á¦3Á¾ ±¸¿ª(2017-06-30)(´ÙÁö
±¸), ¿øÃßÇ¥¸é±¸¿ª, ÁøÀÔÇ¥¸é±¸¿ª, ´ë°ø¹æ¾îÇùÁ¶±¸¿ª(À§Å¹°íµµ:77-257m), °ú¹Ð¾ïÁ¦
±Ç¿ª µîÀÔ´Ï´Ù.

(ÀÚ¼¼ÇÑ »çÇ×Àº ÈÄ÷ ""ÅäÁöÀÌ¿ë°èȹȮÀμ­"" ÂüÁ¶)
9)°øºÎ¿ÍÀÇ Â÷ÀÌ
--
10)±âŸÂü°í»çÇ×(ÀÓ´ë°ü·Ê ¹× ±âŸ)
ÀÓ´ë°ü°è: ¹Ì»óÀÔ´Ï´Ù.
±âŸ : -

°ÇÃ๰ÇöȲ

¼ÒÀçÁö ¼­¿ïƯº°½Ã ¾çõ±¸ ½Å¿ùµ¿ 513-9¹øÁö
´ëÁö¸éÀû 443.3§³
(134.33Æò)
¿¬¸éÀû 846.3§³
(256.45Æò)
°ÇÃà¸éÀû 216.6§³
(65.64Æò)
¿ëÀû·ü»êÁ¤
¿¬¸éÀû
846.3§³
(256.45Æò)
°ÇÆóÀ² 48.86% ¿ëÀû·ü 190.91%
Áö»óÃþ¼ö 6Ãþ ÁöÇÏÃþ¼ö  
ÁÖ¿ëµµ °øµ¿ÁÖÅà ±¸Á¶ ö±ÙÄÜÅ©¸®Æ®±¸Á¶
Âø°øÀÏÀÚ 2018.02.10 »ç¿ë½ÂÀÎÀÏÀÚ 2018.08.21
°ÇÃ๰Ãþº°ÇöȲ [º¸±â]


µî±âºÎµîº» ¿ä¾à(°Ç¹°)

  Á¢¼öÀÏÀÚ µî±â¸ñÀû/±Ç¸®ÀÚ ±Ç¸®±Ý¾× ±âÁØ
1 2019³â6¿ù10ÀÏ
¼ÒÀ¯±Ç
ÁøOO
¼Ò¸ê
2 2020³â7¿ù15ÀÏ
¾Ð·ù
±¹
¼Ò¸ê±âÁØ
3 2020³â8¿ù5ÀÏ
°¡¾Ð·ù
ÁÖOOOO
1,660,543,557 ¼Ò¸ê
4 2021³â2¿ù2ÀÏ
¾Ð·ù
¼­OOOO
¼Ò¸ê
5 2023³â11¿ù1ÀÏ
¾Ð·ù
°­OO
¼Ò¸ê
6 2024³â8¿ù26ÀÏ
ÀÓÂ÷±Ç¼³Á¤
ÃÖOO
200,000,000 ¼Ò¸ê
7 2025³â4¿ù3ÀÏ
°­Á¦°æ¸Å
ÃÖOO
¼Ò¸ê

ÀÓÂ÷ÀÎÇöȲ (¹è´ç¿ä±¸Á¾±âÀÏ: 2025-07-07)

ÀÓÂ÷ÀÎ ¿ëµµ/Á¡À¯ º¸Áõ±Ý/¿ù¼¼ ´ëÇ×·Â
ÀüÀÔÀÏ/È®Á¤ÀÏ ¹è´ç¿ä±¸ ºñ°í
ÃÖOO 201È£ 200,000,000
O
2019.06.10.
2019.05.24./2019.06.10.
2025.4.15. 2019.06.10.~2021.06.09.
ºñ°í
(¸Å°¢¹°°Ç
¸í¼¼¼­)
Ã־︸ : °æ¸Å½Åûä±ÇÀڷμ­ ÁÖÅÃÀÓÂ÷±Çµî±âÀÏÀº 2024.08.26.ÀÓ.

¿©ÀÇÁÖ°æ¸Å Á¶¾ð ÇÑ ¸¶µð


ÁÖÀÇ»çÇ× (ÃÖ¼±¼øÀ§ ¼³Á¤ÀÏ: 2020.07.15. ¾Ð·ù ¼³Á¤)

¸Å°¢À¸·Î ¼Ò¸êµÇÁö ¾Ê´Â µî±âºÎ±Ç¸®: ¸Å¼öÀο¡°Ô ´ëÇ×ÇÒ ¼ö ÀÖ´Â ÀÓÂ÷ÀÎÀÌ ÀÖÀ½(ÀÓ´ëÂ÷º¸Áõ±Ý 200,000,000¿ø, ÀüÀÔÀÏÀÚ 2019.06.10., È®Á¤ÀÏÀÚ 2019.05.24., 2019.06.10.). ¹è´ç¿¡¼­ º¸Áõ±ÝÀÌ Àü¾× º¯Á¦µÇÁö ¾Æ´ÏÇϸé Àܾ×À» ¸Å¼öÀÎÀÌ ÀμöÇÔ.
¸Å°¢À¸·Î ¼³Á¤µÈ °ÍÀ¸·Î º¸´Â Áö»ó±Ç:
°øºÎ»ó ±Ù¸°»ýȰ½Ã¼³·Î µîÀçµÇ¾î ÀÖÀ¸³ª, ÇöȲ ÁÖÅÃÀ¸·Î ÀÌ¿ëÁßÀÓ.
¡Ø¹Ì³³°ü¸®ºñ(°ø¿ë) Àμö¿©ºÎ¸¦ ÀÔÂû Àü¿¡ È®ÀÎÇϽñ⠹ٶø´Ï´Ù

 

Áö¿ªºÐ¼®

ÁöÇÏö¸í Á÷¼±°Å¸®

Çб³¸í ÀüÈ­¹øÈ£ ÁÖ¼Ò Á÷¼±°Å¸®

¹ý¿ø

¼­¿ï³²ºÎÁö¹æ¹ý¿ø (080-88)¼­¿ïƯº°½Ã ¾çõ±¸ ½Å¿ù·Î 386(½ÅÁ¤µ¿)
´ëÇ¥ : 02)2192-1114
°üÇÒÁö¿ª : ¿µµîÆ÷±¸, °­¼­±¸, ¾çõ±¸, ±¸·Î±¸, ±Ýõ±¸

µî±â¼Ò ¼­¿ï³²ºÎÁö¹æ¹ý¿ø º»¿ø µî±â±¹ (´ëÇ¥:1544-0773, ÆÑ½º:(02)2629-7307, ¼­¿ïƯº°½Ã ¿µµîÆ÷±¸ °æÀηΠ772 (¹®·¡µ¿ 1°¡))
¼¼¹«¼­ ¾çõ¼¼¹«¼­ (´ëÇ¥:02-2650-92, ÆÑ½º:02-2652-0058, ¼­¿ïƯº°½Ã ¾çõ±¸ ¸ñµ¿µ¿·Î 165 (½ÅÁ¤µ¿))

Àαٳ«ÂûÅë°è

±â°£ ¸Å°¢°Ç¼ö Æò±Õ°¨Á¤°¡
Æò±Õ¸Å°¢°¡
¸Å°¢°¡À²
Æò±ÕÀ¯Âû¼ö
3°³¿ù 1°Ç 278,000,000¿ø
201,100,000¿ø
72%
2ȸ
6°³¿ù 2°Ç 533,000,000¿ø
417,250,000¿ø
76%
1.5ȸ
12°³¿ù 4°Ç 1,438,855,400¿ø
1,326,125,000¿ø
82%
1.5ȸ


º» °æ¸ÅÁ¤º¸´Â ¹ý¿øÀÚ·á¿Í ÀÏÄ¡Çϵµ·Ï ÇÏ¿´À¸³ª ±Ç¸®»çÇ׺¯µ¿, ÀÔ·ÂÂø¿À µîÀÇ ¿øÀÎÀ¸·Î »ç½Ç°ú ´Ù¸¦ ¼ö ÀÖ½À´Ï´Ù. ÀÌ¿ë¾à°ü¿¡ ÀǰЏéÃ¥Á¶°ÇÀ¸·Î Á¦°øµÊÀ» ¾Ë¸®¸ç, °æ¸ÅÀÔÂû½Ã ¹Ýµå½Ã °ü·Ã °øºÎ¸¦ ÀçÈ®ÀÎÇϽñ⠹ٶø´Ï´Ù. º¸´Ù Æí¸®ÇÑ °æ¸ÅÁ¤º¸ Á¦°øÀ» À§ÇØ Áö¼ÓÀûÀ¸·Î °³¼±ÇϰڽÀ´Ï´Ù. ÀÌ¿ëÇØ Áּż­ °¨»çÇÕ´Ï´Ù.