·Î±×ÀÎ
20
¿ÀÇǽºÅÚ
¼­¿ï³²ºÎÁö¹æ¹ý¿ø
 °¨Á¤°¡344,000,000 ¿ø
 ÃÖÀú°¡(100%) 344,000,000 ¿ø
 º¸Áõ±Ý(10%) 34,400,000 ¿ø
 Ã»±¸¾×329,000,000 ¿ø
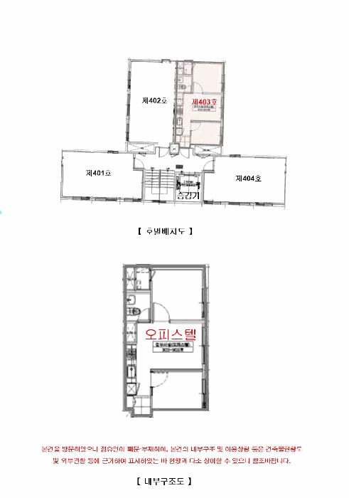
¼­¿ïƯº°½Ã °­¼­±¸ µîÃ̵¿ 565-5 ´õÀÚÇÏ Á¦4Ãþ Á¦403È£
»ç°Ç¹øÈ£ 2025Ÿ°æ11726
°æ¸ÅÁ¾·ùºÎµ¿»ê°­Á¦°æ¸Å
¸Å°¢´ë»óÅäÁö ¹× °Ç¹°Àϰý ¸Å°¢
¸Å°¢±âÀÏ    2026.01.21(¼ö) 10:00 ÀÔÂû 12ÀÏÀü    
ÅäÁö¸éÀû10.28§³(3.11 Æò)
°Ç¹°¸éÀû26.78§³(8.10 Æò)
乫/¼ÒÀ¯ÀÚ±èOO / ±èOO
ä±ÇÀÚÁÖOOOOOOO
ÆäÀ̽ººÏ Æ®À§ÅÍ ±¸±Û+
īī¿À½ºÅ丮
īī¿ÀÅå sms¹®ÀÚº¸³»±â
 

±âÀϳ»¿ª

°æ°ú ³¯Â¥ Àú°¨ ÃÖÀú°¡ °á°ú
Á¢¼öÀÏ 2025-08-25 °æ¸ÅÁ¢¼ö
~1ÀÏ 
2025-08-26 °æ¸Å°³½Ã°áÁ¤
~93ÀÏ 
2025-11-26 ¹è´ç¿ä±¸Á¾±âÀÏ
~149ÀÏ 
2026-01-21 100%
344,000,000
ÁøÇà
¹°°Ç¸í¼¼¼­ ÇöȲÁ¶»ç¼­ ¹®°ÇÁ¢¼ö ¼Û´Þ³»¿ª

°¨Á¤Æò°¡ÇöȲ

¸ñ·Ï ÁÖ¼Ò ±¸Á¶/¿ëµµ/´ëÁö±Ç ¸éÀû ºñ°í
´ëÁö±Ç
µîÃ̵¿ 565-5 539.2ºÐÀÇ 10.28 10.28 §³
(3.11Æò)
°Ç¹°
µîÃ̵¿ 565-5 Á¦4Ãþ Á¦403È£ ö±ÙÄÜÅ©¸®Æ®±¸Á¶ 26.775 §³
(8.10Æò)
1) À§Ä¡/µµ½ÃÁö¿ª/Á¦3Á¾ÀϹÝÁÖ°ÅÁö¿ª/¹ö½ºÁ¤·ùÀå/ÁöÇÏö/ö±ÙÄÜÅ©¸®Æ®±¸Á¶/Æò½½·¡ºêÁöºØ ´õº¸±â
°¨Á¤Æò°¡ ¿äÇ×Ç¥
1)À§Ä¡ ¹× ÁÖÀ§È¯°æ
º»°ÇÀº ¼­¿ïƯº°½Ã °­¼­±¸ µîÃ̵¿ ¼ÒÀç ""´ëÀϰíµîÇб³"" ³²Ãø Àαٿ¡ À§Ä¡Çϸç, º»°Ç ÁÖÀ§´Â
¿ÀÇǽºÅÚ, °øµ¿ÁÖÅÃ, °¢Á¾ ±Ù¸°»ýȰ½Ã¼³ ¹× Çб³ µîÀÌ ¼ÒÀçÇÏ´Â Áö¿ªÀÓ.


2)±³Åë»óȲ
º»°Ç±îÁö Â÷·®ÀÇ ÃâÀÔÀÌ °¡´ÉÇϸç, Àαٿ¡ ¹ö½ºÁ¤·ùÀå ¹× ±Ù°Å¸®¿¡ ÁöÇÏö¿ª(5È£¼± ¸ñµ¿¿ª)
ÀÌ ¼ÒÀçÇÏ´Â µî ´ëÁß±³Åë ¿©°ÇÀº º¸ÅëÀÓ.


3)°Ç¹°ÀÇ ±¸Á¶
ö±ÙÄÜÅ©¸®Æ®±¸Á¶ Æò½½·¡ºêÁöºØ ÁöÇÏ2Ãþ/Áö»ó14Ãþ°Ç Áß Á¦4Ãþ Á¦403È£·Î¼­
(»ç¿ë½ÂÀÎÀÏ:2021.02.18),

¿Üº® : ¸ôÅ»À§ ÆäÀÎÆÃ ¹× º®µ¹½×±â µî,
³»º® : -,
âȣ : ¼¦½Ãâ µîÀÓ.


4)ÀÌ¿ë»óÅÂ
¿ÀÇǽºÅÚÀÓ.
5)¼³ºñ³»¿ª
À§»ý¼³ºñ, ±Þ¹è¼ö¼³ºñ, ÁÖÂ÷¼³ºñ, ¼ÒÈ­¼³ºñ, ½Â°­±â ¹× ³­¹æ¼³ºñ µîÀÌ ±¸ºñµÇ¾î ÀÖÀ½.


6)ÅäÁöÀÇ Çü»ó ¹× ÀÌ¿ë»óÅÂ
À广Çü ÅäÁö·Î¼­, °ÇºÎÁö(°øµ¿ÁÖÅÃ, ¾÷¹«½Ã¼³, ±Ù¸°»ýȰ½Ã¼³)·Î ÀÌ¿ëÁßÀÓ.


7)ÀÎÁ¢ µµ·Î»óŵî
º»°Ç µ¿ÃøÀ¸·Î ¾à30¹ÌÅÍ ³»¿ÜÀÇ µµ·Î¿Í Á¢ÇÔ.


8)ÅäÁöÀÌ¿ë°èȹ ¹× Á¦ÇÑ»óÅÂ
µµ½ÃÁö¿ª, Á¦3Á¾ÀϹÝÁÖ°ÅÁö¿ª, Áß¿ä½Ã¼³¹°º¸È£Áö±¸(°øÇ×), µµ·Î(Á¢ÇÔ), °¡Ãà»çÀ°Á¦Çѱ¸¿ª(Áö
¿ª°æÁ¦°ú È®ÀÎ ¿ä¸Á), ¿øÃßÇ¥¸é±¸¿ª(¿øÃßÇ¥¸é), »ó´ëº¸È£±¸¿ª(2015-03-24)(°­¼­±³À°Áö¿øÃ»
¹Ýµå½Ã È®Àοä¸Á), ´ë°ø¹æ¾îÇùÁ¶±¸¿ª(À§Å¹°íµµ:77-257m), °ú¹Ð¾ïÁ¦±Ç¿ª, ÅäÁö°Å·¡°è¾à¿¡°ü
ÇÑÇã°¡±¸¿ª(´ë»óÀÚ:¿Ü±¹ÀÎ µî, ¿ëµµ:´Üµ¶ ´Ù°¡±¸ ¾ÆÆÄÆ® ¿¬¸³ ´Ù¼¼´ë. ÁöÁ¤±â°£:2025.8.26~
2026.8.25), °ÇÃ༱(2019-04-03)ÀÓ.


9)°øºÎ¿ÍÀÇ Â÷ÀÌ
-.


10)±âŸÂü°í»çÇ×(ÀÓ´ë°ü·Ê ¹× ±âŸ)
- ÀÓ´ë°ü°è ¹Ì»óÀÓ.

Âü°í
»çÇ×
- ÀÓÂ÷ÀÎ ¹× ÁÖÅÃÀÓÂ÷±Ç ½Â°èÀÎ ÁÖÅõµ½Ãº¸Áõ°ø»çÀÇ ¹è´ç¹ÞÁö ¸øÇÏ´Â Àܾ׿¡ ´ëÇÑ ÀÓÂ÷º¸Áõ±Ý¹Ýȯû±¸±Ç Æ÷±â Á¶°Ç ¸Å°¢

°ÇÃ๰ÇöȲ

¼ÒÀçÁö ¼­¿ïƯº°½Ã °­¼­±¸ µîÃ̵¿ 565-5¹øÁö
´ëÁö¸éÀû 539.2§³
(163.39Æò)
¿¬¸éÀû 2103.87§³
(637.54Æò)
°ÇÃà¸éÀû 164.07§³
(49.72Æò)
¿ëÀû·ü»êÁ¤
¿¬¸éÀû
1606.64§³
(486.86Æò)
°ÇÆóÀ² 30.43% ¿ëÀû·ü 297.97%
Áö»óÃþ¼ö 14Ãþ ÁöÇÏÃþ¼ö 2Ãþ
ÁÖ¿ëµµ ¾÷¹«½Ã¼³ ±¸Á¶ ö±ÙÄÜÅ©¸®Æ®±¸Á¶
Âø°øÀÏÀÚ 2019.12.13 »ç¿ë½ÂÀÎÀÏÀÚ 2021.02.18
°ÇÃ๰Ãþº°ÇöȲ [º¸±â]


±¹ÅäºÎ½Ç°Å·¡°¡ ¼­¿ïƯº°½Ã °­¼­±¸ µîÃ̵¿

¡Ü ¸Å¸Å

¸éÀû(§³), ±Ý¾×(¸¸¿ø)

¡Ü Àü¼¼

¸éÀû(§³), ±Ý¾×(¸¸¿ø)

°è¾àÀϰǹ°¸íĪÃþÀü¿ëº¸Áõ±Ý¿ù¼¼°ÇÃà
25.04.19The ZAHA526.7824,04502021
25.04.08The ZAHA826.7827,30002021
25.01.20The ZAHA725.3724,00052021

µî±âºÎµîº» ¿ä¾à(°Ç¹°)

  Á¢¼öÀÏÀÚ µî±â¸ñÀû/±Ç¸®ÀÚ ±Ç¸®±Ý¾× ±âÁØ
1 2021³â7¿ù23ÀÏ
¼ÒÀ¯±Ç
±èOO
¼Ò¸ê
2 2022³â1¿ù11ÀÏ
¾àÁ¤/±ÝÁö»çÇ×/ȯ¸ÅƯ¾à
Àμö
3 2023³â4¿ù10ÀÏ
¾Ð·ù
±¹
¼Ò¸ê±âÁØ
4 2023³â8¿ù16ÀÏ
ÀÓÂ÷±Ç¼³Á¤
ÃÖOOO
329,000,000 ¼Ò¸ê
5 2025³â8¿ù26ÀÏ
°­Á¦°æ¸Å
ÁÖOOOO
¼Ò¸ê

ÀÓÂ÷ÀÎÇöȲ (¹è´ç¿ä±¸Á¾±âÀÏ: 2025-11-26)



¸Å°¢±âÀÏ 7ÀÏÀü¿¡ ¸Å°¢¹°°Ç¸í¼¼¼­°¡ °ø°íµÇ¿À´Ï È®ÀÎÇϽñ⠹ٶø´Ï´Ù.

ÀÓÂ÷ÀÎ ¿ëµµ/Á¡À¯ º¸Áõ±Ý/¿ù¼¼ ´ëÇ×·Â
ÀüÀÔÀÏ/È®Á¤ÀÏ ¹è´ç¿ä±¸ ºñ°í
ÁÖOOOOOOO 403È£ÀüºÎ 329,000,000
2021.07.23(Ãֵ庸¶ó)
2021.06.30
2025.11.19. 2021.07.23 ~2024.01.05
ÃÖOOO °Ç¹°ÀüºÎ 329,000,000
O
2021.07.23
2021.06.30
2021.07.23 ~
ºñ°í
(¸Å°¢¹°°Ç
¸í¼¼¼­)
ÁÖÅõµ½Ãº¸Áõ°ø»ç : ÀÌ »ç°Ç ½Åûä±ÇÀÚ·Î ÁÖÅÃÀÓÂ÷±ÇÀÚ Ãֵ庸¶óÀÇ ÁöÀ§¸¦ ½Â°èÇÏ¿© ±Ç¸®½Å°í ¹× ¹è´ç¿ä±¸ÇÔ Ãֵ庸¶ó : ÁÖÅÃÀÓÂ÷±Ç µî±âÀÏÀº 2023.08.16.ÀÓ

¿©ÀÇÁÖ°æ¸Å Á¶¾ð ÇÑ ¸¶µð

¼±¼øÀ§ ÀÓÂ÷±Çµî±â°¡ µÇ¾î ÀÖ½À´Ï´Ù
´ëÇ×·ÂÀÌ ÀÖ´Â ¼±¼øÀ§ ÀÓÂ÷±Çµî±â ±Ç¸®ÀÚ°¡ ¹è´çÀ» Àü¾× ¹ÞÁö ¸øÇÒ °æ¿ì ³«ÂûÀÚ°¡ ÀÜ¿© º¸Áõ±ÝÀ» ÀμöÇØ¾ßÇÏ´Â °æ¿ìµµ ÀÖ½À´Ï´Ù.

ÁÖÀÇ»çÇ× (ÃÖ¼±¼øÀ§ ¼³Á¤ÀÏ: 2023.04.10. ¾Ð·ù ¼³Á¤)

¸Å°¢À¸·Î ¼Ò¸êµÇÁö ¾Ê´Â µî±âºÎ±Ç¸®:
¸Å°¢À¸·Î ¼³Á¤µÈ °ÍÀ¸·Î º¸´Â Áö»ó±Ç:
- ÁýÇÕ°ÇÃ๰´ëÀå»ó ¡®¿ÀÇǽºÅÚ¡¯·Î µîÀçµÇ¾î ÀÖÀ¸³ª, ÇöȲ ÁÖ°Å¿ëÀ¸·Î »ç¿ëÁßÀÓ - ÀÓÂ÷ÀÎ Ãֵ庸¶ó ¹× ÁÖÅÃÀÓÂ÷±Ç ½Â°èÀÎ ÁÖÅõµ½Ãº¸Áõ°ø»ç´Â ¸Å¼öÀο¡ ´ëÇÏ¿© ¹è´ç¹ÞÁö ¸øÇÏ´Â Àܾ׿¡ ´ëÇÑ ÀÓÂ÷º¸Áõ±Ý¹Ýȯ û±¸±ÇÀ» Æ÷±âÇϰí, ÁÖÅÃÀÓÂ÷±Çµî±â¸¦ ¸»¼ÒÇÏ´Â °ÍÀ» Á¶°ÇÀ¸·Î ¸Å°¢
¡Ø¹Ì³³°ü¸®ºñ(°ø¿ë) Àμö¿©ºÎ¸¦ ÀÔÂû Àü¿¡ È®ÀÎÇϽñ⠹ٶø´Ï´Ù

 

Áö¿ªºÐ¼®

ÁöÇÏö¸í Á÷¼±°Å¸®

Çб³¸í ÀüÈ­¹øÈ£ ÁÖ¼Ò Á÷¼±°Å¸®

¹ý¿ø

¼­¿ï³²ºÎÁö¹æ¹ý¿ø (080-88)¼­¿ïƯº°½Ã ¾çõ±¸ ½Å¿ù·Î 386(½ÅÁ¤µ¿)
´ëÇ¥ : 02)2192-1114
°üÇÒÁö¿ª : ¿µµîÆ÷±¸, °­¼­±¸, ¾çõ±¸, ±¸·Î±¸, ±Ýõ±¸

µî±â¼Ò ¼­¿ï³²ºÎÁö¹æ¹ý¿ø º»¿ø µî±â±¹ (´ëÇ¥:1544-0773, ÆÑ½º:(02)2629-7307, ¼­¿ïƯº°½Ã ¿µµîÆ÷±¸ °æÀηΠ772 (¹®·¡µ¿ 1°¡))
¼¼¹«¼­ °­¼­¼¼¹«¼­ (´ëÇ¥:02-2630-42, ÆÑ½º:02-2679-8777, ¼­¿ïƯº°½Ã °­¼­±¸ ¸¶°î¼­1·Î 60 (¸¶°îµ¿))

Àαٳ«ÂûÅë°è

±â°£ ¸Å°¢°Ç¼ö Æò±Õ°¨Á¤°¡
Æò±Õ¸Å°¢°¡
¸Å°¢°¡À²
Æò±ÕÀ¯Âû¼ö
3°³¿ù 162°Ç 268,967,835¿ø
221,802,153¿ø
82%
1.7ȸ
6°³¿ù 317°Ç 266,970,944¿ø
223,874,058¿ø
84%
1.6ȸ
12°³¿ù 456°Ç 267,773,661¿ø
222,887,569¿ø
83%
1.7ȸ


º» °æ¸ÅÁ¤º¸´Â ¹ý¿øÀÚ·á¿Í ÀÏÄ¡Çϵµ·Ï ÇÏ¿´À¸³ª ±Ç¸®»çÇ׺¯µ¿, ÀÔ·ÂÂø¿À µîÀÇ ¿øÀÎÀ¸·Î »ç½Ç°ú ´Ù¸¦ ¼ö ÀÖ½À´Ï´Ù. ÀÌ¿ë¾à°ü¿¡ ÀǰЏéÃ¥Á¶°ÇÀ¸·Î Á¦°øµÊÀ» ¾Ë¸®¸ç, °æ¸ÅÀÔÂû½Ã ¹Ýµå½Ã °ü·Ã °øºÎ¸¦ ÀçÈ®ÀÎÇϽñ⠹ٶø´Ï´Ù. º¸´Ù Æí¸®ÇÑ °æ¸ÅÁ¤º¸ Á¦°øÀ» À§ÇØ Áö¼ÓÀûÀ¸·Î °³¼±ÇϰڽÀ´Ï´Ù. ÀÌ¿ëÇØ Áּż­ °¨»çÇÕ´Ï´Ù.