·Î±×ÀÎ
1276
¾ÆÆÄÆ®
¼­¿ï³²ºÎÁö¹æ¹ý¿ø
 °¨Á¤°¡234,000,000 ¿ø
 ÃÖÀú°¡(64%) 149,760,000 ¿ø
 º¸Áõ±Ý(10%) 14,976,000 ¿ø
 Ã»±¸¾×230,000,000 ¿ø
¼­¿ïƯº°½Ã °­¼­±¸ È­°îµ¿ 899-21 ¾çÁö»þÀÎ¾ÆÆÄÆ® Á¦12Ãþ Á¦1202È£
»ç°Ç¹øÈ£ 2025Ÿ°æ10286
°æ¸ÅÁ¾·ùºÎµ¿»ê°­Á¦°æ¸Å
¸Å°¢´ë»óÅäÁö ¹× °Ç¹°Àϰý ¸Å°¢
¸Å°¢±âÀÏ    2026.04.16(¸ñ) 10:00 ÀÔÂû 6ÀÏÀü    
ÅäÁö¸éÀû7.20§³(2.18 Æò)
°Ç¹°¸éÀû20.63§³(6.24 Æò)
乫/¼ÒÀ¯ÀÚÁ¤OO / Á¤OO
ä±ÇÀÚÁÖOOOOOOO
ÆäÀ̽ººÏ Æ®À§ÅÍ ±¸±Û+
īī¿À½ºÅ丮
īī¿ÀÅå sms¹®ÀÚº¸³»±â
 

±âÀϳ»¿ª

°æ°ú ³¯Â¥ Àú°¨ ÃÖÀú°¡ °á°ú
Á¢¼öÀÏ 2025-06-09 °æ¸ÅÁ¢¼ö
~7ÀÏ 
2025-06-16 °æ¸Å°³½Ã°áÁ¤
~98ÀÏ 
2025-09-15 ¹è´ç¿ä±¸Á¾±âÀÏ
~226ÀÏ 
2026-01-21 100%
234,000,000
À¯Âû
~275ÀÏ 
2026-03-11 80%
187,200,000
À¯Âû
~311ÀÏ 
2026-04-16 64%
149,760,000
ÁøÇà
¹°°Ç¸í¼¼¼­ ÇöȲÁ¶»ç¼­ ¹®°ÇÁ¢¼ö ¼Û´Þ³»¿ª

°¨Á¤Æò°¡ÇöȲ

¸ñ·Ï ÁÖ¼Ò ±¸Á¶/¿ëµµ/´ëÁö±Ç ¸éÀû ºñ°í
´ëÁö±Ç
È­°îµ¿ 899-21 270.1ºÐÀÇ 7.2 7.2 §³
(2.18Æò)
°Ç¹°
È­°îµ¿ 899-21 Á¦12Ãþ Á¦1202È£ ö±ÙÄÜÅ©¸®Æ®±¸Á¶ 20.63 §³
(6.24Æò)
1) À§Ä¡/µµ½ÃÁö¿ª/ÁÖ°ÅÁö¿ª/ÀϹݻó¾÷Áö¿ª/Áö±¸´ÜÀ§°èȹ±¸¿ª/¹ö½ºÁ¤·ùÀå/ÁöÇÏö/ö±ÙÄÜÅ©¸®Æ®±¸Á¶/µµ½Ã°¡½º ´õº¸±â
°¨Á¤Æò°¡ ¿äÇ×Ç¥
1)À§Ä¡ ¹× ÁÖÀ§È¯°æ
º»°ÇÀº ¼­¿ïƯº°½Ã °­¼­±¸ È­°îµ¿ ¼ÒÀç ""±îÄ¡»ê¿ª(2,5È£¼±)"" ³²¼­Ãø Àαٿ¡ À§Ä¡Çϸç,
º»°Ç ÁÖÀ§´Â °øµ¿ÁÖÅÃ, ¿ÀÇǽºÅÚ ¹× °¢Á¾ ±Ù¸°»ýȰ½Ã¼³ µîÀÌ ¼ÒÀçÇÏ´Â ÁÖ°ÅÁö¿ªÀÓ.


2)±³Åë»óȲ
º»°Ç±îÁö Â÷·®ÀÇ ÃâÀÔÀÌ °¡´ÉÇϸç, Àαٿ¡ ¹ö½ºÁ¤·ùÀå ¹× ÁöÇÏö¿ª(±îÄ¡»ê¿ª, 2/5È£¼±))ÀÌ
¼ÒÀçÇÏ´Â µî ´ëÁß±³Åë ¿©°ÇÀº ¹«³­ÇÑ ÆíÀÓ.

3)°Ç¹°ÀÇ ±¸Á¶
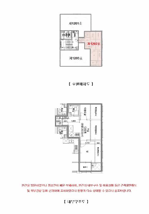
ö±ÙÄÜÅ©¸®Æ®±¸Á¶ (ö±Ù)ÄÜÅ©¸®Æ®ÁöºØ ÁöÇÏ1Ãþ/Áö»ó12Ãþ°Ç Áß Á¦12Ãþ Á¦1202È£·Î¼­
(»ç¿ë½ÂÀÎÀÏ:2018.12.24),

¿Üº® : º®µ¹ ¹× ¼®ÀçºÙÀÓ µî,
³»º® : - ,
âȣ : ¼¦½Ãâ µîÀÓ.


4)ÀÌ¿ë»óÅÂ
¾ÆÆÄÆ®·Î ÀÌ¿ëÁßÀÓ.<ÈÄ÷, ""³»ºÎ±¸Á¶µµ""ÂüÁ¶>

5)¼³ºñ³»¿ª
À§»ý¼³ºñ, ±Þ¹è¼ö¼³ºñ, ½Â°­±â, ÁÖÂ÷½Ã¼³, µµ½Ã°¡½º ¹× ³­¹æ¼³ºñ µîÀÌ ±¸ºñµÇ¾î ÀÖÀ½.


6)ÅäÁöÀÇ Çü»ó ¹× ÀÌ¿ë»óÅÂ
´ëü·Î À广Çü ÅäÁö·Î¼­, °ÇºÎÁö(°øµ¿ÁÖÅÃ(¾ÆÆÄÆ®) ¹× ¾÷¹«½Ã¼³(¿ÀÇǽºÅÚ))·Î ÀÌ¿ëÁßÀÓ.


7)ÀÎÁ¢ µµ·Î»óŵî
º»°Ç ³²ÃøÀ¸·Î ¾à6¹ÌÅÍ ³»¿ÜÀÇ µµ·Î¿Í Á¢Çϰí ÀÖÀ½.


8)ÅäÁöÀÌ¿ë°èȹ ¹× Á¦ÇÑ»óÅÂ
µµ½ÃÁö¿ª, ÀϹݻó¾÷Áö¿ª, Áß¿ä½Ã¼³¹°º¸È£Áö±¸(°øÇ×), Áö±¸´ÜÀ§°èȹ±¸¿ª, ¼Ò·Î3·ù(Æø 8m¹Ì¸¸)
(Á¢ÇÔ), °¡Ãà»çÀ°Á¦Çѱ¸¿ª(Áö¿ª°æÁ¦°ú È®ÀÎ ¿ä¸Á), ¼öÆòÇ¥¸é±¸¿ª(¼öÆòÇ¥¸é), ´ë°ø¹æ¾îÇùÁ¶±¸
¿ª(À§Å¹°íµµ:77-257m), °ú¹Ð¾ïÁ¦±Ç¿ªÀÓ.



9)°øºÎ¿ÍÀÇ Â÷ÀÌ
-.

10)±âŸÂü°í»çÇ×(ÀÓ´ë°ü·Ê ¹× ±âŸ)
- ÀÓ´ë°ü°è ¹Ì»óÀÓ.


°ÇÃ๰ÇöȲ

¼ÒÀçÁö ¼­¿ïƯº°½Ã °­¼­±¸ È­°îµ¿ 899-21¹øÁö
´ëÁö¸éÀû 270.1§³
(81.85Æò)
¿¬¸éÀû 1353.93§³
(410.28Æò)
°ÇÃà¸éÀû 159.28§³
(48.27Æò)
¿ëÀû·ü»êÁ¤
¿¬¸éÀû
1125.89§³
(341.18Æò)
°ÇÆóÀ² 58.97% ¿ëÀû·ü 416.84%
Áö»óÃþ¼ö 12Ãþ ÁöÇÏÃþ¼ö 1Ãþ
ÁÖ¿ëµµ °øµ¿ÁÖÅà ±¸Á¶ ö±ÙÄÜÅ©¸®Æ®±¸Á¶
Âø°øÀÏÀÚ 2018.03.05 »ç¿ë½ÂÀÎÀÏÀÚ 2018.12.24
°ÇÃ๰Ãþº°ÇöȲ [º¸±â]


±¹ÅäºÎ½Ç°Å·¡°¡ ¼­¿ïƯº°½Ã °­¼­±¸ È­°îµ¿

¡Ü ¸Å¸Å

¸éÀû(§³), ±Ý¾×(¸¸¿ø)

¡Ü Àü¼¼

¸éÀû(§³), ±Ý¾×(¸¸¿ø)

°è¾àÀÏARTÃþÀü¿ëº¸Áõ±Ý¿ù¼¼°ÇÃà
25.12.05¾çÁö»þÀÎ¾ÆÆÄÆ®820.3724,3002018
25.07.08¾çÁö»þÀÎ¾ÆÆÄÆ®820.6320,50002018
25.07.02¾çÁö»þÀÎ¾ÆÆÄÆ®1220.3718,050192018
25.06.12¾çÁö»þÀÎ¾ÆÆÄÆ®1120.3715,00002018
25.05.16¾çÁö»þÀÎ¾ÆÆÄÆ®1120.371,300852018
¢Ñ ´õº¸±â

µî±âºÎµîº» ¿ä¾à(°Ç¹°)

  Á¢¼öÀÏÀÚ µî±â¸ñÀû/±Ç¸®ÀÚ ±Ç¸®±Ý¾× ±âÁØ
1 2019³â4¿ù17ÀÏ
¼ÒÀ¯±Ç
Á¤OO
¼Ò¸ê
2 2022³â12¿ù8ÀÏ
¾àÁ¤/±ÝÁö»çÇ×/ȯ¸ÅƯ¾à
Àμö
3 2023³â7¿ù25ÀÏ
¾Ð·ù
±¹
¼Ò¸ê±âÁØ
4 2024³â3¿ù4ÀÏ
°¡¾Ð·ù
ÀüOOOO
5,224,051 ¼Ò¸ê
5 2024³â4¿ù3ÀÏ
ÀÓÂ÷±Ç¼³Á¤
±èOO
230,000,000 ¼Ò¸ê
6 2025³â6¿ù16ÀÏ
°­Á¦°æ¸Å
ÁÖOOOO
¼Ò¸ê

ÀÓÂ÷ÀÎÇöȲ (¹è´ç¿ä±¸Á¾±âÀÏ: 2025-09-15)

ÀÓÂ÷ÀÎ ¿ëµµ/Á¡À¯ º¸Áõ±Ý/¿ù¼¼ ´ëÇ×·Â
ÀüÀÔÀÏ/È®Á¤ÀÏ ¹è´ç¿ä±¸ ºñ°í
±èOO °Ç¹°ÀüºÎ 230,000,000
O
2022.03.25
2022.02.28
2022.03.26 ~
ÁÖOOOOOOO 1202È£ÀüºÎ 230,000,000
2022.03.25(±è¼±¸í)
2022.02.28
2025.6.30. 2022.03.26 ~2024.03.25
ºñ°í
(¸Å°¢¹°°Ç
¸í¼¼¼­)
±è¼±¸í : ÁÖÅÃÀÓÂ÷±Ç µî±âÀÏÀº 2024.04.03.ÀÓ ÁÖÅõµ½Ãº¸Áõ°ø»ç : ÀÌ »ç°Ç ½Åûä±ÇÀÚ·Î ÁÖÅÃÀÓÂ÷±ÇÀÚ ±è¼±¸íÀÇ ÁöÀ§¸¦ ½Â°èÇÏ¿© ±Ç¸®½Å°í ¹× ¹è´ç¿ä±¸ÇÔ

¿©ÀÇÁÖ°æ¸Å Á¶¾ð ÇÑ ¸¶µð

¼±¼øÀ§ ÀÓÂ÷±Çµî±â°¡ µÇ¾î ÀÖ½À´Ï´Ù
´ëÇ×·ÂÀÌ ÀÖ´Â ¼±¼øÀ§ ÀÓÂ÷±Çµî±â ±Ç¸®ÀÚ°¡ ¹è´çÀ» Àü¾× ¹ÞÁö ¸øÇÒ °æ¿ì ³«ÂûÀÚ°¡ ÀÜ¿© º¸Áõ±ÝÀ» ÀμöÇØ¾ßÇÏ´Â °æ¿ìµµ ÀÖ½À´Ï´Ù.

ÁÖÀÇ»çÇ× (ÃÖ¼±¼øÀ§ ¼³Á¤ÀÏ: 2023.07.25. ¾Ð·ù ¼³Á¤)

¸Å°¢À¸·Î ¼Ò¸êµÇÁö ¾Ê´Â µî±âºÎ±Ç¸®: - À»±¸ 2022.03.25, È®Á¤ÀÏÀÚ 2022.02.28) ¹è´ç¿¡¼­ º¸Áõ±ÝÀÌ Àü¾× º¯Á¦µÇÁö ¾ÊÀ¸¸é Àܾ×À» ¸Å¼öÀÎÀÌ ÀμöÇÔ 1¹ø ÁÖÅÃÀÓÂ÷±Ç µî±â¿Í °ü·ÃÇÏ¿© ¸Å¼öÀο¡°Ô ´ëÇ×ÇÒ ¼ö ÀÖ´Â ÀÓÂ÷ÀÎÀÌ ÀÖÀ½(ÀÓÂ÷º¸Áõ±Ý
¸Å°¢À¸·Î ¼³Á¤µÈ °ÍÀ¸·Î º¸´Â Áö»ó±Ç:
¡Ø¹Ì³³°ü¸®ºñ(°ø¿ë) Àμö¿©ºÎ¸¦ ÀÔÂû Àü¿¡ È®ÀÎÇϽñ⠹ٶø´Ï´Ù

 

Áö¿ªºÐ¼®

ÁöÇÏö¸í Á÷¼±°Å¸®

Çб³¸í ÀüÈ­¹øÈ£ ÁÖ¼Ò Á÷¼±°Å¸®

¹ý¿ø

¼­¿ï³²ºÎÁö¹æ¹ý¿ø (080-88)¼­¿ïƯº°½Ã ¾çõ±¸ ½Å¿ù·Î 386(½ÅÁ¤µ¿)
´ëÇ¥ : 02)2192-1114
°üÇÒÁö¿ª : ¿µµîÆ÷±¸, °­¼­±¸, ¾çõ±¸, ±¸·Î±¸, ±Ýõ±¸

µî±â¼Ò ¼­¿ï³²ºÎÁö¹æ¹ý¿ø º»¿ø µî±â±¹ (´ëÇ¥:1544-0773, ÆÑ½º:(02)2629-7307, ¼­¿ïƯº°½Ã ¿µµîÆ÷±¸ °æÀηΠ772 (¹®·¡µ¿ 1°¡))
¼¼¹«¼­ °­¼­¼¼¹«¼­ (´ëÇ¥:02-2630-42, ÆÑ½º:02-2679-8777, ¼­¿ïƯº°½Ã °­¼­±¸ ¸¶°î¼­1·Î 60 (¸¶°îµ¿))

Àαٳ«ÂûÅë°è

±â°£ ¸Å°¢°Ç¼ö Æò±Õ°¨Á¤°¡
Æò±Õ¸Å°¢°¡
¸Å°¢°¡À²
Æò±ÕÀ¯Âû¼ö
3°³¿ù 19°Ç 661,210,526¿ø
628,830,328¿ø
91%
1.7ȸ
6°³¿ù 40°Ç 699,450,000¿ø
649,048,182¿ø
88%
1.9ȸ
12°³¿ù 74°Ç 672,675,676¿ø
621,511,523¿ø
90%
1.7ȸ


º» °æ¸ÅÁ¤º¸´Â ¹ý¿øÀÚ·á¿Í ÀÏÄ¡Çϵµ·Ï ÇÏ¿´À¸³ª ±Ç¸®»çÇ׺¯µ¿, ÀÔ·ÂÂø¿À µîÀÇ ¿øÀÎÀ¸·Î »ç½Ç°ú ´Ù¸¦ ¼ö ÀÖ½À´Ï´Ù. ÀÌ¿ë¾à°ü¿¡ ÀǰЏéÃ¥Á¶°ÇÀ¸·Î Á¦°øµÊÀ» ¾Ë¸®¸ç, °æ¸ÅÀÔÂû½Ã ¹Ýµå½Ã °ü·Ã °øºÎ¸¦ ÀçÈ®ÀÎÇϽñ⠹ٶø´Ï´Ù. º¸´Ù Æí¸®ÇÑ °æ¸ÅÁ¤º¸ Á¦°øÀ» À§ÇØ Áö¼ÓÀûÀ¸·Î °³¼±ÇϰڽÀ´Ï´Ù. ÀÌ¿ëÇØ Áּż­ °¨»çÇÕ´Ï´Ù.