·Î±×ÀÎ
1165
¿ÀÇǽºÅÚ
¼­¿ï³²ºÎÁö¹æ¹ý¿ø
 °¨Á¤°¡294,000,000 ¿ø
 ÃÖÀú°¡(64%) 188,160,000 ¿ø
 º¸Áõ±Ý(10%) 18,816,000 ¿ø
 Ã»±¸¾×251,000,000 ¿ø
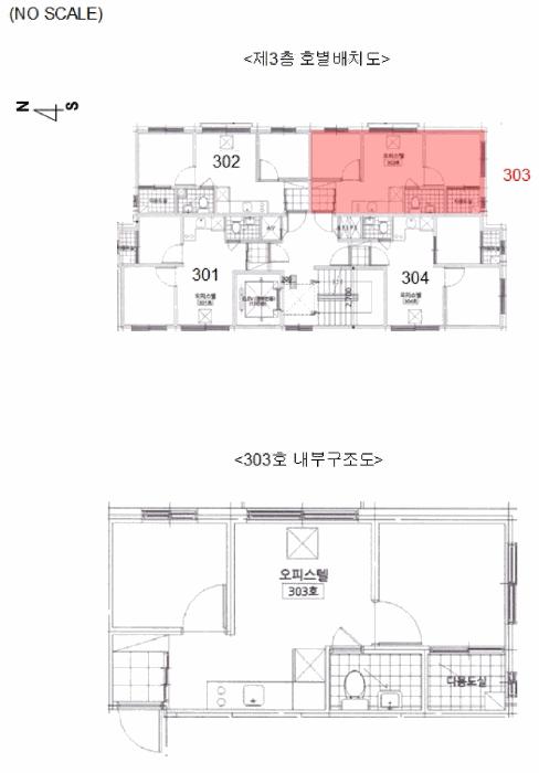
¼­¿ïƯº°½Ã °­¼­±¸ ¿ùÁ¤·Î20±æ 19, Á¦3Ãþ Á¦303È£ (È­°îµ¿, À£Å¸¿îºñ)
¼­¿ïƯº°½Ã °­¼­±¸ È­°îµ¿ 938-5
»ç°Ç¹øÈ£ 2025Ÿ°æ6544
°æ¸ÅÁ¾·ùºÎµ¿»ê°­Á¦°æ¸Å
¸Å°¢´ë»óÅäÁö ¹× °Ç¹°Àϰý ¸Å°¢
¸Å°¢±âÀÏ    2026.04.16(¸ñ) 10:00 ÀÔÂû 5ÀÏÀü    
ÅäÁö¸éÀû7.95§³(2.40 Æò)
°Ç¹°¸éÀû29.85§³(9.03 Æò)
乫/¼ÒÀ¯ÀÚ¹®OO / ¹®OO
ä±ÇÀÚÁÖOOOOOOO
ÆäÀ̽ººÏ Æ®À§ÅÍ ±¸±Û+
īī¿À½ºÅ丮
īī¿ÀÅå sms¹®ÀÚº¸³»±â
 

±âÀϳ»¿ª

°æ°ú ³¯Â¥ Àú°¨ ÃÖÀú°¡ °á°ú
Á¢¼öÀÏ 2025-01-16 °æ¸ÅÁ¢¼ö
~19ÀÏ 
2025-02-04 °æ¸Å°³½Ã°áÁ¤
~116ÀÏ 
2025-05-12 ¹è´ç¿ä±¸Á¾±âÀÏ
~370ÀÏ 
2026-01-21 100%
294,000,000
À¯Âû
~419ÀÏ 
2026-03-11 80%
235,200,000
À¯Âû
~455ÀÏ 
2026-04-16 64%
188,160,000
ÁøÇà
¹°°Ç¸í¼¼¼­ ÇöȲÁ¶»ç¼­ ¹®°ÇÁ¢¼ö ¼Û´Þ³»¿ª

°¨Á¤Æò°¡ÇöȲ

¸ñ·Ï ÁÖ¼Ò ±¸Á¶/¿ëµµ/´ëÁö±Ç ¸éÀû ºñ°í
´ëÁö±Ç
È­°îµ¿ 938-5 349.7ºÐÀÇ 7.9451 7.9451 §³
(2.40Æò)
°Ç¹°
È­°îµ¿ 938-5 Á¦3Ãþ Á¦303È£ ö±ÙÄÜÅ©¸®Æ®±¸Á¶ 29.85 §³
(9.03Æò)
1) À§Ä¡/µµ½ÃÁö¿ª/ÀϹݻó¾÷Áö¿ª/Áö±¸´ÜÀ§°èȹ±¸¿ª/Â÷·®ÃâÀÔ °¡´É/³ë¼±¹ö½ºÁ¤·ùÀå/ö±ÙÄÜÅ©¸®Æ®±¸Á¶/Æò½º¶óºêÁöºØ ´õº¸±â
°¨Á¤Æò°¡ ¿äÇ×Ç¥
1)À§Ä¡ ¹× ÁÖÀ§È¯°æ
º»°ÇÀº ¼­¿ïƯº°½Ã °­¼­±¸ È­°îµ¿ ¼ÒÀç È­°î1µ¿Áֹμ¾ÅÍ ³²¼­Ãø Àαٿ¡ À§Ä¡Çϰí ÀÖ
À¸¸ç ºÎ±ÙÀº ¾÷¹« ¹× »ó¾÷¿ë°Ç¹°, ÁÖ»óº¹Çհǹ°, ¿ÀÇǽºÅÚ, µîÀÌ È¥ÀçÇÏ´Â Áö¿ªÀ¸·Î
Á¦¹Ý ÁÖÀ§È¯°æ º¸ÅëÀÓ.
2)±³Åë»óȲ
º»°ÇÀ¸·Î Â÷·®ÃâÀÔ °¡´ÉÇϰí Àα٠µµ·Î¿¡ ³ë¼±¹ö½ºÁ¤·ùÀåÀÌ ¼ÒÀçÇÏ´Â µî Á¦¹Ý ±³Åë
¿©°ÇÀº º¸ÅëÀÓ.
3)°Ç¹°ÀÇ ±¸Á¶
ö±ÙÄÜÅ©¸®Æ®±¸Á¶ Æò½º¶óºêÁöºØ 12Ãþ °ÇÀ¸·Î
¿Üº® : ¼®ÀçÄ¡Àå ¸¶°¨ µî
³»º® : º®Áö ¹× ŸÀϸ¶°¨ µî
âȣ : »õ½Ãâȣ
4)ÀÌ¿ë»óÅÂ
¿ÀÇǽºÅÚ·Î ÀÌ¿ëÁßÀÓ.
5)¼³ºñ³»¿ª
±Þ¹è¼ö¼³ºñ, À§»ý¼³ºñ, ¼Ò¹æ¼³ºñ, ³­¹æ¼³ºñ, ½Â°­±â¼³ºñ, ±â°è½ÄÁÖÂ÷¼³ºñ µî
6)ÅäÁöÀÇ Çü»ó ¹× ÀÌ¿ë»óÅÂ
2ÇÊÁö ÀÏ´ÜÀÇ ¼¼ÀåÇüÀÇ ÆòÁö·Î ¾÷¹«½Ã¼³ 1°³µ¿ÀÇ °ÇºÎÁöÀÓ.
7)ÀÎÁ¢ µµ·Î»óŵî
³²ÃøÀ¸·Î Æø ¾à 6¹ÌÅÍ µµ·Î¿¡ Á¢ÇÔ.
8)ÅäÁöÀÌ¿ë°èȹ ¹× Á¦ÇÑ»óÅÂ
µµ½ÃÁö¿ª, ÀϹݻó¾÷Áö¿ª, Áß¿ä½Ã¼³¹°º¸È£Áö±¸(°øÇ×), Áö±¸´ÜÀ§°èȹ±¸¿ª, ¼Ò·Î3·ù(Æø
8m ¹Ì¸¸)(Á¢ÇÕ) °¡Ãà»çÀ°Á¦Çѱ¸¿ª(Áö¿ª°æÁ¦°ú È®ÀÎ ¿ä¸Á)<°¡ÃàºÐ´¢ÀÇ °ü¸® ¹× À̿뿡
°üÇѹý·ü>, ÁøÀÔÇ¥¸é±¸¿ª(ÁøÀÔÇ¥¸é)<°øÇ׽ü³¹ý>, ´ë°ø¹æ¾îÇùÁ¶±¸¿ª(À§Å¹°íµµ:77-257m)
<±º»ç±âÁö¹× ±º»ç½Ã¼³ º¸È£¹ý>, °ú¹Ð¾ïÁ¦±Ç¿ª<¼öµµ±ÇÁ¤ºñ°èȹ¹ý>
9)°øºÎ¿ÍÀÇ Â÷ÀÌ
¾ø À½.
10)±âŸÂü°í»çÇ×(ÀÓ´ë°ü·Ê ¹× ±âŸ)
¹Ì»óÀÓ.

º»°ÇÀÇ ³»ºÎ±¸Á¶ ¹× ÀÌ¿ë»óȲÀº Æó¹®ºÎÀç·Î ÀÎÇØ °ü·Ã°øºÎ»ó µîÀçµÈ ÇöȲµµ¸é µîÀ» ÅëÇØ
ÆÄ¾ÇÇÑ ¹Ù ÂüÀÛ¹Ù¶÷.
Âü°í
»çÇ×
- ÀÓÂ÷ÀÎ ¹× ÁÖÅÃÀÓÂ÷±Ç ½Â°èÀÎ ÁÖÅõµ½Ãº¸Áõ°ø»çÀÇ ¹è´ç¹ÞÁö ¸øÇÏ´Â Àܾ׿¡ ´ëÇÑ ÀÓÂ÷º¸Áõ±Ý¹Ýȯû±¸±Ç Æ÷±â Á¶°Ç ¸Å°¢

°ÇÃ๰ÇöȲ

¼ÒÀçÁö ¼­¿ïƯº°½Ã °­¼­±¸ È­°îµ¿ 938-5¹øÁö
´ëÁö¸éÀû 349.7§³
(105.97Æò)
¿¬¸éÀû 1811.56§³
(548.96Æò)
°ÇÃà¸éÀû 178.17§³
(53.99Æò)
¿ëÀû·ü»êÁ¤
¿¬¸éÀû
1564.13§³
(473.98Æò)
°ÇÆóÀ² 50.95% ¿ëÀû·ü 447.28%
Áö»óÃþ¼ö 12Ãþ ÁöÇÏÃþ¼ö 1Ãþ
ÁÖ¿ëµµ ¾÷¹«½Ã¼³ ±¸Á¶ ö±ÙÄÜÅ©¸®Æ®±¸Á¶
Âø°øÀÏÀÚ 2019.09.20 »ç¿ë½ÂÀÎÀÏÀÚ 2020.08.14
°ÇÃ๰Ãþº°ÇöȲ [º¸±â]


±¹ÅäºÎ½Ç°Å·¡°¡ ¼­¿ïƯº°½Ã °­¼­±¸ È­°îµ¿

¡Ü ¸Å¸Å

¸éÀû(§³), ±Ý¾×(¸¸¿ø)

¡Ü Àü¼¼

¸éÀû(§³), ±Ý¾×(¸¸¿ø)

°è¾àÀϰǹ°¸íĪÃþÀü¿ëº¸Áõ±Ý¿ù¼¼°ÇÃà
25.12.23À£Å¸¿îB329.913,000902020
25.01.24À£Å¸¿îB829.88250602020

µî±âºÎµîº» ¿ä¾à(°Ç¹°)

  Á¢¼öÀÏÀÚ µî±â¸ñÀû/±Ç¸®ÀÚ ±Ç¸®±Ý¾× ±âÁØ
1 2021³â2¿ù5ÀÏ
¼ÒÀ¯±Ç
¹®OO
¼Ò¸ê
2 2021³â2¿ù5ÀÏ
¾àÁ¤/±ÝÁö»çÇ×/ȯ¸ÅƯ¾à
Àμö
3 2023³â2¿ù17ÀÏ
ÀÓÂ÷±Ç¼³Á¤
ÀÌOO
251,000,000 Àμö
4 2023³â8¿ù10ÀÏ
°¡¾Ð·ù
ÁÖOOOO
1,132,000,000 ¼Ò¸ê±âÁØ
5 2023³â11¿ù28ÀÏ
¾Ð·ù
±¹
¼Ò¸ê
6 2025³â2¿ù5ÀÏ
°­Á¦°æ¸Å
ÁÖOOOO
¼Ò¸ê

ÀÓÂ÷ÀÎÇöȲ (¹è´ç¿ä±¸Á¾±âÀÏ: 2025-05-12)

ÀÓÂ÷ÀÎ ¿ëµµ/Á¡À¯ º¸Áõ±Ý/¿ù¼¼ ´ëÇ×·Â
ÀüÀÔÀÏ/È®Á¤ÀÏ ¹è´ç¿ä±¸ ºñ°í
ÀÌOO °Ç¹°ÀüºÎ 251,000,000
O
2021.02.05
2020.12.29
2021.02.05 ~
ÁÖOOOOOOO 303È£ÀüºÎ 251,000,000
2021.02.05(À̹ÎÁ¤)
2020.12.29
2025.4.17. 2021.02.05 ~2023.06.05
ºñ°í
(¸Å°¢¹°°Ç
¸í¼¼¼­)
À̹ÎÁ¤ : ÁÖÅÃÀÓÂ÷±Ç µî±âÀÏÀº 2023.02.17.ÀÓ ÁÖÅõµ½Ãº¸Áõ°ø»ç : ÀÌ »ç°Ç ½Åûä±ÇÀÚ·Î ÁÖÅÃÀÓÂ÷±ÇÀÚ À̹ÎÁ¤ÀÇ ÁöÀ§¸¦ ½Â°èÇÏ¿© ±Ç¸®½Å°í ¹× ¹è´ç¿ä±¸ÇÔ

¿©ÀÇÁÖ°æ¸Å Á¶¾ð ÇÑ ¸¶µð

¼±¼øÀ§ ÀÓÂ÷±Çµî±â°¡ µÇ¾î ÀÖ½À´Ï´Ù
´ëÇ×·ÂÀÌ ÀÖ´Â ¼±¼øÀ§ ÀÓÂ÷±Çµî±â ±Ç¸®ÀÚ°¡ ¹è´çÀ» Àü¾× ¹ÞÁö ¸øÇÒ °æ¿ì ³«ÂûÀÚ°¡ ÀÜ¿© º¸Áõ±ÝÀ» ÀμöÇØ¾ßÇÏ´Â °æ¿ìµµ ÀÖ½À´Ï´Ù.

ÁÖÀÇ»çÇ× (ÃÖ¼±¼øÀ§ ¼³Á¤ÀÏ: 2023.08.10. °¡¾Ð·ù ¼³Á¤)

¸Å°¢À¸·Î ¼Ò¸êµÇÁö ¾Ê´Â µî±âºÎ±Ç¸®:
¸Å°¢À¸·Î ¼³Á¤µÈ °ÍÀ¸·Î º¸´Â Áö»ó±Ç:
- ÁýÇÕ°ÇÃ๰´ëÀå»ó ¡®¿ÀÇǽºÅÚ¡¯·Î µîÀçµÇ¾î ÀÖÀ¸³ª, ÇöȲ ÁÖ°Å¿ëÀ¸·Î »ç¿ëÁßÀÓ - ÀÓÂ÷ÀÎ À̹ÎÁ¤ ¹× ÁÖÅÃÀÓÂ÷±Ç ½Â°èÀÎ ÁÖÅõµ½Ãº¸Áõ°ø»ç´Â ¸Å¼öÀο¡ ´ëÇÏ¿© ¹è´ç¹ÞÁö ¸øÇÏ´Â Àܾ׿¡ ´ëÇÑ ÀÓÂ÷º¸Áõ±Ý¹Ýȯû ±¸±ÇÀ» Æ÷±âÇϰí, ÁÖÅÃÀÓÂ÷±Çµî±â¸¦ ¸»¼ÒÇÏ´Â °ÍÀ» Á¶°ÇÀ¸·Î ¸Å°¢
¡Ø¹Ì³³°ü¸®ºñ(°ø¿ë) Àμö¿©ºÎ¸¦ ÀÔÂû Àü¿¡ È®ÀÎÇϽñ⠹ٶø´Ï´Ù

 

Áö¿ªºÐ¼®

ÁöÇÏö¸í Á÷¼±°Å¸®

Çб³¸í ÀüÈ­¹øÈ£ ÁÖ¼Ò Á÷¼±°Å¸®

¹ý¿ø

¼­¿ï³²ºÎÁö¹æ¹ý¿ø (080-88)¼­¿ïƯº°½Ã ¾çõ±¸ ½Å¿ù·Î 386(½ÅÁ¤µ¿)
´ëÇ¥ : 02)2192-1114
°üÇÒÁö¿ª : ¿µµîÆ÷±¸, °­¼­±¸, ¾çõ±¸, ±¸·Î±¸, ±Ýõ±¸

µî±â¼Ò ¼­¿ï³²ºÎÁö¹æ¹ý¿ø º»¿ø µî±â±¹ (´ëÇ¥:1544-0773, ÆÑ½º:(02)2629-7307, ¼­¿ïƯº°½Ã ¿µµîÆ÷±¸ °æÀηΠ772 (¹®·¡µ¿ 1°¡))
¼¼¹«¼­ °­¼­¼¼¹«¼­ (´ëÇ¥:02-2630-42, ÆÑ½º:02-2679-8777, ¼­¿ïƯº°½Ã °­¼­±¸ ¸¶°î¼­1·Î 60 (¸¶°îµ¿))

Àαٳ«ÂûÅë°è

±â°£ ¸Å°¢°Ç¼ö Æò±Õ°¨Á¤°¡
Æò±Õ¸Å°¢°¡
¸Å°¢°¡À²
Æò±ÕÀ¯Âû¼ö
3°³¿ù 93°Ç 256,258,065¿ø
177,385,349¿ø
70%
2.3ȸ
6°³¿ù 254°Ç 264,447,989¿ø
205,799,159¿ø
78%
1.9ȸ
12°³¿ù 482°Ç 265,298,318¿ø
214,509,193¿ø
81%
1.7ȸ


º» °æ¸ÅÁ¤º¸´Â ¹ý¿øÀÚ·á¿Í ÀÏÄ¡Çϵµ·Ï ÇÏ¿´À¸³ª ±Ç¸®»çÇ׺¯µ¿, ÀÔ·ÂÂø¿À µîÀÇ ¿øÀÎÀ¸·Î »ç½Ç°ú ´Ù¸¦ ¼ö ÀÖ½À´Ï´Ù. ÀÌ¿ë¾à°ü¿¡ ÀǰЏéÃ¥Á¶°ÇÀ¸·Î Á¦°øµÊÀ» ¾Ë¸®¸ç, °æ¸ÅÀÔÂû½Ã ¹Ýµå½Ã °ü·Ã °øºÎ¸¦ ÀçÈ®ÀÎÇϽñ⠹ٶø´Ï´Ù. º¸´Ù Æí¸®ÇÑ °æ¸ÅÁ¤º¸ Á¦°øÀ» À§ÇØ Áö¼ÓÀûÀ¸·Î °³¼±ÇϰڽÀ´Ï´Ù. ÀÌ¿ëÇØ Áּż­ °¨»çÇÕ´Ï´Ù.