·Î±×ÀÎ
16
±Ù¸°ÁÖÅÃ
¿ï»êÁö¹æ¹ý¿ø
 °¨Á¤°¡859,115,680 ¿ø
 ÃÖÀú°¡(100%) 859,115,680 ¿ø
 º¸Áõ±Ý(10%) 85,911,568 ¿ø
 Ã»±¸¾×329,639,630 ¿ø
¿ï»ê±¤¿ª½Ã ¿ïÁÖ±º ¹ü¼­À¾ ±¸¿µ¸® 129-3
»ç°Ç¹øÈ£ 2024Ÿ°æ7156
°æ¸ÅÁ¾·ùºÎµ¿»êÀÓÀǰæ¸Å
¸Å°¢´ë»óÅäÁö ¹× °Ç¹°Àϰý¸Å°¢
¸Å°¢±âÀÏ    2026.01.21(¼ö) 10:00 ÀÔÂû 10ÀÏÀü    
ÅäÁö¸éÀû225.00§³(68.06 Æò)
°Ç¹°¸éÀû358.84§³(108.55 Æò)
乫/¼ÒÀ¯ÀÚ±èOO / ±èOO
ä±ÇÀÚ¿ïOOOOOOOO
ÆäÀ̽ººÏ Æ®À§ÅÍ ±¸±Û+
īī¿À½ºÅ丮
īī¿ÀÅå sms¹®ÀÚº¸³»±â
 

±âÀϳ»¿ª

°æ°ú ³¯Â¥ Àú°¨ ÃÖÀú°¡ °á°ú
Á¢¼öÀÏ 2024-08-26 °æ¸ÅÁ¢¼ö
~2ÀÏ 
2024-08-28 °æ¸Å°³½Ã°áÁ¤
~94ÀÏ 
2024-11-28 ¹è´ç¿ä±¸Á¾±âÀÏ
~513ÀÏ 
2026-01-21 100%
859,115,680
ÁøÇà
¹°°Ç¸í¼¼¼­ ÇöȲÁ¶»ç¼­ ¹®°ÇÁ¢¼ö ¼Û´Þ³»¿ª

°¨Á¤Æò°¡ÇöȲ

¸ñ·Ï ÁÖ¼Ò ±¸Á¶/¿ëµµ/´ëÁö±Ç ¸éÀû ºñ°í
ÅäÁö
±¸¿µ¸® 129-3 ´ë 225 §³
(68.06Æò)
°Ç¹°
±¸¿µ¸® 129-3 1Ãþ ±Ù¸°»ýȰ½Ã¼³ ö±ÙÄÜÅ©¸®Æ®±¸Á¶ 129.42 §³
(39.15Æò)
±¸¿µ¸® 129-3 2Ãþ ÁÖÅà ö±ÙÄÜÅ©¸®Æ®±¸Á¶ 114.71 §³
(34.70Æò)
±¸¿µ¸® 129-3 3Ãþ ÁÖÅà ö±ÙÄÜÅ©¸®Æ®±¸Á¶ 114.71 §³
(34.70Æò)
1) À§Ä¡/Á¦2Á¾ÀϹÝÁÖ°ÅÁö¿ª/Áö±¸´ÜÀ§°èȹ±¸¿ª/Â÷·®ÃâÀÔ °¡´É/ö±ÙÄÜÅ©¸®Æ®±¸Á¶/µµ½Ã°¡½º ´õº¸±â
°¨Á¤Æò°¡ ¿äÇ×Ç¥
1)À§Ä¡ ¹× ÁÖÀ§È¯°æ
º»°ÇÀº ¿ï»ê±¤¿ª½Ã ¿ïÁÖ±º ¹ü¼­À¾ ±¸¿µ¸® ¼ÒÀç "¹ü¼­ÁßÇб³" µ¿Ãø Àαٿ¡ À§Ä¡Çϸç ÁÖÀ§´Â ÁÖÅà ¹× ±Ù¸°»ýȰ½Ã¼³ µîÀ¸·Î Çü¼ºµÇ¾î ÀÖ½À´Ï´Ù.
2)±³Åë»óȲ
º»°Ç±îÁö Â÷·®ÃâÀÔ °¡´ÉÇÏ¸ç ´ëÁß±³Åë»çÁ¤Àº º¸Åë½Ã µË´Ï´Ù.
3)ÇüÅ ¹× ÀÌ¿ë»óÅÂ
ÀαÙÁö¿Í µî°íÆòźÇÑ °¡ÀåÇüÀÇ ÅäÁö·Î¼­ ÁÖ»ó¿ë °ÇºÎÁö·Î ÀÌ¿ë ÁßÀÔ´Ï´Ù.
4)ÀÎÁ¢ µµ·Î»óÅÂ
¼­ÃøÀ¸·Î Æø ¾à 8M µµ·Î¿¡ Á¢ÇÕ´Ï´Ù.
5)ÅäÁöÀÌ¿ë°èȹ ¹× Á¦ÇÑ»óÅÂ
Á¦2Á¾ÀϹÝÁÖ°ÅÁö¿ª, Áö±¸´ÜÀ§°èȹ±¸¿ª(±¸¿µÅÃÁöÁö±¸), ¼Ò·Î2·ù(Æø 8m-10m)(Á¢ÇÕ) °¡Ãà»çÀ°Á¦Çѱ¸¿ª(2024-06-27)(ÃàÁ¾º° Á¦ÇѰŸ® 250m ¹Ì¸¸ ÃàÁ¾)<°¡ÃàºÐ´¢ÀÇ °ü¸® ¹× À̿뿡 °üÇÑ ¹ý·ü>, »ó´ëº¸È£±¸¿ª<±³À°È¯°æ º¸È£¿¡ °üÇÑ ¹ý·ü>, »ó´ëº¸È£±¸¿ª(2014-03-24)<±³À°È¯°æ º¸È£¿¡ °üÇÑ ¹ý·ü>, ÅÃÁö°³¹ßÁö±¸<ÅÃÁö°³¹ßÃËÁø¹ý>
6)Á¦½Ã¸ñ·Ï ¿ÜÀÇ ¹°°Ç
¾ø½À´Ï´Ù
7)°øºÎ¿ÍÀÇ Â÷ÀÌ
¾ø½À´Ï´Ù.
8)±âŸÂü°í»çÇ×(ÀÓ´ë°ü·Ê ¹× ±âŸ)
1.ÀÓ´ë°ü°è»çÇ× ¹Ì»óÀÔ´Ï´Ù.
2.±âŸ:¾ø½À´Ï´Ù
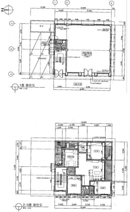
1)°Ç¹°ÀÇ ±¸Á¶
ö±ÙÄÜÅ©¸®Æ®±¸Á¶ (ö±Ù)ÄÜÅ©¸®Æ®ÁöºØ 3Ãþ °Ç¹°·Î¼­
¿Üº®: Ä¡Àåµ¹ ºÙÀÓ µî ¸¶°¨
³»º®: ¸ôÅ» ¹× º®Áö¸¶°¨
âȣ: ¼¦½Ãâȣ
2)ÀÌ¿ë»óÅÂ
1Ãþ:±Ù¸°»ýȰ½Ã¼³(¼³ºñ¾÷ü)
2,3Ãþ: ÁÖÅÃ
3)¼³ºñ³»¿ª
À§»ý¼³ºñ ¹× ±Þ.¹è¼ö½Ã¼³ÀÌ µÇ¾î ÀÖÀ¸¸ç, 2-3Ãþ¿¡ µµ½Ã°¡½º¼³ºñ°¡ µÇ¾î ÀÖ½À´Ï´Ù.
4)ºÎÇÕ¹° ¹× Á¾¹°
¾ø½À´Ï´Ù.
5)°øºÎ¿ÍÀÇ Â÷ÀÌ
¾ø½À´Ï´Ù.

6)±âŸÂü°í»çÇ×(ÀÓ´ë°ü·Ê ¹× ±âŸ)
ÀÓ´ë°ü°è´Â ¹Ì»óÀÔ´Ï´Ù.
Âü°í
»çÇ×
1.Àϰý¸Å°¢ 2.¸ñ·Ï 1Àº ¼­ÃøÀ¸·Î Æø ¾à 8m µµ·Î¿¡ Á¢ÇÔ 3.¸ñ·Ï 2ÀÇ 1ÃþÀº ±Ù¸°»ýȰ½Ã¼³(¼³ºñ¾÷ü), 2, 3ÃþÀº ÁÖÅÃÀ¸·Î °¢ ÀÌ¿ëÁßÀÓ
º»°Ç ºÎµ¿»êÀº ¿ï»ê ¿ïÁÖ±º ¹ü¼­À¾ ±¸¿µ¸® ¼ÒÀç È£¿¬ÃʵîÇб³ ³²Ãø ÀαÙÇÑ 3Ãþ »ó°¡ÁÖÅÃÀÓ.

°ÇÃ๰ÇöȲ

¼ÒÀçÁö ¿ï»ê±¤¿ª½Ã ¿ïÁÖ±º ¹ü¼­À¾ ±¸¿µ¸® 129-3¹øÁö
´ëÁö¸éÀû 225§³
(68.18Æò)
¿¬¸éÀû 358.84§³
(108.74Æò)
°ÇÃà¸éÀû 134.72§³
(40.82Æò)
¿ëÀû·ü»êÁ¤
¿¬¸éÀû
358.84§³
(108.74Æò)
°ÇÆóÀ² 59.88% ¿ëÀû·ü 159.48%
Áö»óÃþ¼ö 3Ãþ ÁöÇÏÃþ¼ö  
ÁÖ¿ëµµ ´Üµ¶ÁÖÅà ±¸Á¶ ö±ÙÄÜÅ©¸®Æ®±¸Á¶
Âø°øÀÏÀÚ 2007.07.12 »ç¿ë½ÂÀÎÀÏÀÚ 2007.10.17
°ÇÃ๰Ãþº°ÇöȲ [º¸±â]


±¹ÅäºÎ½Ç°Å·¡°¡ ¿ï»ê±¤¿ª½Ã ¿ïÁÖ±º ¹ü¼­À¾ ±¸¿µ¸®

¡Ü ¸Å¸Å

¸éÀû(§³), ±Ý¾×(¸¸¿ø)

¡Ü Àü¼¼

¸éÀû(§³), ±Ý¾×(¸¸¿ø)

°è¾àÀÏ¿¬¸éÀûº¸Áõ±Ý¿ù¼¼°ÇÃà
25.12.1439500452014
25.12.1130300352009
25.12.1026.44500302015
25.12.0928300322015
25.12.0492.22500402012
¢Ñ ´õº¸±â

µî±âºÎµîº» ¿ä¾à(ÅäÁö)

  Á¢¼öÀÏÀÚ µî±â¸ñÀû/±Ç¸®ÀÚ ±Ç¸®±Ý¾× ±âÁØ
1 2013³â10¿ù4ÀÏ
¼ÒÀ¯±Ç
±èOO
¼Ò¸ê
2 2013³â10¿ù4ÀÏ
±ÙÀú´ç±Ç
¿ïOOOO
416,000,000 ¼Ò¸ê±âÁØ
3 2015³â10¿ù28ÀÏ
±ÙÀú´ç±Ç
¿ïOOOO
26,000,000 ¼Ò¸ê
4 2024³â7¿ù10ÀÏ
°¡¾Ð·ù
¿ïOOOO
30,000,000 ¼Ò¸ê
5 2024³â8¿ù28ÀÏ
ÀÓÀǰæ¸Å
¿ïOOOO
¼Ò¸ê
6 2024³â11¿ù8ÀÏ
±ÙÀú´ç±Ç
ÀÌOO
143,000,000 ¼Ò¸ê

µî±âºÎµîº» ¿ä¾à(°Ç¹°)

  Á¢¼öÀÏÀÚ µî±â¸ñÀû/±Ç¸®ÀÚ ±Ç¸®±Ý¾× ±âÁØ
1 2013³â10¿ù4ÀÏ
¼ÒÀ¯±Ç
±èOO
¼Ò¸ê
2 2013³â10¿ù4ÀÏ
±ÙÀú´ç±Ç
¿ïOOOO
416,000,000 ¼Ò¸ê±âÁØ
3 2015³â10¿ù28ÀÏ
±ÙÀú´ç±Ç
¿ïOOOO
26,000,000 ¼Ò¸ê
4 2024³â5¿ù3ÀÏ
Àü¼¼±Ç
±èOO
220,000,000 ¼Ò¸ê
5 2024³â7¿ù10ÀÏ
°¡¾Ð·ù
¿ïOOOO
30,000,000 ¼Ò¸ê
6 2024³â8¿ù28ÀÏ
ÀÓÀǰæ¸Å
¿ïOOOO
¼Ò¸ê
7 2024³â11¿ù8ÀÏ
±ÙÀú´ç±Ç
ÀÌOO
143,000,000 ¼Ò¸ê

ÀÓÂ÷ÀÎÇöȲ (¹è´ç¿ä±¸Á¾±âÀÏ: 2024-11-28)



¸Å°¢±âÀÏ 7ÀÏÀü¿¡ ¸Å°¢¹°°Ç¸í¼¼¼­°¡ °ø°íµÇ¿À´Ï È®ÀÎÇϽñ⠹ٶø´Ï´Ù.

ÀÓÂ÷ÀÎ ¿ëµµ/Á¡À¯ º¸Áõ±Ý/¿ù¼¼ ´ëÇ×·Â
ÀüÀÔÀÏ/È®Á¤ÀÏ ¹è´ç¿ä±¸ ºñ°í
±èOO 3ÃþÀüü 220,000,000
X
2014.01.22.
2024.11.04.
2024.11.11. 2014.01.22.~2026.01.16.
¹èOO 1ÃþÀüºÎ(129.42§³) 10,000,000(1Â÷,2Â÷)
[¿ù]500,000(1Â÷)600,000(2Â÷)
X
2013.10.30.
2024.11.21. 2013.10.08.~2015.10.08.(1Â÷)2015.10.09.~ÇöÀç±îÁö(2Â÷)
¹éOO
X
2022.06.22.
¿ìOO
X
2013.10.11.
ºñ°í
(¸Å°¢¹°°Ç
¸í¼¼¼­)
±è¿µ¹Ì:1.ÀÓÂ÷ÀÎ °â Àü¼¼±ÇÀڷμ­ Àü¼¼±Ç¼³Á¤µî±âÀÏÀº 2024.05.03.ÀÓ 2.±Ç¸®½Å°í 2024.1.16.~2026.1.16., Ư¾à»çÇ× º»°è¾àÀº ÀÌÀü°è¾àÀÇ ¿¬Àå°è¾à, È®Á¤ÀÏÀÚ 2024.11.4.·Î ±âÀçµÇ¾î ÀÖÀ½ 3.2025.11.13.ÀÚ º¸Á¤¼­·Î Á¦ÃâÇÑ ÀÓ´ëÂ÷°è¾à¼­(2013.10.1.ÀÛ¼º)»ó º¸Áõ±Ý 2¾ï ¿ø, ÀÓ´ëÂ÷±â°£ 2013.10.14.~2015.10.13. È®Á¤ÀÏÀÚ ¾øÀ½ ¹é½ÂÁÖ:±Ç¸®½Å°í¸¦ ÇÏÁö ¾Ê¾Æ ÀÓ´ëÂ÷°ü°è ºÒºÐ¸íÇÔ ¹× ¿ì¿ëÇÏ:乫ÀÚ °â ¼ÒÀ¯ÀÚ ±è¿µÁÖÀÇ ¹è¿ìÀÚÀÓ

¿©ÀÇÁÖ°æ¸Å Á¶¾ð ÇÑ ¸¶µð


ÁÖÀÇ»çÇ× (ÃÖ¼±¼øÀ§ ¼³Á¤ÀÏ: )

¸Å°¢À¸·Î ¼Ò¸êµÇÁö ¾Ê´Â µî±âºÎ±Ç¸®:
¸Å°¢À¸·Î ¼³Á¤µÈ °ÍÀ¸·Î º¸´Â Áö»ó±Ç:
1.Àϰý¸Å°¢ 2.¸ñ·Ï 1Àº ¼­ÃøÀ¸·Î Æø ¾à 8m µµ·Î¿¡ Á¢ÇÔ 3.¸ñ·Ï 2ÀÇ 1ÃþÀº ±Ù¸°»ýȰ½Ã¼³(¼³ºñ¾÷ü), 2, 3ÃþÀº ÁÖÅÃÀ¸·Î °¢ ÀÌ¿ëÁßÀÓ
¡Ø¹Ì³³°ü¸®ºñ(°ø¿ë) Àμö¿©ºÎ¸¦ ÀÔÂû Àü¿¡ È®ÀÎÇϽñ⠹ٶø´Ï´Ù

 

Áö¿ªºÐ¼®

ÁöÇÏö¸í Á÷¼±°Å¸®

Çб³¸í ÀüÈ­¹øÈ£ ÁÖ¼Ò Á÷¼±°Å¸®

¹ý¿ø

¿ï»êÁö¹æ¹ý¿ø (446-43)¿ï»ê±¤¿ª½Ã ³²±¸ ¹ý´ë·Î 55(¿Áµ¿ 1415)
´ëÇ¥ : 052)216-8000, ¹Î¿ø : 052)216-8021~3
°üÇÒÁö¿ª : ¿ï»ê±¤¿ª½Ã, ¾ç»ê½Ã

µî±â¼Ò ¿ï»êÁö¹æ¹ý¿ø º»¿ø µî±â°ú (´ëÇ¥:1544-0773, ÆÑ½º:(052)260-6293, ¿ï»ê±¤¿ª½Ã ³²±¸ ¹ý´ë·Î 55 (¿Áµ¿ 1415))
¼¼¹«¼­ µ¿¿ï»ê¼¼¹«¼­ (´ëÇ¥:052-219-92, ÆÑ½º:052-289-8365, ¿ï»ê±¤¿ª½Ã ºÏ±¸ »çû2±æ 7 (È­ºÀµ¿))

Àαٳ«ÂûÅë°è

±â°£ ¸Å°¢°Ç¼ö Æò±Õ°¨Á¤°¡
Æò±Õ¸Å°¢°¡
¸Å°¢°¡À²
Æò±ÕÀ¯Âû¼ö
3°³¿ù 3°Ç 362,480,613¿ø
219,029,667¿ø
58%
2ȸ
6°³¿ù 6°Ç 298,349,340¿ø
167,311,500¿ø
54%
2.2ȸ
12°³¿ù 6°Ç 298,349,340¿ø
167,311,500¿ø
54%
2.2ȸ


º» °æ¸ÅÁ¤º¸´Â ¹ý¿øÀÚ·á¿Í ÀÏÄ¡Çϵµ·Ï ÇÏ¿´À¸³ª ±Ç¸®»çÇ׺¯µ¿, ÀÔ·ÂÂø¿À µîÀÇ ¿øÀÎÀ¸·Î »ç½Ç°ú ´Ù¸¦ ¼ö ÀÖ½À´Ï´Ù. ÀÌ¿ë¾à°ü¿¡ ÀǰЏéÃ¥Á¶°ÇÀ¸·Î Á¦°øµÊÀ» ¾Ë¸®¸ç, °æ¸ÅÀÔÂû½Ã ¹Ýµå½Ã °ü·Ã °øºÎ¸¦ ÀçÈ®ÀÎÇϽñ⠹ٶø´Ï´Ù. º¸´Ù Æí¸®ÇÑ °æ¸ÅÁ¤º¸ Á¦°øÀ» À§ÇØ Áö¼ÓÀûÀ¸·Î °³¼±ÇϰڽÀ´Ï´Ù. ÀÌ¿ëÇØ Áּż­ °¨»çÇÕ´Ï´Ù.