·Î±×ÀÎ
1202
¾ÆÆÄÆ®
ÀÇÁ¤ºÎÁö¹æ¹ý¿ø °í¾çÁö¿ø
 °¨Á¤°¡441,000,000 ¿ø
 ÃÖÀú°¡(70%) 308,700,000 ¿ø
 º¸Áõ±Ý(10%) 30,870,000 ¿ø
 Ã»±¸¾×230,856,591 ¿ø
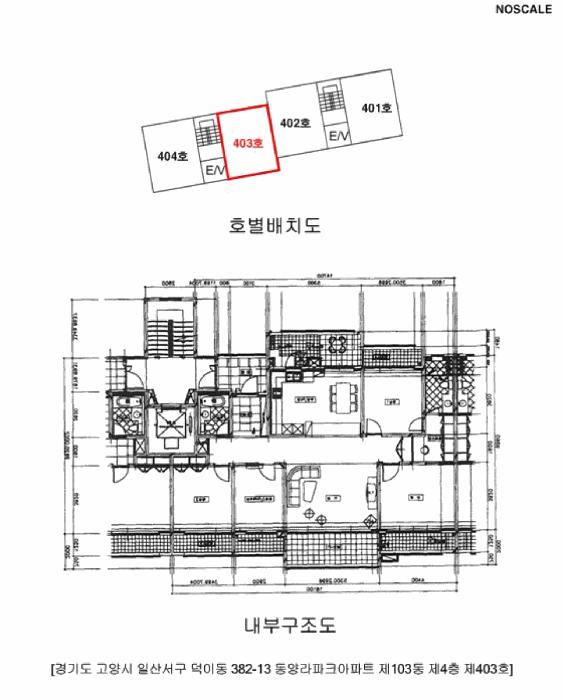
°æ±âµµ °í¾ç½Ã Àϻ꼭±¸ ´öÀ̵¿ 382-13 µ¿¾ç¶óÆÄÅ©¾ÆÆÄÆ® 103µ¿ 4Ãþ403È£
»ç°Ç¹øÈ£ 2025Ÿ°æ880
°æ¸ÅÁ¾·ùºÎµ¿»êÀÓÀǰæ¸Å
¸Å°¢´ë»óÅäÁö ¹× °Ç¹°Àϰý ¸Å°¢
¸Å°¢±âÀÏ    2026.03.04(¼ö) 10:00 ÀÔÂû 3ÀÏÀü    
ÅäÁö¸éÀû141.22§³(42.72 Æò)
°Ç¹°¸éÀû129.88§³(39.29 Æò)
乫/¼ÒÀ¯ÀÚ¸Á OOOO OOO OOO¿Ü 1¸í / ¸Á OOOO OOO OOO¿Ü 1¸í
ä±ÇÀÚÁÖOOOOOOO
ÆäÀ̽ººÏ Æ®À§ÅÍ ±¸±Û+
īī¿À½ºÅ丮
īī¿ÀÅå sms¹®ÀÚº¸³»±â
 

±âÀϳ»¿ª

°æ°ú ³¯Â¥ Àú°¨ ÃÖÀú°¡ °á°ú
Á¢¼öÀÏ 2025-02-21 °æ¸ÅÁ¢¼ö
~45ÀÏ 
2025-04-07 °æ¸Å°³½Ã°áÁ¤
~129ÀÏ 
2025-06-30 ¹è´ç¿ä±¸Á¾±âÀÏ
~334ÀÏ 
2026-01-21 100%
441,000,000
À¯Âû
~376ÀÏ 
2026-03-04 70%
308,700,000
ÁøÇà
¹°°Ç¸í¼¼¼­ ÇöȲÁ¶»ç¼­ ¹®°ÇÁ¢¼ö ¼Û´Þ³»¿ª

°¨Á¤Æò°¡ÇöȲ

¸ñ·Ï ÁÖ¼Ò ±¸Á¶/¿ëµµ/´ëÁö±Ç ¸éÀû ºñ°í
´ëÁö±Ç
´öÀ̵¿ 382-13 28403ºÐÀÇ 141.215 141.215 §³
(42.72Æò)
°Ç¹°
´öÀ̵¿ 382-13 103µ¿ 4Ãþ403È£ ö±ÙÄÜÅ©¸®Æ®Á¶ 129.8794 §³
(39.29Æò)
1) À§Ä¡/µµ½ÃÁö¿ª/°èȹ°ü¸®Áö¿ª/¹ö½ºÁ¤·ùÀå/Â÷·® Á¢±ÙÀÌ °¡´É/ö±ÙÄÜÅ©¸®Æ®Á¶/°æ»ç½½·¡ºêÁöºØ ´õº¸±â
°¨Á¤Æò°¡ ¿äÇ×Ç¥
1)À§Ä¡ ¹× ÁÖÀ§È¯°æ
º»°ÇÀº °æ±âµµ °í¾ç½Ã Àϻ꼭±¸ ´öÀ̵¿ ¼ÒÀç ""´öÀ̰íµîÇб³"" ¼­Ãø¿¡ À§Ä¡Çϸç ÁÖÀ§´Â ¾ÆÆÄÆ®, ´Ù¼¼´ëÁÖÅÃ, °¡±¸´ÜÁö, ±Ù¸°»ýȰ½Ã¼³ µîÀÌ ¼ÒÀçÇÔ.
2)±³Åë»óȲ
º»°Ç±îÁö Â÷·® Á¢±ÙÀÌ °¡´ÉÇϸç Àαٿ¡ ¹ö½ºÁ¤·ùÀå ¹× ÅºÇö¿ª(°æÀÇÁß¾Ó¼±)ÀÌ ¼ÒÀçÇϴ¹٠´ëÁß±³Åë»óȲÀº ¹«³­½ÃµÊ.
3)°Ç¹°ÀÇ ±¸Á¶
ö±ÙÄÜÅ©¸®Æ®Á¶ ÄÜÅ©¸®Æ® °æ»ç½½·¡ºêÁöºØ 14Ãþ¾ÆÆÄÆ® °Ç ³» Á¦4Ãþ Á¦403È£·Î¼­,
¿Üº®: ¸ôÅ»À§ ÆäÀÎÆ® ¸¶°¨ µî.
âȣ: ¼¦½Ã âȣÀÓ.
4)ÀÌ¿ë»óÅÂ
¾ÆÆÄÆ®·Î ÀÌ¿ëÁßÀÓ.
(ÈÄ÷""È£º°¹èÄ¡µµ ¹× ³»ºÎ±¸Á¶µµ"" ÂüÁ¶)
5)¼³ºñ³»¿ª
º»°ÇÀº ±âº»ÀûÀÎ À§»ý ¹× ±Þ¹è¼ö¼³ºñ, ½Â°­±â¼³ºñ, ¼ÒÈ­Àü¼³ºñ, ³­¹æ¼³ºñ µîÀÌ µÇ¾î ÀÖÀ½
6)ÅäÁöÀÇ Çü»ó ¹× ÀÌ¿ë»óÅÂ
º»°ÇÀº ÀÎÁ¢ÅäÁö´ëºñ µî°í ÆòźÇÑ ºÎÁ¤Çü ÅäÁö·Î¼­ ¾ÆÆÄÆ® °ÇºÎÁö·Î ÀÌ¿ëÁßÀÓ.
7)ÀÎÁ¢ µµ·Î»óŵî
º»°ÇÀº ¾ÆÆÄÆ® ´ÜÁö³» µµ·Î°¡ ºÏÃø°ú ³²ÃøÀ¸·Î ¿ÜºÎ °øµµ¿Í ¿¬°èµÇ¾î ÀÖÀ½.
8)ÅäÁöÀÌ¿ë°èȹ ¹× Á¦ÇÑ»óÅÂ
°èȹ°ü¸®Áö¿ª, ¼Ò·Î2·ù(Æø 8m~10m)(ÀúÃË), ¼Ò·Î3·ù(Æø 8m ¹Ì¸¸)(Á¢ÇÕ) °¡Ãà»çÀ°Á¦Çѱ¸¿ª(2024-11-12)(ÀϺÎÁ¦Çѱ¸¿ª [ÀüºÎÁ¦Çѱ¸¿ªÀ¸·ÎºÎÅÍ Á¦ÇѰŸ® 500m (¼Ò,Á¥¼Ò,¸» Á¦ÇÑ)])<°¡ÃàºÐ´¢ÀÇ °ü¸® ¹× À̿뿡 °üÇÑ ¹ý·ü>, °¡Ãà»çÀ°Á¦Çѱ¸¿ª(2024-11-12)(ÀüºÎÁ¦Çѱ¸¿ª [µµ½ÃÁö¿ª{ÁÖ°Å,»ó¾÷,°ø¾÷,³ìÁö(ÀÚ¿¬Ãë¶ôÁö±¸)}¹×ÁְŹÐÁýÁö¿ª])<°¡ÃàºÐ´¢ÀÇ °ü¸® ¹× À̿뿡 °üÇÑ ¹ý·ü>, »ó´ëº¸È£±¸¿ª<±³À°È¯°æ º¸È£¿¡ °üÇÑ ¹ý·ü>, °ú¹Ð¾ïÁ¦±Ç¿ª<¼öµµ±ÇÁ¤ºñ°èȹ¹ý>.
9)°øºÎ¿ÍÀÇ Â÷ÀÌ
¾øÀ½.
10)±âŸÂü°í»çÇ×(ÀÓ´ë°ü·Ê ¹× ±âŸ)
ÀÓ´ë°ü°è´Â ¹Ì»óÀÓ.
Âü°í
»çÇ×

-ö±ÙÄÜÅ©¸®

°ÇÃ๰ÇöȲ

¼ÒÀçÁö °æ±âµµ °í¾ç½Ã Àϻ꼭±¸ ´öÀ̵¿ 382-13¹øÁö
´ëÁö¸éÀû   ¿¬¸éÀû 4025.42§³
(1219.82Æò)
°ÇÃà¸éÀû 391.5676§³
(118.66Æò)
¿ëÀû·ü»êÁ¤
¿¬¸éÀû
3713.56§³
(1125.32Æò)
°ÇÆóÀ²   ¿ëÀû·ü  
Áö»óÃþ¼ö 12Ãþ ÁöÇÏÃþ¼ö 1Ãþ
ÁÖ¿ëµµ °øµ¿ÁÖÅà ±¸Á¶ ö±ÙÄÜÅ©¸®Æ®±¸Á¶
Âø°øÀÏÀÚ 2000.03.16 »ç¿ë½ÂÀÎÀÏÀÚ 2002.02.28
°ÇÃ๰Ãþº°ÇöȲ [º¸±â]


µî±âºÎµîº» ¿ä¾à(°Ç¹°)

  Á¢¼öÀÏÀÚ µî±â¸ñÀû/±Ç¸®ÀÚ ±Ç¸®±Ý¾× ±âÁØ
1 2025³â3¿ù21ÀÏ
¼ÒÀ¯±Ç
À¯OO
¼Ò¸ê
2 2025³â3¿ù21ÀÏ
¼ÒÀ¯±Ç
±èOO
¼Ò¸ê
3 2020³â5¿ù26ÀÏ
±ÙÀú´ç±Ç
(OOOO
254,500,000 ¼Ò¸ê±âÁØ
4 2022³â5¿ù18ÀÏ
±ÙÀú´ç±Ç
¿¥OOOO
247,000,000 ¼Ò¸ê
5 2025³â4¿ù7ÀÏ
ÀÓÀǰæ¸Å
(OOOO
¼Ò¸ê

ÀÓÂ÷ÀÎÇöȲ (¹è´ç¿ä±¸Á¾±âÀÏ: 2025-06-30)


Á¶»çµÈ ÀÓÂ÷³»¿ªÀÌ ¾ø½À´Ï´Ù


¾ÆÆÄÆ® Á¤º¸ µ¿¾ç¶óÆÄÅ©

ÁÖ¼Ò °æ±â °í¾ç½Ã Àϻ꼭±¸ ´öÀ̵¿ 382-13
½Ã°ø»ç µ¿¾ç°í¼Ó°Ç¼³ ´ÜÁö±Ô¸ð 6°³µ¿ 200°¡±¸(5°³µ¿)¼¼´ë
³­¹æ °³º°/µµ½Ã°¡½º »ç¿ë½ÂÀÎ 2002-02
°ü¸®¼Ò 031)923-6633
Àü¿ë¸éÀû 129~129 ¼¼´ë¼ö 200°¡±¸(5°³µ¿)
´ëÁö±Ç
Çö°ü/±¸Á¶ °è´Ü½Ä / ¹æ, ¿å½Ç
  • Çб³ null}});
  • ÁÖº¯½Ã¼³ ¼Û»êµ¿»ç¹«¼Ò, ¿ù¸¶Æ®, ±Ù¸°°ø¿ø, °æÀμ±ÅºÇö¿ª, Èú»çÀ̵å°ñÇÁŬ·´
  • ´ëÁß±³Åë 3È£¼±´ëÈ­¿ªÀÎÁ¢,ÀÚÀ¯·ÎÁøÀÔÆí¸®

¿©ÀÇÁÖ°æ¸Å Á¶¾ð ÇÑ ¸¶µð


ÁÖÀÇ»çÇ× (ÃÖ¼±¼øÀ§ ¼³Á¤ÀÏ: 2020.5.26.±ÙÀú´ç ¼³Á¤)

¸Å°¢À¸·Î ¼Ò¸êµÇÁö ¾Ê´Â µî±âºÎ±Ç¸®:
¸Å°¢À¸·Î ¼³Á¤µÈ °ÍÀ¸·Î º¸´Â Áö»ó±Ç:
2025.03.06 ä±ÇÀÚ ÁÖOOOOOOO º¸Á¤±âÀÏ¿¬±â½Åû Á¦Ãâ
¡Ø¹Ì³³°ü¸®ºñ(°ø¿ë) Àμö¿©ºÎ¸¦ ÀÔÂû Àü¿¡ È®ÀÎÇϽñ⠹ٶø´Ï´Ù

 

Áö¿ªºÐ¼®

ÁöÇÏö¸í Á÷¼±°Å¸®

Çб³¸í ÀüÈ­¹øÈ£ ÁÖ¼Ò Á÷¼±°Å¸®

¹ý¿ø

ÀÇÁ¤ºÎÁö¹æ¹ý¿ø °í¾çÁö¿ø (104-13)°æ±âµµ °í¾ç½Ã Àϻ굿±¸ Àå¹é·Î 209
´ëÇ¥ : 031)920-6114, ¾ß°£ : 031)920-6550, ÆÑ½º : 031)920-6119
°üÇÒÁö¿ª : °í¾ç½Ã, ÆÄÁÖ½Ã

µî±â¼Ò ÀÇÁ¤ºÎÁö¹æ¹ý¿ø °í¾çÁö¿ø °í¾çµî±â¼Ò (´ëÇ¥:1544-0773, ÆÑ½º:(031)920-5959, °æ±âµµ °í¾ç½Ã Àϻ굿±¸ Áß¾Ó·Î1275¹ø±æ 38-30 (ÀåÇ×µ¿ 773))
¼¼¹«¼­ °í¾ç¼¼¹«¼­ (´ëÇ¥:031-900-92, ÆÑ½º:031-907-9177, °æ±âµµ °í¾ç½Ã Àϻ굿±¸ Áß¾Ó·Î1275¹ø±æ 14-43 (ÀåÇ×µ¿) )

Àαٳ«ÂûÅë°è

±â°£ ¸Å°¢°Ç¼ö Æò±Õ°¨Á¤°¡
Æò±Õ¸Å°¢°¡
¸Å°¢°¡À²
Æò±ÕÀ¯Âû¼ö


º» °æ¸ÅÁ¤º¸´Â ¹ý¿øÀÚ·á¿Í ÀÏÄ¡Çϵµ·Ï ÇÏ¿´À¸³ª ±Ç¸®»çÇ׺¯µ¿, ÀÔ·ÂÂø¿À µîÀÇ ¿øÀÎÀ¸·Î »ç½Ç°ú ´Ù¸¦ ¼ö ÀÖ½À´Ï´Ù. ÀÌ¿ë¾à°ü¿¡ ÀǰЏéÃ¥Á¶°ÇÀ¸·Î Á¦°øµÊÀ» ¾Ë¸®¸ç, °æ¸ÅÀÔÂû½Ã ¹Ýµå½Ã °ü·Ã °øºÎ¸¦ ÀçÈ®ÀÎÇϽñ⠹ٶø´Ï´Ù. º¸´Ù Æí¸®ÇÑ °æ¸ÅÁ¤º¸ Á¦°øÀ» À§ÇØ Áö¼ÓÀûÀ¸·Î °³¼±ÇϰڽÀ´Ï´Ù. ÀÌ¿ëÇØ Áּż­ °¨»çÇÕ´Ï´Ù.