·Î±×ÀÎ
13
¿ÀÇǽºÅÚ
¼­¿ïºÏºÎÁö¹æ¹ý¿ø
 °¨Á¤°¡140,000,000 ¿ø
 ÃÖÀú°¡(100%) 140,000,000 ¿ø
 º¸Áõ±Ý(10%) 14,000,000 ¿ø
 Ã»±¸¾×174,695,715 ¿ø
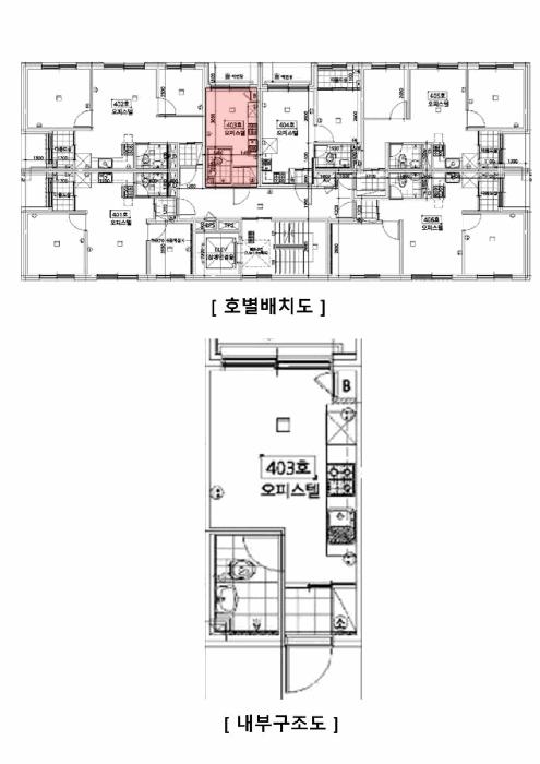
¼­¿ïƯº°½Ã ¼ººÏ±¸ ÇÏ¿ù°îµ¿ 90-1817 ¸í³²´õºí·¹½º Á¦4Ãþ Á¦403È£
»ç°Ç¹øÈ£ 2025Ÿ°æ13014
°æ¸ÅÁ¾·ùºÎµ¿»ê°­Á¦°æ¸Å
¸Å°¢´ë»óÅäÁö ¹× °Ç¹°Àϰý ¸Å°¢
¸Å°¢±âÀÏ    2026.01.20(È­) 10:00 ÀÔÂû 11ÀÏÀü    
ÅäÁö¸éÀû4.80§³(1.45 Æò)
°Ç¹°¸éÀû14.25§³(4.31 Æò)
乫/¼ÒÀ¯ÀÚ»çOO / »çOO
ä±ÇÀÚÇÑOOOOOOO
ÆäÀ̽ººÏ Æ®À§ÅÍ ±¸±Û+
īī¿À½ºÅ丮
īī¿ÀÅå sms¹®ÀÚº¸³»±â
 

±âÀϳ»¿ª

°æ°ú ³¯Â¥ Àú°¨ ÃÖÀú°¡ °á°ú
Á¢¼öÀÏ 2025-07-29 °æ¸ÅÁ¢¼ö
~1ÀÏ 
2025-07-30 °æ¸Å°³½Ã°áÁ¤
~84ÀÏ 
2025-10-21 ¹è´ç¿ä±¸Á¾±âÀÏ
~175ÀÏ 
2026-01-20 100%
140,000,000
ÁøÇà
¹°°Ç¸í¼¼¼­ ÇöȲÁ¶»ç¼­ ¹®°ÇÁ¢¼ö ¼Û´Þ³»¿ª

°¨Á¤Æò°¡ÇöȲ

¸ñ·Ï ÁÖ¼Ò ±¸Á¶/¿ëµµ/´ëÁö±Ç ¸éÀû ºñ°í
´ëÁö±Ç
ÇÏ¿ù°îµ¿ 90-1817 495ºÐÀÇ 4.8 4.8 §³
(1.45Æò)
°Ç¹°
ÇÏ¿ù°îµ¿ 90-1817 Á¦4Ãþ Á¦403È£ ö±ÙÄÜÅ©¸®Æ®±¸Á¶ 14.25 §³
(4.31Æò)
1) À§Ä¡/µµ½ÃÁö¿ª/ÁØÁÖ°ÅÁö¿ª/ÅäÁö°Å·¡°è¾à¿¡°üÇÑÇã°¡±¸¿ª/¹ö½ºÁ¤·ùÀå/Â÷·®Á¢±ÙÀÌ °¡´É/ÁÖÂ÷Àå/ö±ÙÄÜÅ©¸®Æ®±¸Á¶/Æò½º¶óºêÁöºØ ´õº¸±â
°¨Á¤Æò°¡ ¿äÇ×Ç¥
1)À§Ä¡ ¹× ÁÖÀ§È¯°æ
º»°ÇÀº ¼­¿ïƯº°½Ã ¼ººÏ±¸ ÇÏ¿ù°îµ¿ ""¼þ°îÁßÇб³"" ³²Ãø Àαٿ¡ À§Ä¡Çϸç ÁÖÀ§´Â °øµ¿ÁÖÅÃ, ¾ÆÆÄÆ®, Çб³ ¹× ±Ù¸°»ýȰ½Ã¼³ µîÀÌ ¼ÒÀçÇÕ´Ï´Ù.
2)±³Åë»óȲ
º»°Ç±îÁö Â÷·®Á¢±ÙÀÌ °¡´ÉÇϸç Àαٿ¡ ¹ö½ºÁ¤·ùÀå µîÀÌ ¼ÒÀçÇÕ´Ï´Ù.
3)°Ç¹°ÀÇ ±¸Á¶
ö±ÙÄÜÅ©¸®Æ®±¸Á¶ Æò½º¶óºêÁöºØ 9Ãþ°Ç¹°·Î¼­,

¿Üº® :¼®ÀçºÙÀÓ µî ¸¶°¨
âȣ :¼¦½Ãâȣ µî ÀÔ´Ï´Ù.
4)ÀÌ¿ë»óÅÂ
°øºÎ»ó ¿ÀÇǽºÅÚÀÔ´Ï´Ù.
5)¼³ºñ³»¿ª
³­¹æ¼³ºñ,À§»ý¼³ºñ,±Þ¹è¼ö¼³ºñ,½Â°­±â¼³ºñ,ÁÖÂ÷Àå µîÀÌ µÇ¾îÀÖ½À´Ï´Ù.
6)ÅäÁöÀÇ Çü»ó ¹× ÀÌ¿ë»óÅÂ
3ÇÊ ÀÏ´ÜÀÇ ´ëü·Î À广ÇüÅäÁö·Î¼­, ¿ÀÇǽºÅÚ ¹× ´Ù¼¼´ëÁÖÅà °ÇºÎÁö µîÀ¸·Î ÀÌ¿ë ÁßÀÔ´Ï´Ù.
7)ÀÎÁ¢ µµ·Î»óŵî
º»°Ç ºÏÃø, µ¿ÃøÀ¸·Î µµ·Î°¡ ¼ÒÀçÇÕ´Ï´Ù.
8)ÅäÁöÀÌ¿ë°èȹ ¹× Á¦ÇÑ»óÅÂ
90-1817:µµ½ÃÁö¿ª , ÁØÁÖ°ÅÁö¿ª , µµ·Î(Á¢ÇÕ),°¡Ãà»çÀ°Á¦Çѱ¸¿ª<°¡ÃàºÐ´¢ÀÇ °ü¸® ¹× À̿뿡 °üÇÑ ¹ý·ü>, »ó´ëº¸È£±¸¿ª<±³À°È¯°æ º¸È£¿¡ °üÇÑ ¹ý·ü>, ´ë°ø¹æ¾îÇùÁ¶±¸¿ª(À§Å¹°íµµ:77-257m)<±º»ç±âÁö ¹× ±º»ç½Ã¼³ º¸È£¹ý>, °ú¹Ð¾ïÁ¦±Ç¿ª<¼öµµ±ÇÁ¤ºñ°èȹ¹ý>,ÅäÁö°Å·¡°è¾à¿¡°üÇÑÇã°¡±¸¿ª(2025-08-21)(´ë»óÀÚ: ¿Ü±¹ÀÎ µî. ¿ëµµ: ´Üµ¶ ´Ù°¡±¸ ¾ÆÆÄÆ® ¿¬¸³ ´Ù¼¼´ë. ÁöÁ¤±â°£: 2025.8.26.~2026.8.25.)
90-1818:µµ½ÃÁö¿ª , ÁØÁÖ°ÅÁö¿ª,°¡Ãà»çÀ°Á¦Çѱ¸¿ª<°¡ÃàºÐ´¢ÀÇ °ü¸® ¹× À̿뿡 °üÇÑ ¹ý·ü>, »ó´ëº¸È£±¸¿ª<±³À°È¯°æ º¸È£¿¡ °üÇÑ ¹ý·ü>, ´ë°ø¹æ¾îÇùÁ¶±¸¿ª(À§Å¹°íµµ:77-257m)<±º»ç±âÁö ¹× ±º»ç½Ã¼³ º¸È£¹ý>, °ú¹Ð¾ïÁ¦±Ç¿ª<¼öµµ±ÇÁ¤ºñ°èȹ¹ý>,ÅäÁö°Å·¡°è¾à¿¡°üÇÑÇã°¡±¸¿ª(2025-08-21)(´ë»óÀÚ: ¿Ü±¹ÀÎ µî. ¿ëµµ: ´Üµ¶ ´Ù°¡±¸ ¾ÆÆÄÆ® ¿¬¸³ ´Ù¼¼´ë. ÁöÁ¤±â°£: 2025.8.26.~2026.8.25.)
90-1819:µµ½ÃÁö¿ª , ÁØÁÖ°ÅÁö¿ª,°¡Ãà»çÀ°Á¦Çѱ¸¿ª<°¡ÃàºÐ´¢ÀÇ °ü¸® ¹× À̿뿡 °üÇÑ ¹ý·ü>, »ó´ëº¸È£±¸¿ª<±³À°È¯°æ º¸È£¿¡ °üÇÑ ¹ý·ü>, ´ë°ø¹æ¾îÇùÁ¶±¸¿ª(À§Å¹°íµµ:77-257m)<±º»ç±âÁö ¹× ±º»ç½Ã¼³ º¸È£¹ý>, °ú¹Ð¾ïÁ¦±Ç¿ª<¼öµµ±ÇÁ¤ºñ°èȹ¹ý>,ÅäÁö°Å·¡°è¾à¿¡°üÇÑÇã°¡±¸¿ª(2025-08-21)(´ë»óÀÚ: ¿Ü±¹ÀÎ µî. ¿ëµµ: ´Üµ¶ ´Ù°¡±¸ ¾ÆÆÄÆ® ¿¬¸³ ´Ù¼¼´ë. ÁöÁ¤±â°£: 2025.8.26.~2026.8.25.)ÀÔ´Ï´Ù.
9)°øºÎ¿ÍÀÇ Â÷ÀÌ
¾ø½À´Ï´Ù.
10)±âŸÂü°í»çÇ×(ÀÓ´ë°ü·Ê ¹× ±âŸ)
ÀÓ´ë°ü°è ¹Ì»óÀÔ´Ï´Ù.
Âü°í
»çÇ×

1) ÇöÁö ¹æ¹®ÇÏ¿´À¸³ª Æó¹®ºÎÀç·Î ¾Æ¹«µµ ¸¸³ª

°ÇÃ๰ÇöȲ

¼ÒÀçÁö ¼­¿ïƯº°½Ã ¼ººÏ±¸ ÇÏ¿ù°îµ¿ 90-1817¹øÁö
´ëÁö¸éÀû 446§³
(135.15Æò)
¿¬¸éÀû 2157.73§³
(653.86Æò)
°ÇÃà¸éÀû 257.74§³
(78.1Æò)
¿ëÀû·ü»êÁ¤
¿¬¸éÀû
1782.81§³
(540.25Æò)
°ÇÆóÀ² 57.79% ¿ëÀû·ü 399.73%
Áö»óÃþ¼ö 9Ãþ ÁöÇÏÃþ¼ö 1Ãþ
ÁÖ¿ëµµ ¾÷¹«½Ã¼³ ±¸Á¶ ö±ÙÄÜÅ©¸®Æ®±¸Á¶
Âø°øÀÏÀÚ 2018.06.15 »ç¿ë½ÂÀÎÀÏÀÚ 2019.05.07
°ÇÃ๰Ãþº°ÇöȲ [º¸±â]


±¹ÅäºÎ½Ç°Å·¡°¡ ¼­¿ïƯº°½Ã ¼ººÏ±¸ ÇÏ¿ù°îµ¿

¡Ü ¸Å¸Å

¸éÀû(§³), ±Ý¾×(¸¸¿ø)

¡Ü Àü¼¼

¸éÀû(§³), ±Ý¾×(¸¸¿ø)

°è¾àÀϰǹ°¸íĪÃþÀü¿ëº¸Áõ±Ý¿ù¼¼°ÇÃà
25.09.20¸í³²´õºí·¹½º545.1925,00002019
25.09.06¸í³²´õºí·¹½º626.272,000702019
25.09.04¸í³²´õºí·¹½º541.233,0001102019
25.08.19¸í³²´õºí·¹½º543.47100802019
25.07.18¸í³²´õºí·¹½º426.271,000732019
¢Ñ ´õº¸±â

µî±âºÎµîº» ¿ä¾à(°Ç¹°)

  Á¢¼öÀÏÀÚ µî±â¸ñÀû/±Ç¸®ÀÚ ±Ç¸®±Ý¾× ±âÁØ
1 2020³â3¿ù13ÀÏ
¼ÒÀ¯±Ç
ȍOO
¼Ò¸ê
2 2023³â9¿ù8ÀÏ
°¡¾Ð·ù
ÁÖOOOO
1,279,000,000 ¼Ò¸ê±âÁØ
3 2024³â5¿ù9ÀÏ
ÀÓÂ÷±Ç¼³Á¤
°­OO
155,000,000 ¼Ò¸ê
4 2024³â12¿ù12ÀÏ
¾Ð·ù
±¹
¼Ò¸ê
5 2025³â7¿ù30ÀÏ
°­Á¦°æ¸Å
ÇÑOOOO
¼Ò¸ê

ÀÓÂ÷ÀÎÇöȲ (¹è´ç¿ä±¸Á¾±âÀÏ: 2025-10-21)



¸Å°¢±âÀÏ 7ÀÏÀü¿¡ ¸Å°¢¹°°Ç¸í¼¼¼­°¡ °ø°íµÇ¿À´Ï È®ÀÎÇϽñ⠹ٶø´Ï´Ù.

ÀÓÂ÷ÀÎ ¿ëµµ/Á¡À¯ º¸Áõ±Ý/¿ù¼¼ ´ëÇ×·Â
ÀüÀÔÀÏ/È®Á¤ÀÏ ¹è´ç¿ä±¸ ºñ°í
°­OO Á¦403È£ÀüºÎ 155,000,000
O
2022.02.25.
2022.01.13.
2022.02.25. ~
ÇÑOOOOOOO Á¦403È£ÀüºÎ 155,000,000
O
2022.02.25.
2022.01.13.
2025.7.29. 2022.02.25. ~
ºñ°í
(¸Å°¢¹°°Ç
¸í¼¼¼­)
Çѱ¹ÁÖÅñÝÀ¶°ø»ç:°æ¸Å½Åûä±ÇÀÚ·Î ÀÓÂ÷±ÇÀÚ °­¹Î¼ÛÀÇ ÀÓ´ëÂ÷º¸Áõ±Ý¹Ýȯä±ÇÀ» ´ëÀ§º¯Á¦ÇÔÀ¸·Î½á ¹ß»ýÇÑ ±¸»ó±Ýä±Ç º¸ÀüÀ» À§ÇÏ¿© ÀÓÂ÷ÀÎÀÇ ¿ì¼± º¯Á¦±ÇÀ» Çà»çÇÏ´Â °ÍÀ̸ç, ¹è´ç¿ä±¸ÀÏÀÚ´Â °æ¸Å½ÅûÀÏÀÓ.

¿©ÀÇÁÖ°æ¸Å Á¶¾ð ÇÑ ¸¶µð

¼±¼øÀ§ ÀÓÂ÷±Çµî±â°¡ µÇ¾î ÀÖ½À´Ï´Ù
´ëÇ×·ÂÀÌ ÀÖ´Â ¼±¼øÀ§ ÀÓÂ÷±Çµî±â ±Ç¸®ÀÚ°¡ ¹è´çÀ» Àü¾× ¹ÞÁö ¸øÇÒ °æ¿ì ³«ÂûÀÚ°¡ ÀÜ¿© º¸Áõ±ÝÀ» ÀμöÇØ¾ßÇÏ´Â °æ¿ìµµ ÀÖ½À´Ï´Ù.

ÁÖÀÇ»çÇ× (ÃÖ¼±¼øÀ§ ¼³Á¤ÀÏ: 2023. 9. 8. °¡¾Ð·ù ¼³Á¤)

¸Å°¢À¸·Î ¼Ò¸êµÇÁö ¾Ê´Â µî±âºÎ±Ç¸®: À»±¸ 1¹ø 2024. 5. 9.ÀÚ ÁÖÅÃÀÓÂ÷±Çµî±â(´ëÇ×·Â ÀÖ´Â ÀÓÂ÷ÀÎÀ¸·Î ¹è´ç¿¡¼­ º¸Áõ±ÝÀÌ Àü¾× º¯Á¦µÇÁö ¾Æ´ÏÇϸé Àܾ׺κп¡ ´ëÇÏ ¿© ¸»¼ÒµÇÁö ¾Æ´ÏÇÔ)
¸Å°¢À¸·Î ¼³Á¤µÈ °ÍÀ¸·Î º¸´Â Áö»ó±Ç:
¡Ø¹Ì³³°ü¸®ºñ(°ø¿ë) Àμö¿©ºÎ¸¦ ÀÔÂû Àü¿¡ È®ÀÎÇϽñ⠹ٶø´Ï´Ù

 

Áö¿ªºÐ¼®

ÁöÇÏö¸í Á÷¼±°Å¸®

Çб³¸í ÀüÈ­¹øÈ£ ÁÖ¼Ò Á÷¼±°Å¸®

¹ý¿ø

¼­¿ïºÏºÎÁö¹æ¹ý¿ø (013-22)¼­¿ïƯº°½Ã µµºÀ±¸ ¸¶µé·Î749 (µµºÀ2µ¿ 626)
´ëÇ¥ : 02)910-3114
°üÇÒÁö¿ª : °­ºÏ±¸, ³ë¿ø±¸, µµºÀ±¸, µ¿´ë¹®±¸, ¼ººÏ±¸, Áß¶û±¸

µî±â¼Ò ¼­¿ïºÏºÎÁö¹æ¹ý¿ø º»¿ø µî±â±¹ (´ëÇ¥:1544-0773, ÆÑ½º:(02)2030-2330, ¼­¿ïƯº°½Ã µµºÀ±¸ ³ëÇØ·Î 325 (⵿ 337¹øÁö))
¼¼¹«¼­ ¼ººÏ¼¼¹«¼­ (´ëÇ¥:02-760-820, ÆÑ½º:02-744-6160, ¼­¿ïƯº°½Ã ¼ººÏ±¸ »ï¼±±³·Î 16±æ 13)

Àαٳ«ÂûÅë°è

±â°£ ¸Å°¢°Ç¼ö Æò±Õ°¨Á¤°¡
Æò±Õ¸Å°¢°¡
¸Å°¢°¡À²
Æò±ÕÀ¯Âû¼ö
3°³¿ù 5°Ç 259,200,000¿ø
190,536,800¿ø
71%
2.2ȸ
6°³¿ù 7°Ç 1,123,087,829¿ø
943,469,143¿ø
75%
1.9ȸ
12°³¿ù 8°Ç 1,003,201,850¿ø
844,160,500¿ø
77%
1.8ȸ


º» °æ¸ÅÁ¤º¸´Â ¹ý¿øÀÚ·á¿Í ÀÏÄ¡Çϵµ·Ï ÇÏ¿´À¸³ª ±Ç¸®»çÇ׺¯µ¿, ÀÔ·ÂÂø¿À µîÀÇ ¿øÀÎÀ¸·Î »ç½Ç°ú ´Ù¸¦ ¼ö ÀÖ½À´Ï´Ù. ÀÌ¿ë¾à°ü¿¡ ÀǰЏéÃ¥Á¶°ÇÀ¸·Î Á¦°øµÊÀ» ¾Ë¸®¸ç, °æ¸ÅÀÔÂû½Ã ¹Ýµå½Ã °ü·Ã °øºÎ¸¦ ÀçÈ®ÀÎÇϽñ⠹ٶø´Ï´Ù. º¸´Ù Æí¸®ÇÑ °æ¸ÅÁ¤º¸ Á¦°øÀ» À§ÇØ Áö¼ÓÀûÀ¸·Î °³¼±ÇϰڽÀ´Ï´Ù. ÀÌ¿ëÇØ Áּż­ °¨»çÇÕ´Ï´Ù.