·Î±×ÀÎ
1270
¿ÀÇǽºÅÚ
¼ö¿øÁö¹æ¹ý¿ø ¾È¾çÁö¿ø
 °¨Á¤°¡233,000,000 ¿ø
 ÃÖÀú°¡(64%) 149,120,000 ¿ø
 º¸Áõ±Ý(10%) 14,912,000 ¿ø
 Ã»±¸¾×241,000,000 ¿ø
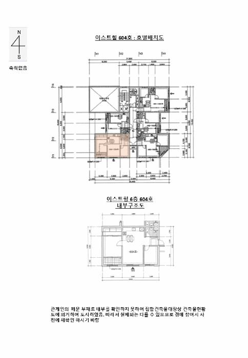
°æ±âµµ ±ºÆ÷½Ã ´çµ¿ 747-19 À̽ºÆ®Èú 6Ãþ604È£
»ç°Ç¹øÈ£ 2025Ÿ°æ100815
°æ¸ÅÁ¾·ùºÎµ¿»ê°­Á¦°æ¸Å
¸Å°¢´ë»óÅäÁö ¹× °Ç¹°Àϰý ¸Å°¢
¸Å°¢±âÀÏ    2026.04.28(È­) 10:00 ÀÔÂû 16ÀÏÀü    
ÅäÁö¸éÀû9.06§³(2.74 Æò)
°Ç¹°¸éÀû55.89§³(16.91 Æò)
乫/¼ÒÀ¯ÀÚÀÌOO / ÀÌOO
ä±ÇÀÚÁÖOOOOOOO
ÆäÀ̽ººÏ Æ®À§ÅÍ ±¸±Û+
īī¿À½ºÅ丮
īī¿ÀÅå sms¹®ÀÚº¸³»±â
 

±âÀϳ»¿ª

°æ°ú ³¯Â¥ Àú°¨ ÃÖÀú°¡ °á°ú
Á¢¼öÀÏ 2025-02-24 °æ¸ÅÁ¢¼ö
~1ÀÏ 
2025-02-25 °æ¸Å°³½Ã°áÁ¤
~74ÀÏ 
2025-05-09 ¹è´ç¿ä±¸Á¾±âÀÏ
~330ÀÏ 
2026-01-20 100%
233,000,000
º¯°æ
~365ÀÏ 
2026-02-24 100%
233,000,000
À¯Âû
~400ÀÏ 
2026-03-31 80%
186,400,000
À¯Âû
~428ÀÏ 
2026-04-28 64%
149,120,000
ÁøÇà
¹°°Ç¸í¼¼¼­ ÇöȲÁ¶»ç¼­ ¹®°ÇÁ¢¼ö ¼Û´Þ³»¿ª

°¨Á¤Æò°¡ÇöȲ

¸ñ·Ï ÁÖ¼Ò ±¸Á¶/¿ëµµ/´ëÁö±Ç ¸éÀû ºñ°í
´ëÁö±Ç
´çµ¿ 747-19 586.6ºÐÀÇ 9.063 9.063 §³
(2.74Æò)
°Ç¹°
´çµ¿ 747-19 6Ãþ604È£ ö±ÙÄÜÅ©¸®Æ®±¸Á¶ 55.89 §³
(16.91Æò)
1) À§Ä¡/µµ½ÃÁö¿ª/ÀϹݻó¾÷Áö¿ª/¹ö½ºÁ¤·ùÀå/Â÷·®Á¢±ÙÀÌ °¡´É/ÁöÇÏö/ö±ÙÄÜÅ©¸®Æ®±¸Á¶ ´õº¸±â
°¨Á¤Æò°¡ ¿äÇ×Ç¥
1)À§Ä¡ ¹× ÁÖÀ§È¯°æ
º»°ÇÀº °æ±âµµ ±ºÆ÷½Ã ´çµ¿ ¼ÒÀç ÁöÇÏö 1È£¼± ""±ºÆ÷¿ª"" ºÏ¼­Ãø Àαٿ¡ À§Ä¡Çϸç, º»°Ç ÁÖÀ§´Â ¿ÀÇǽºÅÚ, ´Ù¼¼´ëÁÖÅÃ, ±Ù¸°»ýȰ½Ã¼³ µîÀ¸·Î ÀÌ·ç¾îÁ®ÀÖÀ¸¸ç, Á¦¹Ý ÁÖÀ§È¯°æÀº º¸ÅëÀÓ.
2)±³Åë»óȲ
º»°ÇÀÌ ¼ÓÇÑ °Ç¹°±îÁö Â÷·®Á¢±ÙÀÌ °¡´ÉÇϰí, Àαٿ¡ ¹ö½ºÁ¤·ùÀå ¹× 1È£¼± ""±ºÆ÷¿ª""ÀÌ ¼ÒÀçÇÏ´Â µî Á¦¹Ý ±³Åë»óȯÀº º¸ÅëÀÓ.
3)°Ç¹°ÀÇ ±¸Á¶
ö±ÙÄÜÅ©¸®Æ®±¸Á¶ (ö±Ù)ÄÜÅ©¸®Æ®ÁöºØ Áö»ó18Ãþ, ÁöÇÏ1Ãþ °Ç¹° ³» Á¦6Ãþ 604È£·Î¼­(»ç¿ë½ÂÀÎÀÏ: 2019.07.18)
¿Üº®: ¸ôÅ» À§ ÆäÀÎÆ® ¹× ÀϺΠ¼®Àç ºÙÀÓ µî ¸¶°¨
³»º®: º®Áö µî ¸¶°¨
âȣ: ¼¦½Ã âȣ
4)ÀÌ¿ë»óÅÂ
¿ÀÇǽºÅÚ·Î ÀÌ¿ëÁßÀÓ.

5)¼³ºñ³»¿ª
À§»ý¼³ºñ, ±Þ¹è¼ö¼³ºñ, ½Â°­±â¼³ºñ, È­ÀçŽÁö ¹× ¼ÒÈ­¼³ºñ µîÀÌ µÇ¾îÀÖÀ½.
6)ÅäÁöÀÇ Çü»ó ¹× ÀÌ¿ë»óÅÂ
´ëü·Î ºÎÁ¤ÇüÀÎ ÅäÁö·Î¼­, ¾÷¹«½Ã¼³ ¹× °øµ¿ÁÖÅà °ÇºÎÁö·Î ÀÌ¿ëÁßÀÓ.
7)ÀÎÁ¢ µµ·Î»óŵî
³²Ãø ¹× µ¿ÃøÀ¸·Î µµ·Î¿Í Á¢Çϰí ÀÖÀ½.
8)ÅäÁöÀÌ¿ë°èȹ ¹× Á¦ÇÑ»óÅÂ
µµ½ÃÁö¿ª, ÀϹݻó¾÷Áö¿ª, ¼Ò·Î3·ù(Æø 8m ¹Ì¸¸)(2017-09-28)(Á¢ÇÕ), ¼Ò·Î3·ù(Æø 8m ¹Ì¸¸)(Á¢ÇÕ),°¡Ãà»çÀ°Á¦Çѱ¸¿ª(2013-10-15)(ÀüºÎÁ¦Çѱ¸¿ª)<°¡ÃàºÐ´¢ÀÇ °ü¸® ¹× À̿뿡 °üÇÑ ¹ý·ü>, °ú¹Ð¾ïÁ¦Áö¿ª<»ê¾÷ÁýÀûȰ¼ºÈ­ ¹× °øÀå¼³¸³¿¡ °üÇÑ ¹ý·ü>, °ú¹Ð¾ïÁ¦Áö¿ª(2022-09-06)<»ê¾÷ÁýÀûȰ¼ºÈ­ ¹× °øÀå¼³¸³¿¡ °üÇÑ ¹ý·ü>, °ú¹Ð¾ïÁ¦±Ç¿ª(2022-09-06)<¼öµµ±ÇÁ¤ºñ°èȹ¹ý>
9)°øºÎ¿ÍÀÇ Â÷ÀÌ
¾øÀ½.
10)±âŸÂü°í»çÇ×(ÀÓ´ë°ü·Ê ¹× ±âŸ)
ÀÓ´ë°ü°è´Â ¹Ì»óÀÓ.
³»ºÎÀÌ¿ë»óȲÀº °ÇÃ๰´ëÀå ¹× °ÇÃ๰ÇöȲµµ¸é, ޹®Á¶»ç µîÀ» Âü°íÇÏ¿´À½.
Âü°í
»çÇ×
ÁÖÅÃÀÓÂ÷±ÇÀÇ ½Â°èÀÎÀÎ ÁÖÅõµ½Ãº¸Áõ°ø»ç·ÎºÎÅÍ ¿ì¼±º¯Á¦±Ç¸¸ ÁÖÀåÇÏ°í ´ëÇ×·ÂÀ» Æ÷±âÇϸç, ÀÓ´ëÂ÷º¸Áõ±Ý Àü¾×À» º¯Á¦¹ÞÁö ¸øÇÏ´õ¶óµµ ¸Å¼öÀο¡ ´ëÇÑ ÀÜÁ¸ ÀÓ´ëÂ÷º¸Áõ±Ý ¹Ýȯû±¸±ÇÀ» Æ÷±âÇϰí ÀÓÂ÷±Çµî±â¸¦ ¸»¼ÒÇÏ´Â °Í¿¡ µ¿ÀÇÇÑ´Ù´Â È®¾à¼­(2026. 1. 16.ÀÚ)°¡ Á¦ÃâµÊ

°ÇÃ๰ÇöȲ

¼ÒÀçÁö °æ±âµµ ±ºÆ÷½Ã ´çµ¿ 747-19¹øÁö
´ëÁö¸éÀû 586.6§³
(177.76Æò)
¿¬¸éÀû 4992.13§³
(1512.77Æò)
°ÇÃà¸éÀû 399.15§³
(120.95Æò)
¿ëÀû·ü»êÁ¤
¿¬¸éÀû
4690.65§³
(1421.41Æò)
°ÇÆóÀ² 68.044664% ¿ëÀû·ü 799.63348%
Áö»óÃþ¼ö 18Ãþ ÁöÇÏÃþ¼ö 1Ãþ
ÁÖ¿ëµµ ¾÷¹«½Ã¼³ ±¸Á¶ ö±ÙÄÜÅ©¸®Æ®±¸Á¶
Âø°øÀÏÀÚ 2018.06.04 »ç¿ë½ÂÀÎÀÏÀÚ 2019.07.18
°ÇÃ๰Ãþº°ÇöȲ [º¸±â]


±¹ÅäºÎ½Ç°Å·¡°¡ °æ±âµµ ±ºÆ÷½Ã ´çµ¿

¡Ü ¸Å¸Å

¸éÀû(§³), ±Ý¾×(¸¸¿ø)

¡Ü Àü¼¼

¸éÀû(§³), ±Ý¾×(¸¸¿ø)

°è¾àÀϰǹ°¸íĪÃþÀü¿ëº¸Áõ±Ý¿ù¼¼°ÇÃà
26.03.14À̽ºÆ®Èú1351.0521,0002019
26.01.28À̽ºÆ®Èú1149.3221,50002019
26.01.27À̽ºÆ®Èú1149.3221,50002019
26.01.15À̽ºÆ®Èú755.895,000702019
26.01.08À̽ºÆ®Èú1034.7616,00002019
¢Ñ ´õº¸±â

µî±âºÎµîº» ¿ä¾à(°Ç¹°)

  Á¢¼öÀÏÀÚ µî±â¸ñÀû/±Ç¸®ÀÚ ±Ç¸®±Ý¾× ±âÁØ
1 2020³â5¿ù25ÀÏ
¼ÒÀ¯±Ç
ÀÌOO
¼Ò¸ê
2 2022³â12¿ù7ÀÏ
¾àÁ¤/±ÝÁö»çÇ×/ȯ¸ÅƯ¾à
Àμö
3 2023³â4¿ù10ÀÏ
ÀÓÂ÷±Ç¼³Á¤
ȫOO
241,000,000 Àμö
4 2023³â5¿ù18ÀÏ
°¡¾Ð·ù
ÁÖOOOO
3,091,000,000 ¼Ò¸ê±âÁØ
5 2023³â5¿ù25ÀÏ
¾Ð·ù
±¹
¼Ò¸ê
6 2024³â2¿ù2ÀÏ
¾Ð·ù
¼­OOOO
¼Ò¸ê
7 2025³â2¿ù25ÀÏ
°­Á¦°æ¸Å
ÁÖOOOO
¼Ò¸ê
8 2025³â3¿ù7ÀÏ
¾Ð·ù
±¹OOOO
¼Ò¸ê

ÀÓÂ÷ÀÎÇöȲ (¹è´ç¿ä±¸Á¾±âÀÏ: 2025-05-09)

ÀÓÂ÷ÀÎ ¿ëµµ/Á¡À¯ º¸Áõ±Ý/¿ù¼¼ ´ëÇ×·Â
ÀüÀÔÀÏ/È®Á¤ÀÏ ¹è´ç¿ä±¸ ºñ°í
ÁÖOOOOOOO ÀüÀ¯ºÎºÐÀüºÎ 241,000,000
O
2022.04.25.
2022.03.29.
2025.2.24. 2022.04.25.~2024.01.31.
È«OO ÀüÀ¯ºÎºÐÀüºÎ 241,000,000
O
2022.04.25
2022.03.29
2022.04.25
ºñ°í
(¸Å°¢¹°°Ç
¸í¼¼¼­)
ÁÖÅõµ½Ãº¸Áõ°ø»ç:ÀÓÂ÷ÀÎ È«½ÂÈñÀÇ ¿ì¼±º¯Á¦±Ç ½Â°èÀÎÀ̸ç, ½Åûä±ÇÀÚ¿Í µ¿ÀÏÀÎÀÓ.

¿©ÀÇÁÖ°æ¸Å Á¶¾ð ÇÑ ¸¶µð

¼±¼øÀ§ ÀÓÂ÷±Çµî±â°¡ µÇ¾î ÀÖ½À´Ï´Ù
´ëÇ×·ÂÀÌ ÀÖ´Â ¼±¼øÀ§ ÀÓÂ÷±Çµî±â ±Ç¸®ÀÚ°¡ ¹è´çÀ» Àü¾× ¹ÞÁö ¸øÇÒ °æ¿ì ³«ÂûÀÚ°¡ ÀÜ¿© º¸Áõ±ÝÀ» ÀμöÇØ¾ßÇÏ´Â °æ¿ìµµ ÀÖ½À´Ï´Ù.

ÁÖÀÇ»çÇ× (ÃÖ¼±¼øÀ§ ¼³Á¤ÀÏ: 2023.05.18. °¡¾Ð·ù ¼³Á¤)

¸Å°¢À¸·Î ¼Ò¸êµÇÁö ¾Ê´Â µî±âºÎ±Ç¸®:
¸Å°¢À¸·Î ¼³Á¤µÈ °ÍÀ¸·Î º¸´Â Áö»ó±Ç:
ÁÖÅÃÀÓÂ÷±ÇÀÇ ½Â°èÀÎÀÎ ÁÖÅõµ½Ãº¸Áõ°ø»ç·ÎºÎÅÍ ¿ì¼±º¯Á¦±Ç¸¸ ÁÖÀåÇÏ°í ´ëÇ×·ÂÀ» Æ÷±âÇϸç, ÀÓ´ëÂ÷º¸Áõ±Ý Àü¾×À» º¯Á¦¹ÞÁö ¸ø ÇÏ´õ¶óµµ ¸Å¼öÀο¡ ´ëÇÑ ÀÜÁ¸ ÀÓ´ëÂ÷º¸Áõ±Ý ¹Ýȯû±¸±ÇÀ» Æ÷±âÇϰí ÀÓÂ÷±Çµî±â¸¦ ¸»¼ÒÇÏ´Â °Í¿¡ µ¿ÀÇÇÑ´Ù´Â È®¾à¼­(2026. 1. 16.ÀÚ)°¡ Á¦ÃâµÊ
¡Ø¹Ì³³°ü¸®ºñ(°ø¿ë) Àμö¿©ºÎ¸¦ ÀÔÂû Àü¿¡ È®ÀÎÇϽñ⠹ٶø´Ï´Ù

 

Áö¿ªºÐ¼®

ÁöÇÏö¸í Á÷¼±°Å¸®

Çб³¸í ÀüÈ­¹øÈ£ ÁÖ¼Ò Á÷¼±°Å¸®

¹ý¿ø

¼ö¿øÁö¹æ¹ý¿ø ¾È¾çÁö¿ø (140-54)°æ±âµµ ¾È¾ç½Ã µ¿¾È±¸ °üÆò·Î 212¹ø±æ 70 (°ü¾çµ¿)
´ëÇ¥ : 031)8086-1114, ¾ß°£ : 031)8086-1380
°üÇÒÁö¿ª : ¾È¾ç½Ã, ±ºÆ÷½Ã, ÀǿսÃ, °úõ½Ã

µî±â¼Ò    (´ëÇ¥:, ÆÑ½º:, )
¼¼¹«¼­ ¾È¾ç¼¼¹«¼­ (´ëÇ¥:031-467-12, ÆÑ½º:031-467-1300, °æ±âµµ ¾È¾ç½Ã ¸¸¾È±¸ ³Ãõ·Î 83 (¾È¾çµ¿))

Àαٳ«ÂûÅë°è

±â°£ ¸Å°¢°Ç¼ö Æò±Õ°¨Á¤°¡
Æò±Õ¸Å°¢°¡
¸Å°¢°¡À²
Æò±ÕÀ¯Âû¼ö
3°³¿ù 4°Ç 244,500,000¿ø
147,898,000¿ø
51%
6ȸ
6°³¿ù 7°Ç 259,428,571¿ø
175,256,000¿ø
61%
6.3ȸ
12°³¿ù 17°Ç 257,764,706¿ø
172,816,358¿ø
63%
7.9ȸ


º» °æ¸ÅÁ¤º¸´Â ¹ý¿øÀÚ·á¿Í ÀÏÄ¡Çϵµ·Ï ÇÏ¿´À¸³ª ±Ç¸®»çÇ׺¯µ¿, ÀÔ·ÂÂø¿À µîÀÇ ¿øÀÎÀ¸·Î »ç½Ç°ú ´Ù¸¦ ¼ö ÀÖ½À´Ï´Ù. ÀÌ¿ë¾à°ü¿¡ ÀǰЏéÃ¥Á¶°ÇÀ¸·Î Á¦°øµÊÀ» ¾Ë¸®¸ç, °æ¸ÅÀÔÂû½Ã ¹Ýµå½Ã °ü·Ã °øºÎ¸¦ ÀçÈ®ÀÎÇϽñ⠹ٶø´Ï´Ù. º¸´Ù Æí¸®ÇÑ °æ¸ÅÁ¤º¸ Á¦°øÀ» À§ÇØ Áö¼ÓÀûÀ¸·Î °³¼±ÇϰڽÀ´Ï´Ù. ÀÌ¿ëÇØ Áּż­ °¨»çÇÕ´Ï´Ù.