·Î±×ÀÎ
1397
´Ù¼¼´ë(ºô¶ó)
¼­¿ïºÏºÎÁö¹æ¹ý¿ø
 °¨Á¤°¡76,300,000 ¿ø
 ÃÖÀú°¡(41%) 31,253,000 ¿ø
 º¸Áõ±Ý(10%) 3,125,300 ¿ø
 Ã»±¸¾×66,708,268 ¿ø
¼­¿ïƯº°½Ã °­ºÏ±¸ ¹øµ¿ 148-26 5Ãþ 502È£
»ç°Ç¹øÈ£ 2025Ÿ°æ13103
°æ¸ÅÁ¾·ùºÎµ¿»ê°­Á¦°æ¸Å
¸Å°¢´ë»óÅäÁö ¹× °Ç¹°ÁöºÐ¸Å°¢
¸Å°¢±âÀÏ    2026.06.16(È­) 10:00 ÀÔÂû 26ÀÏÀü    
ÅäÁö¸éÀû7.67§³(2.32 Æò)
°Ç¹°¸éÀû16.15§³(4.89 Æò)
乫/¼ÒÀ¯ÀÚ¹ÚOO / ¹ÚOO
ä±ÇÀÚÁÖOOO OOOOOOOOO
ÆäÀ̽ººÏ Æ®À§ÅÍ ±¸±Û+
īī¿À½ºÅ丮
īī¿ÀÅå sms¹®ÀÚº¸³»±â
 

±âÀϳ»¿ª

°æ°ú ³¯Â¥ Àú°¨ ÃÖÀú°¡ °á°ú
Á¢¼öÀÏ 2025-08-18 °æ¸ÅÁ¢¼ö
~1ÀÏ 
2025-08-19 °æ¸Å°³½Ã°áÁ¤
~74ÀÏ 
2025-10-31 ¹è´ç¿ä±¸Á¾±âÀÏ
~155ÀÏ 
2026-01-20 100%
76,300,000
À¯Âû
~198ÀÏ 
2026-03-04 80%
61,040,000
À¯Âû
~232ÀÏ 
2026-04-07 64%
48,832,000
À¯Âû
~267ÀÏ 
2026-05-12 51%
39,066,000
À¯Âû
~302ÀÏ 
2026-06-16 41%
31,253,000
ÁøÇà
¹°°Ç¸í¼¼¼­ ÇöȲÁ¶»ç¼­ ¹®°ÇÁ¢¼ö ¼Û´Þ³»¿ª

°¨Á¤Æò°¡ÇöȲ

¸ñ·Ï ÁÖ¼Ò ±¸Á¶/¿ëµµ/´ëÁö±Ç ¸éÀû ºñ°í
´ëÁö±Ç
¹øµ¿ 148-26 225ºÐÀÇ 7.6733 7.6733 §³
(2.32Æò)
3ºÐÀÇ1 ÁöºÐÀüºÎ
°Ç¹°
¹øµ¿ 148-26 5Ãþ 502È£ ö±ÙÄÜÅ©¸®Æ®Á¶ 16.153 §³
(4.89Æò)
3ºÐÀÇ1 ÁöºÐÀüºÎ
1) À§Ä¡/µµ½ÃÁö¿ª/Á¦2Á¾ÀϹÝÁÖ°ÅÁö¿ª/ÅäÁö°Å·¡°è¾à¿¡°üÇÑÇã°¡±¸¿ª/ö±ÙÄÜÅ©¸®Æ®Á¶/½½·¡ºêÁöºØ ´õº¸±â
°¨Á¤Æò°¡ ¿äÇ×Ç¥
1)À§Ä¡ ¹× ÁÖÀ§È¯°æ
º»°ÇÀº ¼­¿ïƯº°½Ã °­ºÏ±¸ ¹øµ¿ ¼ÒÀç ""¹øµ¿ÃʵîÇб³"" ³²¼­Ãø Àαٿ¡ À§Ä¡¸ç ÁÖÀ§´Â ´Üµ¶ÁÖÅÃ
´Ù¼¼´ëÁÖÅÃ, ¾ÆÆÄÆ®. ±Ù¸°»ýȰ½Ã¼³, Á¡Æ÷ µîÀÌ È¥ÀçÇÏ´Â Áö¿ªÀÓ.
2)±³Åë»óȲ
º»°Ç±îÁö Â÷·® Á¢±ÙÀÌ ¿ëÀÌÇϰí, Àαٿ¡ ³ë¼± ¹ö½º Á¤·ùÀåÀÌ ¼ÒÀçÇÏ¿© ´ëÁß±³Åë ÀÌ¿ëÀÇ ÆíÀÇ
µµ´Â ¹«³­ÇÔ.
3)°Ç¹°ÀÇ ±¸Á¶
ö±ÙÄÜÅ©¸®Æ®Á¶ ½½·¡ºêÁöºØ 5Ãþ °Ç³» 5Ãþ 502È£·Î¼­,
¿Üº® : º®µ¹ Ä¡Àå½×±â µî ¸¶°¨,
âȣ : ¼¦½Ã ÀÌÁß Ã¢ÀÓ.
4)ÀÌ¿ë»óÅÂ
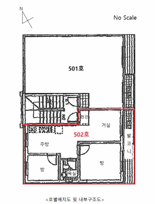
´Ù¼¼´ëÁÖÅÃ(º°Ã· '³»ºÎ±¸Á¶µµ' ÂüÁ¶)À¸·Î ÀÌ¿ëÁßÀÓ.
5)¼³ºñ³»¿ª
À§»ý ¹× ±Þ¡¤¹è¼ö¼³ºñ, ³­¹æ¼³ºñ µîÀÌ µÇ¾î ÀÖÀ½.
6)ÅäÁöÀÇ Çü»ó ¹× ÀÌ¿ë»óÅÂ
°¡ÀåÇü ¿Ï°æ»çÀÇ ÅäÁö·Î ±Ù¸°»ýȰ½Ã¼³ ¹× ´Ù¼¼´ëÁÖÅà °ÇºÎÁö ÀÓ.
7)ÀÎÁ¢ µµ·Î»óŵî
º»°ÇÀº ºÏ¼­ÃøÀ¸·Î Áß·Î, ³²µ¿Ãø ¹× ³²¼­ÃøÀ¸·Î ¼¼·Î¿Í Á¢ÇÔ.
8)ÅäÁöÀÌ¿ë°èȹ ¹× Á¦ÇÑ»óÅÂ
µµ½ÃÁö¿ª, Á¦2Á¾ÀϹÝÁÖ°ÅÁö¿ª, Áß·Î1·ù(Æø 20m~25m)(Á¢ÇÕ), °¡Ãà»çÀ°Á¦Çѱ¸¿ª<°¡ÃàºÐ´¢ÀÇ °ü
¸® ¹× À̿뿡 °üÇÑ ¹ý·ü>, ´ë°ø¹æ¾îÇùÁ¶±¸¿ª(77-257m)<±º»ç±âÁö ¹× ±º»ç½Ã¼³ º¸È£¹ý>, °ú¹Ð
¾ïÁ¦±Ç¿ª<¼öµµ±ÇÁ¤ºñ°èȹ¹ý>, ÅäÁö°Å·¡°è¾à¿¡°üÇÑÇã°¡±¸¿ª(´ë»óÀÚ: ¿Ü±¹ÀÎ µî, ¿ëµµ: ´Üµ¶,
´Ù°¡±¸, ¾ÆÆÄÆ®, ¿¬¸³, ´Ù¼¼´ë, ÁöÁ¤±â°£: 2025. 8. 26. ~ 2026. 8. 25.).
9)°øºÎ¿ÍÀÇ Â÷ÀÌ
¾ø À½.
10)±âŸÂü°í»çÇ×(ÀÓ´ë°ü·Ê ¹× ±âŸ)
1) ÀÓ´ë°ü°è´Â ¹Ì»óÀÓ.

2) º»°ÇÀº °æ»ç ÁöÇüÀ» ÀÌ¿ëÇÏ¿© °ÇÃàÇÑ °Ç¹°·Î¼­ ¿Ü°ü»ó ºÏ¼­Ãø Á߷κ¯¿¡¼­´Â 4ÃþÀ¸·Î º¸ÀÌ
°í, ³²µ¿Ãø ¼¼·Î¿¡¼­´Â 5ÃþÀ¸·Î º¸ÀÓ.
Âü°í
»çÇ×

1) ÇöÁö ¹æ¹®ÇÏ¿´À¸³ª Æó¹®ºÎÀç·Î ¾Æ¹«µµ ¸¸³ªÁö ¸øÇÔ. 2

°ÇÃ๰ÇöȲ

¼ÒÀçÁö ¼­¿ïƯº°½Ã °­ºÏ±¸ ¹øµ¿ 148-26¹øÁö
´ëÁö¸éÀû 194.97§³
(59.08Æò)
¿¬¸éÀû 663.46§³
(201.05Æò)
°ÇÃà¸éÀû 116.74§³
(35.38Æò)
¿ëÀû·ü»êÁ¤
¿¬¸éÀû
552.08§³
(167.3Æò)
°ÇÆóÀ² 59.88% ¿ëÀû·ü 283.16%
Áö»óÃþ¼ö 5Ãþ ÁöÇÏÃþ¼ö 1Ãþ
ÁÖ¿ëµµ °øµ¿ÁÖÅà ±¸Á¶ ö±ÙÄÜÅ©¸®Æ®±¸Á¶
Âø°øÀÏÀÚ 1996.02.13 »ç¿ë½ÂÀÎÀÏÀÚ 1996.06.25
°ÇÃ๰Ãþº°ÇöȲ [º¸±â]


±¹ÅäºÎ½Ç°Å·¡°¡ ¼­¿ïƯº°½Ã °­ºÏ±¸ ¹øµ¿

¡Ü ¸Å¸Å

¸éÀû(§³), ±Ý¾×(¸¸¿ø)

¡Ü Àü¼¼

¸éÀû(§³), ±Ý¾×(¸¸¿ø)

°è¾àÀϰǹ°¸íĪÃþ¿¬¸éÀûº¸Áõ±Ý¿ù¼¼°ÇÃà
26.05.14±¤½ÅÁÖÅÃ(148-234)129.058,80001992
26.05.13´ö»ê¸Ç¼Ç459.79109212011
26.05.11w-vill312.25500472012
26.05.09¹«¸²ºô¶ó247.0215,75001992
26.05.09¿ì¿µÁÖÅÃB147.329,45001989
¢Ñ ´õº¸±â

µî±âºÎµîº» ¿ä¾à(°Ç¹°)

  Á¢¼öÀÏÀÚ µî±â¸ñÀû/±Ç¸®ÀÚ ±Ç¸®±Ý¾× ±âÁØ
1 2024³â9¿ù12ÀÏ
¼ÒÀ¯±Ç
¹ÚOO
¼Ò¸ê
2 2024³â9¿ù12ÀÏ
¼ÒÀ¯±Ç
¹ÚOO
¼Ò¸ê
3 2025³â7¿ù9ÀÏ
°¡¾Ð·ù
ÇÑOOOO
140,776,947 ¼Ò¸ê±âÁØ
4 2025³â8¿ù19ÀÏ
°­Á¦°æ¸Å
(OOOO
¼Ò¸ê

ÀÓÂ÷ÀÎÇöȲ (¹è´ç¿ä±¸Á¾±âÀÏ: 2025-10-31)

ÀÓÂ÷ÀÎ ¿ëµµ/Á¡À¯ º¸Áõ±Ý/¿ù¼¼ ´ëÇ×·Â
ÀüÀÔÀÏ/È®Á¤ÀÏ ¹è´ç¿ä±¸ ºñ°í
ÀÌOO 5Ãþ502È£ ¹Ì»ó
[¿ù]¹Ì»ó
O
2025.01.02.
¹Ì»ó
¹Ì»ó

¿©ÀÇÁÖ°æ¸Å Á¶¾ð ÇÑ ¸¶µð

ÁöºÐ°æ¸Å ¹°°ÇÀÌ Æ÷ÇԵǾî ÀÖ½À´Ï´Ù
¿©·¯ ¸íÀÌ °øµ¿À¸·Î ¼ÒÀ¯ÇÏ´Â ºÎµ¿»êÀÇ ÀϺθ¸ °æ¸Å·Î ³ª¿Â °ÍÀ» ÁöºÐ°æ¸Å¶ó°í ÇÕ´Ï´Ù. ¼ÒÀ¯ºÎºÐÀÌ Æ¯Á¤µÇÁö ¾Ê¾Æ »ç¿ë¿¡ Á¦¾àÀÌ µû¸¦ ¼ö ÀÖÀ¸¸ç °øÀ¯ÀÚ°£¿¡ ºÐÀïµµ ¹ß»ýÇÒ ¼ö ÀÖ½À´Ï´Ù. °øÀ¯ÀÚ´Â °øÀ¯ÀÚ¿ì¼±¸Å¼öû±¸±Ç¸®°¡ ÀÖ½À´Ï´Ù.

ÁÖÀÇ»çÇ× (ÃÖ¼±¼øÀ§ ¼³Á¤ÀÏ: 2025. 7. 9. °¡¾Ð·ù ¼³Á¤)

¸Å°¢À¸·Î ¼Ò¸êµÇÁö ¾Ê´Â µî±âºÎ±Ç¸®:
¸Å°¢À¸·Î ¼³Á¤µÈ °ÍÀ¸·Î º¸´Â Áö»ó±Ç:
1. °Ç¹°¸íĪ '´ëµ¿ºô¶ó'ÀÓ 2. ÁöºÐ¸Å°¢À¸·Î, °øÀ¯ÀÚ ¿ì¼±¸Å¼ö 1ȸ·Î Çϴ Ưº°¸Å°¢Á¶°Ç ÀÖÀ½.
¡Ø¹Ì³³°ü¸®ºñ(°ø¿ë) Àμö¿©ºÎ¸¦ ÀÔÂû Àü¿¡ È®ÀÎÇϽñ⠹ٶø´Ï´Ù

 

Áö¿ªºÐ¼®

ÁöÇÏö¸í Á÷¼±°Å¸®

Çб³¸í ÀüÈ­¹øÈ£ ÁÖ¼Ò Á÷¼±°Å¸®

¹ý¿ø

¼­¿ïºÏºÎÁö¹æ¹ý¿ø (013-22)¼­¿ïƯº°½Ã µµºÀ±¸ ¸¶µé·Î749 (µµºÀ2µ¿ 626)
´ëÇ¥ : 02)910-3114
°üÇÒÁö¿ª : °­ºÏ±¸, ³ë¿ø±¸, µµºÀ±¸, µ¿´ë¹®±¸, ¼ººÏ±¸, Áß¶û±¸

µî±â¼Ò ¼­¿ïºÏºÎÁö¹æ¹ý¿ø º»¿ø µî±â±¹ (´ëÇ¥:1544-0773, ÆÑ½º:(02)2030-2330, ¼­¿ïƯº°½Ã µµºÀ±¸ ³ëÇØ·Î 325 (⵿ 337¹øÁö))
¼¼¹«¼­ µµºÀ¼¼¹«¼­ (´ëÇ¥:02-944-020, ÆÑ½º:02-984-2580, ¼­¿ïƯº°½Ã °­ºÏ±¸ µµºÀ·Î 117 (¹Ì¾Æµ¿))

Àαٳ«ÂûÅë°è

±â°£ ¸Å°¢°Ç¼ö Æò±Õ°¨Á¤°¡
Æò±Õ¸Å°¢°¡
¸Å°¢°¡À²
Æò±ÕÀ¯Âû¼ö
3°³¿ù 18°Ç 258,206,111¿ø
110,555,828¿ø
40%
7.6ȸ
6°³¿ù 51°Ç 256,344,510¿ø
163,442,666¿ø
63%
5.3ȸ
12°³¿ù 105°Ç 248,424,000¿ø
179,861,466¿ø
72%
4ȸ


º» °æ¸ÅÁ¤º¸´Â ¹ý¿øÀÚ·á¿Í ÀÏÄ¡Çϵµ·Ï ÇÏ¿´À¸³ª ±Ç¸®»çÇ׺¯µ¿, ÀÔ·ÂÂø¿À µîÀÇ ¿øÀÎÀ¸·Î »ç½Ç°ú ´Ù¸¦ ¼ö ÀÖ½À´Ï´Ù. ÀÌ¿ë¾à°ü¿¡ ÀǰЏéÃ¥Á¶°ÇÀ¸·Î Á¦°øµÊÀ» ¾Ë¸®¸ç, °æ¸ÅÀÔÂû½Ã ¹Ýµå½Ã °ü·Ã °øºÎ¸¦ ÀçÈ®ÀÎÇϽñ⠹ٶø´Ï´Ù. º¸´Ù Æí¸®ÇÑ °æ¸ÅÁ¤º¸ Á¦°øÀ» À§ÇØ Áö¼ÓÀûÀ¸·Î °³¼±ÇϰڽÀ´Ï´Ù. ÀÌ¿ëÇØ Áּż­ °¨»çÇÕ´Ï´Ù.