·Î±×ÀÎ
39
»ó°¡
ÃáõÁö¹æ¹ý¿ø
 °¨Á¤°¡370,409,090 ¿ø
 ÃÖÀú°¡(100%) 370,409,090 ¿ø
 º¸Áõ±Ý(10%) 37,040,909 ¿ø
 Ã»±¸¾×84,252,054 ¿ø
°­¿øÆ¯º°ÀÚÄ¡µµ ȫõ±º È­Ã̸é ÀåÆò¸® 918
»ç°Ç¹øÈ£ 2025Ÿ°æ50884
°æ¸ÅÁ¾·ùºÎµ¿»êÀÓÀǰæ¸Å
¸Å°¢´ë»óÅäÁö ¹× °Ç¹°Àϰý¸Å°¢
¸Å°¢±âÀÏ    2026.01.19(¿ù) 10:00 (¿À´Ã ÀÔÂû)    
ÅäÁö¸éÀû1,000.00§³(302.50 Æò)
°Ç¹°¸éÀû610.99§³(184.82 Æò)
乫/¼ÒÀ¯ÀÚ±èOO / ±èOO
ä±ÇÀÚÀÌOO
ÆäÀ̽ººÏ Æ®À§ÅÍ ±¸±Û+
īī¿À½ºÅ丮
īī¿ÀÅå sms¹®ÀÚº¸³»±â
 

±âÀϳ»¿ª

°æ°ú ³¯Â¥ Àú°¨ ÃÖÀú°¡ °á°ú
Á¢¼öÀÏ 2025-08-22 °æ¸ÅÁ¢¼ö
~3ÀÏ 
2025-08-25 °æ¸Å°³½Ã°áÁ¤
~110ÀÏ 
2025-12-10 ¹è´ç¿ä±¸Á¾±âÀÏ
~150ÀÏ 
2026-01-19 100%
370,409,090
ÁøÇà
¹°°Ç¸í¼¼¼­ ÇöȲÁ¶»ç¼­ ¹®°ÇÁ¢¼ö ¼Û´Þ³»¿ª

°¨Á¤Æò°¡ÇöȲ

¸ñ·Ï ÁÖ¼Ò ±¸Á¶/¿ëµµ/´ëÁö±Ç ¸éÀû ºñ°í
ÅäÁö
ÀåÆò¸® 918 ´ë 1000 §³
(302.50Æò)
°Ç¹°
ÀåÆò¸® 918 1Ãþ ±Ù¸°»ýȰ½Ã¼³ ö±ÙÄÜÅ©¸®Æ®Á¶ 304.02 §³
(91.97Æò)
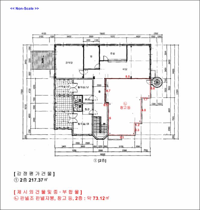
ÀåÆò¸® 918 2Ãþ ±Ù¸°»ýȰ½Ã¼³ ö±ÙÄÜÅ©¸®Æ®Á¶ 217.37 §³
(65.75Æò)
Á¦½Ã¿Ü
°Ç¹°
ÀåÆò¸® 918 Çö°ü 6.5 §³
(1.97Æò)
Æ÷ÇÔ
ÀåÆò¸® 918 â°í µî 73.1 §³
(22.11Æò)
Æ÷ÇÔ
ÀåÆò¸® 918 ¹°ÅÊÅ©½Ç 10.0 §³
(3.03Æò)
Æ÷ÇÔ
1) À§Ä¡/°èȹ°ü¸®Áö¿ª/¹ö½ºÁ¤·ùÀå/ö±ÙÄÜÅ©¸®Æ®Á¶/ö°ñÁ¶ ´õº¸±â
°¨Á¤Æò°¡ ¿äÇ×Ç¥
1)À§Ä¡ ¹× ÁÖÀ§È¯°æ
º»°ÇÀº °­¿øÆ¯º°ÀÚÄ¡µµ ȫõ±º È­Ã̸é ÀåÆò¸® ¼ÒÀç ¡®ÀåÆòº¸°ÇÁø·á¼Ò¡¯ ºÏ¼­Ãø Àαٿ¡ À§Ä¡Çϸç, ÁÖÀ§´Â ³ó°æÁö ¹× ´Üµ¶ÁÖÅà µîÀÌ ¼ÒÀçÇÏ´Â Áö´ëÀÓ.
2)±³Åë»óȲ
º»°Ç±îÁö Â÷·® ÁøÀÔÀÌ °¡´ÉÇϸç, Àα٠¹ö½ºÁ¤·ùÀå±îÁöÀÇ °Å¸®, ¿îÇàȽ¼ö µîÀ» °í·Á½Ã ´ëÁß±³Åë»çÁ¤Àº º¸ÅëÀÓ.
3)ÇüÅ ¹× ÀÌ¿ë»óÅÂ
»ç´Ù¸®ÇüÀÇ ¿Ï°æ»çÁö·Î »ó¾÷¿ë °ÇºÎÁö·Î ÀÌ¿ëÁßÀÓ.
4)ÀÎÁ¢ µµ·Î»óÅÂ
º»°Ç ºÏ¼­ÃøÀ¸·Î ³ëÆø ¾à 3¹ÌÅÍÀÇ Æ÷Àåµµ·Î¿¡ Á¢ÇÔ.
5)ÅäÁöÀÌ¿ë°èȹ ¹× Á¦ÇÑ»óÅÂ
°èȹ°ü¸®Áö¿ª , ¼ºÀå°ü¸®°èȹ±¸¿ª(È­ÃÌ041), °¡Ãà»çÀ°Á¦Çѱ¸¿ª(2024-08-16)(´Üµ¶ÁÖÅà °æ°è(300mÀ̳») - µÅÁö,°³,´ß,¿À¸®(1,000§³ ¹Ì¸¸))<°¡ÃàºÐ´¢ÀÇ °ü¸® ¹× À̿뿡 °üÇÑ ¹ý·ü>, °¡Ãà»çÀ°Á¦Çѱ¸¿ª(°¡Ãà»çÀ°Á¦Çѱ¸¿ª(1000mÀ̳») - µÅÁö,°³,´ß,¿À¸®(1,000§³¹Ì¸¸))<°¡ÃàºÐ´¢ÀÇ °ü¸® ¹× À̿뿡 °üÇÑ ¹ý·ü>, °¡Ãà»çÀ°Á¦Çѱ¸¿ª(°¡Ãà»çÀ°Á¦Çѱ¸¿ª(100mÀ̳») - ¾ç,»ç½¿,¼Ò,¸»(450§³¹Ì¸¸))<°¡ÃàºÐ´¢ÀÇ °ü¸® ¹× À̿뿡 °üÇÑ ¹ý·ü>, °¡Ãà»çÀ°Á¦Çѱ¸¿ª(°¡Ãà»çÀ°Á¦Çѱ¸¿ª(130mÀ̳») - ¾ç,»ç½¿,¼Ò,¸»(450§³ÀÌ»ó))<°¡ÃàºÐ´¢ÀÇ °ü¸® ¹× À̿뿡 °üÇÑ ¹ý·ü>, °¡Ãà»çÀ°Á¦Çѱ¸¿ª(°¡Ãà»çÀ°Á¦Çѱ¸¿ª(2000mÀ̳») - µÅÁö,°³,´ß,¿À¸®(1,000§³ÀÌ»ó))<°¡ÃàºÐ´¢ÀÇ °ü¸® ¹× À̿뿡 °üÇÑ ¹ý·ü>, °¡Ãà»çÀ°Á¦Çѱ¸¿ª(°¡Ãà»çÀ°Á¦Çѱ¸¿ª(250mÀ̳») - Á¥¼Ò)<°¡ÃàºÐ´¢ÀÇ °ü¸® ¹× À̿뿡 °üÇÑ ¹ý·ü>, °¡Ãà»çÀ°Á¦Çѱ¸¿ª(´Üµ¶ÁÖÅà °æ°è(500mÀ̳») - µÅÁö,°³,´ß,¿À¸®(1,000§³ ÀÌ»ó))<°¡ÃàºÐ´¢ÀÇ °ü¸® ¹× À̿뿡 °üÇÑ ¹ý·ü>, ¼ÒÇÏõ±¸¿ª(°ñ¸»Ãµ)<¼ÒÇÏõÁ¤ºñ¹ý>
6)Á¦½Ã¸ñ·Ï ¿ÜÀÇ ¹°°Ç
-.
7)°øºÎ¿ÍÀÇ Â÷ÀÌ
-.
8)±âŸÂü°í»çÇ×(ÀÓ´ë°ü·Ê ¹× ±âŸ)
ÀÓ´ë°ü°è´Â ¹Ì»óÀÓ.
1)°Ç¹°ÀÇ ±¸Á¶
ö±ÙÄÜÅ©¸®Æ®Á¶, ö°ñÁ¶ ¹× ½Ã¸àÆ®º®µ¹Á¶ 2Ãþ °ÇÀ¸·Î¼­
¿Üº®: µå¶óÀ̺ñÆ® µî ¸¶°¨.
³»º®: ŸÀϺÙÀÓ, º®Áö µî ¸¶°¨.
âȣ: ¼¦½Ã âȣÀÓ.
2)ÀÌ¿ë»óÅÂ
±Ù¸°»ýȰ½Ã¼³·Î »ç¿ëÇÏ¿´À¸³ª, ±âÁؽÃÁ¡ ÇöȲ ¹Ì¿î¿µ »óÅÂÀÓ.
3)¼³ºñ³»¿ª
±âº»ÀûÀÎ À§»ý¼³ºñ, Àü±â¼³ºñ, º¸ÀÏ·¯¼³ºñ µîÀÌ µÇ¾îÀÖÀ½.
4)ºÎÇÕ¹° ¹× Á¾¹°
ÈÄ÷ 'ÁöÀû ¹× °Ç¹°°³È²µµ' ÂüÁ¶.
5)°øºÎ¿ÍÀÇ Â÷ÀÌ
-.
6)±âŸÂü°í»çÇ×(ÀÓ´ë°ü·Ê ¹× ±âŸ)
ÀÓ´ë°ü°è´Â ¹Ì»óÀÓ.
Âü°í
»çÇ×
- Àϰý¸Å°¢. Á¦½Ã¿Ü °Ç¹° Æ÷ÇÔ
1.Á¦½ÃºÎµ¿»ê ¸ñ·Ï1¹ø -ÁÖ°Å¿ëÀÓ. 2.Á¦½ÃºÎµ¿»ê ¸ñ·Ï2¹ø -`´ë`ÀÓ.

°ÇÃ๰ÇöȲ

¼ÒÀçÁö °­¿øÆ¯º°ÀÚÄ¡µµ ȫõ±º È­Ã̸é ÀåÆò¸® 918¹øÁö
´ëÁö¸éÀû 1000§³
(303.03Æò)
¿¬¸éÀû 521.39§³
(158Æò)
°ÇÃà¸éÀû 307.76§³
(93.26Æò)
¿ëÀû·ü»êÁ¤
¿¬¸éÀû
521.39§³
(158Æò)
°ÇÆóÀ² 30.78% ¿ëÀû·ü 52.14%
Áö»óÃþ¼ö 2Ãþ ÁöÇÏÃþ¼ö  
ÁÖ¿ëµµ ±Ù¸°»ýȰ½Ã¼³ ±¸Á¶ ö±ÙÄÜÅ©¸®Æ®±¸Á¶
Âø°øÀÏÀÚ 2001.08.15 »ç¿ë½ÂÀÎÀÏÀÚ 2002.02.02
°ÇÃ๰Ãþº°ÇöȲ [º¸±â]


µî±âºÎµîº» ¿ä¾à(ÅäÁö)

  Á¢¼öÀÏÀÚ µî±â¸ñÀû/±Ç¸®ÀÚ ±Ç¸®±Ý¾× ±âÁØ
1 2024³â2¿ù16ÀÏ
¼ÒÀ¯±Ç
±èOO
¼Ò¸ê
2 2024³â5¿ù16ÀÏ
±ÙÀú´ç±Ç
ÀÌOO
120,000,000 ¼Ò¸ê±âÁØ
3 2025³â8¿ù22ÀÏ
±ÙÀú´ç±Ç
ÀÓOO
60,000,000 ¼Ò¸ê
4 2025³â8¿ù26ÀÏ
ÀÓÀǰæ¸Å
ÀÌOO
¼Ò¸ê

µî±âºÎµîº» ¿ä¾à(°Ç¹°)

  Á¢¼öÀÏÀÚ µî±â¸ñÀû/±Ç¸®ÀÚ ±Ç¸®±Ý¾× ±âÁØ
1 2024³â2¿ù16ÀÏ
¼ÒÀ¯±Ç
±èOO
¼Ò¸ê
2 2024³â5¿ù16ÀÏ
±ÙÀú´ç±Ç
ÀÌOO
120,000,000 ¼Ò¸ê±âÁØ
3 2025³â8¿ù22ÀÏ
±ÙÀú´ç±Ç
ÀÓOO
60,000,000 ¼Ò¸ê
4 2025³â8¿ù26ÀÏ
ÀÓÀǰæ¸Å
ÀÌOO
¼Ò¸ê

ÀÓÂ÷ÀÎÇöȲ (¹è´ç¿ä±¸Á¾±âÀÏ: 2025-12-10)

ÀÓÂ÷ÀÎ ¿ëµµ/Á¡À¯ º¸Áõ±Ý/¿ù¼¼ ´ëÇ×·Â
ÀüÀÔÀÏ/È®Á¤ÀÏ ¹è´ç¿ä±¸ ºñ°í
¹ÚOO
X
2024.07.11
¾öOO
X
2024.08.01
¾öOO
X
2024.07.11

¿©ÀÇÁÖ°æ¸Å Á¶¾ð ÇÑ ¸¶µð

Á¦½Ã¿Ü ¹°°ÇÀÌ Æ÷ÇԵǾî ÀÖ½À´Ï´Ù
¡®Á¦½Ã¿Ü ¹°°Ç¡¯Àº ÇØ´ç °øºÎ»ó¿¡´Â Á¸ÀçÇÏÁö ¾ÊÁö¸¸, ÇöÀå¿¡ Á¸Àç°¡ È®ÀεǴ ¿©·¯ ÇüÅÂÀÇ °Ç¹°, ±â°è±â±¸ µîÀ» ¸»ÇÕ´Ï´Ù. ÀÌµé ´ëºÎºÐÀº ¹«Çã°¡, ¹«½Å°íÀ̰ųª »ç¿ë½ÂÀÎÀ» ¹ÞÁö ¾ÊÀº °ÍÀÔ´Ï´Ù. ¡®Á¦½Ã¿Ü ¹°°Ç¡¯ÀÌ °æ¸Å´ë»ó¿¡ Æ÷ÇԵǾî ÀÖ´Ù¸é ³«ÂûÀÚÀÇ ¼ÒÀ¯±Ç Ãëµæ¿¡´Â ¾Æ¹«·± ¹®Á¦°¡ ¾ø½À´Ï´Ù.
ÃëÇÏ ¶Ç´Â Ãë¼ÒµÉ °¡´É¼º ÀÖ½À´Ï´Ù
ÀÌ ¹°°ÇÀÇ °¨Á¤°¡°ÝÀº 370,409,090¿øÀÔ´Ï´Ù. °æ¸Å¸¦ ½ÅûÇÑ Ã¤±ÇÀÚ°¡ ¹è´ç ¹Þ¾Æ¾ß ÇÒ ±Ý¾×Àº 84,252,054¿øÀ¸·Î °¨Á¤°¡°Ý ´ëºñ »ó´çÈ÷ ÀûÀº ±Ý¾×ÀÔ´Ï´Ù. ÀÌ·± °æ¿ì, 乫°¡°¡ º¯Á¦ÇÏ¿© °æ¸Å¸¦ ÃëÇϽÃŰ°Å³ª °æ¸Å½Åûä±ÇÀÚ°¡ ¹è´ç¹ÞÀº ±Ý¿øÀÌ ¾ø°ÔµÇ¾î À̸¥ ¹Ù "¹«À׿©¿¡ ÀÇÇÑ Ãë¼Ò"°¡ µÉ °¡´É¼ºÀÌ ÀÖ½À´Ï´Ù.

ÁÖÀÇ»çÇ× (ÃÖ¼±¼øÀ§ ¼³Á¤ÀÏ: 2024.05.16 ±ÙÀú´ç±Ç ¼³Á¤)

¸Å°¢À¸·Î ¼Ò¸êµÇÁö ¾Ê´Â µî±âºÎ±Ç¸®: ÇØ´ç»çÇ×¾øÀ½
¸Å°¢À¸·Î ¼³Á¤µÈ °ÍÀ¸·Î º¸´Â Áö»ó±Ç: ÇØ´ç»çÇ×¾øÀ½
- Àϰý¸Å°¢. Á¦½Ã¿Ü °Ç¹° Æ÷ÇÔ
¡Ø¹Ì³³°ü¸®ºñ(°ø¿ë) Àμö¿©ºÎ¸¦ ÀÔÂû Àü¿¡ È®ÀÎÇϽñ⠹ٶø´Ï´Ù

 

Áö¿ªºÐ¼®

ÁöÇÏö¸í Á÷¼±°Å¸®

Çб³¸í ÀüÈ­¹øÈ£ ÁÖ¼Ò Á÷¼±°Å¸®

¹ý¿ø

ÃáõÁö¹æ¹ý¿ø (243-42)°­¿øµµ Ãáõ½Ã °øÁö·Î 284 (È¿ÀÚ2µ¿)
´ëÇ¥ : 033)259-9000
°üÇÒÁö¿ª : Ãáõ½Ã, ÀÎÁ¦±º, ȫõ±º, ¾ç±¸±º, ȭõ±º(1½Ã4±º)

µî±â¼Ò ÃáõÁö¹æ¹ý¿ø º»¿ø È«Ãµµî±â¼Ò (´ëÇ¥:1544-0773, ÆÑ½º:(033)434-9475, °­¿øµµ ȫõ±º ȫõÀ¾ ȫõ·Î5±æ 8 (½ÅÀå´ë¸® 68-12))
¼¼¹«¼­ ȫõ¼¼¹«¼­ (´ëÇ¥:033-430-12, ÆÑ½º:033-433-1889, °­¿øµµ ȫõ±º ȫõÀ¾ »ý¸í°úÇаü±æ 50)

Àαٳ«ÂûÅë°è

±â°£ ¸Å°¢°Ç¼ö Æò±Õ°¨Á¤°¡
Æò±Õ¸Å°¢°¡
¸Å°¢°¡À²
Æò±ÕÀ¯Âû¼ö
3°³¿ù 1°Ç 954,004,360¿ø
180,055,500¿ø
19%
6ȸ
6°³¿ù 1°Ç 954,004,360¿ø
180,055,500¿ø
19%
6ȸ
12°³¿ù 2°Ç 598,958,500¿ø
178,877,750¿ø
46%
3.5ȸ


º» °æ¸ÅÁ¤º¸´Â ¹ý¿øÀÚ·á¿Í ÀÏÄ¡Çϵµ·Ï ÇÏ¿´À¸³ª ±Ç¸®»çÇ׺¯µ¿, ÀÔ·ÂÂø¿À µîÀÇ ¿øÀÎÀ¸·Î »ç½Ç°ú ´Ù¸¦ ¼ö ÀÖ½À´Ï´Ù. ÀÌ¿ë¾à°ü¿¡ ÀǰЏéÃ¥Á¶°ÇÀ¸·Î Á¦°øµÊÀ» ¾Ë¸®¸ç, °æ¸ÅÀÔÂû½Ã ¹Ýµå½Ã °ü·Ã °øºÎ¸¦ ÀçÈ®ÀÎÇϽñ⠹ٶø´Ï´Ù. º¸´Ù Æí¸®ÇÑ °æ¸ÅÁ¤º¸ Á¦°øÀ» À§ÇØ Áö¼ÓÀûÀ¸·Î °³¼±ÇϰڽÀ´Ï´Ù. ÀÌ¿ëÇØ Áּż­ °¨»çÇÕ´Ï´Ù.