·Î±×ÀÎ
1389
±Ù¸°»ó°¡
¼ö¿øÁö¹æ¹ý¿ø ¼º³²Áö¿ø
 °¨Á¤°¡1,148,000,000 ¿ø
 ÃÖÀú°¡(24%) 275,635,000 ¿ø
 º¸Áõ±Ý(10%) 27,563,500 ¿ø
 Ã»±¸¾×742,573,116 ¿ø
°æ±âµµ Çϳ²½Ã ¹Ì»ç°­º¯Áß¾Ó·Î 190, 1Ãþ115È£ (¸Á¿ùµ¿,Çϳ²¹Ì»ç·Ôµ¥Ä³½½½ºÅ¸)
°æ±âµµ Çϳ²½Ã ¸Á¿ùµ¿ 1099
»ç°Ç¹øÈ£ 2024Ÿ°æ71928
°æ¸ÅÁ¾·ùºÎµ¿»êÀÓÀǰæ¸Å
¸Å°¢´ë»óÅäÁö ¹× °Ç¹°Àϰý ¸Å°¢
¸Å°¢±âÀÏ    2026.06.08(¿ù) 10:00 ÀÔÂû 11ÀÏÀü    
ÅäÁö¸éÀû7.28§³(2.20 Æò)
°Ç¹°¸éÀû36.98§³(11.19 Æò)
乫/¼ÒÀ¯ÀÚ¹ÚOO / ¹ÚOO
ä±ÇÀÚÀ¯OOOOOOOOOOOOO OOOO (OOO O OOOO OOOO)
ÆäÀ̽ººÏ Æ®À§ÅÍ ±¸±Û+
īī¿À½ºÅ丮
īī¿ÀÅå sms¹®ÀÚº¸³»±â
 

±âÀϳ»¿ª

°æ°ú ³¯Â¥ Àú°¨ ÃÖÀú°¡ °á°ú
Á¢¼öÀÏ 2024-12-23 °æ¸ÅÁ¢¼ö
~1ÀÏ 
2024-12-24 °æ¸Å°³½Ã°áÁ¤
~72ÀÏ 
2025-03-05 ¹è´ç¿ä±¸Á¾±âÀÏ
~392ÀÏ 
2026-01-19 100%
1,148,000,000
À¯Âû
~427ÀÏ 
2026-02-23 70%
803,600,000
À¯Âû
~462ÀÏ 
2026-03-30 49%
562,520,000
À¯Âû
~497ÀÏ 
2026-05-04 34%
393,764,000
À¯Âû
~532ÀÏ 
2026-06-08 24%
275,635,000
ÁøÇà
¹°°Ç¸í¼¼¼­ ÇöȲÁ¶»ç¼­ ¹®°ÇÁ¢¼ö ¼Û´Þ³»¿ª

°¨Á¤Æò°¡ÇöȲ

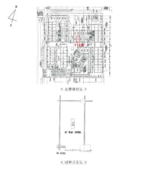
¸ñ·Ï ÁÖ¼Ò ±¸Á¶/¿ëµµ/´ëÁö±Ç ¸éÀû ºñ°í
´ëÁö±Ç
¸Á¿ùµ¿ 1099 7476.5ºÐÀÇ 7.28 7.28 §³
(2.20Æò)
°Ç¹°
¸Á¿ùµ¿ 1099 1Ãþ115È£ ö°ñö±ÙÄÜÅ©¸®Æ®Á¶ 36.98 §³
(11.19Æò)
1) À§Ä¡/µµ½ÃÁö¿ª/Á߽ɻó¾÷Áö¿ª/Áö±¸´ÜÀ§°èȹ±¸¿ª/¹ö½ºÁ¤·ùÀå/ÁöÇÏö/ÁöÇÏÁÖÂ÷Àå/ö±ÙÄÜÅ©¸®Æ®±¸Á¶ ´õº¸±â
°¨Á¤Æò°¡ ¿äÇ×Ç¥
1)À§Ä¡ ¹× ÁÖÀ§È¯°æ
º»°ÇÀº °æ±âµµ Çϳ²½Ã ¸Á¿ùµ¿ ¼ÒÀç "¹Ì»ç¿ª" ºÏ¼­Ãø Àαٿ¡ À§Ä¡ÇÏ¸ç ºÎ±ÙÀ¸·Î ¾ÆÆÄÆ®, ¾÷¹«
½Ã¼³, »ó¾÷½Ã¼³, ¿ÀÇǽºÅÚ, Çб³, °ü°ø¼­, ±Ù¸°»ýȰ½Ã¼³, °ø¿øµîÀÌ ¼ÒÀçÇϸç Á¦¹Ý ÁÖÀ§È¯°æ
Àº º¸ÅëÀÎ ÆíÀÓ.
2)±³Åë»óȲ
º»°Ç±îÁö Â÷·® ÁøÃâÀÔ °¡´ÉÇϸç Àαٿ¡ ¹ö½ºÁ¤·ùÀå ¹× ÁöÇÏö¿ª(¹Ì»ç¿ª)ÀÌ ¼ÒÀçÇÏ¿© ´ëÁß±³
Åë ÀÌ¿ëÀº ¾çÈ£ÇÑ ÆíÀÓ.
3)°Ç¹°ÀÇ ±¸Á¶
ö±ÙÄÜÅ©¸®Æ®±¸Á¶ (ö±Ù)ÄÜÅ©¸®Æ®ÁöºØ 29Ãþ °Ç¹° ³» 1Ãþ 115È£·Î¼­,

¿Ü º® : ¸ôÅ» À§ ÆäÀÎÆ® ¹× ¼®ÀçºÙÀÓ.
³» º® : ¸ôÅ» À§ ÆäÀÎÆ® ¸¶°¨.
â È£ : ¾Ë·ç¹Ì´½¼¦½Ã °­È­À¯¸® ÀÓ.
4)ÀÌ¿ë»óÅÂ
°øºÎ»ó ±Ù¸°»ýȰ½Ã¼³À̳ª ÇöȲ "°ø½Ç" »óÅÂÀÓ.
Èĸé ("³»ºÎ°³È²µµ ¹× »çÁø" Âü°í)
5)¼³ºñ³»¿ª
±âº»ÀûÀÎ À§»ý ±Þ.¹è¼ö¼³ºñ, ½Â°­±â, ¼Ò¹æ¼³ºñ, ÁöÇÏÁÖÂ÷Àå¼³ºñ µîÀÓ.
6)ÅäÁöÀÇ Çü»ó ¹× ÀÌ¿ë»óÅÂ
ÀÎÁ¢µµ·Î¿Í µî°í ÆòźÇÑ °¡ÀåÇü ÅäÁö·Î¼­ ÁÖ»ó¿ë °ÇºÎÁö·Î ÀÌ¿ëÁßÀÓ.
7)ÀÎÁ¢ µµ·Î»óŵî
º»°Ç ¼­ÃøÀ¸·Î ÁÖÂ÷Àå ÁøÃâÀÔ °¡´ÉÇÏ¸ç ¿Ü°û°øµµ¿Í ¿¬°èµÇ¾î ÀÖÀ½.
8)ÅäÁöÀÌ¿ë°èȹ ¹× Á¦ÇÑ»óÅÂ
µµ½ÃÁö¿ª, Á߽ɻó¾÷Áö¿ª, Áö±¸´ÜÀ§°èȹ±¸¿ª(¹Ì»çÁö±¸), ¼Ò·Î1·ù(Æø 10m-12m)(º¸ÇàÀÚÀü¿ëµµ·Î
)(Á¢ÇÕ), Áß·Î1·ù(Æø 20m-25m)(2014-10-14)(Á¢ÇÕ), Áß·Î1·ù(Æø 20m-25m)(Á¢ÇÕ)

°¡Ãà»çÀ°Á¦Çѱ¸¿ª(ÀüºÎÁ¦ÇÑÁö¿ª)<°¡ÃàºÐ´¢ÀÇ °ü¸® ¹× À̿뿡 °üÇÑ ¹ý·ü>,°ø°øÁÖÅÃÁö±¸<°ø°ø
ÁÖÅà Ưº°¹ý>, ¹èÃâ½Ã¼³¼³Ä¡Á¦ÇÑÁö¿ª<¹°È¯°æº¸Àü¹ý>, °ú¹Ð¾ïÁ¦±Ç¿ª<¼öµµ±ÇÁ¤ºñ°èȹ¹ý>,°øÀå
¼³¸³½ÂÀÎÁö¿ª(¼öµµ¹ý ½ÃÇà·É Á¦14Á¶ÀÇ3Á¦2È£)<¼öµµ¹ý>


9)°øºÎ¿ÍÀÇ Â÷ÀÌ
-
10)±âŸÂü°í»çÇ×(ÀÓ´ë°ü·Ê ¹× ±âŸ)
ÀÓ´ë°ü°è ¹Ì»óÀÓ.

Âü°í
»çÇ×
°øºÎ»ó ±Ù¸°»ýȰ½Ã¼³À̳ª ÇöȲ'°ø½Ç'»óÅÂÀÓ
°ø½Ç


µî±âºÎµîº» ¿ä¾à(°Ç¹°)

  Á¢¼öÀÏÀÚ µî±â¸ñÀû/±Ç¸®ÀÚ ±Ç¸®±Ý¾× ±âÁØ
1 2023³â12¿ù15ÀÏ
¼ÒÀ¯±Ç
¹ÚOO
¼Ò¸ê
2 2023³â12¿ù15ÀÏ
±ÙÀú´ç±Ç
(OOOO
840,000,000 ¼Ò¸ê±âÁØ
3 2024³â5¿ù28ÀÏ
(1)°¡¾Ð·ù
·ÔOOOO
13,006,326 ¼Ò¸ê
4 2024³â5¿ù28ÀÏ
(2)°¡¾Ð·ù
(OOOO
13,360,424 ¼Ò¸ê
5 2024³â7¿ù24ÀÏ
°¡¾Ð·ù
¼­OOOO
95,549,200 ¼Ò¸ê
6 2024³â8¿ù16ÀÏ
°¡¾Ð·ù
¼­OOOO
40,261,800 ¼Ò¸ê
7 2024³â12¿ù24ÀÏ
ÀÓÀǰæ¸Å
À¯OOOO
¼Ò¸ê
8 2025³â8¿ù21ÀÏ
¾Ð·ù
ÇÏOO
¼Ò¸ê
9 2025³â10¿ù15ÀÏ
¾Ð·ù
±¹
¼Ò¸ê

ÀÓÂ÷ÀÎÇöȲ (¹è´ç¿ä±¸Á¾±âÀÏ: 2025-03-05)

ÀÓÂ÷ÀÎ ¿ëµµ/Á¡À¯ º¸Áõ±Ý/¿ù¼¼ ´ëÇ×·Â
ÀüÀÔÀÏ/È®Á¤ÀÏ ¹è´ç¿ä±¸ ºñ°í
¿ÀOO 45,000,000
X
2024.05.14.
2024.07.11.
2024/02/15-2026/02/14

¿©ÀÇÁÖ°æ¸Å Á¶¾ð ÇÑ ¸¶µð


ÁÖÀÇ»çÇ× (ÃÖ¼±¼øÀ§ ¼³Á¤ÀÏ: 2023.12.15.±ÙÀú´ç±Ç ¼³Á¤)

¸Å°¢À¸·Î ¼Ò¸êµÇÁö ¾Ê´Â µî±âºÎ±Ç¸®:
¸Å°¢À¸·Î ¼³Á¤µÈ °ÍÀ¸·Î º¸´Â Áö»ó±Ç:
°øºÎ»ó ±Ù¸°»ýȰ½Ã¼³À̳ª ÇöȲ'°ø½Ç'»óÅÂÀÓ
¡Ø¹Ì³³°ü¸®ºñ(°ø¿ë) Àμö¿©ºÎ¸¦ ÀÔÂû Àü¿¡ È®ÀÎÇϽñ⠹ٶø´Ï´Ù

 

Áö¿ªºÐ¼®

ÁöÇÏö¸í Á÷¼±°Å¸®

Çб³¸í ÀüÈ­¹øÈ£ ÁÖ¼Ò Á÷¼±°Å¸®

¹ý¿ø

¼ö¿øÁö¹æ¹ý¿ø ¼º³²Áö¿ø (131-43)°æ±âµµ ¼º³²½Ã ¼öÁ¤±¸ »ê¼º´ë·Î 451 (´Ü´ëµ¿)
´ëÇ¥ : 031)737-1558, ¾ß°£ : 031)737-1120
°üÇÒÁö¿ª : ¼º³²½Ã, ±¤ÁÖ½Ã, Çϳ²½Ã

µî±â¼Ò ¼ö¿øÁö¹æ¹ý¿ø ¼º³²Áö¿ø Çϳ²µî±â¼Ò (´ëÇ¥:1544-0773, ÆÑ½º:(031)791-3199, °æ±âµµ Çϳ²½Ã °Ë´Ü·Î 15 (õÇöµ¿ 576-6))
¼¼¹«¼­ °æ±â±¤ÁÖ¼¼¹«¼­ (´ëÇ¥:031-880-92, ÆÑ½º:031-769-0417, °æ±âµµ ±¤Áֽà ¹®È­·Î 127)

Àαٳ«ÂûÅë°è

±â°£ ¸Å°¢°Ç¼ö Æò±Õ°¨Á¤°¡
Æò±Õ¸Å°¢°¡
¸Å°¢°¡À²
Æò±ÕÀ¯Âû¼ö
3°³¿ù 35°Ç 557,000,000¿ø
210,396,429¿ø
43%
3.8ȸ
6°³¿ù 66°Ç 633,621,212¿ø
302,615,998¿ø
52%
3.1ȸ
12°³¿ù 91°Ç 579,758,242¿ø
300,664,496¿ø
58%
2.7ȸ


º» °æ¸ÅÁ¤º¸´Â ¹ý¿øÀÚ·á¿Í ÀÏÄ¡Çϵµ·Ï ÇÏ¿´À¸³ª ±Ç¸®»çÇ׺¯µ¿, ÀÔ·ÂÂø¿À µîÀÇ ¿øÀÎÀ¸·Î »ç½Ç°ú ´Ù¸¦ ¼ö ÀÖ½À´Ï´Ù. ÀÌ¿ë¾à°ü¿¡ ÀǰЏéÃ¥Á¶°ÇÀ¸·Î Á¦°øµÊÀ» ¾Ë¸®¸ç, °æ¸ÅÀÔÂû½Ã ¹Ýµå½Ã °ü·Ã °øºÎ¸¦ ÀçÈ®ÀÎÇϽñ⠹ٶø´Ï´Ù. º¸´Ù Æí¸®ÇÑ °æ¸ÅÁ¤º¸ Á¦°øÀ» À§ÇØ Áö¼ÓÀûÀ¸·Î °³¼±ÇϰڽÀ´Ï´Ù. ÀÌ¿ëÇØ Áּż­ °¨»çÇÕ´Ï´Ù.