·Î±×ÀÎ
1088
Äܵµ(È£ÅÚ)
ÃáõÁö¹æ¹ý¿ø °­¸ªÁö¿ø
 °¨Á¤°¡239,000,000 ¿ø
 ÃÖÀú°¡(70%) 167,300,000 ¿ø
 º¸Áõ±Ý(10%) 16,730,000 ¿ø
 Ã»±¸¾×142,933,965 ¿ø
°­¿øÆ¯º°ÀÚÄ¡µµ °­¸ª½Ã »çõ¸é »çõÁø¸® 86-81 ÄÁÇdz׽º¿À¼Ç½ºÀ§Æ® Á¦23Ãþ Á¦¿¡ÀÌ-2308È£
»ç°Ç¹øÈ£ 2025Ÿ°æ247
°æ¸ÅÁ¾·ùºÎµ¿»êÀÓÀǰæ¸Å
¸Å°¢´ë»óÅäÁö ¹× °Ç¹°Àϰý ¸Å°¢
¸Å°¢±âÀÏ    2026.03.09(¿ù) 10:00 ÀÔÂû 14ÀÏÀü    
ÅäÁö¸éÀû6.64§³(2.01 Æò)
°Ç¹°¸éÀû50.00§³(15.12 Æò)
乫/¼ÒÀ¯ÀÚ±èOO / ±èOO
ä±ÇÀÚµ¿OOOOOOO
ÆäÀ̽ººÏ Æ®À§ÅÍ ±¸±Û+
īī¿À½ºÅ丮
īī¿ÀÅå sms¹®ÀÚº¸³»±â
 

±âÀϳ»¿ª

°æ°ú ³¯Â¥ Àú°¨ ÃÖÀú°¡ °á°ú
Á¢¼öÀÏ 2025-08-06 °æ¸ÅÁ¢¼ö
~0ÀÏ 
2025-08-06 °æ¸Å°³½Ã°áÁ¤
~96ÀÏ 
2025-11-10 ¹è´ç¿ä±¸Á¾±âÀÏ
~166ÀÏ 
2026-01-19 100%
239,000,000
À¯Âû
~215ÀÏ 
2026-03-09 70%
167,300,000
ÁøÇà
¹°°Ç¸í¼¼¼­ ÇöȲÁ¶»ç¼­ ¹®°ÇÁ¢¼ö ¼Û´Þ³»¿ª

°¨Á¤Æò°¡ÇöȲ

¸ñ·Ï ÁÖ¼Ò ±¸Á¶/¿ëµµ/´ëÁö±Ç ¸éÀû ºñ°í
´ëÁö±Ç
»çõÁø¸® 86-81 2704ºÐÀÇ 6.6425 6.6425 §³
(2.01Æò)
°Ç¹°
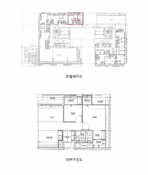
»çõÁø¸® 86-81 Á¦23Ãþ Á¦¿¡ÀÌ-2308È£ ö±ÙÄÜÅ©¸®Æ®±¸Á¶ 49.9999 §³
(15.12Æò)
1) À§Ä¡/µµ½ÃÁö¿ª/±Ù¸°»ó¾÷Áö¿ª/ö±ÙÄÜÅ©¸®Æ®±¸Á¶/°¡½ºº¸ÀÏ·¯ ´õº¸±â
°¨Á¤Æò°¡ ¿äÇ×Ç¥
1)À§Ä¡ ¹× ÁÖÀ§È¯°æ
º»°ÇÀº °­¿øÆ¯º°ÀÚÄ¡µµ °­¸ª½Ã »çõ¸é »çõÁø¸® ¼ÒÀç ""»çõÁøÇ×"" ¼­Ãø Àαٿ¡ À§Ä¡Çϸç, ÁÖ
À§´Â ¼÷¹Ú½Ã¼³ ¹× ±Ù¸°»ýȰ½Ã¼³ µîÀÌ È¥ÀçÇÏ´Â ÇØ¾È »ó°¡Áö´ëÀÓ.
2)±³Åë»óȲ
º»°Ç±îÁö Â÷·®ÁøÀÔÀÌ ¿ëÀÌÇϸç, Àα٠³ë¼±¹ö½ºÀÇ ¿îÇà»óȲ ¹× µµ·Î»óȲÀ» °í·Á½Ã Á¦¹Ý ±³Åë»óȲÀº º¸ÅëÀÓ.
3)°Ç¹°ÀÇ ±¸Á¶
ö±ÙÄÜÅ©¸®Æ®±¸Á¶ (ö±Ù)ÄÜÅ©¸®Æ®ÁöºØ 27Ãþ °Ç³» Á¦23Ãþ Á¦¿¡ÀÌ-2308È£·Î¼­,
¿Üº®: ¸ôÅ»À§ÆäÀÎÆÃ, ¼®Àç µî ¸¶°¨
³»º®: º®Áöµµ¹è ¹× ŸÀϺÙÀÓ ¸¶°¨
âȣ: ¼¦½Ã âȣÀÓ.
4)ÀÌ¿ë»óÅÂ
¼÷¹Ú½Ã¼³(»ýȰ¼÷¹Ú½Ã¼³)·Î ÀÌ¿ëÁßÀÓ.
5)¼³ºñ³»¿ª
À§»ý ¹× ±Þ¹è¼ö¼³ºñ, õÀåÇü ³Ã³­¹æ¼³ºñ, °¡½ºº¸ÀÏ·¯¿¡ ÀÇÇÑ ±ÞÅÁ ¹× ³­¹æ¼³ºñ, ½Â°­±â¼³ºñ,
È­ÀçŽÁö ¹× °æº¸¼³ºñ, ½ºÇÁ¸µÄ𷯼³ºñ, ¿Á³»¼ÒÈ­Àü ¼³ºñ µîÀÓ.


6)ÅäÁöÀÇ Çü»ó ¹× ÀÌ¿ë»óÅÂ
ºÎÁ¤Çü ÆòÁö·Î¼­ ¼÷¹Ú½Ã¼³ °ÇºÎÁö·Î ÀÌ¿ë ÁßÀÓ.
7)ÀÎÁ¢ µµ·Î»óŵî
º»°Ç µ¿Ãø, ¼­Ãø, ³²ÃøÀ¸·Î ³ëÆø ¾à 5-6m ³»¿ÜÀÇ µµ·Î¸¦ ÀÌ¿ëÇÏ¿© ÃâÀÔÇÔ.
8)ÅäÁöÀÌ¿ë°èȹ ¹× Á¦ÇÑ»óÅÂ
±Ù¸°»ó¾÷Áö¿ª, µµ½ÃÁö¿ª, ¹æÈ­Áö±¸, ¼Ò·Î1·ù(Æø 10m~12m)(±¹Áöµµ·Î)(Á¢ÇÕ), ¼Ò·Î3·ù(Æø 8m
¹Ì¸¸)(±¹Áöµµ·Î)(Á¢ÇÕ), °¡Ãà»çÀ°Á¦Çѱ¸¿ª(2024-10-30)(¸ðµçÃàÁ¾ »çÀ°Á¦Çѱ¸¿ª)<°¡ÃàºÐ´¢ÀÇ
°ü¸® ¹× À̿뿡 °üÇÑ ¹ý·ü>ÀÓ.
9)°øºÎ¿ÍÀÇ Â÷ÀÌ
¾øÀ½.
10)±âŸÂü°í»çÇ×(ÀÓ´ë°ü·Ê ¹× ±âŸ)
ÀÓ´ë°ü°è ¹Ì»óÀÓ.
Âü°í
»çÇ×
*¼÷¹Ú½Ã¼³(»ýȰ¼÷¹Ú½Ã¼³)·Î ÀÌ¿ëÁßÀÓ
¼Ò Àç: °­¸ª½Ã »çõ¸é »çõ¸é ÇàÁ¤º¹Áö¼¾Å¸ µ¿Ãø ¿ø±Ù¿¡ À§Ä¡ÇÔ. Çö Ȳ: º»°ÇÀº °­¸ª½Ã »çõ¸é Áø¸®Ç×±¸2±æ 5 ÄÁÇdz׽º ¿À¼Ç ½ºÀ§Æ® 23Ãþ Á¦ ¿¡ÀÌ-2308È£·Î Á¡À¯ÀÚ ¹× °ÅÁÖÀÚ¸¦ ¸¸³ª±â À§Çؼ­ ¸î Â÷·¹ ¹æ¹® ¹× ¾È³»¹®À» ²È¾ÆµÎ°í ¿ÔÀ¸³ª Æó¹® ºÎÀç·Î ¸¸³ªÁö ¸øÇÏ¿´À½. *µ¿ ÁÖ¼ÒÁö¿¡ ¹æ¹®ÇÏ¿© ¸ÅÀå °ü¸®¸¦ Çϰí ÀÖ´Â ¸Å´ÏÀú¸¦ ¸¸³ª¼­ ¸é´ã Çѹ٠ȸ»ç¿¡¼­´Â °´½Ç¿¡ ´ëÇØ¼­ ÀÏÁ¤ ±Ý¾×ÀÇ °ü¸®ºñ¸¸ ¹Þ°í °ü¸®¸¸ ÇØÁÖ°í À־ ÀÓÂ÷ÀÎÀ̳ª °ÅÁÖÀÚ¿¡ ´ëÇØ¼­´Â ¾Æ´Â¹Ù°¡ ¾ø´Ù°í ÁÖÀå À» ÇÏ¿© Á¡À¯ÀÚ ¹× °ÅÁÖÀÚ¿¡ ´ëÇØ¼­´Â È®ÀÎÀ» ÇÏÁö ¸øÇÏ¿´À½.

°ÇÃ๰ÇöȲ

¼ÒÀçÁö °­¿øÆ¯º°ÀÚÄ¡µµ °­¸ª½Ã »çõ¸é »çõÁø¸® 86-81¹øÁö
´ëÁö¸éÀû 2704§³
(819.39Æò)
¿¬¸éÀû 37134.5875§³
(11252.91Æò)
°ÇÃà¸éÀû 1991.3172§³
(603.43Æò)
¿ëÀû·ü»êÁ¤
¿¬¸éÀû
28916.6004§³
(8762.61Æò)
°ÇÆóÀ² 73.64% ¿ëÀû·ü 1069.4%
Áö»óÃþ¼ö 27Ãþ ÁöÇÏÃþ¼ö 2Ãþ
ÁÖ¿ëµµ ¼÷¹Ú½Ã¼³ ±¸Á¶ ö±ÙÄÜÅ©¸®Æ®±¸Á¶
Âø°øÀÏÀÚ 2019.10.18 »ç¿ë½ÂÀÎÀÏÀÚ 2022.03.16
°ÇÃ๰Ãþº°ÇöȲ [º¸±â]


µî±âºÎµîº» ¿ä¾à(°Ç¹°)

  Á¢¼öÀÏÀÚ µî±â¸ñÀû/±Ç¸®ÀÚ ±Ç¸®±Ý¾× ±âÁØ
1 2022³â5¿ù23ÀÏ
¼ÒÀ¯±Ç
±èOO
¼Ò¸ê
2 2022³â5¿ù23ÀÏ
±ÙÀú´ç±Ç
µ¿OOOO
180,000,000 ¼Ò¸ê±âÁØ
3 2025³â8¿ù6ÀÏ
ÀÓÀǰæ¸Å
µ¿OOOO
¼Ò¸ê

ÀÓÂ÷ÀÎÇöȲ (¹è´ç¿ä±¸Á¾±âÀÏ: 2025-11-10)


Á¶»çµÈ ÀÓÂ÷³»¿ªÀÌ ¾ø½À´Ï´Ù


¿©ÀÇÁÖ°æ¸Å Á¶¾ð ÇÑ ¸¶µð


ÁÖÀÇ»çÇ× (ÃÖ¼±¼øÀ§ ¼³Á¤ÀÏ: )

¸Å°¢À¸·Î ¼Ò¸êµÇÁö ¾Ê´Â µî±âºÎ±Ç¸®: ÇØ´ç»çÇ×¾øÀ½
¸Å°¢À¸·Î ¼³Á¤µÈ °ÍÀ¸·Î º¸´Â Áö»ó±Ç: ÇØ´ç»çÇ×¾øÀ½
*¼÷¹Ú½Ã¼³(»ýȰ¼÷¹Ú½Ã¼³)·Î ÀÌ¿ëÁßÀÓ
¡Ø¹Ì³³°ü¸®ºñ(°ø¿ë) Àμö¿©ºÎ¸¦ ÀÔÂû Àü¿¡ È®ÀÎÇϽñ⠹ٶø´Ï´Ù

 

Áö¿ªºÐ¼®

ÁöÇÏö¸í Á÷¼±°Å¸®

Çб³¸í ÀüÈ­¹øÈ£ ÁÖ¼Ò Á÷¼±°Å¸®

¹ý¿ø

ÃáõÁö¹æ¹ý¿ø °­¸ªÁö¿ø (254-63)°­¿øµµ °­¸ª½Ã µ¿ÇØ´ë·Î 3288-18 (³­°îµ¿)
´ëÇ¥ : 033)640-1000, ¾ß°£ : 033)640-1199
°üÇÒÁö¿ª : °­¸ª½Ã, µ¿ÇؽÃ, »ïô½Ã

µî±â¼Ò ÃáõÁö¹æ¹ý¿ø °­¸ªÁö¿ø µî±â°ú (´ëÇ¥:1544-0773, ÆÑ½º:(033)647-5110, °­¿øµµ °­¸ª½Ã µ¿ÇØ´ë·Î 3288-18 (³­°îµ¿ 117-1))
¼¼¹«¼­ °­¸ª¼¼¹«¼­ (´ëÇ¥:033-610-92, ÆÑ½º:033-641-4186, °­¿øµµ °­¸ª½Ã ¼ö¸®°ñ±æ 65 (±³µ¿))

Àαٳ«ÂûÅë°è

±â°£ ¸Å°¢°Ç¼ö Æò±Õ°¨Á¤°¡
Æò±Õ¸Å°¢°¡
¸Å°¢°¡À²
Æò±ÕÀ¯Âû¼ö


º» °æ¸ÅÁ¤º¸´Â ¹ý¿øÀÚ·á¿Í ÀÏÄ¡Çϵµ·Ï ÇÏ¿´À¸³ª ±Ç¸®»çÇ׺¯µ¿, ÀÔ·ÂÂø¿À µîÀÇ ¿øÀÎÀ¸·Î »ç½Ç°ú ´Ù¸¦ ¼ö ÀÖ½À´Ï´Ù. ÀÌ¿ë¾à°ü¿¡ ÀǰЏéÃ¥Á¶°ÇÀ¸·Î Á¦°øµÊÀ» ¾Ë¸®¸ç, °æ¸ÅÀÔÂû½Ã ¹Ýµå½Ã °ü·Ã °øºÎ¸¦ ÀçÈ®ÀÎÇϽñ⠹ٶø´Ï´Ù. º¸´Ù Æí¸®ÇÑ °æ¸ÅÁ¤º¸ Á¦°øÀ» À§ÇØ Áö¼ÓÀûÀ¸·Î °³¼±ÇϰڽÀ´Ï´Ù. ÀÌ¿ëÇØ Áּż­ °¨»çÇÕ´Ï´Ù.