·Î±×ÀÎ
1452
±Ù¸°»ó°¡
¼ö¿øÁö¹æ¹ý¿ø
 °¨Á¤°¡363,000,000 ¿ø
 ÃÖÀú°¡(24%) 87,156,300 ¿ø
 º¸Áõ±Ý(10%) 8,715,630 ¿ø
 Ã»±¸¾×217,326,202 ¿ø
°æ±âµµ È­¼º½Ã Çâ³²À¾ Çϱ渮 1472-3 1µ¿ 2Ãþ204È£
»ç°Ç¹øÈ£ 2025Ÿ°æ1061
°æ¸ÅÁ¾·ùºÎµ¿»êÀÓÀǰæ¸Å
¸Å°¢´ë»óÅäÁö ¹× °Ç¹°Àϰý ¸Å°¢
¸Å°¢±âÀÏ    2026.06.05(±Ý) 10:00 ÀÔÂû 8ÀÏÀü    
ÅäÁö¸éÀû20.69§³(6.26 Æò)
°Ç¹°¸éÀû77.18§³(23.35 Æò)
乫/¼ÒÀ¯ÀÚ¹ÚOO / ¹ÚOO
ä±ÇÀÚ¼­OOOOOOO
ÆäÀ̽ººÏ Æ®À§ÅÍ ±¸±Û+
īī¿À½ºÅ丮
īī¿ÀÅå sms¹®ÀÚº¸³»±â
 

±âÀϳ»¿ª

°æ°ú ³¯Â¥ Àú°¨ ÃÖÀú°¡ °á°ú
Á¢¼öÀÏ 2025-03-21 °æ¸ÅÁ¢¼ö
~7ÀÏ 
2025-03-28 °æ¸Å°³½Ã°áÁ¤
~83ÀÏ 
2025-06-12 ¹è´ç¿ä±¸Á¾±âÀÏ
~299ÀÏ 
2026-01-14 100%
363,000,000
À¯Âû
~339ÀÏ 
2026-02-23 70%
254,100,000
À¯Âû
~371ÀÏ 
2026-03-27 49%
177,870,000
À¯Âû
~403ÀÏ 
2026-04-28 34%
124,509,000
À¯Âû
~441ÀÏ 
2026-06-05 24%
87,156,300
ÁøÇà
¹°°Ç¸í¼¼¼­ ÇöȲÁ¶»ç¼­ ¹®°ÇÁ¢¼ö ¼Û´Þ³»¿ª

°¨Á¤Æò°¡ÇöȲ

¸ñ·Ï ÁÖ¼Ò ±¸Á¶/¿ëµµ/´ëÁö±Ç ¸éÀû ºñ°í
´ëÁö±Ç
Çϱ渮 1472-3 1094.5ºÐÀÇ 20.69 20.69 §³
(6.26Æò)
°Ç¹°
Çϱ渮 1472-3 1µ¿ 2Ãþ204È£ ö±ÙÄÜÅ©¸®Æ®±¸Á¶ 77.18 §³
(23.35Æò)
1) À§Ä¡/ÀϹݻó¾÷Áö¿ª/Áö±¸´ÜÀ§°èȹ±¸¿ª/¹ö½ºÁ¤·ùÀå/ÁöÇÏÁÖÂ÷Àå/ö±ÙÄÜÅ©¸®Æ®±¸Á¶ ´õº¸±â
°¨Á¤Æò°¡ ¿äÇ×Ç¥
1)À§Ä¡ ¹× ÁÖÀ§È¯°æ
º»°ÇÀº °æ±âµµ È­¼º½Ã Çâ³²À¾ Çϱ渮 ¼ÒÀç ""Çϱæ°íµîÇб³"" ºÏÃø Àαٿ¡ À§Ä¡ÇÏ¸ç ºÎ±ÙÀ¸·Î
¾ÆÆÄÆ®, ¾÷¹«½Ã¼³, »ó¾÷½Ã¼³, Çб³, °ü°ø¼­, ±Ù¸°»ýȰ½Ã¼³, °ø¿øµîÀÌ ¼ÒÀçÇϸç Á¦¹Ý ÁÖÀ§È¯
°æÀº º¸ÅëÀÎ ÆíÀÓ.
2)±³Åë»óȲ
º»°Ç±îÁö Â÷·® ÁøÃâÀÔ °¡´ÉÇϸç Àαٿ¡ ¹ö½ºÁ¤·ùÀåÀÌ ¼ÒÀçÇÏ¿© ´ëÁß±³Åë ÀÌ¿ëÀº º¸ÅëÀÎ ÆíÀÓ
3)°Ç¹°ÀÇ ±¸Á¶
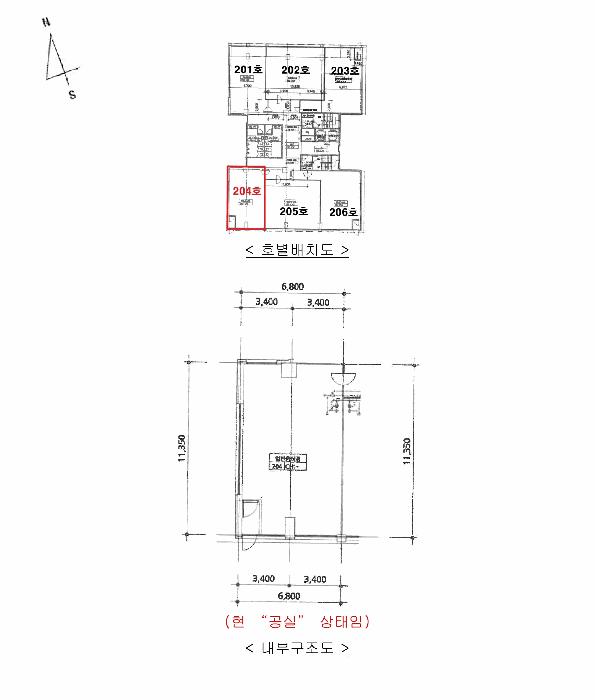
ö±ÙÄÜÅ©¸®Æ®±¸Á¶ ÆòÁöºØ 11Ãþ°Ç °Ç¹° ³» 2Ãþ 204È£·Î¼­,

¿Ü º® : ¼®ÀçºÙÀÓ.
³» º® : ¸ôÅ» À§ ÆäÀÎÆ® ¸¶°¨.
â È£ : ¾Ë·ç¹Ì´½¼¦½Ã °­È­À¯¸® ÀÓ.
4)ÀÌ¿ë»óÅÂ
°øºÎ»ó ÀϹÝÀ½½ÄÁ¡À̳ª ÇöȲ ""°ø½Ç"" »óÅÂÀÓ.
Èĸé (""³»ºÎ°³È²µµ ¹× »çÁø"" Âü°í)
5)¼³ºñ³»¿ª
±âº»ÀûÀÎ À§»ý ±Þ.¹è¼ö¼³ºñ, ½Â°­±â, ¼Ò¹æ¼³ºñ, ÁöÇÏÁÖÂ÷Àå¼³ºñ µîÀÓ.
6)ÅäÁöÀÇ Çü»ó ¹× ÀÌ¿ë»óÅÂ
ÀÎÁ¢µµ·Î¿Í µî°í ÆòźÇÑ ¼¼ÀåÇü ÅäÁö·Î¼­ »ó¾÷¿ë °ÇºÎÁö·Î ÀÌ¿ëÁßÀÓ.
7)ÀÎÁ¢ µµ·Î»óŵî
º»°Ç ³²ÃøÀ¸·Î ÁÖÂ÷Àå ÁøÃâÀÔ °¡´ÉÇÏ¸ç ¿Ü°û°øµµ¿Í ¿¬°èµÇ¾î ÀÖÀ½.
8)ÅäÁöÀÌ¿ë°èȹ ¹× Á¦ÇÑ»óÅÂ
ÀϹݻó¾÷Áö¿ª, Áö±¸´ÜÀ§°èȹ±¸¿ª(Çâ³²2Áö±¸), Áß·Î1·ù(Æø 20m~25m)(Á¢ÇÕ)

°¡Ãà»çÀ°Á¦Çѱ¸¿ª(ÀüºÎÁ¦ÇÑ)<°¡ÃàºÐ´¢ÀÇ °ü¸® ¹× À̿뿡 °üÇÑ ¹ý·ü>,¼ºÀå°ü¸®±Ç¿ª<¼öµµ±ÇÁ¤
ºñ°èȹ¹ý>,ÅÃÁö°³¹ßÁö±¸(Çâ³²2Áö±¸)<ÅÃÁö°³¹ßÃËÁø¹ý>
9)°øºÎ¿ÍÀÇ Â÷ÀÌ
-
10)±âŸÂü°í»çÇ×(ÀÓ´ë°ü·Ê ¹× ±âŸ)
ÀÓ´ë°ü°è ¹Ì»óÀÓ.

Âü°í
»çÇ×
°ÇÃàÀÚÀç°¡ ³Îºê·¯Á® ÀÖ´Â »óÅ·Π°ø½Ç»óÅÂÀÓ, °ü¸®ºñ¹Ì³³
ÇØ´ç ºÎµ¿»êÀÇ ÇöȲÀº ¿Ü°ü»ó °øºÎÀÇ ³»¿ë°ú ÀÏÄ¡ÇÏ´Â °ÍÀ¸·Î º¸ÀÓ. ÇØ´ç»ó°¡¿¡´Â °ÇÃàÀÚÀç°¡ ³Îºê·¯Á® ÀÖ´Â »óÅ·Π°ø½Ç»óÅÂÀÓ

°ÇÃ๰ÇöȲ

¼ÒÀçÁö °æ±âµµ È­¼º½Ã Çâ³²À¾ Çϱ渮 1472-3¹øÁö
´ëÁö¸éÀû 1094.5§³
(331.67Æò)
¿¬¸éÀû 8447.46§³
(2559.84Æò)
°ÇÃà¸éÀû 743.81§³
(225.4Æò)
¿ëÀû·ü»êÁ¤
¿¬¸éÀû
6470.67§³
(1960.81Æò)
°ÇÆóÀ² 67.96% ¿ëÀû·ü 591.2%
Áö»óÃþ¼ö 11Ãþ ÁöÇÏÃþ¼ö 2Ãþ
ÁÖ¿ëµµ ¼÷¹Ú½Ã¼³ ±¸Á¶ ö±ÙÄÜÅ©¸®Æ®±¸Á¶
Âø°øÀÏÀÚ 2016.09.21 »ç¿ë½ÂÀÎÀÏÀÚ 2018.05.17
°ÇÃ๰Ãþº°ÇöȲ [º¸±â]


µî±âºÎµîº» ¿ä¾à(°Ç¹°)

  Á¢¼öÀÏÀÚ µî±â¸ñÀû/±Ç¸®ÀÚ ±Ç¸®±Ý¾× ±âÁØ
1 2018³â12¿ù18ÀÏ
¼ÒÀ¯±Ç
¹ÚOO
¼Ò¸ê
2 2018³â12¿ù18ÀÏ
±ÙÀú´ç±Ç
¼­OOOO
254,400,000 ¼Ò¸ê±âÁØ
3 2025³â3¿ù28ÀÏ
ÀÓÀǰæ¸Å
¼­OOOO
¼Ò¸ê

ÀÓÂ÷ÀÎÇöȲ (¹è´ç¿ä±¸Á¾±âÀÏ: 2025-06-12)


Á¶»çµÈ ÀÓÂ÷³»¿ªÀÌ ¾ø½À´Ï´Ù


¿©ÀÇÁÖ°æ¸Å Á¶¾ð ÇÑ ¸¶µð


ÁÖÀÇ»çÇ× (ÃÖ¼±¼øÀ§ ¼³Á¤ÀÏ: )

¸Å°¢À¸·Î ¼Ò¸êµÇÁö ¾Ê´Â µî±âºÎ±Ç¸®:
¸Å°¢À¸·Î ¼³Á¤µÈ °ÍÀ¸·Î º¸´Â Áö»ó±Ç:
°ÇÃàÀÚÀç°¡ ³Îºê·¯Á® ÀÖ´Â »óÅ·Π°ø½Ç»óÅÂÀÓ
¡Ø¹Ì³³°ü¸®ºñ(°ø¿ë) Àμö¿©ºÎ¸¦ ÀÔÂû Àü¿¡ È®ÀÎÇϽñ⠹ٶø´Ï´Ù

 

Áö¿ªºÐ¼®

ÁöÇÏö¸í Á÷¼±°Å¸®

Çб³¸í ÀüÈ­¹øÈ£ ÁÖ¼Ò Á÷¼±°Å¸®

¹ý¿ø

¼ö¿øÁö¹æ¹ý¿ø (165-12)°æ±âµµ ¼ö¿ø½Ã ¿µÅ뱸 ¹ýÁ¶·Î 105, Çϵ¿, ¼ö¿ø¹ý¿øÁ¾ÇÕû»ç
´ëÇ¥ : 031)210-1114, ¾ß°£ : 031)210-1111
°üÇÒÁö¿ª : ¼ö¿ø½Ã, ¿À»ê½Ã, È­¼º½Ã, ¿ëÀνÃ

µî±â¼Ò ¼ö¿øÁö¹æ¹ý¿ø º»¿ø È­¼ºµî±â¼Ò (´ëÇ¥:1544-0773, ÆÑ½º:(031)375-3964, °æ±âµµ ¿À»ê½Ã ¹ý¿ø·Î 65 (±Èµ¿ 662))
¼¼¹«¼­ µ¿¼ö¿ø¼¼¹«¼­ (´ëÇ¥:031-695-42, ÆÑ½º:031-273-2416, °æ±âµµ ¼ö¿ø½Ã ¿µÅ뱸 û¸í³²·Î 13 (¿µÅ뵿))

Àαٳ«ÂûÅë°è

±â°£ ¸Å°¢°Ç¼ö Æò±Õ°¨Á¤°¡
Æò±Õ¸Å°¢°¡
¸Å°¢°¡À²
Æò±ÕÀ¯Âû¼ö
3°³¿ù 69°Ç 365,256,522¿ø
153,098,143¿ø
57%
2.2ȸ
6°³¿ù 102°Ç 372,497,059¿ø
153,350,654¿ø
56%
2.3ȸ
12°³¿ù 136°Ç 347,736,632¿ø
154,746,925¿ø
57%
2.2ȸ


º» °æ¸ÅÁ¤º¸´Â ¹ý¿øÀÚ·á¿Í ÀÏÄ¡Çϵµ·Ï ÇÏ¿´À¸³ª ±Ç¸®»çÇ׺¯µ¿, ÀÔ·ÂÂø¿À µîÀÇ ¿øÀÎÀ¸·Î »ç½Ç°ú ´Ù¸¦ ¼ö ÀÖ½À´Ï´Ù. ÀÌ¿ë¾à°ü¿¡ ÀǰЏéÃ¥Á¶°ÇÀ¸·Î Á¦°øµÊÀ» ¾Ë¸®¸ç, °æ¸ÅÀÔÂû½Ã ¹Ýµå½Ã °ü·Ã °øºÎ¸¦ ÀçÈ®ÀÎÇϽñ⠹ٶø´Ï´Ù. º¸´Ù Æí¸®ÇÑ °æ¸ÅÁ¤º¸ Á¦°øÀ» À§ÇØ Áö¼ÓÀûÀ¸·Î °³¼±ÇϰڽÀ´Ï´Ù. ÀÌ¿ëÇØ Áּż­ °¨»çÇÕ´Ï´Ù.