·Î±×ÀÎ
1154
´Ù¼¼´ë(ºô¶ó)
¼­¿ïÁß¾ÓÁö¹æ¹ý¿ø
 °¨Á¤°¡307,000,000 ¿ø
 ÃÖÀú°¡(80%) 245,600,000 ¿ø
 º¸Áõ±Ý(10%) 24,560,000 ¿ø
 Ã»±¸¾×320,000,000 ¿ø
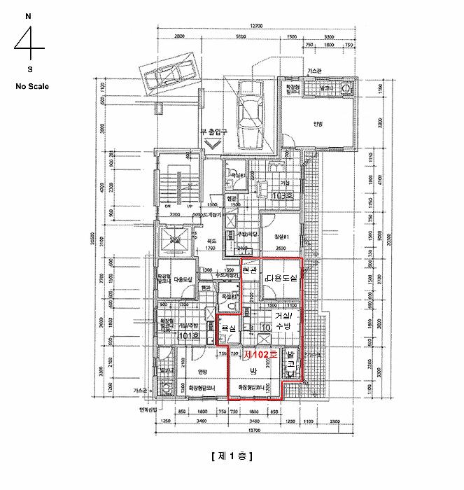
¼­¿ïƯº°½Ã °ü¾Ç±¸ ºÀõµ¿ 1513-5 1Ãþ102È£
»ç°Ç¹øÈ£ 2025Ÿ°æ103687
°æ¸ÅÁ¾·ùºÎµ¿»ê°­Á¦°æ¸Å
¸Å°¢´ë»óÅäÁö ¹× °Ç¹°Àϰý ¸Å°¢
¸Å°¢±âÀÏ    2026.02.25(¼ö) 10:00 ÀÔÂû 1ÀÏÀü    
ÅäÁö¸éÀû17.26§³(5.22 Æò)
°Ç¹°¸éÀû29.55§³(8.94 Æò)
乫/¼ÒÀ¯ÀÚÁ¶OO / Á¶OO
ä±ÇÀÚÁÖOOOOOOO
ÆäÀ̽ººÏ Æ®À§ÅÍ ±¸±Û+
īī¿À½ºÅ丮
īī¿ÀÅå sms¹®ÀÚº¸³»±â
 

±âÀϳ»¿ª

°æ°ú ³¯Â¥ Àú°¨ ÃÖÀú°¡ °á°ú
Á¢¼öÀÏ 2025-08-19 °æ¸ÅÁ¢¼ö
~1ÀÏ 
2025-08-20 °æ¸Å°³½Ã°áÁ¤
~73ÀÏ 
2025-10-31 ¹è´ç¿ä±¸Á¾±âÀÏ
~148ÀÏ 
2026-01-14 100%
307,000,000
À¯Âû
~190ÀÏ 
2026-02-25 80%
245,600,000
ÁøÇà
¹°°Ç¸í¼¼¼­ ÇöȲÁ¶»ç¼­ ¹®°ÇÁ¢¼ö ¼Û´Þ³»¿ª

°¨Á¤Æò°¡ÇöȲ

¸ñ·Ï ÁÖ¼Ò ±¸Á¶/¿ëµµ/´ëÁö±Ç ¸éÀû ºñ°í
´ëÁö±Ç
ºÀõµ¿ 1513-5 363.1ºÐÀÇ 17.2566 17.2566 §³
(5.22Æò)
°Ç¹°
ºÀõµ¿ 1513-5 1Ãþ102È£ ö±ÙÄÜÅ©¸®Æ®±¸Á¶ 29.55 §³
(8.94Æò)
1) À§Ä¡/µµ½ÃÁö¿ª/Á¦2Á¾ÀϹÝÁÖ°ÅÁö¿ª/ÅäÁö°Å·¡°è¾à¿¡°üÇÑÇã°¡±¸¿ª/Â÷·®ÃâÀÔ °¡´É/¹ö½ºÁ¤·ùÀå/ÁöÇÏö/ö±ÙÄÜÅ©¸®Æ®±¸Á¶ ´õº¸±â
°¨Á¤Æò°¡ ¿äÇ×Ç¥
1)À§Ä¡ ¹× ÁÖÀ§È¯°æ
º»°ÇÀº ¼­¿ïƯº°½Ã °ü¾Ç±¸ ºÀõµ¿ ¼ÒÀç ""¼­¿ï½ÅºÀÃʵîÇб³"" ³²µ¿Ãø Àαٿ¡ À§Ä¡Çϸç, ÁÖÀ§´Â ´Üµ¶ÁÖÅÃ, ´Ù¼¼´ëÁÖÅà ¹× ±Ù¸°»ýȰ½Ã¼³ µîÀÌ È¥ÀçÇÏ´Â Áö¿ªÀÓ.
2)±³Åë»óȲ
º»°Ç±îÁö Á¦¹Ý Â÷·®ÃâÀÔ °¡´ÉÇϸç, Àαٿ¡ ¹ö½ºÁ¤·ùÀå ¹× ÁöÇÏö¿ª(¼­¿ï´ëÀÔ±¸¿ª)ÀÌ ¼ÒÀçÇÏ¿© ´ëÁß±³Åë¿©°Ç ¹«³­½ÃµÊ.
3)°Ç¹°ÀÇ ±¸Á¶
ö±ÙÄÜÅ©¸®Æ®±¸Á¶ (ö±Ù)ÄÜÅ©¸®Æ®ÁöºØ 4Ãþ°Ç³» Á¦1Ãþ Á¦102È£·Î¼­,
¿Üº®: ¿ÜÀå¼® µî ¸¶°¨
âȣ: ÇÏÀ̼¦½Ã âȣÀÓ.
4)ÀÌ¿ë»óÅÂ
´Ù¼¼´ëÁÖÅÃÀ¸·Î ÀÌ¿ëÁßÀÓ.
(ÈÄ÷ ""³»ºÎ±¸Á¶µµ"" ÂüÁ¶)
5)¼³ºñ³»¿ª
À§»ý ¹× ±Þ¹è¼ö¼³ºñ, ³­¹æ¼³ºñ, ¼Ò¹æ¼³ºñ, ½Â°­±â¼³ºñ µî µÇ¾îÀÖÀ½.
6)ÅäÁöÀÇ Çü»ó ¹× ÀÌ¿ë»óÅÂ
2ÇÊ ÀÏ´ÜÀÇ ¿Ï°æ»çÁö·Î¼­, °ÇºÎÁö·Î ÀÌ¿ëÁßÀÓ.
7)ÀÎÁ¢ µµ·Î»óŵî
º»°Ç ºÏÃø, µ¿ÃøÀ¸·Î ³ëÆø 6m, 4m ³»¿ÜÀÇ Æ÷Àåµµ·Î¿Í Á¢ÇÔ.
8)ÅäÁöÀÌ¿ë°èȹ ¹× Á¦ÇÑ»óÅÂ
±âÈ£(1):
µµ½ÃÁö¿ª, Á¦2Á¾ÀϹÝÁÖ°ÅÁö¿ª((7Ãþ ÀÌÇÏ)), °¡Ãà»çÀ°Á¦Çѱ¸¿ª<°¡ÃàºÐ´¢ÀÇ °ü¸® ¹× À̿뿡 °üÇÑ ¹ý·ü>, ±³À°È¯°æº¸È£±¸¿ª(»ó´ë/Àý´ëÁ¤È­±¸¿ª ÃÖÁ¾È®ÀÎÀº µ¿ÀÛ±³À°Ã»¿¡ ¹Ýµå½Ã È®ÀÎÀÌ ÇÊ¿äÇÑ »çÇ×ÀÓ)<±³À°È¯°æ º¸È£¿¡ °üÇÑ ¹ý·ü>, »ó´ëº¸È£±¸¿ª<±³À°È¯°æ º¸È£¿¡ °üÇÑ ¹ý·ü>, ´ë°ø¹æ¾îÇùÁ¶±¸¿ª(À§Å¹°íµµ:194m)<±º»ç±âÁö ¹× ±º»ç½Ã¼³ º¸È£¹ý>, °ú¹Ð¾ïÁ¦±Ç¿ª<¼öµµ±ÇÁ¤ºñ°èȹ¹ý>, ÅäÁö°Å·¡°è¾à¿¡°üÇÑÇã°¡±¸¿ª(´ë»óÀÚ: ¿Ü±¹ÀÎ µî. ¿ëµµ: ´Üµ¶ ´Ù°¡±¸ ¾ÆÆÄÆ® ¿¬¸³ ´Ù¼¼´ë. ÁöÁ¤±â°£: 2025.8.26.~2026.8.25.)
±âÈ£(2):
µµ½ÃÁö¿ª, Á¦2Á¾ÀϹÝÁÖ°ÅÁö¿ª((7Ãþ ÀÌÇÏ)), µµ·Î(Á¢ÇÕ), °¡Ãà»çÀ°Á¦Çѱ¸¿ª<°¡ÃàºÐ´¢ÀÇ °ü¸® ¹× À̿뿡 °üÇÑ ¹ý·ü>, ±³À°È¯°æº¸È£±¸¿ª(»ó´ë/Àý´ëÁ¤È­±¸¿ª ÃÖÁ¾È®ÀÎÀº µ¿ÀÛ±³À°Ã»¿¡ ¹Ýµå½Ã È®ÀÎÀÌ ÇÊ¿äÇÑ »çÇ×ÀÓ)<±³À°È¯°æ º¸È£¿¡ °üÇÑ ¹ý·ü>, »ó´ëº¸È£±¸¿ª<±³À°È¯°æ º¸È£¿¡ °üÇÑ ¹ý·ü>, ´ë°ø¹æ¾îÇùÁ¶±¸¿ª(À§Å¹°íµµ:194m)<±º»ç±âÁö ¹× ±º»ç½Ã¼³ º¸È£¹ý>, °ú¹Ð¾ïÁ¦±Ç¿ª<¼öµµ±ÇÁ¤ºñ°èȹ¹ý>, ÅäÁö°Å·¡°è¾à¿¡°üÇÑÇã°¡±¸¿ª(´ë»óÀÚ: ¿Ü±¹ÀÎ µî. ¿ëµµ: ´Üµ¶ ´Ù°¡±¸ ¾ÆÆÄÆ® ¿¬¸³ ´Ù¼¼´ë. ÁöÁ¤±â°£: 2025.8.26.~2026.8.25.)ÀÓ.
9)°øºÎ¿ÍÀÇ Â÷ÀÌ
-
10)±âŸÂü°í»çÇ×(ÀÓ´ë°ü·Ê ¹× ±âŸ)
-

°ÇÃ๰ÇöȲ

¼ÒÀçÁö ¼­¿ïƯº°½Ã °ü¾Ç±¸ ºÀõµ¿ 1513-5¹øÁö
´ëÁö¸éÀû 363.1§³
(110.03Æò)
¿¬¸éÀû 1001.53§³
(303.49Æò)
°ÇÃà¸éÀû 201.76§³
(61.14Æò)
¿ëÀû·ü»êÁ¤
¿¬¸éÀû
571.31§³
(173.12Æò)
°ÇÆóÀ² 55.57% ¿ëÀû·ü 157.34%
Áö»óÃþ¼ö 4Ãþ ÁöÇÏÃþ¼ö 2Ãþ
ÁÖ¿ëµµ °øµ¿ÁÖÅà ±¸Á¶ ö±ÙÄÜÅ©¸®Æ®±¸Á¶
Âø°øÀÏÀÚ 2014.10.18 »ç¿ë½ÂÀÎÀÏÀÚ 2015.05.21
°ÇÃ๰Ãþº°ÇöȲ [º¸±â]


±¹ÅäºÎ½Ç°Å·¡°¡ ¼­¿ïƯº°½Ã °ü¾Ç±¸ ºÀõµ¿

¡Ü ¸Å¸Å

¸éÀû(§³), ±Ý¾×(¸¸¿ø)

¡Ü Àü¼¼

¸éÀû(§³), ±Ý¾×(¸¸¿ø)

°è¾àÀϰǹ°¸íĪÃþ¿¬¸éÀûº¸Áõ±Ý¿ù¼¼°ÇÃà
26.02.12±Ýµ¿»ç¶û¹æ813.3715,000352022
26.02.12À±°­ºô¶ó3Â÷162.0824,00002003
26.02.11¿¡ÀÌ¿øºô344.1420,000962016
26.02.11(921-35)415.2311,00002011
26.02.11·ÎÁ¦ÇϿ콺(180-76)239.7925,20002016
¢Ñ ´õº¸±â

µî±âºÎµîº» ¿ä¾à(°Ç¹°)

  Á¢¼öÀÏÀÚ µî±â¸ñÀû/±Ç¸®ÀÚ ±Ç¸®±Ý¾× ±âÁØ
1 2021³â6¿ù4ÀÏ
¼ÒÀ¯±Ç
Á¶OO
¼Ò¸ê
2 2023³â9¿ù12ÀÏ
¾Ð·ù
±¹
¼Ò¸ê±âÁØ
3 2024³â4¿ù29ÀÏ
ÀÓÂ÷±Ç¼³Á¤
ÁÖOO
320,000,000 ¼Ò¸ê
4 2025³â8¿ù20ÀÏ
°­Á¦°æ¸Å
ÁÖOOOO
¼Ò¸ê
5 2025³â9¿ù2ÀÏ
¾Ð·ù
±¹OOOO
¼Ò¸ê

ÀÓÂ÷ÀÎÇöȲ (¹è´ç¿ä±¸Á¾±âÀÏ: 2025-10-31)

ÀÓÂ÷ÀÎ ¿ëµµ/Á¡À¯ º¸Áõ±Ý/¿ù¼¼ ´ëÇ×·Â
ÀüÀÔÀÏ/È®Á¤ÀÏ ¹è´ç¿ä±¸ ºñ°í
ÁÖOO ÀüºÎ 320,000,000
O
2022.03.30.
2022.03.15.
2025.8.19. 2022.03.30.~2024.07.26.
ºñ°í
(¸Å°¢¹°°Ç
¸í¼¼¼­)
ÁÖ»óÀº:ÁÖÅõµ½Ãº¸Áõ°ø»ç°¡ ÀÓÂ÷±ÇÀÚ ÁÖ»óÀºÀÇ ½Â°èÀÎÀ¸·Î ±Ç¸®½Å°í ¹× ¹è´ç¿ä±¸½Åû. ÀÌ »ç°Ç °æ¸Å½ÅûÀÎÀÓ.

¿©ÀÇÁÖ°æ¸Å Á¶¾ð ÇÑ ¸¶µð

¼±¼øÀ§ ÀÓÂ÷±Çµî±â°¡ µÇ¾î ÀÖ½À´Ï´Ù
´ëÇ×·ÂÀÌ ÀÖ´Â ¼±¼øÀ§ ÀÓÂ÷±Çµî±â ±Ç¸®ÀÚ°¡ ¹è´çÀ» Àü¾× ¹ÞÁö ¸øÇÒ °æ¿ì ³«ÂûÀÚ°¡ ÀÜ¿© º¸Áõ±ÝÀ» ÀμöÇØ¾ßÇÏ´Â °æ¿ìµµ ÀÖ½À´Ï´Ù.

ÁÖÀÇ»çÇ× (ÃÖ¼±¼øÀ§ ¼³Á¤ÀÏ: )

¸Å°¢À¸·Î ¼Ò¸êµÇÁö ¾Ê´Â µî±âºÎ±Ç¸®: ¸Å¼öÀο¡°Ô ´ëÇ×ÇÒ ¼ö ÀÖ´Â À»±¸ 1¹ø ÁÖÅÃÀÓÂ÷±Çµî±â (2024.04.29. µî±â)ÀÖÀ½. º¸Áõ±Ý Àü¾× ¹è´ç¹ÞÁö ¸øÇϸé Àܾ×Àº ¸Å¼öÀÎÀÌ ÀμöÇÔ.
¸Å°¢À¸·Î ¼³Á¤µÈ °ÍÀ¸·Î º¸´Â Áö»ó±Ç:
¡Ø¹Ì³³°ü¸®ºñ(°ø¿ë) Àμö¿©ºÎ¸¦ ÀÔÂû Àü¿¡ È®ÀÎÇϽñ⠹ٶø´Ï´Ù

 

Áö¿ªºÐ¼®

ÁöÇÏö¸í Á÷¼±°Å¸®

Çб³¸í ÀüÈ­¹øÈ£ ÁÖ¼Ò Á÷¼±°Å¸®

¹ý¿ø

¼­¿ïÁß¾ÓÁö¹æ¹ý¿ø (065-94)¼­¿ïƯº°½Ã ¼­Ãʱ¸ ¼­ÃÊÁß¾Ó·Î 157 (¼­Ãʵ¿)
´ëÇ¥ : 02)530-1114, ¾ß°£ : 02)530-1280/536-8003
°üÇÒÁö¿ª : Á¾·Î±¸, Áß±¸, °­³²±¸, ¼­Ãʱ¸, °ü¾Ç±¸, µ¿ÀÛ±¸

µî±â¼Ò ¼­¿ïÁß¾ÓÁö¹æ¹ý¿ø º»¿ø µî±â±¹ (´ëÇ¥:1544-0773, ÆÑ½º:(02)590-1881, ¼­¿ïƯº°½Ã ¼­Ãʱ¸ ¹ý¿ø·Î3±æ 14 (¼­Ãʵ¿ 1707-4))
¼¼¹«¼­ °ü¾Ç¼¼¹«¼­ (´ëÇ¥:02-2173-42, ÆÑ½º:02-2173-4269, ¼­¿ïƯº°½Ã °ü¾Ç±¸ ¹®¼º·Î 187(½Å¸²µ¿))

Àαٳ«ÂûÅë°è

±â°£ ¸Å°¢°Ç¼ö Æò±Õ°¨Á¤°¡
Æò±Õ¸Å°¢°¡
¸Å°¢°¡À²
Æò±ÕÀ¯Âû¼ö


º» °æ¸ÅÁ¤º¸´Â ¹ý¿øÀÚ·á¿Í ÀÏÄ¡Çϵµ·Ï ÇÏ¿´À¸³ª ±Ç¸®»çÇ׺¯µ¿, ÀÔ·ÂÂø¿À µîÀÇ ¿øÀÎÀ¸·Î »ç½Ç°ú ´Ù¸¦ ¼ö ÀÖ½À´Ï´Ù. ÀÌ¿ë¾à°ü¿¡ ÀǰЏéÃ¥Á¶°ÇÀ¸·Î Á¦°øµÊÀ» ¾Ë¸®¸ç, °æ¸ÅÀÔÂû½Ã ¹Ýµå½Ã °ü·Ã °øºÎ¸¦ ÀçÈ®ÀÎÇϽñ⠹ٶø´Ï´Ù. º¸´Ù Æí¸®ÇÑ °æ¸ÅÁ¤º¸ Á¦°øÀ» À§ÇØ Áö¼ÓÀûÀ¸·Î °³¼±ÇϰڽÀ´Ï´Ù. ÀÌ¿ëÇØ Áּż­ °¨»çÇÕ´Ï´Ù.