·Î±×ÀÎ
1262
±Ù¸°»ó°¡
ÀÎõÁö¹æ¹ý¿ø ºÎõÁö¿ø
 °¨Á¤°¡140,000,000 ¿ø
 ÃÖÀú°¡(34%) 48,020,000 ¿ø
 º¸Áõ±Ý(10%) 4,802,000 ¿ø
 Ã»±¸¾×60,311,199 ¿ø
°æ±âµµ ±èÆ÷½Ã »ç¿ìµ¿ 1267 1Ãþ101È£
»ç°Ç¹øÈ£ 2025Ÿ°æ1042
°æ¸ÅÁ¾·ùºÎµ¿»êÀÓÀǰæ¸Å
¸Å°¢´ë»óÅäÁö ¹× °Ç¹°Àϰý ¸Å°¢
¸Å°¢±âÀÏ    2026.05.12(È­) 10:00 ÀÔÂû 26ÀÏÀü    
ÅäÁö¸éÀû19.88§³(6.01 Æò)
°Ç¹°¸éÀû33.24§³(10.06 Æò)
乫/¼ÒÀ¯ÀÚÇÑOO / ÇÑOO
ä±ÇÀÚ¿ÀOOOOOOO
ÆäÀ̽ººÏ Æ®À§ÅÍ ±¸±Û+
īī¿À½ºÅ丮
īī¿ÀÅå sms¹®ÀÚº¸³»±â
 

±âÀϳ»¿ª

°æ°ú ³¯Â¥ Àú°¨ ÃÖÀú°¡ °á°ú
Á¢¼öÀÏ 2025-03-19 °æ¸ÅÁ¢¼ö
~1ÀÏ 
2025-03-20 °æ¸Å°³½Ã°áÁ¤
~96ÀÏ 
2025-06-23 ¹è´ç¿ä±¸Á¾±âÀÏ
~300ÀÏ 
2026-01-13 100%
140,000,000
À¯Âû
~344ÀÏ 
2026-02-26 70%
98,000,000
À¯Âû
~386ÀÏ 
2026-04-09 49%
68,600,000
À¯Âû
~419ÀÏ 
2026-05-12 34%
48,020,000
ÁøÇà
¹°°Ç¸í¼¼¼­ ÇöȲÁ¶»ç¼­ ¹®°ÇÁ¢¼ö ¼Û´Þ³»¿ª

°¨Á¤Æò°¡ÇöȲ

¸ñ·Ï ÁÖ¼Ò ±¸Á¶/¿ëµµ/´ëÁö±Ç ¸éÀû ºñ°í
´ëÁö±Ç
»ç¿ìµ¿ 1267 332ºÐÀÇ 19.88 19.88 §³
(6.01Æò)
°Ç¹°
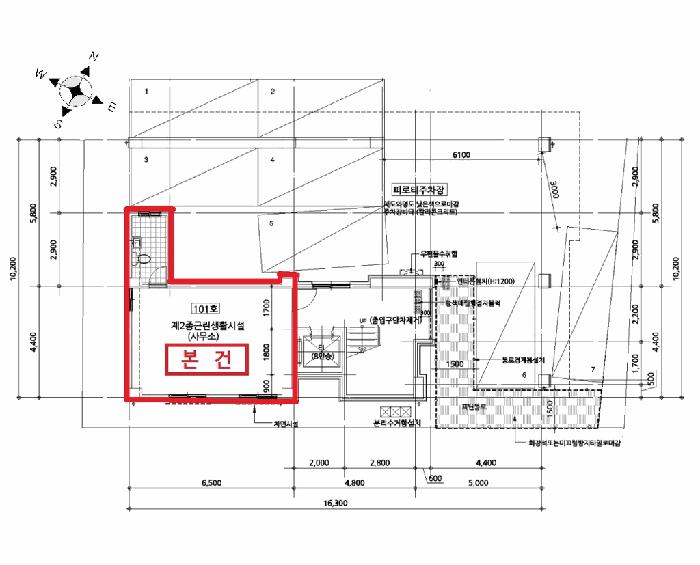
»ç¿ìµ¿ 1267 1Ãþ101È£ ö±ÙÄÜÅ©¸®Æ®±¸Á¶ 33.24 §³
(10.06Æò)
1) À§Ä¡/µµ½ÃÁö¿ª/Á¦1Á¾ÀϹÝÁÖ°ÅÁö¿ª/ÀçÁ¤ºñÃËÁøÁö±¸/Â÷·® Á¢±ÙÀÌ °¡´É/³ë¼±¹ö½ºÁ¤·ùÀå/ö±ÙÄÜÅ©¸®Æ®±¸Á¶/µµ½Ã°¡½º ´õº¸±â
°¨Á¤Æò°¡ ¿äÇ×Ç¥
1)À§Ä¡ ¹× ÁÖÀ§È¯°æ
º»°ÇÀº °æ±âµµ ±èÆ÷½Ã »ç¿ìµ¿ ¼ÒÀç '±èÆ÷¿©ÀÚÁßÇб³' ³²¼­Ãø Àαٿ¡ À§Ä¡Çϸç, ÁÖÀ§´Â ´Üµ¶
ÁÖÅà ¹× ´Ù¼¼´ëÁÖÅÃ, ¾ÆÆÄÆ®, Çб³ µîÀÌ ¼ÒÀçÇÏ´Â Áö¿ªÀ¸·Î ÁÖÀ§È¯°æÀº º¸ÅëÀÓ.
2)±³Åë»óȲ
º»°Ç±îÁö Â÷·® Á¢±ÙÀÌ °¡´ÉÇϸç Àαٿ¡ ³ë¼±¹ö½ºÁ¤·ùÀåÀÌ ¼ÒÀçÇÏ´Â µî ´ëÁß±³ÅëÀº º¸ÅëÀÓ.
3)°Ç¹°ÀÇ ±¸Á¶
ö±ÙÄÜÅ©¸®Æ®±¸Á¶ (ö±Ù)ÄÜÅ©¸®Æ®ÁöºØ 5Ãþ °Ç³» 1Ãþ 101È£·Î¼­,

¿Üº®: ÀÎÁ¶¼® ºÙÀÓ ¸¶°¨.
³»º®: ³»ºÎ ÀÎÅ׸®¾î ¹× ÀϺΠŸÀÏ ¸¶°¨.
âȣ: ¼¦½Ã âȣ ¸¶°¨ µîÀÓ.

4)ÀÌ¿ë»óÅÂ
Á¦2Á¾±Ù¸°»ýȰ½Ã¼³ »ç¹«¼Ò·Î ÀÌ¿ëÁßÀÓ.
5)¼³ºñ³»¿ª
±âº»ÀûÀÎ À§»ý¼³ºñ ¹× ±Þ,¹è¼ö¼³ºñ, ½Â°­±â¼³ºñ, µµ½Ã°¡½º ³­¹æ¼³ºñ µîÀ» °®Ãß¾úÀ½.
6)ÅäÁöÀÇ Çü»ó ¹× ÀÌ¿ë»óÅÂ
¼¼ÀåÇüÀÇ ¿Ï°æ»çÁö·Î¼­ °øµ¿ÁÖÅà ¹× Á¦2Á¾±Ù¸°»ýȰ½Ã¼³ °ÇºÎÁö·Î ÀÌ¿ëÁßÀÓ.
7)ÀÎÁ¢ µµ·Î»óŵî
º»°Ç ºÏµ¿ÃøÀ¸·Î Æ÷Àå¼¼·Î°¢Áö »óÅÂÀÓ.
8)ÅäÁöÀÌ¿ë°èȹ ¹× Á¦ÇÑ»óÅÂ
µµ½ÃÁö¿ª, Á¦1Á¾ÀϹÝÁÖ°ÅÁö¿ª, °íµµÁö±¸(°øÇ×°íµµÁ¦ÇÑÇØ¹ß112.86m~371.43m¹Ì¸¸) °¡Ãà»çÀ°Á¦
Çѱ¸¿ª(¸ðµçÃàÁ¾ Á¦ÇÑ)<°¡ÃàºÐ´¢ÀÇ °ü¸® ¹× À̿뿡 °üÇÑ ¹ý·ü>, ¿ª»ç¹®È­È¯°æº¸Á¸Áö¿ª( ¹®È­
¿¹¼ú°ú ÇùÀÇ)<°æ±âµµ¹®È­À纸ȣÁ¶·Ê>, Àå¾Ö¹°Á¦ÇÑÇ¥¸é±¸¿ª<°øÇ׽ü³¹ý>, ÁøÀÔÇ¥¸é±¸¿ª<°øÇ×
½Ã¼³¹ý>, »ó´ëº¸È£±¸¿ª(±èÆ÷¿©ÀÚÁßÇб³,±èÆ÷°íµîÇб³)<±³À°È¯°æ º¸È£¿¡ °üÇÑ ¹ý·ü>, Á¦ÇѺ¸
È£±¸¿ª(Àü¹æÁö¿ª:25km)(À§Å¹Áö¿ª15m,À°±º17»ç´Ü°üÇÒ)<±º»ç±âÁö ¹× ±º»ç½Ã¼³ º¸È£¹ý>, ÀçÁ¤ºñ
ÃËÁøÁö±¸(±èÆ÷ ÀçÁ¤ºñÃËÁøÁö±¸(µµ½Ã°ü¸®°ú ÇùÀÇ¿äÇÔ))<µµ½ÃÀçÁ¤ºñ ÃËÁøÀ» À§ÇÑ Æ¯º°¹ý>, ¿ª
»ç¹®È­È¯°æº¸Á¸Áö¿ª(¹®È­¿¹¼ú°ú ¹®ÀÇ)<¹®È­À¯»êÀÇ º¸Á¸ ¹× Ȱ¿ë¿¡ °üÇÑ ¹ý·ü>, ¼ºÀå°ü¸®±Ç¿ª
<¼öµµ±ÇÁ¤ºñ°èȹ¹ý>, Çϼö󸮱¸¿ª(»ç¿ì󸮺б¸)<Çϼöµµ¹ý> º»Áõ¸íÀº°£È¤Àü»ê¿À·ù·ÎÀÎÇÏ¿©
»ç½Ç°ú´Ù¸¦¼öÀÖÀ¸´ÏÀÎÇã°¡³ªÅäÁö°Å·¡ÀüµîÁö¿ªÁö±¸µîÀÇÆíÀÔ¿©ºÎ¸¦¹Ýµå½Ã°ü°èºÎ¼­¿¡È®ÀιÞÀ¸½Ã
±â¹Ù¶ø´Ï´Ù.
9)°øºÎ¿ÍÀÇ Â÷ÀÌ
¾øÀ½.
10)±âŸÂü°í»çÇ×(ÀÓ´ë°ü·Ê ¹× ±âŸ)
ÀÓ´ë°ü°è´Â ¹Ì»óÀÌ¸ç °Ç¹° ¿Üº®¿¡ 'ÇÑÁø¾ÆÀÌÆÄÅ©'·Î Ç¥±âµÇ¾î ÀÖÀ½.

Âü°í
»çÇ×
Á¦2Á¾±Ù¸°»ýȰ½Ã¼³ »ç¹«¼ÒÀÓ.

°ÇÃ๰ÇöȲ

¼ÒÀçÁö °æ±âµµ ±èÆ÷½Ã »ç¿ìµ¿ 1267¹øÁö
´ëÁö¸éÀû 332§³
(100.61Æò)
¿¬¸éÀû 653.06§³
(197.9Æò)
°ÇÃà¸éÀû 197.9§³
(59.97Æò)
¿ëÀû·ü»êÁ¤
¿¬¸éÀû
653.06§³
(197.9Æò)
°ÇÆóÀ² 59.61% ¿ëÀû·ü 196.7%
Áö»óÃþ¼ö 5Ãþ ÁöÇÏÃþ¼ö  
ÁÖ¿ëµµ °øµ¿ÁÖÅà ±¸Á¶ ö±ÙÄÜÅ©¸®Æ®±¸Á¶
Âø°øÀÏÀÚ 2018.04.10 »ç¿ë½ÂÀÎÀÏÀÚ 2019.01.04
°ÇÃ๰Ãþº°ÇöȲ [º¸±â]


µî±âºÎµîº» ¿ä¾à(°Ç¹°)

  Á¢¼öÀÏÀÚ µî±â¸ñÀû/±Ç¸®ÀÚ ±Ç¸®±Ý¾× ±âÁØ
1 2019³â1¿ù16ÀÏ
¼ÒÀ¯±Ç
ÇÑOO
¼Ò¸ê
2 2021³â12¿ù2ÀÏ
±ÙÀú´ç±Ç
¿ÀOOOO
72,000,000 ¼Ò¸ê±âÁØ
3 2025³â3¿ù20ÀÏ
ÀÓÀǰæ¸Å
¿ÀOOOO
¼Ò¸ê

ÀÓÂ÷ÀÎÇöȲ (¹è´ç¿ä±¸Á¾±âÀÏ: 2025-06-23)


Á¶»çµÈ ÀÓÂ÷³»¿ªÀÌ ¾ø½À´Ï´Ù


¿©ÀÇÁÖ°æ¸Å Á¶¾ð ÇÑ ¸¶µð


ÁÖÀÇ»çÇ× (ÃÖ¼±¼øÀ§ ¼³Á¤ÀÏ: 2021.12.02. ±ÙÀú´ç±Ç ¼³Á¤)

¸Å°¢À¸·Î ¼Ò¸êµÇÁö ¾Ê´Â µî±âºÎ±Ç¸®:
¸Å°¢À¸·Î ¼³Á¤µÈ °ÍÀ¸·Î º¸´Â Áö»ó±Ç:
Á¦2Á¾±Ù¸°»ýȰ½Ã¼³ »ç¹«¼ÒÀÓ.
¡Ø¹Ì³³°ü¸®ºñ(°ø¿ë) Àμö¿©ºÎ¸¦ ÀÔÂû Àü¿¡ È®ÀÎÇϽñ⠹ٶø´Ï´Ù

 

Áö¿ªºÐ¼®

ÁöÇÏö¸í Á÷¼±°Å¸®

Çб³¸í ÀüÈ­¹øÈ£ ÁÖ¼Ò Á÷¼±°Å¸®

¹ý¿ø

ÀÎõÁö¹æ¹ý¿ø ºÎõÁö¿ø (146-02)°æ±âµµ ºÎõ½Ã ¿ø¹Ì±¸ »óÀÏ·Î 129(»óµ¿)
´ëÇ¥ : 032)320-1114, ¹Î¿ø : 032)320-1234
°üÇÒÁö¿ª : ºÎõ½Ã, ±èÆ÷½Ã

µî±â¼Ò ÀÎõÁö¹æ¹ý¿ø ºÎõÁö¿ø ±èÆ÷µî±â¼Ò (´ëÇ¥:1544-0773, ÆÑ½º:(031)982-6997, °æ±âµµ ±èÆ÷½Ã ºÀÈ­·Î 16 (»ç¿ìµ¿ 240-2))
¼¼¹«¼­ ±èÆ÷¼¼¹«¼­ (´ëÇ¥:031-980-32, ÆÑ½º:031-987-9932, °æ±âµµ ±èÆ÷½Ã ±èÆ÷ÇѰ­1·Î 22 (Àå±âµ¿))

Àαٳ«ÂûÅë°è

±â°£ ¸Å°¢°Ç¼ö Æò±Õ°¨Á¤°¡
Æò±Õ¸Å°¢°¡
¸Å°¢°¡À²
Æò±ÕÀ¯Âû¼ö
3°³¿ù 26°Ç 269,919,615¿ø
113,655,238¿ø
49%
2.7ȸ
6°³¿ù 44°Ç 337,066,136¿ø
138,358,278¿ø
50%
2.6ȸ
12°³¿ù 54°Ç 344,146,481¿ø
141,557,775¿ø
50%
2.6ȸ


º» °æ¸ÅÁ¤º¸´Â ¹ý¿øÀÚ·á¿Í ÀÏÄ¡Çϵµ·Ï ÇÏ¿´À¸³ª ±Ç¸®»çÇ׺¯µ¿, ÀÔ·ÂÂø¿À µîÀÇ ¿øÀÎÀ¸·Î »ç½Ç°ú ´Ù¸¦ ¼ö ÀÖ½À´Ï´Ù. ÀÌ¿ë¾à°ü¿¡ ÀǰЏéÃ¥Á¶°ÇÀ¸·Î Á¦°øµÊÀ» ¾Ë¸®¸ç, °æ¸ÅÀÔÂû½Ã ¹Ýµå½Ã °ü·Ã °øºÎ¸¦ ÀçÈ®ÀÎÇϽñ⠹ٶø´Ï´Ù. º¸´Ù Æí¸®ÇÑ °æ¸ÅÁ¤º¸ Á¦°øÀ» À§ÇØ Áö¼ÓÀûÀ¸·Î °³¼±ÇϰڽÀ´Ï´Ù. ÀÌ¿ëÇØ Áּż­ °¨»çÇÕ´Ï´Ù.