·Î±×ÀÎ
1309
ÁÖÅÃ
ÀÇÁ¤ºÎÁö¹æ¹ý¿ø
 °¨Á¤°¡424,236,480 ¿ø
 ÃÖÀú°¡(49%) 207,876,000 ¿ø
 º¸Áõ±Ý(10%) 20,787,600 ¿ø
 Ã»±¸¾×321,369,863 ¿ø
°æ±âµµ ¾çÁֽà ÀåÈï¸é ¼®Çö¸® 337-21
»ç°Ç¹øÈ£ 2025Ÿ°æ73093
°æ¸ÅÁ¾·ùºÎµ¿»êÀÓÀǰæ¸Å
¸Å°¢´ë»óÅäÁö ¹× °Ç¹°Àϰý¸Å°¢
¸Å°¢±âÀÏ    2026.03.31(È­) 10:30 ÀÔÂû 17ÀÏÀü    
ÅäÁö¸éÀû159.00§³(48.10 Æò)
°Ç¹°¸éÀû225.62§³(68.25 Æò)
乫/¼ÒÀ¯ÀÚõOO / õOO
ä±ÇÀÚÀÌOO
ÆäÀ̽ººÏ Æ®À§ÅÍ ±¸±Û+
īī¿À½ºÅ丮
īī¿ÀÅå sms¹®ÀÚº¸³»±â
 

±âÀϳ»¿ª

°æ°ú ³¯Â¥ Àú°¨ ÃÖÀú°¡ °á°ú
Á¢¼öÀÏ 2025-09-01 °æ¸ÅÁ¢¼ö
~1ÀÏ 
2025-09-02 °æ¸Å°³½Ã°áÁ¤
~77ÀÏ 
2025-11-17 ¹è´ç¿ä±¸Á¾±âÀÏ
~134ÀÏ 
2026-01-13 100%
424,236,480
À¯Âû
~176ÀÏ 
2026-02-24 70%
296,966,000
À¯Âû
~211ÀÏ 
2026-03-31 49%
207,876,000
ÁøÇà
¹°°Ç¸í¼¼¼­ ÇöȲÁ¶»ç¼­ ¹®°ÇÁ¢¼ö ¼Û´Þ³»¿ª

°¨Á¤Æò°¡ÇöȲ

¸ñ·Ï ÁÖ¼Ò ±¸Á¶/¿ëµµ/´ëÁö±Ç ¸éÀû ºñ°í
ÅäÁö
¼®Çö¸® 337-21 ´ë 159 §³
(48.10Æò)
°Ç¹°
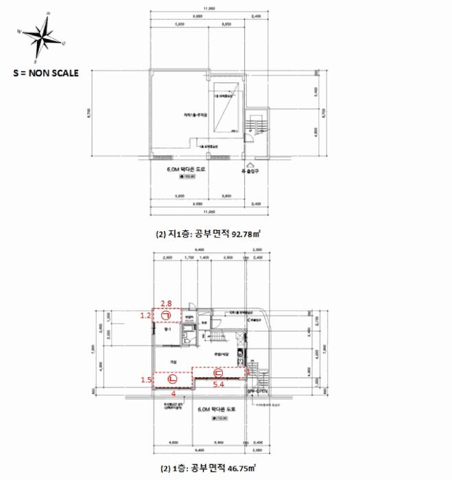
¼®Çö¸® 337-21 ÁÖ1µ¿ Áö1Ãþ ÁÖÅà ö±ÙÄÜÅ©¸®Æ®±¸Á¶ 92.78 §³
(28.07Æò)
¼®Çö¸® 337-21 ÁÖ1µ¿ 1Ãþ ÁÖÅà ö±ÙÄÜÅ©¸®Æ®±¸Á¶ 46.75 §³
(14.14Æò)
¼®Çö¸® 337-21 ÁÖ1µ¿ 2Ãþ ÁÖÅà ö±ÙÄÜÅ©¸®Æ®±¸Á¶ 46.85 §³
(14.17Æò)
Á¦½Ã¿Ü
°Ç¹°
¼®Çö¸® 337-21 ÁÖ1µ¿ È®Àå¹ßÄÚ´Ï 3.36 §³
(1.02Æò)
Æ÷ÇÔ
¼®Çö¸® 337-21 ÁÖ1µ¿ È®Àå¹ßÄÚ´Ï 6 §³
(1.82Æò)
Æ÷ÇÔ
¼®Çö¸® 337-21 ÁÖ1µ¿ È®Àå¹ßÄÚ´Ï 5.4 §³
(1.63Æò)
Æ÷ÇÔ
¼®Çö¸® 337-21 ÁÖ1µ¿ È®Àå¹ßÄÚ´Ï 3.84 §³
(1.16Æò)
Æ÷ÇÔ
¼®Çö¸® 337-21 ÁÖ1µ¿ È®Àå¹ßÄÚ´Ï 4.8 §³
(1.45Æò)
Æ÷ÇÔ
¼®Çö¸® 337-21 ÁÖ1µ¿ ´Ù¶ô 15.84 §³
(4.79Æò)
Æ÷ÇÔ
1) À§Ä¡/°èȹ°ü¸®Áö¿ª/¹ö½ºÁ¤·ùÀå/ö±ÙÄÜÅ©¸®Æ®±¸Á¶ ´õº¸±â
°¨Á¤Æò°¡ ¿äÇ×Ç¥
1)À§Ä¡ ¹× ÁÖÀ§È¯°æ
º»°ÇÀº °æ±âµµ ¾çÁֽà ÀåÈï¸é ¼®Çö¸® ¼ÒÀç '±ÇÀ²À屺¹¦' ºÏµ¿Ãø ¿ø°Å¸®¿¡ À§Ä¡Çϸç, ÁÖÀ§´Â ´Üµ¶ÁÖÅÃ, ±Ù¸°»ýȰ½Ã¼³ µîÀÌ ¼ÒÀçÇÏ´Â ÁÖÅÃÁö´ë·Î¼­ Á¦¹Ý ÁÖÀ§È¯°æÀº º¸ÅëÀÓ.
2)±³Åë»óȲ
º»°Ç±îÁö Â÷·® ÁøÃâÀÔ °¡´ÉÇϸç, Àαٿ¡ ¹ö½ºÁ¤·ùÀåÀÌ ¼ÒÀçÇÏ´Â µî Á¦¹Ý ±³Åë»óȲÀº º¸ÅëÀÓ.
3)ÇüÅ ¹× ÀÌ¿ë»óÅÂ
»ç´Ù¸®ÇüÀÇ ÅäÁö·Î¼­, ´Üµ¶ÁÖÅà °ÇºÎÁöÀÓ.
4)ÀÎÁ¢ µµ·Î»óÅÂ
³²ÃøÀ¸·Î ³ëÆø ¾à 6¹ÌÅÍ ³»¿ÜÀÇ Æ÷Àåµµ·Î¿Í Á¢ÇÔ.
5)ÅäÁöÀÌ¿ë°èȹ ¹× Á¦ÇÑ»óÅÂ
°èȹ°ü¸®Áö¿ª, ¼ºÀå°ü¸®°èȹ±¸¿ª(»ó¾÷Çü,ÀåÈï04), °¡Ãà»çÀ°Á¦Çѱ¸¿ª(¸ðµçÃàÁ¾ Á¦ÇÑ)<°¡ÃàºÐ´¢ÀÇ °ü¸® ¹× À̿뿡 °üÇÑ ¹ý·ü>, ¼ºÀå°ü¸®±Ç¿ª<¼öµµ±ÇÁ¤ºñ°èȹ¹ý>ÀÓ.
6)Á¦½Ã¸ñ·Ï ¿ÜÀÇ ¹°°Ç
¾øÀ½.


7)°øºÎ¿ÍÀÇ Â÷ÀÌ
¾øÀ½.
8)±âŸÂü°í»çÇ×(ÀÓ´ë°ü·Ê ¹× ±âŸ)
-ÀÓ´ë°ü°è: ¹Ì»óÀÓ.
-±â Ÿ: --.
1)°Ç¹°ÀÇ ±¸Á¶
±âÈ£(2): ö±ÙÄÜÅ©¸®Æ®±¸Á¶ (ö±Ù)ÄÜÅ©¸®Æ®ÁöºØ 2Ãþ°ÇÀ¸·Î¼­,

¿Üº®: º®µ¹Å¸ÀÏ ºÙÀÓ ¸¶°¨ µî,
âȣ: »õ½ÃâȣÀÓ.
2)ÀÌ¿ë»óÅÂ
ÁÖÅÃÀ¸·Î ÀÌ¿ëÁßÀÓ.
(ÈÄ÷ '°Ç¹°°³È²µµ' ÂüÁ¶)
3)¼³ºñ³»¿ª
À§»ý ¹× ±Þ¹è¼ö¼³ºñ, Àü±â¼³ºñ, ³­¹æ¼³ºñ µîÀÌ ±¸ºñµÇ¾î ÀÖÀ½.
4)ºÎÇÕ¹° ¹× Á¾¹°
Á¦½Ã¿Ü°Ç¹° ¨±~¨¶ ¼ÒÀçÇÔ.
(ÈÄ÷ 'ÁöÀû ¹× °Ç¹°°³È²µµ' ÂüÁ¶)
5)°øºÎ¿ÍÀÇ Â÷ÀÌ
¾øÀ½.



6)±âŸÂü°í»çÇ×(ÀÓ´ë°ü·Ê ¹× ±âŸ)
-ÀÓ´ë°ü°è: ¹Ì»óÀÓ.
-±â Ÿ: --.
Âü°í
»çÇ×
Àϰý¸Å°¢. Á¦½Ã¿Ü °Ç¹° Æ÷ÇÔ
1. ¸ñ·Ï1 - °øºÎ»ó ´ëÀÓ. - ÇöȲÀº °øºÎ»ó Áö¸ñ ¿ëµµ¿Í °°Àº ¿ëµµ·Î ÀÌ¿ë ÁßÀÎ °ÍÀ¸·Î º¸ÀÓ. 2. ¸ñ·Ï2 - °øºÎ»ó ´Üµ¶ÁÖÅÃÀÓ. - ÇöȲÀº °øºÎ»ó ¿ëµµ¿Í °°Àº ¿ëµµ·Î »ç¿ë ÁßÀÎ °ÍÀ¸·Î º¸ÀÓ.

°ÇÃ๰ÇöȲ

¼ÒÀçÁö °æ±âµµ ¾çÁֽà ÀåÈï¸é ¼®Çö¸® 337-21¹øÁö
´ëÁö¸éÀû 159§³
(48.18Æò)
¿¬¸éÀû 186.38§³
(56.48Æò)
°ÇÃà¸éÀû 61.93§³
(18.77Æò)
¿ëÀû·ü»êÁ¤
¿¬¸éÀû
93.6§³
(28.36Æò)
°ÇÆóÀ² 38.95% ¿ëÀû·ü 58.87%
Áö»óÃþ¼ö 2Ãþ ÁöÇÏÃþ¼ö 1Ãþ
ÁÖ¿ëµµ ´Üµ¶ÁÖÅà ±¸Á¶ ö±ÙÄÜÅ©¸®Æ®±¸Á¶
Âø°øÀÏÀÚ 2021.07.23 »ç¿ë½ÂÀÎÀÏÀÚ 2023.07.28
°ÇÃ๰Ãþº°ÇöȲ [º¸±â]


±¹ÅäºÎ½Ç°Å·¡°¡ °æ±âµµ ¾çÁֽà ÀåÈï¸é

¡Ü ¸Å¸Å

¸éÀû(§³), ±Ý¾×(¸¸¿ø)

¡Ü Àü¼¼

¸éÀû(§³), ±Ý¾×(¸¸¿ø)

°è¾àÀÏ¿¬¸éÀûº¸Áõ±Ý¿ù¼¼°ÇÃà
26.01.26120.7280,0001991
26.01.2424.2500302011
26.01.2237.81,000602024
26.01.0527.479,00002017
25.12.23223.6626,2602008
¢Ñ ´õº¸±â

µî±âºÎµîº» ¿ä¾à(ÅäÁö)

  Á¢¼öÀÏÀÚ µî±â¸ñÀû/±Ç¸®ÀÚ ±Ç¸®±Ý¾× ±âÁØ
1 2023³â8¿ù30ÀÏ
¼ÒÀ¯±Ç
õOO
¼Ò¸ê
2 2023³â8¿ù30ÀÏ
±ÙÀú´ç±Ç
ÀÌOO
375,000,000 ¼Ò¸ê±âÁØ
3 2024³â3¿ù19ÀÏ
¾Ð·ù
°íOO
¼Ò¸ê
4 2025³â9¿ù2ÀÏ
ÀÓÀǰæ¸Å
ÀÌOO
¼Ò¸ê

µî±âºÎµîº» ¿ä¾à(°Ç¹°)

  Á¢¼öÀÏÀÚ µî±â¸ñÀû/±Ç¸®ÀÚ ±Ç¸®±Ý¾× ±âÁØ
1 2023³â8¿ù30ÀÏ
¼ÒÀ¯±Ç
õOO
¼Ò¸ê
2 2023³â8¿ù30ÀÏ
±ÙÀú´ç±Ç
ÀÌOO
375,000,000 ¼Ò¸ê±âÁØ
3 2025³â9¿ù2ÀÏ
ÀÓÀǰæ¸Å
ÀÌOO
¼Ò¸ê
4 2025³â9¿ù8ÀÏ
¾Ð·ù
±¹OOOO
¼Ò¸ê

ÀÓÂ÷ÀÎÇöȲ (¹è´ç¿ä±¸Á¾±âÀÏ: 2025-11-17)

ÀÓÂ÷ÀÎ ¿ëµµ/Á¡À¯ º¸Áõ±Ý/¿ù¼¼ ´ëÇ×·Â
ÀüÀÔÀÏ/È®Á¤ÀÏ ¹è´ç¿ä±¸ ºñ°í
¿ÕOOOOOOOOOOOOOO
O
2022.08.02.
Á¤OO
O
2022.08.02.

¿©ÀÇÁÖ°æ¸Å Á¶¾ð ÇÑ ¸¶µð

Á¦½Ã¿Ü ¹°°ÇÀÌ Æ÷ÇԵǾî ÀÖ½À´Ï´Ù
¡®Á¦½Ã¿Ü ¹°°Ç¡¯Àº ÇØ´ç °øºÎ»ó¿¡´Â Á¸ÀçÇÏÁö ¾ÊÁö¸¸, ÇöÀå¿¡ Á¸Àç°¡ È®ÀεǴ ¿©·¯ ÇüÅÂÀÇ °Ç¹°, ±â°è±â±¸ µîÀ» ¸»ÇÕ´Ï´Ù. ÀÌµé ´ëºÎºÐÀº ¹«Çã°¡, ¹«½Å°íÀ̰ųª »ç¿ë½ÂÀÎÀ» ¹ÞÁö ¾ÊÀº °ÍÀÔ´Ï´Ù. ¡®Á¦½Ã¿Ü ¹°°Ç¡¯ÀÌ °æ¸Å´ë»ó¿¡ Æ÷ÇԵǾî ÀÖ´Ù¸é ³«ÂûÀÚÀÇ ¼ÒÀ¯±Ç Ãëµæ¿¡´Â ¾Æ¹«·± ¹®Á¦°¡ ¾ø½À´Ï´Ù.

ÁÖÀÇ»çÇ× (ÃÖ¼±¼øÀ§ ¼³Á¤ÀÏ: 2023.8.30. ±ÙÀú´ç ¼³Á¤)

¸Å°¢À¸·Î ¼Ò¸êµÇÁö ¾Ê´Â µî±âºÎ±Ç¸®:
¸Å°¢À¸·Î ¼³Á¤µÈ °ÍÀ¸·Î º¸´Â Áö»ó±Ç:
Àϰý¸Å°¢. Á¦½Ã¿Ü °Ç¹° Æ÷ÇÔ
¡Ø¹Ì³³°ü¸®ºñ(°ø¿ë) Àμö¿©ºÎ¸¦ ÀÔÂû Àü¿¡ È®ÀÎÇϽñ⠹ٶø´Ï´Ù

 

Áö¿ªºÐ¼®

ÁöÇÏö¸í Á÷¼±°Å¸®

Çб³¸í ÀüÈ­¹øÈ£ ÁÖ¼Ò Á÷¼±°Å¸®

¹ý¿ø

ÀÇÁ¤ºÎÁö¹æ¹ý¿ø (116-16)°æ±âµµ ÀÇÁ¤ºÎ½Ã ³ì¾ç·Î34¹ø±æ 23 (°¡´Éµ¿)
´ëÇ¥ : 031)828-0114
°üÇÒÁö¿ª : ÀÇÁ¤ºÎ½Ã, ¾çÁÖ½Ã, ³²¾çÁÖ½Ã, ±¸¸®½Ã, ¿¬Ãµ±º, Æ÷õ½Ã, °¡Æò±º, µ¿µÎõ½Ã, ö¿ø±º

µî±â¼Ò ÀÇÁ¤ºÎÁö¹æ¹ý¿ø º»¿ø ÀÇÁ¤ºÎµî±â¼Ò (´ëÇ¥:1544-0773, ÆÑ½º:(031)873-6303, °æ±âµµ ÀÇÁ¤ºÎ½Ã ¹ü°ñ·Î146¹ø±æ 13 (ÀÇÁ¤ºÎµ¿ 558))
¼¼¹«¼­ ÀÇÁ¤ºÎ¼¼¹«¼­ (´ëÇ¥:031-870-42, ÆÑ½º:031)875-2736, °æ±âµµ ÀÇÁ¤ºÎ½Ã ÀÇÁ¤·Î 77 (ÀÇÁ¤ºÎµ¿))

Àαٳ«ÂûÅë°è

±â°£ ¸Å°¢°Ç¼ö Æò±Õ°¨Á¤°¡
Æò±Õ¸Å°¢°¡
¸Å°¢°¡À²
Æò±ÕÀ¯Âû¼ö


º» °æ¸ÅÁ¤º¸´Â ¹ý¿øÀÚ·á¿Í ÀÏÄ¡Çϵµ·Ï ÇÏ¿´À¸³ª ±Ç¸®»çÇ׺¯µ¿, ÀÔ·ÂÂø¿À µîÀÇ ¿øÀÎÀ¸·Î »ç½Ç°ú ´Ù¸¦ ¼ö ÀÖ½À´Ï´Ù. ÀÌ¿ë¾à°ü¿¡ ÀǰЏéÃ¥Á¶°ÇÀ¸·Î Á¦°øµÊÀ» ¾Ë¸®¸ç, °æ¸ÅÀÔÂû½Ã ¹Ýµå½Ã °ü·Ã °øºÎ¸¦ ÀçÈ®ÀÎÇϽñ⠹ٶø´Ï´Ù. º¸´Ù Æí¸®ÇÑ °æ¸ÅÁ¤º¸ Á¦°øÀ» À§ÇØ Áö¼ÓÀûÀ¸·Î °³¼±ÇϰڽÀ´Ï´Ù. ÀÌ¿ëÇØ Áּż­ °¨»çÇÕ´Ï´Ù.