·Î±×ÀÎ
66
´Ù¼¼´ë(ºô¶ó)
ÀÇÁ¤ºÎÁö¹æ¹ý¿ø °í¾çÁö¿ø
 °¨Á¤°¡191,000,000 ¿ø
 ÃÖÀú°¡(100%) 191,000,000 ¿ø
 º¸Áõ±Ý(10%) 19,100,000 ¿ø
 Ã»±¸¾×82,344,619 ¿ø
°æ±âµµ ÆÄÁֽà Á¶¸®À¾ ´ë¿ø¸® 377-4 ÇÁ¶óÀÓÁÖÅà 101µ¿ 1Ãþ102È£
»ç°Ç¹øÈ£ 2025Ÿ°æ62533
°æ¸ÅÁ¾·ùºÎµ¿»êÀÓÀǰæ¸Å
¸Å°¢´ë»óÅäÁö ¹× °Ç¹°Àϰý ¸Å°¢
¸Å°¢±âÀÏ    2026.01.13(È­) 10:00 ÀÔÂû 2ÀÏÀü    
ÅäÁö¸éÀû70.25§³(21.25 Æò)
°Ç¹°¸éÀû64.26§³(19.44 Æò)
乫/¼ÒÀ¯ÀÚ¹ÚOO / ¹ÚOO
ä±ÇÀÚÇÑOOOOOOO
ÆäÀ̽ººÏ Æ®À§ÅÍ ±¸±Û+
īī¿À½ºÅ丮
īī¿ÀÅå sms¹®ÀÚº¸³»±â
 

±âÀϳ»¿ª

°æ°ú ³¯Â¥ Àú°¨ ÃÖÀú°¡ °á°ú
Á¢¼öÀÏ 2025-03-06 °æ¸ÅÁ¢¼ö
~1ÀÏ 
2025-03-07 °æ¸Å°³½Ã°áÁ¤
~95ÀÏ 
2025-06-09 ¹è´ç¿ä±¸Á¾±âÀÏ
~313ÀÏ 
2026-01-13 100%
191,000,000
ÁøÇà
¹°°Ç¸í¼¼¼­ ÇöȲÁ¶»ç¼­ ¹®°ÇÁ¢¼ö ¼Û´Þ³»¿ª

°¨Á¤Æò°¡ÇöȲ

¸ñ·Ï ÁÖ¼Ò ±¸Á¶/¿ëµµ/´ëÁö±Ç ¸éÀû ºñ°í
´ëÁö±Ç
´ë¿ø¸® 377-4 1124ºÐÀÇ 70.25 70.25 §³
(21.25Æò)
°Ç¹°
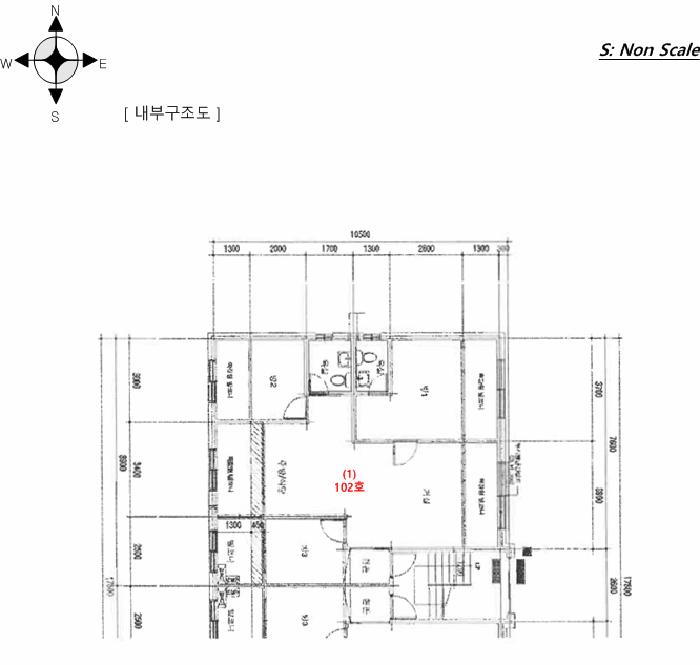
´ë¿ø¸® 377-4 101µ¿ 1Ãþ102È£ ö±ÙÄÜÅ©¸®Æ®±¸Á¶ 64.26 §³
(19.44Æò)
1) À§Ä¡/°èȹ°ü¸®Áö¿ª/¹ö½ºÁ¤·ùÀå/ö±ÙÄÜÅ©¸®Æ®±¸Á¶/µµ½Ã°¡½º ´õº¸±â
°¨Á¤Æò°¡ ¿äÇ×Ç¥
1)À§Ä¡ ¹× ÁÖÀ§È¯°æ
º»°ÇÀº °æ±âµµ ÆÄÁֽà Á¶¸®À¾ ´ë¿ø¸® ¼ÒÀç ""ÆÄÁÖ´ë¿øÃʵîÇб³"" ºÏ¼­Ãø Àαٿ¡ À§Ä¡Çϸç, ÁÖÀ§´Â Àü, ´ä, °øµ¿ÁÖÅà µîÀÌ ¼ÒÀçÇÏ´Â µî Á¦¹Ý ÁÖÀ§È¯°æÀº º¸ÅëÀÓ.
2)±³Åë»óȲ
º»°Ç±îÁö Â÷·® Áø¡¤ÃâÀÔÀÌ °¡´ÉÇϸç, Àαٿ¡ ¹ö½ºÁ¤·ùÀåÀÌ ¼ÒÀçÇÏ´Â µî Á¦¹Ý ±³Åë½Ã¼³ ȯ°æÀº º¸ÅëÀÓ.
3)°Ç¹°ÀÇ ±¸Á¶
ö±ÙÄÜÅ©¸®Æ®±¸Á¶, (ö±Ù)ÄÜÅ©¸®Æ®ÁöºØ Áö»ó4Ãþ ÇÁ¶óÀÓÁÖÅà Á¦101µ¿ Á¦1Ãþ Á¦102È£·Î¼­,
(»ç¿ë½ÂÀÎÀÏ : 2016.05.27.)
¿Üº® : ¼®Àç ŸÀϺÙÀÓ ¸¶°¨ µî,
âȣ : ¼¦½Ãâȣ µîÀÓ.
4)ÀÌ¿ë»óÅÂ
°øµ¿ÁÖÅÃ(´Ù¼¼´ëÁÖÅÃ)À¸·Î ÀÌ¿ë ÁßÀÓ.
5)¼³ºñ³»¿ª
±âº»ÀûÀÎ À§»ö ¹× ±Þ¡¤¹è¼ö¼³ºñ, µµ½Ã°¡½º¸¦ ÀÌ¿ëÇÑ ³­¹æ¼³ºñ µîÀ» °®Ãß¾úÀ½.
6)ÅäÁöÀÇ Çü»ó ¹× ÀÌ¿ë»óÅÂ
º»°ÇÀº ÀÎÁ¢µµ·Î ´ëºñ µî°íÆòźÇÑ ºÎÁ¤Çü ÅäÁö·Î¼­, °ÇºÎÁö[°øµ¿ÁÖÅÃ(´Ù¼¼´ëÁÖÅÃ)]À¸·Î ÀÌ¿ë ÁßÀÓ.
7)ÀÎÁ¢ µµ·Î»óŵî
º»°ÇÀº ³²ÃøÀ¸·Î ³ëÆø ¾à 5~6M ³»¿ÜÀÇ ¾Æ½ºÆÈÆ® Æ÷Àåµµ·Î¿¡ Á¢ÇÔ.
8)ÅäÁöÀÌ¿ë°èȹ ¹× Á¦ÇÑ»óÅÂ
°èȹ°ü¸®Áö¿ª, ¼Ò·Î3·ù(Æø 8m ¹Ì¸¸)(2003-01-01)(Á¢ÇÕ), °¡Ãà»çÀ°Á¦Çѱ¸¿ª(¸ðµçÃàÁ¾ »çÀ°Á¦ÇÑ)<°¡ÃàºÐ´¢ÀÇ °ü¸® ¹× À̿뿡 °üÇÑ ¹ý·ü>, »ó´ëº¸È£±¸¿ª(2012-12-26)(´ë¿øÃʵîÇб³,¹Ýµå½Ã ±³À°Áö¿øÃ»¿¡ ÀçÈ®ÀÎ ¹Ù¶÷(940-7244))<±³À°È¯°æ º¸È£¿¡ °üÇÑ ¹ý·ü>, »ó´ëº¸È£±¸¿ª(¹Ýµå½Ã ±³À°Áö¿øÃ»¿¡ ÀçÈ®ÀÎ ¹Ù¶÷(TEL.940-7244))<±³À°È¯°æ º¸È£¿¡ °üÇÑ ¹ý·ü>, Á¦ÇѺ¸È£±¸¿ª(Àü¹æÁö¿ª:25km)<±º»ç±âÁö ¹× ±º»ç½Ã¼³ º¸È£¹ý>, <Ãß°¡±âÀç>°ÇÃà¹ý Á¦2Á¶Á¦1Ç×Á¦11È£³ª¸ñ¿¡ µû¸¥ µµ·Î(µµ·ÎÀÏºÎÆ÷ÇÔ)ÀÓ.
9)°øºÎ¿ÍÀÇ Â÷ÀÌ
¾ø À½.
10)±âŸÂü°í»çÇ×(ÀÓ´ë°ü·Ê ¹× ±âŸ)
¹Ì »ó ÀÓ.
Âü°í
»çÇ×

À̰ÇÀº ö±ÙÄÜÅ©¸®Æ®±¸Á¶

°ÇÃ๰ÇöȲ

¼ÒÀçÁö °æ±âµµ ÆÄÁֽà Á¶¸®À¾ ´ë¿ø¸® 377-4¹øÁö
´ëÁö¸éÀû   ¿¬¸éÀû 557.76§³
(169.02Æò)
°ÇÃà¸éÀû 182.34§³
(55.25Æò)
¿ëÀû·ü»êÁ¤
¿¬¸éÀû
557.76§³
(169.02Æò)
°ÇÆóÀ²   ¿ëÀû·ü  
Áö»óÃþ¼ö 4Ãþ ÁöÇÏÃþ¼ö  
ÁÖ¿ëµµ °øµ¿ÁÖÅà ±¸Á¶ ö±ÙÄÜÅ©¸®Æ®±¸Á¶
Âø°øÀÏÀÚ 2015.05.08 »ç¿ë½ÂÀÎÀÏÀÚ 2016.05.27
°ÇÃ๰Ãþº°ÇöȲ [º¸±â]


±¹ÅäºÎ½Ç°Å·¡°¡ °æ±âµµ ÆÄÁֽà Á¶¸®À¾

¡Ü ¸Å¸Å

¸éÀû(§³), ±Ý¾×(¸¸¿ø)

¡Ü Àü¼¼

¸éÀû(§³), ±Ý¾×(¸¸¿ø)

°è¾àÀϰǹ°¸íĪÃþ¿¬¸éÀûº¸Áõ±Ý¿ù¼¼°ÇÃà
25.12.13Ǫ¸£³ªºô101µ¿102µ¿(761-0)453.5051,000602014
25.12.08¹ÌÈ£ºô¶óA,B,C(211-1)149.255,0001996
25.11.27Çϳª·Îºô¶ó(755-0)4546,87002001
25.11.25°Å¿µºí·çÈú103µ¿104µ¿358.071,500602012
25.11.19¼¼Àο¬¸³A,B,Cµ¿157.429,5001985
¢Ñ ´õº¸±â

µî±âºÎµîº» ¿ä¾à(°Ç¹°)

  Á¢¼öÀÏÀÚ µî±â¸ñÀû/±Ç¸®ÀÚ ±Ç¸®±Ý¾× ±âÁØ
1 2016³â9¿ù2ÀÏ
¼ÒÀ¯±Ç
¹ÚOO
¼Ò¸ê
2 2016³â9¿ù2ÀÏ
±ÙÀú´ç±Ç
(OOOO
113,400,000 ¼Ò¸ê±âÁØ
3 2024³â9¿ù30ÀÏ
°¡¾Ð·ù
¿£OOOO
10,744,435 ¼Ò¸ê
4 2024³â10¿ù30ÀÏ
°¡¾Ð·ù
(OOOO
40,193,893 ¼Ò¸ê
5 2024³â11¿ù8ÀÏ
°¡¾Ð·ù
ÇÑOOOO
12,522,885 ¼Ò¸ê
6 2025³â2¿ù10ÀÏ
°¡¾Ð·ù
°æOOOO
66,000,000 ¼Ò¸ê
7 2025³â3¿ù7ÀÏ
ÀÓÀǰæ¸Å
ÇÑOOOO
¼Ò¸ê
8 2025³â3¿ù19ÀÏ
°¡¾Ð·ù
½ÅOOOO
9,080,289 ¼Ò¸ê

ÀÓÂ÷ÀÎÇöȲ (¹è´ç¿ä±¸Á¾±âÀÏ: 2025-06-09)


Á¶»çµÈ ÀÓÂ÷³»¿ªÀÌ ¾ø½À´Ï´Ù.


¿©ÀÇÁÖ°æ¸Å Á¶¾ð ÇÑ ¸¶µð


ÁÖÀÇ»çÇ× (ÃÖ¼±¼øÀ§ ¼³Á¤ÀÏ: )

¸Å°¢À¸·Î ¼Ò¸êµÇÁö ¾Ê´Â µî±âºÎ±Ç¸®:
¸Å°¢À¸·Î ¼³Á¤µÈ °ÍÀ¸·Î º¸´Â Áö»ó±Ç:
¡Ø¹Ì³³°ü¸®ºñ(°ø¿ë) Àμö¿©ºÎ¸¦ ÀÔÂû Àü¿¡ È®ÀÎÇϽñ⠹ٶø´Ï´Ù

 

Áö¿ªºÐ¼®

ÁöÇÏö¸í Á÷¼±°Å¸®

Çб³¸í ÀüÈ­¹øÈ£ ÁÖ¼Ò Á÷¼±°Å¸®

¹ý¿ø

ÀÇÁ¤ºÎÁö¹æ¹ý¿ø °í¾çÁö¿ø (104-13)°æ±âµµ °í¾ç½Ã Àϻ굿±¸ Àå¹é·Î 209
´ëÇ¥ : 031)920-6114, ¾ß°£ : 031)920-6550, ÆÑ½º : 031)920-6119
°üÇÒÁö¿ª : °í¾ç½Ã, ÆÄÁÖ½Ã

µî±â¼Ò ÀÇÁ¤ºÎÁö¹æ¹ý¿ø °í¾çÁö¿ø ÆÄÁÖµî±â¼Ò (´ëÇ¥:1544-0773, ÆÑ½º:(031)945-4764, 3628, °æ±âµµ ÆÄÁֽà ±ÝÁ¤·Î 45 (±ÝÃ̵¿ 947-28))
¼¼¹«¼­ ÆÄÁÖ¼¼¹«¼­ (´ëÇ¥:031-956-02, ÆÑ½º:031-957-0315, °æ±âµµ ÆÄÁֽà ±Ý¸ª¿ª·Î 62 (±ÝÃ̵¿))

Àαٳ«ÂûÅë°è

±â°£ ¸Å°¢°Ç¼ö Æò±Õ°¨Á¤°¡
Æò±Õ¸Å°¢°¡
¸Å°¢°¡À²
Æò±ÕÀ¯Âû¼ö
3°³¿ù 12°Ç 223,083,333¿ø
124,929,421¿ø
60%
2.3ȸ
6°³¿ù 16°Ç 214,687,500¿ø
118,010,441¿ø
57%
2.3ȸ
12°³¿ù 21°Ç 218,380,952¿ø
126,176,093¿ø
60%
2.1ȸ


º» °æ¸ÅÁ¤º¸´Â ¹ý¿øÀÚ·á¿Í ÀÏÄ¡Çϵµ·Ï ÇÏ¿´À¸³ª ±Ç¸®»çÇ׺¯µ¿, ÀÔ·ÂÂø¿À µîÀÇ ¿øÀÎÀ¸·Î »ç½Ç°ú ´Ù¸¦ ¼ö ÀÖ½À´Ï´Ù. ÀÌ¿ë¾à°ü¿¡ ÀǰЏéÃ¥Á¶°ÇÀ¸·Î Á¦°øµÊÀ» ¾Ë¸®¸ç, °æ¸ÅÀÔÂû½Ã ¹Ýµå½Ã °ü·Ã °øºÎ¸¦ ÀçÈ®ÀÎÇϽñ⠹ٶø´Ï´Ù. º¸´Ù Æí¸®ÇÑ °æ¸ÅÁ¤º¸ Á¦°øÀ» À§ÇØ Áö¼ÓÀûÀ¸·Î °³¼±ÇϰڽÀ´Ï´Ù. ÀÌ¿ëÇØ Áּż­ °¨»çÇÕ´Ï´Ù.